Cùng với sự gia tăng nhanh chóng về số lượng xe, đặc biệt là ô tô ở Việt Nam và sự lphát triển của cuộc sống là nhu cầu xây dựng nhà ở có gara ngày càng tăng cao. Nắm bắt được tâm lý của khách hàng, kiến trúc ANG đã đưa ra bộ sưu tập mẫu nhà có gara ô tô được đánh giá là an toàn, hợp tiêu chuẩn kỹ thuật, phong thủy, công năng và phù hợp với mục đích sử dụng của nhiều gia đình.
8 lời khuyên hữu ích cho mẫu nhà có gara ô tô
Dù là thiết kế một tổ hợp công trình lớn như nhà ở hay một không gian nhỏ là gara ô tô thì người làm kiến trúc và gia chủ đều phải quan tâm tới những nguyên tắc nhất định nếu không muốn xảy ra những sai sót hay bất tiện cho quá trình sử dụng về sau. Trước khi đưa quý vị đi tham quan bộ sưu tập các mẫu nhà có gara ô tô, chúng ta sẽ cùng nhau tìm hiểu những lời khuyên hữu ích cho hạng mục này.
Vị trí đặt gara ô tô
Có nhiều ý kiến trái chiều xoay quanh việc có nên đặt gara ô tô trong nhà. Theo cơ quan ý tế của Canada, các khí thải độc hại từ gara ô tô thiết kế thông với nhà ở có thể gây ô nhiễm không khí trong ngôi nhà. Khảo sát của cơ quan này cũng cho thấy, hầu hết các gia đình có gara ô tô thông với nhà ở đều có một lượng lớn các chất độc hại như các dạng hydrocarbon (C6H12, C2H6), carbon monoxide (CO), các oxit nitơ (NOx), carbon dioxide (CO2),… đặc biệt là chất benzene trong nhà. Đáng chú ý rằng, benzene chính là một trong những chất gây ra ung thư và chất này có nồng độ cao gấp 3 lần tại gara ô tô, và lượng khí cao hơn khi nổ hoặc tắt máy.
Khói thải của các hóa chất từ xe ô tô sẽ bay hơi trong gara rồi tìm đường vào nhà, ngay cả khi đóng cửa ngăn cách. Việc tiếp xúc với các chất này thường xuyên có thể gây nguy hại tới tủy xương và quá trình sản xuất máu, thậm chí gây ra tử vong.
Tuy nhiên không phải gia đình nào cũng có quỹ đất rộng rãi để làm nhà để xe tách rời, đặc biệt là các công trình nhà phố. Để đảm bảo công năng sử dụng, gia chủ bắt buộc phải thiết kế gara ô tô trong nhà và tất nhiên cần phải đảm bảo các tiêu chuẩn về mặt kỹ thuật cũng như tính an toàn cho quá trình sử dụng về sau. Trong các mẫu nhà có gara ô tô của ANG, có 2 vị trí đặt gara chính là thiết kế tầng hầm riêng biệt hoặc thiết kế chung sàn với tầng 1. Với mỗi loại gara sẽ có những yêu cầu riêng phụ thuộc vào vị trí, đặc điểm công năng sử dụng. Đối với gara ô tô tầng hầm, gia chủ có thể tham khảo thêm thông tin về tiêu chuẩn kỹ thuật bản vẽ thiết kế nhà có tầng hầm.
Kích thước gara ô tô
Diện tích của gara ô tô phụ thuộc chủ yếu vào nhu cầu sử dụng của gia đình với số lượng xe tương ứng và kích thước chung của ngôi nhà. Mẫu nhà có gara ô tô phải dành ra tối thiểu một khoảng diện tích 3x5m đối với loại xe 4 chỗ thân ngắn như Kia Morning hay 3m x 5,5m đối với xe 4 chỗ thân dài như xe Honda Civic, Ford Focus,...Không chỉ chứa ô tô, gara còn là nơi cất giữ các phương tiện khác như xe máy, xe đạp, trung bình mỗi gia đình hiện nay sở hữu 2 chiếc xe máy nên diện tích cần phải rộng hơn quy định tối thiểu kể trên mới đảm bảo hiệu năng sử dụng. Thông thường, một gia đình có 1 ô tô và 2-3 chiếc xe máy, xe đạp sẽ cần một gara diện tích tối thiểu 3,5x5,5m.
Nội thất gara
Hiện nay, loại cửa được sử dụng phổ biến cho các mẫu nhà có gara ô tô là cửa cuốn tự động. Với thiết kế đặc biệt, cửa cuốn vừa đảm bảo an toàn cho ngôi nhà lại thuận tiện trong quá trình sử dụng. Trong trường hợp mất điện, bạn vẫn có thể nâng lên, kéo xuống dễ dàng bằng phương pháp thủ công hoặc mua thêm 1 UPS (máy tích điện) tự động chuyển nguồn ắc quy. Với nhu cầu lớn, thị trường cửa cuốn hiện nay tại Việt Nam khá phát triển, mang đến cho người tiêu dùng nhiều sự lựa chọn hơn về các dòng cửa thông minh khác nhau như cửa cuốn nan lớn, cửa cuốn xuyên sáng, cửa cuốn tấm liền, cửa cuốn khe thoáng, cửa cuốn chuyên dụng, cửa cuốn trượt trần,...
Một vài lưu ý khi lựa chọn cửa cuốn cho gara là:
- Nên chọn loại cửa kính có khe sáng cho thiết kế gara ô tô trong nhà. Các khe sáng này cũng sẽ góp phần thông khí cho gara.
- Nên chọn loại cửa có tốc độ lên xuống nhanh, gọn để tiết kiệm thời gian sử dụng.
- Nên loại cửa có bộ acquy tích điện để phòng trường hợp bị mất điện vẫn có thể sử dụng cửa tự động được. Nếu không, bạn hãy chọn loại cửa cuốn có dây xích để dùng bằng tay phòng khi mất điện.
- Nên chọn loại cửa cuốn cho thiết kế gara trong nhà có chức năng chống cháy, chức năng cảm biến tự động đóng cửa khi có cháy. Đồng thời có thêm bộ điều khiển từ xa.

Cửa cuốn giúp tiết kiệm không gian diện tích cho gara
Camera giám sát: Để đảm bảo theo dõi an toàn, nhiều mẫu nhà có gara ô tô sở hữu hệ thống camera không dây với các mắt thần lắp đặt bên trong gara và cửa ra vào. Camera sẽ được kết nối tín hiệu với trung tâm kiểm soát trong nhà hoặc với điện thoại hay các thiết bị điện tử khác của người sử dụng. Tầm nhìn hoạt động của camera gia đình thông thường sẽ có tầm hoạt động phù hợp trong bán kính từ 30-50m. Với điều kiện thiếu ánh sáng, nên lựa chọn loại camera có hồng ngoại trong khu vực gara.
Lát sàn: Sàn gara ô tô thường xuyên chịu tác động của các phương tiện có trọng lượng lớn vì vậy không cần lựa chọn loại gạch ốp quá đẹp mà nên tập trung vào độ bền và chất lượng. Tốt hơn gia chủ có thể chỉ cần đổ sàn bê tông hoặc ốp gạch đỏ để tránh mặt sàn quá trơn, có độ nhám nhất định giữ bánh xe khỏi bị trơn trượt. Nếu chung sàn với tầng 1 và được ốp đồng nhất bằng gạch đá hoa thì gia chủ nên chú ý giữ khu vực này luôn khô ráo và cẩn thận hơn về độ trơn trượt trong quá trình sử dụng.
Ngoài ra để đảm bảo công năng sử dụng hiệu quả, gia chủ nên cân nhắc tới việc trang bị các thiết bị nội thất khách như đèn điện, gương chiếu hậu, thông gió, tủ chứa đồ chuyên dụng cho các dụng cụ sửa xe hay các vật dụng như mũ bảo hiểm, áo mưa,...
Lưu ý kỹ thuật tường, trần và sàn
Để tránh lãng phí không cần thiết, tường và trần trong các mẫu nhà có có gara ô tô có thể trát phẳng, dùng loại sơn dễ lau chùi, chống bám bẩn. Sàn sử dụng vật liệu có độ chống mài mòn và chống trơn, và đặc biệt là dễ cọ rửa. Sàn có thể dùng vật liệu đá tự nhiên đục nhám, đá granite phun nhám, đá xẻ tự nhiên, gạch terazzo... Với bề mặt sần thô, ngoài tác dụng trống trơn, các vật liệu này còn giúp hút âm, tránh tiếng ồn động cơ lớn.
Lưu ý về phong thủy cho mẫu nhà có gara ô tô
Những lưu ý về mặt phong thủy dưới đây sẽ giúp gara ô tô ở trong trạng thái sử dụng tốt nhất. Tuy nhiên điều kiện xây dựng của mỗi công trình thường không giống nhau, gia chủ nên cân nhắc giữa các yếu tố để đưa ra sự lựa chọn hài hòa nhất có thể:
- Thiết kế gara ô tô hướng Đông Bắc: Việc đặt gara về hướng Đông Bắc sẽ giúp mang lại vượng khí, tránh ô nhiễm và đảm bảo lưu thông.
- Xây gara hình chữ nhật: Thực tế, hình chữ nhật phù hợp với hình dáng của nhiều loại xe. Bởi vậy xây gara theo hình dạng này sẽ giúp tiết kiệm diện tích, đồng thời hạn chế tạo ra các góc khuất, góc nhọn ảnh hưởng tới đường đi của xe và sự an toàn trong quá trình di chuyển.
- Sử dụng màu sơn nhẹ nhàng, trang nhã: Nhiều người không nghiên cứu cách bài trí gara và cho rằng không có ý nghĩa phong thủy. Tuy nhiên, thực tế không phải vậy. Gara nên dùng màu sơn trang nhã, đơn giản. Tường trong gara cũng nên treo vật trang nhã, mỗi lần vào lấy xe, giúp tinh thần nhẹ nhàng thư thái.
- Tránh hướng xung xạ khi mở cửa gara: Vị trí gara ô tô tương đương với vị trí xe ngựa, kiệu cổ trong phong thủy truyền thống thời xưa, tượng trưng cho sự giàu có, không phú thì quý. Gara có loại để trên mặt đất và tầng hầm. Thiết kế trên mặt đất nên tránh gần đống rác, giếng, đường ống nước (đặc biệt là đường ống ô nhiễm) là cát lợi. Đặc biệt tránh sát khí lộ xung, góc nhọn xung xạ. Làm hầm ngầm để xe, nên tránh dưới phòng vệ sinh, vị trí để rác, nước ô nhiễm và các kiến trúc xung xạ. Nếu nhà chưa có gara nên tạm thời chọn vị trí bằng phẳng, nhiều cây xanh bao quanh. Tránh gần giếng, đống rác, góc nhọn của nhà, xung cửa và lộ xung.
- Để đầu xe trong gara hướng vào nhà: Khi cất xe vào gara nên để đầu hướng vào nhà, tượng trưng cho sự cát tường. Ngoài ra, khi khởi động, mùi xăng xe rất độc, đầu xe quay vào trong, đuôi xe ở ngoài, khói độc nhanh tán, không ảnh hưởng đến sức khỏe.

Phong thủy cũng là yếu tố cần cân nhắc khi thiết kế mẫu nhà có gara ô tô
Thiết kế hệ thống cấp thoát nước
Nên thiết kế hệ thống cấp thoát nước trong gara để phục vụ cho việc rửa xe. Điều này rất tiện lợi mặc dù bạn không có thói quen rửa xe ở nhà. Ngoài vòi nước có thể bố trí thêm chậu rửa tay. Một hệ thống thoát nước sàn tốt sẽ làm cho gara của bạn luôn sạch sẽ, khô ráo, đặc biệt khi trời mưa và các phương tiện bị ướt.
Ánh sáng và thông gió
Nếu có điều kiện tốt nhất nên sử dụng ánh sáng tự nhiên thông qua các ô thoáng hoặc khe cửa cuốn, ánh sáng từ trần hoặc giếng trời. Ngoài ra để tăng thêm độ sáng cần thiết cho gara, gia chủ cũng cần nhờ đến hệ thống chiếu sáng với bóng đèn neon hoặc compact tiết kiệm điện hay hệ thống đèn chiếu sáng thông minh bằng cảm biến nhiệt để khi xe về buổi tối có thể tự động bật sáng. Không chỉ đảm bảo an toàn cho việc cất, lấy xe mà ánh sáng còn kích thích thần kinh người lái, tránh cảm giác buồn ngủ, giúp người lái xe thuận lợi cho xe vào.
Hệ thống thông gió được đánh giá là quan trọng trong các mẫu nhà có gara ô tô bởi nó sẽ có tác dụng thanh lọc bầu không khí, giải thoát các mùi xăng xe, mùi động cơ khó chịu gây hại tới sức khỏe con người. Thông gió sẽ đảm bảo cho không gian này luôn thoáng đãng và không bị ám mùi khói xe. Ngoài hệ thống thông gió tự nhiên với các ô cửa có thể sử dụng thêm quạt gió để đẩy nhanh quá trình lưu chuyển của dòng khí.
Tính an toàn
Không để chất dễ cháy nổ trong gara. Nên thiết kế tủ chuyên dụng để chứa hóa chất, dụng cụ rửa xe, tránh xa tầm tay của trẻ em và dễ dàng tìm kiếm. Hệ thống báo cháy và báo khói là rất quan trọng vì gara là nơi dễ cháy nổ nhất. Một điều quan trọng nữa mọi người cần lưu ý, không bao giờ nổ máy xe khi cửa gara còn đóng.
Không gian gara cũng là một phần trong mẫu thiết kế nhà đẹp cần phải được giữ gìn gọn gàng, sạch sẽ, không nên vứt đồ lung tung gây cản trở giao thông hay thậm chí khuất tầm mắt, nguy hiểm khi điều khiển xe ra ngoài. Phải đảm bảo tầm nhìn khi ngồi trong xe hay trên các phương tiện là quang thông và an toàn nhất có thể.
Bộ sưu tập mẫu nhà có gara ô tô
Như đã giới thiệu ở trên, có 2 cách thiết kế gara ô tô là thiết kế tầng hầm, tầng bán hầm làm nhà để xe hoặc thiết kế chung sàn tầng 1. Nhiều gia chủ muốn tách riêng tầng hầm để xe cần phải chú ý tới các tiêu chuẩn kỹ thuật sau:
- Phần nổi của tầng hầm tính đến sàn của tầng trệt không được cao quá 1,2m so với độ cao của vỉa hè hiện hữu.
- Vị trí đường xuống hầm cách ranh lộ giới tối thiểu 3m và có độ dốc 15% so với mặt đường.
- Đối với thiết kế nhà ở liền kề có mặt tiền giáp với đường có lộ giới nhỏ hơn 6m, không thiết kế tầng hầm có lối lên xuống dành cho ô tô tiếp cận trực tiếp với đường.
- Diện tích gagare để xe ô tô có chiều dài tối thiểu 5m.


Mẫu số 1: Mẫu nhà có gara ô tô tầng hầm


Mẫu số 2: Thiết kế tầng hầm làm gara ô tô


Mẫu nhà có gara ô tô số 4 sử dụng cửa cuốn bảo vệ an toàn


Mẫu nhà có gara ô tô 3 tầng với kích thước sàn chứa lớn


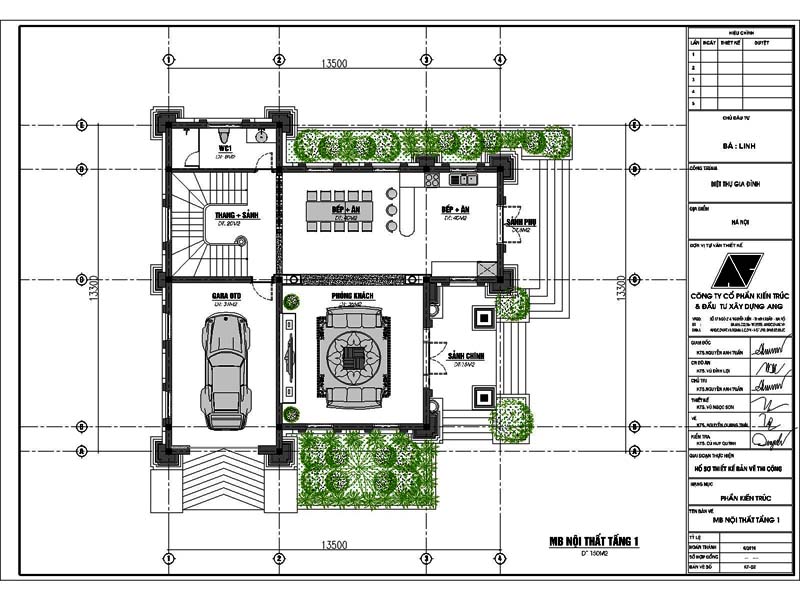
Mặt bằng nội thất tầng hầm với sức chứa lớn là giải pháp tiết kiệm diện tích ưu việt


Thiết kế tầng hầm làm gara với sức chứa lớn


Thiết kế tầng hầm nhà phố cần chú ý các quy chuẩn về kích thước


Mặt bằng nội thất tầng hầm để xe khá đơn giản và rộng rãi
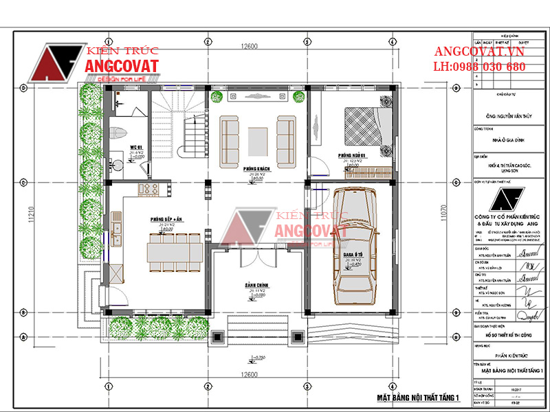
Tuy nhiên không phải nhà nào cũng có điều kiện để xây dựng tầng hầm để xe riêng biệt, đặc biệt các công trình nhà phố hay nhà ở kết hợp kinh doanh, thông thường sàn tầng 1 sẽ được tận dụng làm nơi để xe. Việc có thêm không gian để xe sẽ giúp gia chủ yên tâm hơn cũng như giảm được chi phí gửi xe bên ngoài. Thông thường, gara sẽ được bố trí ngay ở mặt tiền, từ ngoài nhìn vào có thể thấy cửa giúp cho việc di chuyển xe trở nên dễ dàng hơn.


Mẫu số 8: Mẫu nhà có gara ô tô diện tích 60m2 ở Long Biên


Mẫu gara nhà có gara ô tô số 8 gây ấn tượng với sự bề thế
M

Thiết kế cửa ra vào của gara theo hướng đường lớn thuận lợi hơn cho quá trình di chuyển


Thiết kế mẫu nhà có gara ô tô số 11 phong cách tân cổ điển


Hình ảnh mẫu thiết kế biệt thự hiện đại có gara ô tô
Các mẫu thiết kế biệt thự cổ điển sân vườn có gara ô tô luôn dành được sự quan tâm của nhiều gia chủ sở hữu lợi thế về diện tích đất. Ngoài việc tách rời nhà để xe có mái che, nhiều gia chủ lại thích thiết kế nhà ở và gara thành một tổ hợp thống nhất như các mẫu nhà 3 tầng đẹp có gara.


Gara được bố trí ở cạnh hông mẫu thiết kế biệt thự cổ điển không phá vỡ kiến trúc


Thiết kế tiền đường nổi bật cho mẫu nhà có gara ô tô phong cách cổ điển


Thiết kế gara ô tô liền khối tạo sự đối xứng cho mặt tiền ngôi biệt thự 3 tầng
T

Thiết kế gara với sức chứa 1 ô tô và 2 xe máy phù hợp với nhu cầu sử dụng của nhiều gia đình


Mẫu nhà có gara ô tô phù hợp với mục đích sử dụng của nhiều gia đình Việt


Thiết kế không gian để xe thoáng đãng giúp lọc bớt khói bụi và mùi xăng khi xe vừa đi về


Thiết kế mặt tiền vô cùng ấn tượng với gam màu trắng của mẫu nhà có gara ô tô


Thiết kế nhà để xe chung sàn tầng 1 tạo khối công năng thống nhất


Sở hữu vẻ ngoài đơn giản nhưng hệ thống công năng của mẫu nhà 2 tầng mặt tiền 8m lại thể hiện sự tiện nghi, đẳng cấp


Lối vào thoáng đãng và rộng rãi an toàn hơn khi lái xe vào gara


Hình ảnh mẫu nhà có gara ô tô phong cách hiện đại mặt tiền 10m


Thiết kế lối đi bên trong gara thuận lợi cho sự di chuyển vào ngày mưa gió


Ngôi biệt thự mang phong cách lâu đài cũng sở hữu không gian để xe riêng biệt, chuyên dụng
Mẫu thiết kế biệt thự mái nghiêng có gara ô tô chiều lòng các chủ đầu tư yêu thích phong cách độc đáo, mới lạ.


Mẫu nhà có gara ô tô sử dụng cửa cuốn tiện lợi


Mặt bằng nhà ở kết hợp kinh doanh tích hợp không gian để xe an toàn


Thiết kế mẫu nhà có gara ô tô gây ấn tượng với sự gần gũi, đơn giản


Mẫu thiết kế dành cho gia đình mong muốn có gara ô tô riêng
Bộ sưu tập mẫu nhà có gara ô tô và những lời khuyên hữu ích hy vọng sẽ trở thành nguồn tài liệu tham khảo hữu ích cho gia đình đang mong muốn sở hữu căn nhà với hệ công năng bao gồm cả khu để xe. Hãy liên hệ với chúng tôi để nhận được sự tư vấn phù hợp cho gia đình bạn!
Mọi thông tin cần tư vấn xin vui lòng liên hệ: 0988.030.680








