Nhà cấp 4 chữ L 3 phòng ngủ 1 phòng thờ đang trở thành xu hướng được nhiều gia đình Việt Nam yêu thích nhờ thiết kế tiện nghi, thẩm mỹ và phù hợp với chi phí từ 500 triệu đến dưới 1 tỷ đồng. Với không gian tối ưu, mẫu nhà này không chỉ đáp ứng nhu cầu sinh hoạt mà còn đảm bảo yếu tố phong thủy, đặc biệt với phòng thờ riêng biệt. Trong bài viết này, chúng tôi sẽ chia sẻ những ưu điểm, kinh nghiệm thiết kế, và các lưu ý quan trọng khi xây dựng nhà cấp 4 chữ L, giúp bạn dễ dàng lên kế hoạch cho ngôi nhà mơ ước.
Ưu Điểm Của Nhà Cấp 4 Chữ L 3 Phòng Ngủ 1 Phòng Thờ
Nhà cấp 4 chữ L mang đến nhiều lợi ích thiết thực, phù hợp với cả khu vực nông thôn lẫn thành thị. Dưới đây là những ưu điểm nổi bật:
- Tối ưu không gian: Thiết kế chữ L giúp tận dụng tối đa diện tích đất, đặc biệt với những khu đất có góc vuông hoặc hình dạng không vuông vắn. Phần góc chữ L có thể được sử dụng làm sân vườn, khu vực sinh hoạt ngoài trời hoặc nơi để xe tiện lợi.
- Phong thủy hài hòa: Phòng thờ được bố trí riêng biệt, thường đặt ở vị trí trang trọng, yên tĩnh, đảm bảo sự tôn nghiêm và phù hợp với văn hóa Việt Nam. Thiết kế này cũng dễ dàng điều chỉnh để hợp với hướng nhà và mệnh gia chủ.
- Chi phí hợp lý: So với nhà tầng, nhà cấp 4 chữ L có chi phí xây dựng thấp hơn, phù hợp với các gia đình có ngân sách từ 600-800 triệu đồng (tùy diện tích và vật liệu).
- Tính linh hoạt: Nhà cấp 4 chữ L dễ dàng mở rộng hoặc cải tạo trong tương lai, đáp ứng nhu cầu thay đổi của gia đình.
Nhờ những ưu điểm này, nhà cấp 4 chữ L 3 phòng ngủ 1 phòng thờ trở thành lựa chọn lý tưởng cho gia đình 4-6 người, kết hợp giữa tiện nghi và thẩm mỹ.
Tổng Hợp Các Mẫu Nhà Cấp 4 Chữ L 3 Phòng Ngủ 1 Phòng Thờ Đẹp

Thiết kế nhà cấp 4 chữ L 3 phòng ngủ 1 phòng thờ mái thái hiện đại chi phí 700-800 triệu

Công trình nhà cấp 4 chữ L 3 phòng ngủ 1 phòng thờ mái nhật đã hoàn thiện chi phí 950 triệu

Thiết kế nhà cấp 4 chữ L 3 phòng ngủ 1 phòng thờ mái nhật đẹp chi phí gần 1 tỷ

Thiết kế nhà cấp 4 mái thái chữ L 3 phòng ngủ 1 phòng thờ diện tích 120m2

Mẫu nhà cấp 4 hình chữ L công năng 3 phòng ngủ 1 phòng thờ mái bằng hiện đại chi phí chỉ từ 500 triệu đồng phù hợp với ngân sách của nhiều gia đình

Mẫu nhà vườn cấp 4 hiện đại 3 phòng ngủ 1 phòng thờ án tượng nhất

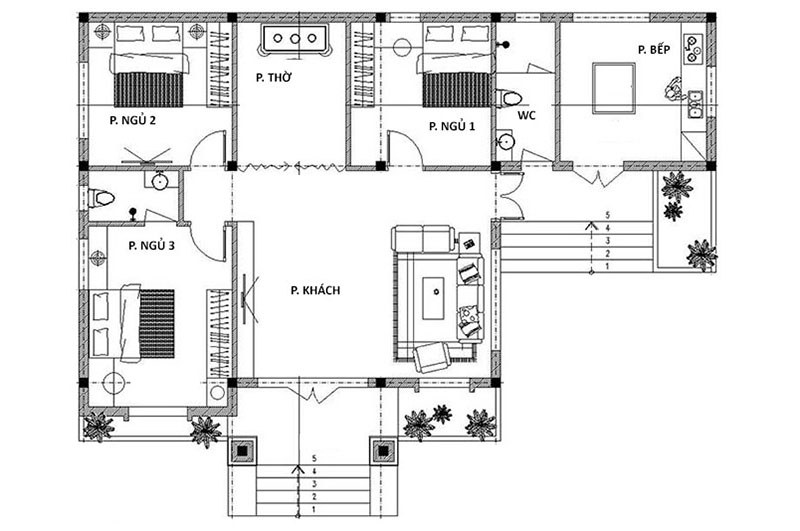
Bản vẽ nhà cấp 4 mái nhật 3 phòng ngủ 1 phòng thờ chữ L diện tích 140m2















Kinh Nghiệm Thiết Kế Và Xây Dựng Nhà Cấp 4 Chữ L 3 Phòng Ngủ 1 Phòng Thờ
Để xây dựng một ngôi nhà cấp 4 chữ L đẹp, tiện nghi và tiết kiệm chi phí, bạn cần lưu ý những yếu tố sau:
1. Lựa chọn diện tích và bố trí không gian
- Với gia đình 4-6 người, diện tích lý tưởng cho nhà cấp 4 chữ L thường từ 80-150m².
- Bố trí không gian:
- Phòng khách: Nên đặt ở vị trí trung tâm, gần cửa chính, kết hợp với cửa sổ lớn để tạo sự thông thoáng.
- Phòng bếp: Liên thông với phòng khách để tiết kiệm diện tích, có thể thêm quầy bar nhỏ.
- 3 phòng ngủ: Bố trí hợp lý, đảm bảo mỗi phòng có cửa sổ để đón ánh sáng tự nhiên.
- Phòng thờ: Đặt ở vị trí yên tĩnh, thường ở phía sau nhà hoặc khu vực riêng biệt, tránh đối diện cửa chính.
- Nhà vệ sinh: Tùy diện tích, có thể bố trí 1-2 nhà vệ sinh chung hoặc riêng cho phòng ngủ chính.






2. Phong thủy
- Hướng nhà: Chọn hướng phù hợp với mệnh gia chủ, thường là hướng Đông, Đông Nam (hướng mát mẻ, tốt cho phong thủy).
- Phòng thờ: Đặt bàn thờ ở vị trí cao, tránh đặt dưới xà nhà hoặc đối diện nhà vệ sinh. Hướng bàn thờ nên hợp với tuổi gia chủ.
- Cửa chính: Tránh thiết kế cửa chính và cửa hậu thẳng hàng để tránh thoát khí tốt.
3. Dự toán chi phí
- Chi phí xây nhà cấp 4 chữ L dao động từ 6-8 triệu đồng/m² (tính đến năm 2025), tùy thuộc vào vật liệu và phong cách thiết kế. Ví dụ:
- Nhà 100m², mái tôn: Khoảng 600-700 triệu đồng.
- Nhà 100m², mái thái: Khoảng 700-800 triệu đồng.
- Để tiết kiệm, bạn có thể chọn vật liệu xây dựng phổ thông như gạch block, xi măng chất lượng cao, và mái tôn cách nhiệt.
4. Lựa chọn vật liệu
- Kết cấu: Gạch block hoặc gạch đỏ, bê tông cốt thép cho móng và cột.
- Mái nhà: Mái tôn (tiết kiệm), mái ngói (truyền thống), hoặc mái thái (hiện đại, chống nóng tốt).
- Nội thất: Sử dụng gỗ công nghiệp hoặc nội thất thông minh để tối ưu chi phí và không gian.
5. Thuê đơn vị thiết kế/thi công
- Chọn nhà thầu uy tín, có kinh nghiệm xây nhà cấp 4 chữ L. Yêu cầu xem các dự án thực tế hoặc đánh giá từ khách hàng trước.
- Ký hợp đồng rõ ràng, nêu chi tiết tiến độ, chi phí, và cam kết chất lượng.
Lưu Ý Khi Xây Nhà Cấp 4 Chữ L 3 Phòng Ngủ 1 Phòng Thờ
Để đảm bảo ngôi nhà hoàn thiện đúng ý, bạn cần lưu ý:
- Hệ thống thoát nước: Khu vực góc chữ L dễ bị đọng nước, cần thiết kế hệ thống thoát nước tốt để tránh ngập úng.
- Ánh sáng tự nhiên: Tận dụng cửa sổ lớn, giếng trời hoặc mái kính để ngôi nhà sáng sủa, tiết kiệm điện năng.
- Pháp lý: Kiểm tra giấy phép xây dựng, bản vẽ thiết kế và đảm bảo tuân thủ quy định địa phương.
- Nội thất phù hợp: Chọn nội thất gọn gàng, phù hợp với diện tích để tránh cảm giác chật chội. Ví dụ: giường gấp, tủ âm tường, hoặc bàn ghế đa năng.
- Kiểm tra chất lượng thi công: Theo dõi tiến độ xây dựng, đảm bảo vật liệu và kỹ thuật đúng tiêu chuẩn.
Nhà cấp 4 chữ L 3 phòng ngủ 1 phòng thờ là sự lựa chọn hoàn hảo cho các gia đình Việt Nam muốn sở hữu một không gian sống tiện nghi, thẩm mỹ và tiết kiệm chi phí. Với thiết kế linh hoạt, tối ưu không gian và phù hợp phong thủy, mẫu nhà này không chỉ đáp ứng nhu cầu sinh hoạt mà còn mang lại sự thoải mái và hài lòng lâu dài. Nếu bạn đang tìm kiếm ý tưởng thiết kế hoặc cần tư vấn xây dựng, hãy liên hệ với các đơn vị uy tín hoặc tham khảo thêm các mẫu nhà đẹp trên website của chúng tôi.
Bạn đang ấp ủ ý tưởng xây nhà cấp 4 chữ L? Hãy để lại bình luận chia sẻ mong muốn của bạn hoặc liên hệ ngay tại [link website] để được tư vấn miễn phí!








