Thiết kế nhà trên diện tích 200m2 1 tầng đang trở thành mẫu nhà chiếm được cảm tình của nhiều chủ đầu tư, đặc biệt là những gia đình sở hữu các lô đất rộng, có lợi thế về cảnh quan sân vườn. Xu hướng phát triển tất yếu không phải là các ngôi nhà cao tầng hay các ngôi nhà mặt phố mà là sự lên ngôi của các ngôi biệt thự thấp tầng nghỉ dưỡng ở các vùng quê thành bình, yên tĩnh, nơi mỗi người có thể tìm về với thiên nhiên, cây cối trong lành, tươi mát.
Mẫu số 1: Nhà trên diện tích 200m2 BT527088- 1,6 tỷ cho không gian sống tiện nghi
Địa chỉ công trình: Phường Xuất Hóa, TP Bắc Kạn
Kích thước ô đất: 2000m2
Diện tích: 250m2
Mặt tiền: 19.3m
Chiều sâu: 14.1m
Kinh phí đầu tư dự kiến: 1.6 tỷ đồng

Hình ảnh mẫu thiết kế nhà cấp 4 mái thái diện tích 250m2
Thông số công năng, diện tích: Sảnh chính 10.5m2, Sảnh trung tâm 19m2, Phòng khách 25.5m2, Bếp ăn 22m2, Phòng kho 5m2, Phòng thờ 14.5m2, Phòng ngủ 1 17.6m2, Phòng ngủ 2 17.6m2, Phòng ngủ 3 18.5m2, WC1 4.7m2, WC2 5m2, WC3 7.4m2.

Tổng mặt bằng thiết kế nhà trên diện tích 200m2 3 phòng ngủ 1 phòng khách
Mẫu số 2: Thiết kế nhà trên diện tích 200m2 BT1250888- giải pháp kiến trúc cho nhà 2 mặt tiền
Địa chỉ công trình: TP Hồ Chí Minh
Kích thước ô đất: 46x45m
Diện tích: 230m2
Mặt tiền: 19m
Chiều sâu: 12m
Kinh phí đầu tư dự kiến: 1.9 tỷ đồng

Phối cảnh thiết kế biệt thự có mặt tiền rộng mái thái diện tích 230m2
Thông số công năng, diện tích: Hành lang 1.9m, Sảnh phụ 8m2, Phòng thờ 20.5m2, Phòng khách 26m2, Phòng ngủ 1 29m2, Phòng ngủ 2 17m2, WC1 8m2, WC2 3.5m2, Bếp ăn 28.5m2, Garo ô tô 21m2.

Bản vẽ tổng mặt bằng mẫu thiết kế biệt thự có mặt tiền rộng 2 phòng ngủ có gara
Mẫu số 3: Mẫu nhà trên diện tích 200m2 BT111078- ấn tượng với khối mái xanh bề thế
Địa chỉ công trình: huyện An Dương, Hải Phòng
Diện tích: 20x31m
Mặt tiền: 18.2m
Chiều sâu: 16.2m
Kinh phí đầu tư dự kiến: 1.6 tỷ đồng

Tạo hình mặt đứng lạ mắt cho thiết kế nhà trệt cấp 4 mái thái đẹp 3 phòng ngủ 1 phòng thờ
Thông số công năng, diện tích: Sảnh trung tâm 24m2, Phòng khách 29m2, Phòng thờ 11.5m2, Nhà ăn 17.3m2, Phòng ngủ 1 19m2, WC1 4.5m2, Phòng ngủ 2 14.5m2, Phòng ngủ 3 14.5m2.

Mặt bằng tổng thể mẫu nhà cấp 4 mái thái 3 phòng ngủ 1 phòng thờ 200m2
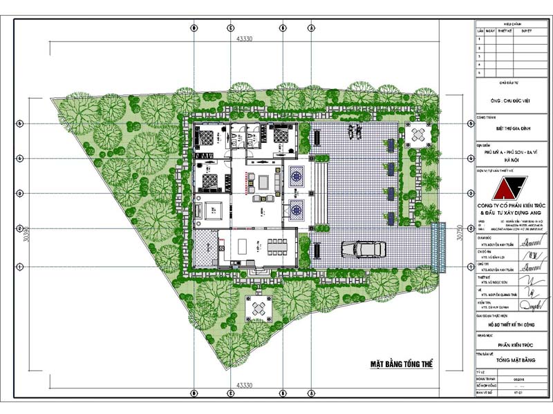
Mẫu số 4: Mẫu thiết kế nhà trên diện tích 200m2 BT305078- sự kết hợp hài hòa giữa truyền thống và hiện đại
Địa chỉ công trình: Phú Mỹ A- Phú Sơn- Ba Vì- Hà Nội
Diện tích: 30x43m
Mặt tiền: 16.5m
Chiều sâu: 15.3m
Kinh phí đầu tư dự kiến: 1.5 tỷ đồng

Gợi ý phối cảnh xây biệt thự 200m2 mái thái phong cách hiện đại kết hợp truyền thống
Thông số công năng, diện tích: Tiền sảnh 25m2, Phòng khách 42m2, Phòng thờ 14.8m2, Bếp ăn 34.5m2, Sân phơi 10m2, Phòng ngủ 1 14.5m2, Phòng ngủ 2 14.5m2, Phòng ngủ 3 15.8m2, WC1 3.8m2, WC2 4.3m2.

Sơ đồ mặt bằng tổng thể xây biệt thự 200m2 3 phòng ngủ mặt tiền 16.5m
Mẫu số 5: Xây nhà trên diện tích 200m2 BT301068- gợi ý cách sắp xếp nhà 3 phòng ngủ 1 phòng khách
Địa chỉ công trình: TP Hạ Long, Quảng Ninh
Diện tích: 900m2
Mặt tiền: 21m
Chiều sâu: 14m
Kinh phí đầu tư dự kiến: 1.6 tỷ đồng

Phối cảnh tiền đường tươi sáng mẫu nhà cấp 4 đẹp 200m2 mái thái
Thông số công năng, diện tích: Sảnh chính 6m2, Phòng khách 24m2, Phòng ăn 21m2, Phòng bếp 10m2, Sân chơi 18m2, Phòng thờ 18m2, Phòng ngủ 1 15m2, Phòng ngủ 2 24m2, WC2 5.3m2, Phòng ngủ 3 18.7m2, WC2 4m2, Hành lang rộng 1.2m2.

Gợi ý quy hoạch khang trang cho mẫu thiết kế nhà cấp 4 đẹp 200m2 trên lô đất hình chữ l
Mẫu số 6: Nhà trên diện tích 200m2 BT526058- hút mắt với nghệ thuật tương phản màu sắc
Địa chỉ công trình: Bình Xuyên, Vĩnh Phúc
Diện tích: 300m2
Mặt tiền: 21.6m
Chiều sâu: 14.3m
Kinh phí đầu tư dự kiến: 1.8 tỷ đồng

Xanh-trắng, 2 gam màu tương phản được sử dụng hài hòa trong mẫu thiết kế nhà trệt 3 phòng ngủ đơn giản
Thông số công năng, diện tích: Sảnh chính 6.6m2, Sảnh phụ 4.7m2, Phòng khách 27.8m2, phòng ngủ 1: 16.3m2; phòng ngủ 2: 24m2, phòng ngủ 3: 14,6m2, 1 phòng thờ 12.4m2, 1 phòng bếp + phòng ăn 17.3m2, phòng vệ sinh 1 5.3m2, vệ sinh 2: 5.3m2, sân chơi 13,5m2.

Bố trí mặt bằng công năng khoa học cho thiết kế nhà trệt diện tích 200m2
Mẫu số 7: Thiết kế nhà trên diện tích 200m2 BT125058- ghi dấu kiến trúc cổ điển
Địa chỉ công trình: TP Hạ Long, Quảng Ninh
Diện tích: 300m2
Mặt tiền: 25m
Chiều sâu: 17m
Kinh phí đầu tư dự kiến: 4 tỷ đồng

Mẫu lâu đài đẹp 1 tầng gây ấn tượng mạnh bởi các khối kiến trúc cổ điển được tạo hình tinh xảo và vô cùng cầu kỳ
Thông số công năng, diện tích: Phòng khách 33m2, phòng ngủ 1 18m2, phòng ngủ 2 19,7m2, phòng ngủ 3 19,7m2, , gara 23m2, phòng thờ 23m2, sân chơi 30m2, phòng bếp + ăn 26,8m2, WC 1 5,1m2, WC2 4,5m2, phòng giặt 1,5m2.

Bản vẽ tổng mặt bằng mô phỏng vị trí bố trí các không gian và trật tự sắp xếp mặt bằng công năng cho ngôi biệt thự lâu đài 1 tầng ở Quảng Ninh
Mẫu số 8: Mẫu nhà trên diện tích 200m2 BT819018- giải pháp cho nhà mặt tiền hẹp
Địa chỉ công trình: Tiền Giang
Diện tích: 250m2
Mặt tiền: 27.2m
Chiều sâu: 13.9m
Kinh phí đầu tư dự kiến: 2.2 tỷ đồng

Thiết kế nhà có mặt tiền hẹp và sâu vẫn toát lên vẻ sang trọng và phô trọn đường nét kiến trúc tân cổ nhẹ nhàng trong mẫu nhà cấp 4 đẹp 200m2
Thông số công năng, diện tích: Tiền sảnh 18m2, Phòng khách 30m2, Sảnh trung trung tâm 17m2, Phòng ngủ 1: 32m2, WC1: 7.6m2, WC2: 4.5m2, Phòng thờ: 20m2, Phòng ngủ 2: 15m2, WC3: 4.1m2, Phòng ngủ 3: 15m2, Phòng ngủ 4: 15m2, Phòng bếp ăn: 32m2.

Sân vườn tiểu cảnh khang trang mang lại dấu ấn hoàn thiện và không gian sống tươi mát cho ngôi biệt thự vùng ngoại ô
Mẫu số 9: Mẫu thiết kế nhà trên diện tích 200m2 BT105018- bắt mắt với kiểu kiến trúc lạ
Địa chỉ công trình: Đường Trường Chinh, TP Nam Định
Diện tích: 250m2
Mặt tiền: 13m
Chiều sâu: 20m
Kinh phí đầu tư dự kiến: 1.9 tỷ đồng

Thiết kế cánh cung lớn bằng kính đón sáng tự nhiên cho không gian ngôi nhà cấp 4 có 4 phòng ngủ diện tích 250m2 thêm thoáng đãng
Thông số công năng, diện tích: Tiền sảnh: 7.5m2, Phòng khách 34.8m2, Phòng thờ: 23m2, Phòng bếp ăn 22m2, Phòng ngủ 1: 18.3m2, Phòng ngủ 2: 15.8m2, Phòng ngủ 3: 17.4m2, Phòng ngủ 4: 17.4m2, sân phơi 16m2

Gợi ý sắp xếp khéo léo sân vườn, hồ bơi cho khu đất góc cạnh đảm bảo sự hài hòa cho không gian sống của gia đình
Mẫu số 10: Xây nhà trên diện tích 200m2 BT205127- nhà 3 gian và phong cách đương đại, có thể kết hợp?
Địa chỉ công trình: Mỹ Đình, Hà Nội
Diện tích: 220m2
Mặt tiền: 25.2m
Chiều sâu: 12.3m
Kinh phí đầu tư dự kiến: 1.5 tỷ đồng

Sự hồi sinh của kiến trúc 3 gian truyền thống kết hợp với chất hiện đại cho không gian sống trở nên thân thiện, gần gũi- gợi ý thiết kế nhà cấp 4 220m2 mái thái ngói đỏ
Thông số công năng, diện tích: Tiền sảnh: 13.5m2, Phòng ngủ 1 16.5m2, Phòng ngủ 2: 20m2, Phòng khách 50m2, Phòng ăn 32m2, Phòng WC2: 5.4m2, Phòng ngủ 3: 20m2, Phòng ngủ 4: 18.5m2, WC3: 5.5.m2

Bố trí mặt bằng công năng theo quy cách truyền thống với thiết kế phòng khách kết hợp không gian thờ cúng ở gian trung tâm, hai bên cánh trái, phải là không gian sinh hoạt riêng của gia đình
Mẫu số 11: Nhà trên diện tích 200m2 BT124087- sang trọng, tinh tế với đường nét tân cổ điển
Địa chỉ công trình: Kim Động, Hưng Yên
Diện tích: 200m2
Mặt tiền: 15m
Chiều sâu: 18m
Kinh phí đầu tư dự kiến: 1.5 tỷ đồng

Vẻ đẹp đối xứng của kiến trúc tân cổ điển đã thuyết phục chủ đầu tư ngôi biệt thự mặt tiền 15m
Thông số công năng, diện tích: 1 Sảnh chính 36m2, Phòng khách 22m2, Phòng thờ 20m2, Phòng bếp ăn 26m2, Sảnh phụ 3.8m2, WC 4.5m2, Phòng ngủ 1 22m2, WC 5m2, Phòng ngủ 2 18m2, Phòng ngủ 3 14.5m2.

Bố trí mặt bằng công năng dạng tập trung vừa tiết kiệm diện tích, thể hiện khối thống nhất bền vững mà vẫn đảm bảo chức năng sinh hoạt riêng cho từng khu vực của mau nha cap 4 dien tich 200m2
Mẫu số 12: Mẫu nhà trên diện tích 200m2 BT109097- lãng mạn với thiết kế biệt thự vàng kem
Địa chỉ công trình: Thái Bảo, Gia Bình, Bắc Ninh
Diện tích: 200m2
Mặt tiền: 20m
Chiều sâu: 13m
Kinh phí đầu tư dự kiến: 1.6 tỷ đồng

Vàng kem là gam màu vừa mang lại sự tươi sáng, khỏe khoắn nhưng cũng không kém phần ấm áp cho ngôi nhà cấp 4 có tầng áp mái
Thông số công năng, diện tích:
Tầng 1: Sảnh chính 26m2, Sảnh phụ 16m2, Phòng khách + thờ 35m2, Phòng bếp ăn 31m2, WC1 3.8m2, WC2 5.5m2, Phòng ngủ 1 16m2, Phòng ngủ 2: 22m2
Tầng áp mái: Phòng ngủ 3: 27m2, Phòng ngủ 4 34m2, WC 7m2

Hệ thống phòng ốc bố trí hợp lý thuận lợi cho giao thông di chuyển trong nhà
Mẫu số 13: Thiết kế nhà trên diện tích 200m2 BT103087- duyên dáng với sự xuất hiện của khối vòm cung
Địa chỉ công trình: Mỹ Đức, Hà Nội
Diện tích: 240m2
Mặt tiền: 17m
Chiều sâu: 16m
Kinh phí đầu tư dự kiến: 1.8 tỷ đồng

Hình ảnh mặt tiền độc đáo của ngôi biệt thự nhà vườn 1 tầng với thiết kế vòm cung mềm mại
Thông số công năng, diện tích: Phòng ngủ 1(16m2), phòng ngủ 2(28m2), phòng ngủ 3(16m2), phòng bếp (27m2), WC 1(6m2), sảnh chung (25m2), WC 2(5m2), phòng thờ (6m2), phòng khách (28m2), phòng SHC (16.5m2), gara (22m2)

Sảnh trung tâm đóng vai trò như nút giao thông chính chia thành các hướng dẫn lối đến từng vị trí không gian chức năng
Mẫu số 14: Mẫu thiết kế nhà trên diện tích 200m2 BT119077- đánh giá tính ưu việt của hệ thống mái thái ngói đỏ
Địa chỉ công trình: Thanh Hóa
Diện tích: 200m2
Mặt tiền: 10m
Chiều sâu: 22m
Kinh phí đầu tư dự kiến: 1.5 tỷ đồng

Phối cảnh tổng thể hài hòa với cỏ cây, hoa lá cho mẫu thiết nhà trên diện tích 200m2 kế thêm sinh động, gần gũi
Thông số công năng, diện tích: Tiền sảnh, Phòng khách, Phòng bếp ăn, gara ô tô, 4 phòng ngủ, 1 phòng thờ, sảnh trung tâm

Với thiết kế chiều sâu, các không gian chức năng được triển khai sắp xếp theo chiều dọc dựa trên một trục giao thống chính nối liền thuận lợi cho quá trình di chuyển và sinh hoạt của gia đình
Mẫu số 15: Xây nhà trên diện tích 200m2 BT106077- phương án sở hữu ngôi nhà 4 phòng ngủ 1 phòng khách
Địa chỉ công trình: Phú Thọ
Diện tích: 220m2
Mặt tiền: 18m
Chiều sâu: 14m
Kinh phí đầu tư dự kiến: 1.7 tỷ đồng

Thiết kế nhà 1 tầng mặt tiền 18m mang hơi hướng hiện đại với cách bố trí hình khối tự do, phóng khoáng

Phối cảnh tổng thể sân vườn khang trang và hàng rào, tường bào kiên cố cho công trình ở Phú Thọ
Thông số công năng, diện tích: Tầng 1: tiền sảnh (17.5m2), phòng khách (25.5m2), phòng ngủ 1 (17.6m2), phòng ngủ 2 (17.6m2), phòng thờ (13m2), phòng bếp + phòng ăn (22m2), kho: (5.2m2).phòng ngủ 3: (18.5m2), phòng ngủ 4: (13m2), WC 1: (4.7m2), WC2:( 5m2), WC3: (4.7m2), WC 4: (7.4m2).

Sự sắp xếp hợp lý giữa các khoảng sinh hoạt chung và không gian riêng tư hứa hẹn sẽ mang lại sự tiện nghi cho ngôi biệt thự 4 phòng ngủ mặt tiền 18m
Mẫu số 16: Nhà trên diện tích 200m2 BT110067- lạ mắt với kiến trúc hình chữ u
Địa chỉ công trình: Yên Lập, Phú Thọ
Diện tích: 200m2
Mặt tiền: 24m
Chiều sâu: 12m
Kinh phí đầu tư dự kiến: 1.5 tỷ đồng

Thiết kế tiền đường gây ấn tượng với hình khối cân đối, khỏe khoắn, bề mặt tường bằng phẳng, thoáng đãng

Hình ảnh tổng thể mẫu biệt thự 1 tầng diện tích 200m2 và cảnh quan thiên nhiên mát mẻ, trong lành
Thông số công năng, diện tích: Tiền sảnh: 11.3m2 , Phòng khách: 50m2, Sảnh phụ: 9m2, Phòng ăn:26.5m2, Phòng thờ: 11.5m2, Phòng ngủ 1: 21m2, Phòng ngủ 2: 16.5m2, Phòng ngủ 3: 20m2, WC1: 5.3m2, WC2: 5.4m2, WC3: 5.1m2, WC4: 4.1m2.

Bố trí tổng mặt bằng gọn gàng với sân vườn và tiểu cảnh hồ nước điều hòa không khí cho không gian sống của ngôi biệt thự
Mẫu số 17: Mẫu nhà trên diện tích 200m2 BT107116- thiết kế cửa sổ kính cho không gian tươi sáng
Địa chỉ công trình: Nghĩa Hưng, Nam Định
Diện tích: 200m2
Mặt tiền: 18m
Chiều sâu: 11.8m
Kinh phí đầu tư dự kiến: 1.5 tỷ đồng

Ngôi nhà cấp 4 mái thái diện tích 200m2 khoác lên mình tấm áo ngoại thất nổi bật với gam màu chủ đạo vàng kem và nâu
Thông số công năng, diện tích: phòng khách: 25m2, phòng bếp+ăn 25m2, sảnh chơi 9.5m2, sảnh chính 17m2, thờ 14m2, ngủ 1 18.8m2, ngủ 2 14.6m2, ngủ 3 14.6m2 ngủ 4 17.3m2.

Bố trí mặt bằng công năng dạng tập trung, sảnh chính đóng vai trò làm nút giao thông quan trọng là gợi ý ưu việt nhất cho các ngôi biệt thự 1 tầng
Mẫu số 18: Thiết kế nhà trên diện tích 200m2 BT413016- gợi ý mẫu nhà 1 tầng có gara ô tô
Địa chỉ công trình: Vĩnh An, Vĩnh Cửu, Đồng Nai
Diện tích: 250m2
Mặt tiền: 23m
Chiều sâu: 14m
Kinh phí đầu tư dự kiến: 1.9 tỷ đồng

Ngôi biệt thự vườn gây ấn tượng với thiết kế tiền sảnh sang trọng và hệ thống mái thái nổi bật
Thông số công năng, diện tích: Khách 33m2, bếp ăn : 21m2, Thờ 23.5m , gara : 20m2, ngủ 1: 16m2, ngủ 2: 16m2, ngủ 3: 20m2, ngủ 4: 20m2, tiền sảnh 15m2, diện tích mái: 320m2

Chỉ dành ra 1/3 diện tích đất để xây nhà, toàn bộ phần còn thừa được tận dụng để bố trí cây xanh và hồ nước lớn vừa tăng tính thẩm mỹ vừa có tác dụng điều hòa không khí cho không gian sống của gia đình
Mẫu số 19: Mẫu thiết kế nhà trên diện tích 200m2 BT321096- kiến trúc hiện đại và các giải pháp khí hậu tiện nghi
Địa chỉ công trình: Thạch Thất, Hà Nội
Diện tích: 200m2
Mặt tiền: 19.5m
Chiều sâu: 13m
Kinh phí đầu tư dự kiến: 1.5 tỷ đồng

Cửa kính- giải pháp tận dụng ánh sáng tự nhiên cho ngôi biệt thự vùng nhiệt đới

Phối cảnh tổng thể khu đất đã được quy hoạch sân vườn, hồ nước, cổng hàng rào khang trang
Thông số công năng, diện tích: 1 sảnh chính, 1 phòng khách+ thờ 27m2, phòng ăn 28m2, bếp 11m, phòng ngủ 1: 20m2, phòng ngủ 2: 17m2, phòng ngủ 3: 15m2, vệ sinh 1, vệ sinh 2, sảnh phụ 11m, 1 phòng thay đồ, hành lang 20m2, Diện tích mái 250m2. chiều cao tầng 1: 3.9m, chiều cao mái: 2.7m. Tổng chiều cao: 6.6m.

Hệ thống 3 phòng ngủ tiện nghi, gọn gàng, ngăn nắp tiết kiệm diện tích sử dụng cho ngôi nhà
Mẫu số 20: Xây nhà trên diện tích 200m2 BT111125- gợi ý xây nhà ở kết hợp văn phòng
Địa chỉ công trình: Vân Đồn, Quảng Ninh
Diện tích: 400m2
Mặt tiền: 20m
Chiều sâu: 20m
Kinh phí đầu tư dự kiến: 3 tỷ đồng

Vẻ bề ngoài vững vàng, kiên cố cho mẫu thiết kế nhà ở kiêm văn phòng làm việc
Thông số công năng, diện tích: 5 phòng ngủ, 01 phòng ăn - 12 chỗ, 01 phòng bán vé, 01 phòng sửa chữa, 01 phòng kho, 01 phòng giám đốc, 01 phòng họp, 01 gara xe ô tô

Sự khéo léo trong cách tổ chức mặt bằng công năng của mẫu nhà ở kết hợp văn phòng làm việc ở Quảng Ninh
Trên đây là một vài gợi ý cho nhu cầu thiết kế nhà trên diện tích 200m2 1 tầng với cảnh quan sân vườn khang trang, rộng rãi mà ANG đã thực hiện. Đây đều là các mẫu đã được triển khai thực hiện ở nhiều tỉnh thành và nhận được những phản hồi tích cực từ phía khách hàng. Còn bạn, bạn đã lựa chọn được mẫu nhà ưng ý cho gia đình mình hay chưa? Còn chần chừ gì mà không cùng đội ngũ kiến trúc sư tài năng của ANG đi tìm những giá trị đích thực cho cuộc sống!
Mọi thông tin cần tư vấn xin vui lòng liên hệ: 0988.030.680








