Ngoại thất cũng giống như tấm áo bên ngoài, vừa có chức năng che chở, bảo vệ vừa tạo ấn tượng thẩm mỹ cho ngôi nhà. Kiến trúc sư người Mỹ Frank Lloyd Wright cho rằng: “Hình thức chạy theo công năng- điều này rõ ràng là hiểu lầm. Hình thức và công năng phải là một, hài hòa trong sự hợp nhất tuyệt diệu.”
Thiết kế nhà có gác lửng hiện đại được đánh giá là giải pháp hữu ích cho các ngôi nhà có diện tích eo hẹp, đặc biệt là các ngôi nhà phố hay căn hộ chung cư. Đây cũng có thể là một hướng đi cho các ngôi biệt thự đang tìm kiếm điều mới lạ. Thông thường, các ngôi nhà gác lửng thường được thiết kế, trang trí nội thất theo xu hướng đơn giản, hiện đại nhằm tìm kiếm sự tối giản và thoáng đãng cho không gian sinh hoạt. Trong ngoài thống nhất, đó là lý do vì sao chúng tôi hướng đến kiến trúc hiện đại cho tấm áo ngoại thất của kiểu nhà này.
Mặc dù sở hữu thêm một tầng lửng, tăng thêm diện tích sinh hoạt nhưng nhìn từ bên ngoài, nhà có gác lửng hiện đại không khác nhiều so với các ngôi nhà 1,2,3 tầng cơ bản.
Mẫu số 1: Thiết kế ngoại thất nhà có gác lửng hiện đại 3 phòng ngủ mái thái BT101096
Số tầng: 01
Kích thước: 7x17m
Kinh phí đầu tư dự kiến: 1 tỷ đồng
Thông số công năng, diện tích: 110m2
- Tầng 1: 1 phòng khách 20m2, 1 phòng bếp ăn 35m2, phòng ngủ 1 13m2, 1 phòng vệ sinh 4,5m2, gara 14,5m2, sảnh tầng 10m2, tiền sảnh 7,5m2
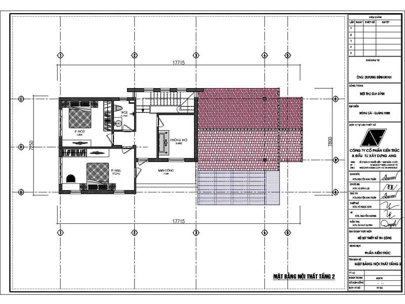
- Tầng lửng: Phòng ngủ 2 13m2, phòng ngủ 3 17,5m2, phòng thờ 8,5m2, ban công 7m2, sảnh tầng 7m2, vệ sinh 2,5m2
- Chiều cao tầng 1: 3,3m
- Chiều cao tầng lửng: 3,3m
- Chiều cao mái: 2,8m
- Chiều cao tổng thể: 9,4m

Thiết kế mái thái giật cấp tôn lên sự cao ráo và thanh thoát cho ngôi biệt thự 1 tầng ở Sơn La. Phối màu nhã nhặn, kết hợp nhiều sắc độ khác nhau mang lại sự đa dạng cho tấm áo màu ngoại thất. Tone màu chủ đạo trắng sáng kết hợp với màu ghi xám đá rối tạo điểm nhấn cho khu vực chân tường. Phần trán tường gây ấn tượng với hình nan quạt và đường phào kẻ ngang tạo cảm giác nâng đỡ vững chãi.

Mặt bằng tầng 1 là không gian sinh hoạt chung của cả gia đình với dây chuyền công năng bao gồm phòng khách, bếp ăn và phòng ngủ bố mẹ. Vị trí các phòng được sắp xếp khoa học, thuận lợi cho quá trình sinh hoạt nghỉ ngơi. Từ sảnh chính bước vào là phòng khách, sâu vào bên trong là phòng ăn và cuối cùng là bếp. Phòng ngủ bố trí cạnh góc tránh lối đi lại hướng vào, tạo không gian yên tĩnh.

Tầng lửng chiều cao 3,3m, diện tích tầng lửng bằng 2/3 diện tích tầng 1. Đây được cho là kích thước hợp lý tạo ra sự hài hòa về mặt tổng thể. Tầng lửng rộng rãi bố trí được 2 phòng ngủ con và 1 phòng thờ. Vệ sinh chung đặt ở vị trí cầu thang lên xuống thuận tiện cho quá trình sử dụng. Mỗi phòng ngủ đều có thiết kế cửa sổ đón gió và thông thoáng khí mang lại cảm giác thoãng đãng cho không gian.
Mẫu số 2: Mẫu thiết kế nhà 1 tầng 1 tum 100m2 mái ngói BT114067
Số tầng: 01
Kích thước: 8x17m
Kinh phí đầu tư dự kiến: 1 tỷ đồng
Thông số công năng diện tích: 100m2/sàn
- Tầng 1: Tiền sảnh: 7m2, Phòng khách: 21m2, Phòng ăn: 21m2, WC1: 2.8m2, WC2: 3.6m2, Phòng ngủ 1: 14m2, Phòng ngủ 2: 14m2
- Tầng tum: Sảnh tầng: 11m2, WC3: 3.6m2, Phòng ngủ 3: 14m2, Phòng ngủ 4: 14m2, Phòng thờ: 7m2, Sân chơi

Kiến trúc sư người Nhật Tadao Anto cho rằng một trong những yếu tố quan trọng nhất của một tác phẩm kiến trúc là ''hình học nguyên chất, không pha tạp mà đền Pantheson là một thí dụ. Đây là một yếu tố cơ bản để tạo nên sự hiện diện rõ rệt cho kiến trúc. Nó có thể là một khối đặc, nhưng thường là một khung 3 chiều, bởi khung 3 chiều rất phù hợp với hình học nguyên chất.'' Ngôi nhà có gác lửng hiện đại của gia đình anh Chu Tiến Thi ở Lạng Sơn được kiến trúc sư ANG vận dụng sáng tạo hình khối vuông vức và giật cấp cho hệ mái theo chiều cao tầng lửng. Không chỉ mang lại hệ công năng tiện nghi, thiết kế gác lửng còn mang lại diện mạo mới cho các ngôi biệt thự.

Với diện tích sàn tầng 1 là 100m2, mặt bằng công năng được triển khai theo chiều dọc ngôi nhà. Từ cửa bước vào là phòng khách. Đây vừa là nơi tiếp khách, vừa là phòng sinh hoạt chung của các thành viên vào buổi tối. Tiếp theo phòng khách là đến bếp ăn và cuối cùng là 2 phòng ngủ đặt cạnh nhau. Diện tích mỗi phòng không quá lớn nhưng cách bố trí nội thất và hướng cửa sổ mở đón sáng chắc chắn sẽ tạo cảm giác thoáng đãng hơn cho căn phòng.

Để phục vụ đầy đủ nhu cầu cho các thành viên trong gia đình anh Thi, tầng 2 thiết kế thêm 2 phòng ngủ tiện nghi, 1 khu vệ sinh chung và 1 phòng thờ. Phòng thờ diện tích 7m2, Bàn thờ kê dựa lưng chắc chắn vào tường hướng ra phía cửa chính hợp mệnh với gia chủ. Phía trước gác lửng, gia chủ có thể tận dụng thêm một khoảng diện tích để làm sân phơi hướng đón gió và nắng.
Mẫu số 3: Mẫu thiết kế nhà có gác lửng hiện đại mặt tiền 7m diện tích 100m2 BT109096
Số tầng: 01
Kích thước: 7x18m
Kinh phí đầu tư dự kiến: 1 tỷ đồng
Thông số công năng diện tích: 100m2
- Tầng 1: Tiền sảnh, Phong khách, bếp ăn, gara, 1 phòng ngủ, 1 phòng vệ sinh
- Tầng lửng: 2 phòng ngủ, 1 phòng thờ, ban công.

Bản thiết kế nhà cấp 4 gác lửng là món quà kiến trúc ANG dành cho gia đình anh Cu ở Điện Biên. Theo đuổi phong cách đơn giản, gây ấn tượng với vẻ bề ngoài cân đối, khỏe khoắn, hình khối sắc nét và hệ mái thái bề thế. Đó là lý do vì sao ngay từ lần đầu nhìn thấy anh Cu đã đặc biệt yêu thích mẫu thiết kế này. Phối màu ngoại thất tươi sáng với tone màu chủ đạo trắng mới mẻ, phần chân tường đặc biệt tạo nhấn bằng đá ốp màu ghi xám vừa tạo điểm nhấn vừa bảo vệ cho khu vực vốn dĩ nhạy cảm và dễ bám bẩn này.

Từ sân, bước qua bậc tam cấp là không gian rộng của tiền sảnh rộng 7.5m nối tiếp với phòng khách rộng 20m2 phía bên trong. Thiết kế phòng khách rộng, phù hợp với nhu cầu sử dụng của các thành viên trong gia đình chủ nhà. Đồ nội thất bên trong được bố trí phù hợp với phong cách kiến trúc của toàn bộ ngôi nhà. Bên cạnh là gara ô tô hiện đại tiện nghi trongg quá trình sinh hoạt của mọi thành viên trong gia đình. Đặc biệt, gara ô tô của mẫu thiết kế nhà cấp 4 mặt tiền 7m đẹp có cửa phụ tiếp nối với không gian phòng ăn bên trong thuận lợi trong việc di chuyển, sinh hoạt thường ngày của mỗi thành viên trong gia đình mình.

Từ không gian cầu thang, bạn sẽ bước đến 2 phòng ngủ , Phòng ngủ 2 rộng 13m2, phòng ngủ 3 rộng 17.5m2 , 1 phòng thờ diện tích 6.5m2. Diện tích tầng gác lửng phù với nhu cầu sử dụng của gia đinh anh. Các phòng được thiết kế cửa chính, cửa phụ, không gian giao thông phù hợp với nhu cầu sử dụng thường ngày.
Mẫu số 4: Thiết kế nhà cấp 4 có gác lửng 70m2 đẹp ở Thanh Hóa BT127077
Số tầng: 01
Kích thước: 8x14m
Kinh phí đầu tư dự kiến: 800 triệu đồng
Thông số công năng diện tích: 80m2/sàn
- Tầng 1: Phòng khách 22m2, Tiền sản 7m2, WC 5m2, Sảnh phụ 3m2, Phòng bếp ăn 16m2, Phòng ngủ 1 9m2, Sân chơi 8.7m2
- Gác lửng: Sảnh 6m2, Phòng ngủ 2 9m2, Phòng ngủ 3 13m2, WC 5m2, Sinh hoạt chung 17m2.

Đỏ nâu- tone màu vừa mang hơi hướng truyền thống vừa ẩn chứa giá trị hiện đại khiến cho ngôi nhà có gác lửng hiện đại gây được thiện cảm gần gũi với gia chủ. Lối trang trí mặt đứng đơn giản, cắt bỏ hầu hết các chi tiết trang trí rườm rà, chỉ giữ lại các nét kẻ chỉ, các đường phào và ô vuông là điểm đặc trưng trong phong cách kiến trúc hiện đại.

Diện tích sàn tuy nhỏ nhưng chính sự gọn gàng và khoa học trong các sắp xếp dây chuyền công năng khiến cho không gian sống của gia đình trở nên thoáng đãng, rộng rãi hơn. Anh Sơn- chủ nhân ngôi nhà cho rằng có thể không gian sống của gia đình anh diện tích không quá rộng rãi, trang trí cũng không cần cầu kỳ, tráng lệ nhưng trên hết là nó đáp ứng được đầy đủ và tiện nghi nhu cầu sinh hoạt cho các thành viên.

Các phòng chức năng trên gác lửng đều được bố trí xung quanh sảnh, thuận lợi cho sự di chuyển. Phòng sinh hoạt chung thiết kế mở là nơi nghỉ ngơi, trò chuyện của các thành viên vào mỗi tối. Phòng ngủ 2, phòng ngủ 3 với thiết kế khép kín tôn trọng sự riêng tư của từng người.
Mẫu số 5: Thiết kế nhà 1 tầng có gác lửng 100m2 mặt tiền 7m BT226115
Số tầng: 01
Kích thước: 7x15m
Kinh phí đầu tư dự kiến: 900 triệu đồng
Thông số công năng diện tích: 100m2
- Tầng 1: 1 phòng khách, 1 phòng bếp ăn, 1 phòng ngủ, 1 phòng vệ sinh chung - diện tích tầng 1: 100m2
- Tầng gác lửng : 1 phòng thờ, 2 phòng ngủ, 1 phòng vệ sinh chung - diện tích tầng gác lửng : 70m2

Kết cấu mái thái của mẫu thiết kế nhà có gác lửng hiện đại ở Lạng Sơn được đổ bê tông sau đó dán ngói thái. Hệ bê tông trên mái có tác dụng nâng đỡ chịu lực, trong khi đó lớp ngói thái dạng sóng nhỏ được sản xuất trên dây truyền công nghệ hiện đại nên tính hợp nhiều tính năng như chống thấm nước, han rỉ, chống hấp thụ nhiệt....Nhờ những tính năng ưu việt trên, kết cấu mái thái được nhiều khách hàng yêu thích và sử dụng để bao che bảo vệ ngôi nhà thân yêu của mình tránh khỏi những tác động xấu của thời tiết như nắng, mưa, gió, bão...

Sở hữu toàn bộ dây chuyền công năng không khác gì các mẫu thiết kế nhà 2 tầng, nhà có gác lửng trở thành giải pháp hữu ích vừa giúp tiết kiệm chi phí, diện tích xây dựng lại phục vụ được nhu cầu sinh hoạt của gia đình. Mặt bằng công năng tầng 1 bao gồm 1 phòng khách, 1 bếp ăn và 1 phòng ngủ.

2 phòng ngủ của mẫu thiết kế nhà 1 tầng có gác lửng có diện tích 16m2 và 12m2. Các phòng ngủ đều được bố trí cửa sổ lớn để không gian nội thất thoáng mát, đồng thời vì là phòng ngủ dành cho con cái trong gia đình nên màu sắc và đồ nội thất được thiết kế phù hợp với nhu cầu, sở thích của mỗi người.
Mẫu số 6: Thiết kế nhà có gác lửng hiện đại 100m2 ở quê có 3 phòng ngủ BT121057
Số tầng: 1 tầng
Kích thước: 13x11m
Kinh phí đầu tư dự kiến: 900 triệu đồng
Thông số công năng diện tích: 100m2
Tầng 1: Phòng thờ (14m2), Phòng khách (14m2), Phòng ngủ 1( 14m2), Phòng ngủ 2( 9m2), Tiền sảnh (7m2), Bếp ăn( 24m2)
Tầng 2: Phòng ngủ 4 (20m2), Phòng giặt (5m2)
Chiều cao tầng: Tầng 1 - 3,6(m), Tầng 2 - 6,9(m), Mái - 9,6(m)

Một trong những điểm nhấn về tầm cao đó chính là hệ mái thái lợp ngói đỏ tươi trong thiết kế nhà mặt tiền 13m 1 tầng. Dù được mang trong mình phong cách hiện đại nhưng kiến trúc sư lại dùng kiểu mái thái lợp ngói đỏ truyền thống để mang đến không gian gần gũi, sinh hoạt thoải mái dành cho gia chủ. Bởi theo anh Nhân- chủ nhân của ngôi nhà, trong không gian sống này còn có người già nên anh muốn dùng ngói đỏ để theo ý các cụ và cũng như quan niệm truyền hống ngói đỏ mang đến may mắn và sự hưng thịnh.

Được thiết kế trên diện tích đất rộng ở quê chúng tôi đã bố trí công năng bên trong ngôi nhà mang đến sự đơn giản, dễ sử dụng. Hơn nữa các khu công năng sử dụng được bố trí theo hình dạng tương tự hình chữ L mà chủ đầu tư yêu thích.

Mặt bằng công năng tầng lửng mẫu thiết kế nhà cấp 4 đơn giản mái ngói đỏ
Mẫu số 7: Thiết kế nhà có gác lửng hiện đại diện tích 70m2 3 phòng ngủ nhỏ xinh BT115077
Số tầng: 1 tầng
Kích thước: 8x14m
Kinh phí đầu tư dự kiến: 700 triệu
Thông số công năng diện tích: 70m2
- Tầng 1: Phòng khách 22m2, Tiền sản 7m2, WC 5m2, Sảnh phụ 3m2, Phòng bếp ăn 16m2, Phòng ngủ 1 9m2, Sân chơi 8.7m2
- Tầng tum: Sảnh 6m2, Phòng ngủ 2 9m2, Phòng ngủ 3 13m2, WC 5m2, Sinh hoạt chung 17m2.

Tấm áo ngoại thất của ngôi nhà mang lại ấn tượng thị giác đặc biệt bởi những điểm cách tân mới lạ trong cách sử dụng màu sắc và chất liệu. Trước hết khu vực thân tường sử dụng tone màu sơn chủ đạo trắng sáng. Phần chân tường dễ vấy bẩn được bảo vệ chắc chắn hơn bởi đá ốp màu sắc tự nhiên. Phần tường chữ A kẻ nan quạt tạo nhấn bằng gam màu nâu gỗ tự nhiên. Trên cùng là hệ mái thái cân đối, cao ráo sử dụng ngói ốp đỏ thẫm vừa tạo cảm giác trầm ổn vừa mang hơi hướng truyền thống.

Mặt bằng công năng tầng 1 bao gồm 1 phòng khách diện tích 22m2, bếp ăn 16m2 và 1 phòng ngủ dành cho bố mẹ 9m2. Ngoài ra còn có các không gian bổ trợ sảnh phụ 3m2, wc chung 5m2 và sân chơi sau nhà 6,7m2. Mặc dù diện tích mỗi phòng không quá lớn nhưng với thiết kế nội thất gọn gàng, ngăn nắp kết hợp với hệ thống cửa sổ đón sáng sẽ giúp không gian sống trở nên thư thãi, thoáng đãng hơn.

Thiết kế sảnh đóng vai trò làm nút giao thông chính phân chia thành các hướng dẫn đến từng khu vực chức năng bao gồm phòng sinh hoạt chung và 2 phòng ngủ con
Mẫu số 8: Thiết kế nhà có gác lửng hiện đại 2 tầng 1 tum đầy đủ diện tích 140m2 chữ L BT116067
Số tầng: 02
Kích thước: 14x14m
Kinh phí đầu tư dự kiến: 1,7 tỷ đồng
Thông số công năng diện tích: 140m2
- Tầng 1: Gara ô tô: 25m2, Phòng khách 23m2, Sảnh chính: 4.5m2, Sảnh phụ : 12m2, Phòng bếp ăn: 20m2, Phòng ngủ: 14m2, WC1: 4m2.
- Tầng 2: Sân chơi: 11.5m2, Phòng thờ: 22.5m2, Sảnh tầng 6.5m2, Ban công 6m2, Phòng ngủ 2: 14m2, Phòng ngủ 3: 20m2, WC2: 4m2
- Tầng tum: 1 phòng ngủ, 1 phòng giải trí : 30m2, 1 WC

Sang trọng, tiện nghi, đơn giản là những điểm sáng có thể thấy ở mẫu thiết kế gác lửng 2 tầng ở Đà Nẵng. Thiết kế dáng nhà hình chữ l phù hợp với những lô đất ở quê vừa mang lại sự độc đáo vừa dễ bố trí công năng sử dụng. Phối màu ngoại thất tươi sáng, sử dụng tone màu chủ đạo trắng sáng làm nền gây ấn tượng nổi bật và tươi sáng cho các chi tiết thiết kế ngoại thất.

Rộng rãi, thoáng đãng, công năng bố trí khoa học là đặc điểm mặt bằng mẫu nhà có gác lửng hiện đại diện tích 140m2 của gia đình Súng

Hệ thống phòng ngủ bố trí tiện nghi, nội thất đầy đủ, gọn gàng. Phòng thờ diện tích rộng rãi có cửa sổ mở đón khí dương thoãng đãng. Các khu vực chức năng ban công, sân chơi, sân phơi tạo độ mở và sự mát mẻ cho không gian.
Mẫu số 9: Nhà 2 tầng hình chữ L ở nông thôn 4 phòng ngủ đẹp BT120096
Số tầng: 02
Kích thước: 8x15m
Kinh phí đầu tư dự kiến: 1,4 tỷ đồng
Thông số công năng diện tích: 100m2
- Tầng 1: 1 Phòng khách, 1 phòng bếp ăn, 1 phòng ngủ, 1 WC
- Tầng 2: 3 phòng ngủ, 1 WC
- Tầng tum: 1 phòng thờ, sân thượng

Nhà có gác lửng hiện đại mang dáng dấp không khác gì các ngôi biệt thự 2 tầng cơ bản mà lại sở hữu hệ công năng tương đương với một ngôi nhà 3 tầng. Đây là giải pháp vừa xử lý được bài toán công năng vừa giải quyết được vấn đề kinh phí. Khoác lên mình tấm áo ngoại thất tươi sáng và chất liệu hiện đại mang lại dáng vẻ khỏe khoắn cho ngôi biệt thự.

Mặt bằng nội thất tầng 1 mẫu thiết kế nhà chữ l diện tích 100m2 gọn gàng, ngăn nắp

Hệ thống 3 phòng ngủ tiện nghi, yên tĩnh hứa hẹn sẽ mang tới những giây phút nghỉ ngơi thư thái nhất cho các thành viên trong gia đình
Mẫu số 10: Thiết kế nhà có gác lửng hiện đại mặt tiền 8mx12m BT520096
Số tầng: 2
Kích thước: 8x12m
Kinh phí đầu tư dự kiến: 1,4 tỷ đồng
Thông số công năng diện tích: 100m2
- Tầng 1: 1 sảnh chính 9m2, 1 phòng khách+ thờ 45m2, 1 bếp ăn 15,5m2, 1 phòng ngủ 12,8m2, 1 vệ sinh 3,5m2
- Tầng 2: sảnh+ cầu thang 12,8m2, phòng ngủ 2 18m2, phòng ngủ 3 15,5m2, phòng ngủ 4 14,5m2 , vệ sinh 1 5m2, vệ sinh 2 6,5m2, phòng thay đồ 6m2, ban công
- Tầng áp mái: sân phơi 22,3m2, phòng giặt đồ

Ngôi nhà mặt tiền 8m được thiết kế với lối kiến trúc đơn giản không cầu kỳ nhưng vẫn tạo được sự hấp dẫn và thu hút người nhìn qua cách thiết kế với sự kết hợp hài hòa về màu sắc. Cụ thể là mẫu nhà 2.5 tầng mặt tiền 8m có phối hợp giữa các đá ốp tường màu nâu vàng ở phần mặt tiền và bên hông nhà tạo được điểm nhấn rất ấn tượng. Mang đến sự mới mẻ cho mẫu thiết kế biệt thự hiện đại này.

Bước chân vào qua cánh cửa màu nâu gụ không gian mẫu nhà 2.5 tầng mặt tiền 8m được thiết kế với tiền sảnh với diện tích 9m2 được thiết kế sang trọng, là nơi khách đến thăm nhà có thể dạo bước thăm ngắm toàn bộ không gian. Di chuyển vào không gian bên trong với diện tích 45m2 là không gian phòng khách kết hợp với phòng thờ, bàn thờ được kê đặt sát chân tường rất kiên cố và chắc chắn, tạo được sự uy nghiêm, trang trọng cho không gian phòng khách. Bàn thờ được kê hướng ra mặt tiền hợp với hướng phong thủy giúp cho gia đình luôn an khang, thịnh vượng.

Mau nha 2 tang 1 lung mặt tiền 8m mặt tiền mái lệch luôn được tạo được ấn tượng đối với người nhìn, được thiết kế với không gian phòng ngủ với diện tích 14m2 được bố trí đầy đủ với loại cây rất vuông vắn và thoáng mát đón nắng và gió vào nhà từ khu ban công, mang đến cho gia đình và người thân, bên ngoài với những chậu hoa và cây cảnh xanh mát tạo cho ta cảm giác vui vẻ phấn chấn và có sự sống.

Không gian nhà 2.5 tầng mặt tiền 8m mái lệch diện tích 100m2 được thiết kế phù hợp với nhu cầu công năng, giải quyết được từng không gian, từng chi tiết mang đến sự thư thái thoải mái cho không gian. Chủ nhà thật khéo léo và tinh tế khi đầu tư những trang thiết bị để cho những người thân và gia đình sống trong một không gian sống vui vẻ, đẳng cấp và sang trọng. Ông Lợi quả khéo có tâm đều suy nghĩ thấu đáo chăm chút cho từng thành viên trong gia đình, cuộc sống còn gì hoàn hảo hơn.
Mẫu số 11: Mẫu thiết kế nhà có gác lửng hiện đại 2 tầng diện tích 140m2 mái ngói đỏ đẹp mê mẩn BT101028
Số tầng: 02
Kích thước: 10x15,5m
Kinh phí đầu tư dự kiến: 2,1 tỷ đồng
Thông số công năng diện tích: 140m2
- Tầng 1:Sảnh chính 8.2m2, Phòng khách 31.5m2, Sảnh phụ 5.6m2, Phòng ngủ 1: 16.2m2, WC1: 4.1m2, Phòng bếp ăn: 25m2, Phòng ngủ 2: 18m2, WC2: 4.5m2.
- Tầng 2: Phòng Sinh hoạt chung: 13.8m2, Phòng ngủ 3: 19m2, Phòng thay đồ 4.5m2, WC3: 9.8m2, WC: 2m2, Phòng ngủ 4: 19m2, WC4: 4.4m2, Phòng ngủ 5: 16.8m2, WC5: 4m2.
- Tầng tum: Phòng thờ: 21m2, Sân phơi: 12.5m2, Kho 4.5m2, Sân chơi.

Ngôi nhà có tầng lửng hiện đại gây ấn tượng mạnh với thiết kế mái thái độc đáo, hình khối cách tân đa dạng. Màu sắc trang trí kết hợp hài hòa mang đến sự gần gũi và ấm cúng cho không gian sống của gia đình.

Khu vực trung tâm của ngôi nhà được đặt cầu thang ở đó. Đồng thời 2 phòng ngủ được bố trí ở 2 bên cầu thang phù hợp với nhu cầu sử dụng và mong muốn của nhiều gia đình. Diện tích sử dụng của 2 phòng ngủ rộng và thoáng, thoải mái cho việc sử dụng của các thành viên trong gia đình. Không gian của phòng khách, phòng bếp ăn cũng khá rộng rãi, thích hợp với nhu cầu sử dụng của gia đình ở nhiều gia đình.

Toàn bộ tầng 2 là không gian sinh hoạt riêng tư của các thành viên trong gia đình được thiết kế vô cùng chi tiết, tiện nghi. Hệ thống 3 phòng ngủ rộng rãi có khu vệ sinh khép kín, đồ nội thất trang bị đầy đủ, bố trí gọn gàng. Phòng sinh hoạt chung tận dụng khu vực sảnh là nơi kết nối mọi người.

Không gian tầng tum của mẫu thiết kế nhà 2 tầng rưỡi bao gồm các phòng chức năng như sau: Phòng thờ: 21m2, Sân phơi: 12.5m2, Kho 4.5m2, Sân chơi. Không gian sử dụng của sân chơi khá rộng rãi, thoải mái. Tầng tum được sử dụng để đặt các phòng chức năng như kho, thờ, giúp tiết kiệm diện tích sử dụng cho toàn bộ ngôi nhà.
Mẫu số 12: Thiết kế nhà 2 tầng 1 tum 100m2 mái thái giá rẻ đẹp BT105097
Số tầng: 02
Kích thước: 8,6x12,4m
Kinh phí đầu tư dự kiến: 1,3 tỷ đồng
Thông số công năng diện tích: 100m2/sàn
- Tầng 1: Sảnh ngoài: 9m2, Sảnh trong 11m2, Phòng khách 19m2, WC1 2.8m2, Phòng ngủ1 14.5m2, Phòng bếp ăn 19.5m2
- Tầng 2: Phòng ngủ 2 14.5m2, Phòng ngủ 3 17.7m2, Phòng ngủ 4 13.5m2, WC2 5.6m2, WC3: 4.0m2, Sân chơi 11m2, Ban công 4m2.
- Tầng tum: Sân chơi, phòng giải trí, WC

Tấm áo ngoại thất chắc chắn đan dệt từ những vật liệu tốt giúp tăng sức đề kháng cho ngôi nhà có gác lửng hiện đại của gia đình bà Thường ở Đan Phượng

Không gian sinh hoạt bố trí hợp lý, vừa có sự liên kết giữa các phòng vừa đảm bảo công năng sử dụng chính của từng khu vực

Phòng giải trí rộng rãi bố trí trên tầng 3 tách biệt vừa riêng tư vừa không gây ảnh hưởng đến hàng xóm. Gia chủ hoàn toàn có thể lắp đặt thềm dàn karaoke phục vụ cho nhu cầu giải trí cuối tuần của cả gia đình
Mẫu số 13: Thiết kế nhà có gác lửng hiện đại 2,5 tầng mái thái BT104047
Số tầng: 02
Kích thước: 10x12m
Kinh phí đầu tư dự kiến: 1,5 tỷ đồng
Thông số công năng diện tích: 100m2
- Tầng 1: Phòng khách (31m2), Phòng bếp + ăn (17.5m2), Phòng ngủ 1( 16.5m2), WC 1 (3m2), Sảnh chính (6m2), Sảnh phụ (3m2)
- Tầng 2: Phòng ngủ 2 (16.5m2), Phòng ngủ 3 (17m2), Sảnh tầng (5m2), WC 2 (4m2)
- Tầng lửng: Sân chơi (8m2), Sân phơi (16.5m2), Phòng thờ (17m2), Sảnh tầng (8m2)

Ngôi nhà của gia đình anh Tuấn ở Hà Nội được thiết kế với màu trắng rất sạch sẽ và trang nhã, lịch sự đối với những người không ưa thích sự thay đổi. Ngoại thất nhà 2 5 tầng đẹp được phối hợp với 3 màu sắc rất cơ bản trắng ở các mảng tường chính - màu ghi tạo điểm nhấn ở phần đầu hồi dưới chân mái và mái ngói màu xanh đen. Không hoa mỹ màu mè, màu sắc không lòe loẹt cũng phần nào đánh giá được tính cách chắc chắn và kiên định của chủ đầu tư.

Mở ra trước mắt là không gian phòng khách diện tích (31m2) nhà 2 5 tầng mái thái mặt tiền 10m sâu 12m sang trọng, với cách thiết kế độc đáo thoáng đãng, và là không gian mở rộng lưu thông với các không gian khác như bếp ăn Phòng bếp + ăn (17.5m2) và phòng ngủ phòng ngủ 1 (16.5m2) một cách dễ dàng. Cách thiết kế mang phong cách riêng, mang đậm cá tính cá nhân cũng như sở thích của gia chủ. Với cách bố trí bàn ghế, kệ ti vi kích thước lớn hay những bình hoa trang trí, để tăng sự đẹp mắt cho không gian.

Nội thất tầng 2 nhà 2 5 tầng diện tích 100m2 mái thái thiết kế các phòng ngủ 1 (16.5m) ngủ 2 (16.5m2), phòng ngủ 3 (17m2), WC 2 (4m2) đều được thiết kế tập trung ở các góc tường tạo được sự kín đáo, và riêng tư. 2 phòng ngủ dành cho con cái của anh Tuấn được thiết kế với không gian mở ra bên ngoài với ban công đẹp mắt, thoáng đãng, là nơi có thể ngắm cảnh nhìn ra bên ngoài một cách tối đa nhất. Ở ban công, mở cửa đón gió và nắng vào phòng giúp thông thoáng và sạch sẽ không gian sẽ trở nên gắn bó thân thiết làm cho con cái đi đâu cũng nhớ về chiếc giường ngủ của mình.

Cách thiết kế bố trí không gian phòng thờ nhà 2 tầng có gác lửng 100m2 mặt tiền 10m với cách thiết kế hướng ra phía mặt tiền, để giúp cho gia chủ làm ăn phát tài, sinh khí khỏe mạnh và làm ăn thuận lợi. Các chi tiết đó đều được các kiến trúc sư tính toán một cách cụ thể và tạo cảm giác an tâm cho gia chủ khi sinh sống tại nhà của mình.
Trên đây là bộ sưu tập một vài mẫu thiết kế nhà có gác lửng hiện đại do kiến trúc ANG chủ trì thực hiện. Sở hữu hệ công năng sử dụng tương đương nhau nhưng mỗi ngôi nhà lại mang một dáng vẻ khác nhau tạo nên những dấu ấn nổi bật, độc đáo giữa các khối nhà. Công năng tiện nghi, sắp xếp khoa học, ngoại thất khỏe khoắn, tạo cảm giác vững chãi, áp dụng các vật liệu mới tăng cường sức đề kháng cho ngôi nhà- tất cả đều là những ưu điểm không thể bỏ qua của các mẫu thiết kế này.
Mọi thông tin cần tư vấn xin vui lòng liên hệ: 0988.030.680








