Nhiều năm trở lại đây, xu hướng đưa thiên nhiên vào không gian sống của con người trở nên phổ biến ở nhiều nước trong đó có Việt Nam. Đây chính là giải pháp tạo nên không gian sống trong lành cho đô thị. Có rất nhiều giải pháp giúp con người gần gũi với thiên nhiên như nông trại trên mái nhà, vườn trong nhà, hòn non bộ…Với những ngôi nhà có lợi thế về diện tích thì việc tạo nên một khu vườn đứng nhỏ trong nhà sẽ là lựa chọn tuyệt vời giúp con người được hưởng thụ cuộc sống xanh mát, yên tĩnh và gần gũi với thiên nhiên. Nhưng làm thế nào để có một khu vườn trong nhà vừa đẹp, phù hợp với không gian vừa hợp phong thủy thì không phải ai cũng biết. Bài viết dưới đây sẽ tư vấn cho bạn cách thi công vườn đứng trong nhà đúng kỹ thuật.

>>> Xem thêm: Nhiều mẫu biệt thự mini 1 tầng
1. Thi công vườn đứng trong nhà có tác dụng gì trong không gian sinh hoạt của bạn?
Vườn đứng hay còn gọi là phương pháp trồng cây nghệ thuật trên tường là kiểu kiến trúc xanh độc đáo trong thời buổi “đất chật, người đông” và nhu cầu thẩm mỹ của chủ nhà ngày càng cao hiện nay. Với phong cách mang thiên nhiên gần với con người, vườn đứng có thể trồng ở trong không gian nhà bạn, mà không mất diện tích, từ sân vườn, ban công,hiên sảnh, mái nhà, mảng tường.v.v. đều có thể là những “bức tường xanh”.

Một số những lợi ích của việc thi công vườn đứng trong nhà mang lại:
- Lọc không khí – bảo vệ sức khỏe và môi trường
- Tạo một bức tranh cây thiên nhiên có tính thẩm mỹ cao
- Tạo không gian xanh đẹp mát tầm mắt – thoáng tinh thần mà không ảnh hưởng nhiều đến diện tích sàn sử dụng.

- Giúp tiết kiệm năng lượng sử dụng thiết bị, đặc biệt là năng lượng điện.
- Cải tạo kiến trúc trở lên hoàn thiện hơ, tránh ồn hiệu quả cho không gian sống vừa và nhỏ
- Không mất công chăm sóc.
2. Những vị trí phù hợp để thiết kế vườn tường tường đứng
Việc lựa chọn một vị trí phù hợp cho việc thi công vườn tường đứng là không hề dễ dàng, nó phụ thuộc vào diện tích, vị trí các đồ đạc còn lại, hướng ánh sáng và sở thích của gia chủ. Vườn tường đứng với cây thật có thể được thi công tại vị trí phòng khách, sảnh hiên, ban công, tường bao... và các vị trí đặc biệt với thiết kế của mỗi ngôi nhà.
Đặt kế hoạch trồng cây gì?

Khi bạn tự làm vườn thẳng đứng cho mình, bạn chắc chắn rằng bạn chọn loài cây đã phù hợp với các bức tường để cây có thể tồn tại và phát triển thuận lợi. Nếu như một bức tường ướt đẫm ánh nắng mặt trời, bạn sẽ cần sự lựa chọn các loại cây có thể chịu hạn, nếu bức tường nằm trong bóng mát - có thể dưới một mái hiên - sẽ đòi hỏi một lựa chọn của những loại cây thích bóng râm, chẳng hạn như dương xỉ. Cần nhớ rằng phía dưới của các khu vườn thì bên dưới sẽ có độ ẩm hơn phía trên, vì vậy hãy xem xét điều này khi bạn quyết định những gì để trồng.
>>> Xem thêm: Các mẫu nhà cấp 4 nhỏ xinh
3. Kỹ thuật thi công vườn đứng trong nhà
a. Chuẩn bị trước khi thi công
- Chuẩn bị mặt bằng thi công: dọn dẹp khu vực thi công, tạo không gian thi công
- Chuẩn bị vật tư, vật liệu thi công: thang, giàn giáo, cây, thép hộp mạ kẽm, module trồng cây, đất trồng, hệ thống tưới….
- Nhân công
b. Thi công
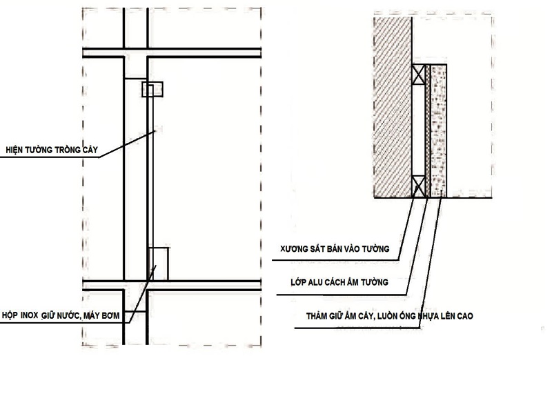
Bước 1: Xây bể chứa nước tưới cho vườn đứng
- Chức năng của bể để đảm bảo luôn có nước tưới cho vườn. Xây bể chứa nước tưới.
- Tính toán thể tích bể cẩn thận để đáp ứng đủ nước tưới cho vườn:
- Một lỗ tưới chảy 2,5l/h hay 1 chậu cây nhận được 2,5l/h. Trung bình 1 lần tưới thì mùa ẩm tưới 2 phút – 3 phút, mùa khô tưới 5 phút – 6 phút. Coi mỗi lần tưới mất 6 phút thì 1 chậu sẽ cần 0,25l nước.

Bước 2: Thi công khung thép chịu lực
Khung thép chịu lực có tác dụng chịu trọng lượng của cả vườn đứng, làm giá đỡ cho module, các vỉ module sẽ được gắn trực tiếp bằng ốc vít vào khung chịu lực để không làm hỏng cấu trúc tường. Đan khung chịu lực bằng thép hộp mạ kẽm (14x14mm hoặc 20x20mm), các thanh thép mạ kẽm được đan sao cho một ô của khung có thể gắn 3 vỉ module nằm ngang (kích thước 1 vỉ là 470 x150mm).

- Gắn khung thép lên tường
+ Đóng những đoạn sắt chờ đặc (khoảng 10cm) vào tường, khoảng cách giữa các sắt chờ thường từ 1m – 1,5m. Nếu tường mềm mật độ sắt chờ sẽ dày hơn tường cứng để giảm sự chuyển vị
+ Hàn khung thép hộp mạ kẽm lên những đoạn sắt chờ đã được đóng vào tường

>>> Tham khảo: Nhà cấp 4 có gác lửng
Bước 3: Gắn vỉ module lên khung chịu lực
- Gắn vỉ module (chưa có chậu trồng) lên khung kẽm bằng ốc vít 2cm
- Hàng vỉ module dưới cùng gắn ốc vít ở 2 đầu của vỉ. Các hàng khác chỉ cần gắn vít ở đầu trên.
Bước 4: Lắp hệ thống tưới tự động
- Hệ thống tưới tự động bao gồm:
+ Bơm và phụ kiện lắp đặt bơm
+ Tủ điều khiển
+ Cảm biến mưa
+ Van điện từ
+ Ống dẫn nước chính là ống nhựa HDPE và các dây tưới nhỏ giọt

- Nguyên lý hoạt động
+ Tủ điều khiển: cho phép cài đặt hệ thống tưới theo ngày (ngày chẵn, ngày lẻ hoặc suốt tuần), thời gian tưới (mỗi ngày tưới tối đa 4 lần),
+ Cảm biến mưa: kết nối với hộp điều khiển, khi có mưa hệ thống tưới sẽ ngừng hoạt động
+ Van điện từ: đóng hay mở do hộp điều khiển, cho phép tưới lần lượt từng khu vực. Với những công trình cảnh quan có diện tích lớn, lượng nước tưới không đủ cung cấp cho toàn bộ diện tích hoặc máy bơm có công suất nhỏ thì việc tưới theo khu vực là hết sức cần thiết.
+ Một trục ống nước chính là ống nhựa HDPE d=20 chạy dọc vườn để phân chia nước cho các dây tưới. Lưu ý nếu diện tích vườn lớn có thể lắp thêm ống chính ở giữa vườn hoặc đầu bên kia của vườn. Nếu diện tích vườn nhỏ hơn 3m2 thì dùng ống HDPE d=16.

+ Các dây tưới nhỏ giọt chạy ngang vườn, song song nhau. Chiều dài dây tưới thường không quá 4m để đảm bảo nước ra đều ở tất cả các lỗ tưới. Các dây tưới được nối với ống chính bằng dụng cụ nối chuyên dụng
Bước 5: Trồng cây vào chậu và gắn vào tường theo thiết kế

- Trước khi cắm cây phải xác định vị trí của từng loài
- Trồng cây vào chậu, sử dụng đất làm giá thể

- Gắn chậu cây vào vỉ module trên tường theo chiều từ trên xuống dưới sao cho giống với thiết kế.
- Khi cắm xong cây phải phủ được 90% diện tích vườn để đảm bảo yêu cầu thẩm mỹ
4. Những lưu ý khi thi công vườn đứng trong nhà
a. Nước
Nước luôn là thành tố quan trọng bậc nhất với sự sống của muôn loài. Đặc biệt với thực vật. Không giống như những mảnh vườn bình thường khác, vườn tường được thiết kế theo phương thẳng đứng nên yếu tố nước lại càng cần được quan tâm và chú trọng hơn. Vì thảm thực vật bạn trồng trên vườn đứng phải được cung cấp nước đầy đủ thì mới đảm bảo sự sống lâu dài cho chúng. Cũng vì thế mà hệ thống thủy canh tưới tiêu khi thiết kế thi công vườn đứng trong nhà cần được chú trọng rất nhiều. Mỗi ngày bạn nên tưới nước đều đặn cho cây cối, nên nhớ dùng hệ thống thủy canh tưới tự động hay bình tưới vào mỗi sáng sớm và chiều tối sẽ giúp cây cối phát triển một cách tốt hơn.

b. Ánh sáng
Khi thi công vườn đứng trong nhà, bạn cần lưu ý làm sao để thảm thực vật đó có thể đón ánh sáng mỗi ngày. Cây cần ánh sáng để quang hợp và duy trì sự sống, vì vậy bạn không thể thi công vườn tường ở một nơi kín ánh sáng được, vì như vậy cây cối cũng sẽ không thể phát triển. Bạn cũng có thể tạo ra ánh sáng mặt trời nhân tạo bằng việc lắp đặt hệ thống đèn chiếu sáng để cung cấp ánh sáng cho vườn cây trên tường có thể phát triển.

>>>Xem thêm: Các mẫu nhà cấp 4 2 mặt tiền








