Mái ngói thái từ lâu đã trở thành một nét đẹp trong văn hóa kiến trúc truyền thống của các mẫu biệt thự đẹp Việt Nam. Từ xa xưa, kiến trúc mái ngói thái đã đi sân vào tâm trí mỗi người qua kiến trúc nhà ở, ngồi chiền hay đình miếu. Ngày nay, bản vẽ nhà cấp 4 mái thái đẹp được kế thừa và phát triển đa dạng hơn với nhiều dạng vật liệu cao cấp có khả năng chống chịu tác động của thời tiết trong điều kiện biến đổi khí hậu đang diễn ra. Chính vì lẽ đó mà hôm nay chúng tôi mang đến cho bạn những bản vẽ nhà cấp 4 mái thái đẹp đẹp nhất từ khắp mọi nơi tham khảo. Trong bài viết này ngoài hình ảnh phối cảnh thì bạn có thể tham khảo thêm mặt bằng bố trí công năng của từng mẫu nhà. Từ đó chúng tôi tin bạn sẽ có ít nhiều kinh nghiệm trong việc lựa chọn cho bản vẽ nhà cấp 4 mái thái đẹp nhà ở hay các mẫu biệt thự mini 1 tầng của mình và người thương
Những đặc trưng cơ bản của các bản vẽ nhà cấp 4 mái thái đẹp
Nhà mái ngói thái nói chung và các bản vẽ nhà cấp 4 mái thái đẹp nói chung đều được thiết kế xây dựng dựa trên sự tính toán dự liệu, thông số cẩn thân. Riêng đối với kiến trúc mái ngói thái, thời xưa ông cha ta thường dựng mái ngói theo kết cấu vì kèo gỗ lợp ngói. Tuy nhiên, ngày nay khi công nghệ cải tiến và các vật liệu mới ra đời, dạng vì kèo gỗ đã được thay thế bởi vì kèo sắt thép hoặc dạng lớp bê tông chịu lực sau đó dán ngói.
Các bản vẽ nhà cấp 4 mái thái đẹp thường sở hữu diện tích mái rộng, dáng mái đua ra từ 0.5 đến 1.5m khỏi tường. Kết cấu mái thái của biệt thự 1 tầng mái thái gồm 2 bộ phận: Bộ phận chịu lực: Vì kèo gỗ, sắt thép hoặc lớp bê tông và bộ phận che chắn là lớp ngói được dán (lợp) theo từng lớp chồng lên nhau với tỉ lệ che phủ tốt cho nhà cấp 4 mái ngói.
Thông thường mái ngói thái trong những bản vẽ nhà cấp 4 mái thái đẹp thường có độ dốc cao giúp thoát nước nhanh, dáng mái xuôi 2 chiều hoặc 4, 6 chiều đăng đối tạo dáng kiến trúc đẹp hút mắt người nhìn, ngoài ra, chiều cao nhà cấp 4 mái thái thường đạt 3.9m, riêng hệ mái cao khoảng 3.3m hoặc 3.6m tùy từng diện tích nhà. Kiến trúc mái thái tại biệt thự 1 tầng mái thái không chỉ đảm bảo công năng bảo vệ ngôi nhà tránh khỏi tác động xấu của nắng, mưa, gió, bão mà còn thể hiện không gian kiến trúc đẹp, sang trọng và hoài cổ.
Tìm hiểu chi phí xây dựng bản vẽ nhà cấp 4 mái thái đẹp
Hình ảnh các thiết kế nhà đẹp 1 tầng mái thái trên đây liệu có khiến bạn chú ý? Với chúng tôi, những bản vẽ nhà cấp 4 mái thái đẹp trên đây chính là đứa con tinh thần của mình bởi lẽ chúng được thiết kế dựa trên sự nỗ lực, tâm huyết cũng như tình cảm của đội ngũ kiến trúc sư Angcovat. Trong từng lớp kiến trúc biệt thự nhà vườn 1 tầng kiểu thái đều được thiết kế chi tiết, tỉ mỉ để đảm bảo các kiểu nhà cấp 4 mái thái đẹp không xảy ra bất cứ sai sót nào.
Kiến trúc ngoại thất đẹp của mẫu nhà cấp 4 có gác lửng, mặt bằng nội thất bản vẽ nhà cấp 4 mái thái đẹp được bố trí hài hòa, tiện dụng, vậy chi phí xây nhà cấp 4 mái thái là bao nhiêu? Nếu bạn đang thắc mắc mức chi phí phải bỏ ra thì hoàn toàn có thể áp dụng công thức tính toán dưới đây. Nếu là kết cấu nhà cấp 4 mái thái đơn giản thì giá hoàn thiện là 5 triệu VND/M2, do đó bạn có thể lấy số diện tích xây dựng X 5 triệu. Riêng đối với kiến trúc kiểu nhà cấp 4 mái thái đẹp theo phong cách cổ điển hoặc tân cổ điển thì mức giá hoàn thiện cơ bản là 7 triệu VND/M2.
Rõ ràng giá xây bản vẽ nhà cấp 4 mái thái đẹp hoàn toàn phụ thuộc vào phong cách kiến trúc cũng như hệ thống nguyên vật liệu mà mỗi gia đình sử dụng. Do đó để khách hàng hiểu rõ hơn về công trình kiến trúc nhà cấp 4 kiểu thái của mình, chúng tôi đã dự toán nhà cấp 4 mái ngói với mức kinh phí cụ thể ngay trong bản vẽ nhà cấp 4 mái thái và trong bộ hồ sơ thiết kế nhà 1 tầng mái thái.
Các phong cách kiến trúc đa dạng khi xây bản vẽ nhà cấp 4 mái thái đẹp giá rẻ
Xét về phong cách kiến trúc cho bản vẽ nhà cấp 4 mái thái đẹp, hiện nay trên thị trường kiến trúc-xây dựng, các trường phái kiến trúc cổ điển, tân cổ điển hay phong cách hiện đại, đơn giản, đồng quê, nông thông đang được phát triển rất đa dạng.
Nếu bạn yêu thích sự sang trọng, không gian pha chút hoài cổ với hệ thống phào chỉ trang trí tinh xảo thì hoàn toàn có thể tham khảo ngay những bản vẽ nhà cấp 4 có tầng hầm mái thái đẹp phong cách cổ điển hoặc tân cổ điển. Tuy nhiên mức giá xây nhà cấp 4 kiểu mái thái theo phong cách này cũng cao hơn so với thông thường.
Còn nếu ban quan tâm đến không gian sống hiện đại, tiện nghi thì các mẫu bản vẽ nhà cấp 4 mái thái đẹp hiện đại thực sự là gợi ý lý tưởng. Các công trình ban ve mau nha cap 4 mái thái phong cách đơn giản ở quê hay nông thôn sẽ phù hợp cho những gia đình thích sự đơn giản, trang nhã và không gian thoải mái, nhẹ nhàng.
Phân loại và xem bản vẽ nhà cấp 4 mái thái đẹp với những chi tiết kiến trúc nổi bật
Hiện nay, kết cấu bản vẽ nhà cấp 4 mái thái đẹp được phát triển đa dạng, trong đó các kiểu nhà phổ biến được áp dụng kết cấu mái ngói là những mẫu nhà ống 1 tầng mái thái có mặt tiền nhỏ, chiều sâu lớn, những kiểu nhà cấp 4 mái thái gác lửng nhằm tạo không gian gác trống rộng hơn hay những mẫu thiết kế nhà vườn 1 tầng mái thái với diện tích xây dựng rộng lớn hài hòa giữa không gian cây cối xanh mát.
Phân loại theo kiểu dáng, mọi người có thể tham khảo nbản vẽ nhà cấp 4 mái thái đẹp hình chữ L, chữ U hoặc hình chữ thập. Kiến trúc nhà cấp 4 mái thái dựa trên hình dạng khu đất hình vuông, hình thang hay hình tam giác để kiến trúc sư thiết kế cho phù hợp. Phân loại theo diện tích xây dựng, các mẫu nhà cấp 4 mái thái đẹp nhất 2016 thường được thiết kế theo kích thước 6x15m, 6x20m, diện tích đa dạng từ nhỏ tới to với chi phí xây dựng nhà cấp 4 mái thái 400 triệu, 300 triệu, 500 triệu…
Phân loại theo số phòng ngủ, các bản vẽ nhà cấp 4 mái thái đẹp 2 phòng ngủ, 3 phòng ngủ, 4 phòng ngủ là phổ biến nhất. Trường hợp nhà cấp 4 mái thái đẹp rẻ 1 phòng ngủ hay 5 phòng ngủ rất hiếm gặp. Ngoài ra, người ta còn dễ dàng nhận thấy mái thái đẹp trên các thiết kế xây nhà cấp 4 tại khu nhà phố đông đúc, náo nhiệt chốn phồn hoa đô thị. Những công trình nhà biệt thự 2, 3 tầng mái thái cũng rất nổi bật với kiến trúc đẹp xinh sang trọng.
Đặc biệt, kiến trúc những mẫu thiết kế bản vẽ nhà cấp 4 mái thái đẹp 100m2 còn ghi điểm trong mắt người nhìn bởi màu sắc mái. Các mẫu xây nhà cấp 4 chữ U mái thái giá rẻ thời xưa chủ yếu mang màu đỏ hoặc màu nâu rêu phong cổ kính. Ngày nay kiến trúc mái mang hình thái mới, màu sắc mới thể hiện nhịp sống mới trong thời hiện đại, do đó các dạng màu xanh sẫm, màu đen sẫm, xám ghi, đỏ nhạt, đỏ cam trên các mẫu thiết kế nhà cấp 4 kiểu mái thái lan được xuất hiện nhiều hơn không chỉ góp phần tô điểm cho không gian sống thêm sinh động mà còn có giá trị phong thủy cao cho người dùng.
Bản vẽ nhà cấp 4 mái thái 2 phòng ngủ kiểu nhà 3 gian 2 chái truyền thống

Bản vẽ nhà cấp 4 mái thái 2 phòng ngủ kiểu nhà 3 gian 2 chái
|
BT204116 |
|
01 |
|
Đỗ Minh Cường |
|
Ba Vì- Hà Nội |
|
21m |
|
10m |
|
1.5 tỷ |
|
tầng 1: tiền sảnh 23m2, khách 16.5m2, thờ 16.5m2, phòng trưng bày 16.5m2, phòng bếp ăn 38m2, sân chơi 20m2, ngủ 1 14.5m2, ngủ 2 16m2, |

Bản vẽ nhà cấp 4 mái thái 2 phòng ngủ kiểu nhà 3 gian 2 chái - Mặt bằng tổng
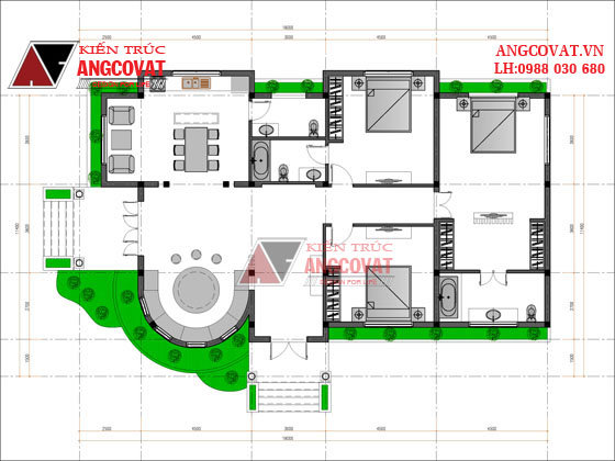
Bản vẽ nhà cấp 4 mái thái 3 phòng ngủ 1 phòng thờ diện tích 130m2 mặt tiền 12m

Bản vẽ nhà cấp 4 mái thái 3 phòng ngủ 1 phòng thờ
|
BT110106 |
|
01 |
|
Bà Kiên |
|
Hà Nam |
|
12m |
|
13m |
|
1 tỷ |
|
Tổng diện tích: 130m2 1 tiền sảnh 10m2, 1 phòng khách 25m2, 1 phòng thờ 16m2, 1 bếp ăn 15m2, phòng ngủ 1 15m2, phòng ngủ 2,3 14m2, vệ sinh chung 4m2. |

Bản vẽ nhà cấp 4 mái thái 3 phòng ngủ 1 phòng thờ - Mặt bằng tổng
Bản vẽ nhà cấp 4 mái thái 3 phòng ngủ ở nông thôn diện tích 140m2

Bản vẽ nhà cấp 4 mái thái 3 phòng ngủ ở nông thôn
|
BT112057 |
|
01 |
|
Ông Nguyễn Tiến Dũng |
|
Thị Trấn Bến Xung- Huyện Như Thanh- Thanh Hóa |
|
18m |
|
10m |
|
1.1 tỷ đồng |
|
Tổng diện tích: 140m2 Công năng tầng 1: Tiền sảnh (6m2), phòng khách (36m2), phòng thờ (11m2), phòng ngủ 1 (13.7m2), phòng ngủ 2 (13m2), phòng ngủ 3 (14m2), phòng bếp (19m2), WC1 (4m2), sảnh phụ (8m2). |

Bản vẽ nhà cấp 4 mái thái 3 phòng ngủ ở nông thôn - Mặt bằng tổng
Bản vẽ nhà cấp 4 mái thái 4 phòng ngủ diện tích 160m2 phong cách hiện đại

Bản vẽ nhà cấp 4 mái thái 4 phòng ngủ diện tích 160m2
|
BT223126 |
|
01 |
|
ông Lê Xuân Lực |
|
Thọ Xuân - Thanh Hóa |
|
10m |
|
20m |
|
1.2 tỷ |
|
Tổng diện tích:160m2 Tầng 1: Phòng khách 20.5m2, thờ 11m2, bếp ăn 22m2, ngủ 1 20m2, ngủ 2 14.5m2, ngủ 3 16m2, ngủ 4 16m2, vệ sinh 4.5m2 |

Bản vẽ nhà cấp 4 mái thái 4 phòng ngủ diện tích 160m2 - Mặt bằng tầng 1
Bản vẽ nhà cấp 4 mái thái diện tích 130m2 trên đất hình thang tại Thanh Hoá

Bản vẽ nhà cấp 4 mái thái diện tích 130m2 trên đất hình thang
|
BT128047 |
|
01 |
|
Ông Phạm Dương Minh |
|
Tiểu khu 12, thị trấn Vạn Hà, huyện Thiệu Hóa, tỉnh Thanh Hóa |
|
13m |
|
11m |
|
1 tỷ đồng |
|
Diện tích xây dựng 130m2 Công năng: Sảnh chính 11.5m2, sảnh phụ 2.5m2, phòng khách 28m2, phòng bếp ăn 18m2, phòng thờ 11m2, phòng ngủ 1: 14m2, phòng ngủ 2: 16m2, phòng ngủ master 15.5m2, wc 3.8m2 |

Bản vẽ nhà cấp 4 mái thái diện tích 130m2 trên đất hình thang - Tổng mặt bằng
Bản vẽ nhà cấp 4 mái thái hình chữ L 3 phòng ngủ đẹp tại Ninh Bình

Bản vẽ nhà cấp 4 mái thái hình chữ L 3 phòng ngủ
|
BT117096 |
|
01 |
|
anh Kiên |
|
Kim Sơn- Ninh Bình |
|
4,5m |
|
15m |
|
1.1 tỷ |
|
Tổng diện tích: 150m2/sàn 3 phòng ngủ con 12,7m2, phòng ngủ con 2 12,8m2, phòng ngủ bố mẹ 20,8m2, 1 phòng khách 26m2, 1 phòng thờ, 1 phòng bếp ăn 26m2, 1 phòng vệ sinh khép kín 5,1m2, vệ sinh chung 5m2. |

Bản vẽ nhà cấp 4 mái thái hình chữ L 3 phòng ngủ - Tổng mặt bằng
Bản vẽ nhà cấp 4 mái thái hình chữ U 3 phòng ngủ lạ mắt tại Phú Thọ

Bản vẽ nhà cấp 4 mái thái hình chữ U 3 phòng ngủ
|
BT106077 |
|
01 |
|
Ông Thức |
|
Phú Thọ |
|
18m |
|
14m |
|
Khoảng 1.7 tỷ |
|
- Tổng diện tích: 220m2 - Công năng sử dụng: +) Tầng 1: tiền sảnh (17.5m2), phòng khách (25.5m2), phòng ngủ 1 (17.6m2), phòng ngủ 2 (17.6m2), phòng thờ (13m2), phòng bếp + phòng ăn (22m2), kho: (5.2m2).phòng ngủ 3: (18.5m2), phòng ngủ 4: (13m2), WC 1: (4.7m2), WC2:( 5m2), WC3: (4.7m2), WC 4: (7.4m2). |

Bản vẽ nhà cấp 4 mái thái hình chữ U 3 phòng ngủ - Mặt bằng tổng
Bản vẽ nhà cấp 4 mái thái hình chữ vuông 3 phòng ngủ tại Hưng Yên

Bản vẽ nhà cấp 4 mái thái hình chữ vuông 3 phòng ngủ tại Hưng Yên
|
BT210027 |
|
01 |
|
ông Tùng |
|
Huyện Kim Động- Tỉnh Hưng Yên |
|
13m |
|
13m |
|
1.4 tỷ |
|
Tổng diện tích: 180m2. Tầng 1: phòng khách: 30m2, phòng bếp+ăn: 18.4m2, Phòng thờ: 12.2m, WC 2: 4.1m2, Phòng ngủ 1: 16.7m2, Phòng ngủ 2: 16.2m2, Phòng ngủ 3: 19.5m2 |

Bản vẽ nhà cấp 4 mái thái hình chữ vuông 3 phòng ngủ tại Hưng Yên - Mặt bằng tổng
Bản vẽ nhà cấp 4 mái thái phong cách châu Âu tại Thái Nguyên

Bản vẽ nhà cấp 4 mái thái phong cách châu Âu
|
BT22945 |
|
01 |
|
Ông Hoàng Văn Trung |
|
Thái Nguyên |
|
16m |
|
17m |
|
2 tỷ |
|
1 Phòng khách, 3 phòng ngủ, 1 phòng bếp ăn, 2 nhà vệ sinh, 1 gara ôtô - Diện tích : 250m2 |

Bản vẽ nhà cấp 4 mái thái phong cách châu Âu - Mặt bằng tầng 1
Bản vẽ nhà cấp 4 mái thái phong cách châu Âu 3 phòng ngủ mặt tiền 10m

Bản vẽ nhà cấp 4 mái thái phong cách châu Âu 3 phòng ngủ
|
BT18155 |
|
01 |
|
Biệt thự 1 tầng phong cách Châu Âu |
|
10m |
|
20m |
|
1,5 tỷ |
|
1 Phòng khách , 3 phòng ngủ, Phòng bếp + Phòng ăn |

Bản vẽ nhà cấp 4 mái thái phong cách châu Âu 3 phòng ngủ - Mặt bằng công năng
Bản vẽ nhà cấp 4 mái thái phong cách châu Âu diện tích 200m2 tại Nam Định

Bản vẽ nhà cấp 4 mái thái phong cách châu Âu diện tích 200m2
|
BT107116 |
|
01 |
|
ông Nguyễn Văn Yên |
|
Nghĩa Hưng - Nam Định |
|
18m |
|
11.8m |
|
1.5 tỷ |
|
Tầng 1: phòng khách: 25m2, phòng bếp+ăn 25m2, sảnh chơi 9.5m2, sảnh chính 17m2, thờ 14m2, ngủ 1 18.8m2, ngủ 2 14.6m2, ngủ 3 14.6m2 ngủ 4 17.3m2. |

Bản vẽ nhà cấp 4 mái thái phong cách châu Âu diện tích 200m2 - Mặt bằng nội thất
Bản vẽ nhà cấp 4 mái thái phong cách châu Âu hiện đại tại Hưng Yên đẹp

Bản vẽ nhà cấp 4 mái thái phong cách châu Âu hiện đại
|
BT124087 |
|
01 |
|
Bà Đỗ Thị Nga |
|
Huyện Kim Động- Tỉnh Hưng Yên |
|
15m |
|
18m |
|
Khoảng 1.5 tỷ đồng |
|
Sảnh chính 36m2, Phòng khách 22m2, Phòng thờ 20m2, Phòng bếp ăn 26m2, Sảnh phụ 3.8m2, WC 4.5m2, Phòng ngủ 1 22m2, WC 5m2, Phòng ngủ 2 18m2, Phòng ngủ 3 14.5m2. |

Bản vẽ nhà cấp 4 mái thái phong cách châu Âu hiện đại - Mặt bằng tổng
Bản vẽ nhà cấp 4 mái thái phong cách đồng quê diện tích 220m2 tại Yên Lập

Bản vẽ nhà cấp 4 mái thái phong cách đồng quê diện tích 220m2
|
BT323067 |
|
01 (phương án 2) |
|
Ông Vũ Đình Thu |
|
Yên Lập- Phú Thọ |
|
24m |
|
12m |
|
Khoảng 1.3 tỷ |
|
- Tổng diện tích: 180m2 - Công năng sử dụng: Tiền sảnh: 11.3m2, Phòng khách: 50m2, Sảnh phụ: 9m2, Phòng ăn:26.5m2, Phòng thờ: 11.5m2, Phòng ngủ 1: 21m2, Phòng ngủ 2: 16.5m2, Phòng ngủ 3: 20m2, WC1: 5.3m2, WC2: 5.4m2, WC3: 5.1m2, WC4: 4.1m2. |

Bản vẽ nhà cấp 4 mái thái phong cách đồng quê diện tích 220m2 - Mặt bằng tầng 1
Bản vẽ nhà cấp 4 mái thái phong cách hiện đại đẹp kinh phí 1.5 tỷ

Bản vẽ nhà cấp 4 mái thái phong cách hiện đại đẹp
|
BT321096 |
|
01 |
|
Anh Nguyễn Tuấn |
|
Thạch Thât- Hà Nội |
|
19.5m |
|
13m |
|
Khoảng 1.5 tỷ đồng |
|
Tầng 1: 1 sảnh chính, 1 phòng khách+ thờ 27m2, phòng ăn 28m2, bếp 11m, phòng ngủ 1: 20m2, phòng ngủ 2: 17m2, phòng ngủ 3: 15m2, vệ sinh 1, vệ sinh 2, sảnh phụ 11m, 1 phòng thay đồ, hành lang 20m2, Diện tích mái 250m2. chiều cao tầng 1: 3.9m, chiều cao mái: 2.7m. Tổng chiều cao: 6.6m. Diện tích: 200m2/sàn |

Bản vẽ nhà cấp 4 mái thái phong cách hiện đại đẹp - Mặt bằng tầng 1
Bản vẽ nhà cấp 4 mái thái phong cách tân cổ điển 3 phòng ngủ đến từ Hải Dương

Bản vẽ nhà cấp 4 mái thái phong cách tân cổ điển 3 phòng ngủ
|
BT217116 |
|
01 |
|
Nguyễn Xuân Đỉnh |
|
Hải Dương |
|
14m |
|
12.5m |
|
1.3 tỷ |
|
Tổng diện tích:180m2. Tầng 1: khách+thờ 45m2, phòng bếp ăn: 30m2, phòng ngủ 1: 14.6m2 ngủ 2 14.6m2 ngủ 3 14.6m2 |

Bản vẽ nhà cấp 4 mái thái phong cách tân cổ điển 3 phòng ngủ - Mặt bằng tổng
Với 15 mẫu nhà trong bộ sưu tập những mẫu bản vẽ nhà cấp 4 mái thái đẹp nhất phần 1 này chúng tôi hy vọng rằng bạn sẽ lựa chọn được ngôi nhà cho riêng mình. Hơn nữa mái thái giờ đây không chỉ phù hợp với kiểu nhà thấp tầng truyền thống mà ngay cả nhà cao tầng cũng có thể sử dụng để mang đến vẻ đẹp cũng như điểm nhấn. Bạn hãy đón chờ tuyển tập những thiết kế bản vẽ nhà cấp 4 mái thái mới nhất của chúng tôi trong thời gian tới nhé. Ngoài ra bạn có thể tham khảo thêm những thiết kế nhà diện tích 200m2 1, 2 tầng của chúng tôi ngay tại đây
Liên hệ để được tư vấn tốt nhất Hotline: 0988 030 680








