Là một trong những không gian sống rộng rãi, có diện tích sử dụng rộng, có khuôn viên sân vườn bao quanh ngôi nhà rộng rãi và thoáng mát, các mẫu thiết kế biệt thự nhà vườn 3 tầng 2 mặt tiền được thực hiện với vẻ đẹp tinh tế, vô cùng gần gũi với thiên nhiên, và là một trong số những không gian sống mơ ước đối với nhiều người giữa cuốc sống bộn bề ngày hôm nay. Cùng chúng tôi nhìn ngắm những mẫu thiết kế biệt thự nhà vườn 3 tầng 2 mặt tiền dưới đây qua một vài hình ảnh phối cảnh 3D, các bản vẽ thiết kế nhà 3 tầng hoàn chỉnh để giúp bạn hiểu rõ hơn về một khong gian sống ấn tượng và đẳng cấp như vậy!
Biệt thự vườn 3 tầng 2 mặt tiền: Những đặc trưng về mặt kiến trúc
Những mẫu thiết kế biệt thự nhà vườn 3 tầng 2 mặt tiền là sự kết hợp hài hòa và độc đáo giữa kiến trúc ( Cổ điển, tân cổ điển, hoặc hiện đại) với không gian cảnh quan, sân vườn xung quanh. Việc thiết kế kiến trúc, công năng sử dụng phải đảm bảo sự hòa quyện, hợp lý, đạt tỷ lệ hình khối, cũng như đảm bảo các không gian sử dụng để tạo nên kiến trúc của một ngôi biệt thự đẹp nhất và hợp lý nhất. Các mẫu nhà biệt thự vườn 3 tầng 2 mặt tiền thường ít nhiều đều có diện tích sân vườn, hoặc được xây dựng trên các mảnh đất vườn rộng rãi, đảm bảo sự kế nối và gần gũi với thiên nhiên. Để sở hữu các mẫu nhà biệt thự vườn này thì chủ đầu tư cần bỏ ra một khoản chi phí "kha khá" cho việc hoàn thiện. Biệt thự vườn cũng thường được bao quanh bởi sân vườn, cổng, hàng rào... và những không gian phụ tạo nên vẻ đẹp hoàn thiện cho cuộc sống hơn cả.
Đây là thuật ngữ dùng để chỉ những ngôi nhà 3 tầng, có 2 mặt tiền được trang trí kiến trúc đẹp và tạo sức hút cho ngoại thất của công trình. 2 mặt tiền thường đều có sảnh, trong đó 1 sảnh chính và 1 sảnh phụ chứa cửa ra vào. Với thiết kế nhà 2 mặt tiền như vậy, sẽ tận dụng được sự tiếp xúc với thiên nhiên xung quanh, đồng thời giúp cho ngôi nhà có 2 mặt thoáng đãng, tiếp xúc nhiều nhất với thiên nhiên, và tăng tính thẩm mỹ, sự ấn tượng khi nhìn vào.
Việc thiết kế nhà biệt thự nhà vườn 3 tầng 2 mặt tiền cùng với các chi tiết kiến trúc đối xứng, cân đối với nhau, cách sử dụng vật liệu hoàn thiện cho không gian ngoại thất ngôi nhà như thế nào cũng được kiển trúc sư vận dụng một cách đầy tinh tế trong các sản phẩm thiết kế biệt thự đẹp, thiết kế nhà đẹp dành cho mọi đối tượng khách hàng trên khắp cả nước!
Các mẫu thiết kế biệt thự nhà vườn 3 tầng 2 mặt tiền- Chi phí xây dựng và hoàn thiện
Khi thực hiện hồ sơ thiết kế biệt thự nhà vườn 3 tầng 2 mặt tiền, tùy thuộc theo yêu cầu mà bạn có thể làm thêm gói dự toán công trình đi kèm thiết kế ngoại thất. Khi đó, bạn sẽ được đơn vị tư vấn bóc tách toàn bộ công trình, khối lượng công trình, vật tư công trình cần thiết là bao nhiêu đều thể hiện rõ ở hồ sơ dự toán công trình. Ở phần này, bạn sẽ được bóc tách khối lượng chi phí xây dựng tổng thể, chi phí nhân công, chi phí vật tự dựa trên đơn giá thực tế thời điểm xây dựng... rõ ràng và cụ thể nhất để tiện cho việc thi công, xây dựng. Tùy thuộc theo diện tích, cũng như phong cách kiến trúc của ngôi nhà mà sẽ có chi phí xây dựng khác nhau. Đối với nhà biệt thự 3 tầng 2 mặt tiền, chi phí xây dựng bạn có thể tạm tính với mức giá trung bình như sau:
- Đối với mức đầu tư trung bình: Khoảng 5.000.000đ/m2
- Đối với mức đầu tư mức khá: Khoảng 6.000.000đ/m2
- Đối với mức đầu tư cao cấp hơn: Khoảng trên 7.000.000đ/m2
Lưu ý: Đây là đơn giá mà chủ đầu tư tự thi công, không phải là đơn giá của các đơn vị, nhà thầu thi công nhà trọn gói,...chính vì thế, khách hàng cần tính toán cẩn thận phần chi phí này để hạn chế tối đa những chi phí phát sinh trong quá trình xây dựng sau này nếu chẳng may gặp phải. Đối với các mẫu thiết kế biệt thự nhà vườn 3 tầng 2 mặt tiền dưới đây của chúng tôi, khi tư vấn với khách hàng, nắm rõ được nhu cầu thẩm mỹ và công năng sử dụng của mối công trình, cũng như khoảng mức chi phí đầu tư để đưa ra được phương án thiết kế nhà ở phù hợp nhất đối với từng yêu cầu cụ thể của khách hàng. Do đó, bạn cũng có thể nhờ các đơn vị thiết kế, với kinh nghiệm và những công trình thực tế họ đã thực hiện sẽ khái toán cho bạn mức đầu tư cơ bản để có được ngôi nhà theo như mong muốn của gia đình. Như thế bạn sẽ dự tính được khoảng kinh phí đầu tư xây dựng ngôi nhà cho gia đình mình và có được những quyết định đúng đắn khi xây nhà.
Giới thiệu một số mẫu thiết kế biệt thự nhà vườn 3 tầng 2 mặt tiền đẹp
Các mẫu thiết kế nhà biệt thự vườn 3 tầng 2 mặt tiền dưới đây của chúng tôi được thực hiện trong thời gian vừa qua, được rất nhiều khách hàng tin tưởng và sử dụng dịch vụ trong suốt thời gian qua. Những công trình thiết kế biệt thự nhà vườn 3 tầng 2 mặt tiền với đầy đủ hình ảnh phối cảnh, bản vẽ mặt bằng công năng sử dụng,...hồ sơ thiết kế chi tiết để việc thi công ngôi nhà được diễn ra suôn sẻ nhất. Dưới đây là một số mẫu thiết kế tiêu biểu: Bạn có thể cùng chúng tôi tham khảo xây dựng cho gia đình mình:
Mẫu số 1: Thiết kế biệt thự nhà vườn 3 tầng 2 mặt tiền kích thước 10x16m
1: Mã số: BT104068
2: Chủ đầu tư: Ông Đặng Trung Thành
3: Địa điểm xây dựng: Phường An Tảo - Tp Hưng Yên - Tỉnh Hưng Yên
4: Mặt tiền: 10m
5: Chiều sâu: 16m
6: Diện tích: 130m2/sàn
7: Công năng sử dụng, thông số các phòng:
+) Tầng 1: Phòng khách 32m2, Gara ô tô: 27.5m2, Phòng bếp ăn: 20m2, WC1: 5m2, Phòng ngủ 1: 19.5m2.
+) Tầng 2: Sảnh tầng 7.5m2, WC3: 8m2, Phòng ngủ 2: 19.5m2, Phòng ngủ 3: 19m2, Ban công 10m2, Phòng ngủ 4: 23.5m2, Ban công 5m2, Phòng thay đồ 20m2, WC2: 5m2.
+) Tầng 3: Sảnh tầng 7.5m2, Phòng kho 8m2, Phòng ngủ 5: 19,5m2, Phòng thờ: 19m2, Sân phơi 18m2, WC4: 5m2, phòng sinh hoạt chung 23,2m2

Hình ảnh phối cảnh: Mẫu biệt thự nhà vườn 3 tầng 2 mặt tiền đẹp
Công trình được thực hiện cho chủ đầu tư ở Hưng yên, là một trong những công trình nhà ở, mẫu biệt thự nhà vườn 3 tầng 2 mặt tiền nhận được phản hồi rất tốt từ phía khách hàng và độc giả. Với kiến trúc ngoại thất mang phong cách truyền thống, thể hiện được vẻ đẹp hiện đại, mới mẻ nhờ hệ thống đá, gạch ốp tường ngoại thất màu ghi sáng... Ngôi nhà hiện đại với 2 mặt tiền thực sự tạo nên điểm nhấn vô cùng thu hút và ấn tượng với xung quanh. Vật liệu lan can kính được sử dụng cho toàn bộ 2 mặt tiền của ngôi nhà cũng có tác dụng tuyệt vời trong việc tạo nên vẻ đẹp hiện đại và gần gũi với thiên nhiên từ loại vật liệu này. 1 mặt tiền của ngôi nhà chứa sảnh và cửa chính, còn lại 1 mặt tiền chứa cửa gara ô tô, tiếp giáp với đường giao thông lớn mang lại sự thuận tiện và dễ dàng trong việc đi lại, di chuyển và cất giữ phương tiện giao thông thuận tiện, dễ dàng.

Tổng mặt bằng: Mẫu biệt thự nhà vườn 3 tầng 2 mặt tiền đẹp
Bản vẽ mặt bằng công năng sử dụng của các mẫu thiết kế biệt thự nhà vườn 3 tầng 2 mặt tiền được bố trí, sắp đặt trên thực tế ô đất khác nhau. Phụ thuộc vào thực tế lô đất xây dựng, hướng... mà chủ nhà mong muốn sẽ được quy hoạch và sắp xếp một cách phù hợp nhất. Diện tích sân vườn khá rộng rãi, giúp cho không gian nhà ở trở nên gần gũi với thiên nhiên hơn cả. Bao quanh khuôn viên của biệt thự nhà vườn 3 tầng 2 mặt tiền được thực hiện là sự đơn giản với không giản với sân vườn bao quanh.

Mặt bằng nội thất: Mẫu biệt thự nhà vườn 3 tầng 2 mặt tiền đẹp

Mặt bằng tầng 3: bố trí biệt thự nhà vườn 3 tầng 2 mặt tiền đẹp
Mẫu số 2: Các mẫu thiết kế biệt thự nhà vườn 3 tầng 2 mặt tiền đẹp
1: Mã số: BT623058
2: Chủ đầu tư: Ông Lê Văn Bính
3: Địa điểm xây dựng: Đông Anh – Hà Nội
4: Mặt tiền: 11m
5: Chiều sâu: 15.5m
6: Diện tích: 120m2/sàn
7: Công năng sử dụng, thông số các phòng:
+) Tầng 1: tiền sảnh 8m2, Phòng khách 33m2, Phòng ngủ 1: 18m2, WC1: 5.5m2, Phòng bếp: 11m2, Phòng ăn: 20.5m2, WC2: 4.5m2.
+) Tầng 2: Phòng Sinh hoạt chung: 14m2, Phòng ngủ 2: 16m2, WC2: 3.5m2, WC3: 4m2, Phòng ngủ 3: 15m2, Phòng ngủ 4: 14.5m2, ban công: 4m2.
+) Tầng thượng: Phòng thờ: 9m2, phòng giải trí: 20m3; Sân phơi: 14m2, Sân chơi: 15m2, cầu thang 8m2

Hình ảnh phối cảnh: Các mẫu thiết kế biệt thự nhà vườn 3 tầng 2 mặt tiền mái thái đẹp
Các mẫu thiết kế biệt thự nhà vườn 3 tầng 2 mặt tiền mái thái được thực hiện với không gian kiến trúc hiện đại, thiết kế mái thái giật cấp mang lại ấn tượng về không gian sống tự nhiên, truyền thống cho công trình nhà biệt thự 3 tầng đẹp này. Hình khối kiến trúc hiện đại, rõ ràng được thể hiện trong kiến trúc. 2 mặt tiền của công trình được bảo đảm sự chắc chắn và cân đối. Mái sảnh và mái hiên của 2 mặt tiền ngôi nhà được đua ra một cách rõ ràng, màu sắc hợp lý với không gian gần gũi với thiên nhiên, cũng như các loại vật tư, đá ốp hiện đại. Hệ thống cửa chính, cửa phụ hiện đại, chất liệu cửa bằng gỗ tự nhiên, bằng kính hiện đại,... mang đến cho công trình sự chắc chắn và ấn tượng. Thiết kế 2 mặt tiền của ngôi nhà được thực hiện mang lại sự tinh tế và hấp dẫn cho ngoại thất và không gian sử dụng chung của ngôi nhà.

Mặt bằng tầng 1: Bố trí công năng sử dụng cho mẫu biệt thự nhà vườn 3 tầng 2 mặt tiền

Mặt bằng tầng 2: Biệt thự nhà vườn 3 tầng 2 mặt tiền

Mặt bằng tầng 3: Tư vấn mẫu thiết kế nhà biệt thự 3 tầng 2 mặt tiền đẹp
Mẫu số 3: Ngắm thiết kế nhà biệt thự 3 tầng 2 mặt tiền đẹp
1: Mã số: BT111057
2: Chủ đầu tư: Anh Vương Trung Kiên
3: Địa điểm xây dựng: Khánh Thượng- Yên Mô- Ninh Bình
4: Mặt tiền: 12m
5: Chiều sâu: 10m
6: Diện tích: 90m2
7: Công năng sử dụng, thông số các phòng:
+) Tầng 1: Tiền sảnh (8m2), phòng khách (24m2), phòng bếp + ăn (28m2), sảnh tầng (4,5m2), WC 1(3m2), phòng ngủ 1 (18m2)
+) Tầng 2: phòng ngủ 2 (12m2), WC 2 (3,6m2), sảnh tầng (6,5m2), WC 3 (4,3m2), phòng ngủ 3 = phòng ngủ 4 (23m2), P.SHC (10m2)
+) Tầng 3 : sân phơi (12m2), kho (3,8m2), sảnh tầng (8m2), phòng đọc + làm việc ( 8m2), phòng thờ (24m2), sân chơi ( 7m2).

Hình ảnh phối cảnh: Mẫu biệt thự nhà vườn 3 tầng 2 mặt tiền mái thái hiện đại
Không gian kiến trúc hiện đại của mẫu thiết kế biệt thự nhà vườn 3 tầng 2 mặt tiền được thể hiện rất sinh động. Các khối kiến trúc được thể hiện với tỷ lệ hợp lý, hệ thống lan can, ban công lan can được thể hiện mang lại vẻ đẹp cuốn hút cho kiến trúc của ngôi nhà. Các mảng miếng, hình khối kiến trúc mặt tiền của mẫu biệt thự nhà vườn 3 tầng 2 mặt tiền được làm nổi bật bởi hệ thống đá, gạch ốp tường màu nâu chìm. Màu sơn trắng giúp cho ngoại thất của ngôi nhà trở nên nổi bật và êm ái hơn. Thiết kế kiến trúc nhấn mạnh vào vẻ đẹp của 2 mặt tiền nhà, từ đó mà không gian ngoại thất trở nên có điểm nhấn hơn. Hệ thống mái ngói giật cấp ấn tượng, giúp cho ngôi nhà trở nên bề thề, sang trọng hơn. Các không gian như giàn hoa trang trí, cây xanh tự nhiên kết nối với nhau mang lại tính thẩm mỹ của công trình. Thiết kế cửa vòm cong, bằng kính tạo điểm nhấn không gian cho mẫu nhà biệt thự 3 tầng 2 mặt tiền này!

Bản vẽ tổng mặt bằng công năng sử dụng: Mẫu thiết kế biệt thự nhà vườn 3 tầng 2 mặt tiền đẹp
2 mặt tiền của ngôi nhà quay về 2 hướng vuông góc với nhau. Không gian sảnh rộng rãi và ấn tượng được tận dụng. Không gan các phòng trong nhà nhờ có 2 mặt tiền lấy sáng sẽ tạo nên sự thông thoáng bên trong, cũng rất tiện nghi cho việc đi lại và di chuyển bên trong của ngôi nhà. Khoảng sân vườn 4 bên bao quanh ngôi nhà cũng góp phần làm nên không gian sống thanh bình cho các thành viên trong ngôi nhà. Cây xanh, sân vườn bao quanh... sẽ giúp cho ngôi nhà trở nên rộng rãi và gần gũi với thiên nhiên hơn cả. Đồng thời với đó, vị trí của cổng, hàng rào, giúp ngôi nhà mang vẻ đẹp hào hòa và thống nhất từ ngoài vào trong.
Mẫu 4: Tư vấn mẫu thiết kế biệt thự nhà vườn 3 tầng 2 mặt tiền
1: Mã số: BT227126
2: Chủ đầu tư: Ông Trần Đình Nguyên
3: Địa điểm xây dựng: Huyện Hùng Xá - Tỉnh Thái Bình
4: Mặt tiền: 9m
5: Chiều sâu: 13m
6: Diện tích: 90m2/sàn
7: Công năng sử dụng, thông số các phòng:
+) Tầng 1: Phòng khách ( 30m2), Phòng bếp ăn ( 16m2) Ngủ 1 (18.7m2), WC1( 2.3m2), sảnh chính ( 8m2)
+) Tầng 2: Sảnh tầng ( 13m2), Ngủ 2 (18.7m2) , Ngủ 3 ( 11.6m2), Ngủ 4( 20,6m2), Wc2 (4m2), WC (7.5m2)
+) Tầng 3: Sảnh tầng( 13m2), sân chơi (14m2), sân phơi ( 11.6m2), Phòng thờ ( 18.7m2), Karaoke ( 16m2), WC4 ( 4m2)

Hình ảnh phối cảnh: Mẫu thiết kế biệt thự 3 tầng 2 mặt tiền đơn giản
Hình dạng chữ L của mâu thiết kế biệt thự nhà vườn 3 tầng 2 mặt tiền được chúng tôi thiết kế theo hình dạng nhà chữ L 3 tầng. Điều này cũng dễ dàng hơn cho cách tạo khối kiến trúc, mang lại điểm nhấn về mặt hình khối cho mặt tiền của ngôi nhà. Các mảng tường được sơn trắng, kết hợp với những mảng tường lớn được ốp gạch hiện đại, mới mẻ giúp cho kiến trúc nhà ở trở nên ấn tượng và độc đáo hơn cả. Màu sắc nâu đỏ được sử dụng phổ biến cho ngoại thât của công trình nà, cùng với màu sắc của mái mang lại sự thống nhất và trang trọng.

Mặt bằng tầng 1: Mẫu biệt thự nhà vườn 3 tầng 2 mặt tiền hình chữ L
Mẫu 5: Mẫu biệt thự nhà vườn 3 tầng 2 mặt tiền kích thước 10x15m hiện đại
1: Mã số: BT111126
2: Chủ đầu tư: anh Mai Anh Khoa
3: Địa điểm xây dựng: Sóc Sơn- Hà Nội
4: Mặt tiền: 10m
5: Chiều sâu: 15m
6: Diện tích: 130m2
7: Công năng sử dụng, thông số các phòng:
+) Tầng 1: Phòng Khách( 34.6m2), Không gian ăn ( 13.5m2) Không gian bếp ( 14.6m2), Phòng ngủ 1( 19.8m2), WC (6.9m2)
+) Tầng 2: Phòng ngủ 2 ( 30m2), Phòng thay đồ( ở phòng ngủ 2- 7.8m2), WC ( trong phòng ngủ 2- 13.8m2), WC ( 7.7m2), Sảnh tầng 2 ( 7.2m2), Phòng ngủ 3( 21.3m2), Sân Chơi ( 19.8m2), Phòng ngủ 4 ( 224.1m2), WC 4 ( 6.9m2), Ban công phía sau ( 11.5m2)
+) Tầng 3: SẢnh tầng 3 ( 15.5m2), Sân chơi ( 45.6m2), Phòng thờ ( 16m2)

Phối cảnh: Mẫu thiết kế biệt thự nhà vườn 3 tầng hiện đại 10x15m
Hình khối kiến trúc hiện đại thể hiện trong mẫu thiết kế ngoại thất của ngôi nhà một cách rõ ràng nhất. Không gian 2 mặt tiền nổi bật với các hình khối kiến trúc nhà ở rõ ràng, ấn tượng. Đồng thời, các mảng miếng đua ra phù hợp với thiết kế và nhu cầu sử dụng hiện đại của nhiều gia đình. Với 2 mặt tiền, sử dụng toàn bộ là những hình khối kiến trúc rõ ràng, các mảng miếng không gian phù hợp theo mong muốn và yêu cầu sử dụng hiện đại, mà không gian biêt thự nhà vườn 3 tầng 2 mặt tiền hiện đại lại càng trở nên nổi bật hơn. Đồng thời, hệ thống ánh sáng cũng góp phần làm nên sức hấp dẫn và sự khác biệt cho công trình biệt thự nhà vườn 3 tầng hiện đại này. Thêm nữa, không gian bể bơi, sân vườn bao quanh nhà khiến cho không gian nơi đây trở thành niềm mơ ước của biết bao nhiêu người trong cuộc sống hiện đại. Quy hoạch tổng thể sân vườn, cổng, hàng rào bao quanh, cộng với các chi tiết bể bơi, cây xanh, tiểu cảnh khiến không gian sống bao quanh mẫu biệt thự nhà vườn 3 tầng hiện đại trở nên thu hút hơn cả. Chắc chắn, bạn cũng sẽ thích được sống trong một ngôi nhà tuyệt vời như thế này, được hòa quyện với thiên nhiên, và với những tiện nghi cuộc sống đẳng cấp nhất.

Cách bố trí mặt bằng công năng sử dụng cho các mẫu biệt thự nhà vườn 3 tầng 2 mặt tiền đẹp
Mẫu số 6: Ngắm mẫu biệt thự nhà vườn 3 tầng 2 mặt tiền diện tích 150m2
1: Mã số: BT220106
2: Chủ đầu tư: Ông Đỗ Văn Định
3: Địa điểm xây dựng: Kim Động - Hưng Yên
4: Mặt tiền: 13.5m
5: Chiều sâu: 12.5m
6: Diện tích: 150m2
7: Công năng sử dụng, thông số các phòng:
+) Tầng 1: Tiền sảnh (6m2), Phòng khách (33m2), Bếp + ăn (33m2), WC chung( 12m2), Phòng ngủ 1 (15m2)- Vệ sinh khép kín phòng ngủ 1( 3.7m2)
+) Tầng 2: SHC (33m2), Phòng ngủ VIP (35m2), WC trong phòng ngủ Vip (15m2), Phòng ngủ bé (15m2)
+) Tầng 3: Phòng ngủ Vip ( 35m2), Phòng thờ( 12m2), Phòng ngủ (15m2)

Phối cảnh: Mẫu biệt thự nhà vườn 3 tầng 2 mặt tiền đẹp

Mặt bằng công năng sử dụng của mẫu biệt thự nhà vườn 3 tầng 2 mặt tiền
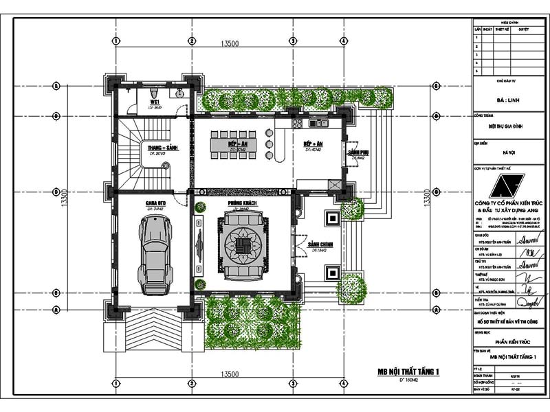
Mẫu 7: Ngắm mẫu thiết kế nhà biệt thự vườn 3 tầng 2 mặt tiền diện tích 150m2
1: Mã số: BT313106
2: Chủ đầu tư: Bà Linh
3: Địa điểm xây dựng: Sóc Sơn-Hà Nội
4: Mặt tiền: 13.5m
5: Chiều sâu: 13.3m
6: Diện tích: 150m2
7: Công năng sử dụng, thông số các phòng:
Tầng 1: 1 Phòng khách36m2,1 phòng bếp+ ăn 40m2, gara ôt 31m2, sảnh thang 20m2, 1 vệ sinh 8m2 sảnh chính 15m2, sảnh phụ 8m2

Phối cảnh: Mẫu thiết kế biệt thự nhà vườn 3 tầng 2 mặt tiền phong cách hiện đại

Mặt bằng tầng 1: Mẫu thiết kế nhà biệt thự 3 tầng 2 mặt tiền cổ điển
Mẫu số 8: Ngắm mẫu thiết kế biệt thự nhà vườn 3 tầng 2 mặt tiền diện tích 120m2
1: Mã số: BT123056
2: Chủ đầu tư: Ông Tiến
3: Địa điểm xây dựng: Hưng Yên
4: Mặt tiền: 9.5m
5: Chiều sâu: 13m
6: Diện tích: 120m2
7: Công năng sử dụng, thông số các phòng:
+) Tầng 1: 1 phòng ngủ, 1 phòng khách, 1 phòng bếp, 1 gara ô tô.
+) Tầng 2: 3 phòng ngủ, 2 phòng vệ sinh.
+) Tầng 3: 1 phòng thờ, 1 phòng karaoke, 1 sân chơi, 1 sân phơi.

Phối canrh: Mẫu biệt thự nhà vườn 3 tầng 2 mặt tiền phong cách cổ điển
Mang phong cách kiến trúc cổ điển, các công trình nhà ở, biệt thự này đều thể hiện được sự sang trọng, bởi các chi tiết kiến trúc được thiết kế cầu kì, tinh tế vô cùng. Hệ thống gờ, phào chỉ được sơn màu trắng làm nên sự nổi bật cho không gian ngoại thất. Thiết kế 2 mặt tiền, điểm nhấn tập trung vào khu vực sảnh khiến ngôi nhà trở nên uy nghi và đầy sức hút.

Cách bố trí mặt bằng mẫu biệt thự nhà vườn 3 tầng 2 mặt tiền phong cách cổ điển
Mẫu số 9: Ngắm mẫu biệt thự nhà vườn 3 tầng 2 mặt tiền đẹp diện tích 90m2
1: Mã số: BT312046
2: Chủ đầu tư: Ông Thanh
3: Địa điểm xây dựng: Hà Đông - Hà Nội
4: Mặt tiền: 9m
5: Chiều sâu: 13m
6: Diện tích: 90m2
7: Công năng sử dụng, thông số các phòng:
+) Tầng 1: 1 phòng ngủ, 1 khách , 1 phòng bếp ăn , 1 phòng vệ sinh.
+)Tầng 2: 3 phòng ngủ, 1 phòng vệ sinh.
+) Tầng 3: 1 phòng thờ, 1 phòng karaoke, 1 sân chơi, 1 phòng vệ sinh.

Kiến trúc đơn giản từ mẫu biệt thự nhà vườn 3 tầng 2 mặt tiền đẹp

Mặt bằng mẫu thiết kế biệt thự nhà vườn 3 tầng 2 mặt tiền đẹp
Mẫu số 9: Tư vấn thiết kế kiến trúc mẫu biệt thự nhà vườn 3 tầng 2 mặt tiền hình chữ L

Hình ảnh phối cảnh: Mẫu thiết kế biệt thự nhà vườn 3 tầng 2 mặt tiền hình chữ L
Lựa chọn các mẫ thiết kế biệt thự nhà vườn 3 tầng 2 mặt tiền hợp lý với nhu cầu
Rất nhiều các mẫu thiết kế biệt thự nhà vườn 3 tầng 2 mặt tiền được nhiều khách hàng, chủ đầu tư tìm kiếm và mong muốn xây dựng, thiết kế cho gia đình mình.Với khoản chi phí đầu tư dự kiến hợp lý, và chuẩn bị hồ sơ thiết kế cẩn thận, chu đáo,... bạn có thể bắt tay vào việc xây dựng và hoàn thiện được ngôi nhà của mình theo như những ý tưởng thiết kế đã duyệt sẵn với kiến trúc sư từ trước đó.
Những mẫu thiết kế biệt thự nhà vườn 3 tầng 2 mặt tiền này được chúng tôi thực hiện thiết kế và thi công với vẻ đẹp sang trọng, đa dạng phong cách kiến trúc và nhu cầu đa dạng phục vụ được đầy đủ các nhu cầu của nhiều gia đình hiện nay.
Những yêu cầu tư vấn thiết kế biệt thự nhà vườn 3 tầng 2 mặt tiền đẹp, hoặc những yêu cầu tư vấn thiết kế kiến trúc - nội thất, mời bạn liên hệ trực tiếp với kiến trúc sư của chúng tôi để được tư vấn và giải đáp mọi thắc mắc!
Hotline: 0988 030 680
Xem thêm: biệt thự mặt tiền 15m








