Ngày càng có nhiều gia chủ yêu thích và lựa chọn thiết kế và xây dựng một ngôi biệt thự có kích thước 8x16m. Và, để xây dựng thành công một không gian sống hoàn mỹ như vậy, ta không thể bỏ qua việc thiết kế và bố trí bộ phận mặt bằng. Bởi thế, quá trình tạo nên một phương án thiết kế mặt bằng biệt thự 8x16m hoàn mỹ đang ngày càng được các gia chủ quan tâm. Tham khảo bài viết để có được không gian sống đáng mơ ước nhất.

Lối tắt dẫn tới những phương án thiết kế mặt bằng biệt thự 8x16m tốt nhất
>>> Xem ngay: Giải mã những bản vẽ thiết kế biệt thự 100m2 xuất sắc nhất hiện nay
Khái niệm mặt bằng biệt thự 8x16m
Mặt bằng biệt thự 8x16m chính là hình chiếu của nó lên một mặt phẳng nằm ngang. Hình ảnh mặt bằng này cung cấp cho chúng ta những thông tin từ bao quát nhất cho đến cụ thể của không gian nội thất công trình kiến trúc. Những thông tin mà chúng ta có thể nắm bắt được thông qua hình ảnh mặt bằng biệt thự 8x16m chính là kích thước, vị trí và hình dạng các chi tiết, bộ phận kiến trúc được đặt tại không gian nội thất.
Với những công trình kiến trúc thông thường, mỗi tầng (lầu) sẽ có một mặt bằng bố trí nội thất tương ứng. Những mặt bằng này sẽ cung cấp tất cả những thông tin mà ta cần biết về không gian nội thất của công trình. Từ đây, gia chủ sẽ được hiểu hơn về không gian sống mà bản thân chuẩn bị xây dựng. Đồng thời, cũng nhờ có mặt bằng biệt thự 8x16m này mà quá trình xây dựng mới có thể diễn ra thuận lợi và tốt đẹp.
Mặt bằng biệt thự 8x16m có vai trò vô cùng quan trọng trong quá trình xây dựng. Chính bởi đó, ta cần phải hết sức đến quá trình tạo ra nó. Ta cần phải có phương án thiết kế thực sự hoàn mỹ để không gian sống của con người có thể trở nên hoàn hảo nhất.

Tìm hiểu khái niệm mặt bằng biệt thự 8x16m
Những nội dung cần lưu ý khi thiết kế mặt bằng biệt thự 8x16m
Để có được một phương án thiết kế mặt bằng biệt thự 8x16m hoàn mỹ, chúng ta cần phải chú ý đến rất nhiều nội dung. Và sau đây chính là những nội dung mà chúng ta cần phải đặc biệt quan tâm trong quá trình thiết kế mặt bằng biệt thự 8x16m.
Thiết kế mặt bằng biệt thự 8x16m phù hợp với phong cách kiến trúc của công trình
Nội dung đầu tiên mà chúng ta cần phải quan tâm chính là phong cách kiến trúc. Mỗi công trình kiến trúc nói riêng và biệt thự 8x16m nói chung sẽ được thiết lế dựa trên một phong cách cụ thể. Gia chủ có thể lựa chọn kiến trúc hiện đại, tân cổ điển hoặc cổ điển để áp dụng cho không gian sống của bản thân cùng các thành viên trong gia đình. Và dĩ nhiên, mỗi phong cách kiến trúc sẽ có những định hướng khác nhau về việc bố trí không gian, công năng sử dụng.
Kiến trúc hiện đại đơn giản, nhẹ nhàng và độc đáo. Điều đặc biệt là phong cách kiến trúc hiện đại để cao sự đơn giản và nhẹ nhàng. Phong cách hiện đại khi áp dụng cho không gian sống luôn đặc biệt đề cao tính khả dụng và trải nghiệm người dùng. Nên, việc bố trí cho mặt bằng biệt thự 8x16m cũng phải luôn chú ý đến việc tối ưu hoá không gian sử dụng. Ngoài ra, khu vực mặt bằng biệt thự 8x16m này không cần được bố trí theo lối đăng đối, cân xứng mà chỉ cần chú tâm đến việc tạo nên sự hài hoà, độc đáo và mới lạ.
Kiến trúc cổ điển và tân cổ điển thì lại khác. Việc bố trí khu vực mặt bằng bằng biệt thự 8x16m luôn xem trọng sự cầu kỳ, hoa mỹ. Nhưng công trình này thường bố trí mặt bằng và không gian kiến trúc theo lối đăng đối, cân xứng. Chính điều đó đã làm tăng lên tính thẩm mỹ cùng sự sang trọng, cao cấp cho không gian sống của con người. Tuy nhiên, giữa hai phong cách tân cổ điển và cổ điển này thì kiến trúc cổ điển có phần cầu kỳ, tỷ mỷ và hoa lệ hơn trong thiết kế cả kiến trúc ngoại thất và nội thất.

Những nội dung cần lưu ý khi thiết kế mặt bằng biệt thự 8x16m
Thiết kế mặt bằng biệt thự 8x16m phù hợp với phong thuỷ
Nội dung kế đến mà chúng ta cần phải quan tâm khi thiết kế mặt bằng biệt thự 8x16m chính là phong thuỷ. Phong thuỷ là yếu tố vô cùng quan trọng góp phần làm nên cuộc sống tốt đẹp của con người. Chính bởi đó, tại không gian sống, chúng ta cần phải hết sức chú ý trong phương diện thiết kế và xây dựng theo phong thuỷ này. Và, công việc tiêu biểu nhất mà chúng ta cần phải thực hiện chính là tạo nên những phương án thiết kế mặt bằng biệt thự 8x16m thực sự phù hợp với phong thuỷ.
Tại mặt bằng biệt thự 8x16m này, ta có thể bố trí các yếu tố như hướng, vị trí, kích thước, số lượng… các chi tiết kiến trúc sẽ được áp dụng. Ta cần lựa chọn những yếu tố này trên cơ sở phong thuỷ sao cho thực sự phù hợp với phong thuỷ, với tuổi, với mệnh của gia chủ. Chỉ khi thực hiện tốt những nội dung đó thì không gian sống mới có thể trở thành căn cứ tốt đẹp cho cuộc sống thuận lợi của con người.
Thiết kế mặt bằng biệt thự 8x16m phù hợp với thẩm mỹ
Tính thẩm mỹ là điều mà chúng ta không thể không xem xét khi nghiên cứu thiết kế về mặt bằng biệt thự 8x16m. Ta cần phải sắp xếp, thiết kế khu vực mặt bằng này theo cách hợp lý nhất. Những công năng, không gian cần phải bố trí một cách khoa học và đảm bảo tính thẩm mỹ. Không gian di chuyển, giao thông bên trong ngôi nhà cũng phải được tạo nên thực sự hợp lý. Và dĩ nhiên, nững yếu tố đó cần phải được thể hiện rõ ràng tại bản vẽ mặt bằng biệt tự 8x16m.
>>> Những phương án thiết kế biệt thự đẹp nhất
Những phương án thiết kế mặt bằng biệt thự 8x16m
Tiếp theo, chúng ta sẽ cùng đến với những phương án thiết kế mặt bằng biệt thự 8x16m ấn tượng. Tham khảo để có được phương án tốt nhất cho không gian sống của bản thân và gia đình.
Phương án thiết kế mặt bằng biệt thự 8x16m số 1: Thiết kế biệt thự 1 tầng 1 hầm hiện đại trẻ trung
- Mã sản phẩm: BT731109
- Địa chỉ: Hà Nội
- Kích thước: 8x17m
- Diện tích xây dựng: 115m2/sàn
- Chi phí xây dựng dự kiến: Khoảng 1.5 tỷ đồng.

Hình ảnh phối cảnh: Thiết kế biệt thự 1 tầng 1 hầm hiện đại trẻ trung

Mặt bằng biệt thự 8x16m tầng hầm: Thiết kế biệt thự 1 tầng 1 hầm hiện đại trẻ trung

Mặt bằng biệt thự 8x16m tầng 1: Thiết kế biệt thự 1 tầng 1 hầm hiện đại trẻ trung
Phương án thiết kế mặt bằng biệt thự 8x16m số 2: Hồ sơ thiết kế biệt thự 2 tầng hình chữ L đơn giản, xinh đẹp
- Mã sản phẩm: BT119129
- Địa chỉ: Thanh Hoá
- Kích thước: 8x17m
- Diện tích xây dựng: 105m2/sàn
- Chi phí xây dựng dự kiến: Khoảng 1.3 – 1.4 tỷ đồng.

Phối cảnh 3D: Hồ sơ thiết kế biệt thự 2 tầng hình chữ L đơn giản, xinh đẹp

Mặt bằng biệt thự 8x16m tầng 1: Hồ sơ thiết kế biệt thự 2 tầng hình chữ L đơn giản

Mặt bằng biệt thự 8x16m tầng 2: Hồ sơ thiết kế biệt thự 2 tầng hình chữ L đơn giản
Phương án thiết kế mặt bằng biệt thự 8x16m số 3: Hình ảnh biệt thự 1 lầu 1 trệt mái dốc giản dị có 4 phòng ngủ
- Mã sản phẩm: BT504068
- Địa chỉ: Hà Nội
- Kích thước: 8x15m
- Diện tích xây dựng: 120m2/sàn
- Chi phí xây dựng dự kiến: Khoảng 1.4 – 1.5 tỷ đồng.

Hình ảnh phối cảnh view 1: Biệt thự 1 lầu 1 trệt mái dốc giản dị có 4 phòng ngủ

Hình ảnh phối cảnh view 2: Biệt thự 1 lầu 1 trệt mái dốc giản dị có 4 phòng ngủ

Mặt bằng biệt thự 8x16m tầng 1: Mẫu nhà 1 lầu 1 trệt mái dốc giản dị có 4 phòng ngủ

Mặt bằng biệt thự 8x16m tầng 2: Mẫu nhà 1 lầu 1 trệt mái dốc giản dị có 4 phòng ngủ
Phương án thiết kế mặt bằng biệt thự 8x16m số 4: Mẫu biệt thự 2 tầng mái lệch độc đáo
- Mã sản phẩm: BT610058
- Địa chỉ: Hà Nội
- Kích thước: 8x17m
- Diện tích xây dựng: 120m2/sàn
- Chi phí xây dựng dự kiến: Khoảng 1.3 – 1.5 tỷ đồng.

Phối cảnh 3D: Mẫu thiết kế biệt thự 2 tầng mái lệch độc đáo

Mặt bằng biệt thự 8x16m tầng 1: Mẫu thiết kế nhà đẹp 2 tầng mái lệch độc đáo

Mặt bằng biệt thự 8x16m: Mẫu thiết kế nhà đẹp 2 tầng mái lệch độc đáo
Phương án thiết kế mặt bằng biệt thự 8x16m số 5: Biệt thự 2 tầng ngói đỏ cuốn hút có 3 phòng ngủ
- Mã sản phẩm: BT503078
- Địa chỉ: Hà Nội
- Kích thước: 8x16m
- Diện tích xây dựng: Khoảng 120m2/sàn
- Chi phí xây dựng dự kiến: Khoảng 1.5 – 1.6 tỷ đồng

Hình ảnh phối cảnh 3D: Mẫu thiết kế 2 tầng ngói đỏ cuốn hút có 3 phòng ngủ

Mặt bằng biệt thự 8x16m tầng 1: Mẫu thiết kế 2 tầng ngói đỏ cuốn hút có 3 phòng ngủ

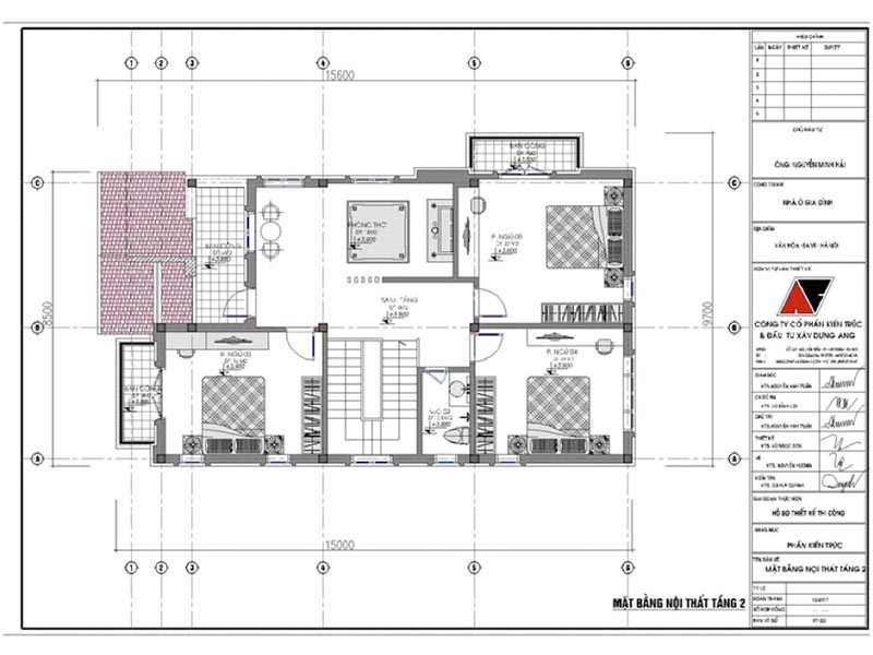
Mặt bằng biệt thự 8x16m tầng 2: Mẫu thiết kế 2 tầng ngói đỏ cuốn hút có 3 phòng ngủ
Kết luận
Đó chính là những nội dung mà chúng ta buộc phải quan tâm khi tiến hành thiết mặt bằng biệt thự 8x16m. Để có được không gian sống hoàn mỹ, bạn cần đến chúng tôi – Kiến trúc Angcovat. Với đội ngũ đông đảo các kiến trúc sư, kỹ sư cùng thợ thi công giỏi, chúng tôi sẽ khiến mọi khách hàng vừa lòng từ dịch vụ tư vấn thiết kế cho đến thi công trọn gói nhà biệt thự đẹp.
Liên hệ hotline 0988. 030. 680 để được tư vấn thiết kế và báo giá thi công trọn gói trực tiếp.
>>> Có thể bạn quan tâm: Phối cảnh biệt thự mặt tiền 8m








