Nhu cầu xây dựng nhà cấp 4 đơn giản ở nông thôn là rất lớn hiện nay, những mẫu thiết kế nhà cấp 4 3 phòng ngủ 1 phòng thờ diện tích từ 100 đến khoảng 150m2 luôn được nhiều chủ đầu tư săn đón tìm kiếm. Không chỉ bởi sự phổ biến, dễ dàng ứng dụng trên nhiều lô đất, mà mỗi mẫu thiết kế
còn mang đến cho chủ nhà những trải nghiệm khác nhau. Ở bài viết này, chúng tôi sẽ tổng hợp 7 mẫu thiết kế nhà cấp 4 3 phòng ngủ 1 phòng thờ đẹp được rất nhiều khách hàng yêu thích của chúng tôi dưới đây để có thêm gợi ý xây nhà đẹp cho gia đình mình. Trước tiên, để hiểu về 7 mẫu thiết kế nhà cấp 4 3 phòng ngủ 1 phòng thờ này, chúng tôi muốn bạn tham khảo hình ảnh phối cảnh và cách bố trí mặt bằng công năng sử dụng của 7 thiết kế này.
Điểm chung của 7 mẫu nhà cấp 4 3 phòng ngủ 1 phòng thờ này bao gồm
Ngày xưa, nhà cấp 4 3 phòng ngủ 1 phòng thờ thường có kết cấu chịu lực bằng gạch và gỗ. Thời gian sử dụng tối đa khoảng 30 năm. Tường bao che và tường ngăn bằng gạch ( thường tường bao che là 22cm, còn tường ngăn phòng là 11cm). Nhà cấp 4 thường sử dụng mái ngói là chủ yếu. Vật liệu hoàn thiện chất liệu tương đối thấp.
Thế nhưng, hiện nay, khi kiến trúc- xây dựng ngày càng phát triển, nhiều vật liệu xây nhà mới ra đời. Nhu cầu sử dụng và xây dựng nhà cấp 4 3 phòng ngủ 1 phòng thờ vẫn còn rất nhiều, vì thế mà việc xây nhà cấp 4 nhỏ xinh cũng có nhiều thay đổi, về kết cấu, thời gian sử dụng, tính thẩm mỹ,... đều cao hơn hẳn so với trước đây. Nhu cầu xây dựng và thiết kế nhà cấp 4 ngày càng nhiều, hầu hết những khách hàng của chúng tôi đều là những chủ nhà ở quê, nông thôn, với diện tích đất vườn rộng, có không gian sân vườn, trồng cây xanh, ao cá,... khi xây dựng nhà cấp 4 kết hợp với cảnh quan xung quanh như trên mang lại sự thoải mái và gần gũi nhất với thiên nhiên, không gian xung quanh. Bởi vậy, mà những thiết kế nhà cấp 4 như thế này thực sự chiều lòng được niềm mong muốn của nhiều chủ đầu tư về một không gian kiến trúc xanh đẹp và hoàn mĩ nhất.
Tiếp đến, về mặt công năng, 7 mẫu nhà cấp 4 3 phòng ngủ 1 phòng thờ. Đây là điểm chung trong cách phân chia công năng và nhu cầu sử dụng của mỗi thiết kế. Đối với mỗi chủ đầu tư khác nhau, nhu cầu về mặt diện tích khác nhau, số lượng thành viên trong gia đình là khác nhau, vị trí các phòng khác nhau, nên mặt bằng công năng sử dụng cũng khác nhau, chẳng nhà nào là giống nhà nào cả. Tuy nhiên, trong 7 mẫu nhà cấp 4 3 phòng ngủ 1 phòng thờ, số lượng các phòng ngủ của 7 thiết kế này là như nhau. Bạn có thể tham khảo cách bố trí công năng sử dụng đối với nhà cấp 4 3 phòng ngủ 1 phòng thờ đẹp như thế này để có được cho mình phương án thiết kế phù hợp nhất. Song cũng cần phải tính toán đến diện tích, mặt bằng công năng sử dụng sao cho phù hợp với diện tích sử dụng nhất để cân bằng được công năng của toàn bộ các phòng chức năng trong ngôi nhà của mình.
Mẫu 1: 7 mẫu thiết kế nhà cấp 4 3 phòng ngủ 1 phòng thờ đẹp
Thông tin về 1 trong 10 mẫu nhà cấp 4 3 phòng ngủ 1 phòng thờ đẹp
1: Chủ đầu tư: Ông Hải
2: Địa chỉ: Bắc Giang
3: Mặt tiền: 14m
4: Chiều sâu: 10.5m
5: Diện tích: 130m2/sàn

Phối cảnh mẫu thiết kế nhà cấp 4 3 phòng ngủ 1 phòng thờ đẹp
Cũng tùy thuộc vào hình dạng ngôi nhà như thế nào mà cũng có cách bố trí mặt bằng công năng sử dụng khác nhau, đối với mẫu nhà cấp 4 mái ngói hình vuông này, có thể thấy, hình dạng vuông hình sắc cạnh của ngôi nhà chính là một điểm lợi thế tuyệt vời cho cách bố trí công năng cũng như cách thiết kế kiến trúc cho mẫu nhà cấp 4 3 phòng ngủ 1 phòng thờ. Để tận dụng lợi thế về mặt hình dạng của ngôi nhà, kiến trúc sư thường thiết kế, đặt nguyên tắc đối xứng lên hàng đầu để ngôi nhà có được sự tự nhiên và thuận mắt nhìn. Đồng thời, môt vài chi tiết tạo điểm nhấn kiến trúc được thực hiện cho phần kiến trúc giúp gây ấn tượng. Còn lại về mặt kết cấu, sự đối xứng, cân bằng và tính kỹ thuật được đảm bảo một cách kỹ càng trong bản vẽ thiết kế kiến trúc.

Mặt bằng nội thất: Mẫu nhà cấp 4 3 phòng ngủ 1 phòng thờ đẹp
Cách bố trí công năng sử dụng như thế này cũng được áp dụng khá nhiều trong mẫu thiết kế nhà cấp 4 3 phòng ngủ 1 phòng thờ. Đặc biệt, không gian phòng thờ đẹp, được đặt ở vị trí giữa ngôi nhà, 2 bên là 2 phòng ngủ. Đối với khu vực vệ sinh còn tùy thuộc vào nhu cầu sử dụng của mỗi gia đình, thông thường sẽ có từ 1 đến 2 phòng vệ sinh trong 7 mẫunhà cấp 4 3 phòng ngủ 1 phòng thờ đẹp. Hoặc cũng có thể có nhiều phòng vệ sinh hơn, tuy nhiên, những trường hợp này cần phải thiết kế và tính toán một cách chi tiết và cẩn thận để có cách bố trí công năng sử dụng hợp lý nhất đối với diện tích sử dụng của ngôi nhà của mình.
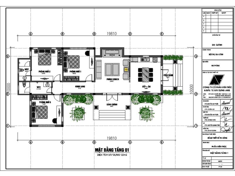
Mẫu 2: Mẫu thiết kế nhà cấp 4 3 phòng ngủ 1 phòng thờ đẹp ở nông thôn sang trọng
Thông tin về thiết kế:
1: Chủ đầu tư: Bà Quỳnh- Phương án 2
2: Địa điểm xây dựng: Hải Phòng
3: Mặt tiền: 10m
4: Chiều sâu: 17m
5: Diện tích: 120m2

Hình ảnh mẫu thiết kế nhà cấp 4 3 phòng ngủ 1 phòng thờ mái thái đẹp
Tiếp đến là mẫu thiết kế nhà cấp 4 3 phòng ngủ 1 phòng thờ đẹp hình chữ L được thực hiện cho chủ đầu tư là bà Quỳnh ở Hải Phòng. Mẫu thiết kế biệt thự mái bằng 1 tầng hình chữ L đẹp với kiến trúc sang trọng, sự bề thế được đặt lên hàng đầu khi thiết kế ngoại thất. Nhìn sự hoành tráng, đồ sộ của thiết kế này, ai nói rằng nhà cấp 4 là không gian được chứ? Hẳn là ngược lại, vẻ đẹp sang trọng, hoành tráng của mẫu nhà cấp 4 3 phòng ngủ 1 phòng thờ được thể hiện từ màu sắc, cho đến tổng thể các chi tiết trang trí ngoại thất đẹp, hoàn thiện.

Mặt bằng: Mẫu thiết kế nhà cấp 4 3 phòng ngủ 1 phòng thờ mái thái đẹp
Nếu bạn đang định xây dựng một ngôi nhà hình chữ L, đặc biệt là nhà cấp 4, bạn có thể tham khảo cách bố trí công năng sử dụng cho ngôi nhà với kích thước 10x17m đẹp như thế này. 3 phòng ngủ được đặt ở vị trí khuyết góc của chữ L, còn lại là không gian rộng thoáng của phòng khách và phòng bếp ăn. Cách đặt vị trí 3 phòng ngủ ở đây cũng rất thuyết phục, tiện lợi cho việc di chuyển và đi lại trong không gian nội thất của ngôi nhà cấp 4 3 phòng ngủ 1 phòng thờ đẹp.
Mẫu 3: Hình ảnh 7 mẫu thiết kế nhà cấp 4 3 phòng ngủ 1 phòng thờ mái thái
Thông tin về mẫu thiết kế nhà cấp 4 đẹp có 3 phòng ngủ mái thái:
1: Chủ đầu tư: Ông Phạm Dương Minh
2: Địa điểm xây dựng: Thanh Hóa
3: Mặt tiền: 13m
4: Chiều sâu: 11m
5: Diện tích: 130m2

Hình ảnh phối cảnh: Mẫu thiết kế nhà cấp 4 3 phòng ngủ 1 phòng thờ mái ngói đẹp
Nhà cấp 4 3 phòng ngủ mang lại cho người xem cảm nhận về sự hoành tráng và sang trọng. Đây thực sự là mẫu thiết kế nhà đẹp, hợp lý với những gia chủ mong muốn sở hữu ngôi nhà với diện tích 130m2 như thế này. Thường thì mái ngói thái là vật liệu chủ đạo được sử dụng trong 7 mẫu nhà cấp 4 3 phòng ngủ đẹp này. Bởi cũng như những thiết kế biệt thự 1 tầng 1 tum truyền thống, mái ngói mang lại cho ngôi nhà sự bền vững, chắc khỏe và vẻ đẹp của sự sang trọng cần thiết.

Mặt bằng công năng: Tổng hợp 7 mẫu nhà cấp 4 3 phòng ngủ 1 phòng thờ mái ngói đẹp
So với mẫu nhà cấp 4 hình vuông trên, thì ở đây, công năng sử dụng được bố trí khác biệt. Phòng khách được đặt ở vị trí ngoài và chính giữa ngôi nhà. Bên trong đó là phòng th. Còn 2 phòng ngủ được đặt ở 2 bên phòng khách, 1 phòng ngủ nhỏ đặt bên cạnh phòng thờ sang trọng. Mẫu thiết kế nhà 130m2 đặt không gian giao thông đi lại chủ yếu ở giữa nhà, tạo thành một đường thẳng thống nhất, phù hợp với thói quen đi lại của gia đình, nhưng đồng thời cũng giúp tiết kiệm diện tích của ngôi nhà.
Mẫu số 4 thiết kế nhà cấp 4 3 phòng ngủ 1 phòng thờ đẹp sang trọng
Thông tin về thiết kế:
1: Chủ đầu tư: Ông Vũ Đình Thu
2: Địa điểm xây dựng: Yên Lập- Phú Thọ
3: Mặt tiền: 24m
4: Chiều sâu: 12m
5: Diện tích: 200m2

Hình ảnh: Xây nhà cấp 4 3 phòng ngủ 1 phòng thờ đẹp kiểu vườn
Để xây nhà cấp 4 trên đất vườn rộng đẹp diện tích 200m2, thì yêu cầu về mặt thẩm mỹ là rất quan trọng, hình ảnh kiến trúc đẹp mắt, cộng với kiến trúc mái ngói thái đẹp, không gian thiên nhiên xung quanh mang lại cho không gian kiến trúc ngoại thất ngôi nhà sự thoải mái và sang trọng nhất.

Mặt bằng: mẫu nhà cấp 4 3 phòng ngủ 1 phòng thờ đẹp kiểu vườn
Bố trí công năng sử dụng một trong 7 mẫu nhà cấp 4 3 phòng ngủ ở nông thôn theo hình chữ U vô cùng đẹp và đẳng cấp. Hình dạng chữ U của ngôi nhà cho phép công trình nhà cấp 4 thể hiện được sự uy nghi, hoành tráng cho kiến trúc ngoại thất của công trình. Với mẫu nhà cấp 4 hình chữ U, bố trí 3 phòng ngủ được đặt ở vị trí hợp lý, phù hợp với kiến trúc và hình dạng của mẫu biet thu dep.
Mẫu 5: 7 mẫu thiết kế nhà cấp 4 3 phòng ngủ 1 phòng thờ đẹp ở Thái Nguyên
Thông tin về thiết kế:
1: Chủ đầu tư: Bà Đinh Thị Hòe
2: Địa điểm xây dựng: Thái Nguyên
3: Mặt tiền: 11m
4: Chiều sâu: 14m
5: Diện tích: 120m2

Phối cảnh: Mẫu nhà cấp 4 3 phòng ngủ 1 phòng thờ mái thái đẹp ở nông thôn
Bản vẽ thiết kế nhà cấp 4 mái thái có 3 phòng ngủ với kiến trúc sang trọng, mềm mại. Mẫu thiết kế với kiểu tân cổ điển đẹp, kiến trúc mềm mại, tỷ mỉ của mẫu nhà cấp 4 3 phòng ngủ này chắc chắn được nhiều sự yêu thích của chủ nhà. Tiết lộ đôi chút với bạn về thiết kế này, chủ đầu tư- cả gia đình chị Hòe thích mẫu thiết kế nhà là bởi vị trí của phòng khách, có cửa kính vòm cong mềm mại cho tổng thể khôn g gian nội thất của công trình nhà đẹp cấp 4 3 phòng ngủ đẹp.

Mặt bằng công năng: Mẫu nhà cấp 4 3 phòng ngủ 1 phòng thờ đẹp ở nông thôn
Mẫu 6: 7 mẫu thiết kế nhà cấp 4 3 phòng ngủ 1 phòng thờ sang trọng hiện đại
Thông tin về thiết kế:
1: Chủ đầu tư: Ông Nguyễn Tiến Dũng
2: Địa điểm xây dựng: Thanh Hóa
3: Mặt tiền: 18m
4: Chiều sâu: 10m
5: Diện tích: 140m2

Hình ảnh mẫu 6: 7 mẫu thiết kế nhà cấp 4 3 phòng ngủ 1 phòng thờ đẹp tại Thanh Hoá
Ngôi nhà cấp 4 3 phòng ngủ 1 phòng thờ của gia đình anh Dũng ở Thanh Hóa thực sự là một trong 7 mẫu nhà cấp 4 3 phòng ngủ gây được ấn tượng, bởi vẻ đẹp gần gũi từ ngoại thất, cách phối hợp màu sắc, chi tiết trang trí và kiến trúc mái đặc trưng trong thiết kế nhà cấp 4 đẹp. Phần đầu hồi mái được thiết kế rất chi tiết, tạo điểm nhấn về mặt hình khối kiến trúc cho tổng thể mẫu nhà cấp 4 đẹp.

Mặt bằng: Mẫu thiết kế nhà cấp 4 3 phòng ngủ 1 phòng thờ đẹp tại Thanh Hoá
3 phòng ngủ của mẫu thiết kế nhà cấp 4 đẹp được bố trí trên cùng 1 phía của ngôi nhà. Các khu vệ sinh trong mẫu thiết kế thể hiện được sự chỉn chu và hoàn thiện cho tổng thể mẫu nhà cấp 4 3 phòng ngủ 1 phòng thờ đẹp. Cách bố trí mặt bằng công năng sử dụng cũng cho phép chủ đầu tư thể hiện được những mong muốn về mặt kiến trúc và đáp ứng được nhu cầu sử dụng của các thành viên trong gia đình của mình.
Mẫu thứ 7: Mẫu thiết kế nhà cấp 4 3 phòng ngủ 1 phòng thờ đẹp mê ly
Thông tin về thiết kế:
1: Chủ đầu tư: Anh Phạm Văn Chính
2: Địa điểm xây dựng: Ninh Bình
3: Mặt tiền: 16.5m
4: Chiều sâu: 11.5m
5: Diện tích: 180m2

Hình ảnh: 7 mẫu nhà cấp 4 3 phòng ngủ 1 phòng thờ đẹp mái lệch sang trọng
Mẫu nhà 3 gian hiện đại trên đây khá phù hợp với vùng nông thôn Việt Nam, không gian kiến trúc ngoại thất của mẫu thiết kế nhà cấp 4 này mang lại cảm giác khác biệt trong 10 mẫunhà cấp 4 3 phòng ngủ 1 phòng thờ mà bạn đang theo dõi. Phần mái được thiết kế giật cấp, xếp chồng một cách ấn tượng tạo điểm nhấn. Thêm vào đó, thiết kế kiến trúc, màu sắc và các chi tiết ngoai thất design của mẫu nhà cấp 4 3 phòng ngủ 1 phòng thờ sự thoải mái và tự nhiên nhất có thể. Đây thực sự là chốn bình yên mà ai cũng muốn được trở về sau những ngày làm việc dài mệt mỏi.

Mặt bằng: Thiết kế mẫu nhà cấp 4 3 phòng ngủ 1 phòng thờ đẹp mái lệch sang trọng
Cách bố trí công năng sử dụng theo kiểu đối xứng như thế này khá phổ biến. Khi thiết kế và xây dựng, chủ đầu tư cần lưu ý đến những vấn đề về mặt vị trí cửa, cũng như diện tích sử dụng các phòng để đưa ra được cách sắp xếp công năng sử dụng tiện nghi nhất cho mẫu thiết kế nhà cấp 4 3 phòng ngủ 1 phòng thờ đẹp ở quê.
Trên đây là hình ảnh và công năng sử dụng của 7 mẫu thiết kế nhà cấp 4 3 phòng ngủ 1 phòng thờ đẹp ở nông thôn mà chúng tôi muốn đem đến cho khách hàng. Không gian ngoại thất, cách bố trí mặt bằng công năng sử dụng sao cho phù hợp với diện tích thực tế của từng ngôi nhà được thể hiện một cách hoàn thiện nhất trong từng hồ sơ thiết kế của chúng tôi! Để giải đáp những thắc mắc trong xây dựng mẫu thiết kế nhà cấp 4 3 phòng ngủ 1 phòng thờ đẹp này và mọi yêu cầu tư vấn thiết kế khác, bạn có thể liên hệ trực tiếp với kiến trúc sư để được giải đáp mọi thắc mắc một cách tận tình, chu đáo nhất. Bên cạnh đó bạn có thể tham khảo thêm những thiết kế mẫu nhà vuông 3 phòng ngủ của chúng tôi tại đây
Liên hệ tư vấn thiết kế Hotline: 0988 030 680








