Xã hội càng phát triển, nhu cầu xây dựng nhà ở của mọi người lại càng nâng cao. Nhà không chỉ phải đẹp như một mẫu biệt thự mà còn phải tiện nghi, đồng thời phù hợp với kinh phí của gia chủ. Các nhu cầu về nhà ở có tầng hầm, nhà ở có gác lửng cũng chính vì lí do này mà ngày càng trở nên phổ biến hơn. Bởi kinh phí cho các thiết kế nhà này tiết kiệm hơn so với việc xây thêm một tầng nhà nữa. Nếu quý vị còn đang tìm kiếm một thiết kế bản vẽ nhà có tầng hầm đẹp, chi phí hợp lý, thì không có lí do gì không tiếp tục đọc bài viết này. Bởi trong bài viết này chúng tôi mang đến cho quý vị những thông tin về thiết kế nhà 1 tầng có tầng hầm đẹp mắt bà biết bao gia chủ phải ngưỡng mộ
Nhà ở có tầng hầm là kiểu nhà có 1 hoặc nhiều tầng được thiết kế xây dựng nằm hoàn hoàn hoặc một phần âm dưới đất và nằm dưới sàn tầng trệt. Ngày nay, với những mẫu nhà biệt thự 2 tầng trở lên, thiết kế bản vẽ nhà có tầng hầm chủ yếu được dùng với mục đích làm gara ô tô trong nhà, làm kho để đồ hoặc cũng có thể sử dụng như một tầng nhà ở bình thường. Nhà có tầng hầm luôn chú trọng tới các giải pháp về thông khí và ánh sáng cũng như kết cấu của tầng hầm để đảm bảo mẫu nhà ở cân đối, thoáng đãng và thoải mái. Có thể nói các bản vẽ nhà có tầng hầm 1 tầng nói riêng và các kiểu nhà khác nói chung thì có lẽ tầng hầm trở thành vị cứu tinh của các thiết kế này bởi sự gọn gàng và tiện lợi mà nó mang lại.
Bản vẽ nhà có tầng hầm – cứu tinh cho khu đất diện tích nhỏ dành cho nhà 1 tầng
Theo cùng với nhịp tăng trưởng của nền kinh tế chính là nhịp gia tăng của các phương tiện giao thông ngày càng hiện đại, trong đó các phương tiện giao thông cao cấp mang tính cá nhân hóa ngày càng được sử dụng nhiều hơn trong các gia đình Việt. Xuất phát từ thực tế đó, nhu cầu thiết kế bản vẽ nhà có tầng hầm 1 tầng có nơi để xe cũng ngày càng lớn. Tuy nhiên, trước khi xây nơi để xe mà đặc biệt là ô tô dành cho những ngôi nhà ở phố với diện tích đất không phải là lớn thì luôn là nỗi lo của các gia chủ. Nhưng giờ thì các gia chủ yên tâm nhé bởi đã có cứu tinh đến rồi đây. Đó là việc bố trí tầng hầm cho ngôi nhà của mình để tận dụng làm nơi để xe.
Bộ sưu tập các mẫu thiết kế bản vẽ nhà có tầng hầm 1, 2 tầng dưới đây chính là gợi ý lý tưởng cho những gia đình sở hữu khu đất nhỏ nhưng lại có nhu cầu tạo không gian để xe. Trong những mẫu bản vẽ thiết kế có tầng hầm mà chúng tôi tổng hợp trên đây, bản vẽ thiết kế nhà có tầng hầm được trình bày cụ thể trong mỗi bài viết bao gồm khu tầng trệt là không gian bố trí các phòng chức năng như bếp, phòng khách, phòng ngủ, phòng vệ sinh. Trong khi đó, không gian tầng hầm ở dưới được thiết kế tạo gara để các phương tiện giao thông như ô tô, xe máy…Không những thế, khu tầng hầm diện tích lớn còn có thể được tận dụng làm kho giữ đồ đạc và các vật dụng chưa dùng đến. Hơn nữa kiểu nhà có tầng hầm này đặc biệt phù hợp với hệ mái thái bởi có tầng hầm bên dưới ngôi nhà trông sẽ cao ráo hơn đẹp mắt so với các mẫu biệt thự mái bằng 1 tầng
Ngày nay, các mẫu bản vẽ nhà có tầng hầm kiểu nhà vườn được xem là giải pháp tối ưu cho những khu đất nhỏ bởi diện tích sử dụng được nhân đôi nhưng không ép buộc gia chủ phải mở rộng đất theo chiều ngang. Rõ ràng các thiết kế bản vẽ nhà có tầng hầm giúp gia chủ tiết kiệm được rất nhiều diện tích không gian mà vẫn đảm bảo kiến trúc mẫu nhà 1 tầng gọn nhẹ và tiện nghi. Không để quý vị chờ đợi lâu nữa chúng ta cùng đi khám phá một vài mẫu bản vẽ có tầng hầm ngay tại đây nhé.
Một vài bản vẽ nhà có tầng hầng 1 tầng đẹp mà bạn không nên bỏ qua
Đối với các mẫu bản vẽ nhà có tầng hầm 1 tầng nhỏ xinh, việc xây dựng thêm tầng hầm khiến cho căn nhà có thêm diện tích để sử dụng mà chi phí sử dụng không quá cao so với việc xây dựng nhà 2 tầng. Mỗi căn nhà cấp 4 lại có cách sử dụng tầng hầm riêng. Hơn nữa có những gia đình còn tận dụng tầng hầm để làm nơi sản xuất giúp tiết kiệm không gian đáng kể
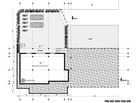
Thiết kế bản vẽ nhà có tầng hầm 1 tầng diện tích 120m2 hiện đại ở Ninh Bình BT113056
Ông Thắng ở Ninh Bình đã xây dựng thêm tầng hầm cho thiết kế bản vẽ nhà có tầng hầm 1 tầng hiện đại 120m2 của mình để sử dụng vào mục đích xây dựng xưởng làm thép. Sở hữu ô đất với diện tích 400m2, ông Thắng lựa chọn giải pháp xây tầng hầm để làm xưởng sản xuất thép thay vì xây xưởng sản xuất ngay cạnh nhà để đảm bảo có một không gian sân rộng rãi để ô tô có thể vào tận nhà chuyên trở, vận chuyển vật liệu, cũng như có được một không gian để xe thuận tiện cho thợ. Tầng hầm của bản vẽ thiết kế nhà có tầng hầm hiện đại 120m2 được thiết kế rộng hơn 20m2 so với tầng trệt, chính vì thế, không gian bên dưới này cung cấp được một diện tích rộng rãi và thoải mái hơn cho chủ nhà.

Thiết kế bản vẽ nhà có tầng hầm 1 tầng diện tích 120m2 tại Ninh Bình
Thiết kế nhà ở có tầng hầm của ông Thắng được thiết kế tầng hầm sâu 3.9m so với sàn tầng 1. Hầm có thiết kế cầu thang chuyên dụng để vận chuyển hàng hóa, phù hợp với nhu cầu sử dụng của gia đình. Ngoài vấn đề giải quyết để xe cho gia đình thì tầng hầm rộng còn là nơi để xe cho các nhân viên trong xưởng sản xuất của gia đình ông Thắng. Nhìn vào bản vẽ nhà có tầng hầm 1 tầng này bạn sẽ cảm nhận được ngôi nhà giống như những thiết kế biệt thự mini 1 tầng chứ không phải đồ sộ như các mẫu nhà vườn khác

Thiết kế bản vẽ nhà có tầng hầm 1 tầng diện tích 120m2 tại Ninh Bình - Mặt bằng tầng hầm
Theo lẽ thông thường, nếu bạn xây dựng một thiết kế nhà 2 tầng với diện tích 120m2/sàn (nghĩa là tổng diện tích sàn là 120m2, thì bạn sẽ mất tối thiểu 1.4 tỷ đồng để hoàn thiện căn nhà. Bên cạnh đó, nếu thiết kế nhà còn có thêm mái thái như mẫu nhà biệt thự 1 tầng 120m2 này thì việc xây dựng nhà 2 tầng sẽ đội thêm một khoảng chi phí làm mái nữa vào khoảng 300 triệu đồng. Tuy nhiên, ở thiết kế bản vẽ nhà có tầng hầm kiểu nhà 1 tầng hiện đại này, chi phí bạn phải bỏ ra chỉ ở mức 1 tỷ đồng. Vậy là bạn đã tiết kiệm 400 triệu đồng cho công trình của mình mà thiết kế nhà ở vẫn có công năng hoàn chỉnh, tiện nghi với 1 phòng khách, 3 phòng ngủ, 2 phòng vệ sinh, 1 phòng bếp ăn, đủ sử dụng cho gia đình có 4 tới 5 thành viên. Thiết kế bản vẽ nhà có tầng hầm của ông Thắng có ngoại thất bắt mắt, sang trọng, đặc biệt là phần mái được làm rất tỉ mỉ, công phu, mang tới vẻ đẹp đầy cuốn hút cho ngôi nhà.Bởi mặc dù nhìn thì tưởng chừng như 2 tầng nhưng tầng hầm không phân chia công năng nên chi phí xây và sử dụng vật liệu cũng sẽ giảm bớt nên quý vị hoàn toàn yên tâm xây mẫu nhà theo bản vẽ cad nhà có tầng hầm này nhé
Thiết kế bản vẽ nhà có tầng hầm 1 tầng ở Hưng Yên 3 phòng ngủ diện tích 100m2
Đối với một số gia đình có nền đất xây nhà thấp hơn so với mặt đường, giải pháp xây dựng tầng hầm hoặc tầng bán hầm cho nhà ở sẽ là khả thi và tiết kiệm chi phí nhất. Về căn bản, nhà có tầng bán hầm thì tầng hầm sẽ không âm hoàn toàn dưới mặt đất. Ưu điểm của các thiết kế nhà có tầng bán hầm chính là không gian tầng hầm thoáng đãng, không bị bí bách, chi phí chống thấm cho tầng hầm giảm, có thể sử dụng như một tầng nhà bình thường. Nhà có tầng bán hầm còn có ưu điểm là khiến cho tầng 1 của ngôi nhà được tôn cao lên, làm căn nhà sang trọng hơn, đẳng cấp hơn hẳn so với một mẫu bản vẽ nhà có tầng hầm mới thông thường. Tất cả những ưu điểm của một thiết kế nhà ở có tầng hầm vừa kể trên, đều quy tụ trong mẫu nhà 1 tầng có tầng bán hầm siêu sang trọng với diện tích 100m2 của anh Lũy ở Văn Giang, Hưng Yên.

Thiết kế bản vẽ nhà có tầng hầm 1 tầng 3 phòng ngủ tại Hưng Yên
Thiết kế bản vẽ nhà có tầng hầm của ngôi nhà 1 tầng 100m2 có chiều cao 2.5m, trong đó 2m nổi trên mặt đất còn 0.5m âm đất. Vì chiều cao hạn chế nên kiến trúc sư rất chú tâm tới việc thiết kế nội thất để giúp giảm các hạn chế của việc trần nhà bị thấp. Thiết kế bản vẽ kết cấu nhà có tầng hầm hướng gara quay ra mặt tiền để chủ nhà tiện lấy xe ra vào nhà. Bên cạnh đó, tại tầng hầm cung cấp cho gia chủ 1 phòng ngủ, 1 phòng bếp ăn và 1 phòng vệ sinh. Khu vực này có bố trí cửa phụ ra trực tiếp hồ bơi và cầu thang thông lên tầng 1 của mẫu nhà cấp 4 mái thái. Có thể thấy, cách sắp xếp và bố trí của kiến trúc sư khiến cho việc đi lại trong ngôi nhà có tầng hầm 100m2 này khá thuận lợi.

Thiết kế bản vẽ nhà có tầng hầm 1 tầng 3 phòng ngủ tại Hưng Yên - Mặt bằng tầng hầm
Như đã nói ở trên, kinh phí xây dựng một căn nhà có tầng hầm thường thấp hơn so với kinh phí xây dựng một mẫu nhà 2 tầng 3 mặt tiền có cùng kích thước, do bạn giảm bớt được chi phí trang trí ngoại thất, cũng như chi phí cho các hạng mục hoàn thiện rườm rà khác. Mẫu nhà có tầng bán hầm của anh Lũy có kinh phí đầu tư khoảng 800 đến 900 triệu đồng. Xây dựng bản vẽ nhà có tầng hầm 1 tầng, kích thước 8x14m mà công năng sử dụng như một thiết kế nhà 2 tầng 3 phòng ngủ chỉ với khoảng kinh phí chưa tới 1 tỷ đồng thì đây chính xác là một mẫu biệt thự cấp 4 đáng xây cho các gia đình. Tầng 1 của thiết kế nhà có tầng bán hầm 1 tầng 3 phòng ngủ có 1 phòng khách, 1 phòng thờ và 2 phòng ngủ với kích thước thoải mái và rộng rãi
Mẫu thiết kế bản vẽ nhà có tầng hầm 1 tầng phong cách tân cổ điển đẹp
Theo các thiết kế bản vẽ nhà có tầng hầm 1 tầng trên, tầng hầm là khu vực có kích thước tương đương hoặc lớn hơn so với tầng trệt. Tuy nhiên, ở mẫu biệt thự có tầng hầm tân cổ điển này, tầng hầm chỉ có là một khu vực nhỏ để phục vụ cho mục đích làm nhà kho của chủ nhà.
Thiết kế bản vẽ nhà có tầng hầm 1 tầng phong cách tân cổ điển đẹp
Nói sơ qua về thiết kế bản vẽ nhà có tầng hầm 1 tầng mái thái được xây dựng trên khu đất gần 3600m2 với kích thước 23x14m ở Vĩnh An, Vĩnh Cửu, Đồng Nai cho gia đình ông Trần Ngọc Hải. Ấn tượng đầu tiên của người ngoài khi nhìn vào căn nhà 1 tầng 250m2 này chính là vẻ đẹp chắc chắn, khỏe khoắn những cũng rất mỹ miều với những đường phào chỉ trang trí tinh tế, tạo sự mềm mại và cổ điển. Hệ thống mái phức tạp với tổng diện tích mái lên tới 350m2 tạo lập một vẻ uy nghi và đẳng cấp như ở những mẫu lâu đài đẹp dinh thự cao cấp Công năng bên trong ngôi nhà diện tích 250m2 này cũng rất đa dạng, gồm 1 phòng khách, 1 phòng bếp ăn, 1 phòng thờ, 4 phòng ngủ, 1 gara ô tô... Thiết kế nhà ở có tầng hầm này được đánh giá là một trong những mẫu biệt thự 1 tầng cao cấp đáng xây dựng hơn cả các mẫu nhà 2 tầng.

Thiết kế bản vẽ nhà có tầng hầm 1 tầng phong cách tân cổ điển đẹp - Mặt bằng tầng hầm
Về phần tầng hầm, tầng hầm của ngôi nhà được xây dựng ở khu vực bên phải của ngôi nhà. Hầm có diện tích 60m2, âm 80% dưới mặt đất, độ sâu 3m. Căn hầm của biệt thự 250m2 tân cổ điển được thiết kế hệ thống thoát nước khá chu đáo để đề phòng ngập nước khi trời mưa. Khu vực tầng hầm của mẫu nhà biệt thự 1 tầng 4 phòng ngủ được tận dụng làm hầm để xe khi gia đình có đông khách, và tận dụng 1 phần diện tích để làm nhà kho.
Xây nhà theo bản vẽ nhà có tầng hầm1 tầng 100m2 ở Phú Thọ đẹp mê ly
Ông Trần Trọng Vệ ở Phú Thọ lại có được một mẫu thiết kế bản vẽ nhà có tầng hầm giá siêu rẻ, chỉ với 800 triệu đồng, ngang tầm giá tiền với một số mẫu nhà 1 tầng không có tầng hầm với diện tích tương đương. Ngôi nhà 1 tầng 2 phòng ngủ với kích thước 10.5x13m nằm cân đối trên khu đất có diện tích 720m2, tạo thành một tổng thể nhà cấp 4 1 tầng ở nông thôn với sân vườn tươi mát và xinh xắn.

Thiết kế bản vẽ nhà có tầng hầm 1 tầng diện tích 100m2
Hình ảnh xây dựng thực tế của mẫu nhà cấp 4 2 phòng ngủ 1 phòng thờ rất sát so với mẫu thiết kế nhà, thậm chí có phần còn đẹp hơn. Căn nhà 1 tầng có tầng hầm này rất thích hợp làm nhà ở cho các cặp vợ chồng trung tuổi có con cái làm ăn xa hoặc cũng có thể làm nhà ở cho các cặp vợ chồng trẻ. Công năng nhà ở khá đơn giản, chỉ gồm 1 phòng khách kiêm phòng ăn rộng mà thoáng, 1 phòng bếp nhỏ, 1 phòng thờ và 2 phòng ngủ giống như những kiểu nhà cấp 4 truyền thống ở Việt Nam. Tuy nhiên, chính sự thiết kế công năng đơn giản này giúp cho ông Vệ xây nhà cấp 4 có tầng hầm mà chỉ mất có 800 triệu.

Thiết kế bản vẽ nhà có tầng hầm 1 tầng diện tích 100m2 - Mặt bằng tầng hầm
Thiết kế bản vẽ nhà có tầng hầm của mẫu nhà cấp 4 2 phòng ngủ khá đơn giản. Diện tích tầng hầm là 64m2, có thể chia ra làm 2 phòng tách biệt, một phòng làm nhà xe, một phòng làm kho chứa đồ, tùy vào nhu cầu của gia chủ. Hầm được đặt ở sau nhà và âm hoàn toàn, do đó, nhìn từ phía mặt tiền nhiều người không thể biết được đây là một căn nhà có tầng hầm.
Nếu quý vị yêu thích thiết kế nhà này nhưng không muốn xây thêm tầng hầm, hoàn toàn có thể thay đổi công năng của mẫu nhà cho phù hợp hơn. Đây cũng là ưu điểm của tất cả những mẫu nhà biệt thự thiết kế tại Angcovat, ngoại thất đẹp bắt mắt nhưng đồng thời công năng lại có thể thay đổi tùy vào nhu cầu sử dụng của mỗi gia đình.

Thiết kế bản vẽ nhà có tầng hầm 1 tầng diện tích 120m2 3 phòng ngủ
Phối cảnh mẫu thiết kếbản vẽ nhà có tầng hầm 1 tầng mà chúng tôi giới thiệu đến gia đình anh Nguyễn Trọng Thắng là một mẫu nhà 1 tầng mái thái với phong cách kiến trúc truyền thống. Hình ảnh nhà cấp 4 hình vuông với diện tích sử dụng tương đương và vẻ đẹp kiến trúc tương đồng cũng sẽ là một thiết kế nhà đẹp phù hợp với những gia chủ sở hữu mảnh đất mặt tiền khoảng 10 đến 12m với diện tích sử dụng nhà cho phép từ 120- dến 140m2.

Thiết kế bản vẽ nhà có tầng hầm 1 tầng diện tích 120m2 3 phòng ngủ - Mặt bằng tầng 1
Ngoài ra, mặt bằng tầng hầm của bản vẽ nhà có tầng hầm 1 tầng diện tích 120m2 3 phòng ngủ đẹp được thiết kế thêm 1 phòng ngủ sang trọng, 1 phòng bếp + ăn để các thành viên được quây quần bên nhau thưởng thức những món ăn ngon và 1 gara ô tô tiện dụng. Từ tầng hầm, gia chủ có thể đi theo cầu thang phụ phía sau để lên tầng 1 của căn nhà.
Mặc dù căn biệt thự 1 tầng ở 10x12m này không được thiết trên khuôn viên rộng, nhưng bù lại các không gian sinh hoạt được bố trí vừa phải và liên hệ chặt chẽ với nhau tạo nên sự kết hợp hài hòa cho không gian, góp phần mang đến sự ấm cúng, gần gũi cho cả gia đình.
Có thể thấy, các thiết kế nhà cấp 4 có tầng hầm mang tới sự tiện nghi cũng như ưu điểm về kinh tế cao, mang lại nhiều sự tiện ích cho gia chủ. Ngoại thất của ngôi nhà cấp 4 có tầng hầm cũng không bị chênh phô quá nhiều, khiến cho khối nhà trở nên thô kệch, thiếu cân đối. Các thiết kế nhà cấp 4 có tầng hầm này thích hợp với các gia đình ở quê, có đất vườn rộng rãi. Với các gia đình ở thành phố muốn xây nhà có tầng hầm thì có thể tham khảo các mẫu nhà 2 tầng có tầng hầm, mẫu nhà 3 tầng đẹp có tầng hầm.
Thiết kế bản vẽ nhà có tầng hầm với mẫu nhà 2 tầng có tầng hầm
Mẫu bản vẽ nhà có tầng hầm 2 tầng diện tích 90m2 với 3 phòng ngủ ở Thanh Hóa
Thiết kế bản vẽ nhà có tầng hầm 2 tầng hết sức bắt mắt này thuộc quyền sở hữu của ông Lê Đức Minh ở Xã Cẩm Sơn- Huyện Cẩm Thủy- Tỉnh Thanh Hóa. Căn nhà này vừa được hoàn thiện thiết kế vào cuối tháng 7/2017 và dự kiến xây dựng vào đầu năm 2018 với kinh phí đầu tư dự kiến khoảng 1.4 tỷ đồng. Về cơ bản, mức kinh phí này với mẫu nhà biệt thự 2 tầng mái thái tân cổ điển có hầm rất hợp lý. Bởi kinh phí xây nhà mái thái, nhà phong cách tân cổ bao giờ cũng cao hơn so với kinh phí xây nhà mái bằng và nhà theo phong cách hiện đại.

Thiết kế bản vẽ nhà có tầng hầm 2 tầng diện tích 90m2
Mỗi thiết kế bản vẽ nhà có tầng hầm đều sử dụng tầng hầm với một mục đích riêng. Ở đây, ông Minh muốn sử dụng tầng hầm để làm gara ô tô, đồng thời, tầng hầm còn được sử dụng như kho chứa đồ hay dùng vào các mục đích khác. Do đó, nó được thiết kế là một tầng âm, phẳng và thoáng, có cửa sau. Việc thiết kế cửa sau vừa giúp thuận tiện đi lại vừa thông khí, tránh đọng khí benzene có từ ô tô trong hầm, gây ảnh hưởng tới không khí của toàn ngôi nhà.

Thiết kế bản vẽ nhà có tầng hầm 2 tầng diện tích 90m2 - Mặt bằng tầng hầm
Mẫu bản vẽ nhà có tầng hầm 2 tầng này được xây dựng trên một khu đất méo, nhưng có thể thấy kiến trúc sư đã khiến cho sân vườn, cảnh quan của ngôi nhà khá hài hòa với hình dạng ô đất. Thiết kế nhà ở có tầng hầm của ông Minh được xem như giải pháp xây nhà trên đất xéo cho các gia đình. Căn nhà này cũng có thể biến tấu thành nhà mặt phố cho các gia đình, đặc biệt là những gia đình có nền đất xây nhà thấp hơn mặt đường.
Nếu thiết kế mẫu nhà 2 tầng 3 phòng ngủ có tầng hầm vẫn chưa đủ đáp ứng nhu cầu của gia đình bạn, thì có lẽ các thiết kế nhà 3 tầng có tầng hầm đẹp và sang trọng dưới đây sẽ đủ để bạn cảm thấy hài lòng.
Có thể nói nhìn vào những bản vẽ nhà có tầng hầm 1 và 2 tầng này bạn có thể thấy sự tinh tế gọn gàng dành cho các ngôi nhà này. Và kinh phí để sở hữu 1 thiết kế bản vẽ nhà có tầng hầm này dao động từ 800 triệu trở lên, không quá đắt phải không nào quý vị. Chưa kể với những bản vẽ thiết kế nhà có tầng hầm này bạn sẽ ăn gian về chiều cao nhà nếu như là nhà 1 tầng thì sẽ nhìn như nhà 2 tầng và nhà 2 tầng có tầng hầm thì nhìn như nhà 3 tầng vậy. Thế tại sao bạn không nhanh tay sở hữu thiết kế tuyệt vời như này ngay hôm nay. Tham khảo thêm thiết kế nhà mái marsand để biết thêm nhiều phong cách khác nhau nhé
Liên hệ để được tư vấn tốt nhất Hotline: 0988 030 680








