Để thiết kế một ngôi nhà không hề đơn giản mà phải mất nhiều thời gian. Tùy thuộc và sở thích của gia chủ có thể chọn những kiểu mẫu thiết kế nhà khác nhau từ truyền thống đơn giản đến hiện đại sang trọng. Nếu cảm thấy nhàm chán với không gian đơn điệu của kiên trúc nhà ống truyền thống, bạn có thể chọn kiểu thiết kế phá cách, sáng tạo của kiểu nhà lệch tầng. Đây là kiểu thiết kế nhà đang ngày càng thịnh hành ở các đô thị lớn ở nước ta hiện nay. Với bất kỳ mẫu nhà nào cũng mang những ưu điểm và tồn tại những khuyết điểm nhất định. Công việc của kiến trúc sư là đưa ra những sáng tạo trong thiết kế để phát huy tối đa ưu điểm và giảm thiếu ít nhất những hạn chế. Hôm nay chúng tôi xin chia sẻ về nguyên tắc thiết kế nhà lệch tầng chuẩn vừa đẹp vừa thoải mái.
Xem thêm: Nhà 1 tầng đơn giản
1. Nhà lệch tầng là gì? Nguyên tắc thiết kế nhà lệch tầng
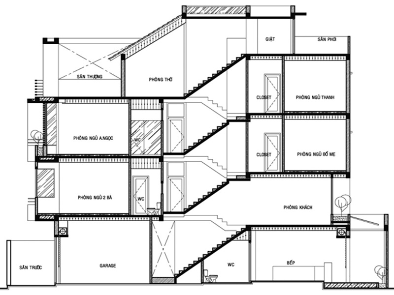
Nhà lệch tầng là kiểu nhà có diện tích chiều sâu hạn chế, mặt sàn giữa các sàn sẽ không thẳng, vuông góc cố định mà có sự chênh lệch nhất định theo chủ đích của kiến trúc sư. Nhà kiểu lệch tầng thường xây cầu thang ở giữa nhà, nếu nhìn từ trên xuống, ta sẽ có cảm nhận như một cái giếng rộng, có ánh sáng từ bên ngoài chiếu vào, tạo cảm giác mới mẻ và hiện đại cho ngôi nhà
Ưu điểm của nhà lệch tầng
- Tạo không gian thoáng đãng: Độ cao trần của nhà lệch tầng có thể được tùy chon không phải cố định như nhà thẳng tầng, vì thế sẽ giảm thiểu các không gian không cần thiết và gia chủ có thể kết hợp các khoảng trống này để xây thêm lan can, sân thượng, xây gác lửng ở phía trên, phía dưới có thể tận dụng khoảng trống để làm nơi đậu xe, nhà kho, nhà vệ sinh…Các tấm sàn không kéo dài suốt mà thay đổi và tạo những ống hút gió xiên giữa tầng này với tầng kia.

- Tạo ra nhiều tầm nhìn đẹp: Đặc điểm nổi bật của một nhà lệch tầng đẹp là tạo ra một tầm nhìn đa dạng, phong phú với nhiều góc cạnh, dù đứng ở ví trí nào tại cầu thang cũng có thể cảm nhận được một ngôi nhà với nhiều không gian mới lạ. tầm nhìn giữa các tầng đa dạng, phong phú, khả năng quan sát và đi lại thoải mái, không nhàm chán. Cầu thang sau khoảng chục bậc lại có thể đi vào được một tầng. Do đó, đa số các ngôi nhà lệch tầng đều có chung cảm giác "là lạ", tạo cảm giác căn nhà như có nhiều không gian, nhiều tầng và nhiều sự hấp dẫn.

- Phá cách, hiện đại và gần gũi thiên nhiên: Cách thiết kế nhà lệch tầng sẽ tạo cảm giác gần gũi với thiên nhiên hơn vì đón được nắng, gió từ các hướng len lõi vào cùng với qua lan can trồng đầy hoa, tạo màu sắc xanh mát cho ngôi nhà. Thực tế nhà lệch tầng và nhà thẳng tầng chỉ khác biệt về độ cao giữa các không gian, tấm sàn trong ngôi nhà nhưng xây nhà lệch tầng là xu hướng hiện đại, phá cách hiện nay, giúp cho cuộc sống của bạn trở nên tươi mới, hiện đại hơn.
- Giải quyết được vấn đề diện tích hẹp: Đối với các ngôi nhà có diện tích chật hẹp thì việc lựa chọn xây nhà lệch tầng là tối ưu vì bạn có thể thay đổi các cao độ xen kẽ với các góc lệch được tính toán tỷ mỹ giúp tạo ra nhiều không gian hơn, từ đó mang lại cảm giác rộng hơn cho ngôi nhà.
Nhược điểm của nhà lệch tầng
- Cấu trúc rườm rà, đòi hỏi yêu cầu kỹ thuật cao: Nhà lệch tầng bị hạn chế xây dựng trong một số khu đất theo một kiến trúc nhất định.Ngoài ra, bất tiện của nhà lệch tầng là vị trí cầu thang thường gần với với cửa ra vào, tạo cảm giác bất tiện, cũng như là nguy hiểm cho người già và trẻ nhỏ. Việc bất cập hay gặp là thiết kế toilet chung cho nhiều tầng, làm cho việc sử dụng nhà vệ sinh trở nên bất tiện và mất thời gian.Cầu thang chiếm vị trí lớn trong thiết kế của nhà lệch tầng vì thế làm khó khăn, giới hạn trong việc đi lại trong nhà.

- Thời gian và chi phí xây dựng cao hơn: Để có nhà lệch tầng đẹp thì cần có sự tính toán kỹ lưỡng về thiết kế, phải có bản vẽ chi tiết cho từng tầng, từng khu vực. Cùng với đó,việc thi công cũng khó khăn và mất nhiều thời gian hơn, vì vậy chi phí xây nhà kiểu này thường cao hơn nhà thẳng tầng. Bên cạnh chi phí về xây dựng thì chi phí về nguyên vật liệu cũng cao hơn nếu như chọn xây nhà lệch tầng.
- Diện tích đất nào phù hợp để xây nhà lệch tầng: Không phải khu vực nào cũng thích hợp thi công xây dựng nhà lệch tầng, khu vực thích hợp là những nơi có phố hẹp ngang và có chiều sâu, không thích hợp với những mảnh đất ngắn, vuông…
2. Nguyên tắc thiết kế nhà lệch tầng sao cho đẹp
Bản chất nhà lệch tầng là có độ chênh cốt giữa các tầng. Dựa vào tính chất sử dụng, số lượng người trong gia đình để chọn một lối kiến trúc phù hợp nhằm đem lại cảm giác thoải mái, tiện nghi cho không gian. Trong trường hợp nhà hẹp và dài, kết cấu lệch tầng sẽ hợp lý, có thể kết hợp với không gian cầu thang để thông thoáng chiếu sáng cho phần giữa nhà. Ngược lại, với dạng mặt bằng ngắn hoặc gần vuông, làm thẳng tầng hoặc áp dụng kiểu cầu thang thay đổi vị trí sẽ có tiện lợi về diện tích.

Có hai dạng thiết kế nhà lệch tầng: Dạng thứ nhất phần sau bếp và phần nhà ăn sẽ được nâng lên vài bậc để phân chia không gian với phần trước nhà. Từ độ cao của phần sau nhà, thiết kế cầu thang đi lên tầng theo kiểu đan qua lại với tầng trên. Với cách này, mặt bằng nền của các tầng sẽ bị lệch nhau. Dạng thứ 2, kiến trúc sư sẽ nâng phần sau lên vài bậc, tạo ra một sàn lửng có cầu thang đi lên xem như tầng lửng. Như vậy, phần sau nhà có độ cao chỉ khoảng 2.5m có thể dùng làm nhà xe, nhà kho hoặc nhà vệ sinh. Tầng lửng gia chủ có thể tận dụng làm bếp ăn. Dạng thiết kế này có hạn chế là khó nới rộng được không gian khi cần thiết.
Tham khảo thêm: Các bản thiết kế biệt thự mini 1 tầng

- Khi xây nhà lệch tầng, ngoài cách tính toán khoa học cho từng không gian, gia chủ cũng nên lưu ý đến tính chất và yêu cầu sử dụng, số lượng thành viên trong gia đình, giá trị thẩm mỹ có hài hòa với cảnh quan xung quanh…để có giải pháp thiết kế linh hoạt và hợp lý nhất.
- Lưu ý cấu trúc thiết kế nhà lệch tầng: Do thiết kế nhà lệch tầng có cấu trúc rườm rà, nên bị hạn chế trong một số kiến trúc. Vì vậy trong xây dựng cần lưu ý khi thiết kế nhà các vị trí cầu thang, phòng vệ sinh…Vị trí cầu thang thường không nên để gần với với cửa ra vào, tạo cảm giác bất tiện. Điều này gây nguy hiểm cho người già và trẻ nhỏ. Việc bất cập hay gặp là thiết kế vệ sinh chung cho nhiều tầng. Làm cho việc sử dụng nhà vệ sinh trở nên bất tiện và mất thời gian.Cầu thang chiếm vị trí lớn trong thiết kế của nhà lệch tầng. Vì thế làm khó khăn, giới hạn trong việc đi lại trong nhà.

- Khi thiết kế nhà lệch tầng thì thời gian và chi phí xây dựng cao hơn: Để có nhà lệch tầng đẹp thì cần có sự tính toán kỹ lưỡng về thiết kế. Phải có bản vẽ chi tiết cho từng tầng, từng khu vực. Cùng với đó,việc thi công cũng khó khăn và mất nhiều thời gian hơn. Vì vậy chi phí xây dựng và thiết kế nhà kiểu này thường cao hơn nhà thẳng tầng.Bên cạnh chi phí về xây dựng thì chi phí về nguyên vật liệu cũng cao hơn nếu như chọn xây nhà lệch tầng.
- Việc giới hạn trong thiết kế và khó khăn về hệ thống thoát nước: Nguyên tắc thiết kế nhà lệch tầng thì không phải khu vực, diện tích nào cũng xây dựng được. Thiết kế kiểu nhà lệch tầng sẽ phù hợp với những nơi có phố hẹp ngang, sâu. Không thích hợp với những mảnh đất ngắn, vuông. Do thiết kế lộ thiên nên nhà lệch tầng cần phải có lắp đạt thêm hệ thống thoát. Và xử lý nước để chống ẩm, thấm.

- Khi thiết kế nhà lệch tầng phải xác định rõ khu vực chức năng trong nhà: Việc này nếu gia chủ chưa định hướng được rõ ràng về những ý tưởng thì kiến trúc sư của công ty sẽ xử lý sao cho vừa phù hợp với sở thích vừa hợp lý với mảnh đất. Tuy nhiên, một trường hợp dễ xảy ra là sự “đối đầu” giữa thầy phong thuỷ và kiến trúc sư trong việc bố trí các công năng sinh hoạt chính như nội thất phòng bếp, nội thất phòng khách, phòng ngủ.. và đặc biệt là cửa. Cái khó là khi thiết kế nhà ống lệch tầng một mặt thoáng thì thường không có nhiều sự lựa chọn trong việc bố trí và thay đổi vị trí một số phần của ngôi nhà đẹp. Một số chủ nhà khi có bản vẽ bắt đầu thêm bớt, thay đổi phòng, tận dụng đất… rồi tự nhốt mình vào cái hộp kín bưng. Chủ nhà đòi sao chép lại một mặt tiền nhà đã trông thấy mà quên đi sự kết hợp giữa bên trong và ngoài, dẫn đến sự khập khiễng. Chính vì thế khi thiết kế thi công nhà ống thì chủ nhà tham gia vào thiết kế là đương nhiên, phải trao đổi với kiến trúc sư về sở thích, thói quen sinh hoạt, công năng của ngôi nhà. Tuy nhiên khi đã đề bạt mong muốn với kiến trúc sư thì gia chủ đã tính toán và suy nghĩ kỹ lưỡng chắc chắn để tránh sự thay đổi quá nhiều trong thiết kế thi công nhà phố làm mất thời gian của hai bên.
Xem thêm: Kiểu nhà cấp 4 mái bằng

Xem thêm: Các mẫu nhà cấp 4 mini
3. Nguyên tắc thiết kế nhà lệch tầng về mặt phong thủy
Để biết một ngôi nhà lệch tầng có phong thủy tốt hay xấu cũng cần xem xét theo hoàn cảnh cụ thể. Với những ngôi nhà hẹp nhưng dài thì thiết kế lệch tầng kết hợp cầu thang - giếng trời sẽ giúp không gian có thêm sinh khí vì được chiếu sáng đầy đủ ở khu vực giữa nhà, tạo sự cân bằng âm dương do giảm độ sâu của hành lang, không bị kéo dài hun hút như nhà ống. Tuy nhiên với những ngôi nhà có mặt bằng ngắn hoặc vuông thì lại không nên làm nhà lệch tầng bởi làm thẳng tầng sẽ đơn giản và tiện lợi hơn. Điều này trong phong thủy gọi là đắc dụng, tức là theo dịch lý: làm nhà để tận dụng hợp lý khoảng trống chứ không phải là chạy theo hình thức. Bên cạnh đó, dù có lệch một chút về cao độ mà không gian ngôi nhà thoáng và đẹp hơn thì về mặt phong thủy là rất tốt. Chẳng hạn, bố trí phòng khách lệch cao độ với chỗ để xe, bếp phía sau làm cao hơn phòng khách vài bậc hoặc nhà có tầng lửng để sinh hoạt...có ưu điểm là tạo ra không gian cao và thoáng, dễ quan sát trước sau. Tuy nhiên, cũng cần lưu ý với các gia đình có người cao tuổi thì nên bố trí sinh hoạt ở khu vực có cao độ ổn định, không nên để cao độ quá chênh lệch gây bất tiện và thiếu an toàn.

Một ngôi nhà được cho là tốt về mặt phong thủy khi đảm bảo được những yếu tố then chốt như mục đích sử dụng, bố trí cầu thang hợp lý, thông thoáng và chiếu sáng tự nhiên tốt. Theo những điều kiêng kỵ mẫu nhà phố lệch tầng các chuyên gia phong thủy khuyên gia chủ nên tránh làm cầu thang hướng thẳng ra cửa chính bởi vì nếu làm cầu thang thẳng ra cửa nhà sẽ bị hao tài tốn của. Không những vậy theo phong thủy cũng không nên để cầu thang đâm thẳng vào bếp hoặc nhà vệ sinh ở bất cứ tầng nào vì sẽ làm cho các nguồn năng lượng tiêu tán hết. Chính vì vậy khi làm nhà, các kiến trúc sư hạn chế tối đa việc bố trí cầu thang ở giữa nhà và tránh bố trí cầu thang ở cuối nhà. Bố trí cầu thang ở vị trí tốt nhất là ở đầu hoặc có thể ở đầu phòng khách.

4. Thiết kế cầu thang cho nhà lệch tầng
Như trên đã nói, với nhà ống lệch tầng thì cũng vấp phải một số nhược điểm cơ bản như cấu trúc rườm rà, đòi hỏi độ kỹ thuật cao, thiết kế cầu thang cho nhà ống cũng đòi hỏi phải chuẩn xác và tỉ mỉ, từ đó kéo theo thời gian và chi phí xây dựng cao. Việc bố trí và thiết kế cầu thang cho nhà ống hẹp lệch tầng là rất quan trọng sao cho vừa đạt yêu cầu về thẩm mĩ, kiến trúc nhà mà phải tận dụng được hết công năng của nó. Với những kiểu nhà lệch tầng như vậy thì việc bố trí cầu thang gần khu vực giữa nhà là thuận lợi và tiết kiệm không gian nhất, bạn có thể tận dụng phía dưới gầm thang để làm một hệ thống toilet chung cho phòng khách hoặc nếu có tính thẩm mĩ cao bạn cũng có thể trang trí cho nơi này thành một điểm nhấn ấn tượng của không gian nhà mình.

Một số mẫu cầu thang đẹp cho nhà ống lệch tầng
Với việc bố trí cầu thang ở khu vực giữa nhà việc lựa chọn những mẫu cầu thang cho phù hợp cũng rất quan trọng. Bạn có thể lựa chọn một trong vài mẫu thiết kế cầu thang cho nhà ống lệch tầng mà một số kiến trúc sư đưa ra:
– Sử dụng mẫu cầu thang 2 vế theo phương dọc của nhà, để vế thang đầu tiên xoay vuông góc với chiều dài của căn nhà hoặc sử dụng những vách ngăn nhẹ có điểm nhấn để tránh chân thang hướng trực tiếp ra cửa chính.

– Sử dụng mẫu cầu thang 3 vế được kết hợp độc đáo với giếng trời sẽ giúp cho không gian nhà bạn trở nên thông thoáng hơn, đón được nhiều ánh sáng trực tiếp từ thiên nhiên nhất.

– Sử dụng cầu thang tròn hoặc cầu thang xoắn ốc với việc tính toán kỹ cổ bậc, số bậc cũng là một giải pháp tối ưu trong việc thiết kế cầu thang cho nhà ống hẹp lệch tầng vì nó vừa có nét đẹp hiện đại, năng động mà không mất đi công năng sử dụng.
Trên đây là những chia sẻ của kiến trúc sư ANG vè nguyên tắc thiết kế nhà lệch tầng. Kiến trúc nhà lệch tầng có nhiều điểm khác biệt so với nhà ống thông thường. Vì vậy, đòi hỏi các kỹ sư phải có tay nghề cao, thiết kế bản vẽ chi tiết để đảm bảo tính kỹ thuật và an toàn sử dụng. Với nhiều năm kinh nghiệm trong lĩnh vực thiết kế nhà ở, với đội ngũ kiến trúc sư và kỹ sư thiết kế trẻ trung, kiến trúc chuyên môn sâu và nhiệt tình, ANG luôn tự tin mang đến cho quý khách những sản phẩm thiết kế mới nhất, đẹp nhất và chất lượng nhất. Mọi yêu cầu tư vấn xin vui long liên hệ hotline 0988 030680 để được trực tiếp tư vấn miễn phí.
Xem thêm: Các mẫu nhà cấp 4 đơn giản








