Bản vẽ thiết kế nhà được hiểu là việc phác thảo, thiết kế ngôi nhà về mặt kĩ thuật, thẩm mỹ lên giấy, giúp cho việc xây dựng nhà của đơn vị thi công được nhanh chóng và thuận tiện nhất. Vì thế mà không phải tự nhiên mà các gia chủ luôn quan tâm thiết kế mặt bằng hoàn chỉnh ưng ý trước khi bắt tay vào thi công xây dựng nhà. Nếu bạn mong muốn xây dựng cho gia đình mình mẫu nhà 2 tầng, thì những tư vấn thiết kế bản vẽ nhà 2 tầng 3 phòng ngủ của các KTS ANG dưới đây sẽ mang lại những gợi ý thú vị cho ngôi nhà hoàn hảo của bạn.
Nhu cầu sở hữu bản vẽ nhà 2 tầng 3 phòng ngủ đẹp của các gia chủ hiện nay
Một trong những mẫu nhà được các gia đình Việt đón nhận nhất hiện nay chính là mẫu nhà 2 tầng có 3 phòng ngủ tiện nghi và sang trọng. Vì thế việc xây dựng bản vẽ cho thiết kế này đặc biệt được quan tâm. Thêm nữa các chủ nhà đa phần là những người không có kinh nghiệm trong việc thiết kế và thi công nhà dân dụng. Việc hoạch định trước thiết kế thông qua bản vẽ nhà 2 tầng 3 phòng ngủ tiện nghi giúp gia chủ tính toán được chính xác hơn về thành phần nguyên vật liệu, thời gian thi công và chi phí đúng nhất… tránh được những sai sót không đáng có trong suốt quá trình thi công.
Tiếp đến, với mong muốn sở hữu 1 mẫu nhà với bố cục hoàn chỉnh và logic, nhu cầu sở hữu bản vẽ nhà 2 tầng 3 phòng ngủ với thiết kế nhà chi tiết để tạo nên sự liên kết giữa phòng ốc, không gian và hệ thống công năng sử dụng trong nhà được khoa học và hợp lý nhất. Đặc biệt vẫn đáp ứng được nhu cầu sinh hoạt cho các thành viên trong gia đình. Đây có lẽ yếu tố quan trọng nhất nhằm đáp ứng nhu cầu của các gia chủ khi mong muốn xây dựng bất kỳ 1 thiết kế nào. Bản vẽ là tiền đề cơ sở hình thành nên một kiến trúc nhà độc đáo và cân đối. Chúng cũng giúp gia chủ có thể hình dung trước được thiết kế nhà của mình sẽ ra sao, như thế nào khi ngôi nhà chưa được hoàn thiện.
Cuối cùng xây dựng bản vẽ nhà 2 tầng 3 phòng ngủ cũng giải quyết được nhu cầu sở hữu thiết kế nhà đẹp về thẩm mỹ hài hòa. Đảm bảo cần xứng về tỉ lệ kiến trúc, phong thủy hợp lý. Mang đến thiết kế nhà hoàn chỉnh sau thi công và tránh được những kiêng kỵ cho chủ nhà. Tất cả nhu cầu trên sẽ dễ dàng được giải quyết khi bạn sở hữu chi tiết bản vẽ thiết kế nhà 2 tầng 3 phòng ngủ đẹp. Có thể khẳng định bản vẽ kiến trúc là một phần quan trọng không thể thiếu nếu muốn có được một ngôi nhà đẹp và thu hút, đặc biệt cũng đảm bảo được thời gian thi công nhà nhanh chóng và hiệu quả nhất.
Thiết kế bản vẽ nhà 2 tầng 3 phòng ngủ gồm những gì?
Nghe về bản vẽ kiến trúc nhà đã nhiều, tuy nhiên chắc hẳn nhiều người cũng băn khoăn không biết. Vậy một bản vẽ nhà 2 tầng 3 phòng ngủ đẹp và đầy đủ sẽ bao gồm những gì. Cụ thể và chi tiết ra sao, hiểu và mong muốn đáp ứng nhu cầu đó, dưới đây là chi tiết một bộ hồ sơ bản vẽ kiến trúc đầy đủ được thiết kế bởi angcovat để bạn có thể hình dung rõ nhất khi xây dựng nhà cho mình. Một thiết kế bản vẽ tại Angcovat có từ 60 đến 200 trang A3, được thể hiện rất chi tiết đến hướng lát từng viên gạch cũng được các KTS bố trí tỉ mỉ để tạo điều kiện cho xây dựng. Và tùy vào từng thiết kế, diện tích và bố trí các phòng và độ giày bản vẽ nhà vì thế cũng có sự khác nhau. Hồ sơ thiết kế biệt thự 2 tầng đầy đủ cũng được sự thống nhất giữa kiến trúc sư và chủ đầu tư để tạo nên được phương án thiết kế kiến trúc tối ưu nhất.
Bản vẽ nhà 2 tầng 3 phòng ngủ đầy đủ gồm 4 phần cơ bản như sau: phần kiến trúc, phần kết cấu, phần điện, phần nước. Cùng khám phá chi tiết từng phần bao gồm:
Thứ nhất về kiến trúc: gồm bản vẽ chi tiết mặt bằng, mặt đứng, mặt cắt, ảnh phối cảnh, chi tiết thang, chi tiết nhà VS, chi tiết lát sàn, chi tiết cửa, chi tiết cổng hàng rào …
- Trong đó, thiết kế hình ảnh mặt bằng bản vẽ nhà 2 tầng 3 phòng ngủ bao gồm mặt bằng các tầng nhà diễn tả đầy đủ công năng, chi tiết bố trí nội thất, các bản vẽ định vị nội thất, bản vẽ triển khai xây dựng đầy đủ kích thước chi tiết để gia chủ nắm được rõ nhất.
- Hình ảnh mặt đứng của bản vẽ nhà 2 tầng 3 phòng ngủ có mặt đứng triển khai các mặt đứng của ngôi nhà, thể hiện được màu sơn, vật liệu, các chi tiết mặt đứng để các chủ đầu tư dễ dàng hình dung phối cảnh ngôi nhà của mình.
- Còn thiết kế mặt cắt bản vẽ nhà 2 tầng 3 phòng ngủ sẽ thể hiện được cao độ, kích thước trong phòng cùng các kết cấu chính thông qua mặt bằng, mặt cắt. Với các hình ảnh mặt cắt, đội thi công sẽ hình dung được thiết kế sàn mái gồm lớp gì, sàn tầng gồm lớp gì, chi tiết từng sàn một để gia chủ có thể hình dung cụ thể thiết kế.
Thứ hai về kết cấu bao gồm: quy cách về quá trình thiết kế và thi công, mặt bằng móng, chi tiết móng, mặt bằng định vị, chi tiết kết cấu cột, mặt bằng định vị dầm tầng, mặt bằng kết cấu sàn, mặt bằng lanh tô, thống kê cốt thép thiết kế…
Thứ ba, phần điện bao gồm: hồ sơ thiết kế chiếu sáng; hồ sơ thiết kế ổ cắm; hồ sơ thiết kế internet, hồ sơ thiết kế Truyền hình cáp, hồ sơ thiết kế điện thoại, thống kê vật tư
Thứ tư, phần nước bao gồm: hồ sơ thiết kế cấp nước; hồ sơ thiết kế thoát nước; thống kê vật tư...
Bản vẽ nhà 2 tầng 3 phòng ngủ cũng bố trí đầy đủ công năng chi tiết các phòng cùng vật liệu thiết kế. Tùy từng diện tích xây dựng khác nhau mà có mặt bằng thiết kế cụ thể trong không gian sinh hoạt cho gia đình từ 4 đến 5 thành viên cùng không gian sân thông thoáng. Với xu thế đất chật người đông như hiện nay, thiết kế một căn nhà đã khó mà bản vẽ nhà 2 tầng 3 phòng ngủ sẽ đáp ứng nhu cầu sở hữu không gian nhà ở thể hiện sự tinh tế, hài hòa và tiện nghi sinh hoạt đẳng cấp nhất.
Kiến trúc sư chia sẻ miễn phí bản vẽ nhà 2 tầng 3 phòng ngủ đẹp đa dạng từ thẩm mỹ đến công năng
Quan trọng là thế nên KTS angcovat quyết định chia sẻ hình ảnh 3D, bố trí tổng mặt mặt bằng công năng toàn nhà và các tầng để chủ đầu tư có thể tham khảo và lựa chọn cho mình. Khám phá ngay những mẫu nhà hot từ công năng đến thẩm mỹ, được nhiều khách hàng lựa chọn nhất năm 2019 dưới đây:
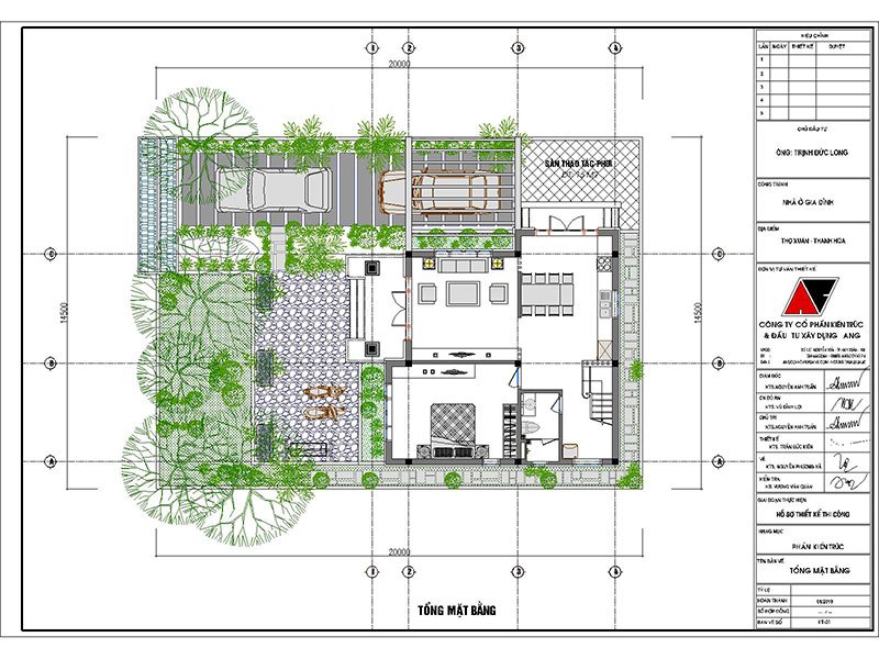
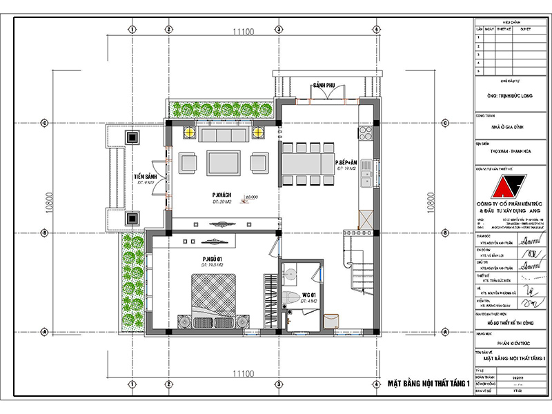
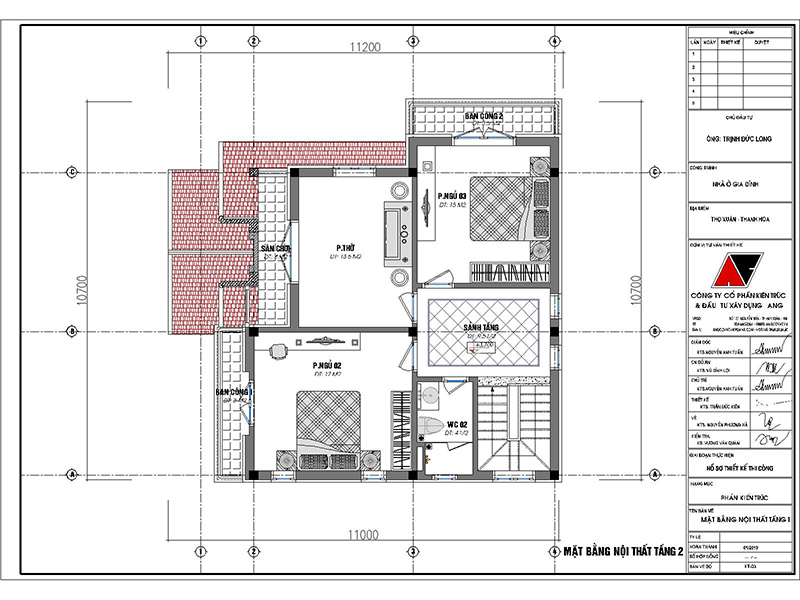
Mẫu 1: Bản vẽ nhà 2 tầng 3 phòng ngủ diện tích 90m2 tại Thanh Hóa
Bản vẽ nhà 2 tầng 3 phòng ngủ của gia đình ông Long được xây dựng trên diện tích nhà với quy mô rộng lớn. Với kiến trúc 1 mặt tiền, bạn có thể dễ dàng cảm nhận được sự chắc chắn, được thực hiện qua hình khối kiến trúc rõ ràng. Dễ dàng nhận thấy được ưu điểm thể hiện trong mặt tiền của công trình. Từng điểm nhấn trong cách thức trang trí mặt tiền của công trình được làm rõ ràng qua từng chi tiết. Khu vực mặt tiền khi bố trí nhà 2 tầng 3 phòng ngủ được phân chia thành 2 khối chính rõ ràng, và đầy tinh tế,... Khối kiến trúc ở sảnh được bố trí đua ra ngoài, mạnh mẽ và sang trọng hơn, tạo điểm nhấn cho tổng quan kiến trúc nhà.

Tư vấn thiết kế bản vẽ nhà 2 tầng 3 phòng ngủ đẹp với kiến trúc đơn giản, nhẹ nhàng

Bản vẽ chi tiết mặt bằng công năng mẫu nhà 2 tầng 3 phòng ngủ có diện tích 90m2

Bản vẽ nhà 2 tầng 3 phòng ngủ tầng 1: Tiền sảnh: 9m2, Phòng khách: 20m2, Phòng bếp ăn: 19m2, Phòng ngủ 1: 19.5m2, WC1: 4m2

Bản vẽ tầng 2: Sảnh tầng 9.5m2, Phòng thờ: 13.5m2, Sân chơi 4m2, Phòng ngủ 2: 17m2, Ban công 3m2, Phòng ngủ 3: 15m2, WC2: 4m2
Mẫu 2: Bản vẽ nhà 2 tầng 3 phòng ngủ diện tích 140m2 của gia đình anh Hùng ở Hải Dương
Bản vẽ nhà 2 tầng 3 phòng ngủ của anh Hùng được chúng tôi cần lên ý tưởng quy hoạch định vị mặt bằng công năng sử dụng, sau đó mới triển khai bản vẽ phối cảnh 3D. Để biết được rằng khâu lên ý tưởng thiết kế mặt bằng quan trọng như thế nào. Ngôi nhà trước tiên phải đáp ứng nhu cầu sử dụng của các thành viên trong gia đình, sau đó mới xét về mặt thẩm mỹ. Tham khảo bản vẽ chi tiết và tổng thể thiết kế nhà để thấy được cách bố trí công năng khoa học, logic và tiện nghi mà các KTS mang lại. Đối với các bản vẽ phối cảnh, sẽ giúp cho chủ đầu tư hình dung được rõ ràng ngôi nhà của mình sau khi hoàn thiện nhất sẽ như thế nào. Với từng phương pháp triển khai khác nhau, ý tưởng, kích thước, phong cách,... khác nhau sẽ cho ra những hình ảnh thiết kế kiến trúc khác nhau.
Xem thêm: trang trí mặt tiền nhà 2 tầng mái thái

Mẫu bản vẽ nhà 2 tầng 3 phòng ngủ thiết kế hiện đại, tone màu trắng - nâu sang trọng và bề thế

Bản vẽ tổng mặt bẳng công năng mẫu nhà 2 tầng có 3 phòng ngủ không gian rộng

Bản vẽ nhà 2 tầng 3 phòng ngủ tầng 1 gồm: sảnh chính 10,9m2; Phòng khách 36,5m2; Phòng ăn 27,5m2; Phòng bếp 19,6m2; Sảnh phụ 5,3m2; WC1 2,5m2; Phòng ngủ 01 19m2; WC2 3,5m2.

Mặt bằng công năng sử dụng của tầng 2 gồm: Sảnh tầng 9,2m2; Phòng thờ 18,3m2; Sân chơi 9,3m2; Phòng ngủ 02 18,2m2; WC3 4,4m2; Phòng ngủ 03 28,2m2; Phòng thay đồ 11,2m2; WC4 8m2
Mẫu 3: Mẫu bản vẽ nhà 2 tầng 3 phòng ngủ diện tích 100m2 tại Thái Bình
Ngắm nhìn tổng thể thiết kế bản vẽ nhà 2 tầng 3 phòng ngủ 100m2 có diện tích mặt tiền 10m sâu 29m tương đối vuông vắn và đẹp mắt. Với lợi thế chiều sâu lớn, nên kiến trúc sư Angcovat bố trí ngôi nhà nằm sát phía trong mảnh đất, phần còn lại bên ngoài để thiết kế chỗ để xe, sân vườn và cảnh quan thiên nhiên. Xung quanh được xây dựng bằng các bức tường rào và cổng với chức năng bảo vệ cho ngôi nhà. Phía sau ngôi nhà có chừa lại diện tích nhỏ để làm sân thao tác và có thể trồng thêm cây xanh hoặc làm vườn rau đáp ứng yêu cầu của chủ nhà. Tham khảo ngay chi tiết của mẫu bản vẽ này.
Tham khảo thêm: thiết kế mặt tiền nhà mái bằng

Mẫu nhà 2 tầng 3 phòng ngủ không gian xanh mang thiết kế nhà tinh tế gắn liền với thiên nhiên cho gia chủ

Tổng mặt bằng công năng sử dụng mẫu nhà 2 tầng 3 phòng ngủ đẹp

Chi tiết tầng 1 bản vẽ nhà 2 tầng 3 phòng ngủ diện tích 100m2 gồm: Sảnh chính: 7m2; Phòng khách 20m2; Phòng bếp ăn: 19m2; Phòng ngủ 1: 20m2; WC1: 4m2

Tầng 2 bản vẽ nhà 2 tầng 3 phòng ngủ gồm: Phòng thờ: 16m2; Phòng ngủ 2: 17.5m2; WC2: 4m2; Sảnh tầng 4m2; Phòng ngủ 3: 13,5m2; WC3: 4m2; Ban công: 3.2m2
Mẫu 4: Bản vẽ nhà 2 tầng 3 phòng ngủ diện tích 90m2 phong cách tân cổ điển sang trọng xa hoa
Mặt bằng công năng sử dụng là tiêu chí quan trọng trong việc thiết kế và xây dựng được ngôi nhà đẹp như ý muốn và bản vẽ nhà 2 tầng 3 phòng ngủ cũng không ngoại lệ. Ngoại thất là cái bên ngoài người khác nhìn vào và đánh giá, nhưng công năng sử dụng bên trong mới là điều quan trọng, quyết định được giá trị và tính hữu dụng của công trình đó. Việc xây dựng lên được một hệ thống công năng sử dụng sao cho khoa học, tiện nghi luôn là điều cần thiết đối với mỗi công trình. Công năng sử dụng khoa học sẽ mang lại cho bạn sự thuận tiện, dễ dàng trong cuộc sống. Bạn sẽ dễ dàng hơn trong việc cảm nhận được những giá trị thẩm mỹ, kiến trúc cho công trình nhà ở của mình. Không chỉ có những mẫu bản vẽ nhà 2 tầng 3 phòng ngủ này, mà đối với các thiết kế biệt thự 1 tầng, hay thiết kế biệt thự 3 tầng khác... thì yếu tố công năng sử dụng cũng được đặc biệt quan tâm.

Hình ảnh toàn cảnh biệt thự xa hóa tráng lệ theo phong cách tân cổ điển của gia đình chú Thưởng

Tổng thể mặt bằng công năng sử dụng mẫu bản vẽ nhà 2 tầng 3 phòng ngủ kiến trúc tân cổ điển sang trọng và tiện nghi

Bản vẽ nhà 2 tầng 3 phòng ngủ tầng 1 gồm: Tiền sảnh: 5.5m2, Phòng khách: 20m2, Phòng thờ: 11m2, Phòng bếp ăn: 24m2. WC1: 5m2

Chi tiết bản vẽ tầng 2 nhà diện tích 90m2 gồm: 2: Sảnh thang 4.5m2, Phòng ngủ 1: 16.5m2, Phòng ngủ 2: 14.5m2, Phòng ngủ 3: 15m2, Sân chơi: 14m2, WC2: 6m2
Mẫu 5: Bản vẽ nhà 2 tầng 3 phòng ngủ diện tích 100m2 có gara ô tô
Bản vẽ nhà 2 tầng 3 phòng ngủ của gia đình anh Chú Tầm được quy hoạch trên lô đất có diện tích rộng lớn, mang đến tổng thể ngôi nhà khang trang và bề thế với gara ô tô âm dưới đất mang lại sự bề thế cho ngôi nhà.

Thiết kế nhà 2 tầng với hình khối kiến trúc vuông vắn, mái thái hiện đại và hầm ô tô thoáng rộng

Tổng thể mặt bằng công năng của mẫu nhà 2 tầng 3 phòng ngủ diện tích 100m2
Tầng 1 của bản vẽ 2 tầng 3 phòng ngủ được bố trí rất khoa học và hợp lý tạo nên không gian sinh sống thoải mái và đẳng cấp. Diện tích sử dụng rộng rãi, thoải mái và phù hợp với nhu cầu sử dụng. Vị trí của gara ô tô được đặt ở ngay phía mặt tiền của ngôi nhà. Vị trí dễ dàng cho việc di chuyển và cất giữ xe, phương tiện đi lại. Phòng bếp ăn được đặt cạnh gara, Thiết kế và cách bố trí công năng sử dụng của công trình này cũng khá đặc biệt!

Công năng sử dụng nhà 1 tầng bao gồm: Gara ô tô: 14.3m2, Phòng bếp ăn 17m2, WC1: 5.3m2, Phòng ngủ 1: 15m2, Phòng ngủ 2: 13.5m2

Bản vẽ mặt bằng tầng 2 gồm: Sảnh thang 6.5m2, Wc: 5,3m2, Phòng thờ; 15.4m2, Phòng khách: 17m2, sảnh chính 7.9m2, Phòng ngủ 4: 13.5m2, Phòng ngủ 3: 15m2
Mẫu 6: Mẫu bản vẽ nhà 2 tầng 3 phòng ngủ hình chữ L diện tích 90m2

Mẫu bản vẽ nhà 2 tầng có 3 phòng ngủ mặt tiền 9m mái thái sang trọng

Tổng thể mặt bằng công năng sử dụng thiết kế nhà 2 tầng sang trọng, đẹp hiện đại

Bản vẽ nhà 2 tầng 3 phòng ngủ tầng 1 gồm: Sảnh chính 10m2, Phòng khách 16m2, Wc1: 5.6m2, Phòng ngủ 1: 11m2; Phòng bếp và ăn: 19.7m2

Bản vẽ chi tiết công năng sử dụng của tầng 2 gồm: Phòng ngủ 2: 11m2; Phòng ngủ 3: 10m2; Phòng ngủ 4: 16m2; ban công: 5m2; WC2: 5.6m2; sân chơi: 10m2, phòng thờ: 5.7m2.
Với những kinh nghiệm về thiết kế nhà ở dân dụng trong nhiều năm qua, chúng tôi luôn đặt chất lượng của công trình lên hàng đầu và đảm bảo tính kỹ thuật trong đó ở mức cao nhất. Nhìn vào các bản vẽ nhà 2 tầng 3 phòng ngủ được giới thiệu trên đây mong rằng các bạn sẽ tin tưởng vào năng lực thiết kế và thi công của chúng tôi cũng như uy tín và angcovat dày công xây dựng bao năm qua.
Liên hệ hỗ trợ tư vấn trực tiếp từ KTS của chúng tôi: 0988 030 680.
Xem thêm: biệt thự mini 1 tầng mái thái








