Có những gia đình 2, 3 thế hệ cùng sinh sống hay thường xuyên có bạn bè khách khứa đến chơi nghỉ ngơi, bởi vậy việc thiết kế những mẫu biệt thự có nhiều phòng ngủ trở nên phổ biến. Đáp ứng nhu cầu ấy, công ty kiến trúc Angcovat xin giới thiệu đến quý khách hàng những mẫu biệt thự 6 phòng ngủ đẹp với cách bố trí công năng sử dụng khoa học, tiện nghi đầy mê hoặc người nhìn dưới đây để khách hàng có thể tham khảo có thêm ý tưởng thiết kế, sắp xép công năng sử dụng cho công trình mẫu biệt thự đẹp 6 phòng ngủ của gia đình mình.
Chi phí xây dựng mẫu biệt thự 6 phòng ngủ đẹp
- Chi phí thiết kế mẫu biệt thự 6 phòng ngủ: trước tiên muốn có mẫu biệt thự đẹp đúng như mong muốn yêu cầu và công năng sử dụng phù hợp mục đích gia đình thì bạn cần tính toán đến việc thuê đơn vị thiết kế. Cần thuê đơn vị thiết kế có uy tín, chất lượng để công trình đảm bảo tính thẩm mỹ cũng như chất lượng hồ sơ công trình.
- Chi phí mua vật liệu xây dựng: Vật liệu xây dựng là thứ không thể thiếu khi xây dựng bất kì một công trình nào. Giá vật liệu phụ thuộc vào nhiều yếu tố như vùng miền, mức độ khan hiếm và mức đầu tư của gia chủ. Nơi nào giá vật liệu cao hơn đương nhiên chi phí nhà cao hơn, đồng thời gia đình nào có điều kiện đầu tư lớn với những vật liệu cao cấp có chất lượng thì đương nhiên giá cũng sẽ cao hơn và ngược lại. Để có thể chuẩn bị kĩ hơn về yêu cầu chi phí xây dựng này, bạn có thể sử dụng gói hồ sơ dự toán cho công trình. Phần này, sẽ được thống kê và trả lời một cách rõ ràng nhất trong hồ sơ dự toán.

Chi phí xây dựng biệt thự 6 phòng ngủ
- Chi phí thuê nhân công: để có một đội ngũ nhân công làm việc có trách nhiệm đảm bảo chất lượng công trình và đọc được ý tưởng bản thiết kế thì bạn cần lựa chọn kĩ, không chọn qua loa đại khái đội ngũ nhân công không có tay nghề cao. Nếu không công trình sẽ không có tính thẩm mỹ cao và có thể xảy ra nhiều điều trong hoặc sau quá trình thi công như rạn nứt, ngấm nước... Hoặc bạn cũng có thể sử dụng gói thi công nhà dân dụng trọn gói của Kiến trúc Angccovat để có thể xây dựng và hoàn thiện được công trình nhà ở như mong muốn của gia đình mình mà không cần phải lo lắng đến yếu tố tay nghề của đội ngũ nhân công nhé!
- Chi phí hoàn thiện nội thất: sau khi hoàn thiện phần ngoại thất các mẫu biệt thự 6 phòng ngủ bao gồm cả mái, sơn tường, gạch ốp lát bạn cần tính đến hoàn thiện lấp đầy không gian bằng nội thất. Tùy sở thích và mức độ đầu tư của gia chủ mà lựa chọn vật liệu khác nhau.
Một trong những yếu tố mà bạn không nên xem thường đó là phong thủy, trước khi làm nhà bạn cần tính toán hướng nhà, cửa... để vừa đảm bảo thẩm mỹ lại phù hợp với mệnh, tuổi của gia chủ. Bởi đây là 1 trong những thứ sẽ quyết định đến vận mệnh, làm ăn và sức khỏe của gia đình không thể bỏ qua.
Choáng ngợp trước vẻ đẹp đến từ những mẫu biệt thự 6 phòng ngủ
Mẫu 1: Biệt thự 6 phòng ngủ 3 tầng 200m2 cổ điển xa hoa, tráng lệ
1: Mã số biệt thự: BT311058
2: Mặt tiền xây dựng: 13m
3: Chi phí đầu tư dự kiến: Khoảng 7 tỷ đồng
4: Thông số diện tích, công năng:
- Diện tích: 200m2/sàn (Tổng diện tích: 650m2 - gồm cả mái)
- Thông số công năng:
+ Tầng 1: Phòng khách, phòng ngủ 1(22,5m2), phòng ngủ 2 (16,5m2), phòng bếp + ăn (22,5m2), phòng khách (43,8m2), WC 1 (6,5m2), WC 2(5m2)
+ Tầng 2: Phòng ngủ 3 (22,5m2), phòng ngủ 4 (16,5m2), phòng ngủ 5 (16,5m2), sảnh tầng (7,5m2), phòng thờ (24m2), WC 3 (6,5m2), WC 4 (5m2), WC 5 (5m2), phòng sinh hoạt chung (26m2).
+ Tầng 3: Phòng ngủ 6 (phòng ngủ đôi – 30m2 ), sảnh tầng (8m2), phòng giải trí (22,8m2), sân phơi (20m2), sân chơi (23m2), WC 6 (6,5m2)

Phối cảnh mẫu biệt thự 6 phòng ngủ phong cách cổ điển đẹp
Phối cảnh mặt tiền sa hoa tráng lệ từ mẫu biệt thự 3 tầng 6 phòng ngủ này chắc hẳn sẽ khiến bất cứ vị khách nào cũng phải choáng ngợp và mơ ước được sở hữu nó. Hãy cùng Angcovat khám phá 6 phòng ngủ trong mẫu biệt thự cổ điển này. Biệt thự 3 tầng đẹp có 6 phòng ngủ không nằm ngoài những đặc trưng về mặt kiến trúc, thể hiện được giá trị thẩm mỹ, sự sang trọng, đẳng cấp và phong lưu của công trình nhà biệt thự cổ điển đẹp này.

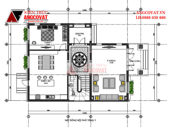
Mặt bằng công năng tầng 1 biệt thự 6 phòng ngủ 3 tầng chi phí 7 tỷ đồng
Tầng 1 mẫu biệt thự 6 phòng ngủ được bố trí với 2 phòng ngủ đặt song song nhau, mỗi phòng ngủ đều có nhà vệ sinh riêng. Vị trí của nhà so với vị trí của mảnh đất xây dựng cũng được lựa chọn một cách tinh tế và đặc biệt ấn tượng, thu hút. Bạn có thể tinh tế lựa chọn được phong cách kiến trúc đặc trưng, và đưa ra những yêu cầu về việc sắp xếp công năng sử dụng để kiến trúc sư có thể đáp ứng phù hợp với mong muốn và nguyện vọng sử dụng của toàn bộ gia đình bạn dưới đây:

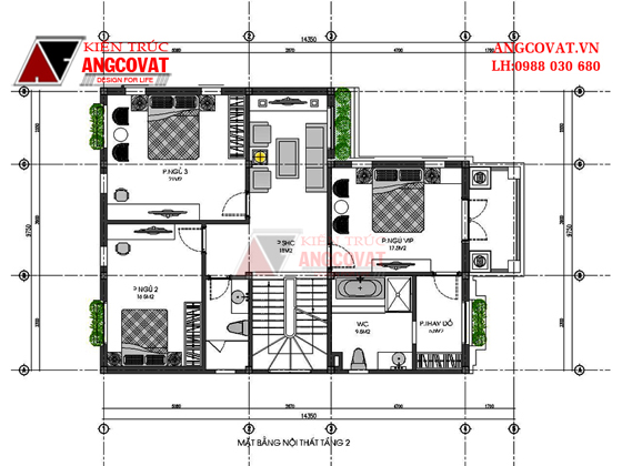
Mặt bằng tầng 2: Mẫu biệt thự 6 phòng ngủ 3 tầng
Tầng 2 mẫu biệt thự 6 phòng ngủ là không gian chủ yếu dành cho nghỉ ngơi, bởi vậy tầng 2 được thiết kế với 3 phòng ngủ, mỗi phòng ngủ đều có cửa sổ thoáng đãng và ban công lớn. Không gian, chức năng trong mẫu biệt thự 6 phòng ngủ thực sự phù hợp với mong muốn sử dụng của nhiều gia đình.

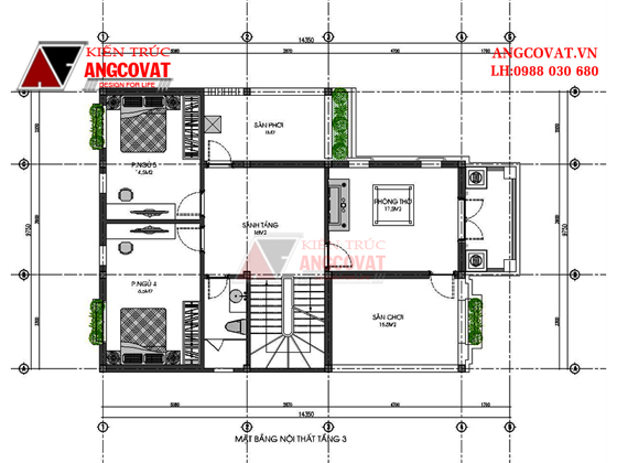
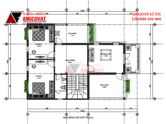
Mặt bằng tầng 3: Mẫu thiết kế biệt thự 6 phòng ngủ
Tầng 3 gồm 1 phòng ngủ, ngoài ra là không gian của sân phơi và phòng giải trí lớn để phục vụ nhu cầu của gia đình
Mẫu 2: Tận hưởng không gian sống đẳng cấp bên trong mẫu biệt thự 6 phòng ngủ 3 tầng kiểu Châu Âu tân cổ điển có diện tích 150m2
1: Mẫu biệt thự: BT117047
2: Số tầng: 03
3: Mặt tiền: 15m
4: Kinh phí đầu tư dự kiến: 3 tỷ đồng
5: Thông số công năng, diện tích:
- Tổng diện tích 150m2/sàn
- Thong số công năng các tầng:
+ Tầng 1: phòng khách 33.5m2, phòng bếp ăn 21.8m2, phòng ngủ 1: 12m2, phòng ngủ 2: 19m2, wc 11.1m2, tiền sảnh 5.5m
+ Tầng 2: phòng ngủ 3: 17m2, phòng ngủ 4: 16m2, phòng ngủ 5: 17m2, phòng ngủ 6: 18m2, phòng sinh hoạt chung, wc: 12.2m2
+ Tầng 3: Phòng tập gym 15.7m2, phòng giải trí 16.6m2, khu sân chơi 40m2

Phối cảnh mặt tiền mẫu biệt thự 6 phòng ngủ 3 tầng kiểu tân cổ điển
Mẫu biệt thự 6 phòng ngủ 3 tầng kiến trúc tân cổ điển không rườm rà phức tạp rối rắm như kiến trúc cổ điển. Mặt tiền mẫu biệt thự tân cổ điển này là sự giao thoa giữa kiến trúc cổ điển và kiến trúc hiện đại. Vẻ đẹp ngoại thất của mẫu biệt thự còn được tạo nên nhờ màu sơn trắng tinh khôi kết hợp các ô cửa sổ kính màu trắng. Tất cả đem đến vẻ đẹp hoàn hảo cho mẫu biệt thự 6 phòng ngủ. 1 điểm nhấn gây ấn tượng đối với người nhìn đó là sảnh và ban công với những nét cong mềm mại. Mẫu biệt thự giống như nàng công chúa yểu điệu với chiếc váy trắng trong những câu chuyện cổ tích vậy. Mẫu biệt thự 3 tầng tân cổ điển với các chi tiết cột, trang trí mặt tiền ấn tượng sẽ là sự lựa chọn tinh tế và phù hợp dành cho bạn nếu đáng có nhu cầu xây dựng.

Hình ảnh phối cảnh: Mẫu biệt thự 6 phòng ngủ 3 tầng phong cách tân cổ điển

Mặt bằng công năng tầng 1 mẫu biệt thự 6 phòng ngủ phong cách tân cổ điển
Không gian tầng 1 rộng rãi, bởi vậy đây là không gian dành cho sinh hoạt chung với phòng khách ở vị trí trung tâm mẫu biệt thự 6 phòng ngủ. Bên phải là không gian của phòng ăn và phòng vệ sinh, bên trái được thiết kế với 2 phòng ngủ diện tích tương đương nhau tạo tính kết nối giữa các không gian.

Mặt bằng công năng tầng 2 mẫu biệt thự 6 phòng ngủ phong cách tân cổ điển
Tầng 2 là không gian yên tĩnh, nơi dành cho nghỉ ngơi tĩnh dưỡng bởi vậy tầng 2 được thiết kế với 4 phòng ngủ cấu trúc song song với diện tích tương đương đem đến sự cân xứng cho mẫu biệt thự 6 phòng ngủ. Chắc hẳn đây sẽ là không gian đáng sống và mơ ước của bất kì ai.
Mẫu 3: Thiết kế biệt thự 6 phòng ngủ 3 tầng đẹp phong cách Châu Âu mặt tiền 10m
1: Mã số biệt thự: BT22125
2: Số tầng: 03
3: Mặt tiền xây dựng: 10m
4: chi phí đầu tư dự kiến: 3 tỷ
5: Thông số diện tích, công năng:
- Tổng diện tích: 120m2/sàn.
- Thong số các tầng:
+) Tầng 1: 1 Phòng khách, 1 phòng ngủ, 1 phòng bếp ăn, 1 vệ sinh chung.
+) Tầng 2: 1 Phòng sinh hoạt chung, 2 phòng ngủ, 1 vệ sinh chung.
+) Tầng 3: 3 phòng ngủ, 1 vệ sinh chung.
+) Tầng tum: 1 phòng thờ, sân chơi, kho, giặt.

Phối cảnh mẫu biệt thự 6 phòng ngủ mặt tiền 10m
Màu trắng tinh khôi mang đến vẻ đẹp trang nhã mới mẻ, hút hồn cho cho mẫu biệt thự 6 phòng ngủ. 1 trong những đặc sản không thể thiếu trong bất kì mẫu biệt thự nào đó là những đường nét trang trí. Những đường nét trang trí mềm mại điệu đà ở cửa sổ, cột nhà, ban công đã đem đến vẻ đẹp trang nhã mà tinh tế cho mẫu biệt thự. Kiểu mái đem đến cho vẻ đẹp ngôi nhà thêm hoàn hảo là mái mansard đem đến vẻ đẹp cổ kính gợi nhắc đến 1 thời kì quá khứ đã qua đi. Các mẫu biệt thự mái mansard với vẻ đẹp đầy tinh tế và sang trọng, thể hiện được giá trị thẩm mỹ cũng như độ tinh tế cho công trình.

Mặt bằng công năng tầng 1 mẫu biệt thự 6 phòng ngủ

Mặt bằng công năng tầng 2 mẫu biệt thự 6 phòng ngủ đẹp ngây ngất

Mặt bằng công năng tầng 3 mẫu biệt thự 6 phòng ngủ đẹp nén thở
Mẫu 4: Phát cuồng với mẫu biệt thự 6 phòng ngủ phong cách tân cổ điển diện tích 350m2
1: Mã số biệt thự: BT408116
2: Số tầng: 03
3: Mặt tiền: 16m
4: Chi phí đầu tư dự kiến: 6 tỷ đồng
5: Thông số diện tích, công năng sử dụng:
- Tổng diện tích: 350m2/sàn
- Công năng các phòng:
+) Tầng 1: 1 Phòng khách, 2 phòng ngủ,1 phòng ngủ giúp việc, 1 vệ sinh chung - Diện tích tầng 1: 265m2 (350m2 bao gồm sảnh)
+) Tầng 2: 3 Phòng ngủ, 1 phòng karaoke, 1 vệ sinh chung - Diện tích tầng 2: 350m2
+) Tầng 3: 2 Phòng ngủ, 1 phòng thờ, 2 khu sân chơi, 1 phòng giải trí- Diện tích tầng 2: 350m2

Phối cảnh mẫu biệt thự 6 phòng ngủ tân cổ điển mê đắm bao ánh nhìn
Sự kết hợp giữa màu trắng và vàng là 2 màu sắc kinh điển trong kiến trúc cổ. Với mẫu biệt thự này, 2 màu sắc ấy đã được các kiến trúc sư kết hợp vô cùng khéo léo tài tình. Màu vàng là màu của những mảng tường chìm để làm nổi bật màu trắng của các đường vân nổi kết hợp những ô cửa sổ kính và ban công bằng sắt màu đen hoa văn nổi bật đem đến nét cổ kính, hoài cổ mà vô cùng sang trọng, thu hút.
Xem thêm: Mẫu biệt thự 2 tầng

Mặt bằng công năng tầng 1 mẫu biệt thự 6 phòng ngủ

Mặt bằng công năng tầng 2 mẫu biệt thự 6 phòng ngủ

Mặt bằng công năng tầng 3 mẫu biệt thự 6 phòng ngủ
Với mẫu biệt thự 6 phòng ngủ đẹp mê ly này, mỗi tầng được thiết kế 2 phòng ngủ với ban công thoáng đãng để hóng mát. Bạn có muốn sở hữu 1 mẫu biệt thự 6 phòng ngủ này để tổ ấm nhà mình thêm hoàn hảo hay không?
Mẫu 5: Biệt thự 6 phòng ngủ 3 tầng mặt tiền 10x13m diện tích 120m2 mái thái hiện đại
1: Mã số biệt thự: BT505126
2: Số tầng: 03
3: Mặt tiền: 10m
4: Chi phí đầu tư dự kiến: 1.8 tỷ - 2 tỷ
5: Thông số công năng, diện tích:
- Tổng diện tích: 120m2/m2
- Thông số các phòng:
Tầng 1: Phòng Khách (31m2), Sảnh chính (7.5m2), sảnh trung tâm (10m2), Sảnh phụ (7m2), Bếp + ăn ( 25m2), Phòng ngủ 1 (15m2)
Tầng 2: SHC (18m2), Phòng ngủ vip (17,5m2- Khu vệ sinh( 9.5m2) - Thay đồ (5.5m2), PHòng ngủ 2 ( 16,5m2), Phòng ngủ 3 ( 21m2)
Tầng 3: Sảnh tầng (16m2),Phòng thờ (17.5m2), Sân chơi ( 15.5m2), Sân phơi (11m2), Phòng ngủ 2( 16.2m2), Phòng ngủ 3( 21m2)

Phối cảnh mẫu biệt thự 6 phòng ngủ phong cách hiện đại
Kiến trúc hiện đại luôn đề cao sự đơn giản, giảm tối đa những chi tiết cầu kì rườm rà. Bởi cái đẹp không phải lúc nào cũng đến từ sự rườm rà cầu kì mà đôi khi cái đẹp đến chính từ sự mộc mạc, đơn giản. Mẫu biệt thự 6 phòng ngủ trên chính là minh chứng cho điều đó “ cái đẹp gắn với cái giản dị” trên nền của kiểu kiến trúc hiện đại đặc trưng. Được thiết kế theo hình dáng chữ L, chú trọng đến việc lấy ánh sáng của không gian các phòng. Bởi vậy các phòng đều có cửa sổ kính giúp gia đình tha hồ thưởng thức vẻ đẹp thiên nhiên và hít thở bầu không khí trong lành đến từ thiên nhiên cây cỏ. 1 điểm thu hút ánh nhìn nữa trong mẫu biệt thự 6 phòng ngủ này đó là ban công bằng kính cường lực trong suốt. Ban công che chắn bằng kính cường lực giúp không gian mở rộng và đem đến vẻ đẹp hiện đại cho công trình.

Mặt bằng công năng tầng 1 mẫu biệt thự 6 phòng ngủ mái thái hiện đại
Tầng 1 mẫu biệt thự 6 phòng ngủ gồm có 1 phòng ngủ có sảnh phụ đi lên cạnh phòng ăn giúp gia chủ thuận tiện, đặc biệt là đi lại của người già trong gia đình.

Mặt bằng công năng tầng 2 mẫu biệt thự 6 phòng ngủ phong cách hiện đại
Tầng 2 gồm có 3 phòng ngủ, không gian rộng rãi thoáng đãng. Gia đình sẽ có những giây phút nghỉ ngơi thoải mái êm ái trên chính chiếc giường của mình. Phòng sinh hoạt chung được đặt ở sảnh cầu thang lên giúp tăng tính kết nối cho các thành viên trong gia đình mẫu biệt thự 6 phòng ngủ.

Mặt bằng công năng tầng 3 mẫu biệt thự 6 phòng ngủ mái thái có ban công bằng kính hiện đại
Tầng 3 mẫu biệt thự 6 phòng ngủ được thiết kế 2 phòng ngủ, mỗi phòng ngủ đều có ban công trồng cây xanh đẹp mắt.
Mẫu 6: Thiết kế biệt thự 3 tầng mái thái đơn giản diện tích 120m2
1: Mẫu biệt thự: BT504116
2: Số tầng: 03
3: Mặt tiền xây dựng: 13.6m
4: Chi phí đầu tư dự kiến: 1.8 - 1.9 tỷ
5: Thông số diện tích, công năng sử dụng:
- Tổng diện tích: 120m2/sàn
- Thông số công năng sử dụng:
+) Tầng 1: Tiền sảnh (7.5m2), Sảnh nhà (21.5m2), Phòng bếp + ăn( 16.3m2), Phòng ngủ ( 11.6m2), Phòng khách + Thờ ( 21.5m2), Bếp ăn ( 16.3m2), Phòng ngủ 2 ( 12.8m2), WC ( 4.4m2)
+) Tầng 2: SHC ( 22m2), PHòng ngủ 3 ( 16.3m2), Phòng ngủ 4 ( 20.1m2), Phòng ngủ 5( 25m2), WC2 ( 4.4m2)
+) Tầng 3: Phòng ngủ 6 ( 20.1m2), Phòng thể dục (20.9m2), WC 3 ( 4.4m2), Sân phơi ( 12.7m2), Sân chơi (9.6m2)

Phối cảnh mẫu biệt thự 6 phòng ngủ đơn giản mà tiện nghi
Chỉ cần gần 2 tỷ đồng bạn sẽ sở hữu ngay 1 mẫu biệt thự 6 phòng ngủ phục vụ nhu cầu nghỉ dưỡng và sinh hoạt. Thay vì những tòa nhà trọc trời chốn đô thị đông đúc ồn ào náo nhiệt thì đây là mẫu biệt thự sẽ giúp bạn có những giây phút thư giãn thực sự thoải mái để hít thở không khí trong lành vào những ngày cuối tuần.

Mặt bằng công năng tầng 1 mẫu biệt thự 6 phòng ngủ mái thái đơn giản
Tầng 1 được phân chia rõ ràng thành 3 khu vực, không gian giữa nhàlà không gian dành cho phòng khách kết hợp phòng thờ. Phần bên trái là không gian phòng bếp + ăn vfa lối cầu thang. Phần bên phải là không gian dành cho 2 phòng ngủ được thiết kế song song và diện tích gần tương đương.

Mặt bằng công năng tầng 2 mẫu biệt thự 6 phòng ngủ phong cách hiện đại
Tầng 2 là không gian nghỉ ngơi yên tĩnh được thiết kế với 3 phòng ngủ giúp gia chủ có giây phút nghỉ ngơi yên tĩnh.

Mặt bằng công năng tầng 3 mẫu biệt thự 6 phòng ngủ gồm có 1 phòng ngủ
Tầng 3 là không gian dành cho giải trí nên chỉ thiết kế với 1 phòng ngủ, ngoài ra là không gian dành cho phòng gym và sân phơi.
Mẫu 7: Thiết kế biệt thự 6 phòng ngủ 3 tầng mặt tiền 10x13m hình chữ L
1: Mã số biệt thự: BT325046
2: Số tầng: 03
3: Mặt tiền: 10m
4: Chi phí đầu tư dự kiến: 2 tỷ đồng
5: Thông số công năng, diện tích:
- Tổng diện tích: 120m2/sàn.
- Thông số các phòng:
+) Tầng 1: 1 phòng ngủ, 1 phòng khách, 1 phòng bếp.
+) Tầng 2: 3 phòng ngủ, 2 phòng vệ sinh. 1 phòng sinh hoạt chung.
+) Tầng 3: 1 phòng thờ, 2 phòng ngủ, 1 sân chơi, 1 sân phơi, 1 phòng vệ sinh.

Phối cảnh mẫu biệt thự 6 phòng ngủ hiện đại

Mặt bằng công năng tầng 1 mẫu biệt thự 6 phòng ngủ đẹp
Tầng 1 mẫu biệt thự được bố trí 1 phòng ngủ riêng tư, ngoài ra là không gian dành cho sinh hoạt chung

Mặt bằng công năng tầng 2 mẫu biệt thự 6 phòng ngủ

Mặt bằng công năng tầng 3 mẫu biệt thự 6 phòng ngủ
Kết luận về mẫu biệt thự 6 phòng ngủ đẹp
Nếu bạn đang tìm mẫu biệt thự có 6 phòng ngủ đẹp để làm nơi nghỉ dưỡng ấm cúng của cả gia đình và bạn bè thì những mẫu biệt thự 6 phòng ngủ công ty thiết kế kiến trúc Angcovat giới thiệu trên là 1 kim chỉ nam hướng dẫn vô cùng hữu ích. Hãy đến với công ty thiết kế kiến trúc Angcovat để được tư vấn thiết kế nhiều mẫu nhà đẹp với mọi loại kiểu dáng phong cách.
Hotline: 0988 030 680
Tham khảo thêm: Bản vẽ nhà 2 tầng mặt tiền 7m








