Bạn cần một không gian để làm kho chứa đồ hay cần một gara để xe của gia đình một cách thuận tiện và dễ dàng mà lại tiết kiệm được chi phí ? Vậy làm sao để bố trí mặt bằng nhà cấp 4 có tầng hầm một cách khoa học và hợp lý nhằm thỏa mãn nhu cầu của mình. Hãy cùng kiến trúc sư angcovat chúng tôi tìm hiểu bài viết này, để bạn có thể định hướng và xây dựng một ngôi nhà cấp 4 có tầng hầm đẹp nhất cho gia đình mình nhé!
Với mục đích sử dụng thông thường, ở các nhà ở xứ lạnh người ta hay làm hầm chìm hoàn toàn để ấm áp và làm kho cất trữ thực phẩm, hầm rượu. Trong điều kiện khí hậu nóng ẩm mưa nhiều thì nên làm hầm nửa nổi nửa chìm (hay là tầng bán hầm) hơn làm hầm chìm hoàn toàn vì bán hầm dễ thông thoáng, không mất diện tích cho lối đi xuống sâu và giải quyết kỹ thuật tốt hơn.
Nội dung bài viết sẽ giải quyết các vấn đề sau:
Thứ nhất: xác định nhu cầu của gia đình có phù hợp để xây dựng nhà cấp 4 có tầng hầm hay không?
Thứ hai: chi phí thiết kế nhà biệt thự vườn 1 tầng và xây dựng nhà cấp 4 có tầng hầm ra sao
Thứ ba : tham khảo cách bố trí mẫu mặt bằng nhà cấp 4 có tầng hầm do angcovat thiết kế
Thứ tư: những vấn đề cần lưu ý khi thiết kế và bố trí mặt bằng nhà cấp 4 có tầng hầm
Thứ năm: Kết luận
Sau đây chúng tôi sẽ đi giải đáp từng vấn đề một cách chi tiết để quý vị có thể hiểu rõ hơn về việc xây dựng nhà cấp 4 có tầng hầm
Sở hữu bản vẽ mặt bằng nhà cấp 4 có tầng hầm đẹp tất nhiên đối với nhiều gia đình có điều kiện kinh tế khá giả thì việc xây dựng nhà cửa là vô cùng đơn giản, nhưng ngược lại đối với những gia đình có điều kiện kinh tế kém hơn lại chưa có kinh nghiệm thì lại càng trở nên khó khăn hơn. Và việc tìm kiếm một đơn vị tư vấn thiết kế uy tín để có thể giải đáp được các câu hỏi và thỏa mãn nhu cầu của gia đình mình là việc hết sức cần thiết.
Cũng như bạn đã biết để xây dựng được một ngôi nhà dù lớn hay nhỏ đều phụ thuộc vào diện tích đất mà gia chủ sở hữu dựa theo đó mới nảy sinh ra nhu cầu để phù hợp với lô đất đó. Vậy nên khi chuẩn bị xây nhà các gia chủ cần đánh giá đúng mục đích cũng như giới hạn của gia đình mình chứ không nên "đất ít mà đòi hỏi nhiều công năng".
Xem ngay kinh nghiệm tư vấn xây nhà cấp 4 mái thái 1 tầng từ A- Z của các kiến trúc sư
Thứ nhất: xác định nhu cầu của gia đình có phù hợp để xây dựng nhà cấp 4 có tầng hầm hay không?
Để các kiến trúc sư có thể đưa ra tư vấn thiết kế mặt bằng nhà cấp 4 có tầng hầm thì gia chủ phải cung cấp kích thước ( chiều dài và chiều dài) lô đất để có thể tư vấn xem diện tích có đủ để việc xây nhà cấp 4 có tầng hầm hay không. Gia đình có mong muốn làm nhà cấp 4 có tầng hầm nhưng diện tích đất không đủ thì cũng sẽ không bố trí được công năng theo yêu cầu của gia chủ.
Thứ hai: chi phí thiết kế và xây dựng nhà cấp 4 có tầng hầm ra sao?
Kích thước là yêu cầu tiên quyết, nhưng nếu gia đình có diện tích đất đủ rộng thì việc xây nhà cấp 4 có tầng hầm hết bao nhiêu tiền? Những kiểu đất mà các gia đình thường làm tầng hầm
- Thiết kế mẫu nhà cấp 4 phong cách châu Âu có tầng hầm được xem là mẫu thiết kế được nhiều gia đình có diện tích đất rộng lựa chọn bởi nó sẽ giải quyết được nhu cầu của các gia chủ sử hữu mảnh đất hình dáng đất đồi, dốc có code cao so với mặt đường nhằm tận dụng lợi thế để xây nhà có tầng hầm vừa đỡ tốn công và chi phí đào hầm.
- Hoặc cũng có nhiều gia đình làm kiểu tầng hầm âm xuống dưới nền mẫu nhà vườn tầng hầm nổi này sẽ làm gia chủ tốn thêm chi phí đào hầm cũng như các kết cấu bê tông cốt thép cần đảm bảo để tạo được một ngôi nhà có tầng hầm chắc chắn.
Chi phí thiết kế nhà cấp 4 có tầng hầm được tính như sau:
a.Đơn giá thiết kế nhà cấp 4 1 tầng được thiết kế theo gói:
+ Gói thấp nhất có diện tích dưới 120m2: 16.000.000 đồng/ bộ hồ sơ
+ Diện tích từ 130m2 - 150m2: 18.000.000 đồng/ bộ hồ sơ
+ Xây nhà cấp 4 diện tích từ 160m2 -200m2: 20.000.000 đồng / bộ hồ sơ
*Đối với phần tầng hầm tính thêm 50% diện tích
b.Chi phí xây nhà cấp 4 có tầng hầm
Về chi phí xây dựng mặt bằng nhà cấp 4 1 tầng hầm (chưa bao gồm chi phí gia cố khi đào đất) thường tốn kém hơn rất nhiều so với phương án không có tầng hầm thông thường từ 115% đến 140%. Sau đây là gợi ý cách tính diện tích xây dựng tầng hầm.
- Độ sâu: <=1,2m: So với cote vỉa hè được tính bằng 150% diện tích sàn nhân đơn giá xây dựng phần thô.
- Độ sâu: 1,2m đến 1,8m: So với cote vỉa hè được tính bằng 170% diện tích sàn nhân đơn giá xây dựng phần thô.
- Độ sâu: 1,8m đến 2,5m: So với cote vỉa hè được tính bằng 200%diện tích sàn nhân đơn giá xây dựng phần thô.
- Độ sâu: >2,5m: So với cote vỉa hè được tính bằng 300% diện tích sàn nhân đơn giá xây dựng phần thô.
Vì vậy các gia chủ nên chú ý và cân nhắc xem có nên xây nhà cấp 4 có tầng hầm hay không.
+ đối với nhà cấp 4 có tầng hầm âm
Tầng hầm âm có nghĩa là gì? tầng hầm âm có nghĩa là tầng hầm là một hoặc nhiều tầng của một ngôi nhà hay tòa nhà được thiết kế xây dựng nằm hoàn toàn dưới lòng đất hoặc một phần dưới lòng đất (gọi là tầng bán hầm).
Đối với loại tầng hầm này nằm âm dưới lòng đất nên vật liệu xây dựng phải là loại đặc biệt
Những lưu ý khi xây nhà cấp 4 có tầng hầm
Có nên xây nhà cấp 4 có tầng hầm không? là câu hỏi của nhiều gia đình mà vẫn chưa có lời giải đáp. Theo như các kiến trúc sư tư vấn thì tùy thuộc vào nhu cầu của từng gia đình, việc xây hay không phụ thuộc vào nhiều yếu tố bao gồm cả diện tích cũng như kinh phí bởi xây nhà có tầng hầm sẽ tốn khá nhiều chi phí hơn so với những nhà không có tầng hầm đồng thời không gian vừa có độ thông thoáng và ánh sáng.
Chúng tôi chỉ ra rằng nếu mặt bằng nhà cấp 4 có tầng hầm hoặc nhà có nhiều lầu và nhu cầu để xe cao thì làm hầm (hầm trọn vẹn hoặc bán hầm) sẽ rất thuật tiện. Tuy nhiên, đối với trường hợp không quá cần thiết, nên làm hầm theo dạng tầng trệt thấp, từ ngoài lên thẳng phần tầng lửng để vừa giảm chi phí làm móng bè cho hầm, vừa dễ giải quyết các yếu tố thông thoáng chiếu sáng và tránh ngập úng.
Ngược hẳn với sân thượng, tầng hầm có thể là một nơi bí bức và bị hạn chế về lượng ánh sáng trời. Do vậy các bức tường được sơn bằng những màu sáng là điều hết sức cần thiết và là điểm nhấn đối với một gian tầng hầm.
Điểm đáng lưu ý là nhà có tầng hầm luôn chú trọng tới các giải pháp về thông khí và ánh sáng cũng như kết cấu của tầng hầm để đảm bảo mẫu nhà ở cân đối, thoáng đãng và thoải mái.
Ngoài ra, hệ thống cấp thoát nước đối với tầng hầm cũng vô cùng quan trọng. Để tránh ngập úng bạn cần lắp đặt hệ thống ram dốc. Bố trí mương thu nước phía dưới rảnh dốc dẫn ra hố ga, sử dụng hệ thống máy bơm nước tự động để xử lý kịp thời những tính huống bất ngờ xảy ra như cháy nổ, ngập lụt...
Và khi xây dựng mặt bằng nhà cấp 4 có tầng hầm cũng có nhiều ưu và nhược điểm như sau:
- ưu điểm
+ Giải quyết được chỗ để xe cho gia đình
+ Có thêm nhiều không gian để làm kho chứa đồ, phòng kỹ thuật điện nước, hầm rượu
+ Đối với các gia đình cho thuê mặt bằng rất có lợi ích vì tăng thêm số lượng phòng cũng như mặt bằng thay vì lãng phí tầng 1 để xe. Ngoài ra chi phí thuê mặt bằng đối với các nhà có tầng hầm sẽ có chi phí rất cao vì có chỗ để xe
+ Tách biệt lối đi giữa khách thuê mặt bằng ở các nhà cao tầng vì từ tầng hầm khách có thể đi cầu thang máy đi riêng mà không phải chung với gia chủ nên rất tiện ích.
+ Tăng giá trị ngôi nhà bởi khi có 1 mặt bằng sảnh nhà sạch sẽ sang trọng khác hẳn với một sảnh ngổn ngang xe máy rồi mới lên các tầng trên cao.
- Nhược điểm
Ngoài những lợi ích mà nhà cấp 4 có tầng hầm đem lại thì nó cũng có những nhược điểm khiến cho nhiều gia đình e ngại đó là
+ Chi phí xây nhà cấp 4 có tầng tầng hầm vô cùng tốn kém và hầm càng sâu thì chi phí càng lớn vì toàn bộ tường sàn hầm phải đổ bê tông và chống thấm. Trung bình cao hơn 150% so với làm sàn bình thường.
Mặt bằng nhà cấp 4 có tầng hầm khi thi công phải đảm bảo kỹ thuật tránh làm sạt lở lún sụt các nhà bên cạnh, sử dụng nhiều phải sử dụng các vật liệu chống thấm tốt vì khi hầm đã thấm sẽ rất khó xử lý sẽ rất khó.
Nếu chiều dài công trình nhỏ không nên làm hầm vì rất khó làm ram dốc
Tham khảo các mẫu thiết kế nhà cấp 4 1 tầng có tầng hầm
Mẫu số 1: Thiết kế nhà cấp 4 1 tầng có tầng hầm diện tích 80m2
Bảng thông số chi tiết mẫu thiết kế nhà cấp 4 có tầng hầm
|
BT626079 |
|
1 tầng - 1 hầm - 1 tầng lửng |
|
Ông Hoàng Thanh Long |
|
Xóm Thắng Sơn - Xã Đông Hưng - TP Thanh Hóa |
|
13m |
|
22.4m |
|
Kiến trúc sư Angcovat |
|
2019 |
|
10x22.5m |
|
Khoảng 2.3-2.5 tỷ đồng |
|
- Diện tích: Tầng hầm: 80m2, Tầng 1: 200m2, Tầng lửng: 30m2 - Thông số các phòng: +) Tầng hầm: Diện tích tầng hầm: 38.7m2, Bể cá: 26.5m2 +) Tầng 1: Sảnh 5.1m2, Phòng khách 30m2, Sảnh 3: 10m2, Gara ô tô: 22,7m2, Phòng ăn: 23m2, Phòng ngủ 1; 20.5m2, Phòng ngủ 2: 17.5m2, WC: 7.5m2. +) Tầng lửng: 22.7m2 |

Bộ hồ sơ thiết kế hoàn chỉnh nhà cấp 4 có tầng hầm đẹp

Thiết kế mặt bằng tầng hầm nhà cấp 4 diện tích 200m2 phong cách hiện đại
Khác hoàn toàn với những mẫu nhà thông thường, mẫu nhà cấp 4 này được xây dựng với tổng diện tích rất lớn. Tổng diện tích khoảng 200m2 với 1 tầng hầm, 1 tầng sinh hoạt cho gia đình và 1 gác lửng.

Thiết kế mặt bằng công năng tầng 1 nhà cấp 4 có tầng hầm nổi đẹp 200m2
Mẫu số 2: Thiết kế mẫu nhà cấp 4 có tầng hầm 100m2 ở Hưng Yên
Tổng diện tích: 100m2.
Tầng 1: phòng khách: 24.5m2, phòng bếp+ăn: 32m2, Phòng thờ: 18.2m, WC 2: 4.1m2, Phòng ngủ 1: 22m2, Phòng ngủ 2: 16.5m2, Phòng ngủ 3: 15.2m2. Gara oto: 20m2. Sảnh: 6m2

Hình ảnh phối cảnh 3D mẫu thiết kế kiến trúc nhà cấp 4 có tầng hầm đẹp 100m2

Mặt bằng nội thất tầng bán hầm mẫu nhà cấp 4 100m2 đẹp

Thiết kế nội thất tầng 1 nhà cấp 4 có tầng bán hầm đẹp 100m2
Mẫu số 3: Bản vẽ thiết kế mặt bằng công năng nhà biệt thự vườn 1 tầng có tầng hầm
Diện tích: 115m2
- Thông số các phòng:
+ Tầng hầm: Gara ô tô: 19.3m2, Sảnh tầng 6.7m2, Phòng bếp ăn: 19.4m2, phòng ngủ 1: 13.8m2, WC1: 5.9m2, Phòng ngủ 2: 15.5m2, Phòng kho: 4.6m2.
+ Tầng 1: Phòng khách: 29.3m2, Sảnh tầng 5.7m2, Phòng thờ: 15.5m2, Ban công: 5.2m2, Wc1: 5.9m2, Phòng ngủ 3: 18.4m2, Phòng ngủ 4: 15.3m2.

Sở hữu ngay mẫu bản vẽ thiết kế mặt bằng nhà cấp 4 mặt tiền 8m có tầng hầm 115m2

Bản vẽ mặt bằng tầng hầm nhà biệt thự vườn cấp 4 có tầng hầm 115m2

Mặt bằng tầng 1 nhà biệt thự 1 tầng có tầng hầm mặt tiền 8m
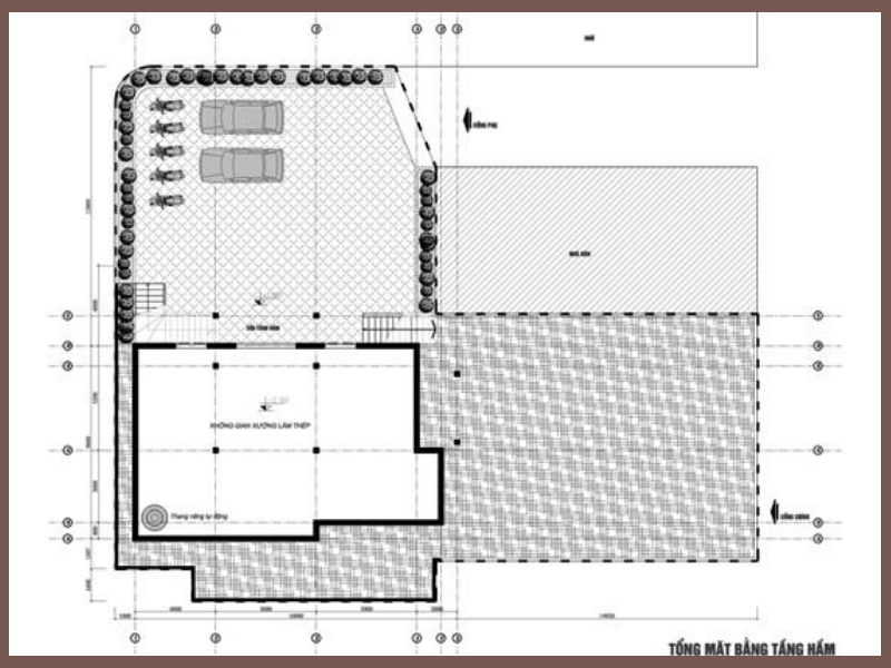
Mẫu số 4: Mẫu bản vẽ mặt bằng nhà biệt thự 1 tầng diện tích 250m2 có tầng hầm đẹp

Bản vẽ nhà nhà biệt thự 1 tầng tân cổ điển có tầng hầm diện tích 250m2

Bản vẽ mặt bằng tầng hầm nhà biệt thự 1 tầng đẹp 250m2 phong cách tân cổ điển
Mẫu số 5: Kiến trúc sư tư vấn thiết kế mặt bằng nhà cấp 4 120m2 có tầng hầm

Phối cảnh nhà cấp 4 hiện đại diện tích 120m2 đẹp có tầng hầm
Ngôi nhà cấp 4 có tầng hầm hiện đại này thiết kế thêm tầng hầm để ở, tránh nắng vào những ngày hè nóng nực. Ta có thể vào tầng hầm từ phía bên hông ngôi nhà và từ cầu thang trong nhà. Ngôi nhà có thiết kế mở, chú trọng không gian bên ngoài với những tông màu ghi đơn giản nhưng tinh tế.

Mặt bằng tầng hầm nhà cấp 4 có tầng hầm 120m2
Thiết kế mặt bằng nhà cấp 4 có tầng hầm sát với mặt đường lớn. Phía trước ngôi nhà sở hữu khoảng sân rộng tạo lối đi và nơi vui chơi cho trẻ nhỏ. Bên cạnh khoảng sân bằng phẳng là lối đi dành cho xe đi thẳng vào bên trong khu tầng hầm. Lối ra tầng hầm được bố trí cửa cuốn tự động giúp người dùng thuận tiện hơn trong quá trình di chuyển.
Bản vẽ nhà cấp 4 có tầng hầm được sử dụng gam màu trắng là tone màu đơn giản nhưng lại gợi cảm giác sang trọng, rộng rãi và tươi mới. Do đó, KTS kết hợp màu trắng với các vật liệu hiện đại như kính, mái thái. Cảnh quan bao quanh nhà tạo nên sự kết hợp hài hòa, tươi mới và mang đậm vẻ đẹp của kiến trúc hiện đại.
Trên đây là bài viết của chúng tôi muốn đem đến cho quý khách hàng có một góc nhìn tổng quan nhất về cách thiết kế mặt bằng nhà cấp 4 có tầng hầm. Qua bài viết này hy vọng quý khách sẽ tích lũy thêm cho mình một kinh nghiệm để sau này có thể sử dụng xây nhà một cách hữu ích nhé!
Mọi chi tiết vui lòng liên hệ Hotline: 0988 030 680
Xem thêm các mẫu thiết kế nhà 1 tầng mái thái








