(Phần 1: Phong cách hiện đại được yêu thích không chỉ với những người trẻ tuổi mà ngay cả những khách hàng trung tuổi cũng bị thu hút bởi đặc trưng đơn giản và lối thiết kế nhẹ nhàng, tối giản của kiểu kiến trúc này. Đơn giản từ cách thể hiện hình khối vuông vức, lược hóa các chi tiết trang trí có phần rườm rà phức tạp, tăng cường sử dụng mặt phẳng, góc vuông để tạo cảm giác thoáng đãng, rộng rãi hơn cho không gian sử dụng. Tuy nhiên không vì thế mà kiến trúc hiện đại trở nên "đơn điệu", đặc biệt là dưới bàn tay tài hoa của các kiến trúc sư ANG. Thổi hồn vào từng đường kẻ vẽ, chế tác những khối bê tông khỏe khoắn thành những hình khối biết nói, biết khoe trọn vẻ đẹp và biết tạo cảm giác thân thiện và ôm ấp các thành viên trong gia đình sau một ngày làm việc căng thẳng. Ngay bây giờ, hãy cùng chúng tôi ghé thăm những mẫu thiết kế biệt thự 3 tầng mái thái 150m2 độc đáo của ANG nhé!)
Ngược lại với phong cách hiện đại, kiến trúc cổ điển hay tân cổ điển lại gây ấn tượng với người đối diện bởi chính những đường nét có phần "rườm rà" nhưng vô cùng tinh xảo, thể hiện sự công phu, tỉ mỉ từ khâu lên ý tưởng, thiết kế đến thi công. Bề thế, sang trọng, tiện nghi, lộng lẫy là những từ bạn có lẽ sẽ phải thốt lên khi chiêm ngưỡng các mẫu thiết kế biệt thự 3 tầng mái thái 150m2 mái thái của ANG.
Mẫu số 8: Mẫu biệt thự 3 tầng mái thái 150m2 mặt tiền 15m phng cách tân cổ điển BT215058
Chủ đầu tư: anh Thông- Bắc Cạn
Mặt tiền: 15m
Chiều sâu: 12m
Kinh phí đầu tư dự kiến: 3,6 tỷ đồng
Thông số công năng, diện tích:
+ Tầng 1: Tiền sảnh 9m2, Phòng khách 25m2, sảnh trung tâm 13,8m2, gara 20m2, phòng ngủ 18,9m2, WC 1 3,8m2, phòng bếp + ăn 22,5m2
+ Tầng 2: Sảnh trung tâm 13,8m2, ban công 1 2,12m2, ban công 2 2,31m2, phòng ngủ 2 18,4m2, phòng ngủ 3 16,9m2, phòng ngủ 4 20,3m2, phòng khi 6,8m2, WC 2 3,8m2, WC3 8,6m2, phòng thay đồ 7,4m2, ban công 3 3,64m2.
+ Tầng 3: Phòng ngủ 5 19,4m2, sảnh trung tâm 13,8m2, phòng thờ 24,7m2, sân chơi 17,2m2, ban công 2,04m2, WC4 3,8m2, ban công 2m2, phòng giặt phơi 10m2

Thật khó để kết luận màu trắng là màu của kiến trúc cổ điển hay hiện đại. Gam màu kinh điển này phù hợp với tất cả các phong cách bởi những xúc cảm đa chiều mà nó có thể mang lại cho người đối diện. Cảm giác khỏe khoắn, tươi mới, đầy sinh động của chất hiện đại. Cảm giác nhẹ nhàng, thơ mộng, đầy tình tứ của chất cổ điển. Một chút sang trọng, quý phái cho phong cách tân cổ. Tất cả hứa hẹn sẽ tạo nên nhiều sự trải nghiệm thú vị cho gia chủ ngay trong chính không gian biệt thự mặt tiền 15m 3 tầng của gia đình mình.

Sảnh trung tâm đóng vai trò làm cầu nối giao thông giữa các không gian trong mặt bằng tầng 1 mẫu biệt thự 3 tầng mái thái 150m2. Từ sảnh chính, bước ra các hướng đều là công năng sử dụng bao gồm phòng khách, bếp ăn, phòng ngủ và gara. Cách bố trí tập trung như vậy sẽ tạo cảm giác ấm cúng hơn cho ngôi nhà. Diện tích mỗi phòng không quá lớn nhưng gọn gàng, ngăn nắp thể hiện chất đơn giản, hiện đại trong thiết kế nội, ngoại thất.

Tầng 2 của ngôi biệt thự mặt tiền 15m 3 tầng chủ yếu là các phòng sinh hoạt riêng dành cho các thành viên trong gia đình. Mỗi phòng đều có cách trang trí khác nhau tùy vào sở thích của từng người nhưng điểm chung là ở bố trí nội thất tiện nghi, đầy đủ bao gồm giường ngủ, hệ bàn học và bàn làm việc, tủ kệ quần áo. Để tiết kiệm diện tích sử dụng, một khu vệ sinh hiện đại, cao cấp được bố trí tập trung bao gồm phòng thay đồ, phòng tắm thoải mái. Tầng 2 là tầng phục vụ cho sinh hoạt chủ yếu của các thành viên vì vậy kiến trúc sư bố trí thêm một nhà vệ sinh nhỏ ở gần cầu thang để mọi ngươi có thể sử dụng đồng thời mà không cần chờ đợi.

Phòng thờ của mẫu biệt thự 3 tầng mái thái diện tích 150m2 mặt tiền 15m sở hữu kích thước khá rộng với 24,7m2 diện tích được thiết kế trang trọng, thể hiện tấm lòng thành kính của thế hệ cháu con với ông bà tổ tiên. Bàn thờ kê dựa lưng chắc chắn vào tường hướng ra phía cửa chính hợp mệnh với gia chủ. Phía trước có kê bàn tiếp khách và thảm làm nơi hành lễ. Anh Thông là con cả trong gia đình vì vậy mọi việc hương khói cho gia tiên đều do anh chị lo, vào mỗi dịp rằm hay lễ lạc.
Mẫu số 9: Biệt thự 3 tầng mái thái 150m2 6 phòng ngủ phong cách cổ điển châu âu BT117047
Chủ đầu tư: chú Vương- Hà Nội
Mặt tiền: 15m
Chiều sâu: 13,5m
Kinh phí đầu tư dự kiến: 3 tỷ đồng
Thông số công năng, diện tích:
- Tầng 1: phòng khách 33.5m2, phòng bếp ăn 21.8m2, phòng ngủ 1: 12m2, phòng ngủ 2: 19m2, wc 11.1m2, tiền sảnh 5.5m
- Tầng 2: phòng ngủ 3: 17m2, phòng ngủ 4: 16m2, phòng ngủ 5: 17m2, phòng ngủ 6: 18m2, phòng sinh hoạt chung, wc: 12.2m2
- Tầng 3: Phòng tập gym 15.7m2, phòng giải trí 16.6m2, khu sân chơi 40m2

Với lối thiết kế tân cổ điển nhẹ nhàng, sang trọng, ngôi nhà 3 tầng mái thái hứa hẹn sẽ mang tới cho gia đình chú Vương những giây phút nghỉ ngơi thoải mái. Phong cách tân cổ điển gây ấn tượng với người đối diện bởi những đường nét trạm trổ tinh tế, không quá cầu kỳ, "nặng nề" như kiến trúc cổ điển, xu hướng thiết kế này là sự giao hòa tuyệt vời giữa tính cổ điển và chất hiện đại. Nếu nhìn tổng thể mặt tiền mẫu biệt thự 150m2 thì phần nhà chính mang phong cách kiến trúc tân cổ điển Châu Âu, còn nhà thờ lại được thiết kế theo phong cách tân cổ điển Á Đông. Thật đơn giản để lý giải về sự kết hợp này. Xã hội phát triển, việc con người muốn sống trong một ngôi nhà sang trọng, theo các phong cách khác nhau là việc dễ hiểu. Tuy nhiên trong việc thờ cúng, mỗi khu vực, mỗi quốc gia sẽ có truyền thống và phong cách riêng. Những giá trị truyền thống đó không thể bị thay đổi bằng những phong cách du nhập khác. Chủ đầu tư của ngôi biệt thự 150m2 mà người Việt Nam, có truyền thống thờ cúng tổ tiên cho nên nhà thờ cũng được thiết kế theo kiến trúc truyền thống.

Sảnh nhà là bộ phận không thể thiếu trong không gian biệt thự. Ngoài chức năng đón tiếp khách, hạn chế nước mưa hắt, sảnh còn dùng để chứa những đồ vật như giày dép, mũ, dù che mưa…Mẫu biệt thự 3 tầng mái thái 150m2 có diện tích sảnh 5.5m2 thích hợp với tổng thể chung của căn nhà mang lại cảm giác giần gũi, ấm cúng cho người sử dụng. Từ cửa chính đi vào nhìn về phía bên trái là phòng khách rộng 3.5m2. Phòng khách luôn có chức năng chính là tiếp khách, đặc trưng của phòng khách là vẻ lịch sử, sang trọng, thể hiện tinh thần tôn trọng và hiếu khách. Phòng khách được thiết kế khá rộng rãi, có góc nhìn ra sân vườn tạo cảm giác thoải mái cho cả chủ và khách.

Bốn phòng ngủ trên tầng 2 đều được thiết kế hướng ra mặt tiền, nơi có cửa sổ lớn đón nhận ánh sáng tự nhiên cho căn phòng thông thoáng, sáng sủa, hạn chế ánh sáng từ đèn điện. Những chiếc rèm ở cửa sổ giúp tăng sự kín đáo và tránh ánh sáng trực tiếp khi cần. Trong không gian biệt thự, phòng ngủ chính có thể có diện tích lớn và thường có thêm bàn ghế, ghế sofa để nghỉ. Còn đối với phòng ngủ riêng của từng thành viên thì diện tích không cần quá lớn.

Tầng 3 mẫu biệt thự 3 tầng mái thái 150m2 có các phòng chức năng là: Phòng tập gym 15.7m2, phòng giải trí 16.6m2, khu sân chơi 40m2. Tầng 3 có thể được coi là tầng giải trí đa năng của căn biệt thự. Tại phòng giải trí bạn có thể kết hợp nhiều hoạt động như xem phim, nghe nhạc, phòng hát hay thậm chí là quầy bar.
Mẫu số 10: Biệt thự 3 tầng tân cổ điển có gara ô tô mái thái BT105126
Chủ đầu tư: ông Hùng- Hà Tĩnh
Mặt tiền: 14,5m
Chiều sâu: 13,7m
Kinh phí đầu tư dự kiến: 4 tỷ đồng
Thông số công năng, diện tích:
+ Tầng hầm: Gara oto ( 100m2), Phòng ngủ giúp việc ( 13m2), WC ( 6.5m2)
+ Tầng 1: Sảnh chính 27m2, Phòng khách 30m2, Phòng ăn ( 25m2), Phòng bếp ( 19m2)
+ Tầng 2: SHC ( 40m2), Phòng ngủ 1( 18m2), Phòng ngủ 2 ( 18m2), Phòng ngủ 3 ( 18m2)
+ Tầng áp mái : Phòng thờ ( 22m2), Sân chơi ( 11.7m2), Phòng giặt ( 8m2), Ban công ( 14.5m2)

Mẫu thiết kế nhà mặt tiền 15m 5 phòng ngủ sử dụng gam màu trắng sáng làm màu sắc chủ đạo. Màu trắng không chỉ có tác dụng làm nền nổi bật cho các thiết kế ngoại thất mà theo đánh giá, còn mang lại các yếu tố thuận lợi cho phong thủy. Màu trắng đại diện cho nguồn năng lượng dương, cho sự chuyển động mạnh mẽ. Màu trắng mang lại cảm giác mới mẻ và sức sống dồi dào, đặc biệt là dưới cái nắng vàng giòn giã của miền nhiệt đới. Nhưng thật kỳ lạ, tấm áo này cũng làm toát lên vẻ đẹp e ấp, duyên dáng của ngôi nhà khi chiều tà.

Toàn bộ diện tích sàn tầng 1 của mẫu thiết kế nhà biệt thự 3 tầng mái thái 150m2 mặt tiền 15m 4 tỷ đồng là không gian sinh hoạt chung và đón tiếp khách khứa của gia đình. Từ cầu thang ngoài trời dẫn lên tầng 1,bạn sẽ bước qua khu vực đại sảnh và bước chân vào sảnh trung tâm của ngôi nhà. Sảnh trung tâm sẽ là nơi nghỉ chân ngắm cảnh của các vị khách trước khi đặt chân vào phòng khách hay sang bếp ăn. Đây được coi như là điểm dừng, bởi vậy yêu cầu đặt ra đối với kiến trúc sư là phải tạo được ấn tượng và sự thoáng đãng cho không gian này. Sự ấn tượng được tạo ra nhờ thiết kế đèn chùm sang trọng với ánh sáng vàng, sàn nhà lát đá hoa cương sang trọng, các chi tiết phào chỉ tinh tế làm nổi bật mảng tường trần,...
Mẫu số 11: Thiết kế nhà 140m2 3 tầng 5 phòng ngủ đẹp BT123116
Chủ đầu tư: Anh Xuân- Hà Nội
Mặt tiền: 12m
Chiều sâu: 15,5m
Kinh phí đầu tư dự kiến: 2,6 tỷ đồng
Thông số công năng, diện tích:
+ Tầng 1: tiền sảnh - 8.5m, Phòng khách (25m2), Gara (21m2), Ngủ 1(15m2), Bếp+ ăn(28m2), Sảnh chung (9m2),
+ Tầng 2: Sảnh chung (13.5m2), SHC(25m2), Phòng ngủ master (45m2), Phòng ngủ nhỏ ( 16.7m2)
+ Tầng 3: Phòng ngủ 3( 15m2), Phòng ngủ 4(18.5m2), Phòng thờ (16.7m2), WC (6m2), sảnh chung (14.5m2)

Mẫu thiết kế biệt thự 3 tầng mái thái 150m2 lung linh về đêm với tone màu chủ đạo trắng sáng.Không thể phủ nhận sự chuyển đổi cảm giác thú vị mà màu trắng tạo ra cho các công trình có tone màu chủ đạo này. Nếu như dưới ánh nắng vàng rực rỡ của miền nhiệt đới, ngôi biệt thự trắng trở nên tươi sáng, trẻ trung và khỏe khoắn hơn. Thì lúc chiều tà, khi mặt trời đang khuất dần sau rặng núi kia, ngôi nhà, với những nét cổ điển, bỗng trở nên e ấp, dịu dàng hơn. Không chỉ mang lại yếu tố thẩm mỹ tuyệt vời, màu trắng còn được đánh giá là hợp phong thủy, đặc biệt là với những ngôi nhà mang phong cách tân cổ điển. Màu trắng đại diện cho nguồn năng lượng dương, cho sự chuyển động mạnh mẽ. Màu trắng cũng có tác dụng phản chiếu ánh sáng tuyệt vời, mang lại sự tươi sáng cho cả căn nhà. Theo thuyết phong thủy, màu trắng hợp mệnh với gia chủ mệnh kim như chủ nhân của ngôi biệt thự này.

Tầng 1 của mẫu thiết kế biệt thự 3 tầng tân cổ điển bao gồm 1 phòng khách, 1 bếp ăn, 1 phòng ngủ nhỏ của người giúp việc và gara ô tô. Ngoài các không gian chức năng chính, kiến trúc sư còn bố trí hợp lý các khoảng không gian phụ, hỗ trợ cho việc di chuyển, lấy sáng, tạo độ thông. Từ sảnh chính bước vào là không gian phòng khách sang trọng, diện tích 25m2, bố trí nội thất theo phong cách cổ điển, thể hiện sự đẳng cấp của gia đình. Sau mặt tiền của ngôi nhà thì phòng khách là nơi tiếp theo gây ấn tượng với mỗi vị khách đến chơi bởi vậy gia chủ đặc biệt yêu cầu kĩ lưỡng cho không gian này.

Tầng 2 bao gồm 2 phòng ngủ, 1 phòng sinh hoạt chung và không gian vệ sinh, tắm giặt chung. Cả 2 phòng ngủ đều được trang bị nội thất đầy đủ, phục vụ tốt nhất cho nhu cầu nghỉ ngơi của các thành viên trong gia đình bao gồm giường ngủ, bàn làm việc, kệ tivi màn hình lớn, tủ quần áo. Vị trí giữa các phòng cũng được bố trí hợp lý để tiện cho việc sinh hoạt và gắn kết các thành viên trong gia đình.

Tầng trên cùng của mẫu thiết kế nhà đẹp 140m2 mái thái còn được bố trí thêm 2 phòng ngủ nữa, 1 phòng dành cho khách, 1 phòng dành cho con cái. Phòng thờ cũng được đặt ở bên ngoài, nơi cao nhất. Hiện nay, trong các ngôi nhà tầng, người ta thường có xu hướng đặt phòng thờ ở tầng cao nhất vừa yên tĩnh, sạch sẽ lại thể hiện tấm lòng thành kính của thế hệ cháu con với ông bà tổ tiên. Phòng thờ bố trí gần phòng ngủ của vợ chồng gia chủ để tiện hương khói.
Mẫu số 12: Thiết kế biệt thự 3 tầng mái thái 150m2 phong cách hoàng gia BT908116
Chủ đầu tư: Ông Lò Văn Khuyên- Điện Biên
Mặt tiền: 10m
Chiều sâu: 16m
Kinh phí đầu tư dự kiến: 2,5 tỷ đồng
Thông số công năng, diện tích:
+ Tầng 1: Sảnh tầng : 24m2, Phòng khách ( 22m2), WC ( 4m2), Phòng ngủ ( 12m2), Phòng ăn ( 25m2)
+ Tầng 2: Phòng SHC ( 19m2), Phòng ngủ( 25m2), Phòng ngủ ( 16m2), Phòng ngủ ( 18m2), WC ( 6m2)., WC3( 5.5m2)
+ Tầng 3: Phòng ngủ ( 16m2), Phòng thờ + SHC (25m2), Kho ( 10m2), WC (4m2)

Mẫu nhà 3 tầng mặt tiền 10m 5 phòng ngủ sở hữu hình khối kiến trúc vuông vức, tổ chức mặt bằng tự do, phá vỡ quy luật đối xứng tuy nhiên lại tạo được hiệu ứng mới lạ nhưng cũng không kém phần hợp lý, logic. Thiết kế sảnh đón sang trọng, gây ấn tượng về sự đẳng cấp bởi hệ cột nâng đỡ vững chãi, trang trí cột tinh xảo, thể hiện sự chỉn chu, tỉ mỉ trong từng đường nét. Hệ thống mái thái cao ráo, bề thế. Ngoài khối mái chính, kiến trúc sư còn thiết kế nhiều khối mái con, mái phụ cho phần cửa sổ vừa có tác dụng chống hắt lại tạo sự đồng nhất và tính thẩm mỹ cao cho không gian.Trong mẫu nhà 3 tầng mặt tiền 10m 5 phòng ngủ, phần tường dưới mái được tạo nhấn bằng thiết kế khác lạ từ đường nét trang trí cho đến màu sắc. Cửa thông khí nhỏ được bố trí ở đây giúp tầng áp mái luôn thông thoáng, giúp tản nhiệt nhanh, không gây bí bức, khó chịu.

Không gian gây chú ý trong thiết kế mặt bằng tầng 1 của ngôi nhà chính là phòng bếp. Bếp ăn có diện tích khá rộng với 25m2 trải dài là nơi nuôi dưỡng ngọn lửa hạnh phúc của gia đình. Khu vực nấu nướng bố trí theo dáng hình chữ L khiến không gian đứng bếp trở nên rộng rãi, thoải mái hơn. Tủ bếp treo tường tiết kiệm không gian, tăng diện tích chứa đựng. Thiết kế tủ nhiều ngăn cất giữ đồ gọn gàng và dễ dàng lấy đồ dùng hơn trong quá trình chế biến món ăn. Bàn ăn kích thước lớn, 14 chỗ ngôi kê giữa phòng. Trang trí nội thất bếp sung túc, ấm cúng, hứa hẹn sẽ mang lại những giây phút quây quần hạnh phúc bên nhau cho các thành viên trong gia đình.

Mẫu nhà biệt thự 3 tầng mái thái 150m2 mặt tiền 10m là khu vực sinh hoạt riêng tư vào ban đêm cho các thành viên trong gia đình. Bởi vậy mọi thiết kế, chất liệu sử dụng đều nhằm mang lại sự yên tĩnh, kín đáo. Hệ thống 3 phòng ngủ tiện nghi bố trí gần nhau tạo tính kết nối, lại tiện sử dụng chung các khu vệ sinh.

Trên tầng 3 chúng tôi bố trí 1 phòng ngủ nhỏ dành cho khách. Không gian thờ cúng của gia đình cũng được bố trí tại tầng cao nhất nhằm tạo sự yên tĩnh, riêng tư. Phòng thờ thiết kế thiêng liêng, trang trọng thể hiện tấm lòng thành kính của thế hệ cháu con với ông bà tổ tiên. Bàn thờ kê dựa lưng chắc chắn vào tường, hướng ra phía cửa chính hợp mệnh với gia chủ. Một không gian 19m2 được tận dụng làm kho cất đồ gọn gàng. Gia chủ có thể cất những đồ đã cũ hoặc không sử dụng ở đây, tránh tạo cảm giác bừa bộn cho các khoảng không gian khác. Sân phơi bố trí phía sau nhà. Thiết kế thanh chắn bằng sắt tọa độ thoáng cho không gian, cho phép ánh sáng và gió đi qua, giúp quần áo chóng khô hơn. Đối với nhiều ngôi nhà mà hạn chế về đất vườn, có thể tận dụng khoảng không gian nhiều ánh sáng này để trồng rau sạch trong thùng xốp.
Mẫu số 13: Nhà biệt thự 3 tầng mái thái diện tích 150m2 2 mặt tiền 5 phòng ngủ khép kín BT220106
Chủ đầu tư: Ông Đỗ Văn Định- Hưng Yên
Mặt tiền: 13,5m
Chiều sâu: 12,5,
Kinh phí đầu tư dự kiến: 2,5 tỷ đồng
Thông số công năng, diện tích:
+ Tầng 1: Tiền sảnh (6m2), Phòng khách (33m2), Bếp + ăn (33m2), WC chung( 12m2), Phòng ngủ 1 (15m2)- Vệ sinh khép kín phòng ngủ 1( 3.7m2)
+ Tầng 2: SHC (33m2), Phòng ngủ VIP (35m2), WC trong phòng ngủ Vip (15m2), Phòng ngủ bé (15m2)
+ Tầng 3: Phòng ngủ Vip ( 35m2), Phòng thờ( 12m2), Phòng ngủ (15m2)

Để đảm bảo tính cân bằng của thị giác, mẫu thiết kế nhà mặt tiền 13m mái thái áp dụng nguyên tắc phối màu tương phản. Theo đó, màu trắng được phối hợp với màu nâu đậm của ngoại thất tường tầng 1, màu nâu gỗ tự nhiên của hệ thống cửa, màu nâu nhạt của phần tường chữ A dưới mái. Cùng chung màu nâu nhưng với nhiều sắc độ khác nhau đã tạo nên sự sinh động cho ngôi nhà. Kiến trúc sư lựa chọn màu tối cho không gian ngoại thất tầng 1 còn nhằm dụng ý bảo vệ ngoại thất luôn tươi mới. Khu vực này vì ở dưới thấp nên thường xuyên phải chịu tác động của con người va quệt, dễ gây bám bẩn, đặc biệt là phần chân tường. Vì vậy màu nâu đậm sẽ đánh lừa thị giác sạch sẽ hơn. Không chỉ vậy, màu nâu còn tạo cảm giác bền vững, ổn định cho khối chân đế này.

Tầng 1 mẫu thiết kế biệt thự 3 tầng mái thái 150m2 mặt tiền 13m phong cách tân cổ điển là khu vực sinh hoạt chung cho các thành viên trong gia đình bao gồm 1 phòng khách, 1 bếp ăn, 1 khu vệ sinh và 1 phòng ngủ khép kín. Phòng khách trang trí theo phong cách sang trọng với bộ bàn ghế gỗ kích thước lớn, thảm trải sàn kiểu quý tộc đặt ở vị trí trung tâm. Thiết kế 2 sảnh mở ra 2 hướng giúp không gian này trở nên thoáng đãng, sáng sủa hơn. Phòng khách được ngăn cách với bếp ăn bởi kệ gỗ để tivi và thiết kế kiểu giật cấp giúp tăng diện tích phòng ăn. Khu vực bếp ăn bố trí gọn gàng sát tường. Thiết kế hình chữ l tăng diện tích đứng nấu. Đồ làm bếp cũng được trang bị đầy đủ và sắp xếp hợp lý xung quanh, giúp công việc bếp núc của người nội trợ đỡ vất vả hơn. Tủ bát bằng gỗ treo tường tăng diện tích chứa đựng lại tạo sự tiện nghi cho cả căn bếp.

Sảnh tầng 2 từ cầu thang nhìn thẳng ra được tận dụng làm phòng sinh hoạt chung tăng tính kết nối giữa các thành viên trong gia đình. Với không gian này, gia chủ có thể trang trí theo phong cách của gia đình mình tạo sự gần gũi, làm nơi chia sẻ, trò chuyện, xem phim mỗi tối cho mọi người.

Phòng thờ không quá rộng, tạo cảm giác vừa đủ, ấm áp và trang trọng. Bàn thờ kê dựa lưng chắc chắn vào tường, hướng ra phía cửa chính hợp mệnh với gia chủ. Thiết kế 2 cửa ra vào thông khí, mỗi dịp lễ tết mở ra thoáng đãng, đón ông bà về chơi. Không gian sân phơi được bảo vệ an toàn bởi chấn song sắt. Để tận dụng nguồn nắng, gió dồi dào của vùng nhiệt đới, chúng tôi thiết kế sân phơi theo hướng mở, giúp quần áo được phơi phóng chóng khô.
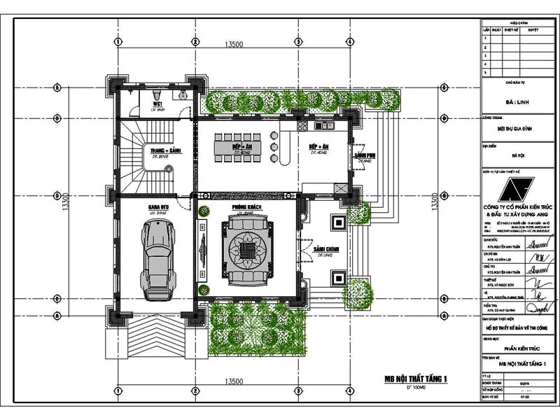
Mẫu số 14: Thiết kế biệt thự 3 tầng mái thái 150m2 kiểu pháp có gara BT313106
Chủ đầu tư: bà Linh- Sóc Sơn
Mặt tiền: 13,5m
Chiều sâu: 13,3m
Kinh phí đầu tư dự kiến: 3,1 tỷ đồng
Thông số công năng, diện tích:
+ Tầng 1: 1 Phòng khách36m2,1 phòng bếp+ ăn 40m2, gara ôt 31m2, sảnh thang 20m2, 1 vệ sinh 8m2 sảnh chính 15m2, sảnh phụ 8m2

Mẫu nhà đẹp diện tích 150m2 mái thái toát lên sự bề thế, cứng cáp toát lên từ các khối bê tông vuông vức, dày dặn. Hệ thống cột vuông cân đối, sở hữu hình dáng đồng nhất, từ kích thước cho đến họa tiết trang trí, màu sắc. Thiết kế hệ mái thái cao ráo, mái sảnh, mái cửa sổ đồng bộ thể hiện sự khỏe khoắn, vững vàng trước mọi tác động của thời tiết. Phần tường chữ A dưới mái, ban công và hệ dàn trang trí tầng 3 là điểm đặc biệt tạo nên sự khác biệt ngôi biệt thự này. Hiên nhà và hệ bậc tam cấp giúp tôn lên sự cao ráo, tránh gây ướt át, bắn nước vào nhà đặc biệt là vào những ngày trời mưa lớn. Hệ mái thái bề thế, dáng mái xuôi chiều cân đối, bao phủ toàn bộ các khối nhà. Thiết kế mái đua 1m có tác dụng tạo kiến trúc, chống hắt, ngăn nước mưa theo mái chảy xuống tường phía dưới.

Bếp ăn và phòng khách liên thông với nhau tạo sự gần gũi và thoáng đãng cho không gian. Bếp ăn diện tích tương đối rộng. Đây được coi là nơi giữ lửa yêu thương của gia đình bởi vậy mọi thiết kế nội thất đều nhằm mang lại sự ấm áp, gần gũi với chất liệu gỗ, màu gạch tối, đèn vàng trang trí, đồ đạc phòng bếp tiện nghi.
Mẫu số 15: Biệt thự 3 tầng tân cổ điển pháp mặt tiền 10x16m BT920096
Chủ đầu tư: Ông Thắng- Hải Phòng
Mặt tiền: 10m
Chiều sâu: 16m
Kinh phí đầu tư dự kiến: 2,7 tỷ đồng
Thông số công năng, diện tích:
+ Tầng 1: 1 phòng ngủ, 1 gara, 1 vệ sinh, 1 phòng giặt, 1 sảnh tầng
+ Tầng 2: phòng ngủ 2, 1 phòng khách, 1 bếp ăn, 1 sảnh tầng, 1 sảnh phòng, vệ sinh 3, 1 tiền sảnh
+ Tầng 3: phòng ngủ 3, sảnh phòng ngủ 3, phòng ngủ 4, sảnh phòng ngủ 4, 1 phòng thờ, vệ sinh 3

Mặt bằng biệt thự 3 tầng mái thái 150m2 phong cách tân cổ điển sở hữu hệ thống mái thái cao ráo, nâng tầm vẻ đẹp bề thế của công trình. Dáng mái xuôi chiều cân đối, hòa hơp với toàn cảnh kiến trúc về kiểu dáng cũng như cách sắp đặt vị trí các khối.
Không chỉ mang ý nghĩa thẩm mỹ tuyệt vời, mái thái còn được đánh giá khá cao về mặt công năng. Với dáng mái xuôi chiều, mái thái đẩy nhanh quá trình thoát nước tự nhiên, đặc biệt là vào những ngày trời mưa, tránh gây hiện tượng ngấm dột, phù hợp với đới khí hậu nóng ẩm mưa nhiều như ở nước ta. Vào các ngày nắng nóng, không chỉ có tác dụng che chắn mà với một tầng không thông thoáng, mái thái giúp quá trình tản nhiệt diễn ra tốt hơn, mang lại sự mát mẻ, dễ chịu cho không gian nội thất.
Xét về phong thủy, mái thái tránh gây hiện tượng tích tụ hung khí, tà khí, ảnh hưởng không tốt tới nguồn năng lượng bao trùm lên không gian sống của gia đình. Hình chóp mái cũng mang ý nghĩa của sự phát triển, 3 cạnh mái biểu tượng cho mối liên hệ giữa quá khứ, hiện tại và tương lai. Tất cả các dấu hiệu phong thủy tốt lành ấy hứa hẹn sẽ đem tới sự bình yên, sung túc cho gia đình ông Thắng. Ngoài khối mái chính, thiết kế mái đua cũng giúp hạn chế sự ảnh hưởng của nước mưa xuống phần tường phía dưới, tạo kiến trúc hoàn thiện và che bớt đi các khuyết điểm ở bề mặt tiếp nối.

Tầng 1 mặt bằng biệt thự 150m2 bao là phần không gian phụ với gara ô tô rộng rãi, có sức chứa lớn, thiết kế an toàn, chắc chắn, cửa ra lối vào, thông tầng hợp lý. 1 phòng ngủ được đặt ở đây dành cho người giúp việc. Để tiện cho quá trình sinh hoạt thì kiến trúc sư cũng bố trí một khu vệ sinh, tắm rửa ở gần sảnh tầng.

Ngoài cầu thang trong nhà thì ngôi biệt thự còn sử dụng cả cầu thang bên ngoài để dẫn lên tầng 2- tầng sinh hoạt chính của cả gia đình cũng như là nơi tiếp khách. Cầu thang và sảnh sẽ là nơi đầu tiên mà mỗi vị khách đặt chân tới, bởi vậy chúng tôi đã gây ''choáng ngợp'' bởi sự bề thế, sang trọng của kiểu dáng, chất liệu và phong cách trang trí. Từ tiền sảnh bước vào là không gian phòng khách rộng rãi của mặt bằng biệt thự 150m2 mái thái được thiết kế theo phong cách cổ điển với bộ bàn ghế gỗ trạm trổ cầu kì, kệ tivi màn hình lớn và các đồ vật trang trí bằng gỗ có giá trị khẳng định đẳng cấp của gia chủ.

Tầng 3 của mẫu thiết kế mặt bằng biệt thự 150m2 mặt tiền 10m bao gồm 2 phòng ngủ dành cho con cái với khu vệ sinh dùng chung tiết kiệm diện tích, mở rộng không gian nghỉ ngơi riêng tư cho các thành viên còn lại. Hai phòng ngủ bố trí cạnh nhau tạo sự kết nối. Mỗi phòng có một cách trang trí riêng tùy vào sở thích của chủ nhân căn phòng tuy nhiên điểm chung của chúng là ở sự tiện nghi, đủ đầy và cảm giác riêng tư mà nó mang lại cho mỗi người.
Mẫu số 16: Mẫu thiết kế biệt thự 3 tầng mái thái 150m2 7 phòng ngủ kiểu pháp BT221096
Chủ đầu tư: Bà Hoa- Ninh Bình
Mặt tiền: 20m
Chiều sâu: 19m
Kinh phí đầu tư dự kiến: 5 tỷ đồng
Thông số công năng, diện tích:
+ Tầng 1: Phòng khách ( 46m2), Phòng ăn ( 26m2), Phòng bếp (21m2), Phòng ngủ 1 ( 16.5m2), WC 1( 4.2m2)
+ Tầng 2: SHC ( 26m2), Phòng ngủ 2 (17m2), Phòng ngủ 3( 17m2), Phòng ngủ 4 ( Vip- 46m2), WC chung( 5m2).
+ Tầng 3: Ngủ 6(17m2), Phòng ngủ 7(20m2), WC chung ( 5m2)

Khoác lên mình tấm áo ngoại thất cổ điển, mẫu biệt thự cổ điển của gia đình bà Hoa gây ấn tượng với người đối diện trước hết bởi vẻ đẹp sa hoa, tráng lệ và vô cùng lộng lẫy của nó. Mọi chi tiết đều được trau chuốt đến tỉ mỉ, công phu thể hiện tay nghề và óc sáng tạo của người làm thiết kế. Để diễn tả được trọn vẹn những đường nét này trong thực tế thì gia chủ chắc hẳn sẽ phải cân nhắc rất nhiều trong khâu lựa chọn đội ngũ thi công giàu kinh nghiệm.

Cũng giống như nhiều mẫu thiết kế khác, mặt bằng tầng 1 biệt thự 3 tầng đẹp mái thái 150m2 là không gian sinh hoạt chung cho các thành viên trong gia đình với bếp ăn và phòng khách. Đó là lý do vì sao tầng 1 được bố trí liên thông với nhau và có khá nhiều cửa, lối đi để tạo cảm giác gần gũi và thoáng đãng.
Mẫu số 17: Thiết kế biệt thự cổ điển pháp 4 tầng 140m2 mặt tiền 9m BT110125
Chủ đầu tư: ông Quý- Hưng Yên
Mặt tiền: 9m
Chiều sâu: 16m
Kinh phí đầu tư dự kiến: 4 tỷ đồng
Thông số công năng, diện tích:
- Tầng hầm: 01 Gara, 01 phòng ăn, 01 phòng ngủ,01 vệ sinh chung: diện tích sử dụng 135m2
- Tầng 1: 1 Phòng khách, 2 phòng ngủ,1 vệ sinh chung - Diện tích tầng 1: 135m2
- Tầng 2: 3 phòng ngủ - Diện tích tầng 2: 135m2
- Tầng 3: 01 phòng thờ, 01 phòng tậm gym, 01 sân trước, 01 sân sau - Diện tích tầng 3: 135m2
- Tầng áp mái: Bỏ trống - Diện tích tầng áp mái: 135m2

Hình ảnh phối cảnh tươi sáng của mẫu thiết kế biệt thự 3 tầng mái thái 150m2 ở Hưng Yên. Sử dụng tone màu chủ đạo trắng sáng cùng với màu gam màu vàng đặc trưng của phong cách tân cổ điển, kiến trúc sư đã khiến tấm áo ngoại thất của ngôi biệt thự trở nên nổi bật hơn với các đường nét trạm trổ công phu.

Từ sảnh chính bước vào là không gian sảnh trung tâm đóng vai trò như điểm dừng chân thưởng thức kiến trúc nội thất của ngôi biệt thự 3 tầng mái thái 150m2 trước khi tiến vào phòng khách. Điểm đặc biệt trong mẫu thiết kế là không gian bếp nấu không được bố trí trong nhà vì vậy ngoài phòng khách thì mặt bằng tầng 1 còn được sắp xếp thêm 2 phòng ngủ với khu vệ sinh khép kín.

Mặt bằng tầng 2 - Mẫu thiết kế biệt thự 3 tầng cổ điển mặt tiền 9m chiều sâu 15m

Phòng thờ của ngôi nhà kiểu Pháp cổ điển có diện tích 30m2 bao gồm bộ bàn ghế lớn và bộ bàn thờ lớn có hướng cùng với hướng nhà hợp tuổi gia chủ. Phòng tập Gym 22m2 được bố trí các máy móc thiết bị hỗ trợ tập luyện để các thành viên trong gia đình tập luyện nâng cao sức khỏe. Bên cạnh phòng Gym là phòng vệ sinh chung 5m2.
Bộ sưu tập mẫu thiết kế biệt thự 3 tầng mái thái 150m2 hy vọng sẽ mang đến cho quý vị những gợi ý hay ho về ngôi nhà tương lại của gia đình mình. Mọi thông tin cần tư vấn xin vui lòng liên hệ: 0988.030.680








