Những bản vẽ nhà 2 tầng có gara ô tô dưới đây là món quà mà kiến trúc sư Angcovat giành tặng cho các bạn – những độc giả và khách hàng luôn dõi theo và ủng hộ chúng tôi trong suốt những năm qua. Hi vọng rằng, bài viết này sẽ giúp bạn có thêm những ý tưởng mới trong việc sắp xếp công năng sử dụng cho ngôi nhà tương lai của mình sao cho phù hợp nhất.
 
Ngôi nhà là thành quả lao động sau bao nhiêu năm cố gắng của gia chủ, là nơi lưu giữ những kỷ niệm của gia đình, là tổ ấm nuôi dưỡng hạnh phúc của mỗi người vì vậy ai cũng cố gắng để có thể xây được một ngôi biệt thự đẹp, sang trọng. Đối với những gia đình điều kiện kinh tế khá giả thì ngôi nhà không chỉ đơn thuần là chốn để ở mà còn là đại diện cho bộ mặt của gia chủ, khẳng định vị thế của gia chủ đối với bạn bè. Các mẫu bản vẽ nhà 2 tầng có gara ô tô dưới đây được chúng tôi lựa chọn từ những mẫu nhà 2 tầng đẹp nhất, vị trí gara vô vùng tiện lợi cho gia chủ trong quá trình di chuyển, đảm bảo sẽ làm các bạn hài lòng.
 
Tham khảo: Nhà 3 tầng có gara
 
Bản vẽ nhà là gì
 
Trong kiến trúc, bản vẽ nhà là những bản vẽ biểu diễn hình dạng và cấu tạo của ngôi nhà, nội dung của bản vẽ nhà bao gồm: mặt bằng, mặt đứng và mặt cắt.
+ Mặt bằng: Mặt bằng của ngôi nhà là hình cắt bằng của ngôi nhà trên đó thể hiện vị trí, kích thước các tường, vách cửa, đồ đạc…
+ Mặt đứng: Mặt đứng của ngôi nhà là hình chiếu vuông góc các mặt ngoài của ngôi nhà lên mặt phẳng chiếu đứng hoặc mặt phẳng chiếu cạnh nhằm biểu diễn hình dạng bên ngoài của ngôi nhà.
+ Mặt cắt: Mặt cắt của ngôi nhà nhằm biểu hiện các bộ phận và kích thước của ngôi nhà theo chiều cao.
 
Vai trò quan trọng của bản vẽ nhà 2 tầng có gara ô tô trong quá trình thiết kế và thi công nhà ở
 
Hiện nay, xu hướng thiết kế nhà 2 tầng ngày càng trở nên phổ biến, đặc biệt là ở vùng nông thôn bởi vì chất lượng cuộc sống của họ ngày càng được cải thiện. Những ngôi biệt thự 2 tầng đem đến không gian sống thoải mái và sang trọng cho gia chủ, đặc biệt là các gia đình có nhiều thế hệ cùng chung sống. Cách sắp xếp công năng sử dụng cho ngôi nhà 2 tầng có gara ô tô sao cho phù hợp luôn được các gia đình quan tâm. Cách bố trí ấy thường sẽ được thể hiện qua bản vẽ mặt bằng của ngôi nhà, vì vậy bản vẽ nhà có vai trò vô cùng quan trọng trong việc thiết kế và thi công nhà ở. Cụ thể:
 
+ Vai trò của bản vẽ nhà 2 tầng có gara ô tô trong quá trình thiết kế: Trước khi kí hợp đồng thiết kế nhà ở, chúng tôi sẽ phải làm việc với khách hàng để thống nhất về mặt bằng công năng sử dụng cho ngôi nhà. Mỗi một vị khách khác nhau sẽ có những ý tưởng và lựa chọn thông số công năng khác nhau, tuy nhiên chúng tôi sẽ tư vấn cho gia chủ cách bố trí công năng cho ngôi biệt thự đẹp sao cho phù hợp và tiện nghi nhất. Trong quá trình tư vấn, kiến trúc sư của chúng tôi sẽ vẽ phác thảo cách bố trí công năng sử dụng của ngôi nhà cho gia chủ xem, nếu như gia chủ đồng ý chúng tôi sẽ kí hợp đồng và lên mặt bằng công năng sử dụng cho gia chủ.
 
+ Vai trò của bản vẽ nhà 2 tầng có gara ô tô trong quá trình thi công nhà ở: Bản vẽ nhà là có vai trò vô cùng quan trọng trong việc thi công nhà ở, là cơ sở để bên thi công dựng nhà theo đúng yêu cầu của gia đình từ khi đào móng cho đến khi hoàn thiện. Bản vẽ nhà là người đồng hành cùng với các kỹ sư, thợ xây trong suốt quá trình thi công cho đến khi hoàn thiện, nhờ có bản vẽ nhà các kiến trúc sư công trình mới có thể hoàn thiện ngôi nhà theo đúng mong muốn của gia chủ.
 
Xem thêm: Bản vẽ nhà 1 trệt 1 lầu đẹp
 
Tổng hợp các mẫu bản vẽ nhà 2 tầng có gara ô tô không thể bỏ lỡ
Mẫu số 1: Giới thiệu bản vẽ nhà 2 tầng có gara ô tô phong cách cổ điển
 

Hình ảnh phối cảnh – bản vẽ nhà 2 tầng có gara ô tô phong cách cổ điển
 
Mẫu biệt thự đẹp trên đây được kiến trúc sư của chúng tôi thiết kế cho chủ đầu tư là anh Thiện ở Ba Vì vào đợt tháng 3 vừa qua với mặt tiền 20m, chiều sâu 14m trên kích thước ô đất 1000m2. Ngôi biệt thự sang trọng và bề thế này là niềm mơ ước của nhiều gia đình bởi vẻ đẹp thơ mộng giống như một tòa lâu đài trong truyện cổ tích vậy. Ngôi biệt thự nổi bật với màu sắc trang nhã và tinh tế, sự hòa quyện giữa màu trắng ngà và vàng kim đã đem đến vẻ đẹp hài hòa cho ngôi biệt thự.
 

Mặt bằng nội thất tầng 1 – bản vẽ nhà 2 tầng có gara ô tô phong cách cổ điển
 
Cách bố trí công năng sử dụng của ngôi biệt thự được thể hiện rất rõ trong bản vẽ nhà 2 tầng có gara ô tô phong cách cổ điển, cách sắp xếp các phòng và các bộ phận khác của ngôi nhà vô cùng hợp lí, khoa học làm cho ngôi nhà trở thành một thể thống nhất. Từ sảnh chính đi vào là bộ phận tiền sảnh 5.5m2 sang trọng giống như thiết kế của khách sạn 5 sao, bên trái là phòng khách rộng 21.5m2 rộng rãi và thoáng đãng, đảm bảo nhu cầu tiếp khách của gia đình. Hai phòng ngủ với diện tích 14m2 được đặt gọn ở 1 phía và sử dụng chung nhà vệ sinh ở giữa rất tiện lợi. Đi qua tiền sảnh là đến bộ phận sảnh thang rộng 15m2, bên trái sảnh thang là phòng ăn và phòng bếp với tổng diện tích lên đến 28m2 tạo nên không gian bếp sang trọng và thoáng đãng. Bên cạnh phòng bếp là gara ô tô rộng 17m2 được thiết kế vô cùng kiên cố với hệ thống cửa cuốn đem lại sự an toàn tuyệt đối cho gia chủ.
 

Mặt bằng nội thất tầng 2 – bản vẽ nhà 2 tầng có gara ô tô phong cách cổ điển
 
Mặt bằng tầng 2 của ngôi biệt thự 200m2 phong cách cổ điển được bố trí hợp lí và khoa học vì vậy có thể tận dụng tối đa không gian diện tích của tầng 2. Hệ số công năng tầng 2 vô cùng tiện nghi bao gồm 1 phòng karaoke 14.5m2, 3 phòng ngủ, 1 phòng thờ 18.7m2, ban công, nhà vệ sinh… Với cách bố trí công năng như trên ngôi biệt thự hoàn toàn có thể đáp ứng được nhu cầu nghỉ ngơi, vui chơi giải trí của gia đình.
 
Tham khảo thêm: Nhà 3 tầng có sân thượng
 
Mẫu số 2: Bản vẽ nhà 2 tầng có gara ô tô đẹp ở quê
 
Mẫu bản vẽ nhà 2 tầng có gara ô tô đẹp ở quê dưới đây được kiến trúc sư của chúng tôi thực hiện cho chủ đầu tư là anh Dương Thành Hưng ở Vụ Bản – Nam Định với mặt tiền 7.3m, chiều sâu 15m được xây dựng trên kích thước ô đất 560m2.
 

Hình ảnh phối cảnh – bản vẽ nhà 2 tầng có gara ô tô đẹp ở quê
 
Kiến trúc nhà vườn 2 tầng mái thái được áp dụng trong mẫu thiết kế nhà đẹp trên đây tạo nên vẻ đẹp hài hòa và tráng lệ cho ngôi nhà. Ngôi biệt thự nổi bật với màu sơn trắng tinh tế, trang nhã, đem đến cảm giác thoải mái cho người nhìn, tăng thêm vẻ đẹp cho tấm áo ngoại thất. Kiến trúc mái thái vô cùng quen thuộc và gần gũi đối với các gia đình hiện nay, ngoài việc làm tăng tính thẩm mỹ cho gia đình còn có tác dụng chống nóng, chống thấm tốt, bảo vệ tốt cho ngôi nhà của bạn, phù hợp với điều kiện khí hậu nhiệt đới ẩm gió mùa ở nước ta.
 

Mặt bằng tầng 1 - bản vẽ nhà 2 tầng có gara ô tô đẹp ở quê
 
Mặt bằng tầng 1 bao gồm các phòng chức năng như sau: Đại sảnh 4m2, phòng khách 20.4m2, phòng ngủ 1 15m2, phòng bếp 12m2, phòng ăn 13.5m2, WC1 3.5m2, phòng kỹ thuật 2.6m2, Gara 18.2m2.
Cuộc sống hiện đại, đất nước ngày càng phát triển, nhu cầu di chuyển bằng ô tô ngày càng nhiều, tuy rằng số lượng ô tô của nước ta không nhiều như Hoa Kì hay Nhật Bản nhưng số lượng ô tô của nước ta ngày càng tăng. Thiết kế nhà có gara ô tô cũng được nhiều chủ đầu tư chú ý bởi đây là không gian không thể thiếu đối với các gia đình có ô tô. Không gian gara ô tô của mẫu biệt thự trên đây rộng 18m2, được đặt ở vị trí mặt tiền của công trình thuận tiện cho việc sử dụng của gia chủ. Chính vì vậy các bạn có thể áp dụng mẫu nhà 2 tầng có gara ô tô đẹp này tại các thành phố lớn do diện tích mặt tiền không quá hẹp mà vẫn có thể xây dựng được bãi đậu xe rộng rãi.
 

Mặt bằng tầng 2 - bản vẽ nhà 2 tầng có gara ô tô đẹp ở quê
 
Xem ngay: Biệt thự phố kiểu Pháp
 
Mẫu số 3: Giới thiệu bản vẽ nhà 2 tầng có gara ô tô đẹp mái thái
 

Hình ảnh phối cảnh tổng thể - bản vẽ nhà 2 tầng có gara ô tô
 
Các ngôi nhà 2 tầng hiện nay luôn được thiết kế thêm gara ô tô để gia chủ có thể cất xế hộp của mình tránh khỏi nắng mưa cũng như đảm bảo an toàn cho chiếc ô tô của gia đình. Việc thiết kế nhà có gara tưởng chừng rất đơn giản nhưng nó còn đòi hỏi rất nhiều yếu tố khác. Trước khi thiết kế, gia chủ cần phải xác định rõ mục đích xây gara của mình, ngoài việc để xe ra thì còn sử dụng vào mục đích khác hay không. Có nhiều gia đình xây gara ngoài việc để xe ra còn dùng làm nơi để đồ…
Trong gara cũng nên thiết kế cống thoát nước để vào mùa mưa lũ gara sẽ không bị ngập, hoặc bạn có thể rửa xe ngay tại gara nhà mình.
 

Mặt bằng tầng 1 – bản vẽ nhà 2 tầng có gara ô tô đẹp mái thái
 
Bản vẽ nhà 2 tầng có gara ô tô trên đây thể hiện đầy đủ vị trí, kích thước các phòng, các đồ dùng trong ngôi biệt thự đẹp. Với diện tích sàn là 90m2, hệ số công năng sử dụng tầng 1 bao gồm 1 gara, 1 phòng khách, 1 phòng bếp + ăn, 1 WC, sảnh chính, sảnh phụ và sảnh tầng. Tầng 1 sẽ là nơi phục vụ nhu cầu tiếp đón khách và ăn uống của gia chủ.
 

Mặt bằng tầng 2 – bản vẽ nhà 2 tầng có gara ô tô đẹp mái thái
 
Mặt bằng tầng 2 của ngôi biệt thự 2 tầng mái thái bao gồm 1 sảnh tầng, 3 phòng ngủ, mỗi phòng ngủ đều được thiết kế nhà vệ sinh riêng tạo sự thuận lợi cho các thành viên trong việc sinh hoạt.
 
Tham khảo: Bản vẽ nhà 1 tầng đẹp
 
Mẫu số 4: Giới thiệu bản vẽ nhà 2 tầng có gara ô tô mái lệch 4 phòng ngủ sang trọng
 

Hình ảnh phối cảnh tổng thể - bản vẽ nhà 2 tầng có gara ô tô mái lệch 4 phòng ngủ sang trọng
 
Biệt thự 2 tầng mái lệch là sự lựa chọn hoàn hảo cho các gia đình yêu thích phong cách kiến trúc độc đáo, mới mẻ mà vẫn toát lên vẻ đẹp sang trọng, bề thế cho ngôi nhà. Mẫu biệt thự 2 tầng trên đây được chúng tôi thiết kế cho chủ đầu tư là ông Phạm Văn Nhường ở Hưng Yên với kích thước 8x15m. Thiết kế biệt thự đẹp 2 tầng mái lệch vô cùng ấn tượng với tone màu trắng kem và màu nâu nhạt của gạch ốp tường, làm cho ngôi nhà trở nên trang trọng và lịch sự hơn bao giờ hết. Toàn bộ hệ thống cửa sổ và cửa chính đều được sử dụng vật liệu là kính rất sáng và sang, làm tăng tính thẩm mỹ cho ngôi biệt thự.
 

Mặt bằng nội thất tầng 1 – bản vẽ nhà 2 tầng có gara ô tô mái lệch 4 phòng ngủ sang trọng
 
Mặt bằng tầng 1 của mẫu biệt thự 2 tầng mái lệch bao gồm phòng khách, phòng ngủ, phòng bếp ăn, sảnh, gara ô tô. Từ cổng đi thẳng vào chính là gara để xe rất tiện lợi, gia chủ không phải mất thời gian đánh xe đi đường vòng nên rất thuận tiện mà tiết kiệm được thời gian.
 

Mặt bằng nội thất tầng 2 – bản vẽ nhà 2 tầng có gara ô tô mái lệch 4 phòng ngủ sang trọng
 
Mặt bằng tầng 2 được tận dụng triệt để với 3 phòng ngủ trong đó có 1 phòng ngủ master, 1 phòng thờ, 2 nhà vệ sinh, sảnh tầng, ban công. Cách bố trí công năng như trên hoàn toàn phù hợp với diện tích của ngôi nhà cũng như phù hợp với nhu cầu sử dụng của gia chủ.
 
Mẫu số 5: Giới thiệu bản vẽ nhà 2 tầng có gara ô tô đẹp 90m2
 

Hình ảnh phối cảnh - bản vẽ nhà 2 tầng có gara ô tô đẹp 90m2
 
Thiết kế biệt thự 2 tầng có gara ô tô nổi bật với gam màu trắng chủ đạo khiến ngôi nhà trở nên thanh thoát, sang trọng. Màu trắng kết hợp với màu nâu làm cho ngôi nhà thêm ấm cúng, hạnh phúc. Màu nâu của mái ngói và khung cửa sổ làm tăng thêm vẻ hiền hòa, mộc mạc nhưng cũng không kém phần sang trọng cho ngôi nhà.
Mặc dù diện tích của ngôi biệt thự đẹp không quá lớn nhưng ngôi nhà vẫn tạo được cảm giác thông thoáng và lãng mạn thông qua tiểu cảnh sân vườn đẹp, một giàn hoa trước nhà sẽ tăng thêm vẻ đẹp cho ngôi nhà, đem không gian của thiên nhiên đến với ngôi nhà.
 

Mặt bằng tầng 1 - bản vẽ nhà 2 tầng có gara ô tô đẹp 90m2
 
Mẫu biệt thự đẹp trên đây có kích thước 9x11m được xây dựng trên mảnh đất 10x15m, như vậy diện tích còn lại không nhiều. Với diện tích 90m2/sàn, mặt bằng tầng 1 được bố trí 1 phòng khách, 1 phòng ngủ, 1 phòng bếp + ăn, 1 gara ô tô và 1 phòng vệ sinh. Gara ô tô có diện tích 16m2 vô cùng rộng rãi và thoải mái, đảm bảo nhu cầu để ô tô của gia đình.
 

Mặt bằng tầng 2 - bản vẽ nhà 2 tầng có gara ô tô đẹp 90m2
 
Tầng 2 của ngôi biệt thự được thể hiện đầy đủ trong bản vẽ nhà 2 tầng có gara ô tô đẹp 90m2 với 3 phòng ngủ, 1 phòng sinh hoạt chung, sân chơi, đảm bảo nhu cầu nghỉ ngơi, giải trí của các thành viên trong gia đình.
 
Xem thêm: Nhà 2 tầng mái thái
 
Mẫu số 6: Giới thiệu bản vẽ nhà 2 tầng có gara ô tô đẹp ở Hà Nội
 

Bản vẽ nhà 2 tầng có gara ô tô đẹp ở Hà Nội
 
Mẫu thiết kế biệt thự 2 tầng mái lệch trên đây được chúng tôi thực hiện cho chủ đầu tư là ông Vũ Thanh Nghị ở huyện Phú Xuyên – TP Hà Nội với kích thước 8x17m. Ngôi biệt thự mái lệch được thiết kế đơn giản từ hình khối đến màu sắc và vật liệu nhưng vẫn toát lên vẻ đẹp sang trọng và lịch sự. Ngôi nhà được thiết kế hình chữ nhật phù hợp với kích thước ô đất của gia chủ, các phòng ốc, chức năng không gian của ngôi nhà khá vuôn vắn và hợp lý tạo nên 1 thể thống nhất, hài hòa.
 

Mặt bằng tầng 1 - Bản vẽ nhà 2 tầng có gara ô tô đẹp ở Hà Nội
 

Mặt bằng tầng 2 - Bản vẽ nhà 2 tầng có gara ô tô đẹp ở Hà Nội
 
Mẫu số 7: Giới thiệu bản vẽ nhà 2 tầng có gara ô tô đẹp ở Lạng Sơn
 

Hình ảnh phối cảnh - bản vẽ nhà 2 tầng có gara ô tô đẹp ở Lạng Sơn
 
thiết kế nhà 2 tầng nổi bật với 3 khối chính đều đặn trong đó khối ở giữa ngôi nhà được đẩy thụt về sau tạo ra khoảng tiền sảnh và ban công rất đẹp. Việc thiết kế mặt tiền của ngôi nhà thành các khối như trên đem lại sự khác biệt, độc đáo cho ngôi nhà và với người nhìn. Hai khối hai bên được thiết kế cân xứng, đồng đều làm nổi bật nét kiến trúc ở giữa. Có thể nói rằng, mẫu thiết kế nhà 2 tầng có gara ô tô ở Lạng Sơn trên đây rất độc đáo và mới lạ, mang đặc trưng rất riêng so với các mẫu biệt thự 2 tầng cổ điển.
 

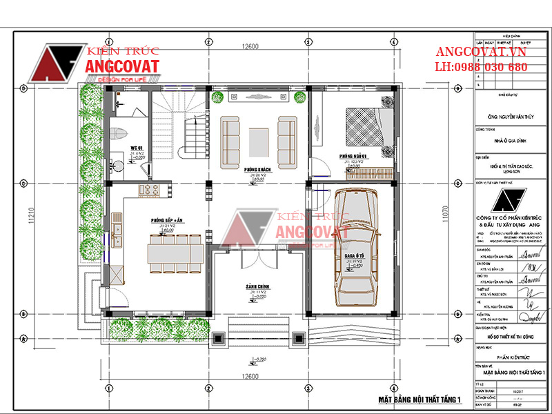
Mặt bằng nội thất tầng 1 - bản vẽ nhà 2 tầng có gara ô tô đẹp ở Lạng Sơn
 
Ngôi biệt thự với kích thước 13x11m khá vuông vắn vì vậy việc bố trí công năng sử dụng, không gian các phòng trở nên dễ dàng hơn nhiều. Nhìn một cách tổng thể, không gian các phòng được bố trí khoa học và hợp lí, kích thước vuông vắn đem lại cảm giác vẹn toàn cho ngôi biệt thự.
 

Mặt bằng nội thất tầng 2 - bản vẽ nhà 2 tầng có gara ô tô đẹp ở Lạng Sơn
 
Vị trí và kích thước các phòng ở tầng 2 cũng tương tự như ở tầng 1 và chỉ khác nhau về mục đích sử dụng. Tầng 2 được thiết kế 3 phòng ngủ ấm cúng và tiện nghi, tất cả các phòng đều được bố trí đầy đủ tiện nghi đem đến không gian nghỉ ngơi thoải mái cho các thành viên. Phòng thờ được đặt ở vị trí chính giữa của ngôi nhà, trang trọng và lịch sự thể hiện sự thành kính của chủ nhà.
 
Xem thêm: Nhà 2 tầng đẹp ở nông thôn
 
Mẫu số 8: Chiêm ngưỡng vẻ đẹp của mẫu bản vẽ nhà 2 tầng có gara ô tô đẹp ở Phú Thọ
 

Hình ảnh phối cảnh - bản vẽ nhà 2 tầng có gara ô tô đẹp ở Phú Thọ
 
Mẫu biệt thự 2 tầng cổ điển trên đây toát lên vẻ đẹp sang trọng, hào nhoáng như những lâu đài trong truyện cổ tích. Hình ảnh mẫu nhà 2 tầng có gara ô tô tại Phú Thọ với mặt tiền rộng rãi đã cho thấy sự nổi bật và bề thế của ngôi biệt thự, mặc dù không có nhiều họa tiết tỉ mỉ để trang trí nhưng vẫn vô cùng tinh tế, thu hút.
 
Ngôi biệt thự còn nổi bật với hệ thống cửa kính sang trọng, khung nhựa vòm cong tạo nên sự hòa hợp giữa tân cổ và hiện đại, không cầu kỳ mà vẫn độc đáo mới lạ. Tất cả các yếu tố từ việc sử dụng màu sắc, đá ốp tường đến các chi tiết cột và mái tất cả đã làm cho ngôi biệt thự trở nên lộng lẫy và tráng lệ, trở thành niềm mơ ước của nhiều người.
 

Mặt bằng nội thất tầng 1 - bản vẽ nhà 2 tầng có gara ô tô đẹp ở Phú Thọ
 
Cách bố trí công năng sử dụng của ngôi biệt thự được thể hiện rất rõ trong bản vẽ nhà 2 tầng có gara ô tô ở Phú Thọ. Với tổng diện tích 140m2/sàn, thông số công năng sử dụng của tầng 1 bao gồm: sảnh chính, phòng khách, phòng bếp ăn, 2 phòng ngủ, 1 nhà vệ sinh chung, 1 gara để xe, tất cả các phòng đều được bố trí cửa tạo nên sự thông thoáng.
 
Diện tích gara ô tô là 29m2 vô cùng rộng rãi, gia chủ có thể để ô tô, xe máy hoặc các đồ dùng khác trong ngôi nhà mà không lo bị trật.
 

Mặt bằng nội thất tầng 2 - bản vẽ nhà 2 tầng có gara ô tô đẹp ở Phú Thọ
 
Mặt bằng nội thất tầng 2 của mẫu biệt thự 2 tầng ở Phú Thọ được thiết kế vô cùng tỉ mỉ, cách bố trí các phòng hợp lý tạo điều kiện thuận lợi trong quá trình thi công và sử dụng. Tầng 2 được bố trí 3 phòng ngủ, 1 phòng thờ, 1 phòng sinh hoạt chung, bếp phụ, khu giặt phơi, 1 nhà vệ sinh chung, 3 ban công. Có thể thấy công năng sử dụng của ngôi biệt thự này vô cùng lớn khiến người khác phải ngưỡng mộ.
 
Mẫu số 9: Bản vẽ nhà 2 tầng có gara ô tô diện tích 100m2
 

Hình ảnh phối cảnh – bản vẽ nhà 2 tầng có gara ô tô diện tích 100m2
 

Mặt bằng nội thất tầng 1 – bản vẽ nhà 2 tầng có gara ô tô diện tích 100m2
 

Mặt bằng tầng 2 – bản vẽ nhà 2 tầng có gara ô tô diện tích 100m2
 
Kết luận: Về các mẫu bản vẽ nhà 2 tầng có gara ô tô
 
Các mẫu bản vẽ nhà 2 tầng có gara ô tô trên đây sẽ là những gợi ý tuyệt vời cho các gia đình đang có ý định thiết kế nhà 2 tầng có gara. Cách bố trí công năng vô cùng hợp lí và tiện nghi sẽ đem đến cho bạn không gian sống thoải mái, đáng mơ ước.
Mọi ý kiến đóng góp xin vui lòng gọi đến hotline của chúng tôi để được kiến trúc sư tư vấn và giải đáp.
Hotline: 0988 030 680
 
Tham khảo: Nhà phố 3 tầng đẹp
              
					







