Mãn nhãn với những mau biet thu dep 5 phòng ngủ do chính tay các kiến trúc sư nhiều năm kinh nghiệm và tâm huyết với nghề của kiến trúc Angcovat thiết kế.
Nhà 2 tầng 5 phòng ngủ
1. Tổ hợp biệt thự gia đình 2 tầng 5 phòng ngủ 10x10 kết hợp nhà ăn 80m2 BT226046



2. Mẫu biệt thự 2 tầng mái thái 5 phòng ngủ 120m2 ở Hà Nam BT326115




4. Thiết kế biệt thự 200m2 2 tầng 5 phòng ngủ kiểu thái giá 2.7 tỷ VND BT12785




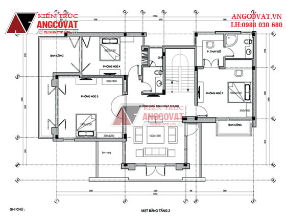
Một phòng làm viêc được tích hợp ngay trong phòng ngủ của bố mẹ. Đây là nơi làm việc vô cùng yên tính và lý tưởng, thích hợp cho những người bận rộn, dành nhiều thời gian cho công việc. Trong những ban thiet ke biet thu 2 tang 5 phòng ngủ này bạn sẽ thấy được sự tiện lợi trong sinh hoạt
5. Biệt thự 2 tầng BT1355



6. Mẫu biệt thự 2 tầng BT21545



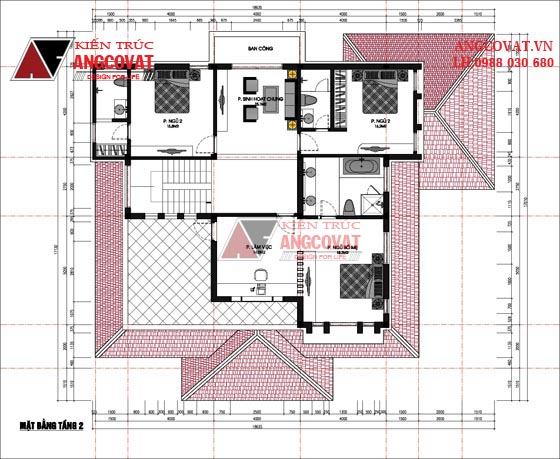
Phòng ngủ 4 được thiết kế thêm ban công giúp cho căn phòng luôn thoáng mát, bạn sẽ cảm thấy thực sự thư giãn và thoải mái khi ở trong căn phòng dành riêng cho mình.

7. Nhà biệt thự 2 tầng 5 phòng ngủ theo phong cách mái thái kích thước 20x15m đẹp BT68415



Các phòng ngủ đều có nhà vệ sinh khép kín vô cùng tiện lợi cho việc di chuyển, sinh hoạt cá nhân.
8. Mẫu thiết kế nhà biệt thự 2 tầng BT040615


Hai phòng ngủ của khách được thiết kế ngay tại tầng 1 của mẫu nhà này. Đây là nơi những vị khách quý của bạn có thể nghỉ ngơi khi đến thăm nhà, đặc biệt là những vị khách ở xa. Phòng ngủ này được đặt tại ngay cạnh phòng khách

Nhà 3 tầng 5 phòng ngủ
9. Thiết kế mẫu nhà 3 tầng hình chữ L mái ngói 130m2 ở Bắc Ninh BT127115





10. Biệt thự 3 tầng BT11565




11. Biệt thự 3 tầng BT111755



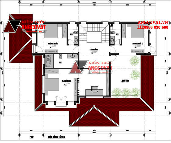
Phòng ngủ 1 trong thiết kế nhà đẹp 3 tầng có diện tích vô cùng lớn dành cho bố mẹ, trong phòng có đầy đủ những đồ nội thất cần thiết, phòng thay đồ và phòng vệ sinh cũng được bố trí ngay trong phòng. Tại phòng ngủ còn có một cửa mở ra sân cảnh để mỗi tối vợ chông gia chủ có thể ngồi tại đây, vừa hóng gió vừa ôn lại những chuyện trước đây, thật lãng mạn!

Phòng ngủ tại tầng 3 cũng được thiết kế tương tự như phòng ngủ ở tầng 2.
12. Mẫu biệt thự 3 tầng BT2945



Phòng ngủ 2 được tích hợp thêm phòng thay đồ và có ban công thoáng mát

13. Mẫu biệt thự 3 tầng BT040715




14. Thiết kế nhà 3 tầng 200m2 hiện đại và sang trọng BT313046


Phòng ngủ cho người giúp việc được đặt tại phòng 1 để người giúp việc tiện trong việc di chuyển trong công việc của mình.


Trên tầng 3 được bố trí phòng ngủ gồm 2 giường đơn, đây là không gian dành cho con cái. Những đứa nhỏ thường sẽ rất thích thú với những kiểu giường đơn như thế. Trong thiết nhà 3 tầng này bạn có thể thấy các không gian phòng ngủ được bố trí linh hoạt hơn trong thiết kế nhà đẹp 1 tầng
15. Mẫu thiết kế biệt thự 3 tầng hiện đại 100m2 3 mặt tiền 9x12m BT125056





Trên đây là những mẫu nhà có 5 phòng ngủ đẹp nhất mà chúng tôi muốn giới thiệu đến các bạn. Hi vọng BST này sẽ làm hài lòng bạn.
Để được tư vấn miễn phí mời bạn gọi theo hotline: 0988 030 680.









