Mẫu bản vẽ nhà 3 phòng ngủ 1 phòng thờ 1 tầng cấp 4, mẫu nhà cấp 4 nông thôn 3 phòng ngủ 1 phòng thờ đều là những tên gọi phổ biến khi nghĩ về những mẫu nhà 3 phòng ngủ 1 phòng thờ 1 tầng cấp 4 đẹp. Nằm trong bộ sưu tập những bản vẽ nhà 3 phòng ngủ 1 phòng thờ đẹp được nhiều khách hàng săn đón, các mẫu bản vẽ nhà cấp 4 đơn giản 3 phòng ngủ 1 phòng thờ là gợi ý lý tưởng mang đến cho gia đình bạn cuộc sống mới tuyệt vời và thoáng đãng.
Khoanh vùng đối tượng cho các mẫu bản vẽ nhà 3 phòng ngủ 1 phòng thờ
Trong bản vẽ bản vẽ nhà 3 phòng ngủ 1 phòng thờ chỉ sở hữu 3 phòng ngủ, ngoài ra mặt bằng còn được bố trí phòng khách, phòng bếp ăn và phòng vệ sinh chung. Nhắc đến mẫu nhà cấp 4 đẹp 3 phòng ngủ, mọi người thường nghĩ ngay đến một ngôi nhà có diện tích vừa phải, dao động từ 80m2 đến 180m2. Do diện tích mặt bằng khá rộng rãi nên việc bố trí 3 phòng ngủ cùng các phòng công năng còn lại được xem là hợp lý nhất khi trình bày trên bản vẽ thiết kế bản vẽ nhà 3 phòng ngủ 1 phòng thờ.
Trong những năm dài làm việc trong lĩnh vực thiết kế kiến trúc, chúng tôi nhận ra rằng thông thường những mẫu nhà biệt thự 1 tầng 3 phòng ngủ thường được xây dựng trên những khu đất có diện tích rộng rãi hình hình vuông, hình chữ nhật,tam giác hoặc hình thang không đều. Do nhu cầu của gia chủ nên ngoài việc xây dựng nhà cấp 4 nhỏ xinh thì gia chủ còn tận dụng không gian diện tích mặt bằng để trồng rau, xây dựng bãi đỗ xe hoặc làm sân trước nhà, do đó diện tích xây nhà cấp 4 có 3 phòng ngủ sẽ được thiết kế sao cho phù hợp với nhu cầu sống cũng như khả năng chi trả của chủ đầu tư.
Các mẫu thiết kế bản vẽ nhà 3 phòng ngủ 1 phòng thờ chỉ giới hạn số lượng phòng ngủ là 3 phòng, do đó ban thiet ke biet thu 1 tang 3 phòng ngủ được xem là không gian sống lý tưởng cho cả những gia đình có ít thành viên và nhiều thành viên. Thông thường thành viên sống trong nhà biệt thự vườn 1 tầng 3 phòng ngủ thường có 3 hoặc 4 thế hệ bao gồm ông bà, bố mẹ và các con. Trong đó, các phòng ngủ sẽ được phân chia cụ thể bao gồm vợ chồng gia chủ 1 phòng ngủ, ông bà 1 phòng ngủ và con cái sử dụng phòng ngủ còn lại. Trường hợp gia đình có 2 hoặc 3 con sống trong biệt thự 1 tầng 3 phòng ngủ thì chúng tôi tư vấn cho khách hàng sử dụng dạng giường tầng diện tích rộng để các con có thể có không gian riêng trong căn phòng của mình.
Phân loại mẫu bản vẽ nhà 3 phòng ngủ 1 phòng thờ
Ngày nay, các công trình mẫu thiết kế nhà 1 tầng mái bằng 3 phòng ngủ được thiết kế và xây dựng theo nhiều hình thức, kiểu cách khác nhau, do đó chúng tôi thường phân loại công trình biệt thự 1 tầng 3 phòng ngủ theo nhiều tiêu chí khác nhau.
- Phân loại theo tên gọi: Có thể thấy kiến trúc bản vẽ nhà 3 phòng ngủ 1 phòng thờ được gọi theo nhiều tên khác nhau tùy thuộc vào cách thức thiết kế. Nếu tên gọi là biệt thự 1 tầng 3 phòng ngủ thì kiến trúc của ngôi nhà phải nổi bật sự sang trọng, diện tích tương đối rộng và thể hiện đẳng cấp của gia chủ. Nếu tên gọi là mẫu nhà ống 1 tầng 3 phòng ngủ thì kiểu nhà có kiến trúc theo dạng hình ống với kích thước mặt tiền nhỏ hẹp và kích thước chiều sâu khá lớn. Ngoài ra, các tên gọi như mẫu nhà cấp 4 đẹp 3 phòng ngủ, mẫu nhà vườn 1 tầng 3 phòng ngủ hay nhà 1 tầng có 3 phòng ngủ đều là tên gọi phổ biến của các ngôi nhà 1 tầng thông thường.
- Phân loại mẫu nhà ống 1 tầng 3 phòng ngủ theo hình dáng: Về hình dáng, các mẫu thiết kế nhà cấp 4 với 3 phòng ngủ có thể được thiết kế xây dựng theo hình dạng bản thiết kế bản vẽ nhà 3 phòng ngủ 1 phòng thờ hình chữ L, bản vẽ bản vẽ nhà 3 phòng ngủ 1 phòng thờ nhà cấp 4 chữ U, hoặc xây bản vẽ nhà 3 phòng ngủ 1 phòng thờ hình vuông, hình chữ T (chữ thập). Mỗi hình dạng mặt bằng bản vẽ nhà 3 phòng ngủ 1 phòng thờ đều có những ưu điểm khác nhau phù hợp với nhu cầu, điều kiện ô đất và sở thích cùng mong muốn sử dụng của chủ đầu tư.
- Phân loại kiến trúc bản vẽ nhà 3 phòng ngủ 1 phòng thờ theo phong cách kiến trúc: Như chúng tôi đã nói ở trên, các mau ve nha cap 4 với 3 phòng ngủ có thể được thiết kế theo nhiều phong cách khác nhau bao gồm nhà ống 1 tầng 3 phòng ngủ theo phong cách hiện đại, kiểu bản vẽ nhà 3 phòng ngủ 1 phòng thờ theo phong cách cổ điển hoặc tân cổ điển Pháp, châu Âu. Ngoài ra những công trình kiến trúc bản vẽ nhà 3 phòng ngủ 1 phòng thờ còn mang hơi thở của kiến trúc đồng quê nông thôn phong cách đơn giản nhằm tạo không gian sống gần gũi cho các thành viên trong gia đình.
- Phân loại theo kiến trúc mái nhà: Phần lớn các mẫu biệt thự 1 tầng với 3 phòng ngủ được thiết kế với dạng mái thái ngói được kế thừa từ trường phái kiến trúc truyền thống của cha ông ta thời xưa. Ngoài ra, chúng tôi còn thiết kế một số công trình mẫu bản vẽ nhà 3 phòng ngủ 1 phòng thờ đẹp mái dốc lệch và các dạng mái bằng đổ bê tông theo yêu cầu của chủ đầu tư.
Các giai đoạn cơ bản để hoàn thiện ngôi bản vẽ nhà 3 phòng ngủ 1 phòng thờ
Để đảm bảo mẫu nhà 1 tầng có tầng hầm nông thôn 3 phòng ngủ được hoàn hảo và không có một khiếm khuyết nào thì gia chủ cần phải hiểu và xác định được các giai đoạn cần thiết trong quy trình hoàn thiện ngôi nhà.
Thứ nhất: Xác định nhu cầu xây dựng mẫu thiết kế nhà ở cấp 4, kinh phí đầu tư dự kiến và tìm hiểu những thông tin liên quan đến ngôi nhà vườn 1 tầng 3 phòng ngủ của gia đình mình. Tùy thuộc vào phong cách kiến trúc và diện tích sàn xây dựng mà có những chi phí xây bản vẽ nhà 3 phòng ngủ 1 phòng thờ khác nhau. Những công trình có diện tích càng lớn, phong cách kiến trúc càng sang trọng, đẳng cấp thì chi phí xây nhà cấp 4 có 3 phòng ngủ càng cao và ngược lại.
Thứ hai: Liên hệ, làm việc với đơn vị tư vấn thiết kế để tham khảo, trao đổi thông tin về mẫu thiết kế bản vẽ nhà 3 phòng ngủ 1 phòng thờ 1 phòng khách của gia đình mình. Trong giai đoạn này, chủ đầu tư nên đưa ra những thông số cơ bản về hiện trạng ô đất, khả năng kinh tế, nhu cầu công năng kiến trúc cụ thể cho mẫu thiết kế nhà ống 1 tầng 3 phòng ngủ để kiến trúc sư cân đối và đưa ra phương án thiết kế phù hợp nhất.
Thứ 3: Sau khi tiếp nhận bộ hồ sơ thiết kế nhà cấp 4 1 tầng 3 phòng ngủ từ phía đơn vị thiết kế, quý vị đã nắm trong tay một tập tài liệu thông số, kích thước cơ bản và cần thiết nhất về các mảng kết cấu, kiến trúc, điện nước… Từ đây, chủ đầu tư có thể bắt tay vào công việc thi công xây nhà cấp 4 có 3 phòng ngủ trên lô đất của gia đình mình.
Thứ 4: Giai đoạn hoàn thiện. Khi mẫu nhà ống 1 tầng 3 phòng ngủ đã được hoàn thiện cả về nội thất và ngoại thất, gia chủ chỉ việc bổ sung đồ nội thất cần thiết như bàn ghế, giưởng, tủ, các đồ công nghệ, đồ gia dụng… Và tất nhiên, lúc này các thành viên trong gia đình bạn chỉ việc tận hưởng không gian sống mới trong ngôi nhà vườn 1 tầng 3 phòng ngủ sau sự háo hức mong chờ bấy lâu mà thôi.
Riêng trong vấn đề chi phí xây bản vẽ nhà 3 phòng ngủ 1 phòng thờ, quý vị có thể tự tính toán chi phí xây dựng theo công thức: Diện tích mặt sàn xây dựng X 5 triệu hoàn thiện cơ bản ( đối với công trình theo phong cách đẹp thông thường và cơ bản). Ngoài ra, đối với những công trình nhà ở 1 tầng 3 phòng ngủ cầu kì thể hiện sự sang trọng đẳng cấp như phong cách cổ điển, tân cổ điển thì ta có công thức: Diện tích mặt sàn xây dựng X 7 triệu hoàn thiện cơ bản.
Nếu quý vị đang có nhu cầu xây dựng nhà ở, mong muốn được tư vấn thiết kế các mãu nhà mái thái 1 tầng 3 phòng ngủ, hãy liên hệ với chúng tôi để được giải đáp, tư vấn cụ thể về mọi vấn đề liên quan đế điện nước, kết cấu, kiến trúc, chi phí xây dựng và phong thủy khoa học
Những mẫu thiết kế bản vẽ nhà 3 phòng ngủ 1 phòng thờ đẹp 1 tầng cấp 4 để bạn tham khảo

Bản vẽ nhà 3 phòng ngủ 1 phòng thờ 1 tầng chữ U 180m2 đẹp
Đa phần với những mẫu thiết kế bản vẽ nhà 3 phòng ngủ 1 phòng thờ kiểu vườn 1 tầng đều tận dụng không gian phòng khách làm phòng thờ cần đặt nơi có không gian yên tĩnh, sang trọng và lịch sự. Nhiều người quan niệm không gian phòng thờ phải đặt nơi cao ráo, ít người qua lại, tránh sự nhũng nhiễu. Nhưng đối với rất nhiều gia chủ lại muốn thiết kế đặt phòng thờ cùng với không gian phòng khách, với một tâm niệm rằng nếu đặt bàn thờ ở tại không gian phòng khách càng làm cho không gian trở nên ấm cúng và, linh thiêng.
Giấc ngủ rất quan trọng với mỗi con người vì nó là thời gian nghỉ ngơi để bù đắp lại năng lượng và tạo cho mình sức khỏe để lao động và làm việc. do đó không gian thiết kế phòng ngủ phải thật thoáng đãng, có không khí lưu thông và đầy đủ ánh sáng,tránh tình trạng phòng ốc bí bách thiếu ô xy khi đó khi thức dậy sẽ tạo cho con người sự mệt mỏi.

Mẫu bản vẽ nhà 3 phòng ngủ 1 phòng thờ 1 tầng đẹp

Mẫu bản vẽ nhà 3 phòng ngủ 1 phòng thờ 1 tầng đẹp 150m2 mái thái
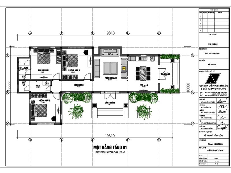
Trong bản vẽ nhà 3 phòng ngủ 1 phòng thờ thì ở cuối sảnh là không gian phòng ngủ của vợ chồng ông Hùng có diện tích 18,2m2 với diện tích khá rộng là không gian riêng tư của vợ chồng ông Hùng vơi đầy đủ trang thiết bị nội thất gồm giường ngủ, kệ tivi và tủ quần áo kết hợp bàn làm việc kích thước lớn được thiết kế ngay trong phòng ngủ tiết kiệm được không gian vừa rất thuận tiện cho gia chủ. Trong phòng ngủ có thiết kế phòng vệ sinh khép kín 3,2m2 với bồn tắm đứng sang trọng và đầy đủ trang thiết bị vệ sinh cao cấp hiện đại.
Tiếp đến là phòng ngủ diện tích 12,7m2 được thiết kế cho con cái của gia đình ông Hùng với đầy đủ trang thiết bị nội thất như giường ngủ, kệ tivi, và bàn học được kê ở góc cạnh kệ tivi rất thuận tiện cho con cái học tập. Với hệ thống cửa sổ lớn xung quanh thu đón ánh sáng làm lưu thông không khí tạo cho không gian phòng ngủ được thoáng mát. Ra phía ngoài hành lang có thiết kế 1 phòng vệ sinh diện tích 3,2 m2 cũng rất tiện nghi và rất thuận tiện khi sinh hoạt .
Tiếp đến là không gian phòng thờ với diện tích 12m2 với thiết kế các lam bằng gỗ 2 bên cửa tạo được không gian nghiêm trang cho khu phòng thờ. Với bộ bàn thờ kích thước lớn được giữa phòng thờ và 1 nệm ghế tròn để cho gia chủ làm thủ tục lễ bái, rất thiêng liêng. Với hệ thống cửa sổ luôn tạo không gian thoáng mát sạch sẽ cho không gian phòng thờ.

Mẫu bản vẽ nhà 3 phòng ngủ 1 phòng thờ 1 tầng đẹp diện tích 140m2

Mẫu bản vẽ nhà 3 phòng ngủ 1 phòng thờ 1 tầng đẹp diện tích 200m2

Thiết kế bản vẽ nhà 3 phòng ngủ 1 phòng thờ 1 tầng đẹp hình chữ U
Từ sảnh chính trong bản vẽ nhà 3 phòng ngủ 1 phòng thờ đẹp mắt bước vào là không gian phòng khách rộng 25m2 của nhà mặt tiền 11m hình chữ u. Phòng khách được bài trí gọn gàng, toát lên sự sang trọng, quý phái của gia đình. Theo ông Quyền, phòng khách chính là nơi thể hiện bộ mặt, đánh giá tính cách cũng như khiếu thẩm mỹ của gia chủ. Để tiết kiệm diện tích xây dựng chúng tôi tích hợp cả không gian phòng khách và phòng thờ. Bàn thờ kê ở vị trí trung tâm, chính giữa căn phòng, lưng dựa chắc chắn vào tường, hướng quay ra phía cửa chính hợp với vận mệnh gia chủ.
Hai phòng ngủ phía đầu chữ u của mẫu nhà 3 phòng ngủ 1 phòng thờ hình chữ u có diện tích 17m2, phòng ngủ 2 diện tích 14,5m2. Các phòng ngủ đều được trang bị đồ dùng tiện nghi, hiện đại, phục vụ tốt nhất cho nhu cầu nghỉ ngơi riêng tư của các thành viên trong gia đình: 1 giường đôi, kệ tivi, tủ quần áo, giá sách, bàn học, bàn làm việc. Cách bố trí vật dụng cũng được kiến trúc sư tính toán cẩn thận sao cho tiết kiệm diện tích và tạo độ thoáng đãng, gọn gàng cho từng căn phòng. Để tận dụng không gian thiên nhiên tuyệt vời xung quanh nhà hình chữ u kích thước 11x14m, chúng tôi thiết kế hệ cửa sổ đón gió, đón sáng tự nhiên, tạo nhiều điểm view lý tưởng, mang lại cảm giác nghỉ ngơi thoải mái nhất.

Thiết kế bản vẽ nhà 3 phòng ngủ 1 phòng thờ 1 tầng mái thái đẹp

Thiết kế bản vẽ nhà 3 phòng ngủ 1 phòng thờ 1 tầng mặt tiền 10m đẹp

Thiết kế bản vẽ nhà 3 phòng ngủ 1 phòng thờ cấp 4 diện tích 140m2

Thiết kế bản vẽ nhà 3 phòng ngủ 1 phòng thờ cấp 4 đẹp
Từ tiền sảnh trong bản vẽ nhà 3 phòng ngủ 1 phòng thờ bước tới là phòng khách kết hợp với phòng thờ đẹp mắt. Phòng thờ trang trọng được đặt vị trí trung gian ở giữa ngôi nhà, cùng hướng với hướng nhà vừa hợp phong thủy, vừa phù hợp với nhu cầu sống của mọi thành viên trong gia đình. Bên cạnh phòng thờ là phòng khách. Như bạn cũng nhìn thấy ở trên phối cảnh mẫu nhà vườn cấp 4 3 phòng ngủ, vị trí phòng khách có hệ thống cửa kính vòm, với rèm cửa lớn mở rộng tầm nhìn cho khách ngồi bên trong. Bản thân chủ nhà cũng có thể nhìn, quan sát được tầm nhìn rộng xung quanh toàn bộ ngôi nhà. Sau phòng khách được nối tiếp với không gian phòng bếp và phòng ăn.
Như vậy, mẫu thiết kế bản vẽ nhà 3 phòng ngủ 1 phòng thờ trên đây chắc chắn sẽ là phương án thiết kế nhà đẹp, phù hợp với nhu cầu sử dụng của các thành viên trong gia đình bạn. Nếu như bạn đang tìm kiếm ý tưởng xây bản vẽ nhà 3 phòng ngủ 1 phòng thờ đẹp, hoặc các mẫu thiết kế nhà đẹp với công năng sử dụng phù hợp với nhu cầu sinh hoạt của gia đình mình thì chúng tôi tin rằng, mẫu nhà vườn cấp 4 ở nông thôn trên đây là một gợi ý rất tuyệt vời dành cho phương án thiết kế của bạn. Ngoài ra, bạn có thể tham khảo thêm một số mẫu thiết kế bản vẽ nhà 2 phòng ngủ 1 phòng thờ đẹp khác được chúng tôi thực hiện cho rất nhiều chủ đầu tư trên cả nước tại đây
Liên hệ để được tư vấn tốt nhất Hotline: 0988 030 680








