" Gia đình là nơi vô cùng quan trọng, là nơi chúng ta sống mỗi ngày, là nơi ta được sinh ra và lớn lên, được nuôi dưỡng và trưởng thành, là nơi mà ở đó, chúng ta luôn dành được tình yêu thương vô điều kiện từ những người thân yêu". Cũng có lẽ vì thế, mà mọi điều tuyệt vời nhất trong cuộc sống, ai rồi cũng sẽ chắt chiu, vun đắp về cho gia đình. Một ngôi nhà tuyệt vời, cùng với vẻ đẹp, sự sang trọng, hay đầy ắp sự gần gũi yêu thương... cũng là thứ mà cả đời người ai cũng phấn đấu để có được. Mang đến cho gia đình mình sự lựa chọn tốt nhất. Nếu bạn đang có nhu cầu thiết kế, xây dựng những ngôi nhà có gác lửng 3 phòng ngủ thì các mẫu thiết kế dưới đây là những gợi ý tuyệt vời mà bạn không nên bỏ qua!
Đặc trưng của các mẫu nhà có gác lửng 3 phòng ngủ
Các mẫu thiết kế nhà gác lửng hiện nay là cách làm tăng thêm diện tích không gian sử dụng cho ngôi nhà và mang lại vẻ đẹp kiến trúc độc đáo cho công trình nhà ở. Không phải ngẫu nhiên mà các thiết kế nhà có gác lửng 3 phòng ngủ bỗng trở nên thu hút và được nhiều chủ đầu tư lựa chọn xây dựng.
Gác lửng, hay tầng lửng trong kiến trúc được xem là không gian sử dụng thêm, thường nằm ở giữa đối với các công trình nhà phố cao tầng, hoặc cũng được coi là tầng cao nhất trong nhà 1 tầng. Đối với kiến trúc nhà ở biệt thự vườn, không gian của gác lửng thường được hiểu là phần trên cùng ( là gác xép) hoặc ( tầng tum) trong mỗi công trình thiết kế. Điều này thực sự phù hợp với mong muốn sử dụng cũng như nhu cầu của nhiều gia đình hiện nay, tầng lửng sẽ được sử dụng cũng tương tự như một tầng nhà ở, tuy nhiên, diện tích của tầng lửng thường không lớn bằng diện tích sàn mà thường có diện tích sử dụng nhỏ hơn so với sàn tầng 1. Về mặt chức năng, tầng lửng thường sẽ được sử dụng cho các không gian phòng ngủ hoặc phòng thờ mang tính riêng tư. Hơn nữa, so với các ngôi nhà được lên tầng hoàn thiện, thì sử dụng tầng lửng như thế này có thể giúp bạn tiết kiệm được thêm một khoản chi phí cho việc hoàn thiện ngôi nhà.
Về tính thẩm mỹ: Tầng lửng trong các mẫu nhà có gác lửng 3 phòng ngủ rất phù hợp với những ngôi nhà hẹp hoặc bị khống chế về mặt chiều cao. Còn đối với các thiết kế nhà 1 tầng có gác lửng, nhà 2 tầng có gác lửng, hay 3 tầng có gác lửng,... rộng rãi theo kiểu biệt thự nhà vườn thì tầng lửng có vai trò vô cùng quan trọng trong việc giúp tạo ra một không gian đẹp và thoáng cho một ngôi nhà lớn. Điều này thực sự phù hợp với nhu cầu và mong muốn sử dụng của nhiều gia đình hiện nay. Kiến trúc nhà có gác lửng 3 phòng ngủ được thực hiện với vẻ đẹp đầy thu hút, chiều cao của ngôi nhà khá thấp, với mái ngói tạo nên vẻ đẹp bề thế và sang trọng.
Tùy thuộc vào nhu cầu sử dụng của từng gia đình mà tầng lửng được thiết kế với nhiều chức năng khác nhau như: Phòng ngủ, phòng thờ, phòng sinh hoạt chung,...Thường thì công dụng của gác lửng trong các mẫu nhà có gác lửng 3 phòng ngủ nói riêng và các mẫu nhà có gác lửng nói chung thể hiện được sự đa dạng, năng động trong cách vận dụng công năng sử dụng tiện nghi của nó.
Một vài lưu ý khi thiết kế nhà có gác lửng 3 phòng ngủ đẹp
Cũng giống như rất nhiều công trình nhà ở, biệt thự khác, việc thiết kế nhà có gác lửng 3 phòng ngủ đẹp được thực hiện với đa dạng phong cách kiến trúc khác nhau, đa dạng cách bố trí nội thất khác nhau. Điều này cũng còn tùy thuộc vào quan điểm thẩm mỹ, kiến trúc cũng như kĩ thuật, cách thức xử lý không gian của một ngôi nhà. Đối với các ngôi nhà biệt thự nhà vườn khá rộng rãi như thế này, thì ngoài mục đích sử dụng, không gian của nhà có gác lửng 3 phòng ngủ còn có thể được tận dụng tạo thành các không gian độc đáo và lạ mắt cho ngôi nhà. Bạn có thể tận dụng không gian nhỏ xinh của tầng lửng để tạo nên một nơi yên tĩnh cho phòng trà, đọc sách, hoặc tạo nên môt căn phòng sinh hoạt chung ấm áp dành cho các thành viên trong gia đình quây quần bên nhau.
Tầng lửng trong các mẫu thiết kế nhà có gác lửng 3 phòng ngủ có chiều cao thấp hơn so với tầng nhá bình thường. Độ cao trung bình khoảng từ 2.5 đến 2.8m. Nếu thấp hơn chiều cao này, gác lửng sẽ tạo nên cảm giác thấp và bí bách cho ngôi nhà. Gác lửng nên đặt trên diện tích khoảng 2/3 chiều sâu của ngôi nhà. Đối với thiết kế nhà có gác lửng 3 phòng ngủ, vị trí của tầng lửng thường chiếm khoảng 1/2 đến 2/3 diện tich xây dựng của tầng 1 ( hay tầng trệt)
Trong thiết kế nhà có gác lửng 3 phòng ngủ, hoặc các mẫu nhà có gác lửng khác thì cầu thang nên được thiết kế với kích thước và diện tích nhỏ gọn, không quá tốn kém diện tích. Đồng thời, không gian của cầu thang lên tầng nên được bố trí ở khu vực thuận lợi cho việc đi lại và di chuyển. Nếu như bạn cảm thấy khó khăn trong việc bố trí và sắp xếp công năng sử dụng như thế này thì có thể liên hệ với các đơn vị tư vấn thiết kế nhà ở, thiết kế biệt thự chuyên nghiệp để có được cách thức bố trí công năng sử dụng, và ngôi nhà với kiến trúc đẹp mắt nhất.
Tổng hợp các mẫu thiết kế nhà có gác lửng 3 phòng ngủ đẹp
Dưới đây sẽ là các mẫu thiết kế nhà có gác lửng 3 phòng ngủ đẹp: với kiến trúc và công năng sử dụng hợp lý, phù hợp với mong muốn và nhu cầu sử dụng của nhiều gia đình hiện nay. Đây thực sự là những không gian sống đáng mơ ước của nhiều gia đình hiện nay mà chắc hẳn bạn sẽ yêu thích! Hãy cùng chúng tôi tham khảo cách thức bố cục công năng và hình ảnh kiến trúc của công trình dưới đây:
Mẫu số 1: Mẫu nhà có gác lửng 3 phòng ngủ 120m2
Một vài thông tin về mẫu nhà có gác lửng 3 phòng ngủ 120m2 mà Kiến trúc sư Angcovat vừa thực hiện thiết kế cho chủ đầu tư ở Thái Nguyên. Công trình được thực hiện với vẻ đẹp sang trọng và ấn tượng vô cùng!
1: Mã số biệt thự: BT814048
2: Địa điểm xây dựng: Thái Nguyên
3: Mặt tiền: 8m
4: Chiều sâu: 18m
5: Diện tích: 80m2
6: Chi phí xây dựng dự tính: Khoảng 1.2 tỷ đồng
7: Thông số công năng:
+ Tầng 1: Phòng khách: 26.5m2, Phòng ăn: 29.5m2, Phòng ngủ: 16.6m2, Phòng bếp: 15.1m2, WC1: 5.8m2
+) Tầng 2: Kho: 21m2, Phòng thờ 11.4m2, Ban công 6.5m2, Phòng ngủ 2: 14.5m2, Phòng ngủ 3: 16m2, WC2: 4.17m2

Phối cảnh mẫu 1: Thiết kế nhà gác lửng 3 phòng ngủ hiện đại mái thái
Không gian kiến trúc của ngôi nhà gác lửng 3 phòng ngủ được thưc hiện với các chi tiết kiến trúc khá đơn giản, phần chân tường ngoại thất được sử dụng loại đá sẫm ốp chân tường ngoại thất tăng thêm tính sang trọng và ấn tượng cho ngoại thất của ngôi hà. Đồng thờ, việc sử dụng các vật liệu ằng gỗ, hay bê tông sơn giả gỗ cũng tạo nên sức hút mạnh mẽ về mặt màu sắc hiện đại cho ngoại thất của ngôi nhà. Kiến trúc mái ngói thái độc đáo, phù hợp với màu sắc cũng như vẻ đẹp, sáng cho công trình. Mái ngói xám đen được sử dụng cho ngoại thất, làm tăng tinh mới mẻ, điểm nhấn cho ngôi nhà. Có thể thấy, chiều cao của tầng lửng của ngôi nhà không quá lớn, điều này đồng nghĩa với việc không gian trong tầng lửng được tận dụng để làm phòng ôc không quá rộng, vừa vặn với nhu cầu sử dụng. Mẫu nhà có gác lửng 3 phòng ngủ cũng có sân thượng, ban công tăng thêm vẻ đẹp và sự gần gũi với thiên nhiên xung quanh!

Mặt bằng nội thất tầng 1: mẫu nhà có gác lửng 3 phòng ngủ mái thái hiện đại

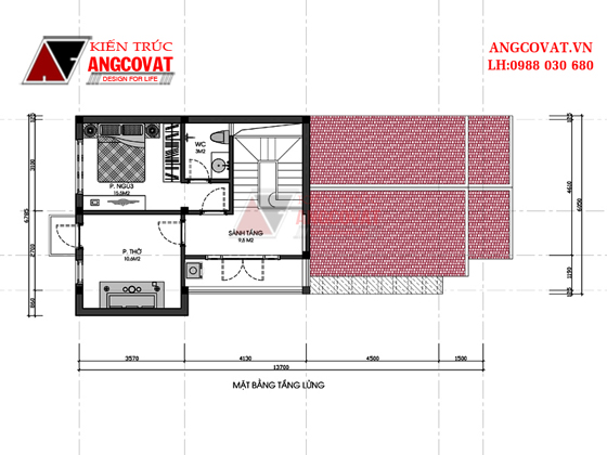
Mặt bằng tầng lửng: Mẫu nhà có gác lửng 3 phòng ngủ
Tầng lửng trong mẫu nhà có gác lửng 3 phòng ngủ 120m2 này được sử dụng đặt 2 phòng ngủ. Còn lại 1 phòng ngủ được đặt ở tầng 1( tầng trệt) của ngôi nhà. Diện tích của 2 phòng ngủ không quá lớn, tuy nhiên vừa vặn với nhu cầu sử dụng hiện nay của nhiều gia đình. Thềm vào đó, 1 phòng thờ được đặt ở không gian của tầng lửng này cũng tạo điều kiện thuận lợi cho việc đi lại và di chuyển. Không gian sử dụng của ngôi nhà rộng rãi, với 1 phòng thờ được đặt ở đây, mang lại sự thuận tiện và trang trọng trong quá trình sử dụng của toàn bộ gia đình. Cầu thang đơn được sử dụng trong mẫu nhà có gác lửng mang lại sự gọn gàng, không tốn kém quá nhiều diện tích nên được ưu ái sử dụng trong ngôi nhà.
Mẫu 2: Mẫu nhà có gác lửng 3 phòng ngủ 100m2
1: Mã số biệt thự: BT226115
2: Địa điểm xây dựng: Lạng Sơn
3: Mặt tiền: 7m
4: Chiều sâu: 15m
5: Diện tích: 100m2
6: Chi phí xây dựng dự tính: Khoảng 800 triệu đồng
7: Thông số công năng:
+) Tầng 1: 1 phòng khách, 1 phòng bếp ăn, 1 phòng ngủ, 1 phòng vệ sinh chung - diện tích tầng 1: 100m2
+) Tầng gác lửng : 1 phòng thờ, 2 phòng ngủ, 1 phòng vệ sinh chung - diện tích tầng gác lửng : 70m2

Hình ảnh phối cảnh: Mẫu nhà có gác lửng 3 phòng ngủ
Vẻ đẹp hiện đại của mẫu nhà có gác lửng 3 phòng ngủ mặt tiền 7m được thể hiện nhờ màu sắc sơn tường ngoại thất đầy ấn tượng và gần gũi với không gian xây dựng ở quê. Lựa chọn gam màu trắng cho ngoại thất của ngôi nhà, vận dụng cùng với những gam màu xám, ghi nhẹ nhàng và đầy tinh tế mang lại cảm giác đối xứng, cân bằng cho mắt nhìn. Không gian mái của những mẫu nhà có gác lửng 3 phòng ngủ này cũng là không gian tạo nên điểm nhấn mạnh mẽ. Phần mái của gác lửng giật cấp đầy ấn tượng, thu hút với không gian xung quanh, mang đến không gian phù hợp với nhu cầu của nhiều gia đình hiện nay.

Mặt bằng tổng thể: Thiết kế nhà có gác lửng 3 phòng ngủ mái thái

Mặt bằng tầng lửng: Mẫu nhà có gác lửng 3 phòng ngủ hiện đại
Tầng lửng trong mẫu nhà có gác lửng 3 phòng ngủ cũng được bố trí 2 phòng ngủ, 1 phòng thờ. Diện tích của các phòng không quá lớn, nhưng vừa vặn với nhu cầu và mong muốn sử dụng của chủ đầu tư. Đồng thời, bạn cũng có thể sẽ cảm nhận được sự trang trọng, thành kính khi đặt phòng thờ ở vị trí cao nhất của ngôi nhà và trùng với hướng của cửa chính! Các mẫu nhà 1 tầng có gác lửng với các diện tích sử dụng khác nhau, tuy nhiên, đối với từng công trình, nhu cầu sử dụng của gia đình khác nhau mà kiến trúc sư sẽ đưa ra cách bố cục công năng sử dụng khác nhau.
Mẫu 3: Ngắm thiết kế nhà có gác lửng 3 phòng ngủ đơn giản mà đẹp
1: Mã số biệt thự: BT121057
2: Địa điểm xây dựng: Thái Bình
3: Mặt tiền: 13m
4: Chiều sâu: 11m
5: Diện tích: 100m2
6: Chi phí xây dựng dự tính: Khoảng 1.2 tỷ đồng
7: Thông số công năng:
+) Tầng 1: Phòng thờ (14m2), Phòng khách (14m2), Phòng ngủ 1( 14m2), Phòng ngủ 2( 9m2), Tiền sảnh (7m2), Bếp ăn( 24m2)
+) Tầng 2: Phòng ngủ 4 (20m2), Phòng giặt (5m2)

Hình ảnh phối cảnh: mẫu nhà có gác lửng 3 phòng ngủ mái ngói đẹp
Nếu bạn yêu thích một không gian sống đơn giản, mang đậm phong cách đồng quê, gần gũi với thiên nhiên thì mẫu nhà có gác lửng 3 phòng ngủ trên đây là một trong những không gian kiến trúc bạn không nên bỏ qua. Cũng tương tự như thiết kế tầng tum trong các mẫu nhà 1 tầng 1 tum, tầng gác lửng của ngôi nhà khá cao, rộng, phù hợp với mong muốn về mặt kiến trúc cũng như nhu cầu sử dụng của gia đình. Kiến trúc đơn giản, phần mái ngói đỏ gần gũi, mang lại cảm giác thân thuộc với xung quanh hơn cả. Có lẽ bởi sự đơn giản, không quá cầu kì như thế này mà ngôi nhà nhận được rất nhiều thiện cảm của khách hàng. Đặc biệt là những ai đang có nhu cầu xây dựng nhà 1 tầng phong cách đồng quê truyền thống. Thì mẫu nhà có gác lửng 3 phòng ngủ này là một trong số những gợi ý tuyệt vời bạn không thể bỏ qua được cho ngôi nhà của mình.

Mặt bằng tầng 1: Mẫu thiết kế nhà có gác lửng 3 phòng ngủ đẹp vô cùng sang trọng và ấn tượng

Mặt bằng tầng lửng: Ngắm mẫu nhà có gác lửng 3 phòng ngủ đơn giản
Mẫu số 4: Tư vấn thiết kế nhà có gác lửng 3 phòng ngủ đơn giản vô cùng
Thông tin về mẫu thiết kế nhà có gác lửng 3 phòng ngủ vô cùng tiện nghi và đẹp mắt ở Thanh Hóa!
1: Mã số biệt thự: BT127077
2: Địa điểm xây dựng: Thọ Xuân - Thanh Hóa
3: Mặt tiền: 8m
4: Chiều sâu: 14m
5: Diện tích: 70m2
6: Chi phí xây dựng dự tính: Khoảng 500- 600 triệu đồng
7: Thông số công năng:
+) Tầng 1: Phòng khách 22m2, Tiền sản 7m2, WC 5m2, Sảnh phụ 3m2, Phòng bếp ăn 16m2, Phòng ngủ 1 9m2, Sân chơi 8.7m2
+) Gác lửng: Sảnh 6m2, Phòng ngủ 2 9m2, Phòng ngủ 3 13m2, WC 5m2, Sinh hoạt chung 17m2.

Kiến trúc mẫu nhà có gác lửng 3 phòng ngủ mái ngói thái mềm mại
Kiến trúc không phải là sự sắp đặt của hình khối nhàm chán, khô cứng, sự cứng khỏe, chắc chắn của vật liệu bê tông cốt thép làm nên vẻ đẹp tinh tế của ngôi nhà. Tuy nhiên, không gian kiến trúc của ngôi nhà cũng có thể làm nên được vẻ đẹp mềm mại, tinh tế vô cùng khi nhìn ngắm không gian của ngoại thất. Ngôi nhà với 2 gam màu trắng + đỏ mận làm chủ đạo mang đến vẻ đẹp quyến rũ đầy màu sắc! Hệ thống cửa sổ đơn, cửa kép của ngôi nhà cũng có tác dụng tạo nên chiều sâu về mặt kiến trúc khi nhìn ngắm. Thêm vào đó, bạn cũng sẽ dễ dàng bị thu hút bởi thiết kế mái ngói thái đầy ấn tượng và trang trọng cho nhờ màu ngói xi măng đỏ gần gũi, thân thuộc và thiết kế mái ngói giật cấp đầy táo bạo và sang trọng hơn cả.

Mặt bằng tầng 1: Mẫu thiết kế nhà có gác lửng 3 phòng ngủ sang trọng

Mặt bằng tầng 2: Tư vấn thiết kế nhà có gác lửng 3 phòng ngủ đẹp
Mẫu số 5: Ngắm mẫu nhà có gác lửng 3 phòng ngủ 7x15m đơn giản ở quê
1: Mã số biệt thự: BT625046
2: Địa điểm xây dựng: Thanh Hóa
3: Mặt tiền: 7m
4: Chiều sâu: 15m
6: Chi phí xây dựng dự tính: Khoảng 800 triệu đồng
7: Thông số công năng:
+) Tầng 1: Phòng khách: 18,5m2; Phòng ngủ 1- 10m2; Phòng ngủ 2- 9,5m2
+) Tầng lửng: Phòng ngủ 3- 12m2; Phòng thờ- 10,7m2.

Phối cảnh: Mẫu nhà 1 tầng 3 phòng ngủ đơn giản

Mặt bằng tầng 1: Mẫu nhà có gác lửng 3 phòng ngủ đẹp

Mặt bằng tầng lửng: Thiết kế nhà gác lửng 3 phòng ngủ đẹp
Mặt bằng tầng lửng của ngôi nhà này chỉ được sử dụng 1 phòng thờ, 1 phòng ngủ với diện tích sử dụng vừa vặn. Một khoảng không gian, ban công rộng rãi, đẹp mắt phù hợp với mong muốn cũng như yêu cầu và sự thoáng đãng cho toàn bộ diện tích sử dụng trong tầng lửng của ngôi nhà.
Mẫu số 6: Ngắm mẫu nhà có gác lửng 3 phòng ngủ đẹp ở quê
1: Mã số biệt thự: BT109096
2: Địa điểm xây dựng: Điện Biên
3: Mặt tiền: 7m
4: Chiều sâu: 18m
5: Diện tích: 100m2
6: Chi phí xây dựng dự tính: Khoảng 900 triệu đồng
7: Thông số công năng:
+) Tầng 1: Tiền sảnh, Phong khách, bếp ăn, gara, 1 phòng ngủ, 1 phòng vệ sinh
+) Tầng lửng: 2 phòng ngủ, 1 phòng thờ, ban công.

Hình ảnh phối cảnh: Mẫu thiết kế nhà gác lửng 3 phòng ngủ mái ngói thái
Mẫu thiết kế nhà gác lửng 3 phòng ngủ mái thái thể hiện được sự đơn giản, sang trọng. Ngôi nhà cũng phù hợp với cuộc sống hiện đại nhờ tính tiện nghi, đa năng.. với thiết kế gara ô tô trong nhà vô cùng thuận tiện cho việc di chuyển và đi lại của cả gia đình.

Mặt bằng tầng 1: Mẫu thiết kế nhà có gác lửng 3 phòng ngủ đẹp

Mặt bằng tầng lửng: Mẫu nhà có gác lửng 3 phòng ngủ đẹp ở Điện Biên
Kết luận: Về các mẫu nhà có gác lửng 3 phòng ngủ đẹp
Ngoài những thiết kế nhà có gác lửng 3 phòng ngủ trên đây mà chúng tôi đã thực hiện cho rất nhiều khách hàng trên cả nước, bạn cũng có thể đưa ra yêu cầu về những không gian kiến trúc nhà ở phù hợp với mong muốn cũng như yêu cầu sử dụng của nhiều gia đình. Nếu bạn đang cảm thấy vướng mắc trong quá trình lên ý tưởng, thiết kế, cũng như thi công nhà trọn gói công trình nhà ở, biệt thự của gia đình mình thì bạn có thể liên hệ trực tiếp với kiến trúc sư của chúng tôi để nhận được sự tư vấn trực tiếp và nhanh chóng nhất!
Hồ sơ thiết kế nhà có gác lửng 3 phòng ngủ đầy đủ bao gồm các bản vẽ thiết kế mặt bằng công năng sử dụng, mặt đứng, mặt cắt, các bản vẽ thiết kế kiến trúc, điện, nước, kết cấu đầy đủ cho bạn thi công!
Chúc bạn sớm có được ngôi nhà như ý muốn!
Liên hệ: Hotline: 0988 030 680
Xem thêm: biệt thự 3 tầng 1 mặt tiền








