Hiện nay, nhu cầu thiết kế và xây dựng nhà 2 tầng diện tích 100m2 ngày càng cao, đáp ứng được nhu cầu sinh hoạt và sở thích của nhiều gia chủ Việt. Chính vì thế, nhiều chủ đầu tư muốn xây dựng nhà ở, mong muốn thực hiện thiết kế và thi công nhưng chưa tìm được ý tưởng, và phương pháp thiết kế mặt bằng nhà 2 tầng 100m2 sao cho hợp lý... Những chia sẻ, lưu ý và giới thiệu các mẫu nhà ở của chúng tôi dưới đây hi vọng rằng sẽ giúp được bạn thể hiện được những mong muốn, ý tưởng xây dựng công trình nhà ở của gia đình mình một cách tốt nhất!
Mặt bằng nhà 2 tầng 100m2 là gì? Lưu ý để xây dựng mặt bằng nhà 2 tầng 100m2 đẹp

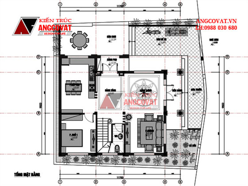
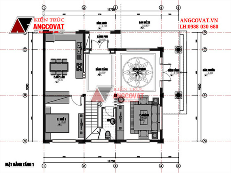
Mặt bằng tầng 1 thiết kế nhà 2 tầng 100m2
Mặt bằng nhà 2 tầng 100m2 là gì?
Có thể hiểu mặt bằng nhà 2 tầng bản vẽ thể hiện được công năng sử dụng, vị trí, kích thước các phòng trong mẫu nhà 2 tầng có diện tích sử dụng 100m2, mặt bằng thể hiện được vị trí, kích thước của các phòng, kích thước của vách cửa đi, cửa sổ cũng như các đồ dùng khác trong ngôi nhà như bàn ghế, tủ, kệ tivi… Mặt đứng thể hiện chiều cao.
Lưu ý khi thiết kế mặt bằng nhà 2 tầng 100m2 không thể bỏ qua khi có ý định xây nhà
Nhu cầu thiết kế và xây dựng nhà ở, biệt thự từ trước đến nay luôn rất lớn. Chính vì thế mà việc bố cục công năng sử dụng, xử lý kiến trúc của mỗi công trình nhà ở này đều được thực hiện với mong muốn mang lại những công trình thực sự hữu ích, thẩm mỹ đáp ứng nhu cầu của nhiều gia đình hiện nay. Khách hàng không chỉ quan tâm đến cách thức thiết kế kiến trúc, mà còn quan tâm đặc biệt đến công năng sử dụng. Mặt bằng nhà 2 tầng 3 phòng ngủ, mặt bằng nhà 2 tầng đơn giản... các bản vẽ thiết kế mặt bằng, cách thiết kế mặt bằng ra sao rất được khách hàng quan tâm. Và việc thiết kế mặt bằng nhà 2 tầng 100m2 cũng không nằm ngoại lệ.
Khi thiết kế, bố cục một ngôi nhà, kiến trúc sư phải xét đến những yêu cầu cơ bản đề ra do chủ đầu tư như:
+) Phải nghiên cứu đầy đủ, sắp xếp dây chuyền công năng sử dụng hợp lý, sao cho thuận tiện với tính chất, và công năng sử dụng của mỗi công trình. Mối quan hệ giữa các bộ phận của mẫu thiết kế để có giải pháp kiến trúc, công năng phù hợp nhất.
+) Sắp xếp, bố trí các phòng chức năng, diện tích từng phòng chức năng phù hợp với thói quen, phong thủy, sự di chuyển của các thành viên trong gia đình.
Việc phân bố mặt bằng công năng sử dụng là một trong những yêu cầu mà chủ đầu tư nào khi thiết kế và thi công cũng đều đặt ra cho mình những tiêu chuẩn nhất định để đảm bảo được không gian sống phù hợp với mục đích sinh hoạt của các thành viên trong gia đình. Trên thực tế, khi thiết kế nhà, lên ý tưởng mặt bằng công năng, phải phụ thuộc rất nhiều đến kích thước lô đất, hình dạng lô đất, quy mô xây dựng, số tầng dự kiến, phong thủy ngôi nhà, thói quen sử dụng,... vì thế mà không có công trình nào có mặt bằng sử dụng giống nhau cả, mỗi công trình, dự án khác nhau lại có cách xử lí khác nhau.
Đối với mặt bằng nhà 2 tầng 100m2, không gian sử dụng cũng tương đối rộng rãi đối với nhà ở dân dụng, sẽ có những cách xử lí kiến trúc, công năng khác nhau.Chúng tôi hi vọng rằng, sẽ mang đến cho ban những sản phẩm thiết kế ấn tượng và phù hợp nhất với mỗi gia đình. Với đa dạng phong cách kiến trúc khác nhau, không quá cầu kì, mà đơn giản, chi phí phù hợp xây dựng sẽ là gợi ý thú vị dành cho nhiều gia đình. Mặt bằng nhà 2 tầng 100m2 đẹp cũng sẽ là cơ sở cho việc hình thành lên những phương án thiết kế kiến trúc, những ý tưởng thiết kế kiến trúc ngoại thất phù hơp. Mặt bằng đẹp sẽ cho ra những thiết kế kiến trúc nhà biệt thự 2 tầng 100m2 đẹp và thỏa mãn được những nhu cầu, mong muốn sử dụng của nhiều gia đình.
Để đánh giá được vẻ đẹp của ngôi nhà, phải căn cứ cả vào tổng thể từ ngoài vào trong. Có nghĩa là ngôi nhà cần đẹp về tỉ lệ, kiến trúc, nội thất, phong thủy. Kiến trúc nhà ở không chỉ cần đẹp, thể hiện rõ ràng form kiến trúc, đồng thời còn phải đảm bảo kiến trúc nhà không chỉ đẹp mà còn đảm bảo tính khách quan, hòa hợp với không gian xung quanh.
Bố trí nhiều cửa sổ nếu nhà bị hạn chế diện tích cửa chính để nhà thoáng đãng và gần gũi với thiên nhiên hơn. Ngoài ra những thiết kế nhà ở cũng mang đến những công năng và giá trị ưu việt riêng dành cho mình hiện nay, thêm nữa mẫu nhà này cũng là lựa chọn hàng đầu hiện nay dành cho khách hàng mang đến những mang đến cho khách hàng những công dụng tuyệt vời dành cho mình nhé. Đặc biệt những mẫu nhà này đảm bảo nhiều ưu thế và công dụng đảm bảo những giá trị sử dụng lâu bền nhất dành cho mình.
Ngoài ra, bạn cũng nên lựa chọn cho mình 1 đơn vị tư vấn và thiết kế để xây dựng được mặt bằng nhà 2 tầng 100m2 tiện nghi khoa học nhất. Hiện nay, trên thị trường có rất nhiều đơn vị tư vấn thiết kế nhà ở chất lượng và đảm bảo quy trình kỹ thuật chuyên nghiệp. Bạn có thể dễ dàng tìm được các đơn vị tư vấn thiết kế hoặc cá nhân có thể giúp bạn hoàn thiện mặt bằng nhà 2 tầng 100m2 như ý muốn. Đối với nhiều người, họ mong muốn tìm những đơn vị tư vấn thiết kế uy tín. Bạn nên dựa vào số lượng các công trình thiết kế, thi công mà công ty, đơn vị đó đã thực hiện để đưa ra lựa chọn hợp lý cho mình. Bởi qua nhiều công trình, chắc chắn bạn đơn vị sẽ rèn luyện được thêm kỹ năng và kinh nghiệm cho mình tốt nhất.
Xem thêm: thiết kế biệt thự 2 tầng chữ L
Những gợi ý trên đây là chia sẻ của các kiến trúc sư để xây dựng mặt bằng nhà 2 tầng 100m2, bạn có thể tham khảo để giúp thiết kế nhà ở của gia đình mình trở nên đơn giản và thuận tiện và sang trọng nhất, tận dụng tối đa được diện tích sử dụng của gia đình.
9+ ý tưởng thiết kế mặt bằng nhà 2 tầng 100m2 đẹp miễn chê
Đáp ứng nhu cầu về thiết kế ngày càng cao của nhiều khách hàng mong muốn xây dụng mẫu nhà 100m2 đáp ứng nhu cầu sinh hoạt cho gia đình. Hằng ngày các kiến trúc sư ANG tiếp nhận được rất nhiều câu hỏi và thắc mắc của khách hàng được gửi đến cho kiến trúc sư của chúng tôi rấtt nhiều. Ở bài viết này, chúng tôi sẽ tư vấn, giới thiệu một số bản vẽ mặt bằng nhà 2 tầng 100m2. Bao gồm hình ảnh phối cảnh, mặt bằng bố trí công năng sử dụng các phòng, và bảng thông tin sơ bộ các công trình nhà ở này để bạn có thể tham khảo thêm một vài ý tưởng, phương án thiết kế dành cho gia đình của mình.
Mẫu 1: Mặt bằng nhà 2 tầng 100m2 thiết kế 3 phòng ngủ tại Hà Nội
Mẫu nhà 2 tầng 100m2 của gia đình ông Thanh tại Tây Hồ - Hà Nội, được thiết kế theo phong cách hiện đại, sử dụng tông màu chủ đạo là trắng sứ kết hợp với mái lợp ngói sóng màu xanh, phần chân để ốp đá rối sẫm màu, toàn bộ cửa sổ, cửa đi dùng cửa nhựa lõi thép kết hợp với kính trắng, lấy sáng và gió vào các phòng. Hình khối của nhà đơn giản có khối đua trước làm tiền sảnh và khối giật phía sau để phân chia mái.

Hình ảnh phối cảnh mẫu nhà 2 tầng diện tích sử dụng 100m2 mặt sàn khang trang
Toàn bộ mặt bằng nhà 2 tầng 100m2 đẹp nằm trên khu đất không rộng lắm, bên trái và phía sau nhà trồng cây xanh, có thảm cỏ, cây tán thấp, cây tán cao lấy bóng mát kết hợp với ăn quả, phía trước là phần sân rộng để xe, phía bên phải là phần sân chơi, sinh hoạt chung cho cả gia đình tạo nên sinh hoạt vô cùng tiện nghi. Mẫu thiết kế biệt thự 2 tầng mái thái sang trọng với diện tích sử dụng 100m2/sàn và ấn tượng với công trình.

Mặt bằng tổng thể thiết kế nhà 2 tầng với 3 phòng ngủ tiện ích
Bố trí mặt bằng tầng 1 của thiết kế nhà 2 tầng 100m2 có sảnh lớn, bước qua sảnh lớn vào phòng khách, phần không gian phòng khách tương đối rộng, tiếp theo là phòng bếp và phòng ngủ, cả 2 phòng này đều tiếp giáp với thiên nhiên qua hệ thống cửa sổ lớn. tầng 1 có 2 hướng vào, vào theo hướng chính và hướng bên, hướng bên để vào bếp và phòng ngủ khi hướng chính có khách hoặc mang các đồ tươi sống, rác tránh mùi cho phòng khách.

Mặt bằng nhà 2 tầng 100m2 sử dụng cho không gian sinh hoạt chung của gia đình

Mặt bằng nhà 2 tầng 100m2 dành cho không gian sinh hoạt chung của gia đình
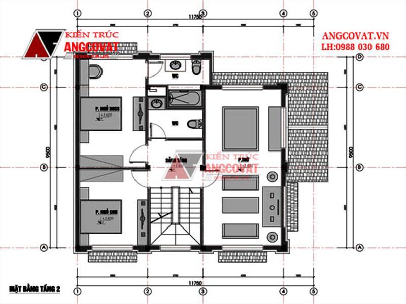
Thiết kế tầng 2 gồm: Mặt bằng tầng 2 có 2 phòng ngủ, 1 phòng ngủ chính lớn có vệ sinh khép kin, 1 phòng ngủ nhỏ, 1 vệ sinh chung, các phòng ngủ này đều có cửa sổ tiếp giáp với thiên nhiên. Đặc biệt ở tầng 2, theo yêu cầu của gia chủ phải có 1 phòng thờ lớn, phòng thờ này được thiết kế theo phong cách truyền thống gồm có bàn thờ lớn, trường kỷ, sập gụ, đôn gỗ... Công năng sử dụng nhà đẹp phù hợp với nhu cầu sử dụng của gia đình.
Xem thêm: thiết kế nhà 2 tầng 2 mặt tiền
Mẫu 2: Mặt bằng nhà 2 tầng 100m2 với 3 phỏng ngủ, 1 phòng thờ ở quê
Sở hữu lô đất với 2 mặt tiền thoáng rộng, chúng tôi dễ dàng mang đến cho anh Thanh mẫu nhà đẹp từ kiến trúc đến công năng đáp ứng tối đa nhu cầu thẩm mỹ cho các thành viên trong gia đình. Mặt bằng nhà 2 tầng 100m2, được quy hoạch khá gọn gàng, 2 mặt tiền của ngôi nhà đều được bao quanh bằng những bồn hoa, cây cảnh khiến không gian xung quanh nhà trở nên mềm mại, dịu dàng. Thêm vào đó, hệ thống cổng và hàng rào bằng sắt đen kết hợp với tường gạch xây kiên cố giúp ngôi nhà thể hiện được rõ ràng và tổng hợp kiến trúc một cách tối ưu và hoàn thiện nhất. Màu sắc của cổng, tường rào cũng phù hợp với thiết kế tổng quan , thống nhất với kiến trúc của toàn bộ ngôi nhà, nhằm mang đến cho chủ nhân và các thành viên trong ngôi nhà cảm giác thực sự gần gũi và thân thương nhất.
Bên cạnh đó nhà với sắp xếp công năng sử dụng tiện nghi và khoa học, cụ thể như:
+) Tầng 1: Tiền sảnh: 3.5m2, Phòng khách: 34m2, Sảnh: 8.5m2, Sảnh phụ: 3.5m2, Phòng ngủ 1: 14m2, Phòng bếp ăn: 14.5m2.
+) Tầng 2: Phòng thờ: 7m2, Phòng ngủ 2: 14.5m2, Phòng ngủ 3: 29.5m2, WC3: 5m2, Khu giặt phơi: 8.3m2.

Phối cảnh view 1: Thiết kế nhà 2 tầng diện tích mặt sàn 100m2 thoáng đẹp và tiện nghi

Phối cảnh 2: Nhà 2 tầng 2 mặt tiền quy hoạch trên diện tích rộng lớn, mang lại thiết kế nhà khang trang và bề thế

Mặt bằng nhà 2 tầng 100m2 bố trí công năng khoa học

Mặt bằng công năng sử dụng tầng 1 thiết kế nhà 2 tầng diện tích 100m2

Mặt bằng nhà 2 tầng diện tích 100m2 chủ yếu cho sinh hoạt chung của gia đình
Mẫu 3: Mặt bằng nhà 2 tầng 100m2 của anh Bằng tại Hải Dương
Với thiết kế ngoại thất thật gọn gàng và khang trang mang đến ngôi nhà không chỉ đẹp về hình khối và công năng sử dụng, mà mẫu nhà cũng vô cùng hút mắt người nhìn. Ông Bằng khá tỉ mỉ từ các chi tiêt nhỏ nhất nên mọi yêu cầu đối với chúng tôi luôn là sự chỉn chu. Xung quanh ngôi biệt thự đều được bao bởi bức tường rào cao, tạo sự an toàn khi sinh sống tại đây. Rào sắt màu trắng mang lại sự tự nhiên và hài hòa đối với bối cảnh xung quanh. Diện tích không đủ để thiết kế sân vườn cho thiết kế nhà 2 tầng có 3 phòng ngủ nên chúng tôi đã tạo ra khu vực trồng hoa, trồng cây nhỏ xinh ở ven các bờ tường. Nếu có diện tích để xây dựng sân vườn thì không gian sẽ trở nên xanh mát hơn rất nhiều. Tuy nhiên chúng tôi đã cố gắng để tạo ra một phối cảnh xinh xắn nhất, bố trí cây cảnh, hoa cỏ sao cho ít nhưng vẫn phải khiến ngôi nhà trở nên lung linh hơn.
Mặt tiền thiết kế nhà 2 tầng khang trang có bố trí sân vườn thoáng rộng
Bố trí tổng mặt bằng công năng sử dụng thiết kế nhà 2 tầng 100m2
Tham khảo bố trí công năng tầng 1 của mẫu nhà 2 tầng gồm 1 phòng khách rộng rãi, 1 phòng bếp ăn, 1 phòng ngủ, 1 gara ô tô và 1 nhà vệ sinh chung. Các căn phòng sẽ được bố trí đều đặn tại diện tích 100m2 sàn. Từ sảnh chính đi vào cũng chính là phòng khách – “gương mặt” của toàn bộ căn nhà. Với một người yêu thích sự hiện đại, sang trọng như ông Bằng thì phòng khách cũng được chúng tôi thiết kế với những nhu cầu, sở thích của gia chủ. Phòng khách được đặt một bộ bàn ghế sô fa lớn, màu sắc trầm nhã nhặn. Phòng khách của mẫu nhà 2 tầng 3 phòng ngủ với chiều cao hợp lí nên không gian khá rộng rãi, thoáng đãng. Theo kiến trúc sư thì việc xây dựng phòng khách với chiều cao không đủ sẽ khiến không gian bị bó hẹp, không thể mang lại cảm giác thoải mái cho mọi người mà đây lại là nơi tiếp đón khách, bạn bè của gia đình.
Mặt bằng nhà 2 tầng 100m2 đẹp tại Hải Dương
Bố trị mặt bằng tầng 2 của mẫu nhà 2 tầng có công năng khá phức tạp vào nhiều mặt bằng sử dụng khác nhau. Tầng 2 gồm có sảnh tầng 6m2, phòng SHC 19m2, phòng thờ 10m2, phòng ngủ 2,3 12m2, phòng giặt phơi 5m2, WC 6m2. Ở tầng 2, ông Bằng cũng mong muốn được thiết kế phòng sinh hoạt chung. Đây là không gian mà một số thành viên ở tầng 2 có thể cùng nhau trò chuyện thư giãn. Bạn bè hoặc người quen khi đến chơi có thể chọn không gian tầng 2 nói chuyện trong một không gian ấm cúng hơn. Màu sắc mà chúng tôi lựa chọn cho căn phòng này sẽ là màu sáng, tươi mới và trẻ trung như màu vàng hoặc màu kem… Các mẫu thiết kế nhà 2 tầng đơn giản ở nông thôn với không gian kiến trúc đơn giản, hợp lý với nhu cầu sử dụng của nhiều gia đình, và có chi phí xây dựng khá hợp lý là lựa chọn tuyệt vời đối với nhiều khách hàng hiện nay.
Mặt bằng nhà 2 tầng 100m2 đầy đủ bố trí công năng các phòng với diện tích quy hoạch hợp lý
Mẫu 4: Mặt bằng nhà 2 tầng 100m2 hình chữ L kiến trúc đơn giản và tiện nghi
Tổng quan mẫu thiết kế nhà mái thái hình chữ L đẹp 2 tầng mái ngói 100m2 được thiết kế và xây dựng trên mảnh đất rộng 12x18m mang phong cách hiện đại. Kiến trúc nhà mái thái hình chữ L được đặt gọn gàng trong mảnh đất, góc khuyết hình chữ L tận dụng làm sân trước, chỗ để gara ô tô, hoặc sân chơi dành cho chủ nhà. Xung quanh nhà được lát đá sạch sẽ, tạo khuôn viên kiến trúc đẹp mắt cho ngôi nhà 2 tầng đẹp hình chữ L ở Ninh Bình.
Mẫu nhà có công năng sử dụng các tầng cụ thể như sau:
Mặt bằng nhà 2 tầng 100m2 tầng 1 gồm: Sảnh chính 10m2, Phòng bếp 19m2, Sảnh phụ 4.5m2, Phòng khách 19m2, Wc1: 3.7m2, Phòng ngủ 1: 13.6m2
Mặt bằng nhà 2 tầng 100m2 thiết kế tầng 2 gồm: Ban công 5m2, WC2: 8.1m2, Phòng ngủ 2: 31.5m2, Sân chơi 10m2, Phòng ngủ 3: 15.3m2, WC3: 3.7m2.

Phối cảnh view 1: Thiết kế nhà 2 tầng hình chữ L diện tích 100m2

Tổng mặt bằng công năng sử dụng nhà 2 tầng mái thái hình chữ L

Mặt bằng nhà 2 tầng 100m2 thiết kế khoa học, thích hợp cho gia đình từ 4 đến 6 thành viên

Mặt bằng nhà 2 tầng 100m2 hình chữ L đáp ứng công năng sử dụng cho gia đình
Mẫu 5: Mặt bằng nhà 2 tầng 100m2 có 4 phòng ngủ thiết kế đơn giản
Muốn sở hữu 1 thiết kế nhà đẹp, yêu cầu các kiến trúc sư phải nắm bắt được nhu cầu của chủ đầu tư rồi tính toán điều chỉnh làm sao cho khoa học, tiện nghi nhất bằng cách đưa ra những phương án xử lý hiệu quả, thiết thực phù hợp kích thước của mặt bằng. Với mẫu nhà 2 tầng mặt tiền 13m, bố trí công năng khang trang và hợp lý, giúp mọi người có không gian sinh hoạt tiện nghi tối đa.
Mặt bằng công năng cho nhà có diện tích sàn 100m2 được bố trí vừa đẹp không quá nhỏ cũng không quá lớn, mặc dù không quá rộng nhưng vẫn khá thoải mái đảm bảo được sự thoáng đãng cần thiết. Ở tầng 1 có đầy đủ các không gian cần thiết như phòng khách, phòng bếp, nhà vệ sinh và cả có 1 phòng ngủ tương đối rộng gần 19m2. Nếu như để xây nhà 1 tầng thì với diện tích này không thể đầy đủ các chức năng cho không gian sống nhưng vì là nhà 2 tầng nên rất thuận lợi cho việc thiết kế.
Xem thêm: nhà biệt thự mái vòm
Đáp ứng mong muốn sử dụng của gia chủ, kiến trúc tôi xây dựng mẫu nhà bố trí công năng tại các tầng như sau:
Tầng 1: Tiền sảnh 12.5m2, phòng khách 24.1m, phòng ngủ 1 18.5m2, phòng bếp ăn 23m2, wc1 4.3m2
Tầng 2: Sảnh tầng 4.7m2, phòng ngủ 2 17m2, phòng ngủ 3 14m2, phòng ngủ 4 17.6m2, phòng thờ 4.8m2, ban công 4m2, ban công 2.9m2, wc 4m2.

Mặt bằng nhà 2 tầng 100m2 với 4 phòng ngủ đẹp và hoàn chỉnh

Mặt bằng công năng sử dụng tầng 1 thiết kế nhà 2 tầng đẹp

Mặt bằng nhà 2 tầng 100m2 bố trí công năng 4 phòng ngủ và phòng thờ tiện nghi
Mẫu 6: Thiết kế mặt bằng nhà 2 tầng 100m2 mái bằng đẹp
Thiết kế nhà biệt thự 2 tầng hiện đại đơn giản sử dụng kiểu kết cấu mái bằng, kết hợp với các hình khối kiến trúc vuông, chữ nhật của ngôi nhà mà khiến tổng thể nhà đẹp 2 tầng trở nên thống nhất, tiện nghi hơn bao giờ hết. Trong hồ sơ thiết kế chi tiết, phương án mái được thực hiện rất chi tiết để chủ đầu tư và đơn vị thi công có thể dễ dàng được thực hiện. Mặt bằng nhà 2 tầng 100m2 mái bằng sang trọng của gia đình anh Đông tại Thái Bình. Kiến trúc nhà 2 tầng mái bằng luôn thể hiện được sự tiện nghi, thoải mái và ấn tượng trong thiết kế kiến trúc, và sự hợp lý trong cách phân bố mặt bằng công năng.
+) Tầng 1: Sảnh tầng 1: 12.5m2, Phòng khách 28m2, Phòng bếp: 18m2, Phòng ngủ 1 13.8m2, WC1: 4.8m2
+) Tầng 2: WC2: 4.8m2, WC3: 5.5m2, Phòng ngủ 2: 21.5m2, Phòng ngủ 3: 13.8m2, Phòng thờ 10.5m2, Phòng đọc: 9m2, Ban công 9m2.

Hình ảnh phối cảnh: Mẫu nhà 2 tầng hiện đại đơn giản 100m2 mái bằng

Mặt bằng nhà 2 tầng 100m2 có sân vườn, tiểu cảnh đẹp

Mặt bằng nhà 2 tầng 100m2 bố trí công năng tầng 1 dành cho sinh hoạt chung

Thiết kế mặt bằng công năng sử dụng tầng 2 thiết kế nhà 2 tầng mái bằng đơn giản
Mẫu 7: Mặt bằng nhà 2 tầng 100m2 tại Thái Bình
Tổng thể thiết kế nhà có kích thước mặt tiền 10m sâu 29m tương đối vuông vắn và đẹp mắt. Với lợi thế chiều sâu lớn, nên kiến trúc sư Angcovat bố trí ngôi nhà nằm sát phía trong mảnh đất, phần còn lại bên ngoài để thiết kế chỗ để xe, sân vườn và cảnh quan thiên nhiên. Xung quanh được xây dựng bằng các bức tường rào và cổng với chức năng bảo vệ cho ngôi nhà. Phía sau ngôi nhà có chừa lại diện tích nhỏ để làm sân thao tác và có thể trồng thêm cây xanh hoặc làm vườn rau đáp ứng yêu cầu của chủ nhà.
Bố trí công năng sử dụng các tầng gồm:
+) Tầng 1: Sảnh chính: 7m2; Phòng khách 20m2; Phòng bếp ăn: 19m2; Phòng ngủ 1: 20m2; WC1: 4m2
+) Tầng 2: Phòng thờ: 16m2; Phòng ngủ 2: 17.5m2; WC2: 4m2; Sảnh tầng 4m2; Phòng ngủ 3: 13,5m2; WC3: 4m2; Ban công: 3.2m2.

Ngắm nhìn vẻ đẹp hiện đại của mẫu nhà 2 tầng diện tích 100m2 hiện đại sang trọng

Mặt bằng sử dụng tổng thể thiết kế nhà 2 tầng đẹp

Mặt bằng nhà 2 tầng 100m2 sắp xếp khoa học và hài hòa

Bố trí công năng sử dụng mẫu nhà 2 tầng 100m2 tận dụng tối đa diện tích trong nhà
Mẫu 8: Chia sẻ mặt bằng nhà 2 tầng 100m2 phong cách kiến trúc tân cổ điển đẹp
Kiến trúc nhà tân cổ điển phong cách kiến trúc mà ông Thái tâm đắc từ lâu, theo đúng mong muốn của chủ nhà, nhà sử dụng ngói màu đỏ với ưu điểm của mái ngói: Tính thẩm mỹ cao, tuổi thọ với môi trường cao, nhiều nhà cung cấp ngói lợp có cam kết bảo hành cho bạn đến 10 năm,  vừa hạn chế được tiếng ồn cũng như lượng nhiệt hấp thụ.
 
Nhà có công năng sử dụng gồm:
Tầng 1: 1 phòng ngủ, 1 phòng vệ sinh, 1 phòng khách, 1 phòng bếp ăn.
Tầng 2: 2 phòng ngủ, 2 phòng vệ sinh, 1 phòng thờ, 1 phòng karaoke.

Phối cảnh mẫu nhà biệt thự 2 tầng phong cách tân cổ điển 100m2 của nhà ông Thái

Mặt bằng nhà 2 tầng 100m2 đẹp có mặt tiền 8.5m

Bố trí công năng tầng 1 dành cho sinh hoạt chung

Thiết kế công năng đáp ứng sinh hoạt và giải trí cho gia đình
Mẫu 9: Thiết kế mặt bằng nhà 2 tầng 100m2 đẹp tại Hà Nội
Mặt bằng nhà 2 tầng 100m2 của gia đình ông Thông thể hiện được vị trí của nhà trong tổng thể lô đất xây dựng 2 tầng này. Hướng của nhà so với hướng đất, cửa cũng được thể hiện rõ trên bản vẽ tổng mặt bằng. Vị trí của cổng, không gian của sân, và các không gian của bồn hoa trước nhà cũng được ghi chú rõ ràng trong bản vẽ tổng thể mặt bằng công năng sử dụng. Trong quá trình xây dựng hoặc thi công nhà chủ đầu tư cũng như đơn vị thi công chỉ cần thực hiện theo đúng bản vẽ thiết kế, định vị công trình, giác móng nhà theo đúng yêu cầu ghi trong hồ sơ thiết kế, việc quy hoạch ngôi nhà trong bố cục tổng thể công trình diễn ra khoa học nhất và chính xác nhất!
Thiết kế nhà có công năng sử dụng các tầng như sau:
Tầng 1: Sảnh chính 9.5m2, Phòng khách 20m2, Phòng bếp ăn: 21.5m2, Phòng ngủ 1: 19m2, WC1: 4m2
Tầng 2: Phòng ngủ 2: 19m2, WC2: 4m2, SẢnh tầng 7.5m2, Phòng ngủ 3: 13m2, Sân phơi: 8m2, Phòng thờ: 13.5m2

Phối cảnh thiết kế nhà 2 tầng diện tích 100m2 mái thái sang trọng

Mặt bằng công năng sử dụng mẫu nhà 2 tầng mái thái tiện nghi

Mặt bằng tầng 1 nhà 2 tầng diện tích sàn 100m2

Bố trí công năng sử dụng tầng 2 nhà 2 tầng 100m2
Qua những gợi ý, cách sắp xếp công năng mặt bằng nhà 2 tầng 100m2 kể trên, chúng tôi hi vọng sẽ mang đến cho bạn những giải phap thiết kế tốt nhất cho không gian nhà ở, đối với thực tế đất xây dựng của từng gia đình, mảnh đất cụ thể.
Mọi yêu cầu tư vấn thiết kế nhà ở, biệt thự dân dụng bạn có thể liên hệ trực tiếp với kiến trúc sư của chúng tôi để được tư vấn và giải đáp mọi thắc mắc, phương án bố trí mặt bằng nhà 2 tầng 100m2 cũng như những giải pháp kiến trúc được đưa ra phù hợp và giải quyết được mọi mong muốn của khách hàng về công trình nhà ổ của gia đình!
Liên hệ tư vấn: 0988 030 680 
Tham khảo thêm: thiết kế nhà 2 tầng ngang 5m
              
					











