" Tôi không biết một bộ hồ sơ thiết kế bản vẽ thi công bao gồm những gì? Thành phần một bộ hồ sơ thiết kế bản vẽ thi công ra sao...? Mong quý cty giải đáp"- Đây là một trong số rất nhiều những thắc mắc mà chúng tôi nhận được từ rất nhiều khách hàng trên khắp cả nước khi thực hiện dịch vụ tư vấn thiết kế nhà mái thái hay thiết kế biệt thự kiểu Pháp lần đầu. Nhằm giúp khách hàng hiểu rõ, nắm vững và có cái nhìn trực quan, đầy đủ nhất, Kiến trúc Angcovat xin giới thiệu đến bạn hình ảnh thực tế của một bộ hồ sơ mẫu mà chúng tôi đã triển khai dưới đây.
1. Hồ sơ thiết kế nhà ở là gì?
Vậy hồ sơ thiết kế nhà ở là gì? Đương nhiên nó là tập hồ sơ diễn giải về hình dáng kích thước, chi tiết cấu tạo các thành phần của ngôi nhà để căn cứ vào đó tạo ra được công trình nhà ở. Ví dụ trên thực tế, một tập hồ sơ thiết kế nhà ở nông thôn giống như tấm bản đồ giúp bạn đi đúng với định hướng thiết kế ban đầu, giúp bạn hoàn thiện quá trình chuẩn bị xây dựng một cách kỹ càng và chi tiết nhất để quá trình thi công sau này trở nên đơn giản hơn.
2.Hồ sơ thiết kế bản vẽ thi công bao gồm những gì?
Tập hồ sơ bản vẽ thi công nhà ở- Kiến trúc Angcovat
Hồ sơ bản vẽ thiết kế thi công nhà ở là 1 tập tài liệu khổ A3, độ dày, mỏng phụ thuộc vào quy mô từng công trình. Giống như một cuốn sách, tập hồ sơ gồm 2 trang bìa cứng và nội dung bên trong bao quát toàn bộ chi tiết đầy đủ về một ngôi nhà. Nhận được bộ hồ sơ thiết kế này, điều đó có nghĩa là bạn đã sở hữu được ngôi nhà như mình mơ ước. Thành phần của một bộ hồ sơ thiết kế biệt thự bao gồm:
- Phần kiến trúc
- Phần kết cấu
- Phần điện
- Phần nước
Để giúp khách hàng hiểu rõ hơn, chúng tôi sẽ giới thiệu một bộ hồ sơ thiết kế biệt thự cổ điển chi tiết đã được hoàn thiện bởi chủ đầu tư là chú Thanh ( Khoái Châu- Hưng yên) và nội dung chi tiết hồ sơ thiết kế bản vẽ thi công bao gồm:

I: Phần kiến trúc- Hồ sơ thiết kế kiến trúc nhà ở đầy đủ
Phần kiến trúc bao gồm những bản vẽ thiết kế sau:

Ảnh phối cảnh- Hồ sơ thiết bản vẽ nhà 3 tầng chú Thanh- Hưng Yên
a: Ảnh phối cảnh- Hồ sơ thiết kế kiến trúc biệt thự.
Ảnh phối cảnh của công trình là hình ảnh mô tả trực quan, chân thực nhất từ ý tưởng thiết kế đến với thực tế xây dựng.Hình ảnh phối cảnh cho khách hàng có được hình dung cụ thể nhất về hình dạng, màu sắc, kiến trúc ngoại thất, vật liệu, cảnh quan,.. của ngôi nhà.
Ảnh phối cảnh là hình ảnh 3D- thể hiện các hình ảnh 3 chiều một cách gần đúng hay chính xác nhất trên bản vẽ thiết kế biệt thự kiểu Pháp. Ảnh phối cảnh được in bằng chất liệu bìa cứng, in màu, chất lượng loại 1. Thông thường mỗi mẫu thiết kế nhà ở có từ 2- 3 ảnh phối cảnh được render từ các góc khác nhau để chủ đầu tư, khách hàng dễ dàng hình dung khi đặt mắt nhìn vào mỗi mẫu thiết kế.
b: Mặt bằng, Mặt đứng, Mặt cắt
Mặt bằng tổng thể: Hồ sơ thiết kế nhà bao gồm những gì
Bản vẽ mặt bằng tổng thể của mỗi công trình thể hiện hình chiếu bằng của các công trình trên khu đất xây dựng. Bản vẽ mặt bằng tổng thể giúp thể hiện vị trí các công trình với hệ thống đường đi , cây xanh và thể hiện được tổng quan quy hoạch của mảnh đất. Mặt bằng tổng thể có hướng mũi tên chỉ hướng bắc để định hướng cho ngôi nhà. Hướng của nhà so với cổng cũng như hướng của cổng so với hướng đường giao thông đi lại.
Có thể thấy trong ví dụ cụ thể trên của nhà Chú Thanh- bản vẽ mặt bằng tổng thể giúp bạn hình dung được lô đất xây dựng, hướng ngôi nhà, vị trí của các khu vực bổ trợ xung quanh như nhà thờ, bếp, cổng, bể bơi và hệ thống sân vườn , giao thông bao quanh ngôi nhà biệt thự. Tương tự với các bản vẽ thể hiện tổng mặt bằng khác trong tất cả các mẫu thiết kế nhà ở, thiết kế biệt thự , thiết kế nhà phố của Kiến trúc Angcovat.

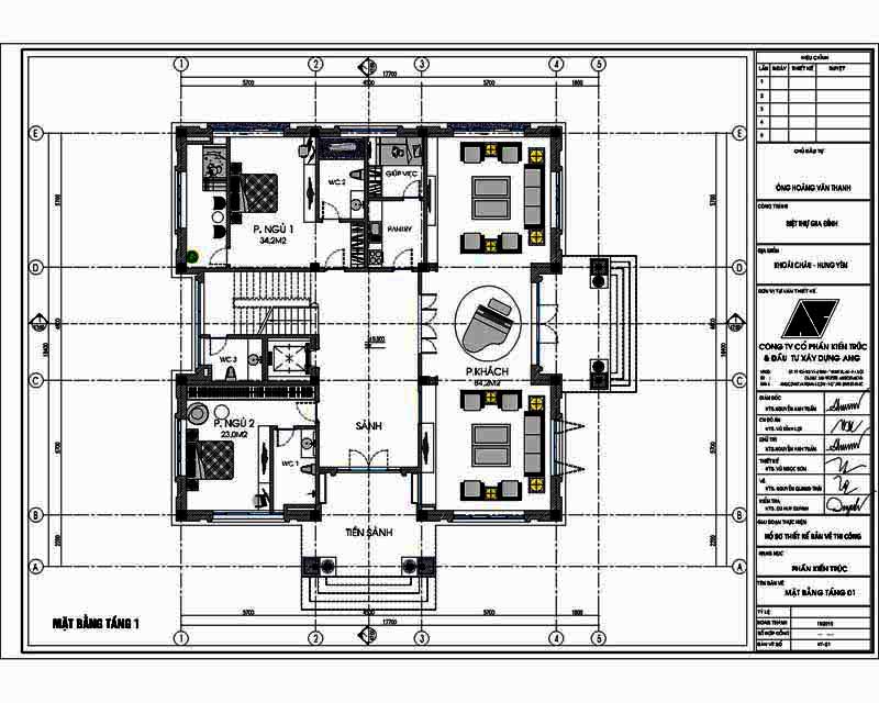
Mặt bằng tầng 1- Hồ sơ bản vẽ thiết kế kiến trúc nhà ở
Mặt bằng tầng 1, Mặt bằng tầng 2,..trong một bộ hồ sơ thiết kế nhà ở là hình cắt bằng của ngôi nhà ở các tầng. Mặt phẳng cắt đi qua cửa sổ, không biểu diễn phần khuất, thể hiện vị trí, kích thước của tường , vách ngăn cầu thang . Cách bố trí cũng như vị trí, diện tích các phòng, thiết bị, đồ đạc.
Ví dụ trên: Mặt bằng tầng 1 là bản vẽ nhìn từ trên xuống bố trí các phòng giống như trong mẫu nhà 2 phòng ngủ và vật dụng của tầng 1 ngôi nhà biệt thự của chú Thanh. Nét vẽ dày là thể hiện tường, nét vẽ mỏng tuỳ theo cách vẽ thể hiện cho cầu thang lên tầng, cửa, bậc tam cấp hoặc cửa phân chia các phòng. Hình tròn có kí hiệu số 1- 5 và hình tròn có kí hiệu chữ A- E đi chung với nét tường là thể hiện trục cột của ngôi nhà.

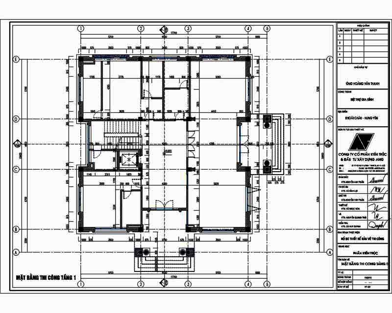
Mặt bằng thi công tầng 1: Hồ sơ thiết kế kiến trúc nhà ở
Mặt bằng thi công tầng 1 thể hiện rõ ràng và chi tiết kích thước, thông số kỹ thuật để đội ngũ thợ thi công có thể dễ dàng thực hiện thi công cho ngôi nhà.Kích thước từng phòng và toàn bộ chi tiết từng mặt cắt riêng cũng được thể hiện trong bản vẽ kiến trúc

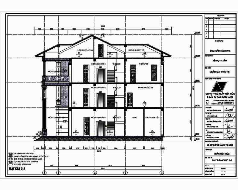
Mặt đứng: Hồ sơ thiết kế nhà biệt thự 3 tầng
Bản vẽ mặt đứng trong hồ sơ thiết kế kiến trúc nhà ở là hình chiếu vuông góc của ngôi nhà, là hình chiếu đứng của ngôi nhà không thể hiện các phần bị khuất. Mặt đứng trục thể hiện được sự cân đối và vẻ đẹp bên ngoài của ngôi nhà. Mặt đứng là bản vẽ thiết kế thể hiện được các chi tiết trang trí kiến trúc ngoại thất cho ngôi nhà, kích thước cũng như vị trí của từng chi tiết biểu hiện ra bên ngoài công trình.

Mặt cắt: Hồ sơ thiết kế kiến trúc nhà ở.
Mặt cắt là bản vẽ thể hiện kết cấu của các bộ phận trong ngôi nhà như kích thước cửa đi, cửa sổ, kích thước của tường nhà, cầu thang, mái, sàn, kích thước các tầng . Mặt cắt cũng thể hiện được không gian bên trong nhà như cấu tạo vỉ kèo, số tầng nhà và vị trí hình dáng chi tiết kiến trúc bên trong các phòng ngôi nhà.

Chi tiết cấu tạo dầm, tường, sàn mái
c: Bản vẽ chi tiết dầm, tường, sàn mái:
Được design cẩn thận. Ký hiệu, chú thích trong hồ sơ được trình bày rõ ràng, khoa học giúp cho những người ngay cả lần đầu tiên cầm bộ hồ sơ thiết kế nhà ở trên tay cũng có thể dễ dàng đọc được mà không gặp phải bất cứ khó khắn gì.

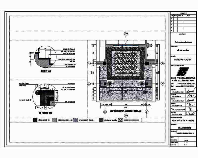
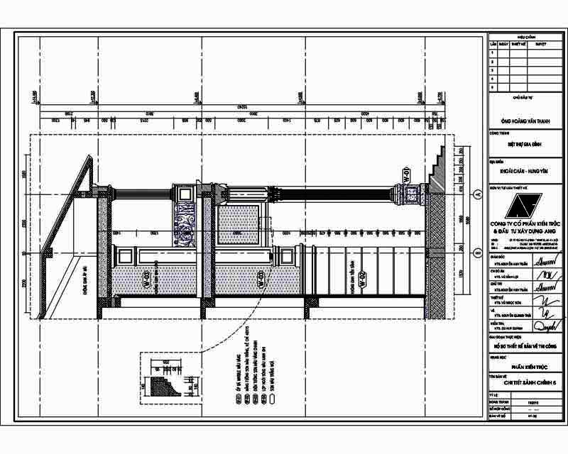
Mặt bằng chi tiết sảnh chính, bậc
Mặt bằng chi tiết sảnh chính, bậc .. và tất cả các bản vẽ chi tiết kiến trúc khác được ghi chú đầy đủ các lớp cấu tạo và chỉ định vật liệu xây dựng giúp bạn hoàn toàn yên tâm trong quá trình thi công.

Chi tiết sảnh chính 6:
Bản vẽ chi tiết sảnh chính- Thể hiện rất đầy đủ các chi tiết trang trí ngoại thất công trình cho đến cấu tạo từng bộ phận chi tiết . Với những mẫu nhà mang phong cách cổ điển, hay tân cổ điển, bản vẽ chi tiết sẽ còn thể hiện được cả phào, chỉ, bổ kỹ thuật tỷ mý dễ dàng trong quá trình thi công công trình.

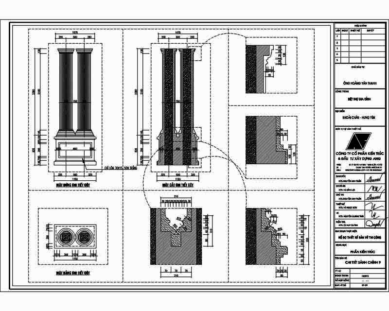
Bản vẽ chi tiết sảnh chính, cột
Hình dạng, kích thước cũng như số lượng cột trong ngôi nhà cũng được thể hiện rất rõ ràng trong bản vẽ thiết kế kiến trúc.Từ tổng quan đến từng chi tiết nhỏ hơn giải đáp toàn bộ thắc mắc của bạn trong quá trình thi công ngôi nhà biệt thự đẹp.
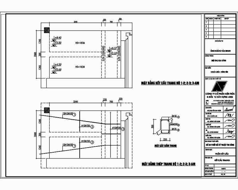
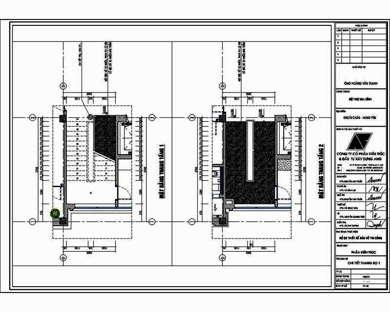
d: Chi tiết thang, chi tiết vệ sinh, chi tiết lát sàn, chi tiết cửa, chi tiết cổng- hàng rào ( miễn phí- nếu có)
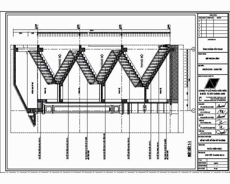
Mặt bằng chi tiết thang
Đối với những mẫu thiết kế nhà biệt thự cao tầng, nhà phố cao tầng có chi tiết cầu thang, các bản vẽ chi tiết vệ sinh, lát sàn, chi tiết cửa. Hình dạng, kích thước, chỉ định vật liệu, màu sắc, ... đều được ghi chú rõ ràng trong bản vẽ thiết kế.

Bản vẽ chi tiết thang bộ

Chi tiết thang bộ, Chi tiết mặt cắt tay vịn, Chi tiết trụ đứng.

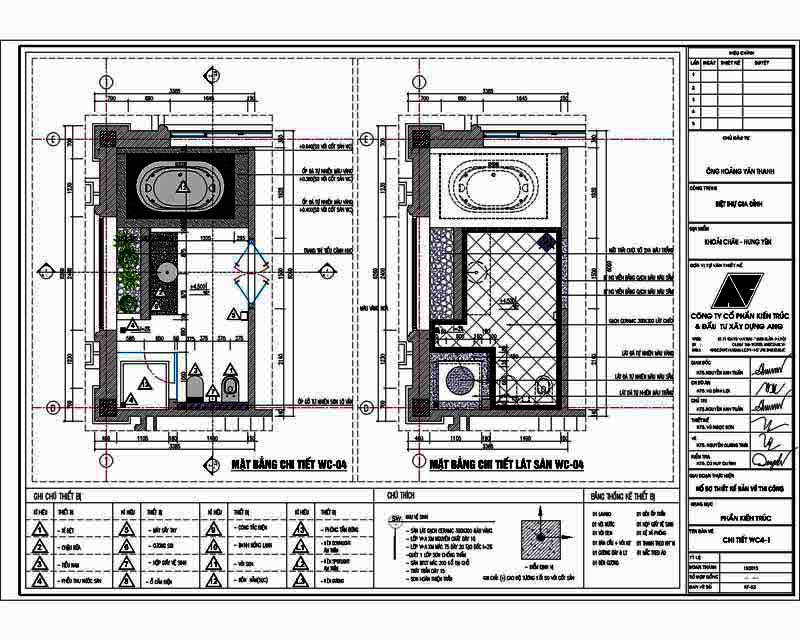
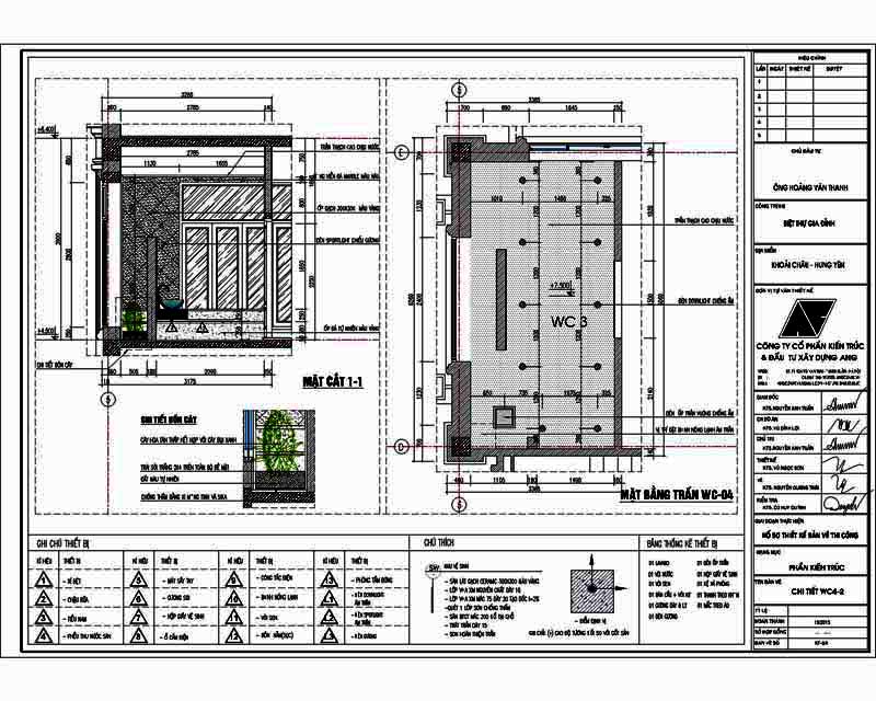
Mặt bằng chi tiết WC- Mặt bằng chi tiết lát sàn WC
Kích thước chi tiết mặt bằng, định vị đồ đạc, thiết bị và có ghi chú thiết bị đầy đủ trong mỗi bản vẽ.
Nhìn vào ví dụ thực tế trên đây bạn dễ dàng thấy rõ được trong bản vẽ mặt bằng chi tiết WC : Ghi chú thiết bị được kí hiệu bằng hình tam giác bên trong đánh số thứ tự từ 1.Tất cả các danh mục trong bản vẽ trình bày một cách khoa học, dễ dàng theo dõi.

Mặt cắt- Mặt bằng trần

Mặt bằng lát sàn tầng 1: Mặt bằng lát sàn các tầng ghi chú rõ kích thước, định vị từng loại gạch, chủng loại gì, kích thước ra sao cho toàn bộ công trình nhà biệt thự đẹp.

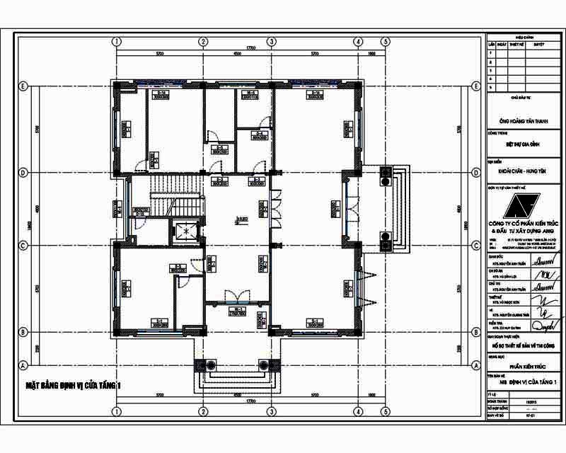
Mặt bằng định vị cửa tầng 1
Mặt bằng định vị cửa trong toàn bộ tập hồ sơ bản vẽ thiết kế kiến trúc định vị vị trí, kích thước cho toàn bộ hệ thống cửa của mỗi công trình, Sau đó là trích bản vẽ chi tiết mặt đứng cửa. Cửa sổ với kí hiệu S1-S2- S3... Và cửa đi với kí hiệu D1- D2-D3

Mặt đứng cửa: Phần kiến trúc

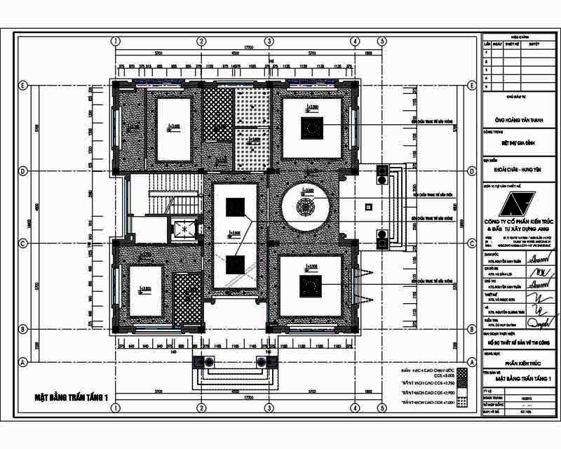
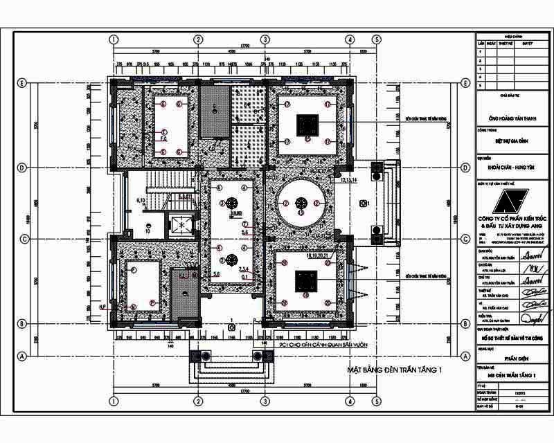
Mặt bằng trần tầng 1

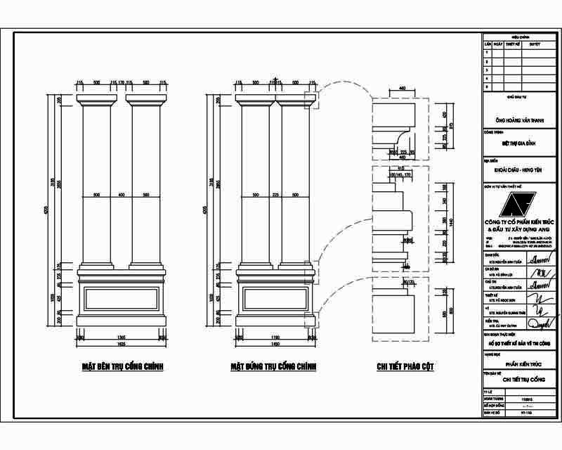
Chi tiết cổng- hàng rào: mặt bằng, mặt đứng, mặt cắt

Mặt bên trụ cổng chính, mặt đứng trụ cổng chính, Chi tiết phào cột
Đối với những ngôi biệt thự, đặc biệt là biệt thự vườn thì thiết kế cổng và hàng rào là điều không thể thiếu. Đây là chi tiết bản vẽ được thiết kế miễn phí trong hồ sơ thiết kế kiến trúc nhà biệt thự của Kiến trúc Angcovat.
II: Phần kết cấu- Hồ sơ bản vẽ thiết kế nhà ở
Phần kết cấu trong hồ sơ thiết kế nhà biệt thự bao gồm các phần như
+ Ghi chú quy cách chung trong quá trình thiết kế và thi công .
+ Mặt bằng móng, chi tiết móng
+ Mặt bằng định vị cột, chi tiết kết cấu cột
+ Mặt bằng định vị dầm, chi tiết dầm tầng
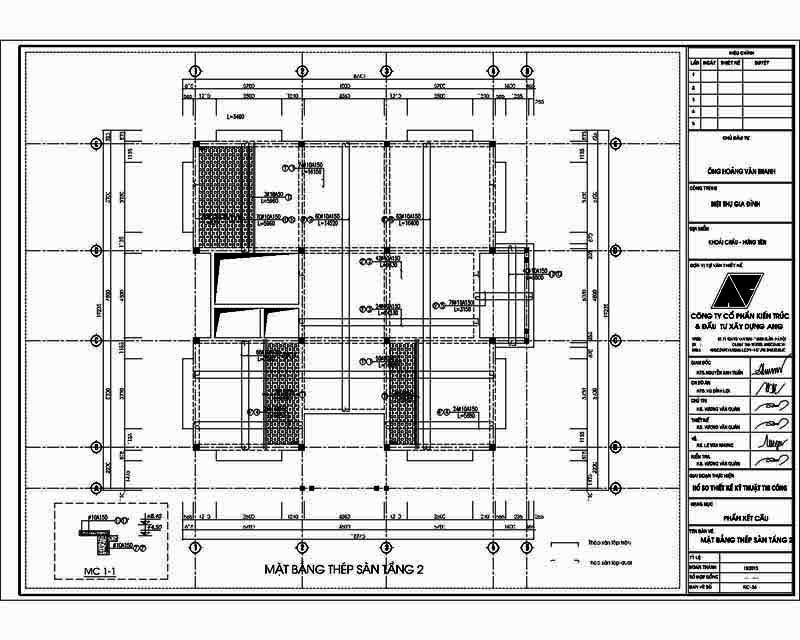
+ Mặt bằng kết cấu sàn tầng
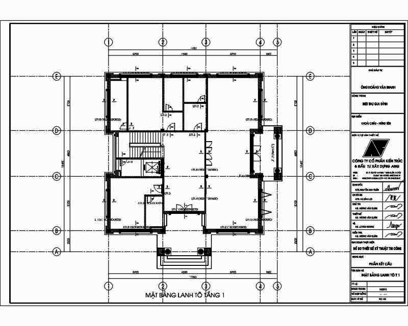
+ Mặt bằng định vị lanh tô, chi tiết kết cấu lanh tô
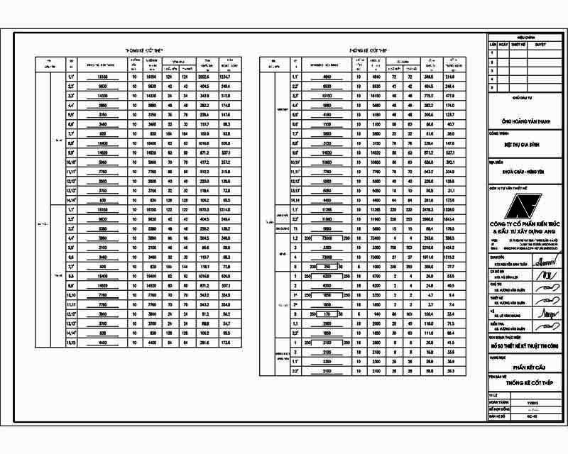
+ Phần thống kế cốt thép

Phần ghi chú chung, các kỹ sư Angcovat thể hiện cho chủ đầu tư thấy được căn cứ lập hồ sơ, các giải pháp kỹ thuật cùng các yêu cầu kỹ thuật thi công, các sai số cho phép khi thực hiện thi công . Các ghi chú chung này được áp dụng trong toàn bộ các bản vẽ về kết cấu ngoại trừ các ghi chú riêng trong từng bản vẽ.

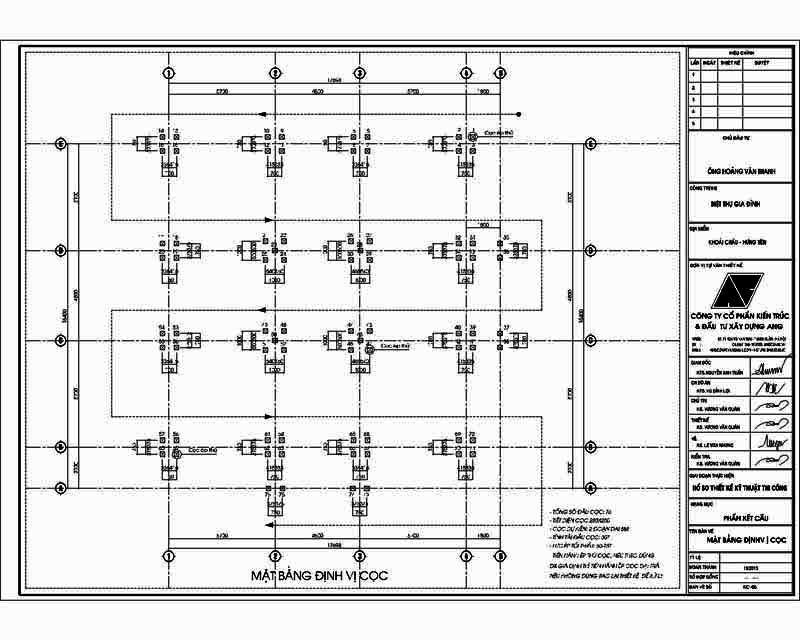
Mặt bằng định vị cọc
Mặt bằng định vị cọc thể hiện vị trí, khoảng cách giữa các cột sẽ được thiết kế và thi công trên công trình . Từ đây, chủ đầu tư dễ dàng thấy được lưới cọc chạy trong công trình nhà của gia đình mình cũng như cách thức bố trí, độ an toàn được tính toán bảo đảm khoa học, chính xác.

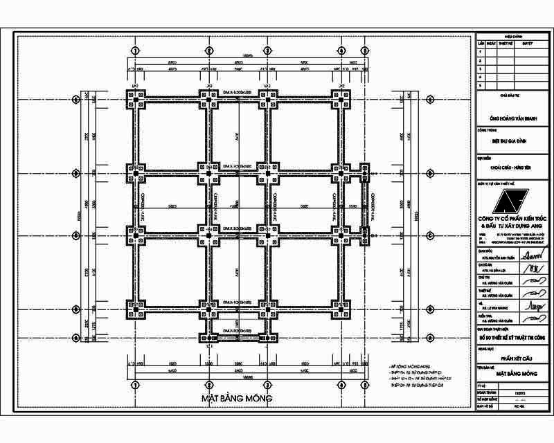
Mặt bằng móng: Mặt bằng móng của mỗi công trình được hình thành dựa trên quá trình khảo sát thực tế và hiện trạng đất . Tuỳ thuộc vào từng loại nền đất mà kỹ sư kết cấu sẽ xử lý phương án bố trí móng phù hợp với gia đình gia chủ như móng băng, móng đơn, móng bè, móng cọc, ... Thông thường, với địa chất ở Việt Nam nói chung thì với các thiết kế nhà biệt thự 2-3 tầng chủ yếu sử dụng móng cọc.
Trong thực tế quá trình làm việc với nhiều chủ đầu tư và rất nhiều trường hợp khách hàng, khi liên hệ với kiến trúc sư, rất nhiều gia đình đã lên lịch ngày động thổ, làm móng rất cận kề. Chính vì thế, tâm lý lo lắng không biết rằng đến lúc nước rút như vậy rồi có kịp làm hồ sơ thiết kế hay không? Câu trả lời là hoàn toàn có thể. Chủ đầu tư chỉ cần thống nhất phương án thiết kế mặt bằng công năng, đội ngũ kỹ sư sẽ băt đầu làm việc ngay và hoàn thiện nhanh chóng- chính xác bản vẽ kết cấu móng để gia chủ thi công cho kịp với kế hoạch đã đề ra. Quá trình hoàn thiện hồ sơ thiết kế sẽ được tiếp tục triển khai song song với quá trình thiết kế kiến trúc nhà sau đó. Đây là một trong những điểm rất linh hoạt trong quy trình làm việc của chúng tôi. Điều này đã giúp rất nhiều gia chủ dù muộn nhưng vẫn hoàn thiện kịp hồ sơ thiết kế để triển khai trên thực tế trong quá trình thi công.

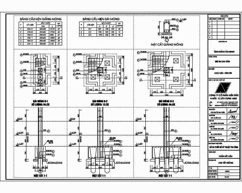
Bản vẽ chi tiết móng

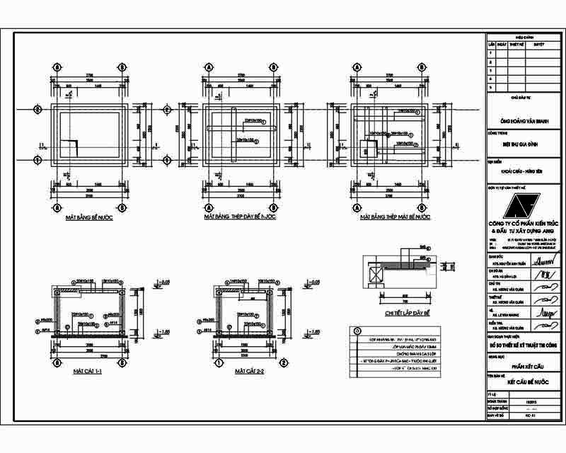
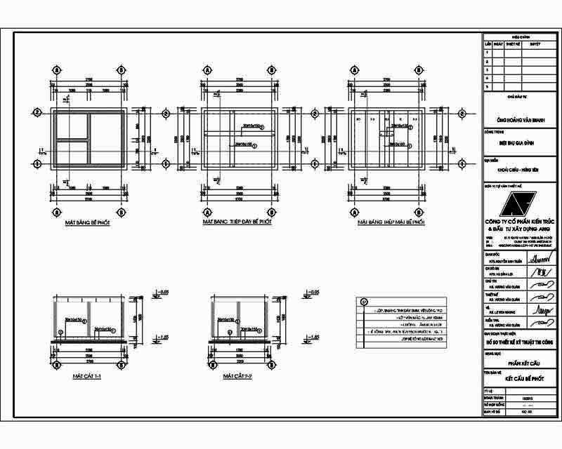
Kết cấu bể nước






- Phần điện Bảng thống kế cốt thép
III: Hồ sơ bản vẽ biệt thự bao gồm những gì- Phần điện
Phần điện trong bộ hồ sơ thiết kế kỹ thuật bao gồm những phần sau:
+ Sơ đồ điện
+ Mặt bằng bố trí điện các tầng
+ Hệ thống Aptomat chi tiết các tầng, phòng
+ Mặt bằng thu sét tầng mái
+ Chi tiết lắp đặt các thiết bị điện: điều hoà, tủ lạnh, TV, Internet,...
Dưới đây là một số bản vẽ thiết kế chi tiết điện trong mẫu hồ sơ bản vẽ thiết kế nhà mẫu chúng tôi cung cấp để bạn dễ dàng hình dung.

Một bộ hồ sơ bao gồm những gì- Phần điện

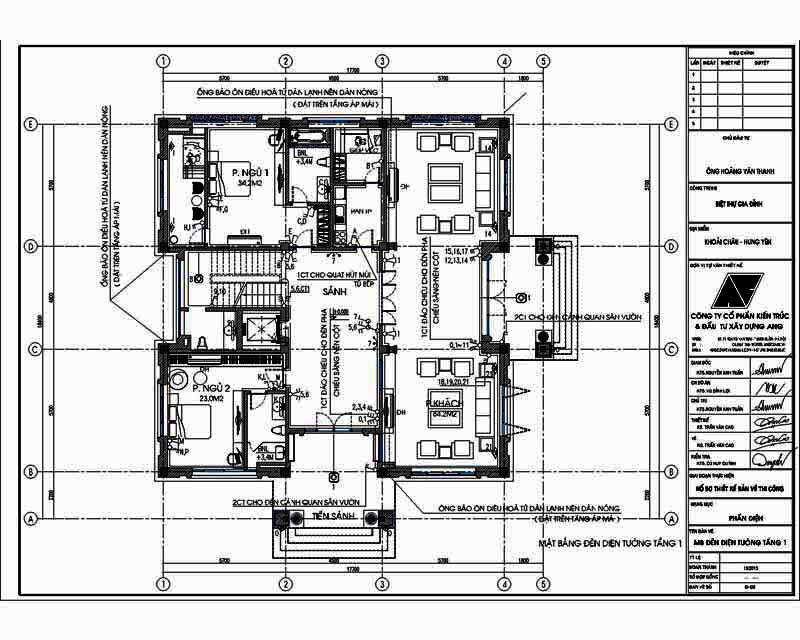
Mặt bằng đèn điện tường tầng 1

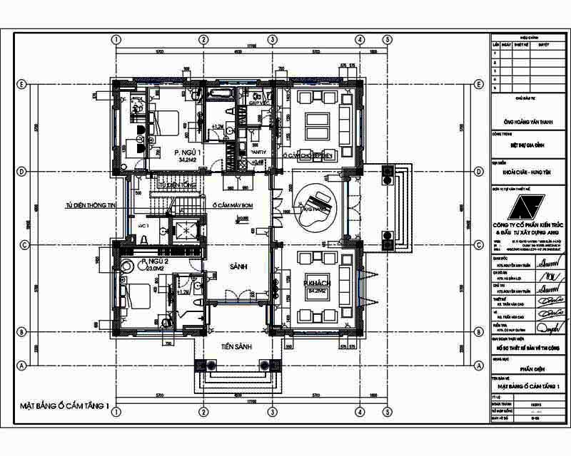
Mặt bằng ổ cắm tầng 1: Hồ sơ thiết kế nhà ở đầy đủ bao gồm những gì
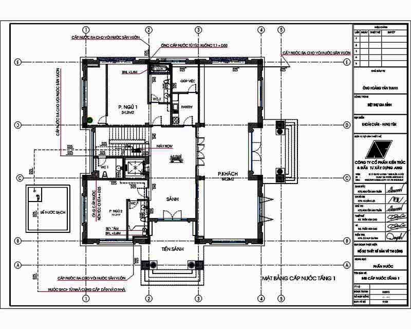
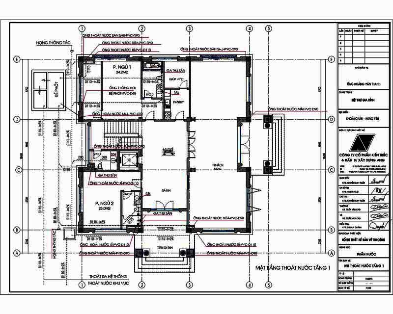
IV: Hồ sơ thiết kế nhà biệt thự - Phần nước
Trong một bộ hồ sơ thiết kế kiến trúc biệt thự- phần nước bao gồm:
+ Mặt bằng bố trí cấp thoát nước các tầng
+ Sơ đồ không gian cấp thoát nước
+ Chi tiết cấp thoát nước các khu WC, bếp, phòng giặt,...
+ Chi tiết đường ống cấp thoát nước
+ Chi tiết cấp thoát nước các công trình ngầm
Chi tiết hồ sơ thiết kế phần nước bạn có thể tham khảo một số bản vẽ dưới đây:

Hồ sơ phần nước:
Bản vẽ chi tiết mặt bằng cấp nước tầng 1 cho mẫu nhà biệt thự đẹp.

Phần nước- bản vẽ cấp thoát nước tầng 1
3. Các hạng mục miễn phí trong tập hồ sơ thiết kế bản vẽ thi công của kiến trúc angcovat
- Miễn phí thiết kế quy hoạch sân vườn tiểu cảnh.
- Miễn phí thiết kế cổng hàng rào.
- Miễn phí làm phương án mặt bằng tại văn phòng kiến trúc angcovat
Trên đây là toàn bộ nội dung các phần trong một bộ hồ sơ thiết kế nhà ở của công ty cổ phần kiến trúc Angcovat. Bạn cũng có thể đón đọc quy trình tư vấn thiết kế nhà ở của chúng tôi sau đây
Mọi thắc mắc và yêu cầu tư vấn thiết kế mời bạn gửi theo mẫu bên dưới hoặc liên hệ trực tiếp:
Hotline: 0988 030 680
Nguồn: http://angcovat.com.vn/tap-ho-so-ban-ve-thiet-ke-kien-truc-nha-o-day-du-bao-gom-nhung-gi-tv230066










