Bạn đang có nhu cầu xây một ngôi nhà chỉ cần 2 phòng ngủ cho bố mẹ và con cái. Đến với Angcovat bạn sẽ có thể lựa chọn những mẫu nhà 2 phòng ngủ mà mình ưng ý.
Nhà 1 tầng có 2 phòng ngủ
1. Mẫu bản vẽ xây nhà cấp 4 có tầng hầm 100m2 BT222056



Tầng 1 của bản vẽ xây nhà cấp 4 có tầng hầm bố trí 2 phòng ngủ đối xừng 2 bên của cầu thang. Hai phòng ngủ này sẽ là nơi mà các thành viên trong gia đình có thể có nơi nghỉ ngơi thư giãn sau những giờ làm việc mệt mỏi, vất vả.
2. Mẫu thiết kế nhà 1 tầng hình chữ L mặt tiền 8m, diện tích 100m2 BT325046



Mẫu thiết kế nhà cấp 4 hình chữ L có 2 phòng ngủ diện tích tương đương nhau. Cả 2 phòng đều có nhà vệ sinh khép kín, rất tiện cho việc sinh hoạt cá nhân. Hơn nữa, các kiến trúc sư đã thiết kế hững ô cửa sổ thông thoáng. Phòng ngủ 1 được bố trí cửa mở ra khu ban công vô cùng thoáng mát.
3. Thiết kế nhà cấp 4 hình chữ L mái thái đơn giản BT123046



Hai phòng ngủ của nhà cấp 4 hình chữ L có diện tích bằng nhau và được bố trí song song với nhau, ngăn cách bởi 1 bức tường. Cách bố trí, thiết kế hoàn toàn giống nhau. Có thể gọi là phòng ngủ "sinh đôi"
4. Nhà cấp 4 2 phòng ngủ BT228036



Nhà cấp 4 2 phòng ngủ được bố trí song song và được ngăn cách bởi cầu thang thông tầng. Trong đó 1 phòng ngủ có phòng vệ sinh khép kín để chủ nhân tiện trong việc di chuyển khi sinh hoạt cá nhân.
5. Mẫu thiết kế nhà 1 tầng 2 phòng ngủ 110m2 mái thái BT104016



Nhà 1 tầng 2 phòng ngủ có 2 phòng ngủ trong đó phòng ngủ 1 có diện tích khá lớn và được bố trí phòng làm việc ngay trong phòng ngủ, để gia chủ có nơi yên tĩnh để làm việc. Hai phòng ngủ này chung nhau một nhà vệ sinh.
6. Nhà 1 tầng 2 phòng ngủ nhỏ xinh 6x8m BT32975


Nhà 1 tầng 2 phòng ngủ có 1 phòng ngủ có diện tích lớn hơn, ngoài việc được bố trí nội thất đầy đủ, trong phòng còn bố trí một bộ bàn ghế đơn và phòng vệ sinh khép kín. Phòng ngủ còn lại nhỏ hơn và được bố trí cạnh phòng ngủ lớn.
7. Biệt thự 1 tầng BT111965


Nếu xem những mẫu thiết kế của chúng tôi, có thể thấy với những mẫu nhà 2 phòng ngủ hầu như được thiết kế với 1 phòng ngủ diện tích lớn và 1 phòng ngủ diện tích nhỏ hơn. Biệt thự 1 tầng 2 phòng ngủ này cũng vậy, phòng ngủ lớn dành riêng cho bố mẹ, phòng ngủ nhỏ dành cho con cái.
8. Biệt thự 1 tầng BT101965


Lại thêm một mẫu nhà nữa được thiết kế phòng ngủ theo phong cách phòng ngủ "sinh đôi"
9. Biệt thự 1 tầng BT81965


10. Thiết kế biệt thự 1 tầng BT61965


11. Biệt thự 1 tầng BT41965


12. Biệt thự 1 tầng BT11965

13. Nhà vườn 1 tầng BTNV310315


14. Biệt thự 1 tầng BTNV153003


Biệt thự 1 tầng hình chữ L thiết kế 2 phòng ngủ với diện tích khác nhau. Một phòng ngủ được đặt gọn trong một góc và cạnh phòng bếp ăn. Diện tích lớn hơn là phòng ngủ còn lại, có vệ sinh khép kín
Nhà 3 tầng 2 phòng ngủ
1. Biệt thự 3 tầng BT21265


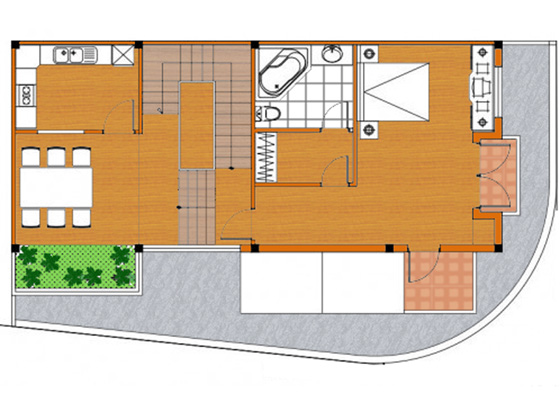
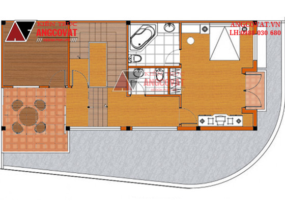
Biệt thự 3 tầng diện tích 160m2 ở Hà Nội được bố trí không gian nội thất vô cùng đơn giản nhưng không hề tạo cảm giác nhàm chán. Đặc biệt, 2 phòng ngủ được thiết kế trên tầng 2 và tầng 3 của ngôi nhà. Bước qua khỏi cầu thang tầng 2 là không gian phòng ngủ vô cùng rộng nằm gọn tại không gian bên trái của cầu thang thang thông tầng. Khi vực ban công rông rãi sẽ khiến cho phòng ngủ của bạn thoáng mát. Điều đặc biệt là các kiến trúc sư đã thiết kế 2 ban công quay 2 hướng khác nhau để bạn có thể đón mọi hướng gió vào nhà. Phòng ngủ có nhà vệ sinh tích hợp với phòng thay đồ.

Phòng ngủ còn lại có diện tích nhỏ hơn, được bố trí trên tầng 3. Phòng này chỉ có 1 ban công nhưng cũng đủ để mang lại cho bạn một không gian nghỉ ngơi thoáng mát, dễ chịu. Phòng vệ sinh khép kín trong phòng với bồn tắm lớn sẽ làm tan biến mọi mệt mỏi sau một ngày làm việc mệt mỏi.
Gọi cho chúng tôi nếu bạn cần tư vấn: 0988 030 680








