Nhà hiện đại đang dần chiếm được cảm tình của các chủ đầu tư bởi nó đang giúp giải quyết cùng lúc 4 vấn đề: thẩm mỹ, phong thủy, công năng và kinh tế. Chỉ khi thực sự đạt được sự hài hòa về cả 4 yếu tố này thì ngôi nhà mới mang lại sự hài lòng cho khách hàng. Hiểu được điều đó, đội ngũ kiến trúc sư ANG luôn nỗ lực không ngừng để đưa ra những mẫu thiết kế tối ưu nhất, và tiện nghi nhất xuất phát từ nhu cầu thực tiễn của từng vị khách. Hôm nay, chúng tôi sẽ giới thiệu đến các bạn mẫu thiết kế nhà hiện đại 120m2 mái thái 2 tầng kinh phí 1,5 tỷ đồng.
Nói qua một chút về ý tưởng hình thành nên mẫu thiết kế này. Ngôi nhà hiện đại 120m2 được cho ra đời dựa trên nhu cầu về mặt công năng sử dụng cũng như sở thích, mong muốn của gia đình anh Nguyễn Minh Hải ở Ba Vì, Hà Nội. Gia đình anh hiện tại đang sở hữu lô đất diện tích 420m2 vuông vắn, bằng phẳng và dự định sẽ xây nhà 2 tầng, diện tích sàn tầm khoảng 120m2. Hệ công năng bao gồm 1 khách, 1 bếp, 1 thờ và 5 phòng ngủ. Nhà được xây theo phong cách hiện đại, mái thái lệch, có nét tương đồng với ……Đây chính là mẫu nhà mà gia đình anh ưa thích nhất sau khi tham khảo bộ sưu tập các mẫu nhà 2 tầng của ANG.
Từ khi tiếp nhận yêu cầu, ký kết hợp đồng cho tới khi hoàn thiện đầy đủ hồ sơ thiết kế, thi công biệt thự 2 tầng đẹp hiện đại 120m2 kéo dài chừng 20 ngày, được chia thành 3 bước như sau:
Việc chia quy trình thành các bước nhỏ như vậy sẽ giúp chủ đầu tư, những người không được đào tạo về chuyên môn cũng có thể dễ dàng theo sát quá trình, tham gia cùng kiến trúc sư để tạo nên ngôi nhà phù hợp nhất với nhu cầu của gia đình mình.

Hồ sơ thiết kế nhà hiện đại 120m2 2 tầng mặt tiền 8m 5 phòng ngủ
- Tầng 1: Tiền sảnh 9m2, phòng khách 25m2, phòng bếp + ăn 25m2, phòng ngủ 1 17mm2, WC1 5m2, phòng ngủ 2 17m2.
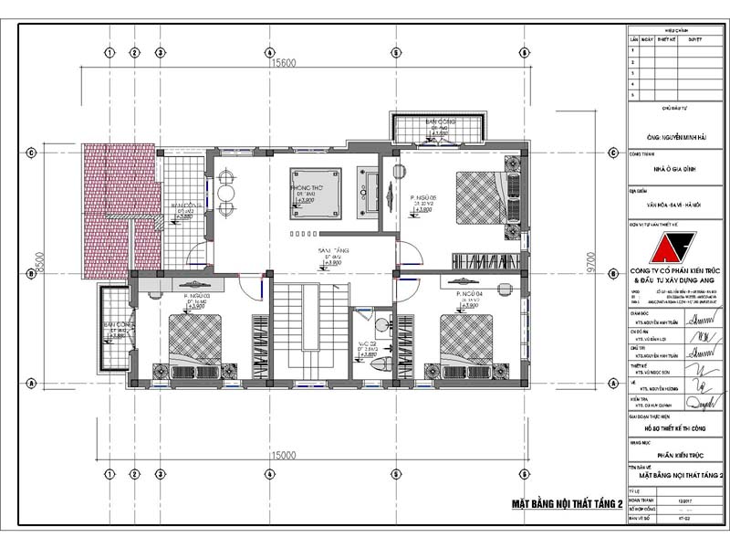
- Tầng 2: Phòng thờ 18m2, ban công 6m2, phòng ngủ 3 16m2, ban công của phòng ngủ 3 4 m2, sảnh tầng 8m2, WC2 3.5m2, phòng ngủ 4 16m2, phòng ngủ 5 20m2, ban công của phòng ngủ 5 4m2.
- Diện tích: 120m2/sàn
- Số tầng: 02
- Tổng diện tích (tính cả sảnh và mái): 288m2

Khái toán chi phí xây nhà hiện đại 120m2 2 tầng mái thái mặt tiền 8m
Giá trị tạm tính mẫu nhà 2 tầng mái lệch hiện đại 120m2
* Đơn giá trung bình xây dựng cho công trình này là: 5,177,083 đồng/m2
* Trường hợp chỉ làm vì kèo lợp ngói, đóng trần chi phí là: 1,341,900,000 đồng
* Trường hợp đổ bê tông mái bằng và mái dốc, chi phí là: 1,640,100,000 đồng
Ghi chú:
* Thông số khối lượng tính toán trên chỉ mang tính tham khảo
* Đơn giá vật tư ở mức hoàn thiện cơ bản trung bình
* Đơn giá trên là đơn giá chủ đầu tư trực tiếp thi công
* Chi phí khác: Đào móng, lấp móng, ép cọc, phát sinh thi công,... được tính bằng 10-15%.
Có thể khi chiêm ngưỡng ngôi biet thu 2 tang 5 phong ngu của gia đình anh Hải bạn sẽ có cảm giác khá thân quen vì đã xuất hiện ở đâu đó. Chính xác là như vậy. Đây là một trong những mẫu thiết kế được nhiều chủ đầu tư quan tâm nhất và đã trở thành xu hướng đầu năm 2018. Theo ý kiến của các gia chủ, ngôi nhà này, thứ nhất vừa phù hợp với kích thước ô đất hình chữ nhật, hình khối nổi bật, rõ ràng và có điểm nhấn khá thú vị ở mái. Thứ hai, về mặt bằng công năng sử dụng thì hoàn toàn phù hợp với nhu cầu của các gia đình hiện nay, dễ dàng bố trí phòng ốc và lối di chuyển. Ngoài ra, gia chủ cũng có thể tiết kiệm được diện tích để làm sân vườn, cổng, hàng rào mang lại sự hoàn thiện và khang trang hơn cho ngôi nhà.
Cùng kiểu kiến trúc hiện đại và phong cách tạo hình, tuy nhiên bằng sự khéo léo và con mắt nghệ thuật phong phú của mình, ở mỗi một mẫu thiết kế, kiến trúc sư ANG lại tạo ra điểm độc đáo riêng đủ để mang tới sự khác biệt cho từng công trình. Điểm khác biệt đó tinh tế vô cùng. Đó có thể là thay đổi cách phối màu khác lạ, nhấn mạnh phần trán tường, thay đổi chất liệu sử dụng, thay đổi bố cục giữa các khối hay tỉ lệ,…Vậy còn mẫu thiết kế nhà hiện đại 120m2 mái thái, kiến trúc sư đã làm cách nào đã tạo nên sự nổi bật, mang tính cá nhân hóa mà gia đình anh Hải mong muốn?
Điểm đầu tiên gây chú ý đến người đối diện khi chiêm ngưỡng ngôi nhà chính là sự xuất hiện của các khối hình vuông vức, khỏe khoắn trên nền không gian thiên nhiên. Phong cách hiện đại đặc trưng bởi sự sắp xếp tự do, có phần phóng khoáng giữa các khối nhà. Thoạt nhìn có vẻ bất ổn nhưng lâu dần bạn sẽ cảm thấy mọi sự “hỗn loạn” đều có trật tự của nó và nhằm thể hiện một ý tưởng sâu xa của người làm thiết kế.
Ngôi nhà hiện đại 120m2 mái thái tăng cường sử dụng mặt phẳng và các góc vuông, mở rộng diện tích sử dụng, giải phóng các chi tiết trang trí rườm rà, tập trung làm sáng bề mặt tường, tạo cảm giác thoáng đãng. Điểm nhấn thu hút và tạo hiệu ứng nâng đỡ khỏe khoắn là các đường phào chỉ kẻ ngang.

Phối cảnh 01 thiết kế nhà hiện đại 120m2 5 phòng ngủ kinh phí 1,5 tỷ đồng
Phối màu ngoại thất là bài toán đòi hỏi người làm thiết kế phải cân nhắc tới nhiều yếu tố. Từ việc lựa chọn màu sao cho hài hòa về hình khối kiến trúc, không quá nhợt nhạt cũng không quá lòe loẹt nhưng đủ để tạo được dấu ấn đặc biệt. Màu sắc kết hợp không những giúp ích cho chính bản thân ngôi nhà mà còn ảnh hưởng không nhỏ tới sức khỏe, tinh thần của các thành viên trong gia đình. Và cuối cùng, sự phối màu còn phải đảm bảo sự hợp lý với quang cảnh xung quanh, với không gian thiên nhiên, với các công trình khác trong khu phố.
Vậy thì hài hòa là như thế nào? Đâu là thước đo chuẩn cho tính thẩm mỹ trong cách phối màu? Để đạt được điều này, có những nguyên tắc mà nhất định kiến trúc sư không thể bỏ qua. Như trong mẫu thiết kế nhà hiện đại 120m2 2 tầng 5 phòng ngủ, nguyên tắc ấy là sự tương phản và phân chia tỷ lệ 60-30-10.
Trước hết sẽ có một màu sắc được chọn ra làm tone màu chủ đạo. Tone màu này yêu cầu xuất hiện tối thiểu là 60%. Trong ngôi nhà của gia đình anh Hải, màu sắc chủ đạo được dùng là màu vàng kem. Vàng kem có lẽ không phải là tone màu xa lạ đối với các ngôi nhà hiện đại. Màu vàng kem, xét về mặt thẩm mỹ được rất nhiều gia đình ưa thích bởi tính trung hòa và dễ chịu của nó. Không quá chói sáng, dễ sử dụng, dễ phối màu lại tạo được cảm giác vừa thân thuộc, vừa ấm cúng. Bản thân vàng kem cũng là màu sắc được pha trộn giữa cái rực rỡ, sang trọng của gam màu vàng và chất tươi sáng, khỏe khoắn của màu trắng.
Màu sắc thứ 2 xuất hiện trong bản phối màu của ngôi nhà hiện đại 120m2 mặt tiền 8m là tone màu tương phản nâu trầm. Màu nâu dùng cho hệ thống cửa gỗ và toàn bộ khu vực chân tường. Tone màu này nổi bật, tạo cảm giác ấm cúng, mộc mạc và ổn định trên nền màu chủ đạo tươi sáng. Chiếm đến khoảng 30% tỷ lệ, màu nâu vừa giúp cân bằng thị giác lẫn cảm giác của người đối diện. Xét về mặt công năng sử dụng, chân tường là khu vực dưới thấp, dễ bị vấy bẩn bởi vậy việc sử dụng một gam màu tối sẽ hạn chế thời gian bạc màu của ngôi nhà, giữ cho tấm áo ngoại thất luôn sạch sẽ và tươi mới.
Màu sắc thứ 3 xuất hiện chỉ với tỷ lệ 10% nhưng lại đóng vai trò tác động mạnh, tạo hiệu ứng nổi bật chính là màu đỏ. Màu đỏ dùng cho toàn bộ hệ mái thái. Theo quan niệm của người phương Đông, màu đỏ tượng trưng cho sự may mắn và cát tường. Còn dưới khía cạnh thẩm mỹ, màu đỏ chính xác là gam màu còn thiếu cho bản phối màu của mẫu nhà hiện đại 120m2 2 tầng kinh phí 1,5 tỷ đồng trở nên hoàn hảo hơn.
Quan sát tổng thể một công trình nhà ở tất nhiên không chỉ có ngôi nhà mà có các không gian bổ trợ như sân vườn. Bởi vậy màu sắc cũng trở nên đa dạng hơn. Bên cạnh các màu sắc nhân tạo (đến từ vật liệu xây dựng, hoàn thiện) tất nhiên ai cũng mong muốn ngôi nhà của gia đình mình được điểm tô thêm các sắc màu tự nhiên của cỏ cây, hoa lá. Đó là lý do vì sao, kiến trúc sư ANG luôn biết cách tận dụng để tạo nên những không gian thiên nhiên hay đơn giản là thiết kế trang trí thêm các bồn hoa, bồn cây xanh mát, tăng phần sức sống cho ngôi nhà.
Xem thêm: chi phí xây nhà 1 trệt 1 lầu 5x20 năm 2018 không tốn kém

Nhà hiện đại 120m2 mái thái sử dụng tone màu trầm ấm
Lựa chọn sử dụng chất liệu nào cho ngôi nhà là một trong số những bài toán cụ thể mà người kiến trúc sư cần đi tìm lời giải khi thiết kế nhà hiện đại 120m2 2 tầng kinh phí 1,5 tỷ đồng. Nói về tầm quan trọng của bài toán này. Thứ nhất, chắc chắn là về mặt thẩm mỹ. Xây thô là công đoạn tạo hình cơ bản và muốn hoàn thiện và trang hoàng cho ngôi nhà tất nhiên không thể thiếu các chất liệu hoàn thiện và có tác dụng trang trí như sơn nhà, cửa, ngói, gạch ốp,…Thứ hai, xét đến công năng, việc sử dụng lớp vật liệu hoàn thiện là để tăng thêm sức đề kháng cho công trình trước tác động của thời gian hay khí hậu khắc nghiệt. Cuối cùng là tính kinh tế. Với cùng một loại vật liệu sẽ có các dòng khác nhau đương nhiên cũng sẽ có những đặc điểm khác nhau về độ bền, giá thành, đặc tính sử dụng, bởi vậy lựa chọn dòng nào, hãng nào, loại nào gia chủ cũng phải cân nhắc kĩ lưỡng sao cho vừa phù hợp với nhu cầu vừa thỏa mãn túi tiền.
Có thể điểm qua sự xuất hiện của một vài chất liệu hiện đại được sử dụng trong ngôi nha 2 tang 120m2 hiện đại của gia đình anh Hải. Đó là chất liệu gỗ kính cho hệ thống cửa sổ. Cửa sổ là khu vực đón sáng và thông khí quan trọng của ngôi nhà. Cửa kính với đặc tính trong suốt, cho phép ánh sáng chiếu qua mang lại sự thoáng đãng và sáng sủa. Chất liệu gỗ làm tăng thêm độ chắc chắn và sự sang trọng cho ngôi nhà, góp phần làm nổi bật bức tranh phối màu.
Chất liệu tiếp theo có thể kể đến là loại ngói mái thái tạo sóng. Được sản xuất trên dây chuyền hiện đại, loại ngói này có độ bền màu cao, giá cả hợp lý lại được phủ lớp men chống rong rêu, ẩm mốc, giữ cho ngoại thất luôn tươi mới theo thời gian. Để lựa chọn dòng sản phẩm phù hợp, gia chủ nên cân nhắc đến tác dụng chính của lớp ngói trên cùng. Ví dụ trong trường hợp mái nhà được xây dựng theo phương án trực tiếp gác vỉ kèo lợp ngói thì lớp ngói này đóng vai trò bao phủ, che chắn, ngôi nhà rất lớn vì vậy nên chọn loại có độ bền cao, giá thành có thể đắt hơn. Ngược lại nếu phương án thi công mái là đổ mái bằng gác vỉ kèo hay đổ mái bằng rồi đổ mái dốc thì lớp ngói bên trên chủ yếu đóng vai trò tạo kiến trúc, nâng tính thẩm mỹ bởi vậy chất liệu sử dụng không yêu cầu chất lượng chắc chắn như ở phương án trên.
Ngoài các vật liệu kể trên, ngôi nhà hiện đại 120m2 2 tầng phong cách hiện đại còn sử dụng nhiều chất liệu khác như đá rối ốp chất tường, gạch lát sàn, đá hoa cương ốp sảnh hay sơn ngoại thất chống kiềm, chống bám bẩn, chống ẩm mốc tốt.

Phối cảnh tổng thể sử dụng chất liệu ưu việt của ngôi nhà hiện đại 120m2 của gia đình anh Hải
Diện tích lô đất của gia đình anh Hải không quá rộng rãi nhưng nhờ sự tư vấn của kiến trúc sư, sau khi xây nhà đảm bảo đầy đủ công năng, anh vẫn có thể tiết kiệm được một khoảng diện tích để bố trí thêm sân, tiểu cảnh cây xanh, bồn hoa và làm cổng hàng rào bảo vệ xung quanh. Chính điều này đã góp phần mang lại sự hoàn thiện cao nhất cho không gian sống của gia đình.
Xét về mặt bằng nội thất, bố cục các phòng được sắp xếp khoa học, hợp lý phù hợp với nhu cầu sử dụng của gia đình lại tiết kiệm diện tích. Ở tầng 1 của ngôi nhà hiện đại 120m2, kiến trúc sư hướng tới việc tạo ra các khoảng không gian mở bởi tầng 1 chủ yếu là nơi tiếp khách và sinh hoạt chung của cả gia đình. Việc không chia nhỏ thành các phòng và tạo lối đi tự nhiên sẽ tăng tính gắn kết và sự thoải mái, thống nhất trong sinh hoạt. Ngược lại, tầng 2 hướng tới sự yên tĩnh bởi đây là không gian sinh hoạt riêng tư của các thành viên trong gia đình. Giải pháp được đưa ra là chia nhỏ thành các phòng khép kín đầy tiện nghi, tuy nhiên chính việc sắp xếp hay tạo các khoảng không gian sở hữu chung vẫn tạo được tính kết nối cho mặt bằng sử dụng tầng 2.
Xem thêm: Mẫu nhà hiện đại 2 tầng đẹp

Tổng mặt bằng định vị lô đất của mẫu thiết kế nhà hiện đại 120m2 2 tầng
Từ sảnh chính bước vào là không gian phòng khách sang trọng của ngôi nhà hiện đại 120m2 mái lệch. Phòng khách là nơi tiếp khách, là nơi gia đình phô diễn phong cách và lối sống cũng như sự đẳng cấp của gia đình. Ngoài ra đây cũng là nơi sinh hoạt chung vào mỗi buổi tối nên ngoài đồ nội thất cơ bản như bàn ghế, tủ kệ tivi, chúng tôi tạo ra nhiều khoảng trống để gia đình có thể tự do trang trí, sắp đặt và ghi dấu phong cách.
Từ phòng khách bước vào là phòng ăn của ngôi nhà hiện đại 120m2 2 tầng. Giữa phòng là bộ bàn ăn kích thước lớn bởi gia đình là nơi tụ tập thường xuyên của anh em họ hàng. Cửa hậu phía sau và cửa sổ lớn đảm bảo lưu thông dòng khí và sự thoáng đãng, sáng sủa cho cả tầng 1. Để cho gọn gàng và sạch sẽ, bếp nấu được tách riêng đằng sau có lối đi thông qua cửa hậu.
Tầng 1 bố trí 2 phòng ngủ tiện nghi và một khu vệ sinh dùng chung. 1 phòng ngủ dành cho ông bà và 1 phòng ngủ dành cho vợ chồng anh Hải để tiện chăm sóc ngôi nhà. Ngoài ra người già cũng cần hạn chế đi lại cầu thang bởi vậy việc bố trí như vậy là vô cùng hợp lý.
Xem thêm: thiết kế nhà 1 hầm 1 trệt 1 lầu

Mặt bằng công năng nội thất tầng 1 thiết kế nhà hiện đại 120m2 5 phòng ngủ
Trên tầng 2, dựa theo nhu cầu sử dụng của chủ nhân ngôi nhà hiện đại 120m2 mặt tiền 8m là hệ thống 3 phòng ngủ tiện nghi, gọn gàng. Mỗi phòng đều được trang bị đồ nội thất đầy đủ đảm bảo cho nhu cầu sinh hoạt, ngủ nghỉ cơ bản của mỗi thành viên trong gia đình. Ngoài ra, là các khoảng trống để trao đổi khí, đón sáng và di chuyển thoải mái. Mỗi phòng ngủ đều có ban công mở quay ra một hướng hay cửa sổ tạo nhiều điểm view thú vị.
Phòng thờ được thiết kế rộng rãi theo hướng mở tạo sự gắn kết giữa các thế hệ. Bàn thờ kê dựa lưng chắc chắn vào tường hướng ra phía cửa chính hợp mệnh với gia chủ. Ở phòng thờ có cửa mở ra ban công và cửa sổ đón sáng giúp không gian căn phòng thoáng đãng, tránh tạo cảm giác bí bức, năng lượng không thông suốt.

Mặt bằng công năng tầng 2 mẫu nhà hiện đại 120m2 2 tầng mặt tiền 8m
Mẫu thiết kế nhà hiện đại 120m2 mái thái 2 tầng đang trở thành xu hướng không chỉ bởi vè bề ngoài lộng lẫy, sang trọng và đầy thu hút. Quan trọng hơn cả, nó thuyết phục những vị khách khó tính bởi chính công năng sử dụng tiện nghi, hứa hẹn cho một cuộc sống chất lượng. Hãy để ANG dồng hành cùng bạn trên con đường đi tìm giá trị đích thực của cuộc sống!
Mọi thông tin cần tư vấn xin vui lòng liên hệ: 0988.030.680
Tham khảo: mẫu nhà biệt thự 2 tầng ở nông thôn