Nhà Tứ Hợp Viện là kiểu kiến trúc truyền thống Á Đông, gồm 4 khối nhà bao quanh một khoảng sân trung tâm, tạo nên một không gian sống khép kín, hài hòa với thiên nhiên.
Khi được ứng dụng vào nhà cấp 4, Tứ Hợp Viện trở thành lựa chọn lý tưởng cho những gia đình yêu thích sự bình yên – riêng tư – gắn kết các thế hệ.
Đây không chỉ là một ngôi nhà, mà là một nếp sống, nơi giữ gìn văn hóa truyền thống và gắn kết các thành viên trong gia đình

Chủ đầu tư: Ông Nguyễn Văn Mạnh
Địa điểm xây dựng: Đông Anh – Hà Nội
Diện tích khu đất: 570m²
Diện tích xây dựng: 320m²
Loại hình: Nhà ở dân dụng – nhà cấp 4 Tứ Hợp Viện nông thôn
Đơn vị thiết kế: Kiến trúc sư Angcovat
Năm thi công: 2026
Chi tiết bản vẽ thiết kế có tại: Báo giá xây nhà Tứ hợp viện hiện đại 2026

Phương án thiết kế nhà cấp 4 Tứ Hợp Viện được KTS Angcovat triển khai theo tinh thần kiến trúc truyền thống Á Đông, kết hợp với giải pháp công năng hiện đại, phù hợp với điều kiện sinh hoạt của gia đình nông thôn Việt Nam ngày nay.
Công trình được bố cục theo dạng 4 khối nhà bao quanh sân trung tâm, tạo nên:
Không gian sống khép kín, riêng tư
Sự kết nối chặt chẽ giữa các thành viên trong gia đình
Vi khí hậu mát mẻ, thông thoáng quanh năm
Khoảng sân trong đóng vai trò là trung tâm sinh hoạt – điều hòa không khí – yếu tố phong thủy tụ khí, mang lại cảm giác an yên, bền vững cho ngôi nhà.
Sân trong đóng vai trò “lá phổi xanh”, giúp:
Lấy sáng tự nhiên cho toàn bộ không gian
Đối lưu không khí, giảm nóng hiệu quả
Tạo cảm giác thư thái, an yên mỗi ngày
Bố cục Tứ Hợp Viện giúp:
Các phòng có sự riêng tư cần thiết
Vẫn giữ được kết nối chung qua sân trung tâm
Rất phù hợp với gia đình có người lớn tuổi và trẻ nhỏ
Thế nhà bao bọc, tụ khí tốt
Trung cung sáng – thoáng – vượng khí
Dễ bố trí hướng nhà, hướng phòng theo mệnh gia chủ
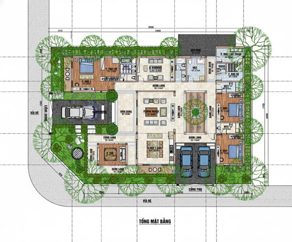
Một mẫu thiết kế nhà cấp 4 Tứ Hợp Viện thường gồm:
Nhà chính: phòng khách + phòng thờ (trang trọng, hướng đẹp)
2 cánh nhà bên: bố trí phòng ngủ, phòng sinh hoạt riêng
Khối nhà phụ: bếp + phòng ăn (tách mùi, ấm cúng)
Sân trung tâm: tiểu cảnh, hồ cá, bàn trà, khu vui chơi trẻ nhỏ
Công năng có thể linh hoạt từ 2 – 4 phòng ngủ, tùy diện tích đất và nhu cầu sử dụng.
Mặt bằng được tổ chức khoa học, tách bạch rõ không gian chung – không gian riêng – không gian phụ trợ, cụ thể:
Tiền sảnh: 19m² – tạo khoảng đệm trang trọng trước khi vào nhà
Phòng khách: 30m² – đặt tại vị trí trung tâm, kết nối trực tiếp sân trong
Phòng thờ: 11.36m² – bố trí riêng biệt, đảm bảo sự trang nghiêm và phong thủy
Phòng bếp + ăn: 23.5m² – rộng rãi, thông thoáng, thuận tiện sinh hoạt gia đình
Hệ thống phòng ngủ:
Phòng ngủ 1: 19m² (kèm phòng thay đồ 8.5m²)
Phòng ngủ 2: 15.5m²
Phòng ngủ 3: 16m²
Phòng ngủ giúp việc: 7.5m²
Không gian phụ trợ & tiện ích:
Phòng karaoke: 16.5m² – phục vụ nhu cầu giải trí
Phòng kho: 8.7m²
Phòng giặt phơi: 7.8m²
Hệ thống WC:
WC 1: 2.5m²
WC 2: 3.6m²
Hành lang kết nối các khối nhà: 6.8m² & 7.2m²
Các không gian đều mở cửa ra sân trong hoặc sân vườn xung quanh, giúp lấy sáng – lấy gió tự nhiên tối đa, hạn chế phụ thuộc vào điện năng.
Kiểu nhà này phát huy đẹp nhất với:
Diện tích đất từ 150m² – 300m² trở lên
Phù hợp đất vườn, đất quê, ven đô, khu nghỉ dưỡng
Tuy nhiên, với thiết kế tối ưu, nhiều KTS vẫn có thể triển khai Tứ Hợp Viện trên diện tích nhỏ hơn mà vẫn đảm bảo thẩm mỹ và công năng.

Tứ Hợp Viện truyền thống: mái ngói, gỗ, sân gạch, đậm chất Á Đông
Tứ Hợp Viện hiện đại: đường nét tinh giản, vật liệu mới, không gian mở
Tứ Hợp Viện Indochine: giao thoa Đông – Tây, sang trọng và hoài niệm
Gia chủ có thể lựa chọn phong cách phù hợp với ngân sách – gu thẩm mỹ – mục đích sử dụng (ở lâu dài hay nghỉ dưỡng).

Về hình thức kiến trúc, công trình sử dụng:
Mái dốc lợp ngói truyền thống, tạo cảm giác bền vững, mát mẻ
Hệ cột, vì kèo gỗ kết hợp tường sơn sáng, hài hòa với cảnh quan
Hàng rào thấp, lam gỗ và cây xanh bao quanh, giữ sự riêng tư nhưng vẫn gần gũi thiên nhiên
Tổng thể công trình mang vẻ đẹp trầm – tĩnh – sang, rất phù hợp với không gian nông thôn ven đô như Đông Anh – Hà Nội.
✔️ Quy hoạch mặt bằng ngay từ đầu, tránh phát sinh chỉnh sửa
✔️ Tính toán kỹ thoát nước, chống nóng cho sân trung tâm
✔️ Chú trọng tỷ lệ sân – nhà để không gian hài hòa
✔️ Nên làm việc với KTS có kinh nghiệm thiết kế Tứ Hợp Viện để đảm bảo công năng & phong thủy

Phương án thiết kế nhà cấp 4 Tứ Hợp Viện nông thôn của gia đình ông Nguyễn Văn Mạnh là một mẫu nhà tiêu biểu cho:
Gia đình nhiều thế hệ cùng sinh sống
Gia chủ yêu thích kiến trúc truyền thống, phong thủy tốt
Nhu cầu ở lâu dài, nghỉ dưỡng, gắn bó với thiên nhiên
Đây là mẫu nhà không chạy theo xu hướng ngắn hạn, mà hướng tới giá trị bền vững theo thời gian.
Thiết kế nhà cấp 4 Tứ Hợp Viện không chỉ là xu hướng kiến trúc, mà là lựa chọn dành cho những gia đình mong muốn:
Một không gian sống chậm – sâu – bền vững
Nơi con cháu quây quần, người già an hưởng tuổi già
Một ngôi nhà càng ở càng thấy giá trị
📞 Liên hệ KTS tư vấn thiết kế nhà cấp 4 Tứ Hợp Viện đẹp:
Hotline: 0988 030 680
Bộ sưu tập nhà đẹp được mong chờ nhiều nhất: Biệt thự vườn 1 tầng đẹp