Lạng Sơn ơi ! Đẹp tuyệt trần
Xin mời các bạn ghé chân nơi này
Đến rồi sẽ thấy mê say
Cùng uống chén rượu vui ngày đón xuân.
Bài thơ cất lên như lời mời gọi du khách hãy một lần đến với xứ Lạng – mảnh đất địa đầu của Tổ quốc. Một lần đặt chân đến với Lạng Sơn, hẳn bạn sẽ không khỏi ngỡ ngàng bởi vẻ đẹp nên thơ “sơn thuỷ hữu tình” của cảnh quan thiên nhiên nơi đây. Chắc hẳn ai cũng đa từng nghe đến những địa danh như Chợ Kỳ Lừa, Nàng Tô Thị, Chùa Tam Thanh, đây là những nền tảng cơ bản tạo nên sự đa dạng, phong phú về văn hoá của tỉnh Lạng Sơn.
Nhưng đằng sau vẻ đẹp hoang sơ quyến rũ đó là những khó khăn nhất định của những con người nơi đây bởi địa hình mang lại. Đặc trưng nhất trong những khó khăn về địa hình là việc xây dựng các công trình, nhà ở…Ít được tiếp cận với dịch vụ thiết kế rồi đến công cuộc vận chuyển vật liệu xây dựng cũng gặp nhiều trở ngại. Công ty kiến trúc và đầu tư xây dựng Angcovat rất có duyên với vùng đất sơn cước này, chúng tôi may mắn nhận được nhiều yêu cầu tư vấn xây dựng nhà của các chủ đầu tư ở Lạng Sơn. Tuần này chúng tôi lại nhận được gmail yêu cầu tư vấn thiết kế nhà của Anh Thủy tại thị trấn Cao Lộc, tỉnh Lạng Sơn. Trở ngại về khoảng cách, chúng tôi không có điều kiện gặp gỡ anh, do đó phương pháp tư vấn và thiết kế từ xa được tận dụng triệt để. Kiến trúc sư hiểu được những khó khăn và nỗi lo lắng của chủ nhà ở xa nên đã cố gắng làm việc liên tục qua điện thoại, gmail. Dựa vào thông tin về lô đất do chủ nhà cung cấp cùng với việc bám sát mong muốn của gia chủ, kiến trúc sư Trinh Nga của Angcovat đã lên ý tưởng và lên bản vẽ nhà 1 trệt 1 lửng 1 lầu mái thái hiện đại. Dưới đây, mời bạn tìm hiểu rõ hơn về mẫu thiết kế độc đáo này.
|
BT111127 |
|
02 |
|
Anh Nguyễn Văn Thủy |
|
Trị trấn Cao Lộc- Tỉnh Lạng Sơn |
|
13m |
|
11m |
|
17.8x17.5m |
|
Kiến trúc sư Angcovat- Trịnh Thị Nga |
|
2018 |
|
Khoảng 1.4 tỷ đồng (Xem bảng dự toán chi tiết bên dưới) |
|
- Diện tích: Nhà 120m2/sàn - Thông số: +) Tầng 1: Sảnh chính 11m2, Phòng khách 26m2, Gara ô tô 19m2, Phòng ngủ 1: 12.5m2, Phòng bếp ăn 21m2, WC1: 6m2 +) Tầng 2: Sân phơi 5.5m2, Phòng thờ 27m2, Phòng ngủ 2: 12.5m2, Lô gia: 5.5m2, Phòng ngủ 3: 13m2, Ban công 15m2, Phòng ngủ 4: 15m2. |
Trong thiết kế nhà thì thiết kế mặt tiền là một công đoạn rất quan trọng luôn luôn được chủ đầu tư chú trọng. Bởi lẽ theo quan niệm phong thủy thì mặt tiền là điểm quan trọng quyết định đến sự thành công hay thất bại của gia đình và các thành viên trong nhà. Trong một ngôi nhà thì mặt tiền rất khó thay đổi, chỉ có thể bố trí phù hợp để cân bằng sự hài hòa ví dụ như màu sơn theo phong thủy hướng nhà, bố trí các mảng lồi lõm âm dương hài hòa.

Mặt tiền 13m lung linh từ bản vẽ nhà 1 trệt 1 lửng 1 lầu
Bản vẽ nhà 1 trệt 1 lửng 1 lầu thiết kế mặt tiền ấn tượng với 3 khối chính đều đặn. Khối ở giữa ngôi nhà được đẩy thụt về sau tạo ra khoảng tiền sảnh và ban công rất đẹp. Trong phong thủy nhà ở, việc bố trí các mảng lồi hay lõm, cong hay thẳng, vuông hay tròn… của mặt ngoài nhà cũng liên quan đến yếu tố hài hòa âm dương của ngôi nhà. Việc thiết kế mặt tiền nhà thành các khối như vậy tạo nên sự khác biệt, ấn tượng mạnh mẽ với người nhìn. Hai khối hai bên được thiết kế cân xứng , đồng đều, làm nổi bật nét kiến trúc ở giữa. Trước tiền sảnh, ngôi nhà sử dụng bậc tam cấp kiến ngôi nhà nhìn sang trọng hơn và cao hơn, tránh ẩm thấp.
Do diện tích đất có hạn nên kiến trúc sư lên ý tưởng thiết kế gara ô tô trong nhà, giúp tiết kiệm diện tích sân trước. Với thực trạng đất xây dựng ngày càng hiếm, xu hướng thiết kế gara trong nhà là một giải pháp hay giúp giải quyết được chỗ để xe, nhà kho. Một bên của bản vẽ nhà 1 trệt 1 lửng 1 lầu được sử dụng để thiết kế gara rất hiện đại. Với cách thiết kế khéo léo, sử dụng cửa cuốn hiện đại, gara không những tiện lợi và an toàn mà còn giúp mặt tiền nhà sang trọng hơn. Kích thước gara phụ thuộc kích thước loại ôtô mà gia chủ dùng và số lượng xe để trong gara. Bạn nên mở cửa sổ hoặc khe thoáng trên các diện tường, cửa sổ mái để đảm bảo ánh sáng, sự thông thoáng làm giảm mùi hôi, xăng xe… bay vào nhà.
Xem thêm cách tính tầng hầm cao bao nhiêu và cách làm tầng hầm để xe đẹp và đúng kỹ thuật
Thật là khuyết điểm lớn khi thiết kế nhà mà làm hạn chế ánh sáng ở khu vực giữa nhà, vì vậy mặt tiền là nơi phù hợp nhất để thiết kế cửa sổ lấy sáng vào nhà. Hệ cửa sổ ở mặt tiền mẫu nhà 2 tầng này được thiết kế rất rộng ở cả tầng 1 và tầng 2. Cửa kính khung gỗ sơn trắng vừa giúp lấy sáng tối đa cho bên trong ngôi nhà vừa làm nổi bật mặt tiền bên ngoài. Cửa chính và cửa ra ban công tầng 2 cũng được kết cấu là cửa gỗ kết hợp pano kính mang lại vẻ đẹp sang trọng, lịch sự và hiện đại. Để tránh sự tẻ nhạt khi bước vào nhà, hai bên tiền sảnh có đặt hai chậu cây cảnh vừa làm sinh động không gian trước nhà, vừa mang lại may mắn cho chủ nhà.
Ban công tầng hai cũng sử dụng yếu tố thiên nhiên làm tăng sức sống cho không gian. Lan can ban công làm bằng sắt có điểm hoa văn nhẹ nhàng mang lại nét đẹp thanh lịch, phá chút cổ kính cho ngôi nhà. Lưu ý, sàn ban công nên thấp hơn so với mặt sàn tầng để giúp thoát nước dễ dàng hơn. Và khe hở của những song sắt ban công không nên hở quá 15cm vì nó có thể gây nguy hiểm đối với trẻ em.

Phối cảnh ngoại thất bản vẽ nhà 1 trệt 1 lửng 1 lầu phong cách hiện đại
Nhìn vào ngoại thất ngôi nhà, chắc chắn bạn sẽ chú ý đến hệ thống cửa sổ trắng nổi bật. Ngoài ra bức tường nhàm chán đã được làm làm đẹp hơn với gạch trần trang trí. Gạch trần trước kia chỉ được biết đến với công năng chính là vật liệu xây dựng không thể thiếu trong việc tạo khối của mỗi công trình. Hiện nay, gạch trần vẫn giữ vai trò đó nhưng nó không chỉ nằm bên trong và bị che đi bởi lớp vữa chát hay lớp sơn mà tự bản thân nó cũng đã trở thành một vật liệu trang trí được yêu thích. Bởi tính chất thô mộc và tự nhiên của gạch trần nên không khó để kết hợp với các chất liệu khác trong trang trí cả nội và ngoại thất. Bản vẽ nhà 1 trệt 1 lửng 1 lầu được ốp gạch trần trang trí ở các mặt nhà tạo sự độc đáo và gần gũi, giản dị cho ngôi nhà. Bức tường trở nên vừa cổ điển, vừa hiện đại.
Chân tường ngôi nhà sử dụng đá granite ốp vừa trang trí vừa bảo vệ ngôi nhà. Đá granite còn gọi là đá hoa cương, là loại đá tự nhiên được hình thành do sự biến chất của các loại đá vôi, đá carbonate hay đá dolomit. Vì kết cấu tinh thể, đá Granite có độ cứng cao, ít thấm nước nên rất thích hợp lát ở mặt tiền. Giá thành thấp, dễ thi công, ít gãy mẻ, đường vân đẹp, đa dạng mẫu là những điểm khiến đá granite được yêu thích và sử dụng nhiều trên thị trường. Sử dụng đá granite ốp chân tường sẽ giúp ngôi nhà sang trọng và sạch sẽ hơn, giúp chống thấm cho phần chân tường, dễ dàng vệ sinh khi bẩn bụi.
Việc chọn màu sơn hoặc màu trang trí cho ngoại thất là vô cùng quan trọng vì nó cũng giống như chiếc áo của ngôi nhà. Lựa chọn đúng màu sơn không chỉ làm đẹp cho ngôi nhà mà còn mang lại sự dễ chịu cũng như may mắn cho con người. Màu sắc cũng ảnh hưởng rất nhiều tới tâm trạng, cảm xúc của con người. Trong khi màu ấm nóng có ảnh hưởng tích cực giúp an ủi tâm trạng thì những màu lạnh nhẹ nhàng lại khiến con người bình tĩnh. Ngoài ra, màu sắc còn có tác dụng đánh lừa cảm giác về sự thay đổi kích thước, hình dạng ngôi nhà.

Màu sắc làm tôn lên nét đẹp kiến trúc trong bản vẽ nhà 1 trệt 1 lửng 1 lầu
Nền tường mẫu nhà 2 tầng có gác lửng này sử dụng màu be nhẹ nhàng, tinh tế nhưng không kém phần ấm áp. Phần chân nhà và mái nhà được chọn lựa tông màu đậm và tối làm điểm nhấn tạo cảm giác ngôi nhà cao hơn. Màu nâu đỏ của gạch trần nung mang lại sự gần gũi, rung cảm, ấm cúng. Sắc trắng của cửa sổ, cửa cuốn gara mang lại sự nổi bật, quyến rũ và dịu nhẹ cho ngôi nhà. Bản vẽ nhà 1 trệt 1 lửng 1 lầu có sự phối hợp hài hòa, đan xem các màu một cách hợp lý, mang lại cái nhìn dễ chịu và đẹp kỳ lạ. Giữa núi rừng Lạng Sơn mát lạnh thì những gam màu nóng như vậy sẽ làm cho ngôi nhà ấm áp hơn, nổi bật hơn giữa không gian xanh bạt ngàn của núi đồi.
Nguyên tắc khi bạn chọn màu sắc cho ngoại thất là không nên chọn quá nhiều màu. Nên chọn những màu trung tính nhẹ nhàng làm nền và một hai màu đậm để nhấn nhá cho ngôi nhà. Những màu đậm tô điểm cho ngôi nhà nên tập trung vào trang trí các phần như phào chỉ, cửa sổ, cửa ra vào, cột trụ…Đối với ngoại thất, nên chọn sơn có chất lượng tốt, chống thấm tốt. Với các vật liệu trang trí khác như gạch, đá ốp nên chọn loại có độ bền cao, không bị phai màu để giữ cho ngôi nhà bạn luôn tươi mới.
Xem thêm những mẫu nhà có tầng hầm đẹp

Mái thái đơn giản cho bản vẽ nhà 1 trệt 1 lửng 1 lầu
Mái thái nhà 2 tầng 120m2 được thiết kế đơn giản và có sự phá cách. Cả mái cổng ra vào, mái hiên và cả cửa sổ trên gác lửng đều dùng mái cho ngói Thái Lan. Ở trong rất nhiều bài viết trước, chúng tôi đã nói đến ưu điểm của mái thái so với các loại mái khác.
Trước kia con người thường cho rằng mái ngói thường dùng cho nhà truyền thống, mái bằng bê tông dành cho những ngôi nhà hiện đại. Quan điểm này không hoàn toàn đúng, bởi hiện nay sự xuất hiện của mái ngói trong những công trình hiện đại ngày càng nhiều. Mái thái kết hợp với phong cách nhà hiện đại mang lại vẻ đẹp sang trọng, đẳng cấp hơn cho ngôi nhà. Bản vẽ nhà 1 trệt 1 lửng 1 lầu còn kết hợp thêm cửa sổ kính trên tầng lửng vừa để lấy thêm nguồn sáng cho ngôi nhà và làm cho kiến trúc ngoại thất thêm bắt mắt. Kết cấu mái thái với độ dốc lớn có khả năng thoát nước nhanh, chống thấm, dột tốt hơn. Ngoài ra mái ngói không hấp thụ và giữ nhiệt nên nhiệt độ của nhà không bị tăng cao vào mùa hè.
Tham khảo những mẫu nhà vuông 2 tầng mái thái tuyệt đẹp
Một ngôi nhà có ngoại thất đẹp phải đi liền với công năng mặt bằng hợp lý, thoải mái. Việc bố trí công năng sử dụng trong nhà quyết định sự thoải mái trong sinh hoạt hàng ngày của chủ nhà.

Mặt bằng tổng thể bản vẽ nhà 1 trệt 1 lửng 1 lầu
Bản vẽ nhà 1 trệt 1 lửng 1 lầu diện tích 120m2 xây trên mảnh đất 17.8x17.5m rất vuông vắn. Một phần đất được bớt lại làm sân trước, đây là khoảng không gian phục vụ việc di chuyển và quay xe khi ra vào gara. Xung quanh sân nhà là hệ thống hàng cây xanh vừa làm cho ngôi nhà đẹp hơn vừa làm mát không khí. Cây cỏ xanh tươi không những điều hòa âm dương cho ngôi nhà, còn điều hòa không khí, tạo cảm giác sảng khoái, yêu đời cho con người.
Tham khảo so sánh sàn gỗ và sàn nhưa, nên lát nhà bằng sàn gỗ hay sàn nhựa

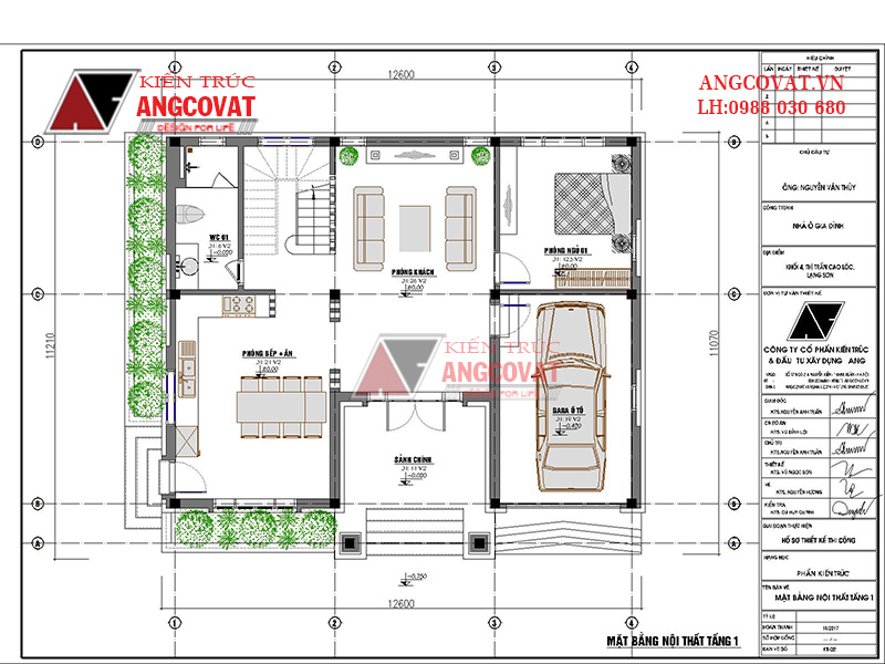
Công năng sử dụng tầng 1 của bản vẽ nhà 1 trệt 1 lửng 1 lầu mái thái
Với diện tích 120m2/sàn. Kiến trúc sư đã đưa ra phương án bố trí công năng tầng 1 của ngôi nhà 1 trệt 1 lửng 1 lầu rất tự nhiên và khoa học.
Từ ngoài sân vào là sảnh chính ngôi nhà có diện tích 11m2. Với diện tích rộng lớn này, chủ nhà có thể trang trí cho ngôi nhà thêm nổi bật ngay từ những bước chân đầu tiên vào nhà. Tại đây bạn cũng có thể bố trí cây cảnh, lắp thêm đèn chiều sáng hoặc kê những chiếc tủ, kệ dép xinh xắn. Ngoài chức năng đón khách thì tiền sảnh rộng cũng là nơi khách hoặc các thành viên trong ra đình đứng chờ xe khi trời mưa rất phù hợp.
Gara ô tô chiếm 19m2 diện tích của tầng 1 và được xây tách biệt với các phòng khác để ngăn mùi xăng dầu của phương tiện không bay vào nhà. Từ phòng khách cũng có cửa đi xuống gara, tiết kiệm thời gian đi lại, không nhất thiết phải đi vòng ra cửa chính rồi mới xuống gara. Trong diện tích tiết kế gara bạn nên sơn tường và trần bằng loại sơn dễ lau chùi, sàn gara nên sử dụng những vật liệu chống mài mòn và chống trơn. Nên thiết kế tủ chuyên dụng để chứa hóa chất và dụng cụ sửa chữa xe.
Khu vực phòng khách nằm chính giữa mặt bằng có diện tích 26m2 phục vụ sinh hoạt hàng ngày và tiếp khách. Dựa vào thiết kế của ngôi nhà, không gian phòng khách sẽ được thiết kế thành từng mảng với hình khối và màu sắc tương hỗ tạo nên 1 style nhất định. Đặt bộ sofa ở chỗ nào, bố trí kệ tivi để cả gia đình xem ở đâu, nên sử dụng bàn gỗ hay kính ... tất cả đều cần được cân nhắc thật kỹ để tạo nên 1 phòng khách hiện đại.
Bên trái phòng khách là cầu thang, khu vệ sinh và bếp ăn. Khu vực bếp ăn rộng 21m2 được bố trí tủ bếp hình chữ L hiện đại, gọn gàng, tiết kiệm diện tích những không kém phần sang trọng. Từ phòng bếp ăn có thể nhìn ra không gian cây xanh bên ngoài nhờ khung cửa kính rộng lớn ngoài mặt tiền. phòng bếp thêm sáng mà thoáng sẽ khiến những bữa ăn ngon hơn, hấp dẫn hơn.
Bên cạnh phòng khách và gara là một phòng ngủ nhỏ có diện tích 12.5m2. Phòng ngủ được thiết kế nhỏ gọn, đơn giản song rất hiện đại. Cửa sổ được mở bao quanh phong ngủ cho căn phòng luôn ngập tràn ánh sáng, thông thoáng và rộng rãi hơn. Cầu thang và khu vệ sinh chung được bố trí cùng một khu đảm bảo thẩm mỹ và thuận tiện trong sinh hoạt, tiết kiệm tối đa diện tích sàn.

Mặt bằng nội thất tầng 2 trong thiết kế bản vẽ nhà 1 trệt 1 lửng 1 lầu
Tầng 2 của ngôi nhà được thiết kế dành hướng đến không gian nghỉ ngơi, thư giãn với 3 phòng ngủ ấm cúng, tiện nghi. Phòng ngủ luôn là một trong những căn phòng được thiết kế tỉ mỉ nhất trong nhà. Giấc ngủ chiếm gần 1/3 thời gian sống của một con người vì vậy những thiết kế nội thất trong phòng ngủ có ảnh hưởng rất lớn đến sức khỏe và tinh thần của người ở. Nên chú ý đến màu sắc và ánh sáng cho phòng ngủ vì nó ảnh hưởng nhiều tới giấc ngủ và sự nghỉ ngơi của bạn. Ngoài lượng sáng nhân tạo, bạn nên cân nhắc về việc mở cửa sổ để lấy ánh sáng tự nhiên cho căn nhà. Nếu hướng phòng ngủ bị ánh sáng trực tiếp rọi vào phòng, bạn có thể dùng 1 tấm rèm vừa có tác dụng tránh nắng trực tiếp vừa làm đẹp cho phòng ngủ.
Xem thêm nhiều bản vẽ nhà 3 phòng ngủ 1 phòng thờ mới nhất 2018
Phần ban công trong bản vẽ nhà 1 trệt 1 lửng 1 lầu rộng lớn đến 15m2. Không gian rộng lớn này sẽ giúp ngôi nhà thêm thoáng mát hơn. Tại đây, bạn có thể đặt một bộ bàn ghế nhỏ xinh để thư giãn, nghỉ ngơi và ngắm cảnh sắc núi rừng xung quanh. Bạn nghĩ sao nếu tại ban công này có thêm những ngọn đèn lung linh, một chút rượu, hoa và đồ ăn? Vậy là đã có một bữa tiệc thật lãng mạn cho gia đình ngay trong ngôi nhà của mình. Để tạo độ thông thoáng và ngăn cách các phòng, hai bên mặt bằng đều được thiết kế lo gia rộng 5.5m2. Bạn có thể nghỉ ngơi, giải trí tại lô gia vì nó an toàn vì có mái che.
Bên trong ban công là phòng thờ rộng 27m2. Nội thất phòng thờ đầy đủ, vị trí phòng thờ ở nơi thông thoáng, mát mẻ thể hiện sự tôn kính của con người. Thiết kế phòng thờ cạnh cầu thang thuận tiện cho đi lại, tiện cho việc hương khói, cúng lễ. Khu vệ sinh vẫn được làm nhỏ gọn phía cầu thang đảm bảo vệ sinh chung sạch sẽ.
Tầng lửng (tầng áp mái của ngôi nhà) cũng được thiết kế khá đẹp và sạch sẽ. Trong bản vẽ nhà 1 trệt 1 lửng 1 lầu này tầng lửng có thể được tận dụng làm khu giặt và sân phơi đồ. Nếu có ý tưởng sử dụng tầng gác lửng, bạn nên tìm đến kiến trúc sư để được tư vấn gác lửng cao bao nhiêu cho hợp lý. Bạn có thể tham khảo thêm những cách cải tạo tầng áp mái thành không gian sống tuyệt vời. Mọi thắc mắc và yêu cầu tư vấn thiết kế mời các bạn comment dưới bái viết hoặc gọi điện trực tiếp tới hotline 0988.030.680 để được giải đáp trực tiếp.