Những năm gần đây, xu hướng xây nhà cấp 4 mái ngói chữ L 4 phòng ngủ 150m2 ngày càng được nhiều gia đình lựa chọn, đặc biệt tại khu vực nông thôn, ven đô hoặc các gia đình sở hữu quỹ đất rộng. Lý do rất đơn giản: mẫu nhà này vừa đẹp, vừa tiện nghi, lại phù hợp sinh hoạt lâu dài cho gia đình nhiều thế hệ.
Tuy nhiên, trước khi xây nhà, hầu hết khách hàng đều có chung những băn khoăn:
Nếu bạn cũng đang tìm hiểu mẫu nhà phù hợp, công trình thực tế dưới đây do Kiến trúc Angcovat thiết kế cho gia đình anh Toàn tại Vĩnh Phúc sẽ là gợi ý rất đáng tham khảo.
Tham khảo thêm: Thiết kế nhà cấp 4 chữ L đẹp

Là người làm nghề lâu năm, tôi nhận thấy khách hàng chọn mẫu nhà này vì đáp ứng đúng nhu cầu thực tế:
Phù hợp cho:

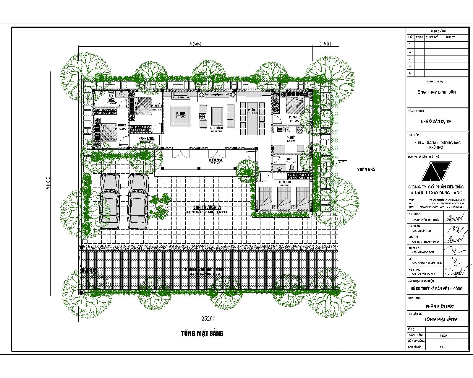
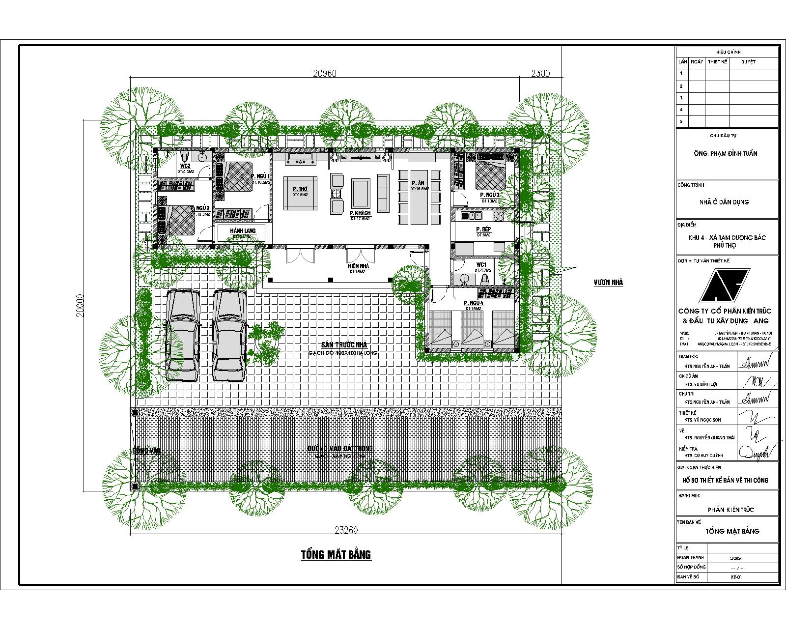
Quan sát phối cảnh 3D của công trình có thể thấy đây là mẫu nhà được xử lý rất khéo giữa yếu tố truyền thống và hiện đại.
Khối nhà ôm gọn khoảng sân trước rộng rãi, tạo cảm giác thoáng và bề thế.
Mái dốc đều, cân đối, giúp công trình thanh thoát và chống nóng hiệu quả.
Thực tế nhiều gia đình sau khi ở mới thấy sân quan trọng hơn tưởng tượng. Có sân rộng giúp sinh hoạt thoải mái hơn rất nhiều.


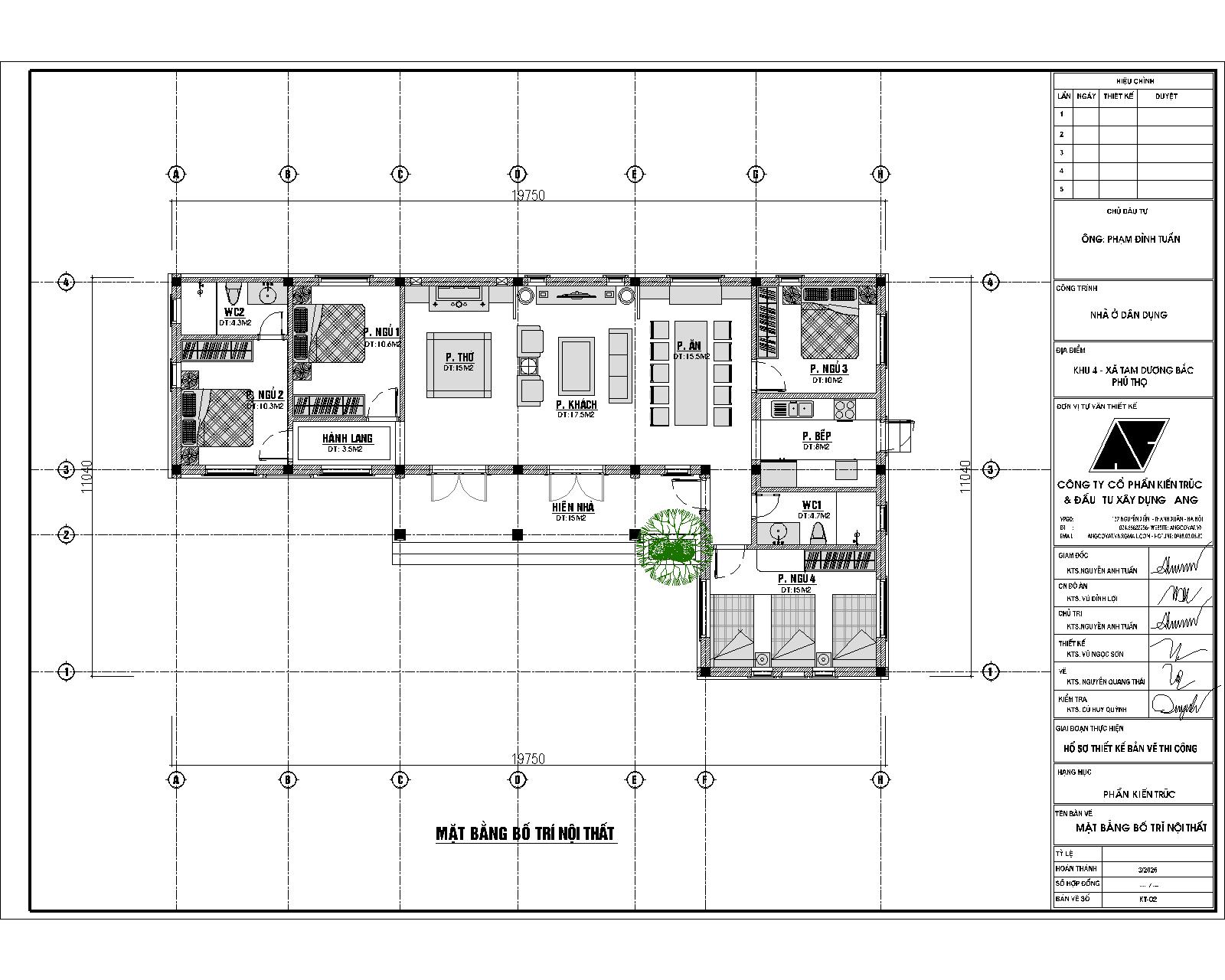
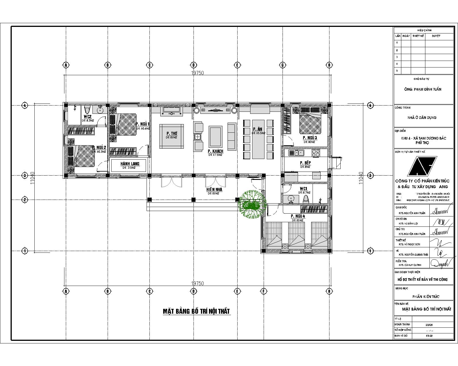
Đây là phần quan trọng nhất vì nhà đẹp nhưng ở bất tiện thì vẫn thất bại.

| Khu vực | Diện tích |
|---|---|
| Hiên nhà | 15m2 |
| Phòng khách | 17.5m2 |
| Phòng thờ | 15m2 |
| Phòng ngủ 1 | 10.6m2 |
| Hành lang | 3.5m2 |
| Phòng ngủ 2 | 10.3m2 |
| WC 1 | 4.3m2 |
| Phòng ăn | 15.5m2 |
| Phòng bếp | 8m2 |
| WC 2 | 4.3m2 |
| Phòng ngủ 3 | 15m2 |
| Phòng ngủ 4 | 10m2 |
Vừa đủ sang trọng, tiếp khách thoải mái mà không lãng phí diện tích.
Đây là nhu cầu rất quan trọng với gia đình Việt. Không gian riêng giúp trang nghiêm và thuận tiện ngày lễ tết.
Có phòng lớn 15m2 cho bố mẹ, các phòng nhỏ hơn cho con hoặc ông bà.
Nhiều khách hàng rất thích cách làm này vì giảm mùi thức ăn vào phòng khách.
Nhà đông người nhưng có 2 khu vệ sinh sẽ tiện hơn rất nhiều giờ cao điểm.
Đây là lo lắng phổ biến. Thực tế, nhà chữ L không xấu nếu thiết kế đúng.
Nói ngắn gọn: phong thủy tốt đến từ tổng thể thiết kế, không chỉ hình dạng chữ L.
Đây là câu hỏi được quan tâm nhất.
Chi phí phụ thuộc:
| Gói xây dựng | Đơn giá/m2 | Tổng chi phí |
|---|---|---|
| Gói khá | 6.000.000 – 6.500.000đ | 900 triệu – 975 triệu |
| Gói tốt | 6.800.000 – 7.500.000đ | 1,02 tỷ – 1,125 tỷ |
| Gói cao cấp | 7.800.000 – 9.000.000đ | 1,17 tỷ – 1,35 tỷ |
Áp dụng phần nhà chính 150m2.
👉 Dự kiến: 280 – 360 triệu
👉 Dự kiến: 180 – 280 triệu
👉 Dự kiến: 180 – 260 triệu
👉 Dự kiến: 220 – 350 triệu
| Hạng mục | Chi phí |
|---|---|
| Sân lát gạch | 80 – 150 triệu |
| Cổng hàng rào | 120 – 250 triệu |
| Cây xanh tiểu cảnh | 30 – 80 triệu |
| Mức đầu tư | Tổng tiền |
|---|---|
| Chỉ làm nhà đẹp mức tốt | 1,05 – 1,2 tỷ |
| Nhà + sân + cổng cơ bản | 1,2 – 1,45 tỷ |
| Hoàn thiện đồng bộ đẹp | 1,5 tỷ+ |

Rất hợp lý.
Đây là tỷ lệ đẹp vì:
Nhiều người tiếc đất nên xây quá lớn, sau đó lại thiếu sân và bí bách.
Nếu xây nhà cấp 4 150m2, nên ưu tiên ngân sách vào:
Không cần chạy theo vật liệu quá đắt nhưng phải bền và thực tế.
Mẫu nhà cấp 4 mái ngói chữ L 4 phòng ngủ 150m2 của gia đình anh Toàn tại Vĩnh Phúc là phương án rất thực tế: đẹp, tiện nghi, đủ phòng, có sân rộng và phù hợp sinh hoạt lâu dài.
Nếu bạn đang có đất khoảng 250m2 – 400m2 và muốn xây nhà đẹp, đây là mẫu rất nên tham khảo.
Bạn đang có đất và chưa biết nên xây như thế nào?
📞 Hotline/Zalo Kiến trúc Angcovat: 0988 030 680
Tư vấn miễn phí:
📩 Gửi kích thước đất để kiến trúc sư hỗ trợ nhanh nhất.