Trong những năm gần đây, xu hướng xây dựng nhà ở tại khu vực nông thôn và ven đô đang có sự thay đổi rõ rệt, đặc biệt là các mẫu nhà 2 tầng mái Nhật mặt tiền 8m. Đây là kiểu nhà vừa đảm bảo tính thẩm mỹ hiện đại, vừa phù hợp với điều kiện khí hậu và ngân sách của nhiều gia đình Việt. Công trình của ông Đào Đặng Linh tại Lạc Đạo, Hưng Yên là một minh chứng điển hình cho phong cách kiến trúc này, với thiết kế hài hòa, công năng khoa học và chi phí hợp lý trong năm 2026.
Thông tin công trình
-
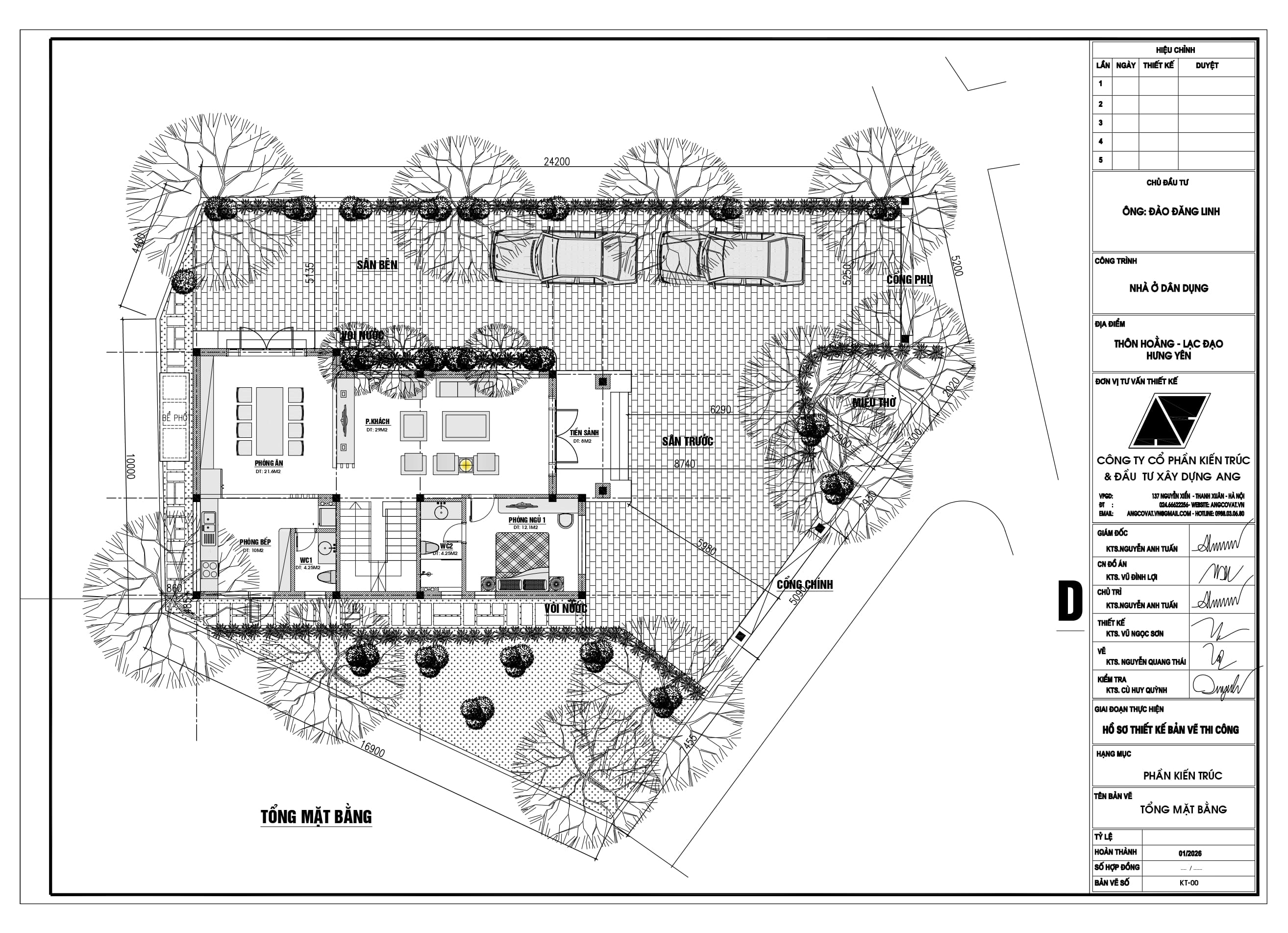
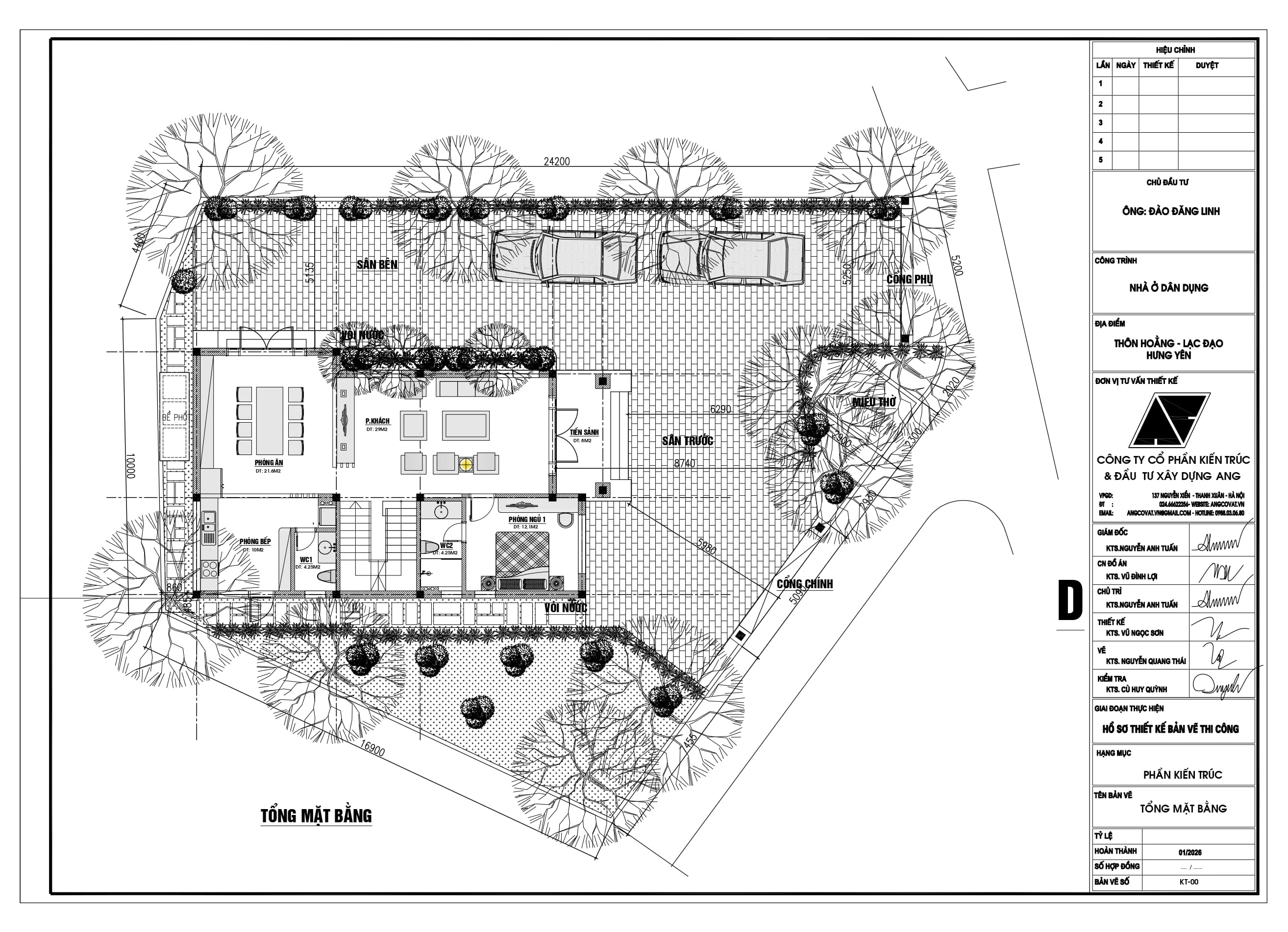
Chủ đầu tư: Ông Đào Đặng Linh
-
Địa điểm: Lạc Đạo – Hưng Yên
-
Diện tích xây dựng: 120m2/sàn
-
Quy mô: 2 tầng
-
Thiết kế: Kiến trúc sư Angcovat
-
Năm thi công: 2026

Ngôi nhà được xây dựng với quy mô 2 tầng, diện tích 120m2 mỗi sàn, tổng thể công trình mang dáng dấp của một căn biệt thự mini với mặt tiền rộng rãi 8m. Đây là lợi thế lớn giúp kiến trúc sư dễ dàng tạo hình khối cân đối, bố trí cửa sổ và các không gian mở một cách linh hoạt, từ đó mang lại sự thông thoáng tối đa cho toàn bộ ngôi nhà.
kiến trúc nhà 2 tầng mái Nhật mặt tiền 8m
Về mặt hình khối kiến trúc, công trình được thiết kế theo phong cách hiện đại với các mảng khối vuông vức, khỏe khoắn. Tỷ lệ giữa các khối được xử lý khéo léo nhằm tạo chiều sâu và sự bề thế cho mặt tiền. Hệ sảnh chính được bố trí rộng rãi với diện tích 8m2, kết hợp cùng hệ cột vuông chắc chắn giúp tăng thêm sự sang trọng và tạo điểm nhấn ngay từ cái nhìn đầu tiên. Các đường nét kiến trúc không quá cầu kỳ nhưng vẫn đủ tinh tế để tạo nên tổng thể hài hòa, phù hợp với xu hướng thiết kế nhà ở năm 2026.
Một trong những điểm nổi bật không thể bỏ qua của mẫu nhà này chính là hệ mái Nhật. Mái được thiết kế với độ dốc vừa phải, các lớp mái xếp chồng lên nhau tạo nên sự mềm mại và thanh thoát. Không chỉ có giá trị thẩm mỹ cao, mái Nhật còn mang lại hiệu quả sử dụng vượt trội khi giúp thoát nước nhanh vào mùa mưa, giảm hấp thụ nhiệt vào mùa hè, đồng thời hạn chế tác động của gió bão. So với mái Thái truyền thống, mái Nhật có phần nhẹ nhàng và phù hợp hơn với những công trình mang phong cách hiện đại.
Về màu sắc, ngôi nhà sử dụng gam màu trung tính làm chủ đạo nhằm tạo cảm giác thanh lịch và bền vững theo thời gian. Màu trắng kết hợp với ghi sáng giúp tôn lên các đường nét kiến trúc, đồng thời làm nổi bật hệ cửa và các chi tiết trang trí. Phần mái thường sử dụng màu xanh than hoặc xám đậm để tạo sự tương phản nhẹ, giúp tổng thể công trình trở nên nổi bật hơn. Ngoài ra, việc kết hợp thêm vật liệu như đá ốp tường, lan can kính hay cửa nhôm kính cũng góp phần tăng tính hiện đại và nâng cao giá trị thẩm mỹ cho ngôi nhà.
Chi phí xây dựng nhà 2 tầng mái Nhật năm 2026
Với diện tích 120m2/sàn:
-
Tổng diện tích xây dựng: ~240m2
-
Đơn giá 2026 (trung bình):
-
Phần thô: 3.5 – 4 triệu/m2
-
Trọn gói: 5.5 – 7 triệu/m2
-
Chi phí dự kiến:
-
Khoảng: 1.3 – 1.7 tỷ đồng
Xét về chi phí xây dựng trong năm 2026, mẫu nhà 2 tầng mái Nhật mặt tiền 8m với diện tích 120m2 mỗi sàn có mức đầu tư tương đối hợp lý. Với tổng diện tích xây dựng khoảng 240m2, đơn giá xây dựng phần thô hiện nay dao động từ 3,5 đến 4 triệu đồng mỗi mét vuông, trong khi chi phí hoàn thiện trọn gói có thể nằm trong khoảng từ 5,5 đến 7 triệu đồng mỗi mét vuông tùy theo vật liệu và mức độ đầu tư của gia chủ. Như vậy, tổng kinh phí để hoàn thiện công trình này thường rơi vào khoảng từ 1,3 đến 1,7 tỷ đồng. Đây là mức chi phí phù hợp với nhiều gia đình có nhu cầu xây dựng nhà ở khang trang nhưng vẫn kiểm soát tốt ngân sách.
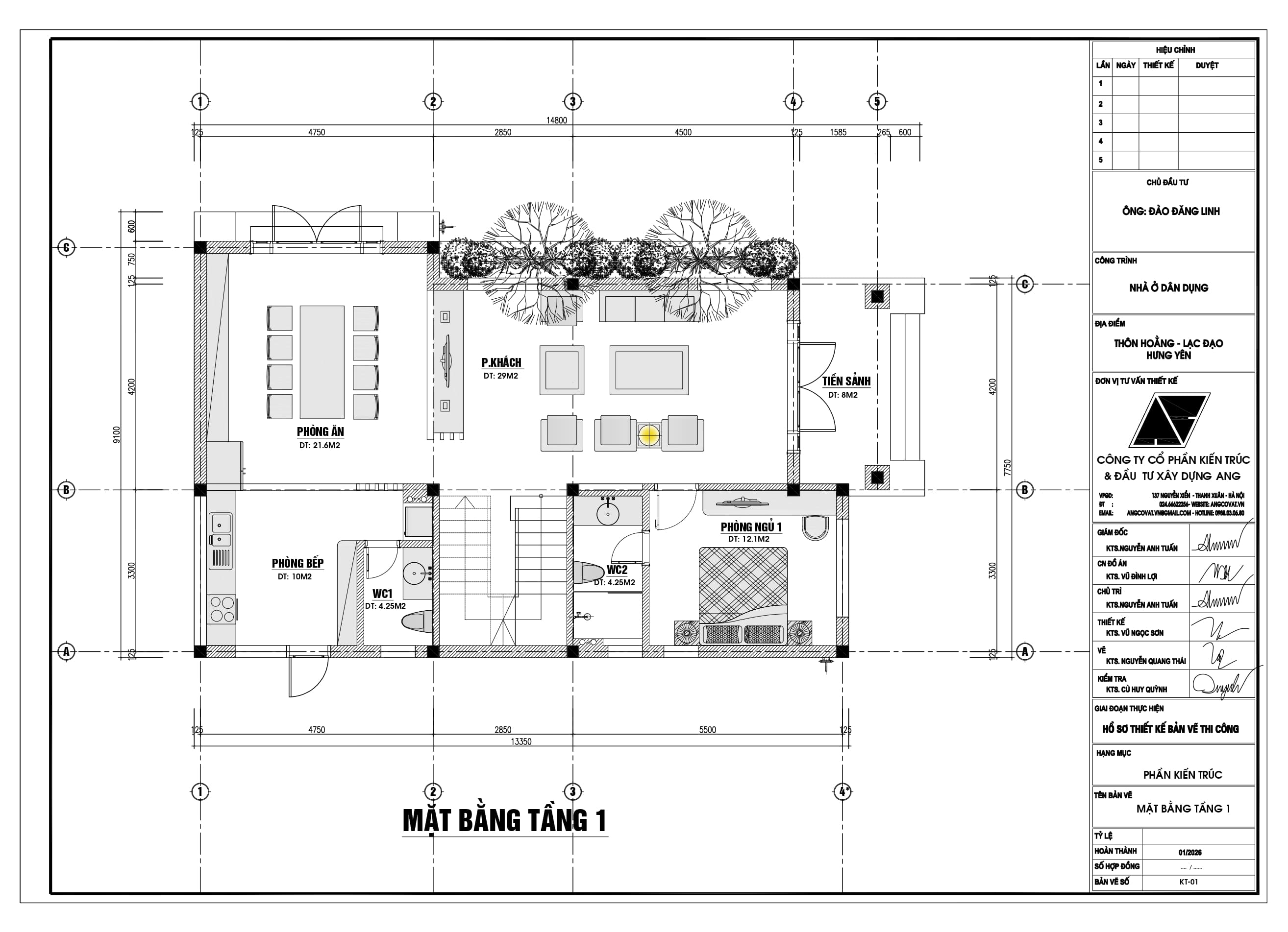
Bố trí mặt bằng công năng nhà 2 tầng mái nhật mặt tiền 8m 4 phòng ngủ

Về bố trí công năng, ngôi nhà được thiết kế với 4 phòng ngủ nhằm đáp ứng nhu cầu sinh hoạt của gia đình từ 4 đến 6 thành viên. Tầng 1 đóng vai trò là không gian sinh hoạt chung với phòng khách rộng 29m2 được đặt ngay sau tiền sảnh, tạo sự liên kết thuận tiện khi tiếp khách. Khu vực phòng ăn có diện tích 21,6m2 được bố trí liền kề với phòng bếp 10m2 nhưng vẫn có sự phân tách hợp lý nhằm hạn chế mùi và đảm bảo tính thẩm mỹ. Một phòng ngủ 12,1m2 được đặt tại tầng 1 rất phù hợp cho người lớn tuổi, giúp hạn chế việc phải di chuyển cầu thang. Ngoài ra, hai khu vệ sinh được bố trí riêng biệt giúp tăng sự tiện nghi trong quá trình sử dụng.

Lên đến tầng 2 là không gian nghỉ ngơi chính của gia đình với ba phòng ngủ có diện tích từ 12,1m2 đến 16m2. Các phòng đều được bố trí hợp lý để đảm bảo ánh sáng tự nhiên và thông gió. Khu vực phòng sinh hoạt chung rộng 11m2 đóng vai trò là nơi kết nối các thành viên trong gia đình, tạo không gian thư giãn và sinh hoạt chung. Phòng thờ được đặt tại vị trí trang trọng với diện tích 8,5m2, đảm bảo yếu tố phong thủy và sự yên tĩnh cần thiết. Một khu vệ sinh chung được bố trí thuận tiện cho toàn bộ tầng.

Có thể thấy rằng, việc bố trí công năng trong mẫu nhà này đã được nghiên cứu kỹ lưỡng nhằm tối ưu hóa diện tích sử dụng. Các không gian được sắp xếp khoa học, đảm bảo sự riêng tư nhưng vẫn giữ được sự liên kết cần thiết giữa các khu vực chức năng. Đây chính là yếu tố quan trọng giúp nâng cao chất lượng sống cho gia đình trong quá trình sử dụng lâu dài.
Tổng thể, mẫu nhà 2 tầng mái Nhật mặt tiền 8m tại Hưng Yên là một lựa chọn lý tưởng cho những gia đình đang tìm kiếm một không gian sống hiện đại, tiện nghi và có chi phí hợp lý trong năm 2026. Với thiết kế đẹp mắt, công năng tối ưu cùng khả năng thích ứng tốt với điều kiện khí hậu Việt Nam, đây chắc chắn sẽ là xu hướng nhà ở được ưa chuộng trong thời gian tới.
Nếu bạn đang có kế hoạch xây dựng nhà ở và cần một phương án thiết kế phù hợp với diện tích đất cũng như ngân sách của mình, việc tham khảo những mẫu nhà như trên sẽ giúp bạn có thêm nhiều ý tưởng hữu ích trước khi bắt tay vào xây dựng.
📞 Liên hệ Kiến trúc sư Angcovat để được tư vấn miễn phí
Hotline: 0988 03 06 80
Mời quý vị tham khảo mẫu nhà mới nhất: Thiết kế biệt thự 2 tầng đẹp