Trong những năm gần đây, xu hướng thiết kế nhà 2 tầng mái Nhật 90m2 ngày càng được nhiều gia đình Việt lựa chọn nhờ sự hài hòa giữa thẩm mỹ, công năng và chi phí hợp lý. Không quá đồ sộ như biệt thự lớn, cũng không quá đơn giản như nhà cấp 4, mẫu nhà này mang đến một không gian sống vừa đủ, tiện nghi và bền vững theo thời gian.
Công trình dưới đây của gia đình ông Hoàng Văn Long tại Ninh Bình là một ví dụ điển hình, thể hiện rõ nét sự tinh tế trong thiết kế kiến trúc, bố trí công năng khoa học và khả năng tối ưu chi phí xây dựng hiệu quả.
Tổng quan thông tin công trình nhà 2 tầng mái Nhật 90m2
Ngôi nhà được xây dựng trên khu đất rộng 350m2 tại xã Cồn Thoi, Kim Sơn, Ninh Bình, nay là xã Bình Minh. Với lợi thế diện tích đất rộng, công trình không chỉ đảm bảo không gian ở mà còn có điều kiện phát triển cảnh quan sân vườn thoáng đãng.
Thiết kế gồm 2 tầng với diện tích sử dụng khoảng 110m2 mỗi sàn, mặt tiền rộng 9m và chiều sâu 12m. Đây là tỷ lệ kích thước khá lý tưởng, giúp ngôi nhà có hình khối cân đối, dễ dàng bố trí không gian và tận dụng ánh sáng tự nhiên.
Công trình do kiến trúc sư Angcovat thiết kế và dự kiến hoàn thiện vào năm 2025 với chi phí đầu tư dao động từ 1,5 đến 1,7 tỷ đồng. Đây là mức chi phí hợp lý cho một mẫu nhà 2 tầng mái Nhật có quy mô và công năng đầy đủ cho gia đình nhiều thế hệ.
Phân tích kiến trúc tổng thể nhà 2 tầng mái Nhật 90m2

Điểm nổi bật đầu tiên của mẫu nhà này chính là hệ mái Nhật – một trong những xu hướng kiến trúc được ưa chuộng nhất hiện nay. Mái Nhật có độ dốc vừa phải, thiết kế cân đối, tạo cảm giác nhẹ nhàng nhưng vẫn đảm bảo khả năng thoát nước tốt và chống nóng hiệu quả.
Khác với mái Thái có độ dốc lớn và thiên về sự nổi bật, mái Nhật mang đến vẻ đẹp tinh tế, hiện đại và gần gũi hơn với kiến trúc nhà ở Việt Nam. Khi kết hợp với hình khối vuông vức của ngôi nhà, tổng thể công trình trở nên hài hòa và vững chắc.
Mặt tiền rộng 9m là một lợi thế lớn giúp kiến trúc sư dễ dàng tạo hình khối cân đối. Các mảng tường được xử lý khéo léo, kết hợp cùng hệ cửa kính lớn giúp tăng khả năng lấy sáng và tạo sự kết nối giữa không gian bên trong và bên ngoài.
Phân tích màu sắc và vật liệu sử dụng

Ngôi nhà sử dụng gam màu trung tính làm chủ đạo, thường là sự kết hợp giữa trắng, xám và các chi tiết màu ghi hoặc nâu nhẹ. Đây là bảng màu rất phổ biến trong các thiết kế nhà mái Nhật hiện đại bởi tính bền vững theo thời gian và không bị lỗi mốt.
Màu trắng giúp tổng thể công trình trở nên sáng sủa, rộng rãi hơn. Trong khi đó, các mảng màu xám hoặc ghi được sử dụng để tạo điểm nhấn, giúp công trình không bị đơn điệu.
Hệ mái thường sử dụng ngói màu xanh than hoặc ghi đậm, tạo sự tương phản với phần thân nhà, đồng thời mang lại cảm giác sang trọng và chắc chắn.
Vật liệu hoàn thiện ưu tiên các loại hiện đại như kính cường lực, đá ốp mặt tiền, lan can kim loại sơn tĩnh điện. Những vật liệu này không chỉ đảm bảo độ bền mà còn giúp nâng cao giá trị thẩm mỹ của công trình.

Phân tích chi tiết công năng sử dụng
Một trong những điểm mạnh lớn nhất của mẫu nhà 2 tầng mái Nhật 90m2 này chính là cách bố trí công năng cực kỳ khoa học, phù hợp với nhu cầu sinh hoạt của gia đình 4–6 người.
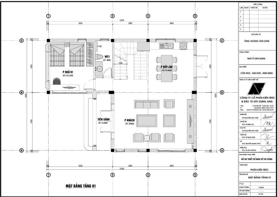
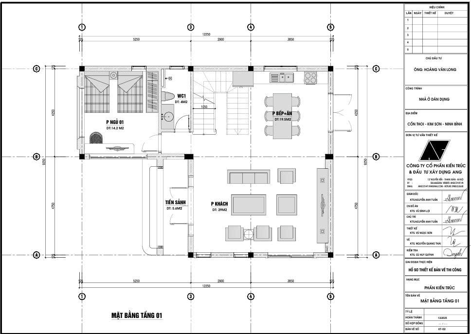
Tầng 1 được thiết kế ưu tiên cho không gian sinh hoạt chung và một phòng ngủ tiện lợi cho người lớn tuổi. Phòng khách có diện tích 29m2, đủ rộng để tiếp khách và sinh hoạt gia đình. Không gian này thường được bố trí gần cửa chính, tạo sự thông thoáng và thuận tiện di chuyển.

Khu bếp và phòng ăn rộng 19.5m2 được đặt phía trong, đảm bảo sự riêng tư nhưng vẫn kết nối thuận tiện với phòng khách. Thiết kế này giúp tối ưu luồng di chuyển và giữ cho không gian luôn gọn gàng.
Phòng ngủ tầng 1 có diện tích 14.2m2, phù hợp cho người cao tuổi hoặc khách ở lại. Việc bố trí phòng ngủ ở tầng 1 giúp hạn chế việc di chuyển cầu thang, rất tiện lợi trong sinh hoạt hàng ngày.
Tầng 1 còn có một nhà vệ sinh chung diện tích 4m2 và khu tiền sảnh 5.6m2, đóng vai trò như lớp đệm giúp không gian bên trong không bị ảnh hưởng trực tiếp bởi thời tiết bên ngoài.
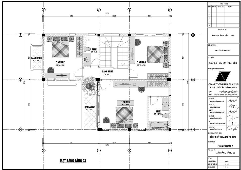
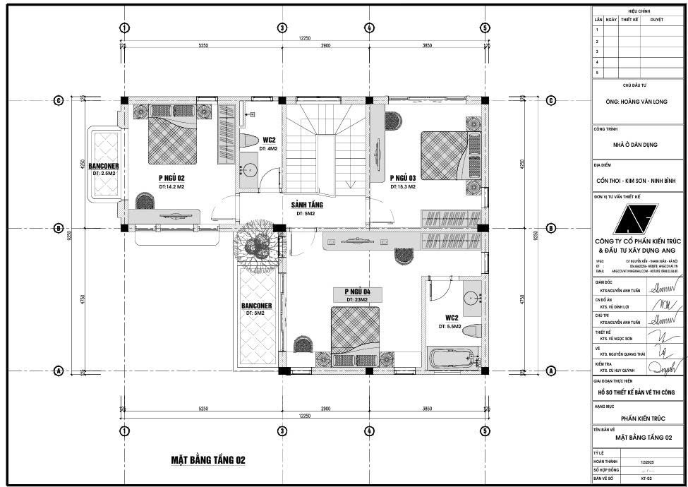
Tầng 2 là không gian nghỉ ngơi chính của gia đình với 3 phòng ngủ. Phòng ngủ 2 và phòng ngủ 3 có diện tích lần lượt là 14.2m2 và 15.3m2, phù hợp cho các thành viên trong gia đình.

Phòng ngủ 4 có diện tích lớn nhất, lên tới 23m2, có thể sử dụng làm phòng master với đầy đủ tiện nghi. Không gian này thường được thiết kế thêm ban công hoặc cửa sổ lớn để tăng sự thông thoáng và ánh sáng tự nhiên.
Tầng 2 được bố trí 2 nhà vệ sinh với diện tích 4m2 và 5.5m2, đảm bảo sự tiện nghi và tránh tình trạng chờ đợi trong giờ cao điểm.
Đánh giá tính khoa học trong thiết kế
Tổng thể công năng của ngôi nhà được sắp xếp theo nguyên tắc rõ ràng giữa không gian sinh hoạt chung và riêng. Tầng 1 tập trung cho sinh hoạt chung, trong khi tầng 2 là không gian nghỉ ngơi riêng tư.
Các phòng đều có diện tích hợp lý, không quá lớn gây lãng phí nhưng cũng không quá nhỏ gây bí bách. Hệ thống cửa sổ và cửa ra vào được bố trí hợp lý giúp thông gió tự nhiên, giảm phụ thuộc vào điều hòa.
Cách bố trí này không chỉ tối ưu diện tích mà còn giúp tiết kiệm chi phí xây dựng và vận hành về lâu dài.
Chi phí xây dựng nhà 2 tầng mái Nhật 90m2

Với diện tích khoảng 110m2 mỗi sàn, tổng diện tích xây dựng của ngôi nhà rơi vào khoảng hơn 200m2.
Chi phí xây dựng dự kiến từ 1,5 đến 1,7 tỷ đồng bao gồm phần thô và hoàn thiện cơ bản. Mức chi phí này được đánh giá là hợp lý trong bối cảnh giá vật liệu và nhân công hiện nay.
Chi phí có thể thay đổi tùy theo các yếu tố như vị trí xây dựng, vật liệu hoàn thiện, phong cách nội thất và thời điểm thi công. Nếu gia chủ lựa chọn vật liệu cao cấp hoặc thiết kế nội thất cầu kỳ, tổng chi phí có thể tăng lên.
Ngược lại, nếu tối ưu vật liệu và lựa chọn giải pháp thi công hợp lý, hoàn toàn có thể kiểm soát ngân sách ở mức thấp hơn.
Vì sao nhà 2 tầng mái Nhật 90m2 là xu hướng 2026
Mẫu nhà này đáp ứng đầy đủ các tiêu chí mà người Việt hiện nay quan tâm: đẹp, tiện nghi, chi phí hợp lý và phù hợp với nhiều loại diện tích đất.
Thiết kế mái Nhật mang lại vẻ đẹp hiện đại nhưng không quá phô trương, phù hợp với cả khu vực nông thôn và thành thị.
Công năng linh hoạt, dễ điều chỉnh theo nhu cầu từng gia đình. Đồng thời, khả năng tối ưu chi phí giúp nhiều gia đình có thể tiếp cận và xây dựng.
Kết luận
Mẫu nhà 2 tầng mái Nhật 90m2 của gia đình ông Hoàng Văn Long là một giải pháp thiết kế đáng tham khảo cho những ai đang tìm kiếm một không gian sống hiện đại, tiện nghi và bền vững.
Từ kiến trúc, màu sắc đến công năng và chi phí đều được tính toán kỹ lưỡng, mang lại sự cân bằng hoàn hảo giữa thẩm mỹ và giá trị sử dụng.
Nếu bạn đang có kế hoạch xây nhà trong thời gian tới, đây chắc chắn là một trong những mẫu thiết kế đáng để cân nhắc, đặc biệt khi bạn muốn sở hữu một ngôi nhà đẹp, khoa học và phù hợp với ngân sách của mình.