Thiết kế nhà phố 3 tầng hiện đại có 2 mặt tiền với kích thước 5x11m là nhu cầu của một gia chủ đến với Kiến trúc Angcovat. Trong thời gian gầy đây, chúng tôi đã gặp được một khách hàng đến từ Định Công - Hà Nội. Do được xây dựng tại khu vực tấc đất tấc vàng như ở Thủ đô nên công trình kiến trúc này phải vừa phù hợp với điều kiện của gia chủ và hoàn cảnh xung quanh. Hiểu được điều này, Kiến trúc Angcovat đã nghiên cứu kỹ lưỡng để mang đến cho gia chủ phương án thiết kế nhà phố 3 tầng hiện đại có 2 mặt tiền này.
Nhà phố là một công trình kiến trúc được xây dựng để nhằm mục đích dân dụng hoặc kinh doanh. Nhà phố thường có diện tích không quá lớn và được xây dựng san sát nhau. Do đó, điều kiến trúc sư cần làm ở đây chính là tạo nên một mẫu thiết kế phù hợp tuyệt đối với không gian nhưng phải có sự khác biệt, nét độc đáo riêng. Và tại mẫu thiết kế này, bằng vào việc nhận định một cách khách quan các yếu tố thực tế đồng thời kết hợp với các nhu cầu chủ quan của chủ đầu tư, kiến trúc sư đã tạo nên một bản vẽ thiết kế nhà phố 3 tầng hiện đại đầy ấn tượng.
>>> Những mẫu thiết kế biệt thự 3 tầng đẹp
- Mẫu nhà phố: NP141655
- Chủ đầu tư: Anh Hà
- Địa chỉ: Định Công - Hà Nội
- Mặt tiền 5m
- Chiều sâu: 11m
- Kiến trúc sư: Nguyễn Văn Nhung
- Số tầng: 03
- Chi phí xây dựng dự kiến: Khoảng 1 Tỷ đồng
- Diện tích xây dựng: 55m2/sàn
- Thông số công năng:
+) Tầng 1: 1 phòng khách, 1 phòng bếp ăn, 1 phòng vệ sinh chung
+) Tầng 2: 2 phòng ngủ 2 phòng vệ sinh khép kín - diện tích tầng 2
+) Tầng 3: 2 phòng ngủ, 1 phòng vệ sinh chung, 1 phòng thờ, 1 sân phơi.
Trên đây chính là một số thông tin cơ bản mà bạn cần biết khi nghiên cứu về mẫu thiết kế nhà phố 3 tầng hiện đại kích thước 5x11m này. Những thông tin này sẽ vô cùng hữu ích cho quá trình tìm hiểu một cách thấu đáo về mẫu thiết kế nhà phố 3 tầng hiện đại đầy ấn tượng này.
Hiện đại là tên gọi của một phong cách kiến trúc mới ra đời trong khoảng thời gian gần đây - khoảng cuối thế kỷ XIX đầu thế ỷ XX. Sự ra đời của nó thể hiện nhu cầu thẩm mỹ của con người trong thời đại mới. Tại các công trình kiến trúc hiện đại, những yếu tố truyền thống đã mất đi và thay mới bằng những chi tiết, những đặc điểm hoàn toàn mới mẻ, khác biệt. Chính điều này đã mang đến cho con người một không gian sống độc đáo, mới lạ và đầy ý vị.
Tại đây, kiến trúc sư đã áp dụng phong cách hiện đại này cho công trình nhà phố 3 tầng 2 mặt tiền của gia chủ tại Định Công - Hà Nội này. Đây thực sự là một quyết định đúng đắn. Nhờ việc áp dụng đúng phong cách kiến trúc mà mẫu thiết kế nhà phố 3 tầng hiện đại kích thước 5x11m này trở nên vô cùng nổi bật và hấp dẫn tại không gian phố thị sầm uất của Thủ đô.
Kiến trúc hiện đại sử dụng những hình khối đơn giản, nhẹ nhàng và quen thuộc. Thông thường, những khối hình học sẽ được các kiến trúc sư áp dụng triệt để trong thiết kế và tạo hình. Điều đặc biệt ở đây chính là cách mà người thiết kế tiến hành sáng tạo, cải biên những hình khối đơn giản, quen thuộc đó thành những khối kiến trúc độc đáo, mới lạ và đầy sức hút. Không chỉ có vậy, kiến trúc hiện đại còn có thể phù hợp với mọi công trình cùng mọi kích thước, diện tích khác nhau. Từ hoành tráng, quy mô như biệt thự cho đến nhỏ nhắn, khiêm tốn như nhà phố, kiến trúc hiện đại đều có thể thoả mãn. Do đó, nó được áp dụng vô cùng phổ biến.
Phong cách hiện đại đã được kiến trúc sư áp dụng triệt để trong thiết kế và tạo hình công trình nhà phố 3 tầng 2 mặt tiền này. Không thể nghi ngờ, đây chính là phương án tốt nhất mà kiến trúc sư có thể lựa chọn. Kiến trúc hiện đại không chỉ khiến cho công trình trở nên xinh đẹp, độc đáo mà còn giúp tận dụng triệt để không gian, diện tích vốn đã không mấy dư dả của gia chỉ để tạo nên một cơ ngơi xinh đẹp. Đây chính là điểm vượt trội đầu tiên mà ta không thể không công nhận tại mẫu thiết kế nhà phố 3 tầng hiện đại kích thước 5x11m này.

Mẫu thiết kế nhà phố 3 tầng hiện đại vô cùng độc đáo và đầy hấp dẫn
Tại mẫu thiết kế nhà phố 3 tầng hiện đại 2 mặt tiền này, kiến trúc sư đã mang đến cho ta ấn tượng vô cùng mạnh mẽ về mặt thị giác. Mẫu thiết kế nhà phố 3 tầng hiện đại này, kiến trúc sư đã sử dụng những khối hộp vô cùng vuông vắn vào việc tạo hình. Những hình khối được kiến trúc sư sử dụng và tạo hình vô cùng linh hoạt. Sự nhô ra và thụt vào được sử dụng linh hoạt. Điều này đã giúp cho công trình kiến trúc trở nên vô cùng bắt mắt, ưa nhìn.
>>> Xem ngay: Bộ sưu tập những mẫu thiết kế nhà phố 3 tầng được xây nhiều nhất hiện nay
Việc sử dụng khối hộp vừa phù hợp với kết cấu nhà phố vừa giúp cho không gian sống của con người nơi phố thị trở nên trẻ trung, xinh đẹp hơn rất nhiều. Điều đặc biệt ở đây, kiến trúc sư đã có sự kết hợp giữa không gian rộng rãi của thiên nhiên và không gian sống khép kín của con người. Không gian kiến trúc nơi đây được mở rộng bằng cách tạo nên hệ thống ban công tại tầng 2 và tầng 3. Nhờ có nó mà ngôi nhà có thể tiếp thu được ánh sáng, gió cũng như sự trong lành từ thế giới tự nhiên. Điều này giúp cho mẫu thiết kế nhà phố 3 tầng hiện đại 2 mặt tiền tại Định Công - Hà Nội trở nên hấp dẫn hơn rất nhiều.
Một điều ta không thể không nói ở đây chính là cách mà kiến trúc sư lựa chọn màu sắc cho mẫu thiết kế nhà phố 3 tầng hiện đại 2 mặt tiền kích thước 5x11m. Những màu sắc được lựa chọn ở đây có thể nói là vô cùng phù hợp. Nó giúp cho công trình tối ưu hoá mọi ưu điểm. Nhờ đó mà không gian sống của con người trở nên tuyệt vời hơn bao giờ hết. Cụ thể, không gian kiến trúc nơi đây được điểm tô bằng hệ thống màu sơn vô cùng độc đáo. Nâu tây, ghi và trắng là 3 màu được lựa chọn áp dụng cho công trình này. Sự kết hợp độc đáo này tạo nên sự độc đáo, trẻ trung và nổi bật cho ngôi nhà giữa phố xá chật chội.
Trên đây chính là sức hấp dẫn đến từ cách thiết kế ngoại thất của công trình. Nhưng, một ngôi nhà cũng như mộ con người, chỉ có vẻ bề ngoài thôi thì vẫn chưa đủ. Ta cần phải tạo nên sức hấp dẫn từ bên trong. Và, sức hấp dẫn đó của mẫu thiết kế nhà phố 3 tầng hiện đại trong trường hợp này nói riêng và của một ngôi nhà nói chung thì đến từ cách bố trí không gian nội thất. Chính bởi đó, để tạo nên một mẫu thiết kế nhà phố 3 tầng hiện đại 2 mặt tiền hoàn mỹ, kiến trúc sư không thể không lưu tâm đến việc tạo nên không gian nội thất, không gian sinh hoạt xinh đẹp, khoa học và đầy đủ tiện nghi cho con người.

Không gian tầng 1 hiết kế nhà phố 3 tầng hiện đại vô cùng tiện nghi
Không gian tầng 1 của mẫu thiết kế nhà phố 3 tầng hiện đại này được lấp đầy bởi những công năng như sau: 1 phòng khách, 1 phòng bếp ăn, 1 phòng vệ sinh chung. Đây là cách bố trí vô cùng hợp ý với tầng 1 của một ngôi nhà phố. Nó giúp con người tận dụng được mọi không gian bên trong ngôi nhà để phục vụ cho mục đích sinh hoạt mà vẫn đầy đủ và hợp lý.
>>> Xem ngay: Thiết kế nhà đẹp 55m2 3 tầng 4 phòng ngủ 4.7x13.5m ở Hà Nội NP141655

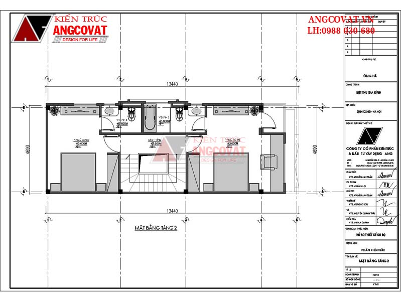
Phương án bố trí không gian nội thất tầng 2 của hiết kế nhà phố 3 tầng hiện đại
Kế đến, chúng ta đến với không gian nội thất tầng 2 của thiết kế nhà phố 3 tầng hiện đại của gia chủ tại Định Công - Hà Nội. Cụ thể, không gian nơi đây được bố trí bởi những công năng sau: 2 phòng ngủ 2 phòng vệ sinh khép kín. Đây là phương án nhận dược sự đồng thuận vô cùng lớn từ phía gia chủ. Không gian nội thất khi được quy hoạch và thiết kế thành 2 phòng ngủ khép kín sẽ thực sự vô cùng riêng tư và yên tĩnh.

Phương án bố trí mặt bằng tầng 3 của mẫu hiết kế nhà phố 3 tầng hiện đại
Cuối cùng, chúng ta đi khám phá không gian nội thất của khu vực tầng 3 thiết kế nhà phố 3 tầng hiện đại kích thước 5x11m này. Không gian nơi đây được bố trí với những công năng như sau: 2 phòng ngủ, 1 phòng vệ sinh chung, 1 phòng thờ, 1 sân phơi. Không gian nơi đây được bố trí nhiều công năng hơn tầng 2 nên diện tích của chúng được thu nhỏ lại để phù hợp nhất. Nhưng dù vậy, ta vẫn không hề cảm nhận được sự chật chội hay bí bách. Sở dĩ như vậy là bởi kiến trúc sư đã tính toán thực sự vô cùng kỹ lưỡng về mọi mặt để cho ra đời phương án này. Nhờ có cách bố trí này mà không gian sinh hoạt của con người tại mẫu thiết kế nhà phố 3 tầng hiện đại 2 mặt tiền này trở nên đầy đủ tiện nghi nhất.
Đó chính là những thông tin mà chúng ta cần biết về mẫu thiết kế nhà phố 3 tầng hiện đại 2 mặt tiền của gia chủ tại Định Công - Hà Nội. Đây sẽ là một sự lựa chọn vô cùng hợp lý cho các gia chủ mong muốn có một không gian sống vừa ý nơi phố thị chật chội, đông đúc. Và, để sở hữu một không gian sống đáng ngưỡng mộ như vậy, bạn cần đến một đơn vị tư vấn thiết kế tốt cùng một đội thợ giỏi. Không phải tìm đâu xa, Kiến trúc Angcovat sẽ mang lại cho bạn tất cả những điều đó. Với đội ngũ đông đảo các kiến trúc sư giỏi cùng đội thợ thi công lành nghề, chắc chắn Angcovat sẽ mang đến cho bạn không gian sống hoàn mỹ nhất.
Liên hệ hotline 0988. 030. 680 để nhận được tư vấn trực tiếp và báo giá thiết kế cũng như thi công trọn gói mọi lúc mọi nơi.