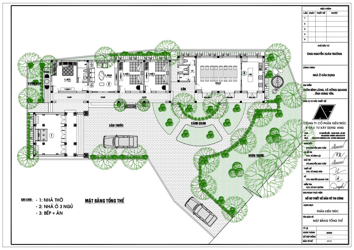
Trong xu hướng xây dựng nhà ở hiện nay, nhà cấp 4 3 phòng ngủ 100m2 đang là lựa chọn tối ưu cho các gia đình Việt bởi sự tiện nghi, chi phí hợp lý và thiết kế gần gũi với thiên nhiên. Đặc biệt, công trình mà Kiến trúc Angcovat giới thiệu dưới đây còn được kết hợp thêm nhà thờ họ 50m2 và khu bếp ăn riêng 70m2, tạo nên không gian sống vừa hiện đại, vừa đậm chất truyền thống.
Kích thước ô đất: rộng 25m, chiều sâu hơn 40m
Diện tích xây dựng nhà ở: 100m2
Nhà bếp ăn riêng: 70m2
Nhà thờ họ: 50m2
Sự kết hợp khoa học giữa các khối nhà mang lại tổng thể hài hòa, vừa thuận tiện sinh hoạt vừa đáp ứng nhu cầu tâm linh của gia đình.

Công trình được thiết kế với phong cách hiện đại kết hợp truyền thống.
Mái ngói đỏ: sử dụng ngói dốc chữ A, độ bền cao, mang lại cảm giác ấm cúng, quen thuộc.
Tường 20cm: xây gạch đặc, sơn trắng kết hợp điểm nhấn ốp đá và gạch thẻ, vừa sang trọng vừa bền bỉ.
Cửa kính khung nhôm: giúp lấy sáng tối đa, không gian mở, thông thoáng.
Hệ lam chắn nắng: hiện đại, tăng tính thẩm mỹ và giảm nóng bức cho ngôi nhà.
Không gian ngoại thất được quy hoạch với sân vườn rộng, nhiều cây xanh, tạo cảnh quan trong lành và mát mẻ.
Phòng khách: rộng rãi, bố trí trung tâm, kết nối với các không gian khác.
3 phòng ngủ: diện tích hợp lý, đảm bảo sự riêng tư và thoải mái cho các thành viên.
Khu bếp nhỏ + WC: tiện lợi cho sinh hoạt hàng ngày.

Thiết kế tách biệt để tránh ám mùi vào khu ở.
Diện tích rộng, phù hợp cho những bữa tiệc gia đình, họp mặt đông người.

Xây dựng theo lối kiến trúc truyền thống với mái ngói đỏ, cột kèo gỗ, cửa bức bàn.
Không gian linh thiêng, trang trọng – nơi con cháu tưởng nhớ tổ tiên.

Với tổng diện tích xây dựng hơn 220m2, chi phí dự kiến rơi vào khoảng:
Nhà ở cấp 4 (100m2): từ 700 – 800 triệu đồng
Nhà bếp ăn riêng (70m2): khoảng 400 – 500 triệu đồng
Nhà thờ họ (50m2): khoảng 450 – 600 triệu đồng (tùy vật liệu gỗ, đá, trang trí)
👉 Tổng kinh phí hoàn thiện công trình trọn gói dự kiến: 1,6 – 1,9 tỷ đồng (dao động theo loại vật liệu hoàn thiện).

Mẫu nhà cấp 4 3 phòng ngủ 100m2 kết hợp nhà thờ họ và bếp ăn riêng là giải pháp lý tưởng cho những gia đình sở hữu quỹ đất rộng, vừa đáp ứng không gian sống tiện nghi, vừa giữ gìn truyền thống thờ cúng tổ tiên. Thiết kế khoa học, công năng tối ưu cùng chi phí hợp lý khiến công trình này được nhiều gia chủ lựa chọn.
📞 Liên hệ ngay 0988 030 680 để được Kiến trúc Angcovat tư vấn miễn phí và nhận bản vẽ mẫu phù hợp với gia đình bạn!