Khi xây nhà không chỉ là dựng một công trình, mà là kiến tạo nơi chốn bình yên cho cả gia đình
Với nhiều gia đình Việt hiện nay, đặc biệt ở khu vực nông thôn và ven đô, mong muốn lớn nhất khi xây nhà không đơn thuần là có nơi để ở, mà là tạo nên một tổ ấm đủ rộng rãi để ông bà an dưỡng tuổi già, bố mẹ yên tâm làm việc, con cháu lớn lên trong môi trường đầy đủ yêu thương và gắn kết.
Chính vì vậy, những mẫu nhà cấp 4 ba gian mái Nhật diện tích lớn, bố trí khoa học, sân vườn rộng thoáng đang trở thành xu hướng được rất nhiều gia chủ lựa chọn.
Trong bài viết hôm nay, chúng tôi giới thiệu tới quý vị mẫu thiết kế nhà cấp 4 3 gian mái Nhật 160m2 4 phòng ngủ do Kiến trúc Angcovat thực hiện cho gia đình ông Vũ Trí Nhât tại Ninh Giang – Hải Phòng. Đây là công trình tiêu biểu hội tụ đầy đủ các yếu tố:

Nếu anh/chị đang tìm kiếm ý tưởng xây nhà cấp 4 4 phòng ngủ đẹp ở quê, thì đây chắc chắn là mẫu nhà rất đáng tham khảo.

Đây là câu hỏi rất nhiều khách hàng đặt ra trước khi xây nhà. Thực tế, với quỹ đất rộng như công trình này, lựa chọn nhà cấp 4 là phương án cực kỳ thông minh.
Gia đình có ông bà cao tuổi thì nhà 1 tầng luôn thuận tiện hơn:
Nhà tầng thường chia tách sinh hoạt theo từng tầng. Trong khi đó nhà 1 tầng giúp:
Nếu đã có khu đất 350m2, thay vì xây cao tầng chi phí lớn, việc làm nhà 1 tầng đẹp kết hợp sân vườn mang lại giá trị sống cao hơn rất nhiều.
Nhiều người nghĩ nhà cấp 4 đơn giản, nhưng mẫu nhà mái Nhật hiện nay có vẻ đẹp không thua biệt thự mini:

Ngay từ góc nhìn phối cảnh tổng thể, công trình gây ấn tượng mạnh bởi sự hài hòa giữa kiến trúc và thiên nhiên.
Ngôi nhà sở hữu mặt tiền rộng 16m – một tỷ lệ đẹp để triển khai kiến trúc 3 gian hiện đại.
Mái Nhật là điểm nhấn nổi bật nhất của công trình:
Màu ngói đỏ nâu kết hợp sơn tường sáng tạo nên tổng thể vô cùng ấm cúng và đẳng cấp.
Tiền sảnh sử dụng cột vuông chắc khỏe, chân cột ốp đá tối màu:
Hệ cửa gỗ kính hoặc nhôm kính lớn giúp:

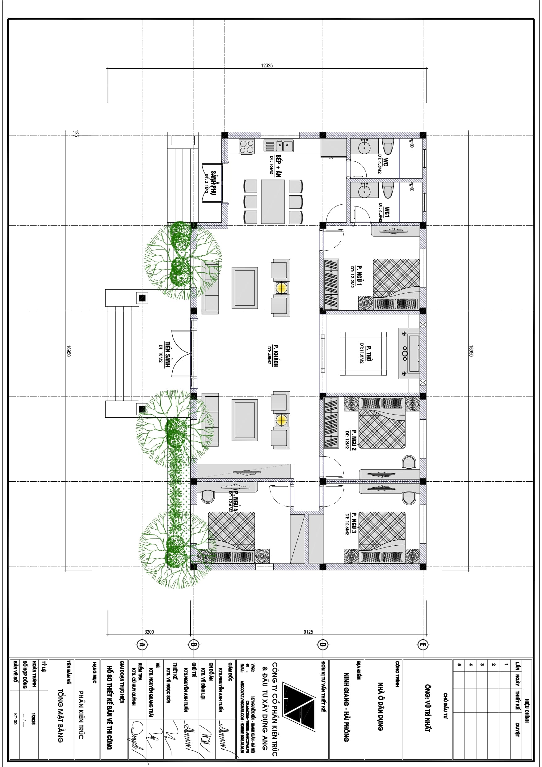
Một mẫu nhà đẹp không chỉ ở mặt tiền mà quan trọng hơn là bố trí công năng hợp lý.
Phòng khách đặt ở vị trí trung tâm – đẹp nhất ngôi nhà:
Diện tích rộng giúp kê sofa lớn, tủ trang trí, kệ tivi thoải mái.
Thay vì đặt bàn thờ trong phòng khách, kiến trúc sư bố trí 1 phòng thờ riêng giúp:
Bếp được bố trí tách nhẹ phía sau, có lối ra sảnh phụ:
Bàn ăn lớn đủ cho cả gia đình nhiều thế hệ.
Gia đình đông người nếu chỉ có 1 WC sẽ rất bất tiện. Vì vậy bố trí 2 nhà vệ sinh là giải pháp hợp lý.

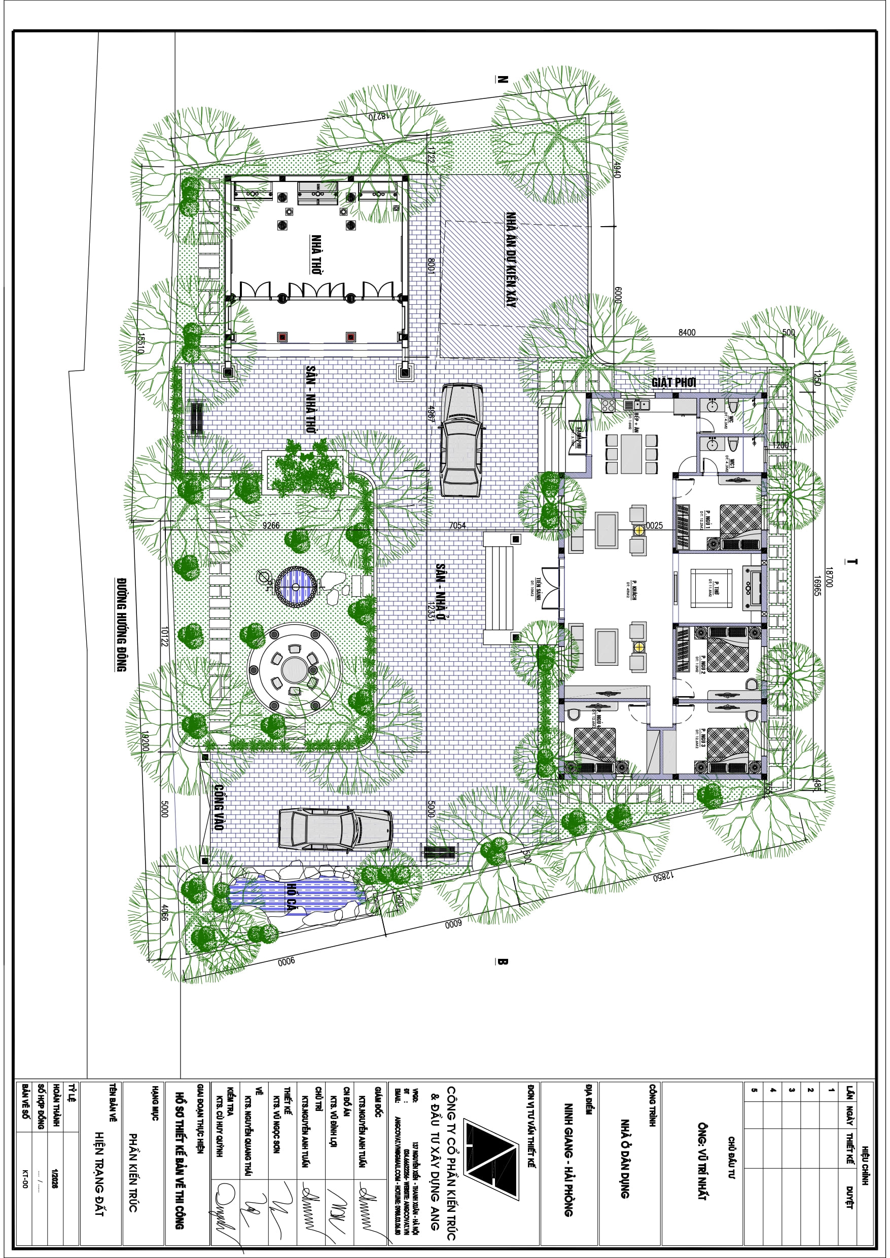
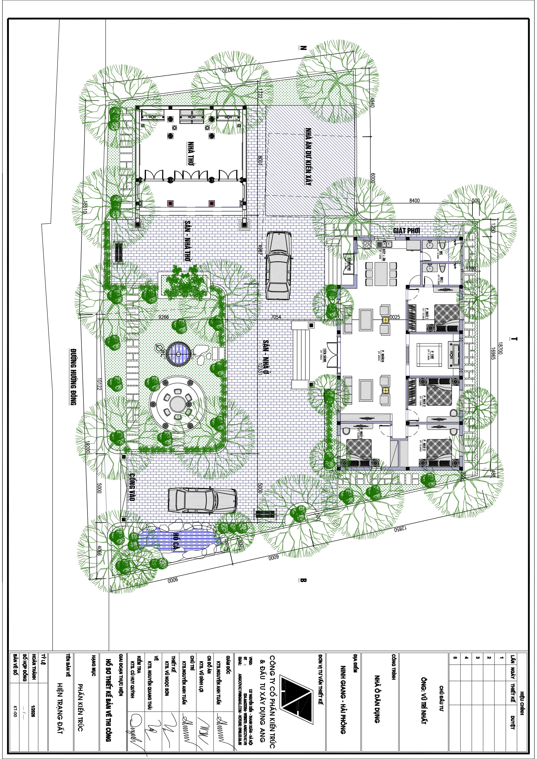
Điểm đắt giá nhất của công trình không chỉ là ngôi nhà mà là cách quy hoạch tổng thể khuôn viên.
Ngôi nhà nằm phía trong, chừa khoảng sân rộng phía trước:
Gia đình vẫn giữ nét đẹp truyền thống khi bố trí khu nhà thờ riêng trong khuôn viên.
Ưu điểm:

Khu sân lát gạch rộng rãi:
Khu sân giữa bố trí bàn trà, cây xanh, cảnh quan mềm mại:
Một hồ cá nhỏ tạo sinh khí cho ngôi nhà:

Thiết kế cổng mái ngói cùng phong cách với nhà chính giúp tổng thể sang trọng hơn rất nhiều.
Giải pháp: Chọn phong cách mái Nhật hiện đại như mẫu này.
Giải pháp:
Giải pháp: Bố trí theo mặt tiền rộng 16m nên các phòng vẫn thoáng.
Giải pháp: Phân khu rõ ràng giữa sinh hoạt chung và nghỉ ngơi.
Giải pháp: Thiết kế chi tiết từ đầu, dự toán rõ ràng trước thi công.
Đây là mô hình sống lý tưởng mà rất nhiều gia đình hiện nay mong muốn.
Chi phí thực tế phụ thuộc:
Với mẫu nhà tương tự, nên chia ngân sách thành:
Bao gồm móng, cột, tường, mái.
Gạch, sơn, cửa, thiết bị điện nước.
Sân lát gạch, cổng rào, cây xanh, hồ cá.
Tủ bếp, giường tủ, bàn ghế…
Để biết chi phí chuẩn thời điểm hiện tại, gia chủ nên liên hệ trực tiếp kiến trúc sư để bóc tách chi tiết.
Nhiều gia đình xây theo kinh nghiệm truyền miệng dẫn tới:
Lợi ích:
Thiết kế hàng nghìn công trình trên toàn quốc.
Đặc biệt là nhà ở quê, nhà nhiều thế hệ, nhà có nhà thờ.
Không vẽ quá xa thực tế.
Năm 2026 trở đi, xu hướng xây nhà ở quê sẽ ưu tiên:
Và mẫu nhà của ông Vũ Trí Nhât là hình mẫu rất tiêu biểu cho xu hướng này.
Nếu anh/chị đang sở hữu khu đất từ 300m2 trở lên và mong muốn:
Thì mẫu nhà cấp 4 3 gian mái Nhật 160m2 tại Hải Phòng này là lựa chọn cực kỳ lý tưởng.
Anh/chị đang chuẩn bị xây nhà?
Muốn được tư vấn mặt bằng theo đất thực tế, phong thủy, ngân sách?
Liên hệ Kiến trúc Angcovat
Hotline: 0988 030 680
Kiến trúc sư sẽ hỗ trợ lên ý tưởng phù hợp nhất cho gia đình bạn.