Sự cẩu thả trong bất cứ nghề nào cũng là một sự bất lương- đó là châm ngôn làm việc của đội ngũ kiến trúc sư Angcovat. Chẳng thế mà các bạn có thể nhận thấy sự tỉ mỉ,trau chuốt đến từng đường nét thiết kế trong các mẫu nhà của chúng tôi. Mẫu biệt thự hình chữ u 3 tầng mặt tiền 15m BT313046 cũng không phải trường hợp ngoại lệ!
Chúng tôi nhận được cuộc gọi của ông Tuấn vào một buổi sáng đầu năm 2016 yêu cầu tư vấn thiết kế từ xa mẫu biệt thự hình chữ u 3 tầng mái thái. Đây không phải lần đầu tiên công ty kiến trúc Angcovat được phục vụ cho các khách hàng ở xa trong Đà Nẵng như vậy nhưng chúng tôi cảm thấy vô cùng vui và tự hào khi tên tuổi của công ty ngày càng vang xa, được nhiều người biết tới và tin tưởng.
Là công ty thiết kế được tin tưởng và có khá nhiều kinh nghiệm phục vụ khách hàng từ xa nên quá trình hợp tác giữa chủ đầu tư và ANG diễn ra khá suôn sẻ. Kể từ lúc bắt đầu kí hợp đồng cho đến ngày bàn giao hồ sơ, mọi công đoạn đều được thực hiện gián tiếp qua điện thoại, email và zalo. Và kết quả của sự tin tưởng ấy là mẫu biệt thự hình chữ u 3 tầng 5 phòng ngủ. Đây là món quà đặc biệt mà đội ngũ kiến trúc sư trẻ ANG dành tặng cho lô đất kích thước 25x25m của gia đình ông Tuấn.
Mẫu biệt thự: BT313046
Số tầng: 03
Chủ đầu tư: Ông Tuấn
Địa chỉ: Đảo Rồng, Đà Nẵng
Mặt tiền: 15m
Chiều sâu: 15m
Kích thước ô đất: 25x25m
Kinh phí đầu tư dự kiến: 4 tỷ đồng
Kiến trúc sư thiết kế: Đặng Thị Kim Chi
Năm thi công: 2016
Thông số công năng: Diện tích sàn 200m2/sàn
- Tầng 1: 1 phòng khách, 1 phòng bếp ăn, 1 phòng sinh hoạt chung, 1 phòng thư giãn, 1 phòng ngủ người giúp việc.
- Tầng 2: 1 phòng sinh hoạt chung, 1 phòng ngủ Master, 2 phòng ngủ nhỏ, 1 kho.
- Tầng 3: 1 phòng thờ , 1 phòng ngủ nhỏ, 1 phòng ngủ VIP, 1 phòng massage, 1 sảnh trung tâm.
Thiết kế biệt thự hình chữ u 3 tầng 5 phòng ngủ theo đuổi phong cách hiện đại, đề cao sự đơn giản, hệ thống công năng tiện nghi, sử dụng kết hơp nhiều vật liệu mới. Mẫu nhà theo phong cách hiện đại giúp cuộc sống của gia đình trở nên gọn gàng, ổn định, năng động hơn nhưng cũng không kém phầm đầm ấm, tạo cảm giác hạnh phúc, thư thái nhất cho các thành viên mỗi khi trở về nhà sau một ngày làm việc căng thẳng.
Nếu còn đang phân vân giữa một mẫu nhà theo phong cách cổ điển và ngôi nhà hiện đại thì tại sao bạn không bớt chút thời gian, cùng chúng tôi, tham quan ngôi biệt thự hình chữ u 3 tầng diện tích 200m2 của gia đình ông Tuấn.Mẫu biệt thự là điển hình cho phong cách thiết kế kiểu mới, tự tin, trẻ trung và phóng khoáng.

Phối cảnh 01 biệt thự hình chữ u 3 tầng mái thái phong cách hiện đại
Trong mẫu biệt thự hình chữ u 3 tầng kinh phí 4 tỷ đồng, dấu ấn của phong cách hiện đại được thể hiện trước hết ở cách lựa chọn, sắp xếp hình khối, bố cục chính cho toàn ngôi nhà. Tổ chức mặt bằng tự do, phi đối xứng, mặt đứng loại bỏ việc sử dụng các họa tiết trang trí rườm rà của trường phái cổ điển.
Trong nhiều trường hợp, sự bất đối xứng lại mang dụng ý nghệ thuật. Mẫu biệt thự hình chữ u 3 tầng phong cách hiện đại cũng không ngoại lệ. Tự do có tổ chức, tự do mà lại vô cùng logic, hợp lý, thuận tiện cho việc bố trí mặt bằng công năng sử dụng là điểm sáng không thể bỏ qua khi chiêm ngưỡng ngôi biệt thự này.
Mẫu biệt thự 3 tầng 5 phòng ngủ của gia đình ông Tuấn ở Đà Nẵng được thiết kế đặc biệt theo dáng hình chữ u. Để thiết kế được ngôi nhà hình chữ u như vậy bạn cần phải sở hữu một lô đất có mặt tiền đủ rộng. Nhà hình chữ u không chỉ gây ấn tượng bởi kiểu dáng mới lạ mà còn là giải pháp giúp việc bố trí mặt bằng công năng trở nên đơn giản hơn.
Mẫu nhà hình chữ u 3 tầng diện tích 200m2 sở hữu các khối kiến trúc khá độc đáo, khác biệt từ tầng 1 cho đến tầng 3 hứa hẹn sẽ mang tới gia chủ nhiều trải nghiệm thú vị ngay trong chính ngôi nhà của gia đình mình. Nếu như tầng 1 gây ấn tượng bởi vẻ đẹp sang trọng của khối đá hoa cương, tầng 2,3 sinh động với các nét chỉ kẻ ngang và hệ cột vuông thẳng đứng.

Phối cảnh 02 biệt thự hình chữ u 3 tầng phong cách hiện đại mặt tiền 15m
Mẫu biệt thự hình chữ u 3 tầng mặt tiền 15x15m sở hữu hệ mái thái bề thế. Thiết kế hình dáng mái độc đáo, thể hiện sự tỉ mỉ, kì công trong cách sắp đặt bố cục hình khối đã tạo ra tính kiến trúc cực cao cho toàn thể ngôi nhà. Ngoài tác dụng thẩm mỹ, tính năng ưu việt của hệ mái thái cũng là điều các gia chủ không nên bỏ qua khi quyết định lựa chọn kiểu dáng mái này.
Với độ dốc tương đối mái thái đẩy nhanh quá trình thoát nước tự nhiên, tránh gây hiện tượng ứ đọng, thấm dột nước trên mái, đặc biệt là vào trời mưa. Bởi thế mà mái thái được đánh giá phù hợp với những ngôi nhà ở vùng khí hậu nhiệt đới như mẫu biệt thự hình chữ u 3 tầng 5 phòng ngủ. Không chỉ phát huy công năng tuyệt vời vào những ngày trời mưa, mái thái còn là giải pháp chống nóng tuyệt vời bởi độ thông thoáng và tác dụng tản nhiệt tốt của khoảng không dưới mái.
Thiết kế mái đua trong mẫu biệt thự hình chữ u phong cách hiện đại vừa giúp hạn chế tình trạng nước mưa theo mái chảy xuống bề mặt tường phía dưới, vừa có tác dụng tạo kiến trúc. Hình dáng mái cách tân độc đáo theo dáng hình chữ u. Phần chóp mái tầng 2 được tận dụng làm ban công. Dáng mái xuôi chiều cân đối tạo sự thanh thoát, cao ráo cho toàn khối công trình.
Ngoài tham khảo kết cấu mái, các bạn cũng có thể tham khảo thêm cách lựa chọn chất liệu gạch ốp. Hiện nay trên thị trường có khá nhiều loại gạch ốp được sản xuất trên dây chuyền hiện đại, tích hợp nhiều tính năng ưu việt chống thấm dột, chống ngấm nước, độ bền màu cao.

Thiết kế mái thái ấn tượng mẫu biệt thự hình chữ u 3 tầng mặt tiền 15m 5 phòng ngủ
Theo đuổi phong cách hiện đại, mẫu biệt thự hình chữ u 3 tầng phong cách hiện đại lựa chọn tone màu ngoại thất trắng sáng làm màu chủ đạo. Sắc trắng là màu sắc đặc biệt. Nếu như sắc trắng mang lại vẻ đẹp dịu dàng, duyên dáng cho mẫu nhà cổ điển thì đối với những ngôi nhà hiện đại, màu trắng lại đem tới cảm giác tươi mới, khỏe khoắn, đầy sức sống.
Trong mẫu biệt thự hình chữ u mái thái, màu trắng đại diện cho nguồn năng lượng âm, cho sự chuyển động mạnh mẽ. Sắc trắng có độ tương phản ánh sáng cao là giải pháp làm sáng và mở rộng không gian sống của bạn. Không chỉ vậy màu trằng còn có tác dụng làm nền nổi bật cho các khối kiến trúc khác, hài hòa với cảnh quan xung quanh.
Công việc phối màu ngoại thất cho một mẫu nhà chưa bao giờ là điều dễ dàng đối với mỗi người kiến trúc sư nếu muốn thật sự tạo được sự phá cách, độc đáo và ấn tượng. Mẫu biệt thự hình chữ u 3 tầng kích thước 15x15m cũng không phải trường hợp ngoại lệ. Bài toán phối màu sao cho đạt được sự hài hòa về giác quan, cân bằng về phong thủy, nổi bật về kiến trúc đã được kiến trúc sư ANG xử lý vô cùng khéo léo.
Mẫu nhà hình chữ u 3 tầng mái thái là sự kết hợp hài hòa giữa sắc trắng chủ đạo với tone màu nâu vàng của lớp đá hoa cương ốp tường tầng 1, tone màu nâu sẫm của hệ thống tường, dàn trang trí và gam màu ghi trang nhã của hệ mái thái. Sự phối hợp nhiều gam màu khác nhau là đặc trưng không thể bỏ qua của các mẫu nhà hiện đại- tạo hiệu ứng tươi mới, trẻ trung và đầy sức sống.

Sân trước biệt thự hình chữ u 3 tầng 5 phòng ngủ mái thái
Biệt thự hình chữ u 3 tầng kích thước 15x15m áp dụng chất liệu mới. Cửa kính là giải pháp tối ưu, hiện nay được khá nhiều ngôi nhà hiện đại ưa chuộng, giúp tận dụng nguồn sáng tự nhiên, đem lại sự thoáng đãng, sáng sủa cho không gian phía trong ngôi nhà. Cửa kính cũng giúp gia chủ kiểm soát tầm nhìn tốt hơn, mở ra nhiều điểm view thú vị cho các thành viện trong gia đình khi muốn chiêm ngưỡng cảnh quan bên ngoài.
Biệt thự hình chữ u 3 tầng kinh phí 4 tỷ đồng sử dụng chất liệu kính cường lực lõi thép, được sản xuất trên dây chuyền hiện đại tích hợp tính năng chống ồn, chống nóng, chống va đập mạnh, mang lại sự an toàn tuyệt đối cho không gian sống của gia đình. Để chủ động điều chỉnh được ánh sáng và đảm bảo sự riêng tư, gia chủ có thể lắp thêm rèm cửa tối màu sang trọng phía trong.
Lớp đá hoa cương ốp tường tầng 1- điểm sáng của biệt thự hình chữ u 3 tầng mái thái. Với đặc tính kết cấu tinh thể, loại đá này có độ cứng cao, ít thấm nước, độ bền màu cao, thích hợp ốp lát ở các vị trí thường xuyên sử dụng và chịu tác động của thời tiết, dễ bị mài mòn hay xước như cầu thang, sảnh chính, mặt tiền, sàn nhà. Giá thành đá hoa cương cũng vừa phải, rẻ hơn so với đá marble, lại dễ thi công, ít gãy mẻ, phù hợp với điều kiện khí hậu nhiều mưa nắng như ở nước ta.
Mẫu biệt thự hình chữ u 3 tầng mái thái sở hữu hệ thống công năng tiện nghi và vô cùng hiện đại, đồng nhất với phong cách kiến trúc của ngôi nhà.
Tầng 1 mẫu biệt thự hình chữ u 3 tầng diện tích 200m2 bao gồm 1 phòng khách, 1 bếp ăn, 1 phòng thư giãn và 1 phòng ngủ của người giúp việc. Từ sảnh chính bước vào là không gian phòng khách vô cùng rộng rãi. Trước khi bước vào khu vực kê bàn ghế, kệ tivi là sảnh chờ trung tâm. Thiết kế giao thông tỏa tròn xung quanh trục giao thông chính thuận tiện cho việc sắp xếp không gian chức năng và di chuyển.
Giáp liền phòng khách là bếp ăn lớn của biệt thự hình chữ u 3 tầng 5 phòng ngủ. Bếp nấu bố trí sát tường, trang bị thiết bị vô cùng hiện đại, tiện nghi giúp công việc bếp núc của người chủ gia đình trở nên nhanh chóng, đơn giản hơn, tiết kiệm thời gian khi chế biến các món phức tạp, nhiều dinh dưỡng cho các thành viên. Sở hữu một căn bếp như vậy từ lâu đã trở thành niềm mơ ước của nhiều người phụ nữ và ANG đã giúp họ biến nó thành sự thật.
Bàn ăn gia đình kê gọn gàng giữa phòng bếp nhà hình chữ u 3 tầng kinh phí 4 tỷ đồng. Gian bên cạnh, ngăn cách bởi vách kính là bàn ăn lớn, dùng khi có đông khách. Thiết kế cửa lách dẫn ra hè sau và ban công hồ nước mang lại độ thông thoáng cho căn phòng, tránh ám mùi khó chịu trong khi nấu nướng. Ngoài tiện cho việc di chuyển còn giúp mở đón gió, đón sáng tự nhiên, hứa hẹn sẽ đem lại những giây phút thư thái, quây quần bên nhau hạnh phúc cho các thành viên trong gia đình trong bữa ăn.
Với 200m2 sàn, ngoài phòng khách, bếp ăn, tầng 1 biệt thự hình chữ u 3 tầng phong cách hiện đại còn 1 phòng sinh hoạt chung và một phòng thư giãn. Phía góc trong cùng là phòng ngủ dành cho người giúp việc vừa đảm bảo tính riêng tư cho mọi người lại thuận tiện cho công việc chăm sóc, chăm nom ngôi nhà của người giúp việc.

Mặt bằng tầng 1 biệt thự hình chữ u 3 tầng mái thái kinh phí 4 tỷ đồng
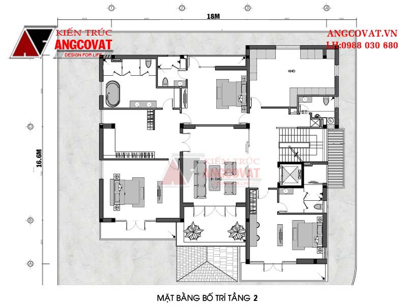
Biệt thự hình chữ u 3 tầng phong cách hiên đại sở hữu hệ thống phòng ngủ tiện nghi hứa hẹn sẽ mang tới những giây phút nghỉ ngơi riêng tư, thư thái nhất cho các thành viên trong gia đình, nạp lại nguồn năng lượng tuyệt vời cho một ngày làm việc mới. Ngoài ra tầng 2 còn có 1 phòng sinh hoạt chung và 1 phòng kho.
Trong mẫu biệt thự hình chữ u 3 tầng mái thái, tuy mỗi phòng ngủ lại được thiết kế khác nhau tạo nên sự khác biệt tùy vào sở thích và cá tính của chủ nhân căn phòng. Tuy nhiên điểm chung của cả 3 phòng ngủ là sự tiện nghi, thoải mái đến từ nội thất đầy đủ, bao gồm 1 giường ngủ kích thước lớn, hệ bàn học và bàn làm việc, kệ tivi, tủ quần áo,...Thiết kế cửa sổ lớn và cửa ra vào tận dụng nguồn gió, ánh sáng, xua đi sự bí bức của căn phòng, mang lại sự mát mẻ, tươi sáng.
Hệ thống phòng vệ sinh tầng 2 mẫu biệt thự hình chữ u 3 tầng diện tích 200m2 trang bị thiết bị sứ cao cấp, độ bền cao từ lavabo rửa mặt, vòi hoa sen, bồn cầu,...Khu vệ sinh bố trí gọn gàng ở các góc vừa không gây cản trở giao thông lại không vướng tầm mắt, ảnh hưởng đến tính thẩm mỹ của nội thất.

Mặt bằng công năng tầng 2 biệt thự hình chữ u 3 tầng kinh phí 4 tỷ đồng diện tích 200m2
Tầng 3 của mẫu biệt thự hình chữ u 3 tầng mặt tiền 15m bao gồm 2 phòng ngủ lớn, 1 phòng ngủ nhỏ, 1 phòng trống và 1 phòng thờ. Phòng thờ thiết kế trang trọng thể hiện tấm lòng thành kính của thế hệ cháu con với ông bà tổ tiên. Ban thờ kê dựa lưng chắc chắn vào tường, hướng ra phía cửa hợp mệnh với gia chủ. Phía trước là thảm trải sàn làm nơi hành lễ chính mỗi dịp lễ lạc.
1 phòng massage hiện đại cũng được thiết kế dành cho các thành viên trong gia đình trong biệt thự hình chữ u 3 tầng diện tích 200m2. Phòng massage khá đầy đủ các chức năng hứa hẹn sẽ giúp các thành viên đỡ mệt mỏi sau một ngày làm việc vất vả. Thiết kế sảnh trung tâm làm trục giao thông chính của tầng 3 và tầng 1 khá giống nhau tạo sự đồng nhất.
Thiết kế không gian mở với hệ thống cửa ra vào lớn là đặc trưng của ngôi nhà hiện đại. Ngoài ban công tầng của mẫu biệt thự hình chữ u kinh phí 4 tỷ đồng gia chủ có thể tận dụng đặt các chậu hoa cây cảnh trang trí thêm cho không gian thêm xanh tươi, mát mẻ.

Mặt bằng công năng tầng 3 biệt thự hình chữ u 3 tầng diện tích 200m2 phong cách hiện đại
Ước mơ sở hữu mẫu biệt thự hình chữ u 3 tầng diện tích 200m2 của gia đình ông Tuấn đã được đội ngũ kiến trúc sư trẻ của ANG biến thành hiện thực. Mẫu biệt thự hình chữ u 3 tầng mặt tiền 15m kinh phí 4 tỷ động đặc trưng của phong cách hiện đại hứa hẹn sẽ đem tới cho cuộc sống của gia đình sự sa hoa, tiện nghi và thoải mái nhất. Còn gì tuyệt vời hơn khi hàng ngày được trở về bên những người thân yêu trong một không gian sống hạnh phúc như vậy.
Mọi thông tin cần tư vấn xin vui lòng liên hệ: 0988 030 680