Mẫu nhà ngang cấp 4 3 phòng ngủ mái thái nông thôn đẹp hiện đại, không gian mở, gần gũi thiên nhiên, vừa đơn giản, tiết kiệm chi phí và vẫn rất sang trọng và tinh tế. Xuất phát từ các mẫu nhà ngang cấp 4 3 gian, 5 gian truyền thống, mẫu nhà cấp bốn này được phát triển ý tưởng mặt bằng theo phương ngang nhưng khối kiến trúc được lên ý tưởng theo kiểu dáng hiện đại và được ưa chuộng hơn rất nhiều.
Nếu khổ đất của quý vị có chiều ngang thoải mái thì ý tưởng xây dựng một ngôi nhà ngang cấp 4 hiện đại 3 phòng ngủ 1 phòng khách dưới đây là lựa chọn tuyệt vời. Diện tích từ 150m2 trở lên là rất đẹp và thoải mái rồii.
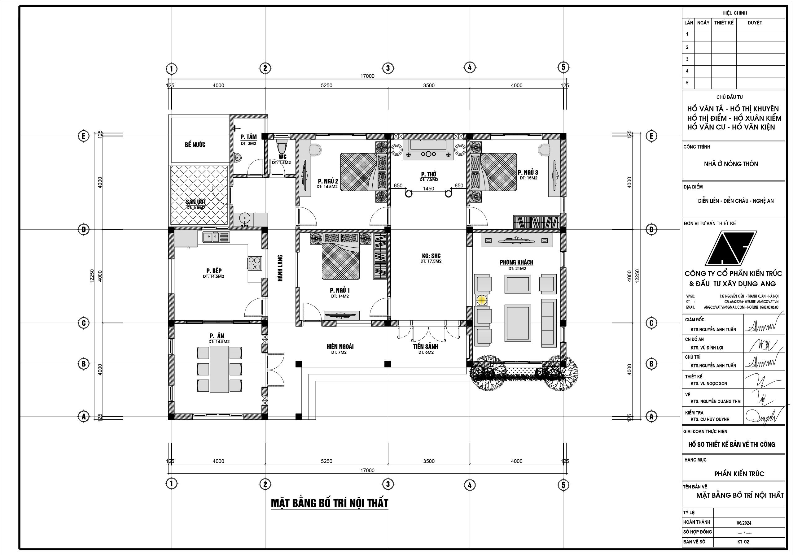
Ngay dưới đây là bản vẽ thiết kế nhà ngang cấp 4 3 phòng ngủ mái thái hiện đại diện tích 170m2 được kiến trúc sư Angcovat lên ý tưởng cho gia đình chú Cư tại Nghệ An. Đây chính xác là đáp án cho yêu cầu thiết kế không gian sống hoàn hảo nhất là các gia chủ yêu thích vẻ đẹp hiện đại, thể hiện sự tiện nghi và phong cách sống năng động, hài hòa với thời cuộc.
===> Đứng bỏ lỡ bộ sưu tập: 99 mẫu nhà biệt thự 1 tầng đẹp, giá rẻ ở nông thôn




