Thiết kế bởi: Kiến trúc sư Angcovat
Chủ đầu tư: Ông Kiếm
Địa điểm xây dựng: Thường Tín – Hà Nội
Diện tích xây dựng: 100m2/sàn
Số tầng: 2 tầng
Năm thi công: 2025
Số phòng ngủ: 4 phòng
Phong cách: Biệt thự mái Nhật hiện đại

Mẫu biệt thự mang phong cách hiện đại kết hợp với kiến trúc Á Đông tinh tế, nổi bật với hệ mái Nhật duyên dáng, độ đua vừa phải, giúp chống nóng – thoát nước hiệu quả.
Điểm nhấn nằm ở hình khối khỏe khoắn, các khung cửa kính lớn giúp lấy sáng tối đa, kết hợp ban công trồng hoa giấy rực rỡ tạo nên vẻ đẹp nhẹ nhàng, gần gũi thiên nhiên.
Không gian sân vườn bao quanh nhà được quy hoạch hài hòa, tạo nên khoảng nghỉ xanh mát lý tưởng trong lòng phố thị.

Một buổi sáng đầy nắng, đội ngũ kiến trúc sư Angcovat đã có mặt để khảo sát – đo đạc hiện trạng khu đất, chuẩn bị cho bước thiết kế ngôi nhà mới cho gia đình bác.
Không gian sân vườn rộng rãi, cây xanh phủ bóng mát cả một khoảng sân – nơi lưu giữ biết bao ký ức của nhiều thế hệ. Mỗi bước khảo sát là một lần lắng nghe, thấu hiểu những mong muốn của gia chủ: vừa giữ lại hồn xưa, vừa mong một thiết kế mới tiện nghi hơn, ấm áp hơn.
Đây là bước khởi đầu quan trọng để đảm bảo thiết kế phù hợp với thực tế hiện trạng, đặc điểm khí hậu – thổ nhưỡng – hướng gió và nếp sống của gia đình.

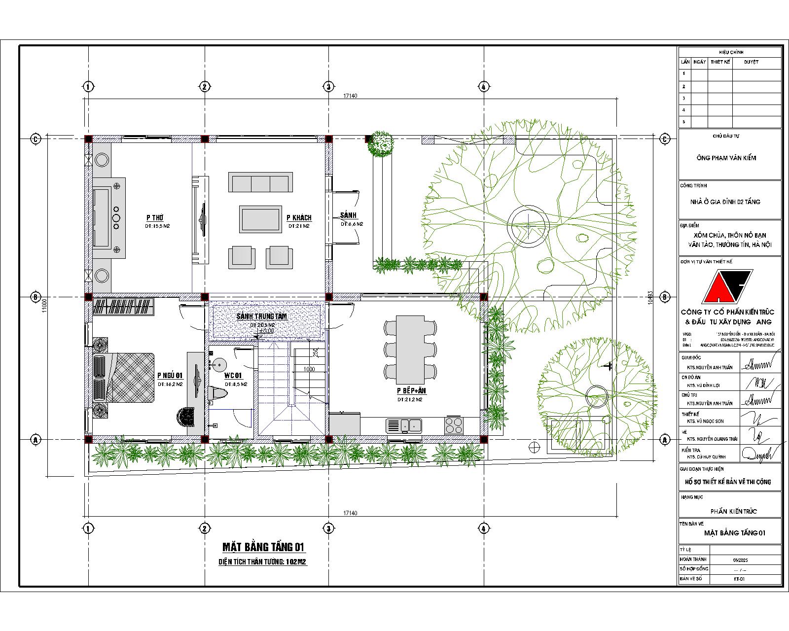
Phòng khách: 21m2 – thiết kế mở, liên thông hiên và lối vào chính
Phòng thờ: 15.5m2 – đặt ngay tầng 1, phù hợp nhu cầu truyền thống
Phòng bếp + ăn: 21.2m2 – rộng rãi, thông thoáng, có lối phụ ra sân
Phòng ngủ 01: 16.2m2 – dành cho ông bà hoặc khách
WC chung: 4.5m2

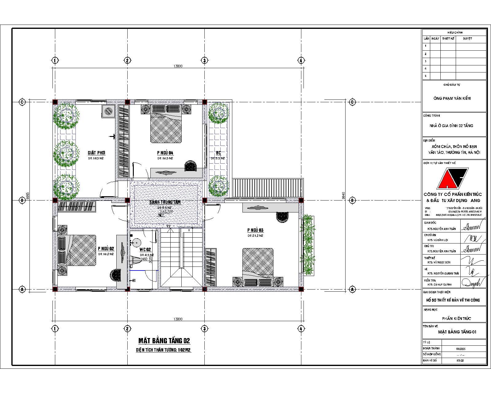
Phòng ngủ 02: 16.2m2
Phòng ngủ 03 (master): 21.2m2
Phòng ngủ 04: 16.5m2
WC chung: 4.5m2
Khu giặt – phơi: 14.5m2
Thiết kế 4 phòng ngủ đáp ứng nhu cầu sử dụng cho gia đình nhiều thế hệ, đảm bảo sự riêng tư nhưng vẫn gắn kết.

Thiết kế tối ưu trên diện tích 10x10m – cân đối, khoa học
Không gian xanh chan hòa – ban công, sân vườn, ánh sáng tự nhiên
Công năng hợp lý, tiện nghi cho gia đình 2–3 thế hệ
Kiến trúc mái Nhật thanh thoát, bền bỉ với thời gian
Phù hợp cả ở quê lẫn phố, dễ thi công, chi phí hợp lý

Diện tích xây dựng: 100m² x 2 tầng = 200m²
Loại hình: Nhà mái Nhật, kiến trúc biệt thự 2 tầng
Phong cách: Hiện đại, mái đổ bê tông lợp ngói
Cấp độ hoàn thiện: Trung bình khá → hoàn thiện vật tư loại khá (VD: Viglacera, Inax, Hafele...)
| Hạng mục | Đơn giá/m² | Tổng tạm tính |
|---|---|---|
| Phần thô + nhân công hoàn thiện | 3.600.000 – 3.800.000 | 200m² x ~3.700.000 = 740 triệu |
| Hoàn thiện cơ bản (vật tư khá) | 2.400.000 – 3.000.000 | 200m² x ~2.700.000 = 540 triệu |
Chi phí xây nhà 2 tầng mái nhật 10x10m Khoảng 1.280 – 1.350 triệu đồng (chưa bao gồm cổng, hàng rào, sân vườn, nội thất rời)
Ngoài ra còn có các khoản kinh phí cần dự trù để hoàn thiện ngôi nhà 2 tầng 10x10m mái nhật là:
Sân lát gạch, cổng, tường rào: 50–80 triệu
Hệ thống điện năng lượng mặt trời/nước nóng NLMT: 20–30 triệu
Nội thất cơ bản (bếp, tủ, giường...): 150–250 triệu tùy chất lượng
Tổng kinh phí xây dựng không vượt quá 1,5 tỷ đồng.
📌 Bạn đang sở hữu lô đất vuông 100m2 hoặc tương tự?
Mẫu biệt thự này chắc chắn sẽ là một gợi ý lý tưởng về công năng, thẩm mỹ và kinh tế!
Liên hệ ngay Zalo 0988 030 680 để được gửi bản vẽ chi tiết và tư vấn miễn phí từ KTS Angcovat!
Tham khảo thêm hàng trăm ngôi nhà đẹp đã được kiến trúc sư biến hình như nào nhé: Mẫu biệt thự đẹp