Bạn yêu thích vẻ đẹp cổ điển, nhưng bạn cũng không muốn bỏ qua phong cách hiện đại, sang trọng cho ngôi nhà của mình. Vậy thì, mẫu bản vẽ chi tiết nhà cấp 4 120m2 mặt tiền 10m được thiết kế lên là để dành cho bạn. Có thể nói, mẫu bản vẽ nhà cấp 4 120m2 hội tụ tất cả các yếu tố: tính thẩm mỹ, công năng sử dụng, tính phong thủy và cuối cùng là tính kinh tế. Tất cả hứa hẹn sẽ mang tới cho gia chủ những trải nghiệm đầy mới mẻ khi tham quan mẫu biệt thự 1 tầng hình chữ l mặt tiền 10m. Chúng tôi tin rằng bạn sẽ yêu thích mẫu bản vẽ chi tiết nhà cấp 4 120m2 hình chữ l của chúng tôi ngay từ cái nhìn đầu tiên. Với chi phí 800 triệu đồng, bạn đã có thể sở hữu được một ngôi biệt thự khang trang với đầy đủ công năng 3 phòng ngủ mà bạn mong muốn. Ngày nay, cuộc sống ồn ào nơi phố thị khiến người ta muốn trở về nơi thôn quê để có thể sống yên bình và thoải mái. Vì vậy, mẫu thiết kế nhà cấp 4 120m2 đẹp của bà Quỳnh được rất nhiều người quan tâm bởi thiết kế nhà cấp 4 đặc trưng và pha chút hiện đại về kiến trúc bên trong. Gia đình bà Quỳnh đã dự định thi công trong năm 2017 và sẽ sớm hoàn thành. Chắc chắn bạn sẽ vô cùng ưng ý và muốn sở hữu ngay thiết kế bản vẽ chi tiết nhà cấp 4 120m2 đẹp này.
|
Mẫu biệt thự |
BT126096 |
|
Số tầng |
01 |
|
Chủ đầu tư |
Bà Quỳnh- Phương án 2 |
|
Địa chỉ |
Hải Phòng |
|
Mặt tiền |
10m |
|
Chiều sâu |
17m (cả sảnh: 18.5m) |
|
Kích thước ô đất |
32x20m |
|
Kiến trúc sư thiết kế |
Nguyễn Thị Kim Chi |
|
Năm thi công |
2017 |
|
Kinh phí đầu tư dự kiến |
800 triệu |
|
Thông số công năng, diện tích |
Tổng diện tích: 120m2 1 sảnh chính 9m, 1 bếp ăn 19m , 1 phòng khách + thờ23m , 1 tiền sảnhchính: 9m, phòng ngủ 1 : 15m2 phòng ngủ 2 : 15m2, phòng ngủ 3: 15m2. |
Ngoại thất của bản vẽ chi tiết nhà cấp 4 120m2 3 phòng ngủ ở thành phố Hải Phòng được chúng tôi thiết kế tỉ mỉ, đặc trưng để làm nổi bật vẻ đẹp sang trọng. Ngoại thất là một công việc quan trọng và nói ảnh hưởng rất lớn đến cảm nhận đầu tiên của người nhìn. Khác với việc thiết kế nội thất, thiết kế ngoại thất bản vẽ chi tiết nhà cấp 4 120m2 bao gồm các thiết kế ở tiểu cảnh sân vườn, ở khuôn viên ngôi nhà 1 tầng diện tích 120m2 3 phòng ngủ cùng với những nét nổi bật bên ngoài ngôi nhà. Với mẫu thiết kế này, chúng tôi không chỉ tạo ra sân vườn phía trước nhà mà ở phía sau chính là một hồ nước khá lớn. Tất cả thiên nhiên đất trời hòa quyện vào bản vẽ chi tiết nhà cấp 4 120m2 3 phòng ngủ này.
Nhìn vào tổng thể kiến trúc, bạn sẽ thấy được những đường nét, hình khối khỏe khoắn mang đậm phong cách cổ điển nhưng vẫn giữ được nét hiện đại, sang trọng trong bản vẽ nhà cấp 4 120m2 120m2 hình chữ l mặt tiền 10m. Bằng bàn tay tài hoa, bằng sự sáng tạo của mình, kiến trúc sư Nguyễn Thị Kim Chi đã thiết kế lên mẫu thiết kế bản vẽ nhà cấp 4 120m2 chữ l độc đáo mới lạ, bề thế, sang trọng cùng cây cối xung quanh, ngôi nhà được hòa quyện với thiên nhiên tươi mát trong lành hơn.

Phối cảnh 1: Bản vẽ chi tiết nhà cấp 4 120m2 hình chữ L mặt tiền 10m
Với màu sắc đỏ tươi của thiết kế mái thái, mẫu nhà 1 tầng có 3 phòng ngủ trở nên vô cùng nổi bật. Kiểu nhà mái thái đang là xu hướng cho các mẫu thiết kế nhà ở dân dụng mà bản vẽ chi tiết nhà cấp 4 120m2 là 1 điển hình. Bởi kiểu cách luôn mới lạ, không giống nhau và với những ưu điểm nổi trội. Khi ngắm nhìn ngôi biệt thự, bạn có thể cảm thấy nó vừa hiện đại lại vừa thôn quê bởi màu ngói đỏ chính là sự đặc trưng của ngói nhà ở nông thôn Bắc Bộ. Với những kiến trúc sư trẻ và tài năng, sự sáng tạo và mới lạ luôn luôn được thể hiện trong từng thiết kế. Với thiết kế nhà cấp 4 có tầng hầm của bà Quỳnh, bạn sẽ thấy mái nhà được thiết kế với cấu trúc linh hoạt, không hề khuôn mẫu, nặng nề.
Mái nhà là nơi che nắng che mưa và cũng là bộ phận quan trọng nhất ngôi nhà vì theo quan niệm xưa, mái nhà vẫn là nơi tụ khí và ảnh hưởng đến cuộc sống của mọi người. Vì vậy mà mỗi khi làm mái, người ta vẫn thường chọn ngày, chọn giờ đổ mái sao cho hợp phong thủy của gia chủ. Mái nhà của thiết kế nhà 1 tầng 3 phòng ngủ với cấu trúc hình chữ L theo hình dạng ngôi nhà, và một phần mái đua ra ở phía sảnh chính. Để tạo ra sự độc đáo, chúng tôi thiết kế thêm các mái con nhỏ xinh ở trên mái.
Thiết kế bản vẽ chi tiết nhà cấp 4 120m2 3 phòng ngủ chữ L mang trong mình dáng dấp của mẫu nhà 1 tầng mái thái nên bạn dễ dàng nhận ra hệ mái thái đỏ hun. Màu đỏ trong phong thủy là yếu tố Hỏa mang lại nguồn năng lượng hữu ích và đem đến phú quý, sang trọng cho ngôi nhà. Không chỉ có thiết kế này, rất nhiều những mẫu nhà cấp 4 ở nông thôn khác cũng được ứng dụng màu ngói đẹp này
Trong phần thiết kế, mái thái không chỉ có tác dụng che mưa, che nắng mà còn là điểm nhấn độc đáo để tôn lên vẻ đẹp hình dáng cũng như màu sắc của mẫu thiết kế nhà cấp 4 120m2 hình chữ l. Hệ mái thái thiết kế xếp xen kẽ nhau cùng với ống khói nhô cao xuyên qua tầng mái đã tạo sự bề thế, sang trọng, lạ mắt, mang đậm phong cách cổ điển.
Về công năng của mái thái, mái thái cơ bản giống kiểu mái thái truyền thống với dáng mái xuôi chiều cân đối ở hai bên, mái thái đẩy nhanh quá trình thoát nước tự nhiên, chống nóng, tránh tụ nước lâu ngày dẫn đến ẩm, dột. Vì vậy, trong quá trình thiết kế bản vẽ chi tiết nhà cấp 4 120m2 hình chữ l mặt tiền 10m chúng tôi tính toán kĩ lưỡng xem xét công năng hữu ích khi sử dụng mái thái làm lá chắn bảo vệ cho ngôi nhà.
Mẫu bản vẽ chi tiết nhà cấp 4 120m2 hình chữ l được thiết kế với kiểu dáng vuông vắn, cân đối, vững chắc, khỏe khoắn. Từ hình khối vuông vắn cùng trụ cột nâng đỡ được trang trí bởi những đường gạch chỉ đã tạo lên một phong cách hiện đại, sang trọng mang đậm phong cách cổ điển. Có thể thấy điểm đặc biệt trong thiết kế nhà cấp 4 diện tích 120m2 này bạn có thể dễ dàng nhìn thấy đó là mang hình dạng khẩu súng độc đáo. Hình dạng ngôi nhà mang đến sự khỏe khoắn, vững chắc cho người xem ở bất cứ điểm nhìn nào.

Phối cảnh 2: Bản vẽ chi tiết nhà cấp 4 120m2 hình chữ L mặt tiền 10m 800 triệu
Có lẽ khi nhắc tới những đường phào chỉ là chúng ta nghĩ tới ngay việc “chúng thật rối rắm, thật cầu kì, không cần thiết”. Nhưng trong xây dựng, việc trang trí lên mảng tường cho nhà cũng là yếu tố góp phần quan trọng để tôn lên sự sang trọng, quý phái tránh khỏi sự đơn điệu cho ngôi nhà. Cũng giống như chúng ta vậy, khi mua sắm quần áo, luôn tìm những mẫu quần áo nào có trang trí hoa văn đơn giản, độc đáo, nhưng vẫn giữ nét sang trọng. Bởi thế, khi xây dựng lên ngôi nhà cho chính mình thì không nên bỏ qua phần quan trọng đó cho ngoại thất nhà. Chính điều đó đã tạo lên sự sang trọng, bề thế, hiện đại, đậm phong cách cổ điển cho bản vẽ chi tiết nhà cấp 4 120m2 hình chữ l.
Trong mẫu thiết kế bản vẽ chi tiết nhà cấp 4 120m2 mặt tiền 10m, kiến trúc sư nhấn mạnh vào mặt khu vực mặt tiền. Mặt tiền đẹp chính là cầu nối kết giao và quyết định lên ngôi nhà của bạn có đẹp và sang trọng hay không? Sẽ gây ấn tượng và thu hút mọi ánh nhìn bên ngoài khi bạn sở hữu mặt tiền đẹp.
Thiết kế bản vẽ chi tiết nhà cấp 4 120m2 mái thái được khoác trên mình gam màu nâu sáng và màu ghi đậm làm màu chủ đạo chính cho ngôi nhà. Đối với những ngôi nhà mang phong cách cổ điển hơi hướng hiện đại thì gam màu nâu chính là thông điệp mà kiến trúc sư muốn truyền tải.
Tại sao trong thiết kế, chúng tôi chọn tông màu nâu đỏ làm chủ đạo? Cũng giống như mái ngói đỏ hun, sơn nhà màu nâu chắc chắn sẽ mang tới cho gia chủ trải nghiệm đầy thú vị nhất ngay trong không gian nhỏ xinh của mình. Vì xét về phong thủy, màu nâu có tác dụng nuôi dưỡng năng lượng, đem đến không gian yên tĩnh, thanh bình. Sự kết hợp hài hòa giữa nâu, ghi và màu kem này đã mang lại vẻ đẹp thôn dã, bình dị đến lạ thường. Qua đó, bản vẽ chi tiết nhà cấp 4 120m2 hình chữ l bỗng trở lên bừng sáng, ấm cúng hơn, lung linh hơn.
Trong việc phối màu bản vẽ chi tiết nhà cấp 4 120m2 đẹp, nếu quá lạm dụng gam màu nâu thì sẽ đem đến cảm giác u ám, đơn điệu về hình thể cũng như màu sắc cho ngôi nhà. Điều đó cho thấy, việc phối màu sáng, tối, trung gian sao cho đồng đều là rất quan trọng trong quá trình thiết kế nhà đẹp.
Trong mẫu thiết kế bản vẽ chi tiết nhà cấp 4 120m2, màu nâu được kết hợp với màu đỏ của mái, màu nâu gỗ tự nhiên của hệ thống cửa, màu ghi tạo nhấn tường dưới mái. Tất cả các màu sắc tưởng chừng như rời rạc, không liên quan gì đến nhau nhưng lại được kết hợp với nhau một cách hài hòa, độc đáo, tăng tính thẩm mỹ thu hút ánh nhìn, ngũ hành cân bằng, đem đến tài Vượng cho gia chủ và gia đình

Phối cảnh 3: Bản vẽ chi tiết nhà cấp 4 120m2 hình chữ L mặt tiền 10m 3 phòng ngủ
Như quý vị đang thấy, đây là bao quát khung cảnh mẫu bản vẽ chi tiết nhà cấp 4 120m2 mái thái. Mẫu nhà được thiết kế nổi bật nhờ vào khung cảnh sân vườn với các cây tiêu cảnh xanh tươi quanh nhà và nổi bật hơn nữa là ao nước khá rộng được thiết kế phía sau nhà. Nhờ sự tài hoa và óc sáng tạo khá độc đáo của kiến trúc sư đã tạo lên 1 ngôi biệt thự mát mẻ, rộng rãi, tươi xanh thơ mộng, gió mát của thiên nhiên.
Mặt trước của thiết kế mẫu bản vẽ chi tiết nhà cấp 4 120m2 được xây bởi hàng rào cổng kiên cố, chắc chắn cùng hệ mái của cổng được thiết kế tương tự với mái thái. Đây là món quà mà kiến trúc sư dành riêng cho gia đình bà Quỳnh để bảo vệ nhà, tạo sự an toàn tuyệt đối cho thành viên trong gia đình.
Mẫu thiết kế bản vẽ chi tiết nhà cấp 4 120m2 đẹp được thiết kế đầy đủ các công năng tiện nghi, hiện đại và sang trọng: 1 phòng bếp ăn 19m, 1 phòng khách + phòng thờ 23m, phòng ngủ 1: 15m2, phòng ngủ 2: 15m2, phòng ngủ 3: 15m2. Các không gian phòng được bố trí khá hợp lí và logic.

Bản vẽ chi tiết nhà cấp 4 120m2 hình chữ L mặt tiền 10m 3 phòng ngủ - Tổng mặt bằng
Toàn bộ mảnh đất được quy hoạch đầy đủ, công năng sử dụng hợp lý với nhu cầu và mong muốn sử dụng của các thành viên trong gia đình, bạn có thể dễ dàng nhận thấy các khu vực chức năng được sắp xếp, bố cục đầy đủ và hoàn thiện nhất trên bản vẽ thiết kế kỹ thuật. Tương tự như bản vẽ chi tiết nhà cấp 4 120m2 3 phòng ngủ trước đó, ngôi nhà cũng được thiết kế 3 phòng ngủ tương đương cho công năng sử dụng của ngôi nhà này.

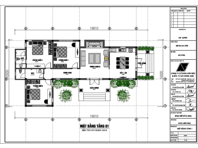
Bản vẽ chi tiết nhà cấp 4 120m2 hình chữ L mặt tiền 10m 800 triệu - Mặt bằng tầng 1
Từ sảnh chính bước vào, chúng ta thấy phòng khách kết hợp phòng thờ được trang trí bởi bàn ghế sofa khá sang trọng, cùng đó là bàn thờ thiêng liêng và cung kính được đặt chắc chắn ở tường ngay bên cạnh đối diện cửa chính. Đây là không gian phòng với diện tích 23m thể hiện sự quyền quý, sang trọng, phong cách sống của gia chủ. Vì vậy phải cân nhắc thật kĩ khi thiết kế không gian này trong bản vẽ chi tiết nhà cấp 4 120m2.
Nối tiếp phòng khách là phòng bếp ăn diện tích 19m bản vẽ chi tiết nhà cấp 4 120m2 hình chữ l được bố trí bàn ăn 6 chỗ ngồi bằng gỗ được đặt giữa không gian bếp. Khu vực nấu nướng kê sát tường gọn gàng. Ở đó, chúng tôi thiết kế thêm tiền sảnh cạnh bếp ăn để tránh ám khói tích tụ khó chịu khi nấu nướng và khi ngồi ăn. Ngoài ra, tiền sảnh có tác dụng đón gió vào trong không gian phòng bếp ăn tạo không khí thoải mái, mát mẻ khi ngồi ăn cùng gia đình và vừa có thể ăn, vừa có thể ngắm cảnh sân vườn bên ngoài.
Hệ thống 3 phòng ngủ của bản vẽ mẫu thiết kế bản vẽ chi tiết nhà cấp 4 120m2 mặt tiền 10m được đặt nối tiếp nhau với mục đích tăng sự gắn kết và tăng sự ấm cúng cho các thành viên trong gia đình. Mỗi phòng được trang trí đầy đủ tiện nghi cùng bộ giường đôi, tủ quần áo, bàn học, bàn làm việc, ti vi. Đặc biệt, phòng nào cũng có cửa sổ mở ra ngoài thông thoáng, đón gió, đón ánh sáng tự nhiên giúp tiết kiệm điện năng một cách tốt nhất, giúp nghỉ ngơi thoải mái nhất.
Sau khi tham quan xong mẫu thiết kế bản vẽ chi tiết nhà cấp 4 120m2 mặt tiền 10m của chúng tôi, bạn đã cảm thấy hài lòng hay chưa? Hãy liên hệ ngay với chúng tôi khi bạn có thắc mắc cần giải đáp, đội ngũ kiến trúc sư chúng tôi sẽ giải đáp nhiệt tình nhất, cụ thể nhất cho bạn hiểu về mẫu thiết kế nhà đẹp của chúng tôi. Ngoài ra bạn có thể tham khảo mẫu nhà cấp 4 mái thái 150m2 3 phòng ngủ trong mẫu thiết kế nhà đẹp của chúng tôi.
Mọi thắc mắc và thông tin liên hệ chi tiết mời bạn liên hệ trực tiếp Hotline: 0988 030 680