Chúc mừng bạn đã có trong tay bộ sưu tập gần 100 mẫu thiết kế nhà 1, 2, 3 tầng có 3 phòng ngủ. Hi vọng bạn có thể lựa chọn được mẫu biệt thự đẹp mình yêu thích
Nhà 1 tầng 3 phòng ngủ
Các mẫu nhà 1 tầng có 3 phòng ngủ diện tích hơn 100m2 phù hợp với nhiều lô đất, đặc biệt là các ô đất vườn.
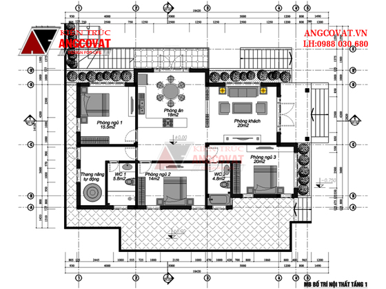
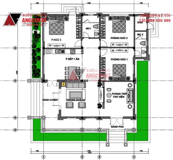
1. Mẫu thiết kế nhà cấp 4 3 phòng ngủ 1 phòng thờ diện tích 120m2 mặt tiền 12x10m BT122066
Nhà cấp 4 3 phòng ngủ 1 phòng thờ diện tích 120m2 gây ấn tượng bởi vẻ ngoài chắc chắn, bề thế đến từ lớp đá hoa cương ốp tường và hệ cột trụ nâng đỡ.

Mẫu nhà cấp 4 với 3 phòng ngủ sở hữu hệ công năng bao gồm 1 phòng khách, 1 phòng thờ, 3 phòng ngủ, 1 bếp ăn và 2 phòng vệ sinh chung.

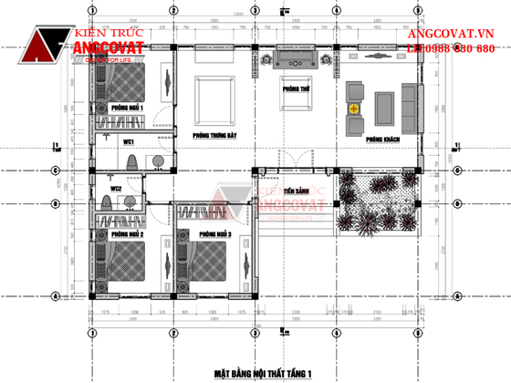
2. Mẫu thiết kế nhà cấp 4 3 phòng ngủ 1 phòng thờ diện tích 130m2 BT121066
Nhà cấp 4 3 phòng ngủ đẹp theo đuổi phong cách tân cổ điển lãng mạn, đặc trưng bởi khối hình vòm cung lớn gắn kính.

Hệ thống phòng ngủ của mẫu nhà cấp 4 3 phòng ngủ đẹp được bố trí cạnh nhau nhằm tạo sợi dây liên kết giữa các thành viên trong gia đình.

3. Mẫu thiết kế nhà vườn cấp 4 3 phòng ngủ 150m2 trên quả đồi thơ mộng 6000m2 BT231056
Ngôi nhà cấp 4 mái thái 3 phòng ngủ là sự hòa quyện giữa thiên nhiên và kiến trúc, giữa những cái tự nhiên của tạo hóa và bàn tay nhào nặn của con người.

Ngôi nhà cấp 4 mái thái 3 phòng ngủ sở hữu hệ công năng tiện nghi được sắp xếp hợp lý.

4. Mẫu thiết kế nhà cấp 4 đẹp nhất việt nam theo phong cách hiện đại 120m2 BT322056
Ngôi nhà cấp 4 1 tầng 3 phòng ngủ phối màu ngoại thất tươi tắn, sáng sủa với gam màu trắng chủ đạo. Nét sang trọng được tạo ra bằng cách ốp đá hoa cương cho hệ thống cột và toàn bộ mặt tiền.

Mẫu nhà cấp 4 1 tầng 3 phòng ngủ sở hữu dây chuyền công năng cân đối, cách bố trí hợp lý, thuận tiện trong quá trình sinh hoạt.

5. Mẫu thiết kế nhà cấp 4 có tầng hầm hiện đại, diện tích 120m2 BT113056
Sự kết hợp giữa phong cách hiện đại và chất cổ điển đã thổi một luồng gió mới vào ngôi nhà cấp 4 có 3 phòng ngủ BT113056 của gia đình ông Thắng ở Ninh Bình.

Mẫu nhà cấp 4 có 3 phòng ngủ bao gồm 1 phòng khách, 1 bếp ăn, 1 phòng thờ và 3 phòng ngủ.

6. Mẫu thiết kế biệt thự 1.5 tầng mặt tiền 7m, diện tích 70m2 với chi phí 600 - 700 triệu BT109056
Nhà cấp 4 có gác lửng 3 phòng ngủ hướng tới sự tối giản.

Nhà cấp 4 có gác lửng 3 phòng ngủ sở hữu hệ công năng tiện nghi bao gồm 1 phòng khách, 1 phòng bếp, 1 phòng ăn, 3 phòng ngủ, 1 phòng thờ.


7. Phối cảnh biệt thự nhà vườn 1 tầng 2 mặt tiền 120m2 BT425046
Biệt thự nhà vườn 1 tầng 3 phòng ngủ BT425046 diện tích 120m2 thu hút bởi phong cách cổ điển, sang trọng.

8. Thiết kế nhà cấp 4 mặt tiền 10x12m diện tích 120m2 BT223046
Mẫu thiết kế nhà cấp 4 đẹp 3 phòng ngủ lấy sự tươi mát làm cảm hứng chủ đạo.

Toàn bộ hệ công năng tiện nghi của mẫu thiết kế nhà cấp 4 đẹp 3 phòng ngủ đều được gói gọn trong khoảng diện tích 120m2.

9. Thiết kế nhà cấp 4 100m2 3 phòng ngủ hình chữ L BT311046
Nhà cấp 4 3 phòng ngủ 100m2 gây ấn tượng bởi mặt tiền sáng sủa. Thiết kế cửa gỗ khung kính hiện đại vừa mang lại sự sang trọng, vừa tạo cảm giác gần gũi, ấm áp.

Thiết kế dạng hình chữ l cho ngôi nhà cấp 4 3 phòng ngủ 100m2 là phương pháp tiết kiệm diện tích hiệu quả. Cách bố trí mặt bằng công năng khá hợp lý, thuận tiện trong quá trình sinh hoạt.

11. Mẫu nhà cấp 4 150m2 BT111046
Thiết kế nhà cấp 4 3 phòng ngủ diện tích 150m2 sở hữu tiền đường tươi sáng. Phối màu ngoại thất hiện đại.

Cách bố trí mặt bằng công năng cho thiết kế nhà cấp 4 3 phòng ngủ được khá nhiều người yêu thích bởi sự tiện nghi và hợp lý của nó.

12. Mẫu nhà thờ kết hợp nhà ở BT130036
Nhà cấp 4 đơn giản 3 phòng ngủ kết hợp nhà thờ mang hơi hướng truyền thống với hệ mái dốc ngói đỏ, thiết kế cửa gỗ và hàng bậc tam cấp.

Thiết kế không gian 3 phòng ngủ đặt cạnh nhau trong mẫu nhà thờ kết hợp nhà ở BT130036 mang lại sự gọn gàng, vừa tạo sợi dây gắn kết giữa các thành viên trong gia đình lại vẫn đảm bảo tính riêng tư.

13. Thiết kế biệt thự nhà vườn cấp 4 200m2 theo kiểu đối xứng BT128036
Mẫu nhà cấp 4 3 phòng ngủ diện tích 200m2 sở hữu mặt tiền 14m vô cùng thông thoáng và sáng sủa. Ấn tượng đầu tiên khi chiêm ngưỡng ngôi nhà là sự bề thế, khỏe khoắn.

Đặt chân vào bên trong mẫu thiết kế biệt thự nhà vườn cấp 4 3 phòng ngủ, bạn sẽ bị ấn tượng bởi không gian sảnh vô cùng rộng rãi.

14. Biệt thự nhà vườn 1 tầng tân cổ điển, diện tích 130m2 BT207016
Nhà cấp 4 một tầng 3 phòng ngủ thu hút cái nhìn của người đối diện bởi thiết kế cột tròn vừa vững vàng, khỏe khoắn vừa giữ được nét duyên dáng, quyến rũ của phong cách tân cổ điển.

Thiết kế cánh cung sử dụng lớp kính hiện đại là giải pháp giúp ngôi biệt thự nhà vườn 1 tầng tân cổ điển diện tích 130m2 thích nghi tốt nhất với điều kiện khí hậu nhiệt đới như ở nước ta.

15. Mẫu nhà cấp 4 sang trọng 3 phòng ngủ 140m2 ở Thanh Hóa BT23125
Mẫu nhà cấp 4 với 3 phòng ngủ phối màu ngoại thất trang nhã, toát lên vẻ quý phái, sang trọng với 2 gam màu chính là màu trắng và màu ghi xám.

Mẫu nhà cấp 4 với 3 phòng ngủ sở hữu hệ công năng tiện nghi, bố trí mặt bằng hợp lý đảm bảo quá trình sinh hoạt của cả gia đình diễn ra thoải mái.

16. Thiết kế nhà vườn cấp 4 đẹp 160m2 mái thái hiện đại BT12125
Ngôi nhà cấp 4 hiện đại 3 phòng sở hữu thiết kế sang trọng, nổi bật với tone màu ngoại thất tươi sáng, hệ mái thái màu xanh dương trầm tĩnh, ổn định.

Thiết kế nhà vườn cấp 4 diện tích 160m2 sở hữu hệ công năng tiện nghi và vô cùng hiện đại. Cách bố trí mặt bằng logic, thể hiện sự hợp lý, thuận tiện cho quá trình sinh hoạt chung của cả gia đình.

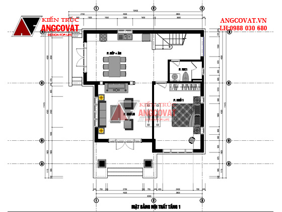
17. Thiết kế nhà 1 tầng có gác lửng 100m2 mặt tiền 7m BT226115
Vẻ đẹp cân đối, bề thế, dây chuyền công năng hiện đại, nổi bật với tone màu tươi sáng, ấn tượng bởi lớp đá ốp chân tường chắc chắn, tiện nghi với hệ thống cửa gỗ kính sang trọng,...

Với mẫu thiết kế nhà 1 tầng có gác lửng 100m2, gia chủ có thể yên tâm cho một cuộc sống hoàn hảo, tiện nghi.

Tầng lửng phía trên là 2 phòng ngủ của các con và phòng thờ.

18. Mẫu thiết kế nhà cấp 4 mái thái hiện đại 120m2 600 triệu BT126115
Mẫu nhà cấp 4 3 phòng ngủ 1 phòng thờ mái thái hiện đại sở hữu tiền đường vô cùng rộng rãi và sảng sủa với 12m.

Thiết kế nhà cấp 4 mái thái hiện đại sở hữu mặt bằng công năng tiện nghi, đầy đủ với 1 phòng khách, 1 phòng thờ, 1 bếp ăn và 3 phòng ngủ.

19. Thiết kế nhà cấp 4 3 phòng ngủ diện tích 120m2 mái ngói BT12395
Nhà cấp 4 với 3 phòng ngủ diện tích 120m2 gây ấn tượng với thiết kế mái ngói thái màu cam, mang lại cảm giác sinh động, mới mẻ và tươi mới cho toàn công trình.

Thiêt kế nhà cấp 4 3 phòng ngủ sở hữu hệ công năng bao gồm 1 phòng khách, 1 bếp ăn và 3 phòng ngủ.

20. Bản thiết kế nhà cấp 4 có 3 phòng ngủ mái ngói ở nông thôn đẹp BT12185
Mẫu nhà cấp 4 nông thôn 3 phòng ngủ tạo cảm tình với người đối diện bởi vẻ ngoài nhỏ nhắn, đường nét trang trí tự nhiên, hài hòa giữa chất cổ điển, truyền thống và vẻ đẹp cách tân hiện đại.

Mẫu nhà cấp 4 có 3 phòng ngủ được thiết kế theo hướng mở với hệ cửa sửa và cửa ra vào khung gỗ kính dày đặc.

21. Mẫu nhà đẹp 1 tầng giá rẻ nhỏ xinh 10x15m 3 phòng ngủ ở nông thôn BT11885
Nhà cấp 4 nông thôn 3 phòng ngủ BT11885 gây ấn tượng bởi vẻ đẹp hoàn thiện, khang trang.

22. Biệt thự 1 tầng phong cách châu âu 3 phòng ngủ 10x20m(200m2) BT18155
Biệt thự 1 tầng 3 phòng ngủ gây ấn tượng mạnh bởi tấm áo choàng cổ điển đến từ chi tiết vòm cung duyên dáng.

Biệt thự 1 tầng phong cách châu âu 3 phòng ngủ sở hữu hệ dây chuyền công năng tiện nghi, bố trí phòng ốc thông thoáng, hợp lý thuận tiện cho quá trình sinh hoạt của cả gia đình.

23. Mẫu nhà 1 tầng mái bằng 3 phòng ngủ 12x14m BT62975
Vẻ đẹp hiện đại của mẫu nhà đẹp 1 tầng 3 phòng ngủ sẽ khiến nhiều gia chủ bị thuyết phục.

Với kích thước 12x14, mẫu nhà 1 tầng mái bằng 3 phòng ngủ sở hữu thiết kế mặt bằng khá mới mẻ và độc đáo, mang lại cảm giác thú vị cho cho các thành viên ngay trong chính không gian sống của mình.

24. Mẫu nhà 1 tầng 3 phòng ngủ 100m2 mái thái đẹp BT42975
Ngôi nhà 1 tầng 3 phòng ngủ BT42975 lại thuyết phục người đối diện bởi thiết kế mái thái mang hơi hướng cổ điển, truyền thống.

Mẫu nhà 1 tầng 3 phòng ngủ 100m2 sở hữu dây chuyền công năng tiện nghi. Bố trí mặt bằng theo xu hướng mở giữa các khoảng không gian, tạo tính kết nối tuyệt vời.

25. Mẫu nhà 1 tầng 3 phòng ngủ mái thái 8x14m BT32975
Thiết kế nhà 1 tầng 3 phòng ngủ gây ấn tượng bởi vẻ ngoài xinh xắn. Với diện tích khoảng 100m2, ngôi nhà hứa hẹn sẽ mang đến cho gia đình bạn những giây phút đầm ấm bên nhau.

Mẫu nhà 1 tầng 3 phòng ngủ mái thái sở hữu mặt bằng công năng đơn giản, bố trí phòng ốc gọn gàng hợp lý, tiết kiệm không gian tối đa, đảm bảo độ thông thoáng.

26. Biệt thự 1 tầng 3 phòng ngủ phong cách châu Âu 100m2 BT22975
Mẫu biệt thự 1 tầng 3 phòng ngủ BT22975 chỉ với 100m2 vô cùng phù hợp với những gia đình ít người và thực tế sử dụng như ở Việt Nam hiện nay.

Với 100m2 sàn, ngôi biệt thự 1 tầng 3 phòng ngủ phong cách châu âu không quá lớn nhưng hứa hẹn sẽ mang đến cho gia chủ sự tiện nghi, thoải mái nhất.

27. Biệt thự 1 tầng phong cách châu âu 10x12m BT12975
Biệt thự 1 tầng phong cách châu âu thiết kế mặt đứng đơn giản, tăng chiều sâu bởi các mảng tường trắng kết hợp đá ốp màu nâu trang nhã.

28. Thiết kế nhà 1 tầng 3 phòng ngủ mái thái ở nông thôn BT12375
Thiết kế nhà 1 tầng có 3 phòng ngủ mái thái ở nông thôn sở hữu vẻ ngoài bề thế với hệ mái thái ngói đỏ nổi bật, phối màu ngoại thất tươi sáng, lấy gam màu vàng làm gam màu chủ đạo.

Hệ công năng của ngôi nhà biệt thự 1 tầng 3 phòng ngủ bao gồm 1 phòng khách, 1 phòng thờ, 1 bếp ăn. Cách bố trí mặt bằng logic thể hiện sự hợp lý.

29. Biệt thự sân vườn 1 tầng phong cách cổ điển 8x13m đẹp lung linh BT1775
Biệt thự 1 tầng cổ điển 3 phòng ngủ tạo nhấn bằng chi tiết vòm cửa, nhẹ nhàng, thanh thoát mà lại vô cùng sang trọng.

Ngôi biệt thự sân vườn 1 tầng phong cách cổ điển có diện tích sàn 8x13m bao gồm 1 phòng khách, 1 bếp nấu, 1 phòng ăn và 3 phòng ngủ.

30. Biệt thự 1 tầng BT131965
Nét đẹp hài hòa với thiên nhiên, nét đẹp mộc mạc là điều không thể bỏ qua khi chiêm ngưỡng mẫu nhà 1 tầng 3 phòng ngủ BT131965.

Đặc biệt, ngôi biệt thự 1 tầng còn sở hữu một không gian sảnh bên vô cùng thoáng đãng, được trang trí đẹp mắt bằng dàn hoa.
31. Biệt thự 1 tầng BT121965
Ngôi nhà biệt thự 1 tầng 3 phòng ngủ sở hữu vẻ đẹp khang trang với thiết kế sân vườn, cổng và tường rào hoàn chỉnh.

Mặt bằng nội thất của nhà 1 tầng có 3 phòng ngủ được bố trí khá gọn gàng, hợp lý với hệ công năng đầy đủ, phù hợp với nhu cầu sử dụng thực tế của các gia đình hiện đại.

32. Biệt thự 1 tầng BT91965
Ngôi nhà mái thái 1 tầng 3 phòng ngủ không sa hoa, cầu kì,cũng không quá nổi bật, ấn tượng nhưng nó lại làm say lòng người bởi nét đẹp nhẹ nhàng, mộc mạc.


33. Biệt thự 1 tầng BT71965
Nhà 1 tầng 3 phòng ngủ gây ấn tượng với vẻ đẹp truyền thống.


34. Biệt thự 1 tầng BT51965
Hình khối kiến trúc cân đối, hiện đại là điểm cộng không thể bỏ qua của mẫu nhà 1 tầng có 3 phòng ngủ.


35. Biệt thự 1 tầng BT21965
Sử dụng chất liệu kính tận dụng nguồn ánh sáng và nắng nhiệt đới là giải pháp thích nghi khí hậu được áp dụng cho này mẫu thiết kế nhà 1 tầng 3 phòng ngủ này.



36. Biệt thự 1 tầng BT22945
Chi tiết hình vòm đặc trưng cho phong cách cổ điển chính là điểm sáng của thiết kế nhà 1 tầng 3 phòng ngủ đẹp.


37. Biệt thự Nhà vườn 1 tầng NV1503
Nhà vườn 1 tầng 3 phòng ngủ là sự kết hợp hài hòa giữa cuộc sống con người và môi trường xung quanh.

Hệ công năng tiện nghi và vô cùng hợp lý trong cách bố trí mặt bằng.

38. Biệt thự vườn 1 tầng phong cách châu âu 20x18m NV10415


39. Thiết kế nhà 1 tầng 120m2 với 3 phòng ngủ, kích thước mặt tiền 6x20m NV20415


Nhà 2 tầng 3 phòng ngủ
1. Biệt thự 2 tầng phong cách tân cổ điển 100m2 BT527046
Mẫu thiết kế nhà đẹp 2 tầng 3 phòng ngủ hiện cũng là lựa chọn của nhiều gia chủ bên cạnh những mẫu nhà 1. Chúng ta hãy cùng đi xem những mẫu thiết kế nhà biệt thự đẹp 2 tầng 3 phòng ngủ nào được ưa chuộng nhất nhé



2. Mẫu thiết kế nhà ở kết hợp nhà thờ 1-2 tầng BT127046



4. Thiết kế biệt thự 2 tầng hình chữ L 100m2, mặt tiền 7x14m BT219046



6. Mẫu nhà 2 tầng mái lệch 90m2 mặt tiền 9m BT128016



7. Biệt thự 2 tầng 2 mặt tiền nhỏ xinh 8x10m, diện tích 80m2 BT127016



8. Thiết kế nhà biệt thự 2 tầng đơn giản 80m2 mặt tiền 8m BT122016



10. Thiết kế nhà 2 tầng 70m2 hình chữ L phong cách tân cổ điển BT112125



11. Thiết kế nhà 2 tầng hình chữ L 60m2 đến 70m2 mặt tiền 7m tuyệt đẹp ở Thanh Hóa BT32125



12. Mẫu thiết kế biệt thự 80m2 2 tầng mặt tiền 7m phong cách tân cổ điển BT130115



13. Thiết kế nhà biệt thự 2 tầng diện tích 100m2 BT211255


14. Biệt thự 2 tầng BT355


15. Mẫu biệt thự 2 tầng BT2945



16. Mẫu biệt thự 2 tầng mái thái BT150320



17. Biệt thự 2 tầng BT11145



18. Thiết kế biệt thự 2 tầng BT11255

19. Nhà biệt thự 2 tầng BT281655

20. Mẫu biệt thự 2 tầng BT361655



Nhà 3 tầng 3 phòng ngủ
1. Mẫu thiết kế biệt thự phố 3 tầng 2 mặt tiền 4.5x13.5m diện tích 60m2 BT402066
Mẫu thiết kế nhà đẹp 3 tầng 3 phòng ngủ hiện cũng là lựa chọn của nhiều gia chủ bên cạnh những mẫu nhà 1, 2 tầng. Chúng ta hãy cùng đi xem những mẫu thiết kế nhà biệt thự đẹp 3 tầng 3 phòng ngủ nào đang hot nhất nhé



2. Biệt thự 3 tầng BT71755



3. Biệt thự 3 tầng BT61755


4. Mẫu biệt thự 3 tầng BT11415


Bạn muốn biết chi tiết hay có thắc cần tư vấn mời gọi vào hotline: 0988 030 680.








