Nhu cầu, mong muốn sở hữu một ngôi nhà đẹp, đáp ứng về cả công năng sử dụng, cũng như tính thẩm mỹ của mỗi gia đình khá dễ hiểu. Chính vì thế, ngay từ những công đoạn đầu tiên trước khi thi công nhà trọn gói thì công việc thuê thiết kế lại càng đóng vai trò quan trọng hơn cả. Vì thế, việc thuê thiết kế nhà như thế nào trở thành nỗi băn khoăn, lo lắng hàng đầu của mọi nhà khi chuẩn bị xây dựng. Việc thuê kiến trúc sư, hay các công ty thiết kế nhà ở tại các thành phố lớn như Hà Nội, Đà Nẵng, Sài Gòn khá đơn giản, khách hàng cũng có vô vàn sự lựa chọn. Tuy nhiên, đối với các tỉnh thành xa trung tâm, điều kiện vị trí địa lý, đường xá cũng khó khăn hơn. Dưới đây sẽ là những kinh nghiệm thuê thiết kế nhà cấp 4 tại Hải Phòng- Thành phố hoa phượng đỏ, và giới thiệu đến bạn một số mẫu thiết kế nhà cấp 4 tại Hải Phòng đẹp mà Kiến trúc Angcovat đã thực hiện trong thời gian vừa qua để những chủ đầu tư có nhu cầu thiết kế nhà tại đây có thể tham khảo và đưa ra cho mình sự lựa chọn đúng đắn nhất.
Những mẫu nhà cấp 4 đẹp luôn nhận được ưu tiên hàng đầu của nhiều chủ đầu tư- khách hàng nếu có dự định xây dựng nhà vườn, biệt thự. Bởi chẳng gì thích thú bằng việc được sống trong những ngôi nhà 1 tầng mái thái, có sân vườn, có cây xanh... kết hợp với nhau mang lại những không gian sống ưu ái, thoải mái nhất cho mọi người. Chính vì thế, nhu cầu thiết kế nhà cấp 4 tại Hải Phòng hiện nay cũng rất lớn. Những đặc trưng thường thấy của các mẫu thiết kế nhà 1 tầng đẹp này bao gồm:
+ Tính thẩm mỹ: Mẫu nhà 1 tầng đẹp chủ yếu được lợp bằng mái ngói, hoặc mái thái lan,..có sự đa dạng về màu sắc mái, chủng loại ngói... do đó tạo nên được vẻ đẹp đa dạng, ấn tượng cho ngôi nhà. Đặc biệt, các mẫu nhà 1 tầng cũng thường được xây dựng trên các khu đất vườn rộng, có cây xanh, tiểu cảnh, sân vườn rộng rãi.. từ đó tạo nên bố cục không gian thống nhất cho toàn bộ công trình. Điều này thực sự phù hợp và mang lại vẻ đẹp cho kiến trúc của công trình. Bạn cũng sẽ thích bởi vẻ đẹp thẩm mỹ của công trình.
+ Tính tiện lợi: Các mẫu thiết kế biệt thự chỉ có 1 tầng, công năng sử dụng được bố trí trên 1 mặt bằng ( 1 sàn) duy nhất, do đó, các công năng sử dụng hoàn toàn theo chiều ngang. Bạn cũng sẽ dễ dàng hơn trong việc vệ sinh, dọn dẹp. Đồng thời, việc sắp xếp đồ đạc, kê xếp các vật dụng trong gia đình cũng có sự đơn giản, dễ dàng và thuận tiện hơn cả. Vì thế, các mẫu thiết kế nhà cấp 4 tại Hải Phòng hay nhiều thiết kế nhà đẹp khác thực sự được ưu tiên bởi tính tiện lợi vốn có được thể hiện một cách rõ ràng như vậy!
Trong xây dựng các mẫu thiết kế nhà cấp 4 tại Hải Phòng, việc thiết kế kiến trúc hay bố trí công năng sử dụng sẽ phụ thuộc vào mong muốn và sở thích của chủ đầu tư, chứ không bị ép buộc theo bất cứ một quy chuẩn nhất định nào cả. Vì thế, kiến trúc sư cũng sẽ dễ dàng cho việc thiết kế và lên ý tưởng cho công trình. Để chuẩn bị thiết kế nhà cấp 4 tai Hải Phòng, bạn nên lưu ý đến những vấn đề sau để có thể có được một công trình nhà ở đẹp nhất!
Thứ nhất: Chuẩn bị ý tưởng thiết kế nhà cấp 4 tại Hải Phòng

Tỉnh Hải Phòng- Những lưu ý, kinh nghiệm khi thiết kế nhà cấp 4 tại Hải Phòng
Trước tiên, dù là thiết kế nhà tại hải phòng hay bất cứ đâu trên cả nước, bạn cũng cần phải chuẩn bị cho mình ý tưởng thiết kế, hoặc ít nhất là một đề bài rõ ràng để có thể yêu cầu đơn vị tư vấn thiết kế cho mình được ngôi nhà một cách tốt nhất. Và đương nhiên, nếu như mọi ý tưởng trong đầu bạn còn chưa rõ ràng, mông lung, thì bạn có thể chia sẻ điều này với kiến trúc sư. Họ sẽ là người đưa ra cho bạn những gợi ý về ý tưởng thiết kế để bạn có thể lựa chọn thiết kế nhà cấp 4 tại Hải Phòng cho gia đình mình. Ý tưởng bạn có thể tìm kiếm bằng cách:
+ Thứ nhất: Tìm kiếm: Công cụ dễ dàng nhất để bạn có thể tìm kiếm được mọi thứ đó là Internet. Bạn có thể tham khảo tìm kiếm trên google với các từ khóa tìm kiếm như: Các mẫu nhà đẹp, mẫu biệt thự đẹp, thiết kế nhà 1 tầng, biệt thự 1 tầng, mẫu nhà cấp 4,... Bạn có thể tìm kiếm các hình ảnh thực tế, hoặc các hình ảnh 3D các ngôi nhà 1 tầng được xây dựng. Bạn có thể tìm kiếm tùy thuộc theo phong cách kiến trúc, màu sắc, hay kiểu dáng để kiến trúc sư có thể dễ dàng hiểu và định hình được sở thích của bạn như thế nào để đưa ra tư vấn thiết kế, ý tưởng phù hợp. ( Bạn chỉ cần thích về mặt kiến trúc, hoặc công năng sử dụng thôi nhé... còn việc thiết kế sao cho phù hợp với nhu cầu của bạn sẽ là công việc của kiến trúc sư)
+ Thứ hai: Tham khảo từ thực tế xây dựng tại địa phương, người thân, gia đình, bạn bè: Bạn cũng có thể vô tình gặp gỡ và yêu thích một ngôi nhà nào đó trên đường đi và ghi lại hình ảnh của nó. Và bạn muốn ngôi nhà của mình cũng mang vẻ đẹp như thế, hoặc đặc biệt hơn...
+ Thứ ba: Bạn không cần phải suy nghĩ, lo lắng về những ý tưởng thiết kế nhà cấp 4 tại Hải Phòng nữa, mà cần một đơn vị tư vấn thiết kế nhà tại hải phòng, tư vấn và đưa ra giải pháp thiết kế, xây dựng phù hợp với nhu cầu của mình. Bạn chỉ cần bỏ ra một số tiền để trả tiền dịch vụ tư vấn thiết kế, và mọi yếu tố từ kết cấu, kĩ thuật, đến công năng, tính thẩm mỹ sẽ được bên đơn vị tư vấn thiết kế nhà ở đáp ứng và hoàn thiện cho gia đình mình một cách rõ ràng nhất.
Thứ hai: Các tiêu chí lựa chọn đơn vị tư vấn thiết kế nhà tại Hải Phòng
Hiện nay, những khách hàng tại thành phố cảng hoặc các đơn vị tư vấn thiết kế nhà tại hải phòng rất nhiều. Bạn có thể dễ dàng tìm được các đơn vị tư vấn thiết kế hoặc cá nhân có thể giúp bạn hoàn thiện mẫu thiết kế nhà cấp 4 tại Hải Phòng bạn như ý muốn. Đối với nhiều người, họ mong muốn tìm những đơn vị tư vấn thiết kế ở gần địa điểm xây dựng công trình. Có nghĩa là tìm các đơn vị tư vấn thiết kế nhà cấp 4 tại Hải Phòng, có trụ sở, văn phòng làm việc tại đây để dễ dàng cho việc gặp gỡ, trao đổi ý tưởng thiết kế... Tuy nhiên, đây thường là các đơn vị tư vấn nhỏ lẻ, vì thế đôi khi không đáp ứng được các yêu cầu về thẫm mỹ, kĩ thuật. Do đó, nhiều chủ đầu tư ở Hải Phòng mong muốn làm việc với các đơn vị uy tín hơn, chuyên nghiệp hơn... và tìm kiếm một trong những đơn vị tư vấn thiết kế uy tín tại Hà Nội là một hình thức được chú ý và nhiều người lựa chọn. Bởi việc lựa chon các công ty lớn tại Hà Nội và các thành phố lớn cũng giúp cho khách hàng yên tâm hơn về chất lượng hồ sơ, cũng như quy trình làm việc.
Một vài tiêu chí bạn cần đưa ra để lựa chọn đơn vị tư vấn thiết kế nhà tại Hải Phòng cho gia đình mình để bạn có thể đưa ra được lựa chọn đúng đắn nhất:
* Thứ nhất: Lưu ý đến khoảng giá thiết kế: Bạn đừng vội tin tưởng và đưa ra so sánh về mức giá thiết kế. Và đặc biệt cần phải tỉnh táo trước những cá nhân, đơn vị đưa ra mức chi phí thiết kế nhà cấp 4 tại Hải Phòng quá rẻ. Vì bạn biết đấy, giá cả của các đơn vị tư vấn thiết kế nhà đều có mức độ cạnh tranh. Giá thành cao, vừa phải, hay tương xứng với chất lượng hồ sơ mà bạn nhận được. Vì thế, bạn nên cẩn trọng với những lời mời, quảng cáo giá thiết kế nhà quá rẻ,... vì có thể bạn sẽ nhận lại được hồ sơ thiết kế không hề như ý muốn của mình đâu.
* Thứ hai: Lựa chọn những đơn vị tư vấn thiết kế nhà cấp 4 tại Hải Phòng có uy tín và kinh nghiệm: Bạn nên dựa vào số lượng các công trình thiết kế, thi công mà công ty, đơn vị đó đã thực hiện để đưa ra lựa chọn hợp lý cho mình. Lấy ví dụ dễ hiểu thế này, nếu như một công ty chuyên cung cấp dịch vụ thiết kế và triển khai hàng trăm công trình,.. đương nhiên sẽ hơn những đơn vị chỉ mới thực hiện được 1 vài công trình nhỏ lẻ. Về cả chuyên môn, kinh nghiệm, lẫn số lượng các công trình thiết kế đều thể hiện được năng lực của đơn vị tư vấn thiết kế đó.
* Thứ ba: Bạn có thể lựa chọn đơn vị tư vấn thiết kế nhà ở Hà Nội- Vì tại thành phố lớn, khẳ năng cạnh tranh cũng như năng lực chuyên môn của các doanh nghiệp cũng được khẳng định và lọc ra rõ ràng. Vì thế, để thiết kế nhà cấp 4 tại Hải Phòng thì việc lựa chọn một công ty tại Hà Nội là một trong những lựa chọn thông minh mà bạn có thể tham khảo để thiết kế cho không gian sống đáng mơ ước của gia đình mình!
Xem thêm: mẫu nhà 1 phòng khách 3 phòng ngủ
Thứ ba: Quy trình làm việc của Kiến trúc Angcovat khi khách hàng muốn thiết kế nhà cấp 4 tại Hải Phòng
Kiến trúc Angcovat may mắn là một trong những đơn vị tư vấn thiết kế được rất nhiều khách hàng tin tưởng và giao phó trách nhiệm thiết kế nhà cấp 4 tại Hải Phòng. Hiểu được những mong muốn, tin tưởng đó, chúng tôi ngày càng hoàn thiện hơn chất lượng sản phẩm, dịch vụ, hồ sơ thiết kế... và đưa ra cho khách hàng quy trình làm việc dễ dàng nhất để những khách hàng ở Hải Phòng hay bất cứ nơi nào trên cả nước đều có thể dễ dàng làm việc và có được ngôi nhà như ý muốn! Mong muốn của kiến trúc Angcovat là hoàn thiện được giấc mơ về ngôi nhà tương lai: sang trọng và đẳng cấp dành cho gia đình bạn!
Về quy trình làm việc, quý khách hàng có thể lựa chọn hình thức làm việc trực tiếp và hình thức thiết kế từ xa. Nếu có điều kiện, bạn có thể đến trực tiếp văn phòng thiết kế để gặp gỡ trực tiếp kiến trúc sư và được tư vấn miễn phí phương án thiết kế, bố cục công năng sử dụng. Còn nếu bạn khá bận rộn với công việc cá nhân thì có thể tham khảo quy trình làm việc từ xa của chúng tôi như sau:
* Bước 1: Khi chúng tôi nhận được thông tin có nhu cầu thiết kế nhà đẹp của khách hàng, chúng tôi tư vấn sơ bộ cho khách hàng qua điện thoại về nhu cầu công năng, phong cách kiến trúc, quy trình thiết kế nhà dân dụng.
* Bước 2: Khi khách hàng thống nhất sử dụng dịch vụ của chúng tôi, Chúng tôi sẽ gửi khách hàng hợp đồng thiết kế với số tiền tạm ứng là 3.000.000đ - 5.000.000đ (đối với các công trình nhà ở dân dụng diện tích nhỏ) để làm cơ sở thiết kế sơ bộ (Thiết kế sơ bộ bao gồm mặt bằng công năng các tầng).
* Bước 3: Khi khách hàng thống nhất với phương án thiết kế sơ bộ, 2 bên tiến hành Ký hợp đồng thiết kế tại vị trí xây dựng, Khách hàng tạm ứng 30% giá trị hợp đồng, đã bao gồm phần tạm ứng theo hợp đồng nguyên tắc.
* Bước 4: Khi hồ sơ kỹ thuật thi công hoàn thành 100% khối lượng, Khách hàng thanh toán 100% giá trị hợp đồng( Đã bao gồm chi phí tạm ứng), Chúng tôi sẽ gửi khách hàng hồ sơ bản vẽ thi công qua đường chuyển fax nhanh, hoặc khách hàng có thể nhận hồ sơ tại văn phòng kiến trúc angcovat.
Với quy trình làm việc như trên, mọi khách hàng có nhu cầu thiết kế nhà cấp 4 tại Hải Phòng hoặc bất cứ tỉnh thành nào trên cả nước đều được chúng tôi có cách làm việc linh động, áp dụng phù hợp với từng đối tượng khách hàng. Dưới đây là những mẫu thiết kế nhà cấp 4 tại Hải Phòng đẹp mà chúng tôi đã thực hiện: Bạn có thể tham khảo để có thêm ý tưởng thiết kế nhà ở cho gia đình mình:
Tư vấn các mẫu thiết kế nhà cấp 4 tại Hải Phòng rộng đẹp
Các mẫu thiết kế nhà cấp 4 tại Hải Phòng được chúng tôi thực hiện và hoàn thiện trong khoảng thời gian gần đây. Đây đều là những công trình đã, đang và sẽ xây dựng trên thực tế, có hồ sơ thiết kế gốc. Mọi thắc mắc liên quan đến các công trình này bạn có thể liên hệ trực tiếp với kiến trúc sư của chúng tôi để được tư vấn và giải đáp: Dưới đây là thông tin chi tiết sản phẩm:
Mẫu số 1: Thiết kế nhà cấp 4 tại Hải Phòng 1 tầng 200m2
1: Mã số: BT111078
2: Chủ đầu tư: Ông Trịnh Đức Thịnh
3: Địa điểm xây dựng: Huyện An Dương - Tỉnh Hải Phòng
4: Chi phí đầu tư dự kiến: 1.6 tỷ đồng
5: Mặt tiền: 18m
6: Chiều sâu: 16m
7: Diện tích: 200m2
8: Thông số công năng, diện tích: Sảnh trung tâm 24m2, Phòng khách 29m2, Phòng thờ 11.5m2, Nhà ăn: 17.3m2, Phòng ngủ 1: 19m2, WC1: 4.5m2, Phòng ngủ 2: 14.5m2, Phòng ngủ 3: 14.5m2

Hình ảnh phối cảnh: Mẫu thiết kế nhà cấp 4 tại Hải Phòng 200m2 mái thái rộng đẹp

Mặt bằng công năng sử dụng: Mẫu thiết kế nhà cấp 4 tại Hải Phòng đẹp có 3 phòng ngủ

Hồ sơ: Mẫu thiết kế nhà cấp 4 tại Hải Phòng được bàn giao và hoàn thiện vào tháng 6 năm 2018
Chi tiết công trình tham khảo tại: Mẫu biệt thự vuông
Mẫu số 2: Tư vấn mẫu thiết kế nhà cấp 4 tại Hải Phòng mái ngói thái lãng mạn vô cùng
1: Mã số: BT109127
2: Chủ đầu tư: Ông Lê Văn Thưởng
3: Địa điểm xây dựng: Bắc Sơn - An Dương - Hải Phòng
4: Chi phí đầu tư dự kiến: khoảng 900 triệu
5: Mặt tiền: 14m
6: Chiều sâu: 11.5m
7: Diện tích: 120m2/sàn
8: Thông số công năng, diện tích: Tiền sảnh 7.5m2, Phòng khách 18m2, Phòng bếp 15m2, Phòng thờ 14m2, Phòng ngủ 1: 14m2, Phòng ngủ 2: 12m2, Phòng ngủ 3: 18m2, WC1: 3.5m2, phòng tắm 1.6m2

Hình ảnh phối cảnh: Mẫu thiết kế nhà cấp 4 tại Hải Phòng diện tích 120m2 vô cùng lãng mạn

Mặt bằng bố trí công năng sử dụng; Mẫu thiết kế nhà cấp 4 tại Hải Phòng 1 tầng mái thái
Mẫu số 3: Giới thiệu mẫu thiết kế nhà cấp 4 tại Hải Phòng 1 tầng vô cùng ấn tượng và sang trọng
1: Mã số: BT101106
2: Chủ đầu tư: Ông Quyền
3: Địa điểm xây dựng: Hải Phòng
4: Chi phí đầu tư dự kiến: Khoảng 900 triệu
5: Mặt tiền: 11m
6: Chiều sâu: 14m
7: Diện tích: 110m2
8: Thông số công năng, diện tích: 1 phòng thờ 12m2, 1 sảnh chính 6,5m2, 1 phòng khách 25m2, 1 bếp ăn 14m2, phòng ngủ 1 17m2, phòng ngủ 2 14,5m2, phòng ngủ 3, vệ sinh 1 6m2, vệ sinh 2 2,2m2, vệ sinh 3 3,4m2, 1 tiền sảnh, 1 hành lang phụ 19,7m2.

Phối cảnh 3D: Mẫu thiết kế nhà cấp 4 tại Hải Phòng 1 tầng diện tích 110m2 mái ngói thái

Mặt bằng công năng sử dụng; Mẫu thiết kế nhà cấp 4 tại Hải Phòng 1 tầng đơn giản mà đẹp
Xem thêm: Thiết kế nhà 1 tầng
Mẫu số 5: Vẻ đẹp mộc mạc của mẫu thiết kế nhà cấp 4 tại Hải Phòng 1 tầng đơn giản
1: Mã số: BT11885
2: Chủ đầu tư: Chị Hà
3: Địa điểm xây dựng: Hải Phòng
4: Chi phí đầu tư dự kiến: Khoảng 1.1 tỷ đồng
5: Mặt tiền: 10m
6: Chiều sâu: 15m
7: Diện tích: 150m2
8: Thông số công năng, diện tích: 1Phòng khách + phòng thờ , 3 Phòng ngủ, Phòng bếp + Phòng ăn

Phối cảnh 3D: Mẫu thiết kế nhà cấp 4 tại Hải Phòng 1 tầng mái thái đẹp

Mặt bằng : bố trí công năng sử dụng cho mẫu thiết kế nhà cấp 4 tại Hải Phòng đơn giản diện tích 150m2
Mẫu số 6:Ngắm mẫu thiết kế nhà cấp 4 tại Hải Phòng 1 tầng bề thế
1: Mã số: BT126115
2: Chủ đầu tư: Ông Tuyến
3: Địa điểm xây dựng: Thủy Nguyên- Hải Phòng
4: Chi phí đầu tư dự kiến: Khoảng 900 triệu
5: Mặt tiền: 12m
6: Chiều sâu: 10m
7: Diện tích: 120m2
8: Thông số công năng, diện tích: 1 phòng khách, 1 phòng bếp ăn, 1 phòng thờ, 3 phòng ngủ, 2 phòng vệ sinh - diện tích : 120m2

Phối cảnh 3D: Mẫu thiết kế nhà cấp 4 tại Hải Phòng 1 tầng 120m2 đẹp

Mặt bằng tầng 1: Tư vấn cách bố trí công năng sử dụng cho mẫu thiết kế nhà cấp 4 tại Hải Phòng 1 tầng đẹp
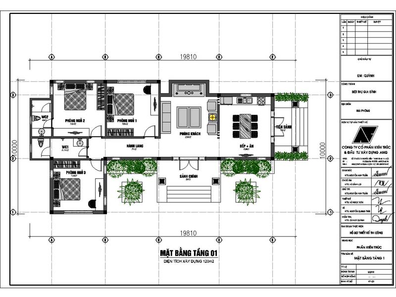
Mẫu 7: Giới thiệu mẫu thiết kế nhà cấp 4 tại Hải Phòng 1 tầng hình chữ L diện tích 120m2
1: Mã số: BT126096
2: Chủ đầu tư: Bà Quỳnh
3: Địa điểm xây dựng: Hải Phòng
4: Chi phí đầu tư dự kiến:Khoảng 900 triệu
5: Mặt tiền: 10m
6: Chiều sâu: 17m
7: Diện tích: 120m2
8: Thông số công năng, diện tích: 1 sảnh chính 9m, 1 bếp ăn 19m , 1 phòng khách + thờ23m , 1 tiền sảnhchính: 9m, phòng ngủ 1 : 15m2 phòng ngủ 2 : 15m2, phòng ngủ 3: 15m2.

Phối cảnh: Mẫu thiết kế nhà cấp 4 tại Hải Phòng đơn giản mà đẹp

Mặt bằng: Bố trí công năng sử dụng cho mẫu thiết kế nhà cấp 4 tại Hải Phòng đẹp vô cùng
Kết luận: Về việc thiết kế nhà cấp 4 tại Hải Phòng
Như vậy, Nếu bạn đang và sắp có nhu cầu thiết kế nhà cấp 4 tại Hải Phòng, chúng tôi hi vọng một vài kinh nghiệm, chia sẻ trên đây sẽ giúp bạn hình dụng được rõ hơn quá trình làm việc, đồng thời có thêm lựa chọn xây dựng và thiết kế nhà ở cho gia đình mình.
Mọi yêu cầu tư vấn thiết kế nhà ở, biệt thự trên khắp cả nước, mời bạn liên hệ trực tiếp với kiến trúc sư của chúng tôi để được tư vấn và giải đáp!
Liên hê: 0988 030 680
Xem thêm: Cách thi công tấm lợp thông minh








