Dựa trên nhu cầu sử dụng của đông đảo người dân hiện nay, việc thiết kế và xây dựng những công trình nhà ở, biệt thự 3 tầng 6 phòng ngủ ngày càng trở nên phổ biến và được nhiều người quan tâm. Tìm hiểu về những đặc trưng của các mẫu biệt thự 3 tầng 6 phòng ngủ này để có được phương án thiết kế phù hợp nhất với nhu cầu và mong muốn của gia đình, bản thân.
Nhu cầu thiết kế biệt thự 3 tầng 6 phòng ngủ đẹp
Kiến trúc Angcovat là một trong những đơn vị tư vấn thiết kế nhà ở, biệt thự được nhiều khách hàng tin tưởng và sử dụng. Tìm đến với chúng tôi, khách hàng không chỉ có mong muốn có được hồ sơ thiết kế chính xác, hoàn thiện và đúng kĩ thuật, mà còn đưa ra cho khách hàng được những tư vấn, giải quyết được những khúc mắc, khó khăn của khách hàng một cách chính xác và hoàn thiện nhất. Do đó, mà hệ thống hồ sơ hoàn chỉnh, kiến trúc của công trình ra sao...mà chúng tôi thực hiện luôn được chủ đầu tư đánh giá cao. Thời gian, cũng như những kinh nghiệm mà anh em kiến trúc sư Angcovat trải qua cũng đủ minh chứng cho năng lực, khả năng thiết kế của chúng tôi. Những trái ngọt thu về chính là những thành quả đáng trân trọng mà khách hàng dành cho, là những công trình được hoàn thiện thiết kế từ ý tưởng cho đến thực tế trên khắp cả nước. Là những yêu cầu tư vấn thiết kế, email được gửi về rất nhiều mong muốn kiến trúc sư tư vấn và chia sẻ kinh nghiệm... Đó thực sự là những tình cảm thiện chí, quý báu và chân thành mà khách hàng dành cho anh em chúng tôi- đó cũng trở thành những niềm vui, thú vui nghề nghiệp mà không phải rằng ai cũng may mắn có được.
Trong rất nhiều những yêu cầu tư vấn thiết kế gửi về, chúng tôi nhận được kha khá các thư yêu cầu tư vấn thiết kế nhà biệt thự 3 tầng nói chung và biệt thự 3 tầng 6 phòng ngủ nói riêng. Một số yêu cầu cơ bản như sau:
+ Yêu cầu tư vấn thiết kế của anh Hoàng Anh ( Long Biên - Hà Nội): " Chào kiến trúc sư, tôi có mảnh đất xây dựng ở phố rộng 200m2, kích thước 10x20m, 1 mặt tiền giáp đường lớn. Tôi đang có nhu cầu xây dựng biệt thự 3 tầng, diện tích khoảng 150m2/sàn, kiến trúc tân cổ điển, có từ 5- 6 phòng ngủ... tôi cần được kiến trúc sư tư vấn kĩ hơn cho tôi về kiến trúc, cũng như cách thức bố trí mặt bằng công năng sử dụng ra sao để phù hợp với yêu cầu của gia đình. Mong kiến trúc sư tư vấn giúp gia đình tôi, chân thành cảm ơn"
+ Yêu cầu tư vấn thiết kế biệt thự của chị Hương ( Vĩnh Phúc): " Tôi có tham khảo rất nhiều thiết kế trên website của công ty. Đây đều là những thiết kế đẹp và phù hợp thực tế của nhiều gia đình. Tôi khá ưng ý với những sản phẩm này nên mong được kiến trúc sư tư vấn phương án thiết kế cho gia đình tôi. Dựa theo kiến trúc của mẫu nhà biệt thự 3 tầng đơn giản, tôi muốn thiết kế ngôi biệt thự 3 tầng 6 phòng ngủ với diện tích khoảng 120m2/sàn. Nhờ kiến trúc sư tư vấn và đưa ra phương án thiết kế phù hợp vơi gia đình tôi, chân trọng cảm ơn!"
Đây chỉ là 2 trong số rất nhiều những yêu cầu tư vấn thiết kế mà chúng tôi được với mong muốn tư vấn thiết kế các mẫu biêt thự đẹp 3 tầng 6 phòng ngủ. Ngoài ra, chúng tôi còn tiếp nhận được rất nhiều những yêu cầu tư vấn thiết kế khác. Mỗi yêu cầu khác nhau, từ những chủ đầu tư khác nhau, là những câu chuyện kiến trúc khác nhau mà chúng tôi dc trải nghiệm.
Đặc trưng của các mẫu thiết kế biệt thự 3 tầng 6 phòng ngủ đẹp
Các mẫu thiết kế biệt thự 3 tầng 6 phòng ngủ có thể bao gồm những đặc trưng như sau:
+ Thứ nhất: Biệt thự 3 tầng 6 phòng ngủ thường có diện tích và quy mô tương đối lớn. Bạn tưởng tượng nhé, với nhu cầu sử dụng cho 6 phòng ngủ, các phòng khách, bếp, vệ sinh, phòng sinh hoạt chung... thì diện tích sàn sử dụng của ngôi nhà cần bao nhiêu? Đương nhiên, với mỗi yêu cầu khác nhau, thì diện tích và quy mô sẽ có sự thay đổi khác nhau... Nhưng trên thực tế, vẫn có thể dễ dàng thấy được quy mô của các công trình nhà biệt thự 3 tầng 6 phòng ngủ này thực sự khá lớn. Diện tích sử dụng tối thiểu cho 1 sàn cũng cần khoảng 100m2. Và đối với một mẫu thiết kế nhà biệt thự 3 tầng 6 phòng ngủ như vậy thì quy mô diện tích như trên là tương đối lớn.
+ Thứ hai: Biệt thự 3 tầng 6 phòng ngủ với chi phí xây dựng cao. Với quy mô công trình lớn như vậy, đương nhiên, chi phí hoàn thiện của công trình cũng sẽ cao hơn hẳn. Nếu như bạn đang có nhu cầu thiết kế và thi công các mẫu biệt thự 3 tầng 6 phòng ngủ thì cũng cần phải chuẩn bị thật kĩ những khoản chi phí đầu tư để tránh những hiện tượng chi phí xây dựng bị phát sinh.
+ Thứ ba: Biệt thự 3 tầng 6 phòng ngủ có thể mang nhiều phong cách kiến trúc khác nhau: Bạn có thể tùy thuộc lựa chọn phong cách kiến trúc cổ điển, tân cổ điển, hay hiện đại cho mẫu thiết kế biệt thự 3 tầng của gia đình mình. Những ý tưởng thiết kế và thi công công trình có thể được hoàn thiện và mang lại những sự lựa chọn hợp lý nhất dành cho mọi chủ đầu tư.
Giới thiệu một số mẫu biệt thự 3 tầng 6 phòng ngủ do KTS Angcovat thiết kế
Mẫu số 1: Biệt thự 3 tầng 6 phòng ngủ phong cách cổ điển
Mẫu biệt thự 3 tầng 6 phòng ngủ mang phong cách cổ điển, mẫu thiết kế lâu đài đẹp nguy nga và vô cùng tráng lệ, thể hiện được sự tinh tế và ấn tượng vô cùng. Đặc biệt, đối với kiến trúc cổ điển, việc xác định tỷ lệ, hình khối kiến trúc hay những chi tiết trang trí cầu kì cho công trình mang phong cách này góp phần tạo nên vẻ đẹp tổng thể đầy ấn tượng và sang trọng cho nó! Một vài thông tin về mẫu thiết kế biệt thự 3 tầng 6 phòng ngủ này bạn cần biết như sau:

Mẫu 1: Biệt thự 3 tầng 6 phòng ngủ phong cách cổ điển
1: Mẫu biệt thự: BT311058
2: Chủ đầu tư: Anh Tỉnh
3: Địa điểm xây dựng: Khoái Châu - Hưng Yên
4: Mặt tiền: 13m
5: Chiều sâu: 17m
6: Kinh phí đầu tư dự kiến: 7 tỷ đồng
7: Diện tích xây dựng: 200m2/sàn
8: Thông số công năng mẫu biệt thự 3 tầng 6 phòng ngủ bao gồm:
+) Tầng 1: Phòng khách, phòng ngủ 1(22,5m2), phòng ngủ 2 (16,5m2), phòng bếp + ăn (22,5m2), phòng khách (43,8m2), WC 1 (6,5m2), WC 2(5m2)
+) Tầng 2: Phòng ngủ 3 (22,5m2), phòng ngủ 4 (16,5m2), phòng ngủ 5 (16,5m2), sảnh tầng (7,5m2), phòng thờ (24m2), WC 3 (6,5m2), WC 4 (5m2), WC 5 (5m2), phòng sinh hoạt chung (26m2).
+) Tầng 3: Phòng ngủ 6 (phòng ngủ đôi – 30m2 ), sảnh tầng (8m2), phòng giải trí (22,8m2), sân phơi (20m2), sân chơi (23m2), WC 6 (6,5m2)
Mẫu biệt thự 3 tầng 6 phòng ngủ mang phong cách cổ điển thể hiện được rõ ràng những đặc trưng của phong cách kiến trúc này. Bạn cũng có thể thấy rằng, các chi tiết trang trí gờ, phào chỉ ngoại thất của kiến trúc cổ điển thực sự mang những dấu ấn mạnh mẽ và cuồng nhiệt. Sự cầu kì, công phu trong từng chi tiết tinh tế, mềm mại ấy khiến cho các mẫu thiết kế biệt thự 3 tầng cổ điển luôn có vị trí vững chắc trong lòng mọi người. Những công trình kiến trúc mang phong cách cổ điển như cầu nối giữa quá khứ và hiện tại, thể hiện được nét đẹp và những giá trị linh thiêng, cao quý mà nó mang đến cho không gian sống.

Mặt bằng tầng 1: Mẫu thiết kế biệt thự 3 tầng 6 phòng ngủ
Ở tầng 1 của mẫu thiết kế biệt thự 3 tầng 6 phòng ngủ, tầng 1 được bố trí 2 phòng ngủ. Ở trung tâm là cầu thang xoắn, 2 phòng ngủ được thiết kế ở 2 bên làm tăng giá trị sử dụng cũng như sự tiện nghi, bố trí hợp lý cho tổng thể không gian nội thất trong ngôi nhà.

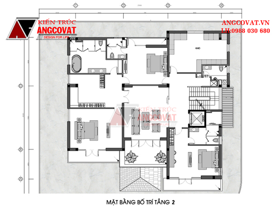
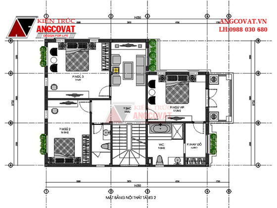
Mặt bằng tầng 2: Tư vấn thiết kế biệt thự 3 tầng 6 phòng ngủ đẹp
Mặt bằng công năng tầng 2 được thiết kế như sau: Phòng ngủ 3 (22,5m2), phòng ngủ 4 (16,5m2), phòng ngủ 5 (16,5m2), sảnh tầng (7,5m2), phòng thờ (24m2), WC 3 (6,5m2), WC 4 (5m2), WC 5 (5m2), phòng sinh hoạt chung (26m2). Việc bố trí 3 phòng ngủ ở toàn bộ khu vực tầng 2 như thế này làm tăng thêm hiệu quả sử dụng và không gian sống tiện ích cho công trình. Bạn cũng có thể nhìn thấy được ngay phía cầu thang đối diện đi lên là phòng sinh hoạt chung. Căn phòng này được thiết kế mở, có chức năng cũng như vai trò kết nối mạnh mẽ các không gian sống khác cho gia đình. Đặc biệt, khu vực phòng thờ được đặt ở phía mặt tiền nhà, phù hợp với hướng, cũng như chức năng chính của không gian kiến trúc công trình.

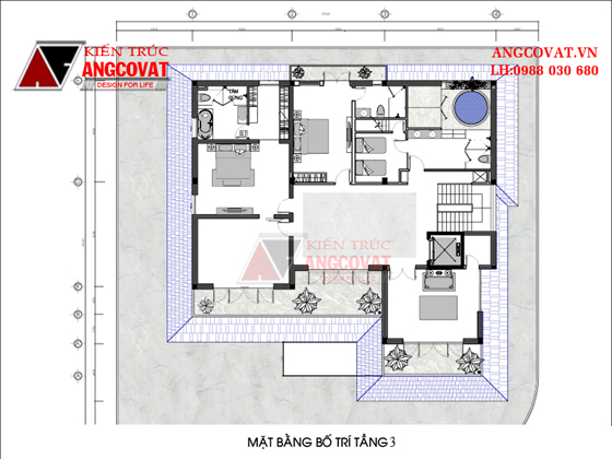
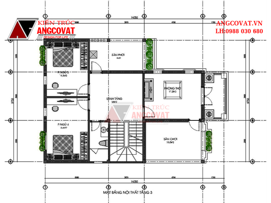
Mặt bằng tầng 3: Mẫu thiết kế biệt thự 3 tầng 6 phòng ngủ sang trọng
Khu vực tầng 3 của công trình được bố trí 1 phòng ngủ. Phòng ngủ này là phòng ngủ đôi, với giường kép được bố trí nhằm phục vụ cho khách khứa của gia đình khi đến thăm. Việc bố trí 1 phòng ngủ cho khách hiện nay ở các công trình nhà ở, biệt thự 1 tầng, biệt thự 2 tầng, 3 tầng hay cả nhà phố đang được quan tâm. Vì nó thể hiện được sự chu đáo, quan tâm của chủ nhà đối với khách của gia đình. Nó cũng sẽ đánh giá được thái độ sống, cũng như sự tích cực, hiếu khách của gia đình, để lại thiện cảm tốt đẹp đối với những vị khách đến với gia đình bạn.
Mẫu số 2: Tư vấn thiết kế biệt thự 3 tầng 6 phòng ngủ đẹp

Hình ảnh phối cảnh: Mẫu thiết kế biệt thự 3 tầng 6 phòng ngủ mang phong cách tân cổ điển
Thông tin cơ bản về mẫu thiết kế biệt thự 3 tầng 6 phòng ngủ dưới đây như sau:
1: Mã số biệt thự: BT117047
2: Chủ đầu tư: Chú Vương - ( ở Phúc Thọ - Hà Nội)
3; Mặt tiền: 15m
4: Chiều sâu: 13.5m
5: Chi phí đầu tư dự kiến: 3 tỷ đồng
6: Diện tích xây dựng: 150m2/sàn
7: Thông số công năng sử dụng:
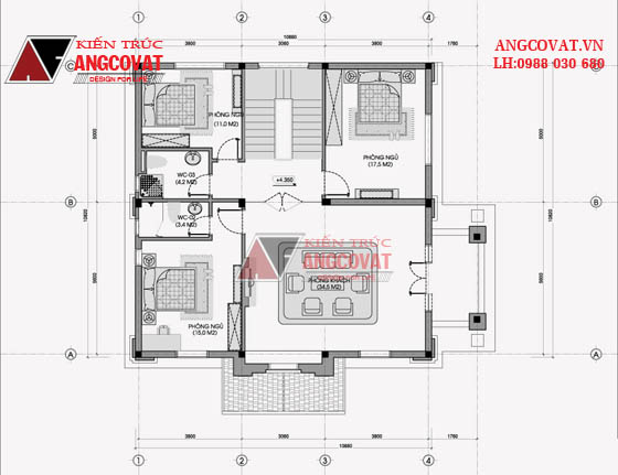
- Tầng 1: phòng khách 33.5m2, phòng bếp ăn 21.8m2, phòng ngủ 1: 12m2, phòng ngủ 2: 19m2, wc 11.1m2, tiền sảnh 5.5m
- Tầng 2: phòng ngủ 3: 17m2, phòng ngủ 4: 16m2, phòng ngủ 5: 17m2, phòng ngủ 6: 18m2, phòng sinh hoạt chung, wc: 12.2m2
- Tầng 3: Phòng tập gym 15.7m2, phòng giải trí 16.6m2, khu sân chơi 40m2
Với phong cách kiến trúc tân cổ điển, mẫu biệt thự 3 tầng 6 phòng ngủ thể hiện được rõ ràng những đặc trưng về mặt kiến trúc, hình khối và những chi tiết trang trí hợp tình, hợp lý. Hệ thống cột tân cổ điển được đặt ở mặt tiền công trình, làm tăng thêm giá trị cũng như độ bề thế, sang trọng cho không gian ngoại thất của công trình đó. Đặc biệt, bạn cũng có thể sử dụng được các chi tiết kiến trúc, mang đậm đặc trưng của tân cổ điển như thế này để tăng thêm giá trị cũng như không gian sống đẳng cấp của gia đình mình.

Mặt bằng tầng 1: Bố trí công năng sử dụng mẫu biệt thự 3 tầng 6 phòng ngủ đẹp
Được xây dựng trên tổng diện tích sàn 150m2, mẫu biệt thự 3 tầng 6 phòng ngủ này được đặt 2 phòng ngủ ở tầng 1. Vi trí 2 phòng ngủ được đặt trong góc của cầu thang, khu vực dễ dàng cho việc đi lại và di chuyển. Đồng thời, 2 phòng ngủ ở tầng 1 cũng là không gian khá rộng, thuận lợi cho việc đi lại và di chuyển trong ngôi nhà. Diện tích của phòng ngủ ở tầng 1 không quá lớn. Bạn có thể sử dụng 1 phòng ngủ dành cho người giúp việc, thuận tiện cho công việc sinh hoạt cũng như di chuyển đi lại trong nhà.

Mặt bằng tầng 2: Mẫu thiết kế biệt thự 3 tầng 6 phòng ngủ
Công năng sử dụng của tầng 2 mẫu biệt thự 3 tầng 6 phòng ngủ được đặt 4 phòng ngủ ở tầng 2, Các phòng ngủ đều có diện tích sử dụng rộng rãi, các phòng ngủ diện tích trải dài từ 16- 18m2, nên cần thiết cho việc sử dụng. Toàn bộ khu vực tầng 2 có 1 phòng vệ sinh chung cho việc sử dụng, phòng vệ sinh khá rộng rãi đặt cạnh cầu thang, vị trí phòng vệ sinh tầng 2 thẳng với phòng vệ sinh ở tầng 1, nên dễ dàng cho việc thi công và phù hợp với các yếu tố kĩ thuật, đường nước, đường ống cũng dễ dàng hơn.

Mặt bằng tầng 3: Tư vấn thiết kế biệt thự 3 tầng 6 phòng ngủ sang trọng
Mẫu số 2: Ngắm mẫu thiết kế biệt thự 3 tầng 6 phòng ngủ mái ngói đơn giản đẹp
1: Mã số biệt thự: BT505126
2: Chủ đầu tư: Anh Đạt
3: Địa điểm xây dựng: Bắc Ninh
4: Mặt tiền: 10m
5: Chiều sâu: 15m
6: Chi phí đầu tư dự kiến: Khoảng 1.8- 2 tỷ
7: Diện tích: 120m2
8: Thông số công năng sử dụng mẫu biệt thự 3 tầng 6 phòng ngủ
+ Tầng 1: Phòng Khách (31m2), Sảnh chính (7.5m2), sảnh trung tâm (10m2), Sảnh phụ (7m2), Bếp + ăn ( 25m2), Phòng ngủ 1 (15m2)
+ Tầng 2: SHC (18m2), Phòng ngủ vip (17,5m2- Khu vệ sinh( 9.5m2) - Thay đồ (5.5m2), PHòng ngủ 2 ( 16,5m2), Phòng ngủ 3 ( 21m2)
+ Tầng 3: Sảnh tầng (16m2),Phòng thờ (17.5m2), Sân chơi ( 15.5m2), Sân phơi (11m2), Phòng ngủ 2( 16.2m2), Phòng ngủ 3( 21m2)

Hình ảnh phối cảnh: Mẫu biệt thự 3 tầng 6 phòng ngủ mái thái đẹp
Mẫu biệt thự 3 tầng 6 phòng ngủ mang phong cách đơn giản, mái ngói thái, với màu sắc nâu trầm ấn tượng và dễ chịu, khiến cho ngoại thât của công trình trở nên thu hút và độc đáo hơn. Hình khối ngôi nhà rõ ràng, trầm ấm và đầy thu hút tạo nên cho ngoại thất sự tinh tế. Sức hấp dẫn từ vật liệu, màu sắc cũng giúp cho công trình có điểm nhấn hơn. Hệ thống phào chỉ chân tường, hệ thống cột... của ngôi nhà tăng thêm giá trị và tính thẩm mỹ cho thiết kế. Các mẫu biệt thự 3 tầng mái ngói luôn tạo được sức hút mạnh mẽ đối với nhiều chủ đầu tư, từ kiến trúc, công năng cho đến sự gần gũi, mộc mạc mà nó mang đến được cho công trình.

Mặt bằng tầng 1:Mẫu thiết kế biệt thự 3 tầng 6 phòng ngủ
Công năng sử dụng tầng 1 được bố trí 1 phòng ngủ, các phòng chức năng còn lại được thiết kế mang đầy đủ tiện nghi, và sự rộng rãi, đơn giản cần thiết. Đồng thời, với diện tích sử dụng 120m2/sàn như thế này, sự thông thoáng, rộng rãi trong ngôi nhà được ưu ái lên hàng đầu. Phòng ngủ tuy chỉ chiếm diện tích nhỏ nhắn, song cũng đảm bảo được các yếu tố thoáng đãng, rộng rãi đối với toàn bộ không gian ở đây.

Mặt bằng tầng 2: Mẫu thiết kế biệt thự 3 tầng 6 phòng ngủ và cách bố trí công năng sử dụng hợp lý
Diện tích sàn rộng hơn so với tầng 1, do đó, ở không gian tầng 2, kiến trúc sư cũng dễ dàng hơn trong việc bố trí các không gian chức năng, các phòng ốc sử dụng vì thế cũng có diện tích rộng rãi và thoáng đãng hơn. Từ khu vực cầu thang, bạn có thể thấy được các phòng được bố trí dồn về phía trung tâm của tầng. Không gian của phòng giải trí chính là yếu tố tiếp xúc và kết nối với xung quanh, làm tăng thêm giá trị và sự thoải mái, thuận tiện cho việc sử dụng của gia đình. 3 phòng ngủ được đặt ở tầng 2 cũng phù hợp với cách thức bố trí và thói quen sinh hoạt của nhiều gia đình hiện nay.

Mặt bằng tầng 3: Mẫu thiết kế biệt thự 3 tầng 6 phòng ngủ đẹp hiện đại
Mẫu số 3: Ngắm mẫu thiết kế biệt thự 3 tầng 6 phòng ngủ mang phong cách tân cổ điển

Hình ảnh phối cảnh: Mẫu nhà biệt thự 3 tầng 6 phòng ngủ tân cổ điển đẹp
1: Mã số biệt thự: BT22125
2: Chủ đầu tư: Ông Thao
3: Địa điểm xây dựng: Phúc Thọ - Hà Nội
4: Mặt tiền: 10m
5: Chiều sâu: 14m
6: Chi phí đầu tư xây dựng: Khoảng 3 tỷ
7: Thông số diện tích, công năng sử dụng:
+ Diện tích sử dụng: 120m2/sàn
- Tầng 1: 1 Phòng khách, 1 phòng ngủ, 1 phòng bếp ăn, 1 vệ sinh chung.
- Tầng 2: 1 Phòng sinh hoạt chung, 2 phòng ngủ, 1 vệ sinh chung.
- Tầng 3: 3 phòng ngủ, 1 vệ sinh chung.
- Tầng tum: 1 phòng thờ, sân chơi, kho, giặt.
Với kiến trúc tân cổ điển, bạn có thể dễ dàng nhận thấy được hình khối kiến trúc được bố trí một cách khoa học và hiệu quả. Mặt tiền đươc xử lý khối kiến trúc khá thông minh và tinh tế, khi có khối đua ra, khối lại thụt vào để tăng diện thiết kế cho mặt tiền kiến trúc của công trình. Đồng thời, đối với không gian mặt tiền tân cổ điển, việc sử dụng hệ thống cột trụ ngoại thất làm tăng thêm giá trị thẩm mỹ, tính hoành tráng, bề thế và sang trọng cho tổng thể không gian mặt tiền công trình.

Mặt bằng tầng 1: Mẫu thiết kế biệt thự 3 tầng 6 phòng ngủ

Bố trí mặt bằng tầng 2 của mẫu thiết kế biệt thự 3 tầng 6 phòng ngủ đẹp

Mặt bằng tầng 3: Ngắm cách bố trí mặt bằng công năng mẫu biệt thự 3 tầng 6 phòng ngủ đẹp

Mặt bằng áp mái: mẫu thiết kế biệt thự 3 tầng 6 phòng ngủ đẹp
Mẫu số 4: Tư vấn thiết kế biệt thự 3 tầng 6 phòng ngủ mang phong cách tân cổ điển
1: Mã số biệt thự: BT42125
2: Mặt tiền: 16m
3: Chiều sâu: 16m
4: Chi phí đầu tư dự kiến: 5- 5.5 tỷ
5: Diện tích sàn: 300m2/sàn
6: Thông số diện tích, công năng sử dụng:
- Tầng 1: 1 Phòng khách, 2 phòng ngủ,1 phòng ngủ giúp việc, 1 vệ sinh chung - Diện tích tầng 1: 300m2 (350m2 gồm cả sảnh)
- Tầng 2: 3 Phòng ngủ, 1 phòng karaoke, 1 vệ sinh chung - Diện tích tầng 2: 300m2
- Tầng 3: 2 Phòng ngủ, 1 phòng thờ, 2 khu sân chơi, 1 phòng giải trí- Diện tích tầng 2: 300m2

Hình ảnh phối cảnh: Mẫu biệt thự 3 tầng 6 phòng ngủ mang phong cách tân cổ điển đẹp
Hình ảnh phối cảnh kiến trúc mẫu biệt thự 3 tầng 6 phòng ngủ mang phong cách tân cổ điển. Diện tích sử dụng của ngôi nhà rộng 300m2 sàn, tổng diện tích khoảng 900m2/sàn nên cách thức bố trí công năng sử dụng của ngôi nhà cũng khá đặc biệt và vô cùng rộng rãi. Hình khối vuông vắn của công trình, kết hợp cùng với các chi tiết phào chỉ trang trí, cửa sổ kính, lan can ban công hoa sắt làm tăng thêm giá trị thẩm mỹ và không gian ngoại thất kiến trúc của công trình.

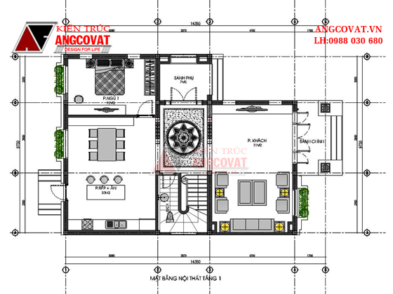
Mặt bằng tầng 1: Mẫu biệt thự 3 tầng 6 phòng ngủ phong cách tân cổ điển
2 phòng ngủ được ưu ái đặt ở vị trí của tầng 1. Điều này thể hiện được sự sang trọng và đầy tinh tế của không gian kiến trúc ngôi nhà. Diện tích sử dụng của 2 phòng ngủ cũng thoáng đãng, đủ thêm các không gian sử dụng cho ngôi nhà, khiến các không gian sử dụng trở nên rộng rãi, hấp dẫn hơn cả.
Khu vực sảnh chính của công trình với diện tích sử dụng rộng, không gian sử dụng của phòng khách rộng rãi làm tăng thêm hiệu quả sử dụng của công trình.

Mặt bằng tầng 2: Mẫu thiết kế biệt thự 3 tầng 6 phòng ngủ đẹp

Mặt bằng tầng 3: Bố trí công năng sử dụng của mẫu biệt thự 3 tầng 6 phòng ngủ đẹp
Mẫu số 5: Giới thiệu mẫu biệt thự 3 tầng 6 phòng ngủ hiện đại mái thái đẹp

Hình ảnh phối cảnh: Mẫu biệt thự 3 tầng 6 phòng ngủ mang phong cách tân cổ điển
Ngôi nhà biệt thự 3 tầng 6 phòng ngủ mang phong cách kiến trúc hiện đại, được hoàn thiện với hình khối kiến trúc đơn giản, tinh tế, cùng với hệ thống vật liệu sang trọng, loại vật liệu kính được sử dụng phổ biến trong nhiều công trình. Đồng thời, vật liệu ốp tường ngoại thất bằng gỗ, kính kết hợp với nhau, tăng thêm giá trị thẩm mỹ và không gian kiến trúc sử dụng cho công trình. Hệ thống mái ngói thái đua ra ngoài mạnh mẽ và đầy ấn tượng, tạo nên cho ngôi nhà sự sang trọng, mới mẻ và đầy thu hút.

Cách bốt trí mặt bằng công năng sử dụng mẫu biệt thự 3 tầng 6 phòng ngủ hiện đại

Bố trí mặt bằng công năng sử dụng tầng 2: Mẫu thiết kế biệt thự 3 tầng 6 phòng ngủ hiện đại

Mặt bằng tầng 3: Mẫu thiết kế biệt thự 3 tầng 6 phòng ngủ sang trọng
Mẫu số 6: Tư vấn thiết kế nhà biệt thự 3 tầng 6 phòng ngủ mang phong cách cổ điển đẹp
Một vài thông tin cơ bản về mẫu thiết kế biệt thự 3 tầng 6 phòng ngủ như sau:
1: Mã số biệt thự: BT11265
2: Chủ đầu tư: ông Hạnh
3: Địa điểm xây dựng: Quảng Ninh
4: Mặt tiền: 10m
5: Chiều sâu: 12m
6: Chi phí đầu tư dự kiến: 3.5 tỷ đồng
7: Thông số diện tích, công năng sử dụng;
- Tầng hầm : Gara ô tô, Hầm rượu - Diện tích tầng hầm : 100m2
- Tầng 1: 1 Phòng khách, 1 phòng bếp ăn, 1 vệ sinh chung,- Diện tích tầng 1: 120m2
- Tầng 2: 1 Phòng sinh hoạt chung, 3 phòng ngủ - Diện tích tầng 2: 110m2
- Tầng 3: 3 Phòng ngủ, 1 phòng thư, 1 phòng trà - Diện tích tầng 3: 110m2

Phối cảnh: Mẫu biệt thự 3 tầng 6 phòng ngủ cổ điển đẹp
Thiết kế mang đậm phong cách cổ điển pháp, mẫu biệt thự 3 tầng kiểu pháp có tầng hầm với kiến trúc sang trọng, cầu kì và vô cùng tỉ mỷ. Các chi tiết kiến trúc phào chỉ tinh tế, cùng với màu sắc công trình vô cùng tinh tế và hấp dẫn làm tăng thêm giá trị thẩm mỹ và độ tin cậy, bề thế cho ngoại thất của ngôi nhà. Hệ thống mái thái, thiết kế cụp làm tăng thêm giá trị thẩm mỹ và sự hoành tráng, sang trọng cho ngôi nhà.

Mặt bằng công năng sử dụng tầng hầm: Mẫu thiết kế biệt thự 3 tầng 6 phòng ngủ đẹp

Mặt bằng tầng 1: Tư vấn thiết kế mẫu biệt thự 3 tầng 6 phòng ngủ cổ điển

Mặt bằng tầng 3: Ngắm mẫu biệt thự 3 tầng 6 phòng ngủ đẹp
Mẫu 7: Thiết kế biệt thự 3 tầng 6 phòng ngủ mái ngói đẹp

Hình ảnh phối cảnh: Mẫu biệt thự 3 tầng 6 phòng ngủ tân cổ điển

Tham khảo cách bố trí công năng sử dụng cho mẫu nhà biệt thự 3 tầng 6 phòng ngủ đẹp

Mặt bằng tầng 2: Tư vấn mẫu biệt thự 3 tầng 6 phòng ngủ sang trọng

Mặt bằng tầng 3: Tư vấn thiết kế biệt thự 3 tầng 6 phòng ngủ đẹp

Bố trí công năng sử dụng tầng 4
Mẫu 8: Ngắm mẫu thiết kế biệt thự 3 tầng hiện đại

Hình ảnh phối cảnh kiến trúc: Mẫu biệt thự 3 tầng 6 phòng ngủ hiện đại mái bằng đẹp
Hình khối kiến trúc hiện đại của công trình cho phép việc bố trí công năng sử dụng trở nên đơn giản và hấp dẫn hơn. có thể thấy, vị trí của ngôi nhà được đặt ở trung tâm của mảnh đất, hình khối kiến trúc hiện đại, ấn tượng và rõ ràng cho phép việc sắp xếp không gian sống một cách tối ưu. Vật liệu kính được sử dụng khá phổ biến trong việc hoàn thiện ngoại thất của công trình này.

Mặt bằng tầng 1: Mẫu biệt thự 3 tầng 6 phòng ngủ hiện đại

Mặt bằng tầng 2: Tư vấn thiết kế biệt thự 3 tầng 6 phòng ngủ đẹp

Mặt bằng tầng 3: Tư vấn thiết kế biệt thự 3 tầng 6 phòng ngủ đẹp sang trọng
Trên đây là một số mẫu biệt thự 3 tầng 6 phòng ngủ với kiến trúc đẹp mắt, cách thức bố trí khoa học, hợp lý, tiện nghi và vẻ đẹp ấn tượng, bề thế vô cùng. Mỗi công trình khác nhau đều mang những ý nghĩa khác nhau, thể hiện được những vẻ đẹp và những giá trị khác nhau. Nếu bạn đang có nhu cầu sử dụng các mẫu biệt thự 3 tầng 6 phòng ngủ đẹp như thế này, bạn có thể liên hệ trực tiếp với kiến trúc sư của chúng tôi để được tư vấn và giải đáp mọi thắc mắc liên quan đến kiến trúc- xây dựng:
Hotline tư vấn: 0988 030 680
Gợi ý chủ đề hấp dẫn: đổ bê tông sau bao lâu thì tưới nước?








