Để có được một không gian sống hoàn hảo, chủ đầu tư mỗi công trình nhà ở, biệt thự cần phải chuẩn bị thật chu đáo về kiến trúc, thẩm mỹ, phong thủy để các công trình, nhà ở, biệt thự dân dụng trở nên sang trọng, tiện nghi hơn cả. Đặc biệt, đối với không gian sống hiện đại ngày nay trong các thiết kế nhà ở, biệt thự 2 tầng... thì việc bố cục mặt bằng công năng sử dụng ra sao ngày càng được đặc biệt coi trọng. Gợi ý những cách bố trí mặt bằng biệt thự 2 tầng có 3 phòng ngủ dưới đây sẽ giúp bạn có được những tư vấn hợp lý và hữu ịch đối với bản thân mình.
Mặt bằng là gì? Những lưu ý chung khi thiết kế mặt bằng biệt thự 2 tầng 3 phòng ngủ
Mặt bằng là gì?
Mặt bằng là một trong những thuật ngữ kiến trúc được sử dụng phổ biến trong thiết kế và xây dựng. Mặt bằng được hiểu là hình cắt bằng của ngôi nhà hay mẫu thiết kế biệt thự đẹp đó. Mặt bằng thu được là lát cắt của một mặt phẳng quy ước ( song song với mặt đất) cắt qua ngôi nhà, và cao hơn mặt nền ( hoặc mặt sàn) khoảng từ 1 đến 1.5m. Mỗi tầng nếu khác nhau đều cần có mặt bằng riêng. Đối với nhà biệt thự 2 tầng, thông thường sẽ có bản vẽ mặt bằng tầng 1, mặt bằng tầng 2, bản vẽ quy hoạch tổng mặt bằng trong tổng thể lô đất xây dựng, mặt bằng áp mái, mặt bằng mái, và mặt bằng tầng hầm (nếu có)... Về cơ bản, mặt bằng sẽ là hình vẽ thể hiện được cách thức bố cục, cách sắp xếp công năng sử dụng, vị trí các phòng ốc, phòng chức năng trong thiết kế và thi công tổng thể của công trình. Từ đó, bạn có thể hình dung được ngôi nhà tương lai về vị trí trong lô đất nhà mình như thế nào, hướng nhà được sắp xếp và bố cục ra sao. Hoặc các không gian sử dụng trong nhà được phân chia thế nào, kích thước, vị trí, diện tích sử dụng ra sao... tất cả đều được thể hiện rõ ràng trong các bản vẽ thiết kế mặt bằng biệt thự 2 tầng.
Một vài lưu ý chung khi thiết kế mặt bằng biệt thự 2 tầng 3 phòng ngủ bao gồm:
Mặt bằng các mẫu thiết kế biệt thự 2 tầng 3 phòng ngủ cũng được thiết kế, thi công tuân thủ theo các yêu cầu về mặt không gian kiến trúc, khoa học, và phong thủy. Phù hợp với nhu cầu và mong muốn của gia đình về không gian sử dụng cũng như diện tích sử dụng mong muốn của mỗi thiết kế. Đặc biệt, việc thiết kế và thi công mặt bằng biệt thự 2 tầng 3 phòng ngủ, về phía chủ đầu tư, cần lưu ý một vài yêu cầu cơ bản dưới đây: Bao gồm:
+ Thứ nhất: Hình dạng nhà ở quy định cách sắp xếp mặt bằng công năng: Đối với mỗi hình dạng nhà ở khác nhau, việc sắp xếp mặt bằng biệt thự 2 tầng 3 phòng ngủ lại cần những yêu cầu và đặc trưng khác nhau. Hình dạng nhà ở đây có thể là hình vuông, chữ nhật, hình chữ L, chữ U.... hoặc bất cứ một hình dạng nhà ở nào khác được thiết kế và quy hoạch trên thực tế lô đất. Tùy thuộc vào hình dáng nhà ở, cũng như kích thước mặt tiền, chiều sâu của từng công trình mà việc thi công và hoàn thiện ngôi nhà với những vẻ đẹp khác nhau, việc bố cục mặt bằng công năng sử dụng ra sao để cho tiết kiệm được tối đa diện tích sử dụng cũng như mong muốn thiết kế của công trình là điều thực sự quan trọng và cần thiết đối với mỗi công trình. Kể cả đối với những không gian đất bị xéo góc, méo mó, thì khi thiết kế mặt bằng công năng, kiến trúc sư cũng cần phải đưa ra những giải pháp thiết kế sao cho phù hợp nhất đối với từng công trình.
+ Thứ hai: Mặt bằng biệt thự 2 tầng 3 phòng ngủ cần đảm bảo nguyên tắc lưu thông: Nguyên tắc lưu thông nhấn mạnh đến các không gian, phòng ốc, sự lưu thông trong toàn bộ mặt bằng tổng thể công trình. Sự thông suốt được thể hiện ở sự lưu thông từ cửa nhà cho đến tận vườn tược, sự lưu thông ngang qua toàn bộ khu sinh hoạt và khu vực làm việc trong nhà. Không cần lối vào phụ dẫn đến vườn hoặc sân sau. Việc đi thông suốt trong mặt bằng biệt thự 2 tầng còn thể hiện sư lưu thông trên - dưới, cửa chính, cửa phụ mang lại sự thông thoáng, đơn giản, gần gũi cho toàn bộ công trình nhà ở. Yêu cầu lưu thông ở đây có thể hiểu là lưu thông các vật di chuyển trong nhà, lưu thông của con người, lưu thông có gió, ánh sáng và các luồng không khí có thể dễ dàng di chuyển và lưu thông trong ngôi nhà theo cách bố trí công năng sử dụng. Yêu cầu lưu thông trong mặt bằng biệt thự 2 tầng cũng có thể hiểu là cách bố trí không gian giao thông theo chiều ngang, dọc... sao cho phù hợp với mong muốn và nhu cầu sử dụng của từng gia đình.
+ Thứ ba: Mặt bằng biệt thự 2 tầng 3 phòng ngủ cần đáp ứng được các nhu cầu của người sử dụng, hay các thanh viên trong gia đình. Khi yêu cầu kiến trúc sư thiết kế, những yêu cầu của chủ đầu tư được kiến trúc sư tiếp nhận và xử lý một cách đầy khéo léo, thông minh cho mỗi công trình khác nhau. Đối với yêu cầu xử lý công năng sử dụng cho các mẫu mặt bằng biệt thự 2 tầng, chủ đầu tư sẽ là người đưa ra các không gian sử dung theo yêu cầu,kiến trúc sư sẽ xử lý những yêu cầu đó và đưa ra giải pháp thích hợp cho việc bố trí công năng. Sau đó, cả 2 bên sẽ duyệt phương án, đưa ra phản biện, ý kiến để có được bản vẽ mặt bằng biệt thự 2 tầng tối ưu nhất đối với yêu cầu sử dụng của chủ đầu tư.
Trên đây là một vài yêu cầu khi thiết kế mặt bằng biệt thự 2 tầng, bạn có thể tham khảo để việc thiết kế mặt bằng nhà ở của gia đình mình trở nên đơn giản và thuận tiện hơn. Đặc biệt, mặt bằng nhà có đẹp, khoa học, thì khi lên ý tưởng thiết kế kiến trúc, kiến trúc sư cũng dễ dàng hơn trong việc xử lý, mang đến những không gian kiến trúc sang trọng và hợp lý hơn cả đối với nhu cầu của gia đình.
Xem thêm: nhà 2 tầng 100m2
Giới thiệu các mẫu mặt bằng biệt thự 2 tầng 3 phòng ngủ đẹp
Các bản vẽ mặt bằng biệt thự 2 tầng có 3 phòng ngủ dưới đây là các thiết kế chúng tôi đã thực hiện thi công và thiết kế dựa trên những yêu cầu thực tế của khách hàng về công năng sử dụng và nhu cầu thực tế của nhiều gia đình. Việc hoàn thiện và thống nhất phương án thiết kế, bố trí công năng sử dụng là yếu tố cơ bản và vô cùng quan trọng quyết định đến sự thành công trong một thiết kế kiến trúc. Vì công năng sử dụng có đẹp, có hoàn thiện, thì sinh hoạt trong nhà mới lưu thông thoải mái, kiến trúc mới được phát huy hết bố cục kiến trúc cũng như vẻ đẹp ngoại thất đầy tinh tế của nó mang lại. Các hồ sơ bản vẽ thiết kế dưới đây đều được thực hiện và thi công trên cả nước. Với bố cục khoa học, hợp lý, sẽ là những gợi ý hay cho bạn về cách thức bố cục và sắp xếp mặt bằng biệt thự 2 tầng dành cho gia đình mình.
Mẫu số 1: Bố cục mặt bằng biêt thự 2 tầng 3 phòng ngủ hình chữ L diện tích 70m2
1: Mã số biệt thự: BT228067
2: Mặt tiền: 10m
3: Chiều sâu: 9.3m
4: Diện tích: 70m2/sàn
5: Thông số công năng:
+) Tầng 1: sảnh thang: (3.5m2), Phòng khách (21m2), Phòng bếp ăn: (12m2), Phòng ngủ 1: (14m2), WC1: (2m2).
+) Tầng 2: Phòng thờ: 6m2, Sảnh chung 6m2, Ban công (6m2), Phòng ngủ 2: (14m2), Phòng ngủ 3: (14m2), WC 2: (4m2), phòng giặt : (4m2), WC 2: (5.7m2). ban công: (3.8m2).

Mặt bằng tầng 1: Mặt bằng biệt thự 2 tầng 3 phòng ngủ hình chữ L

Mặt bằng tầng 2: Tư vấn thiết kế bản vẽ mặt bằng biệt thự 2 tầng 3 phòng ngủ đẹp mái thái hình chữ L
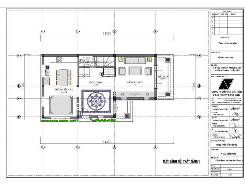
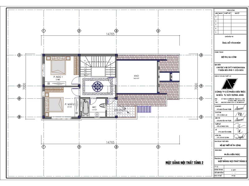
Mẫu 2: Bản vẽ mặt bằng biệt thự 2 tầng 3 phòng ngủ hiện đại diện tích 140m2
1: Mã số biệt thự: BT511018
2: Mặt tiền: 8m
3: Chiều sâu: 18m
4: Diện tích: 140m2/sàn
5: Thông số công năng:
+) Tầng 1: sảnh chính 6m2, Phòng khách 44.2m2, Sảnh trung tâm 15m2, Phòng ngủ 14m2, Phòng bếp ăn 21.5m2, WC1: 6.2m2, Sảnh phụ: 5.5m2
+) Tầng 2: Phòng thờ: 8.5m2, Phòng ngủ 2: 13.5m2, WC2: 4m2, Sảnh tầng: 41.9m2, Phòng ngủ 3: 24m2, WC3: 7.2m2, Lô gia 5.1m2, Ban công 3.5m2

Bản vẽ mặt bằng biệt thự 2 tầng 3 phòng ngủ tầng 1 đơn giản
Hình dạng ngôi nhà chữ nhật, với kích thước nhà rộng 8x18m, phù hợp với điều kiện xây dựng và thực tế lô đất của chủ đầu tư. Hình dạng nhà ở chữ nhật, sự lưu thông dọc theo chiều dài của ngôi nhà từ sảnh chính cho đến sảnh phụ, giúp hướng lưu thông gió, di chuyển trong nhà dễ dàng và thuận tiện hơn. Khu vực di chuyển của phòng khách gần với cầu thang, hành lang trong nhà thuận tiện cho việc di chuyển và đi lại bên trong công trình. Phòng ăn trong nhà được đặt ở vị trí cuối cùng trong ngôi nhà, điều này tạo điều kiện thuận lợi cho việc đi lại và di chuyển nấu nướng. Vị trí này cũng gần với sảnh phụ nên không khí trong nhà cũng sẽ dễ dàng được lưu thông trong toàn bộ quá trình sử dụng.

Mặt bằng tầng 2: Bố trí mặt bằng nhà biệt thự 2 tầng
Mặt bằng biệt thự 2 tầng với bản vẽ tầng 2 được bố trí 2 phòng ngủ. Khu vực sảnh và hành lang có diện tích sử dụng hợp lý nhất.
Mẫu số 3: Mặt bằng biệt thự 2 tầng 3 phòng ngủ kích thước 7x15m
1: Mã số biệt thự: BT105107
2: Mặt tiền: 7m
3: Chiều sâu: 15m
4: Diện tích: Tầng 1: 88m2, Tầng 2: 60m2
5: Thông số công năng:
+) Tầng 1: Tiền sảnh 4.5m2, Phòng khách 21m2, Sảnh chính 17.5m2, Phòng bếp ăn 24.5m2, WC 2.5m2
+) Tầng 2: Sảnh tầng 8.6m2, Phòng ngủ 1: 12m2, Phòng ngủ 2: 12m2, WC 5.5m2, Sân phơi 5.5m2, Kho 14.8m2.

Mặt bằng biệt thự 2 tầng 3 phòng ngủ đẹp

Mặt bằng biệt thự 2 tầng 3 phòng ngủ
Mẫu 4: Các bản vẽ mặt bằng biệt thự 2 tầng 3 phòng ngủ diện tích 90m2
1: Mã số biệt thự: BT112127
2: Mặt tiền: 8.4m ( chưa kể sảnh)- 9m ( bao gồm cả sảnh)
3: Chiều sâu: 12m
4: Diện tích: 90m2/sàn
5: Thông số công năng:
+) Tầng 1: Sảnh chính: 5m2, Phòng khách 23.7m2, Phòng ăn: 15m2, Phòng bếp 9m2, WC1: 4.8m2, Phòng ngủ 1: 15.5m2.
+) Tầng 2: Phòng giải trí: 7m2, Phòng thờ: 12.1m2, Ban công 1: 4.5m2, Phòng ngủ 2: 15.5m2, Ban công 2: 2.5m2, Phòng ngủ 3: 15m2, Sân phơi 6.2m2, WC2: 4.8m2.

Bản vẽ mặt bằng biệt thự 2 tầng sang trọng

Mặt bằng biệt thự 2 tầng có 3 phòng ngủ và cách bố trí
Xem thêm: nhà 2 tầng ở nông thôn
Mẫu 5: Tư vấn thiết kế mẫu mặt bằng biệt thự 2 tầng 3 phòng ngủ kích thước 8x13m
1: Mã số biệt thự: BT123048
2: Mặt tiền: 8m
3: Chiều sâu: 13m
4: Diện tích: 80m2
5: Thông số công năng:
+ Tầng 1: Phòng khách: 17.7m2, Sảnh trung tâm: 6.5m2, Phòng bếp ăn: 13.5m2, Phòng ngủ: 11.5m2, WC1: 4.5m2, Sảnh phụ 3.2m2
+ Tầng 2: Sảnh trung tâm: 6.5m2, Phòng kho 6.5m2, Phòng thờ: 6.5m2, Phòng ngủ 2: 12.9m2, Phòng ngủ 3: 10.7m2,Ban công chung: 7.4m2, WC2: 3.75m2, Ban công 2.9m2.

Mặt bằng biệt thự 2 tầng hình chữ L
Bản vẽ thiết kế mặt bằng nhà biệt thự 2 tầng hình chữ L có 3 phòng ngủ được bố cục vô cùng hợp lý, với công năng sử dụng vừa vặn, hợp với nhu cầu sử dụng của nhiều gia đình hiện nay. Hình dạng nhà ở chữ L dễ dàng cho việc sắp xếp công năng, hướng gió và ánh sáng được thực hiện rõ ràng và ấn tượng nhất.

Mặt bằng biệt thự 2 tầng hình chữ L đẹp
Mẫu 6: Bản vẽ mặt bằng biệt thự 2 tầng diện tích 120m2 có 3 phòng ngủ
1: Mã số biệt thự: BT410018
2: Mặt tiền: 7m
3: Chiều sâu: 18m
4: Diện tích: 120m2/sàn
5: Thông số công năng:
+ Tầng hầm: gara ô tô
+) Tầng 1:Sảnh chính 5.5m2, Phòng khách 27m2, sảnh trung tâm 4m2, Phòng bếp 12m2, Phòng ăn 14.5m2, Phòng ngủ 1: 14.5m2, Phòng tắm 1: 4.5m2, WC1: 2m2.
+) Tầng 2: Sảnh 4m2, Phòng SHC: 14m2, Phòng tắm 4m2, WC 2: 2m2, Sân phơi 17m2, Phòng ngủ 3: 14.5m2, Phòng ngủ 2: 14.5m2, Kho 3.2m2, Phòng làm việc 8m2, Phòng thờ 8m2, Ban công 4.5m2

Mặt bằng: Tư vấn mặt bằng biệt thự 2 tầng có tầng hầm
Mặt bằng biệt thự 2 tầng có tầng hầm được sử dụng để làm không gian để xe. Nhu cầu về không gian tầng hầm để xe phục vụ nhu cầu của cuộc sống hiện đại trong nhiều công trình. Do đó, hiện nay, rất nhiều các thiết kế nhà có tầng hầm nhằm mang lại sự thoải mái cũng như mong muốn sử dụng của nhiều gia đình.

Mặt bằng biệt thự 2 tầng hình chữ nhật đẹp

Mặt bằng tầng 2: Tư vấn thiết kế mặt bằng nhà biệt thự 2 tầng đẹp
Mẫu số 7: Ngắm mặt bằng biệt thự 2 tầng 3 phòng ngủ kết hợp buôn bán, kinh doanh
1: Mã số biệt thự: BT223087
2: Mặt tiền: 19m
3: Chiều sâu: 6.7m
4: Diện tích: 120m2 /sàn
5: Thông số công năng:
+) Tầng 1: Khu bán hàng: 35m2, Bếp ăn 25m2, WC 5.5m2, Phòng ngủ 17m2, Khu giặt phơi: 7.7m2
+) Tầng 2: Phòng khách 25m2, Ban công 10m2, Phòng ngủ 1: 19.5m2, WC2: 5.5m2, WC3: 5.3m2, Phòng thờ: 10m2, Phòng ngủ 2: 19m2.

Mặt bằng biệt thự 2 tầng sử dụng tầng 1 để kinh doanh, buôn bán

Mặt bằng biệt thự 2 tầng: Tầng 2 với công năng sử dụng tiện nghi, sang trọng
Mẫu số 8: Giới thiệu mặt bằng biệt thự 2 tầng hiện đại
1: Mã số biệt thự: BT315087
2: Mặt tiền: 6.8m
3: Chiều sâu: 12.4m
4: Diện tích: 90m2/sàn
5: Thông số công năng:
+) Tầng hầm: Tầng hầm để xe, gara ô tô.
+) Tầng 1: Phòng khách 16m2, Sảnh 9.2m2, Phòng ngủ 12m2, WC 3m2, Phòng bếp ăn 21m2, WC 3.2m2, Ban công 6.6m2
+) Tầng 2: Sảnh chung 6m2, Phòng ngủ 2 17.4m2, Phòng ngủ 3 12m2, Ban công 6.6m2, WC 2.8m2, Phòng thờ 16m2, Sân chơi 6.2m2, Ban công 6.2m2.

Bản vẽ mặt bằng biệt thự 2 tầng có 3 phòng ngủ có tầng hầm

Giới thiêu bản vẽ mặt bằng nhà biệt thự 2 tầng mái thái có tầng hầm

Mặt bằng biệt thự 2 tầng hiện đại
Mẫu số 9:Giới thiệu bản vẽ mặt bằng biệt thự 2 tầng đẹp
1: Mã số biệt thự: Bt112087
2: Mặt tiền: 9m
3: Chiều sâu: 15m
4: Diện tích: 100m2/sàn
5: Thông số công năng:
+) Tầng 1: Sảnh chính 10m2, Phòng bếp 19m2, Sảnh phụ 4.5m2, Phòng khách 19m2, Wc1: 3.7m2, Phòng ngủ 1: 13.6m2
+) Tầng 2: Ban công 5m2, WC2: 8.1m2, Phòng ngủ 2: 31.5m2, Sân chơi 10m2, Phòng ngủ 3: 15.3m2, WC3: 3.7m2.

Bản vẽ mặt bằng nhà biệt thự 2 tầng có 3 phòng ngủ

Chi tiết bản vẽ thiết kế mặt bằng biệt thự 2 tầng có 3 phòng ngủ tiện nghi
Mẫu số 10: Bản vẽ mặt bằng biệt thự 2 tầng 3 phòng ngủ tân cổ điển
1: Mã số biệt thự: BT612067
2: Mặt tiền: 10m
3: Chiều sâu: 14m
4: Diện tích: 110m2/sàn
5: Thông số công năng:
+) Tầng 1: Sảnh chính 7.3m2, Phòng khách 36.6m2, Phòng bếp ăn: 14.5m2, WC1: 3.9m2, Phòng ngủ 1: 14m2
+) Tầng 2: Sảnh tầng: 12.1m2, Phòng thờ: 11.5m2, Ban công 7.5m2, Phòng ngủ 2: 15.8m2, WC3: 3.9m2, Phòng ngủ 3: 19m2, WC2: 5m2, Sân phơi: 10.5m2

Bản vẽ mặt bằng tầng 1 mẫu mặt bằng biệt thự 2 tầng

Bản vẽ mặt bằng biệt thự 2 tầng đẹp
Mẫu số 11: Tư vấn thiết kế mặt bằng biệt thự 2 tầng đẹp

Mặt bằng tầng 1 mẫu biệt thự 2 tầng
Ở công năng sử dụng của mẫu thiết kế nhà biệt thự 2 tầng này, kích thước và hình dạng nhà khá vuông vắn nên việc sắp xếp, bố cục công năng sử dụng trong ngôi nhà cũng trở nên đơn giản và thuận tiện hơn. Toàn bộ khôn gian của tầng 1 được sử dụng làm không gian nhà ăn. Vì ngôi nhà này được xây dựng dựa trên nhu cầu thực tế kinh doanh của gia đình. Không gian tầng 1 làm nơi sinh hoạt và ăn, nghỉ trưa của toàn bộ nhân viên của gia đình, bởi cạnh ngôi nhà là siêu thị mini của chủ nhà dùng để kinh doanh, nên nhu cầu về chỗ ăn uống, nghỉ ngơi cho công nhân được tận dụng toàn bộ ở tầng 1. Tuy nhiên, ở mặt bằng tầng 1 mẫu mặt bằng biệt thự 2 tầng này bạn cũng khoogn thấy khu vực cầu thang bên trong nhà. mà cầu thang được bố trí bên ngoài, tạo nên sự ngăn chia không gian nhà ở rõ ràng và tiết kiệm được diện tích đất sử dụng cho chủ đầu tư kinh doanh hiệu quả hơn.

Mặt bằng biệt thự 2 tầng đẹp phong cách hiện đại
Mẫu số 12: Ngắm mẫu thiết kế mặt bằng biệt thự 2 tầng 7x12m
1: Mã số biệt thự: BT108106
2: Mặt tiền: 7m
3: Chiều sâu: 12m
4: Diện tích: 80m2
5: Thông số công năng:
+) Tầng 1: 1 phòng khách, 1 bếp ăn, 1 phòng ngủ, 1 vệ sinh chung
+) Tầng 2: 2 phòng ngủ, 1 phòng thờ, 1 vệ sinh chung

Mặt bằng biệt thự 2 tầng đẹp kích thước 7x12m

Mặt bằng biệt thự 2 tầng đẹp diện tích 80m2
Mẫu 13: Ngắm mẫu mặt bằng biệt thự 2 tầng đẹp 8x9m có 3 phòng ngủ
1: Mã số biệt thự: BT106057
2: Mặt tiền: 8m
3: Chiều sâu: 9m
4: Diện tích: 65m2
5: Thông số công năng:
+) Tầng 1: Phòng khách (28m2), Tiền sảnh (8.5m2), Phòng ngủ 1: (14m2), WC1: (3.3m2)
+) Tầng 2: Phòng ngủ 2: (14m2), Phòng ngủ 3: (14m2), Phòng thờ: (12.5m2), WC2: (3.3m2)
Chiều cao tầng: Tầng 1 - 3,6(m), Tầng 2 - 7,1(m), Mái - 9,6(m).

Mặt bằng tầng 1: Mẫu mặt bằng biệt thự 2 tầng diện tích 65m2 đẹp

Mặt bằng tầng 2: Tư vấn thiết kế mặt bằng nhà biệt thự 2 tầng có 3 phòng ngủ
Mẫu số 14: Ngắm mẫu thiết kế mặt bằng biệt thự 2 tầng đẹp
1: Mã số biệt thự: BT707078
2: Mặt tiền: 12.3m
3: Chiều sâu: 18.3m
4: Diện tích: 150m2
5: Thông số công năng:
+) Tầng 1: Sảnh chính 11.2m2, Sảnh trung tâm: 18m2, Sảnh phụ: 11.3m2, WC1: 4.2m2, Phòng bếp ăn: 23.1m2, Phòng ngủ 1: 17m2, WC2: 4.4m2, Sân ướt: 5.5m2
+) Tầng 2: Sảnh tầng 7.7m2, Phòng SHC: 18.5m2, Ban công: 4.8m2, Phòng làm việc: 18.7m2, Phòng thờ: 23.6m2, Ban công: 7.6m2, Phòng ngủ 2: 21m2, Phòng ngủ 3: 20.7m2, WC3: 4.2m2

Bố cục mặt bằng biệt thự 2 tầng đẹp

Tư vấn thiết kế mặt bằng biệt thự 2 tầng 11x12m
Mẫu số 15: Ngắm mẫu thiết kế mặt bằng biệt thự 2 tầng đẹp
1: Mã số biệt thự: BT110087
2: Mặt tiền: 11m
3: Chiều sâu: 12m
4: Diện tích: 100m2
5: Thông số công năng:
+) Tầng 1: Sảnh tầng 1: 12.5m2, Phòng khách 28m2, Phòng bếp: 18m2, Phòng ngủ 1 13.8m2, WC1: 4.8m2
+) Tầng 2: WC2: 4.8m2, WC3: 5.5m2, Phòng ngủ 2: 21.5m2, Phòng ngủ 3: 13.8m2, Phòng thờ 10.5m2, Phòng đọc: 9m2, Ban công 9m2.

Giới thiệu cách bố trí công năng sử dụng cho mặt bằng biệt thự 2 tầng

Bản vẽ mặt bằng biệt thự 2 tầng đẹp
Mẫu số 16: Giới thiệu bản vẽ mặt bằng biệt thự 2 tầng đẹp
1: Mã số biệt thự: BT107107
2: Mặt tiền: 9.2m
3: Chiều sâu: 15m
4: Diện tích: 100m2/sàn
5: Thông số công năng:
+) Tầng 1: Tiền sảnh 6.5m2, Phòng khách 19.1m2, Sảnh bếp 8m2, Phòng bếp ăn 19m2, WC1 3.7m2, Phòng ngủ 1 13.6m2
+) Tầng 2: Phòng ngủ 2: 16.7m2, Phòng ngủ 3: 21m2, WC2: 3.7m2, Phòng thờ: 19.1m2

Bố trí mặt bằng biệt thự 2 tầng có 3 phòng ngủ đẹp

Cách bố trí bản vẽ mặt bằng biệt thự 2 tầng sang trọng
Như vậy, đối với các mẫu thiết kế nhà biệt thự 2 tầng, bạn có thể tham khảo các cách bố trí mặt bằng biệt thự 2 tầng trên đây của chúng tôi, về số lượng các phòng, vị trí các phòng ốc trong ngôi nhà, đồng thời là vị trí, diện tích các phòng chức năng trong ngôi nhà được thể hiện ra sao? Với những người bình thường khi chưa có nhiều kinh nghiệm trong vấn đề này, sẽ rất khó để có thể sắp xếp công năng sử dụng các phòng ra sao, kích thước các phòng như thế nào cho hợp lý. Do đó, bạn nên tìm đến các kiến trúc sư, sẽ là người giúp bạn đưa ra được bản vẽ thiết kế mặt bằng biệt thự 2 tầng phù hợp nhất với hiện trạng lô đất cũng như nhu cầu sử dụng của cả gia đình. Đồng thời với phương án bố cục công năng thì giải pháp kiến trúc được đưa ra như thế nào cũng là vấn đề cần chuẩn bị rất kĩ lưỡng trước khi xây nhà.
Mọi yêu cầu tư vấn thiết kế nhà ở, biệt thự, thiết kế kiến trúc- nội thất mời bạn liên hệ trực tiếp với kiến trúc sư của chúng tôi để được tư vấn và giải đáp:
Hotline: 0988 030 680
Xem thêm: biệt thự mini 3 tầng hiện đại








