Gia đình bạn sở hữu lô đất có diện tích 200m2 và đang tìm kiếm ý tưởng xây biệt thự vườn, nhà 1 tầng, 2 tầng hay 3 tầng? Bạn băn khoăn không biết nên xây nhà thế nào, bố trí ra sao cho phù hợp với kích thước ô đất diện tích 200m2 mà vẫn khang trang với đầy đủ khu nhà ở, sân vườn tiểu cảnh, cổng hàng rào? Bộ sưu tập 14 mẫu nhà do kiến trúc sư ANG thiết kế dưới đây được tổng hợp lại là nguồn tư liệu chính xác dành cho những gia chủ đang có chung nhu cầu như vậy.
14 mẫu thiết kế là 14 ngôi nhà mang tâm hồn, nét đẹp riêng với phong cách trang trí ngoại thất khác nhau từ việc nảy khối, tạo hình, sử dụng các đường nét diễn họa cho tới việc phối màu hay lựa chọn chất liệu cho tấm áo bên ngoài. Xét về mặt công năng, điểm chung của cả 14 mẫu thiết kế biệt thự nhà vườn trên đất 200m2 đều là sự tiện nghi, phù hợp với đa dạng nhu cầu sinh hoạt của các chủ đầu tư. Ngay bây giờ, hãy cùng chúng tôi, đến với các tỉnh thành trên mọi miền và ghé thăm những ngôi nhà này nhé!
Xem thêm: 9 siêu phẩm thiết kế mẫu nhà một trệt một lầu đẹp mái thái
Mẫu số 1: Thiết kế biệt thự nhà vườn trên đất 200m2 BT202098- ấn tượng với khối kiến trúc hiện đại gọn gàng
Mẫu biệt thự: BT202098
Địa chỉ: Thị trấn Sông Mã, tỉnh Sơn La
Kích thước ô đất: 200m2
Mặt tiền: 9m
Chiều sâu: 13m

Khỏe khoắn, tự do và phóng khoáng là những cảm xúc được mang lại từ những khối kiến trúc hiện đại trong mẫu thiết kế nhà 1 trệt 1 lầu mái bằng của gia đình ông Hậu ở Sơn La
Kinh phí đầu tư dự kiến: 1,3 tỷ đồng
Thông số công năng, diện tích: 100m2/sàn
- Tầng trệt: phòng khách 28m2, Phòng bếp ăn: 18m2, Phòng ngủ 1: 16m2, WC1: 2.8m2, Phòng bếp 15.6m2.
- Tầng lầu: Sảnh tầng: 7m2, Phòng ngủ 2: 16m2, ( WC phòng ngủ 2: 3.8m2), Phòng ngủ 3: 17m2, WC3: 3.8m2, Sân phơi: 8.3m2, Phòng ngủ 4: 12.2m2, Phòng thờ: 8m2

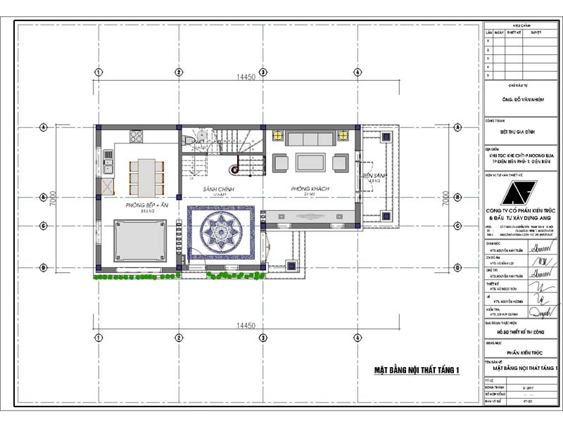
Bản vẽ mặt bằng tầng 1 với lối bố trí dạng tập trung vừa tiết kiệm diện tích vừa tạo không khí gắn kết, gần gũi cho khoảng không gian sinh hoạt chung giữa phòng khách và bếp ăn cho ngôi nhà

Mặt bằng tầng 2 gây ấn tượng bởi hệ thống 3 phòng ngủ tiện nghi, bố trí nội thất gọn gàng, vị trí quy tụ xung quanh không gian sảnh đóng vai trò như nút điều hướng giao thông chính
Mẫu số 2: Thiết kế biệt thự nhà vườn trên đất 200m2 BT130088 sở hữu khối mái thái bề thế
Mẫu biệt thự: BT130088
Địa chỉ: Playku, Giai Lai
Kích thước ô đất: 8,3x25m
Mặt tiền: 6,5m
Chiều sâu: 23m

Gọn gàng, ngăn nắp nhưng không kém phần nổi bật với thiết kế các khối mặt bên độc đáo bởi lam trang trí và các khoảng lùi không gian chính là điểm sáng khi chiêm ngưỡng phối cảnh ngoại thất của mẫu thiết kế nhà 1 hầm 1 trệt 1 lầu diện tích 120m2
Kinh phí đầu tư dự kiến: 1,7 tỷ đồng
Thông số công năng, diện tích: 120m2/sàn
- Tầng hầm: Gara ô tô: 42m2, WC1: 6m2, Phòng ngủ 1: 20m2
- Tầng trệt: Sảnh chính 7m2, Phòng khách 23m2, Sảnh tầng 5m2, Sảnh phụ: 4.5m2, Phòng bếp ăn 24m2, WC2: 3m2, WC3: 5m2, Phòng ngủ bố mẹ: 23m2
- Tầng lầu: Sảnh tầng 5m2, Ban công 4.5m2, Phòng làm việc: 25m2, Ban công 7m2, Sân phơi: 11m2, Wc4: 3m2, WC5: 5m2, Phòng ngủ khách: 11m2, Phòng ngủ con: 23m2

Trên lô đất góc cạnh 200m2, bạn vẫn có thể khéo léo bố trí được một khoảng không gian cây xanh bên cạnh ngôi nhà vừa tạo bóng mát vừa làm nơi thư giãn và đây là gợi ý- hình vẽ tổng mặt bằng quy hoạch ngôi nhà diện tích 120m2 2 tầng mái thái

Với diện tích 120m2/sàn và thiết kế nhà có chiều sâu, việc phân chia các khoảng không gian chức năng sẽ được thực hiện theo chiều dọc và tiến hành liên kết bởi đường hành lang. Tuy nhiên với khoảng nhô ra của khu vực phòng ăn sẽ thiết kế sảnh phụ mở cửa đón gió sẽ làm xua đi cảm giác bí bức và hun hút.

Diện tích 120m2 sàn rộng rãi phục vụ đầy đủ nhu cầu bố trí các không gian sinh hoạt tách biệt như phòng ngủ khách và phòng làm việc cho ngôi biệt thự 2 tầng trên đất 200m2 này
Mẫu số 3: Vẻ đẹp của phong cách tân cổ điển trong thiết kế biệt thự nhà vườn trên đất 200m2 BT229088
Mẫu biệt thự: BT229088
Địa chỉ: Thường Tín, Hà Nội
Kích thước ô đất: 9x21m
Mặt tiền: 9m
Chiều sâu: 12m

Toàn cảnh ngôi biệt thự trắng mang phong cách tân cổ điển với những nét cách tân mềm mại nhưng không kém phần khỏe khoắn chắc hẳn sẽ gây ấn tượng cho khu phố của bạn
Kinh phí đầu tư dự kiến: 1,4 tỷ đồng
Thông số công năng, diện tích: 9,5 tỷ đồng
- Tầng 1: Sảnh chính 6m2, Phòng khách + thờ: 27m2, Phòng bếp ăn: 22m2, WC1: 4.4m2, Phòng ngủ 1: 14.6m2
- Tầng 2: Phòng ngủ 2: 14.6m2, WC2: 4.4m2, Phòng ngủ 3: 16.9m2, Phòng ngủ 4: 26m2, Ban công 5m2.

Hình vẽ tổng mặt bằng đầy đủ sân vườn tiểu cảnh và cổng hàng rào góp phần mang tới vẻ đẹp khang trang cho ngôi biệt thự 1 trệt 1 lầu 4 phòng ngủ của gia đình ông Hiếu

Phòng khách kết hợp phòng thờ là giải pháp vừa giúp tiết kiệm diện tích vừa mang nét truyền thống trong cách bố trí sinh hoạt trong các ngôi nhà xưa

Hệ thống 3 phòng ngủ bố trí trên tầng 2 vừa yên tĩnh vừa tạo được cảm giác riêng tư cho các thành viên trong gia đình hứa hẹn sẽ mang lại những giây phút nghỉ ngơi thư thái nhất
Mẫu số 4: Giải pháp đón sáng tự nhiên cho mẫu thiết kế biệt thự nhà vườn trên đất 200m2 BT129068
Mẫu biệt thự: BT129068
Địa chỉ: Thị trấn Sông Mã, Sơn La
Kích thước ô đất: 10,3mx21,2m
Mặt tiền: 9,3m
Chiều sâu: 13,3m

Chất liệu cửa kính hiện đại là giải pháp giúp ngôi nhà hướng Tây Bắc của gia đình anh Hậu ở Sơn La thích nghi tốt hơn với điều kiện khí hậu nhiệt đới ở nước ta, tận dụng được nguồn ánh sáng tự nhiên, cách âm cách nhiệt tốt.
Kinh phí đầu tư dự kiến: 1,3 tỷ đồng
Thông số công năng, diện tích: 105m2
- Tầng 1: Phòng khách 28m2, Phòng ăn 18m2, Phòng bếp 15.6m2, Phòng ngủ 1: 16m2, WC1: 3m2, WC2: 2.8m2
- Tầng 2: Phòng thờ 8m2, Sảnh tầng 7m2, Phòng ngủ 2: 16m2, WC2: 3.8m2, Phòng ngủ 3: 12.9m2, WC4: 3m2, Sân phơi: 8.3m2, WC3: 3.8m2, Phòng ngủ 4: 14m2.

Tuy diện tích đất không có nhiều để có thể thiết kế vườn sinh thái nhưng kiến trúc sư vẫn khéo léo sắp đặt vị trí ngôi nhà và dành ra được khoảng sân nhỏ phía trước nơi gia chủ có thể đỗ xe và đặt các chậu hoa, trồng một vài cây che mát và lấy thêm sắc xanh cho không gian sống của gia đình

Thiết kế bếp ăn diện tích lớn là nơi quây quần ấm áp cho các thành viên trong gia đình sau một ngày làm việc căng thẳng. Quả thực không sai khi cho rằng căn bếp chính là nơi giữ lửa hạnh phúc gia đình

Phòng thờ đặt phía trước nhà, bàn thờ kê dựa lưng chắc chắn vào tường hướng ra phía cửa chính hợp mệnh với gia chủ
Mẫu số 5: Thiết kế biệt thự nhà vườn trên đất 200m2 BT523058 dạng hình chữ L độc đáo
Mẫu biệt thự: BT523058
Địa chỉ: xã Trung Hòa, huyện Yên Mỹ, tỉnh Hưng Yên
Kích thước ô đất: 200m2
Mặt tiền: 8m
Chiều sâu: 17m

Thiết kế nhà hình chữ l- giải pháp tiết kiệm diện tích, mở rộng không gian sinh hoạt cho ngôi biệt thự 2 tầng mặt tiền 8m
Kinh phí đầu tư dự kiến: 1,6 tỷ đồng
Thông số công năng, diện tích: 105m2/sàn
- Tầng 1: Sảnh chính 8m2, phòng khách 25m2, sảnh phụ 5m2, phòng bếp 18,3m2, phòng ngủ 1 16,7m2, WC1 4,6m2.
- Tầng 2: Ban công 5m2, phòng ngủ 2 16m2, phòng ngủ 3 18,3m2, phòng thờ 25m2, WC 2 4,6m2.

Tầng 1 chủ yếu là các phòng sinh hoạt chung là phòng khách và bếp ăn vừa tiện để bố trí giao thông thuận lợi lại tận dụng được giải pháp không gian mở tạo sự kết nối cần có cho các khu vực này

Phòng ngủ ưu tiên thiết kế gọn gàng, ngăn nắp tạo bầu không khí thoáng đãng kết hợp với hệ thống cửa thông gió hứa hẹn sẽ tạo cảm giác thoải mái cho các thành viên trong gia đình
Mẫu số 6: Thiết kế biệt thự nhà vườn trên đất 200m2 BT116058 sở hữu tiền đường cân đối
Mẫu biệt thự: BT116058
Địa chỉ: Văn Lâm, Hưng Yên
Kích thước ô đất: 15x13m
Mặt tiền: 15m
Chiều sâu: 13m

Chiêm ngưỡng thiết kế mặt tiền ấn tượng với cách phối màu độc đáo nhằm toát lên dáng vẻ sang trọng cho mẫu nha 2 tang 120m2 mái thái 4 phòng ngủ
Kinh phí đầu tư dự kiến: 1,7 tỷ đồng
Thông số công năng, diện tích: 120m2
- Tầng 1: Sảnh trung tâm 14m2, Phòng ăn 21m2, Phòng bếp 18m2, Phòng làm việc 13m2, Phòng ngủ 1: 17m2, WC1: 4.5m2.
- Tầng 2: Phòng thờ 14m2, Phòng khách 20m2, Phòng ngủ 2: 13m2, WC2: 4.5m2, Phòng ngủ 3: 13m2, WC3: 4.5m2, Phòng ngủ 4: 20m2, Sảnh tầng 2( Ban công): 4.5m2

Tuy diện tích hẹp nhưng gia chủ vẫn có thể khéo léo tận dụng một góc sân nhỏ trước nhà bày biện tiểu cảnh cây xanh và kê bàn trà làm nơi thư giãn bên ngoài cho các thành viên. Hệ thống công năng của ngôi nhà cũng được bố trí khá đặc biệt với cầu thang bên ngoài dẫn lên tầng 2 tạo điểm nhấn bề thế cho mặt tiền rộng.

Tầng 2 của ngôi nhà bao gồm 1 phòng khách và hệ thống 3 phòng ngủ tiện nghi. Các phòng bố trí nội thất gọn gàng đảm bảo độ thoáng đãng cho mặt bằng sinh hoạt chung
Mẫu số 7: Mẫu thiết kế biệt thự nhà vườn trên đất 200m2 BT105107- khỏe khắn với các khối hình vuông vức
Mẫu biệt thự: BT105107
Địa chỉ: Điện Biên
Kích thước ô đất: 200m2
Mặt tiền: 7m
Chiều sâu: 15m

Tạo hình các khối mái thái giật cấp kết hợp với sự phát triển của các góc vuông và gia tăng diện tích của các bề mặt phẳng là dấu ấn hiện đại được thể hiện rõ nhất trong mẫu thiết kế biệt thự nhà vườn trên đất 200m2 này
Kinh phí đầu tư dự kiến: 900 triệu đồng
Thông số công năng, diện tích: 60m2
- Tầng 1: Tiền sảnh 4.5m2, Phòng khách 21m2, Sảnh chính 17.5m2, Phòng bếp ăn 24.5m2, WC 2.5m2
- Tầng 2: Sảnh tầng 8.6m2, Phòng ngủ 1: 12m2, Phòng ngủ 2: 12m2, WC 5.5m2, Sân phơi 5.5m2, Kho 14.8m2.

Toàn bộ tầng 1 là phòng khách và khu vực bếp ăn liên kết với nhau bởi thiết kế sảnh chính. Tầng 1 phục vụ cho nhu cầu sinh hoạt chung của cả gia đình, là nơi sum họp cùng dùng bữa, cùng trò chuyện hay xem tivi bởi vậy nên các không gian đều được thiết kế theo hướng mở hoặc chỉ sử dụng lam trang trí thoãng đãng

2 phòng ngủ xếp cạnh nhau tăng tính kết nối lại tiết kiệm diện tích, tránh bị làm phiền bởi các lối di chuyển. Với khoảng mái trước nhà, gia chủ cũng có thể tận dụng làm kho chứa đồ gọn gàng như trong ngôi nhà của gia đình anh Nhâm
Mẫu số 8: Thiết kế biệt thự nhà vườn trên đất 200m2 BT112087- đơn giản nhưng vô cùng tiện nghi
Mẫu biệt thự: BT112087
Địa chỉ: Kim Sơn, Ninh Bình
Kích thước ô đất: 12x18m
Mặt tiền: 9m
Chiều sâu: 15m

Lược bỏ hết các chi tiết trang trí rườm rà, tăng cường sử dụng các góc vuông và mặt phẳng, sử dụng 2 tone màu cơ bản là trắng và ghi xám đã tạo hiệu ứng đơn giản, gần gũi cho mẫu nha 2 tang chu l dep BT112087
Kinh phí đầu tư dự kiến: 1,3 tỷ đồng
Thông số công năng, diện tích: 100m2/sàn
- Tầng 1: Sảnh chính 10m2, Phòng bếp 19m2, Sảnh phụ 4.5m2, Phòng khách 19m2, Wc1: 3.7m2, Phòng ngủ 1: 13.6m2
- Tầng 2: Ban công 5m2, WC2: 8.1m2, Phòng ngủ 2: 31.5m2, Sân chơi 10m2, Phòng ngủ 3: 15.3m2, WC3: 3.7m2.

Trên lô đất 200m2, ngôi nhà được đặt ở vị trí trung tâm, toàn bộ phần diện tích xung quanh lát sân sạch sẽ tạo thêm không gian sinh hoạt cho công trình. Bảo vệ vững chắc bên ngoài là lớp cổng và hàng rào kiên cố.

Phòng ngủ master diện tích rộng rãi với khu vệ sinh khép kín và nội thất tiện nghi. Vị trí các phòng bố trí hợp lý, đều thiết kế cửa mở ra ban công thoáng đãng, tạo nhiều điểm view lý tưởng
Mẫu số 9: Giải pháp trang trí 2 mặt tiền ấn tượng cho mẫu thiết kế biệt thự nhà vườn trên đất 200m2 BT104047
Mẫu biệt thự: BT104047
Địa chỉ: Đan Phượng, Hà Nội
Kích thước ô đất: 13x16m
Mặt tiền: 10m
Chiều sâu: 12m

Chiêm ngưỡng phối cảnh mau biet thu 2 tang 2 mat tien chắc hẳn các bạn sẽ bị ấn tượng bởi các thức cột tròn kéo dài đến hết tận 2 tầng nhà tăng thêm vẻ đẹp vững chãi và bề thế cho toàn khối công trình. Sự kết hợp giữa các khối vuông và tròn mang tới xúc cảm đa chiều hơn cho những người thưởng thức.
Kinh phí đầu tư dự kiến: 1,5 tỷ đồng
Thông số công năng, diện tích: 100m2
- Tầng 1: Phòng khách (31m2), Phòng bếp + ăn (17.5m2), Phòng ngủ 1( 16.5m2), WC 1 (3m2), Sảnh chính (6m2), Sảnh phụ (3m2)
- Tầng 2: Phòng ngủ 2 (16.5m2), Phòng ngủ 3 (17m2), Sảnh tầng (5m2), WC 2 (4m2)
- Tầng lửng: Sân chơi (8m2), Sân phơi (16.5m2), Phòng thờ (17m2), Sảnh tầng (8m2)

Bản vẽ mặt bằng tổng thể định vị chức năng cho các khoảng không gian và quy hoạch lô đất gọn gàng đầy đủ tiểu cảnh sân, cây cối và cổng hàng rào

Vị trí phòng ốc bố trí quanh trục chính là sảnh trung tâm thể hiện tính logic của bản thiết kế
Mẫu số 10: Thiết kế biệt thự nhà vườn trên đất 200m2 BT530058 với bản phối màu sang trọng, nhã nhặn
Mẫu biệt thự: BT530058
Địa chỉ: Phong Thổ, Lai Châu
Kích thước ô đất: 200m2
Mặt tiền: 8m
Chiều sâu: 15m

Cửa kính, mái ngói thái, gạch ốp, các khối bê tông rắn chắc,... đều là chất liệu hiện đại được áp dụng để tăng thêm sức khỏe cho ngôi nhà trệt mái thái 4 phòng ngủ
Kinh phí đầu tư dự kiến: 900 triệu đồng
Thông số công năng, diện tích:120m2
Tiền sảnh, phòng khách 30m2, phòng thở 8m2, phòng ngủ 1 16m2, phòng ngủ 3 17m2, wc 4.5m2

Mặt bằng công năng sử dụng bố trí gọn gàng, khoa học thể hiện tính đơn giản trong sinh hoạt
Mẫu số 11: Sử dụng cửa kính là giải pháp vi khí hậu trong thiết kế biệt thự nhà vườn trên đất 200m2 BT205098
Mẫu biệt thự: BT205098
Địa chỉ: Thị trấn Sông Mã, Sơn La
Kích thước ô đất: 200m2
Mặt tiền: 9m
Chiều sâu: 13m

Mẫu biệt thự 3 tầng hiện đại mang lại ấn tượng lạ bởi các khối kiến trúc có phần khỏe khoắn, tự do thể hiện cá tính phóng khoáng của người thiết kế và mong muốn của chủ đầu tư về công trình đậm dấu ấn hiện đại
Kinh phí đầu tư dự kiến: 1,8 tỷ đồng
Thông số công năng, diện tích: 100m2/sàn
- Tầng trệt: phòng khách 28m2, Phòng bếp ăn: 18m2, Phòng ngủ 1: 16m2, WC1: 2.8m2, Phòng bếp 15.6m2.
- Tầng lầu: Sảnh tầng: 7m2, Phòng ngủ 2: 16m2, ( WC2: 3.6m2), Phòng ngủ 3: 16.5m2, Phòng ngủ 4: 16.4m2, Sân phơi: 8.2m2, WC3: 3.8m2.
- Lầu 2: Phòng thờ: 12.3m2, sân chơi 11m2, sân phơi: 18m2, Kho 5.6m2, Sân chơi 8.2m2, Phòng Gym: 16m2

Hình ảnh mặt bằng tổng thể và vị trí sắp xếp phòng ốc cho tầng 1 của ngôi nhà

Tầng 2 toàn bộ là hệ thống phòng ngủ và khu vệ sinh phục vụ cho nhu cầu nghỉ ngơi riêng tư cho các thành viên. Không gian sảnh được tận dụng để làm nơi giao lưu, chuyện trò tăng sự gắn kết

Tầng 3 của ngôi nhà có thiết kế phòng thờ yên tĩnh là nơi thể hiện tấm lòng thành kính của thế hệ cháu con với ông bà tổ tiên. Một phòng tập gym cũng được bố trí ở đây là nơi rèn luyện sức khỏe cho mọi người. Phía bên ngoài có thể tận dụng làm không gian sân trên cao, kê bộ bàn ghế nhỏ, đặt vài ba chậu hoa vô cùng mát mẻ- đây chính là xu hướng thiết kế mới trong các ngôi biệt thự hiện đại.
Mẫu số 12: Giải pháp cho mặt tiền hẹp trong thiết kế biệt thự nhà vườn trên đất 200m2 BT207057
Mẫu biệt thự: BT207057
Địa chỉ: Cầu Giấy, Hà Nội
Kích thước ô đất: 191m2
Mặt tiền: 8m
Chiều sâu: 16,6m

Các khối nhà xếp lên nhau vươn cao khỏe khoắn thể hiện sự chế ngự của con người trên nền thiên nhiên. Tuy nhiên, bằng các giải pháp khí hậu trong cách sắp đặt, tạo khối hay sử dụng vật liệu, kiến trúc sư lại tạo được sự liên kết và thích nghi tuyệt vời giữa 2 môi trường sống.
Kinh phí đầu tư dự kiến: 1,4 tỷ đồng
Thông số công năng, diện tích: 90m2/sàn
- Tầng 1: Phòng khách (26m2), Sảnh chính (6.5m2), Sảnh trung tâm (7m2), Sảnh phụ ( 7.5m2), Phòng ngủ 1( 14.5m2), Phòng bếp ăn ( 19m2), WC1(4m2).
- Tầng 2: Phòng ngủ 2 ( 14.5m2), Phòng ngủ 3 (26m2), Phòng sinh hoạt chung (18m2), Ban công (6m2), Sảnh tầng (7m2), Ban công(7.5m2), WC2 (4m2).
- Tầng 3: Phòng thờ (4m2), Sảnh tầng ( 7m2), Phòng ngủ 4( 17m2), Phòng ngủ 5( 18m2), Ban công (4m2), sân phơi( 15m2), WC3( 4m2).
- Chiều cao tầng: Tầng 1: 3,9(m), Tầng 2: 7,5(m), Tầng 3: 10,8, Mái: 14,95(m).

Bố trí mặt bằng dạng tập trung, các không gian liên kết chặt chẽ với nhau là giải pháp tiết kiệm diện tích và tạo sự đồng nhất cho không gian nội thất cũng như hình khối biểu hiện bên ngoài cho ngôi biệt thự

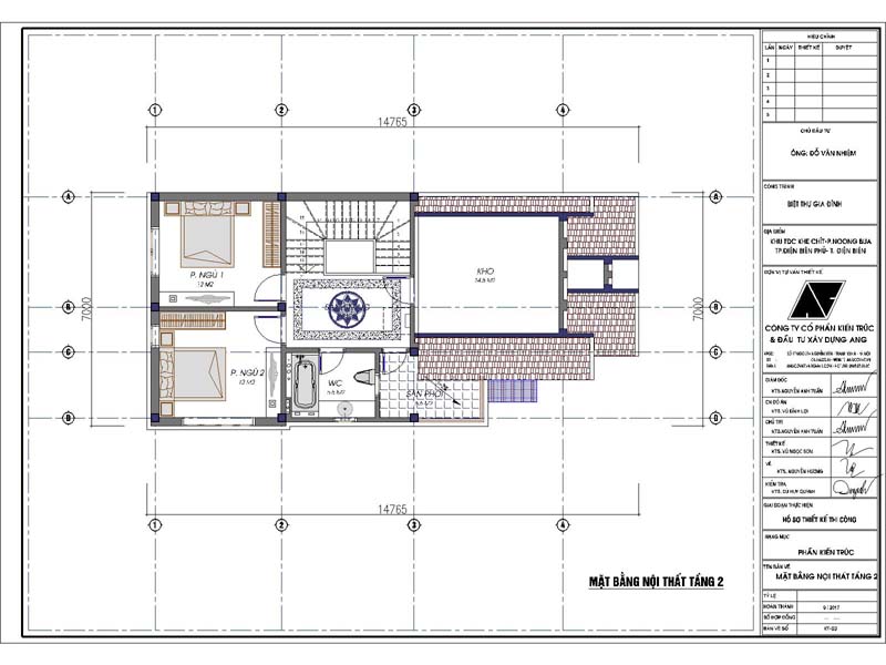
Tham khảo mặt bằng bố trí nội thất tầng 2 để tìm ra giải pháp bố trí không gian nội thất cho ngôi nhà 3 tầng 90m2/sàn

Với nhu cầu phòng ngủ và các không gian sinh hoạt lớn, việc lên 3 tầng là giải pháp phù hợp nhất đáp ứng đề bài về hệ công năng của gia đình, tuy nhiên để tránh lãng phí quỹ đất, gia chủ cần cân nhắc đến chức năng sử dụng của từng không gian để lựa chọn diện tích, vị trí và cách sắp xếp đồ đạc cho hợp lý
Mẫu số 13: Tấm áo ngoại thất tương phản tạo hiệu ứng nổi bật cho mẫu thiết kế biệt thự nhà vườn trên đất 200m2 BT119066
Mẫu biệt thự: BT119066
Địa chỉ: Hòa Bình
Kích thước ô đất: 190m2
Mặt tiền: 12m
Chiều sâu: 12m
Kinh phí đầu tư dự kiến: 1,9 tỷ đồng

Biệt thự 3 tầng diện tích 110m2 sử dụng 2 tone màu ngoại thất tương phản là trắng và nâu để làm nổi bật các đường nét thiết kế của mình. Hệ thống cửa sổ kính với vị trí và kích thước hợp lý có vai trò đón sáng nổi bật, mang lại nguồn không khí luôn luôn mát mẻ và thoáng đãng cho ngôi nhà.
Thông số công năng, diện tích: 110m2/sàn
- Tầng 1: 1 phòng khách , Phòng bếp + ăn, Phòng ngủ
- Tầng 2: Phòng sinh hoạt chung, 3 phòng ngủ, 3 phòng vệ sinh.
- Tầng 3: Phòng thờ, Phòng tập, Phòng ngủ

Tiểu cảnh hòn non bộ khu vực bếp ăn không chỉ có tác dụng thẩm mỹ mà còn điều hòa không khí cho không gian quan trọng này

Phòng ngủ, phòng sinh hoạt, phòng vệ sinh phục vụ cho nhu cầu nghỉ dưỡng của các thành viên đều được đặc biệt chú trọng thiết kế gọn gàng và tiện nghi

Tận dụng không gian sảnh tầng lộ thiên làm nơi vui chơi, nghỉ ngơi là một giải pháp tuyệt vời bởi nguồn không khí bên trên trong lành và mát mẻ sẽ giúp các thành viên xua tan mệt mỏi
Mẫu số 14: Phong cách tân cổ điển vừa mạnh mẽ vừa lôi cuốn trong thiết kế biệt thự nhà vườn trên đất 200m2 BT920096
Mẫu biệt thự: BT920096
Địa chỉ: Vĩnh Bảo, Hải Phòng
Kích thước ô đất: 200m2
Mặt tiền: 10m
Chiều sâu: 16m

Bề thế, sang trọng là ấn tượng đầu tiên mà mẫu thiết kế nhà 3 tầng kiểu pháp mang lại cho người đối diện
Kinh phí đầu tư dự kiến: 2,7 tỷ đồng
Thông số công năng, diện tích: 150m2/sàn
- Tầng 1: 1 phòng ngủ, 1 gara, 1 vệ sinh, 1 phòng giặt, 1 sảnh tầng
- Tầng 2: phòng ngủ 2, 1 phòng khách, 1 bếp ăn, 1 sảnh tầng, 1 sảnh phòng, vệ sinh 3, 1 tiền sảnh
- Tầng 3: phòng ngủ 3, sảnh phòng ngủ 3, phòng ngủ 4, sảnh phòng ngủ 4, 1 phòng thờ, vệ sinh 3

Quy hoạch cây xanh, hồ nước thanh lọc không khí mang lại sự mát mẻ 4 mùa cho ngôi biệt thự

Tầng 1 là gara ô tô có sức chứa lớn và khu vệ sinh

Thiết kế cầu thang bên ngoài vừa có tác dụng thẩm mỹ vừa tạo thêm lối đi cho ngôi nhà. Vị trí và diện tích các phòng được bố trí hợp lý phục vụ cho cuộc sống tiện nghi cao cấp của gia đình

Thiết kế cửa sổ kính đón sáng tự nhiên chính là bước ý tưởng đột phá không chỉ đảm bảo về mặt công năng tính thẩm mỹ mà còn mang lại cả hiệu quả kinh tế trong quá trình sinh hoạt
Kết thúc chuyến tham quan 3 miền, đến các tỉnh thành và ghé thăm 14 mẫu thiết kế biệt thự nhà vườn trên đất 200m2, hy vọng quý vị đã tìm kiếm được ý tưởng hay ho nào đó cho ngôi nhà tương lai của gia đình mình. Ý tưởng ấy đôi khi đến từ những điều rất nhỏ, bởi một nét trang trí, một góc hình, một khối kiến trúc, một khoảng không gian nào đó nhưng với sự giúp đỡ và hỗ trợ của đội ngũ kiến trúc sư tài năng ANG, chắc chắn những ý tưởng và mong muốn của các bạn sẽ trở thành hiện thực, được thể hiện cân đối, hài hòa ngay trong chính mẫu thiết kế của gia đình mình.
Mọi thông tin cần tư vấn xin vui lòng liên hệ: 0988.030.680
Xem thêm: 20 mẫu nhà trên diện tích 20m2








