Bên cạnh những thiết kế nhà mái bằng, thái thái đang ngày càng lên ngôi trong kiến trúc nhà ở tại nước ta. Thiết kế nhà mái lệch vẫn khẳng định được giá trị và vai trò quan trọng của mình trong mỗi mẫu nhà. Vì thế không ít gia chủ quyết định lựa chọn cho mình thiết kế nhà mái lệch. Để có được thiết kế nhà ưng ý, thì bản vẽ nhà mái lệch đẹp cũng là yếu tố then chốt quyết định đến tổng thể ngôi nhà.
Đặc trưng của bản vẽ nhà mái lệch đẹp
Nhà mái lệch là hình thức mái dốc, bố trí hình dáng nhà chảy về 2 bên. Đây cũng là cách phân loại hình dáng mái nhà dựa theo tiêu chí hình dạng kiến trúc.
Về mặt kết cấu, thiết kế nhà mái lệch có độ chênh lệch và dốc 2 bên mái khác nhau đưa đến những hiệu ứng lệch tầng vô cùng thu hút đối với mắt người nhìn. Thêm nữa về độ bền và giá trị sử dụng của thiết kế này cũng rất cao.
Mong muốn sở hữu 1 bản vẽ nhà mái lệch đẹp, bạn cần hiểu được đặc trưng cơ bản của thiết kế mái nhà này, cụ thể nhà mái lệch có những đặc điểm cơ bản như:
Hình dáng đặc trưng: bản vẽ nhà mái lệch là thể hiện một hình dáng chính của ngôi nhà. Cho bạn biết được thiết kế nhà 1 tầng 2 hay 3,4 tầng. Hình dáng của ngôi nhà là hình gì? Ví dụ như hình chữ L, hình vuông, hình chữ U hay hình chữ nhật,.. từ tổng thể hình dáng nhà đến hình dáng chung của các phòng chức năng như: phòng khách, nhà bếp, phòng ngủ,.. vì thế mà mỗi ngôi nhà đều có 1 bản vẽ kiến trúc khác nhau, không giống nhau.. Tạo nên nét độc đáo và thể hiện thẩm mỹ kiến trúc riêng của mọi người
Về kích thước: mỗi bản vẽ nhà mái lệch đẹp lại sở hữu diện tích khác nhau, vì thế bố trí công năng và diện tích các phòng cũng khác nhau. Tùy vào kích thước lớn nhỏ của lô đất, thiết kế mẫu nhà mà bản vẽ nhà mái lệch đẹp cũng đa dạng, phù hợp với hiện trạng lô đất.
Xem thêm: thiết kế nhà 2 tầng 100m2
Về cách bố trí các phòng chức năng: Sắp xếp, bố trí các phòng chức năng cần logic, khoa học và thuận tiện, đáp ứng nhu cầu sinh hoạt cho các thành viên trong gia đình. Đặc biệt bố trí các hướng phòng, hướng cửa, bố trí cầu thang, … cũng cần hài hòa và đảm bảo phong thủy… một bản vẽ nhà 2 tầng mái lệch đẹp hoàn thiện và chỉnh chu chắc chắn sẽ đáp ứng tiêu chí trên.
Các mẫu thiết kế bản vẽ nhà mái mái lệch đẹp thường được thực hiện bởi những chủ đầu tư yêu thích kiến trúc hiện đại, ấn tượng và độc đáo. Không gian kiến trúc, ngoại thất của ngôi nhà được trọn vẹn mang vẻ đẹp gần gũi với thiên nhiên và cách thiết kế độc đáo, ấn tượng. Bạn có muốn sở hữu những không gian nhà ở hiện đại như thế này hay không? Cùng chúng tôi tham khảo những phương án thiết kế nhà mái lệch đẹp dưới đây để tham khảo cho mình những không gian kiến trúc ấn tượng và độc đáo nhất.
Chia sẻ 9+ bản vẽ nhà mái lệch đẹp 1, 2, 3 tầng
Kiến trúc thiết kế nhà biệt thự mái lệch từ lâu đã trở thành kiến trúc nhà phổ biến, tượng trưng cho vẻ đẹp truyền thống rất cổ điển, đậm chất vùng quê bắc bộ Việt Nam. Vì thế các bản vẽ kiến trúc ngày nay đáp ứng nhu cầu thẩm mỹ thay đổi vì thế thiết kế nhà mái lệch mang dáng vóc hiện đại, tân cổ điển, vô cùng đa dạng và đảm bảo thẩm mỹ kiến trúc hoàn hảo. Mong muốn giới thiệu đến mọi người những thiết kế nhà đẹp, bản vẽ nhà mái lệch đẹp hoàn chỉnh, ANG chọn lọc ra những thiết kế bản vẽ 1, 2, 3 tầng với đa dạng kiến trúc khác nhau để quý khách hàng tham khảo:
Tuyển tập bản vẽ nhà mái lệch đẹp 1 tầng đẹp với đa dạng phong cách thiết kế
Mẫu nhà 1 tầng kiến trúc hiện đại là những khối hình cơ bản, là sự đơn giản trong từng chi tiết từ đường nét trang trí cho tới cách bố trí bố cục không gian. Mẫu nhà mái lệch tầng này được cách tân từ thiết kế nhà mái dốc truyền thống, mang đến tổng thể thiết kế nhà nổi bật với khối hình vuông vắn, cân đối đồng nhất mang lại cho mọi người cảm giác an toàn, vững chãi. Dễ nhận thấy ở thiết kế nhà sự đơn giản nhưng vẫn vô cùng tinh tế và sang trọng. Đặc biệt tại các vị trí cửa sổ, mặt tiền hay sảnh chính, sự khỏe khoắn một lần nữa được nhấn mạnh bằng các gờ tường, cột tường, mái hắt, mái che sảnh được thiết kế đồng nhất. Phần tường dưới mái kẻ chỉ nhỏ tạo cảm giác nâng đỡ vững chãi theo phương ngang. Với kiến trúc độc đáo, mẫu thiết kế biệt thự 1 tầng mái lệch thể hiện được sự ấn tượng, độc đáo và vô cùng ấn tượng được xây dựng với vẻ đẹp cân đối và ấn tượng, độc đáo vô cùng.

Mẫu 1: Hình ảnh thiết kế nhà 1 tầng mái lệch hiện đại kiến trúc vuông vắn và khỏe khoắn
Bên cạnh kiến trúc thẩm mỹ, thì bản vẽ nhà mái lệch đẹp cũng mang đến cho gia chủ công năng sử dụng hoàn hảo và tiện nghi. Sở hữu thiết kế nhà có mặt tiền 8m, diện tích sử dụng 100m2, Bản vẽ nhà với công năng bao gồm: 1 phòng khách, 1 phòng thờ, 1 bếp ăn, 2 phòng ngủ và 1 phòng vệ sinh. Diện tích từng phòng được thiết kế theo ý muốn cũng như mục đích sử dụng của gia chủ. Các phòng được bố trí vô cùng phù hợp, thể hiện tính logic, vừa tiết kiệm diện tích lại vừa dễ dàng trong quá trình sinh hoạt.

Mặt bằng công năng sử dụng thiết kế nhà cấp 4 có 2 phòng ngủ mái lệch đẹp cho gia đình 4 đến 5 người sinh hoạt
Ngôi nhà thứ hai mà chúng ta ghé thăm để chiêm ngưỡng bản vẽ nhà nhà mái lệch đẹp chính là thiết kế nhà của ông Chính ở Ninh Bình. thiết kế nhà này thực hiện theo phương án là đổ bê tông, sau đó dán ngói thái với độ dốc nhất định lên. Phía trong trần nhà được làm trần thạch cao phù hợp với nhu cầu và công năng sử dụng chính của ngôi nhà mái ngói 3 gian đẹp truyền thống. Thêm vào đó, màu sắc mái xanh dương tạo sự mới mẻ, mát cho không gian ngôi nhà, tạo nên tổng thể kiến trúc hoàn chỉnh và tiện nghi. Mẫu biệt thự 1 tầng đơn giản với chi phí xây dựng hợp lý, kiến trúc mái ngói đơn giản phù hợp với nhu cầu sử dụng của nhiều gia đình hiện nay.

Hình ảnh phối cảnh: Mẫu thiết kế nhà cấp 4 có 2 phòng ngủ mái lệch đẹp

Bố trí tổng mặt bằng công năng sử dụng của thiết kế nhà khoa học, logic và vô cùng tiện nghi

Bản vẽ nhà mái lệch đẹp, thể hiện chi tiết mặt bằng công năng với diện tích phân bố các phòng hợp lý
Với tổng diện tích xây dựng hơn 180m2, thiết kế bố trí công năng sử dụng gồm: tiền sảnh 22m2, khách 48m2, phòng ngủ 1 12m2, phòng ngủ 2 16.7m2, phòng ngủ bố mẹ 16.7m2, bếp +ăn 20m2, thờ 15m2.
Toàn bộ không gian kiến trúc trong và ngoài bản vẽ nhà mái lệch đẹp đều được xử lý hợp với nhu cầu của chủ nhà, đồng thời phù hợp với diện tích thực tế cũng như không gian sống các phòng trong ngôi nhà 3 gian hiện đại đẹp. Riêng phòng thờ là nơi trang trọng nên gia chủ muốn bố trí 1 không gian riêng, phù hợp với nhu cầu sử dụng của các thành viên trong gia đình. Đây cũng là không gian rộng rãi, phù hợp với nhu cầu thờ cúng của gia đình. Bố trí 2 phòng vệ sinh sử dụng cho các thành viên trong ngôi nhà sự thoải mái và tiện nghi nhất. Nhà vệ sinh ở khu vực giữa 2 phòng ngủ tạo không gian sinh hoạt khép kín cho phòng.
Xem thêm: mẫu nhà cấp 4 2 mặt tiền đẹp
Chia sẻ bản vẽ nhà mái lệch đẹp thứ 3 chính là thiết kế nhà khang trang của gia đình anh Cường tại Ba Vì - Hà Nội. Thiết kế nhà lấy cảm hứng từ nhà mái ngói đỏ truyền thống, có cách tân nhiều lớp mái lệch dốc giúp không gian nhà thoáng rộng và hiện đại hơn

Toàn cảnh mẫu nhà 1 tầng mái lệch khang trang diện tích 200m2

Chi tiết bản vẽ nhà mái lệch đẹp 1 tầng tại Hà Nội
Trong bản vẽ nhà mái lệch đẹp gian chính giữa được chia làm 3 khu vực, phòng thờ 16,5m2 ở chính giữa, 2 bên cân đối 1 phòng khách 16,5m2 và 1 phòng trưng bày 16,5m2. Mỗi không gian đều sở hữu thiết kế cửa chính mở ra sân vô cùng thông thoáng, tận dụng nguồn ánh sáng tự nhiên và đón gió mát mẻ. Không chỉ vậy, bố trí cửa như vậy còn giúp tiền đường trở nên tươi sáng, giao thông đi lại dễ dàng.
Toàn bộ gian bên trái là không gian ngủ nghỉ với hệ thống 2 phòng ngủ, 1 phòng vệ sinh. Phòng ngủ trang trí khác nhau tùy thuộc theo sở thích của chủ nhân. Tất cả mang đến sự tiện nghi, thoải mái, cách bài trí đồ đạc gọn gàng, tiết kiệm diện tích, thiết kế cửa sổ lớn đón gió và ánh sáng tự nhiên mang tới sự thoáng đãng và tầm nhìn tuyệt vời cho mọi người. Các mẫu thiết kế nhà 1 tầng 2 phòng ngủ tận dụng được tối đa diện tích xây dựng, nhu cầu sử dụng và mong muốn sở hữu của kiến trúc sư hiện nay.
Những bản vẽ nhà mái lệch đẹp 2 tầng
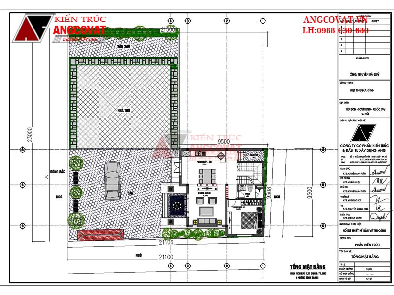
Bản vẽ nhà mái lệch đẹp tại Hưng Yên với diện tích 8x15m, với diện tích sử dụng 110m2 được thiết kế với các không gian chính như 1 phòng khách, 1 phòng bếp ăn, 1 phòng ngủ, 1 gara. Ngôi nhà được thiết kế theo phong cách hiện đại nên cách trang trí không gian cũng rất "mở". Bản vẽ thể hiện phòng khách rộng với diện tích 19m2 được thiết kế sát vào chân tường làm điểm tựa giúp cho bộ bàn ghế sofa không bị xê dịch và tạo được không gian rộng rãi, thuận tiện cho việc đi lại. Bản vẽ chi tiết mẫu nhà với 3 phòng ngủ, 1 phòng thờ, 2 phòng vệ sinh. Phòng ngủ 2,3 được thiết kế gần nhau với diện tích 12.5m2 được thiết kế cho con cái ông Nhường đã trang bị đầy đủ như giường ngủ, tủ quần áo, tivi và bàn học tập. Với cách bố trí khoa học, không gian thoáng đãng phải đủ ánh sáng để cho con cái vui chơi, giải trí, sau những giờ học tập và làm việc căng thẳng.

Phối cảnh mẫu thiết kế nhà 2 tầng diện mái lệch được xây trên lô đất rộng lớn 600m2.

Hình ảnh mặt bằng tổng thể nhà 2 tầng mái lệch kiến trúc hiện đại

Bản vẽ nhà mái lệch đẹp với bố trí công năng tầng 1 gồm: 1 sảnh chính 5m2,1 gara15.3m2,1 phòng khách 26.5m2,1 bếp ăn 21.5m2,1 phòng ngủ13m2,1 vệ sinh chung 3.6m2

Công năng sử dụng tầng 2 chủ yếu cho sinh hoạt chung của gia đình
Mẫu số 4: Tư vấn thiết kế bản vẽ nhà mái lệch đẹp 2 tầng hiện đại
Mẫu biệt thự 2 tầng với hệ thống mái lệch đẹp, hiện đại diện tích 90m2 cũng là 1 trong những bản vẽ nhà mái lệch đẹp được kiến trúc sư Angcovat tâm huyết xây dựng để mang đến cho gia chủ. Cùng nhìn ngắm cho tiết hình ảnh thiết kế 3D của mẫu nhà, bản vẽ chi tiết mặt bằng tổng thể, thiết kế các tầng 1, 2 và tầng áp mái để thấy rõ hơn về sự sắp xếp khoa học, bố trí công năng hợp lý và logic của thiết kế nhà này.

Hình ảnh 3D mặt tiền nhà 2 tầng mái lệch diện tích 90m2 tại Phố Nối - Hưng Yên

Mặt bằng công năng sử dụng nhà mái lệch kiến trúc hiện đại đơn giản

Bản vẽ nhà mái lệch đẹp với công năng sử dụng tầng 1 chủ yếu cho sinh hoạt chung của gia đình

Bố trí công năng tầng hai trong mẫu nhà 2 tầng mái lệch đẹp

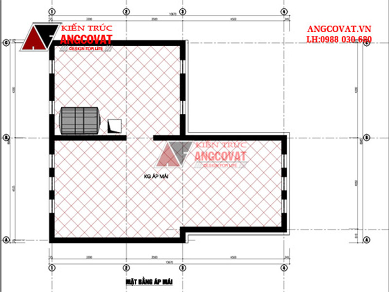
Bản vẽ tầng áp mái thiết kế nhà mái lệch 2 tầng 90m2
Mẫu số 5: Giới thiệu mẫu bản vẽ nhà mái lệch đẹp hiện đại diên tích 100m2
Tiếp theo là thiết kế nhà của ông Thiện tại Hà Nội có rất nhiều ngôi nhà 2 tầng như thế nhưng mỗi bản thiết kế lại chứa đựng vẻ đẹp riêng, nét độc đáo riêng, và đương nhiên là biểu hiện sở thích, yêu cầu của chủ đầu tư. Thiết kế nhà biệt thự mái lệch 2 tầng 100m2 cũng không phải là điều khó khăn đối với các kiến trúc sư của chúng tôi nhưng để tạo nên một không gian phù hợp với phong thủy, phù hợp với hướng gió hướng nắng nữa thì nó cần vận dụng không chỉ kiến thức về kiến trúc xây dựng, và chúng tôi đã làm được điều đó. Mỗi bản thiết kế của chúng tôi là một sự sáng tạo riêng biệt vì thế không trùng lặp với bất kì mẫu thiết kế nào.
Mẫu nhà có công năng sử dụng gồm:
+) Tầng 1: sảnh chính, phòng khách (24m2), phòng bếp +ăn(19m2), phòng WC 1(9 đến 10m2), phòng ngủ 1(18m2)
+) Tầng 2: phòng ngủ 2(18m2), phòng ngủ 3 (15m2), WC 2, sân phơi (12m2), phòng ngủ 4, phòng thờ (10m2)

Thiết kế mẫu nhà biệt thự mái lệch 2 tầng diện tích 100m2 4 phòng ngủ

Bản vẽ nhà mái lệch đẹp có mặt bằng tổng thể và sân vườn thoáng rộng

Bản vẽ thể hiện công năng sử dụng nhà mái lệch 2 tầng

Chi tiết bản vẽ nhà mái lệch đẹp bố trí tầng 2 hợp lý, đáp ứng không gian sinh hoạt chung cho gia đình
Thiết kế nhà biệt thự mái lệch 2 tầng diện tích 100m2 của ông Hòa tại Hà Nội mang được nét đẹp - nét hiện đại thu hút mà ít mẫu nhà nào có được. Từ phần chân đến phần mái mẫu biệt thự mini 2 tầng được thiết kế với các hình khối chắc chắn, với các khối đua ra và lui vào nhường chỗ cho phần sảnh và ban công. Tạo nên không gian thoáng rộng và gắn liền cùng thiên nhiên. Cho tiết bản vẽ mẫu nhà được các kiến trúc sư ANG xây dựng dựa trên mong muốn của chủ ngôi nhà. Với công năng phân bổ tại các phòng vô cùng khoa học và hiện đại.
Với tổng diện tích sử dụng là 100m2, nhà được chúng tôi bố trí công năng gồm
Tầng 1: khách: 17.2m2, sảnh chính 13m2, thờ 16.8m2,phòng bếp ăn: 33m2, phòng ngủ 1: 14.7m2
Tầng 2: ngủ 2: sinh hoạt chung 21m2, ngủ 2 14.7m2, ngủ 3 15m2, sân chơi 10m2.
Mẫu số 6: Ngắm mẫu bản vẽ thiết kế nhà mái lệch đẹp 2 tầng hiện đai vô cùng ấn tượng và sang trọng
Cùng ngắm nhìn chi tiết bản vẽ nhà mái lệch đẹp thiết kế 2 tầng hiện đại ngay dưới đây nhé.

Thiết kế nhà 2 tầng mái lệch hiện đại và tiện nghi với tone màu trắng, ghi, xám làm chủ đạo

Tổng mặt bằng công năng sử dụng của thiết kế nhà trải dài trên lô đất rộng lớn

Công năng sử dụng tầng 1 hợp lý và khoa học

Bản vẽ chi tiết mặt bằng công năng sử dụng thiết kế nhà 2 tầng mái lệch đẹp và hiện đại
Mẫu số 7: Giới thiệu mẫu thiết kế bản vẽ nhà mái lệch đẹp 2 tầng 9x10m
Cùng chiêm ngưỡng mẫu bản vẽ nhà mái lệch đẹp thiết kế nhà 2 tầng 9x10m 3 phòng ngủ hiện đại ở Hà Nội của gia đình ông Bá Qúy tại Hà Nội. Ngôi nhà được xây dựng 2 tầng hình chữ L, khoảng sân rộng rãi phía trước nhà thờ tha hồ để xe ô tô, xe máy, các trang thiết bị phục vụ cho nhu cầu sinh hoạt của gia đình. Với bố trí không gian vô cùng hợp lý, mạch lạc, thoáng đãng và mát mẻ. Khoảng sân còn là nơi có thể tận dụng để mắc rạp, kê bàn ghế ăn cơm, uống nước, và sinh hoạt mỗi khi gia đình có công việc, giỗ chạp, lễ tết, - nét phong tục không thể thiếu cho gia đình Việt.
Mẫu nhà 2 tầng mái lệch này có công năng sử dụng bao gồm
- Tầng 1: phòng khách (16.4m2), phòng bếp (17m2), phòng ngủ 1 (13.4m2), phòng vệ sinh (4.2m2).
- Tầng 2: ngủ 2 (13.4m2), ngủ 3 (14m2), sân chơi+phơi (16.8m2), ban công (3.2m2) WC (4m2).
- Chiều cao tầng: Tầng 1 (3.6m), Tầng 2 (6.9m), Mái (9.35m).

Phối cảnh 3D thiết kế nhà 2 tầng mái lệch kết hợp nhà thờ họ

Hình ảnh tổng thể mặt bằng công năng thiết kế nhà 9x10m có 3 phòng ngủ

Công năng tầng 1 hợp lý, khoa học trong tổng thể mẫu nhà 2 tầng mái lệch

Khám phá bản vẽ nhà mái lệch đẹp bố trí nội thất tầng 2 đầy đủ tiện nghi
Mẫu 8: Giới thiệu bản vẽ nhà mái lệch đẹp hiện đại
Kiến trúc nhà mái lệch phong cách hiện đại sang trọng, diện tích 8x17m. Thiết kế nhà mái lệch tầng với diện tích sử dụng 120m2, mang đến sự ấn tượng và khác biệt cho công trình. Các mặt cắt không gian không cân xứng mang lại những cảm giác mới mẻ, gợi mở về môi trường, không gian sống không cân xứng từ đó tạo nên một không gian kiến trúc đầy phong cách và sự cá tính cho gia chủ. Bố trí công năng sử dụng các tầng khoa học, hợp lý:
+) Tầng 1: Tiền sảnh: 5m2, Phòng khách 35m2, Gara ô tô: 20m2, Phòng bếp ăn: 22m2, Phòng ngủ 1: 12m2, WC1: 4.2m2
+) Tầng 2: Sảnh tầng 4m2, Phòng thờ: 15m2, Ban công 6.5m2, Phòng ngủ master 23.5m2, Ban công: 6m2, Wc3: 8.2m2, Phòng SHC: 17.5m2, Phòng ngủ 2: 13m2, WC2: 4.2m2.
Xem thêm: thiết kế biệt thự 2 tầng

Phối cảnh mặt tiền thiết kế nhà 2 tầng mái lệch diện tích 120m2

Chi tiết bản vẽ tổng mặt bằng công năng sử dụng mẫu nhà 2 tầng mái lệch đẹp
Khám phá mẫu bản vẽ nhà mái lệch đẹp thiết kế 3 tầng
Đầu tiên trong hàng ngàn thiết kế bản vẽ nhà mái lệch 3 tầng đẹp mà kiến trúc sư ANG đã hoàn thiện và trao đến tay khách hàng, chúng tôi muốn giới thiệu đến thiết kế nhà của ông Hà Quang Nam tại Phú Thọ. Đáp ứng mong muốn của chủ đầu tư xây dựng cho tổ ẩm của mình thiết kế nhà 3 tầng mái lệch, với phong cách kiến trúc hiện đại, không sử dụng các chi tiết trang trí cầu kì, công phu như phào chỉ, phù điêu, hoa văn nghệ thuật,.... mà thay vào đó là các mảng miếng, hình khối trang trí kiến trúc phẳng, trơn. Mẫu nhà có công năng sử dụng bao gồm:
- Diện tích: 90m2/sàn
- Thông số công năng:
+) Tầng 1: Tiền sảnh 9m2, Sảnh trung tâm 13.3m2, Phòng khách 21.1m2, WC1: 8.3m2, Phòng bếp ắn: 22.6m2, Phòng ngủ 1: 12.8m2
+) Tầng 2: Sảnh tầng 12.8m2, Phòng ngủ 2: 13.8m2, Ban công 6.6m2, WC2: 6.5m2, Phòng thay đồ: 6.1m2, Phòng ngủ 3: 16.5m2, Phòng ngủ 4: 14.8m2, WC3: 4.6m2
+) Tầng 3: Phòng thờ: 11m2, Ban công 10m2, Phòng ngủ 5: 12.8m2, Sân phơi: 32m2

Hình ảnh thiết kế nhà ở 3 tầng mái lệch đẹp và sang trọng diện tích 90m2

Bản vẽ tổng mặt bằng công năng thiết kế nhà mái lệch 3 tầng

Bố trí công năng tầng 1 nhà 90m2

Bản vẽ nhà mái lệch đẹp sử dụng công năng tầng 2 với 3 phòng ngủ

Sắp xếp nội thất tầng 3 hài hòa và khoa học
Với lô đất 113m2, diện tích không lớn nhưng khá vừa vặn để xây dựng một căn nhà phố 70m2 với phong cách hiện đại. Chúng tôi mang đến thiết kế nhà đẹp và ấn tượng cho chủ đầu tư Nguyễn Đức Thanh tại Hà Nội. Không chỉ thu hút người nhìn bởi thiết kế nhà sang trọng, mái lệch hiện đại hình khối nhà kiên cố vững chãi, mà nhà còn có công năng sử dụng gồm:
- Tổng diện tích: 70m2/sàn (74m/sàn)
- Công năng sử dụng:
+) Tầng 1: phòng thờ (8m2), phòng khách (27m2), sảnh chính (4m2), WC 1 (2m2), phòng bếp và cầu thang (19m2), phòng ăn (13,5m)
+) Tầng 2: phòng ngủ 1(17m2), phòng ngủ 2 (15,5m2), WC 2 (3,4m2), WC 3( 3m2), phòng Sinh hoạt chung (19m2), sảnh tầng (5,5m2)
+) Tầng 3: phòng giải trí (19m2), sảnh tầng (6,6m2), WC 4(3,4m2), WC 5(3m2), phòng ngủ 3 (17m2), phòng ngủ 4(15,5m2)
+) Tầng áp mái: sân kho (5m2), sân chơi + sân phơi (60m2)

Hình ảnh thiết kế mẫu nhà 3 tầng 1 tum mái lệch sang trọng diện tích 70m2 tại Hà Nội

Bản vẽ nhà 2 tầng mái lệch đẹp trong mẫu nhà 3 tầng mặt tiền 8m
Tiếp đến chúng tôi muốn chia sẻ hình ảnh phối cảnh 3D, mặt bằng công năng sử dụng thiết kế nhà cấu trúc mái lệch hiện đại và sang trọng tại Ba Vì - Hà Nội. Chú trọng vào sự tiện nghi, thoải mái. Mặt bằng công năng xác định vị trí của các không gian chức năng cũng như kích thước của các chi tiết thể hiện trên mặt bằng, kích thước các phòng ốc. Với diện tích sàn 70m2 x 3 tầng, không khó để kts bố trí các phòng ốc phù hợp với nhu cầu của chủ đầu tư. Số lượng phòng, vị trí cầu thang, cửa…đều được thể hiện trên mặt bằng, với mẫu nhà của Anh Quang, đúng như mong muốn mà anh đưa ra, chúng tôi sắp xếp công năng các tầng gồm:
Diện tích: 70m2/sàn
- Công năng:
Tầng 1: Sảnh chính 6m2, phòng khách 25.5m2, wc 1 3m2, phòng ngủ 1 12m2, phòng bếp ăn 16m2.
Tầng 2: phòng ngủ 2 11m2, wc 2 4.5m2, phòng ngủ 3 17m2, wc 3 10m2, sảnh tầng 7m2, ban công 5m2.
Tầng 3: Sảnh tầng 6.5m2, sân chơi 15m2, phòng kho 8m2, phòng sinh hoạt chung 17m2, wc 4 4m2.

Hình ảnh mặt tiền thiết kế nhà 3 tầng mái lêch khang trang hiện đại có ban công rộng

Cách thiết kế mặt bằng công năng tiện nghi, khoa học cho ngôi nhà 3 tầng 70m2 3 phòng ngủ đẹp

Bản vẽ nhà mái lệch đẹp - bố trí tầng 2 tiện nghi và hài hòa

Công năng sử dụng tầng ba của mẫu nhà 3 tầng mái lệch hiện đại
Thiết kế nhà của gia đình anh Dương tại Quảng Ninh lấy hệ thống mái lệch làm điểm nhấn kiến trúc. Toàn bộ phần mái được đổ bê tông, sau đó dán ngói phẳng lên trên tạo nên sự mới mẻ, ấn tượng và khác biệt cho ngoại thất ngôi nhà đẹp. Do đó, phương án làm trần nhà cần phải được thay đổi thành trần thạch cao để phù hợp với kết cấu mái đang được sử dụng cho ngoại thất ngôi nhà đẹp 3 tầng hiện đại. Kết cấu mái lệch gióng như ngoại thất ngôi nhà 3 tầng hiện đại được nhiều gia đình yêu thích và lựa chọn xây dựng cho gia đình mình. Bản vẽ nhà mái lệch đẹp với công năng các tầng tương ứng:
+) Tầng 1:Phòng khách 24m2, Gara ô tô: 20.2m2, Phòng ăn 12m2, Phòng bếp 8.3m2, WC1 5.1m2.
+) Tầng 2: Sảnh tầng 5.3m2, Phòng ngủ 1 14.5m2, Phòng ngủ 2 17m2, Phòng ngủ 3: 20m2. Ban công 1: 2,5m2, Ban công 2 7.2m2, WC3: 5.3m2, Thay đồ 9m2.
+) Tầng 3: Sảnh tầng 5.3m2, Kho 3.5m2, Sân giặt phơi 7m2, Phòng ngủ 4 12.5m2, Ban công 2.5m2, WC 4: 5.0m2, Phòng giải trí 14.5m2, Ban công 7.2m2, Phòng thờ 13.2m2, Ban công 5.5m2.

Hình ảnh mẫu thiết kế mặt tiền nhà 3 tầng hiện đại 9m diện tích 90m2 đẹp

Bản vẽ công năng sử dụng mặt bằng tầng 1 trong thiết kế nhà 3 tầng hiện đại có mái lệch

Mặt bằng bố trí nội thất sử dụng tại tầng 2

Bản vẽ bố trí mặt bằng công năng sử dụng của tầng 3
Những chia sẻ về các thiết kế nhà mái lệch 1, 2, 3 tầng nêu trên được cụ thể hóa và làm rõ trong bản vẽ nhà mái lệch đẹp. Bản vẽ gồm bao gồm các bản vẽ thiết kế chi tiết, mặt bằng, mặt đứng, mặt cắt, hồ sơ phần điện, nước. Tất cả những yếu tố nội thất và ngoại thất của ngôi nhà đã phối hợp hài hòa với nhau tạo thành một tổng thể nhà hoàn chỉnh và hiện đại từ thẩm mỹ đến công năng. Hy vọng những thông tin trên mà ANG chia sẻ đã giúp bạn có được ý tưởng cho tổ ẩm của mình.
Nếu bạn muốn tham khảo các mẫu nhà biệt thự mái lệch khác hãy liên hệ với văn phòng tư vấn của Angcovat theo hotline: 0988 030 680
Xem thêm: biệt thự 3 tầng 1 tum








