Chỉn chu trong từng đường nét thiết kế, sang trọng trong cách phối màu, hiện đại với chất liệu sử dụng, tiện nghi trong cách bố trí mặt bằng công năng. Tất cả hứa hẹn sẽ tạo ra không gian sống thư thái, nhiều trải nghiệm cho mẫu nhà 3 tầng hình chữ l 6 phòng ngủ BT325046.
Mẫu nhà 3 tầng hình chữ l diện tích 120m2 do kiến trúc sư trẻ Vương Văn Quân thiết kế cho lô đất diện tích 320m2 của gia đình ông Lợi ở Đông Anh, Hà Nội, với mức kinh phí khoảng 2 tỷ đồng. Mẫu nhà được sáng tạo dựa trên những yêu cầu cơ bản về mặt công năng cũng như phong cách kiến trúc mà gia chủ yêu thích cùng với sự tư vấn, định hướng của kiến trúc sư concept. Theo đó, mẫu nhà 3 tầng hình chữ l mặt tiền 10m sẽ bao gồm 1 phòng khách, 1 bếp ăn, 1 phòng thờ, 6 phòng ngủ và các khu sinh hoạt phụ khác.
Là con cả trong gia đình, thường xuyên phải đón tiếp một lượng khách lớn, đặc biệt là vào các dịp lễ tết hay giỗ chạp, ông Lợi mong muốn sở hữu một ngôi nhà 3 tầng hình chữ l 6 phòng ngủ có thiết kế sân vườn. Đơn giản, tinh tế, gọn gàng cũng là những điều mà gia chủ muốn hướng tới trong công trình của mình.
Mẫu biệt thự: BT325046
Chủ đầu tư: ông Lợi
Địa chỉ: Đông Anh- Hà Nội
Mặt tiền: 10m
Chiều sâu: 13m
Kích thước ô đất: 320m2
Kiến trúc sư thiết kế: Vương Văn Quân
Năm thi công: 2016
Kinh phí đầu tư dự kiến: 2 tỷ đồng
Thông số công năng, diện tích: Diện tích sàn 120m2/sàn
- Tầng 1: 1 phòng ngủ, 1 phòng khách, 1 phòng bếp.
- Tầng 2: 3 phòng ngủ, 2 phòng vệ sinh. 1 phòng sinh hoạt chung.
- Tầng 3: 1 phòng thờ, 2 phòng ngủ, 1 sân chơi, 1 sân phơi, 1 phòng vệ sinh
Như đã giới thiệu ở trên, gia chủ của mẫu nhà 3 tầng hình chữ l mặt tiền 10m yêu thích sự đơn giản, tinh tế và nhẹ nhàng. Đó cũng là lý do mà chúng tôi lựa chọn phong cách kiến trúc hiện đại cho công trình này. Kết tinh của phong cách hiện đại là sự đơn giản. Chất hiện đại hướng tới sự tinh tế bằng việc giản lược các yếu tố trang trí rườm rà. Kiến trúc hiện đại tập trung tăng cường sử dụng không gian, mặt bằng công năng hiệu quả.
Theo đuổi phong cách đơn giản không đồng nghĩa với việc mẫu nhà 3 tầng hình chữ l mái bằng đánh mất những nét cá tính riêng. Sự loại bỏ các chi tiết trang trí rườm rà cũng không cho phép mẫu nhà 3 tầng diện tích 120m2 được cẩu thả, mờ nhạt. Đơn giản ở đây chính là chìa khóa tạo nên sự sang trọng, tinh tế và đẳng cấp cho ngôi nhà của gia đình ông Lợi. Vậy chiếc chìa khóa ấy đã mở ra ổ khóa tiện nghi, hiện đại như nào? Ngay bây giờ hãy cùng chúng tôi bớt chút thời gian tham quan mẫu nhà 3 tầng hình chữ l để cùng khám phá nhé!
Mẫu nhà 3 tầng hình chữ l diện tích 120m2 gây ấn tượng với người đối diện trước hết bởi hình khối kiến trúc vuông vức, bề thế, góc cạnh sắc nét, tăng cường sử dụng các góc vuông tạo hiệu ứng không gian rộng mở, thông thoáng. Tổ chức mặt bằng tự do phi đối xứng, sự kết nối của các hình khối kích thước khác nhau đã tạo nên sự độc đáo và nét riêng cho công trình.
Mẫu nhà 3 tầng hình chữ l 6 phòng ngủ độc đáo với kiểu dáng mới. Kiểu dáng chữ l được khá nhiều gia chủ ưa chuộng, đặc biệt là những gia chủ sở hữu lô đất có diện tích rộng, có lợi thế về cảnh quan sân vườn. Thiết kế nhà hình chữ l khá thuận lợi trong việc sắp xếp bố trí mặt bằng công năng mà lại tiết kiệm diện tích đất sử dụng.Tuy nhiên khi thiết kế nhà hình chữ l, gia chủ cũng cần để tâm tới yếu tố phong thủy và các giải pháp làm đầy phần không gian bị khuyết thiếu.
Điểm sáng tiếp theo không thể bỏ qua của mẫu nhà 3 tầng hình chữ l mái bằng là bức tường giả trang trí ở mặt bên ngôi nhà và hệ giàn tầng 3. Thiết kế giàn hoa trang trí là một xu hướng khá phổ biến hiện nay, nhất là trong các mẫu biệt thự hiện đại. Giàn hoa giúp không gian trở nên đầy đặn hơn, gia chủ cũng có thể kết hợp làm nơi nuôi trồng, chăm sóc các lẵng hoa, giỏ hoa, tăng thêm màu sắc và sức sống cho không gian sống của gia đình mình.

Phối cảnh 01 mẫu nhà 3 tầng hình chữ l kinh phí 2 tỷ đồng mái bằng
Sự kết hợp hài hòa giữa các khối bê tông và chất liệu kính tạo ra nhiều trải nghiệm thú vị cho các khoảng không gian trong mẫu biệt thự 3 tầng diện tích 120m2 hình chữ l. Một không gian hoàn toàn được đóng kín bởi 4 bức tường vách đảm bảo sự an toàn và tính riêng tư cho cuộc sống của mỗi thành viên. Tuy nhiên nó lại vô cùng thông thoáng, sáng sủa, hòa hợp với môi trường bên ngoài, tạo cảm giác thân thiện, thoải mái khi tấm rèm được kéo ra, để lộ lớp kính, cho phép ánh mặt trời chiếu vào và cho phép chủ nhân căn phòng nhìn thấy rõ cảnh vật xung quanh.
Mẫu nhà 3 tầng hình chữ l mái bằng lựa chọn màu trắng làm tone màu ngoại thất chủ đạo. Không phải ngẫu nhiên mà màu trắng lại được nhiều gia chủ lựa chọn cho ngôi nhà hiện đại của mình. Chỉ xét riêng về mặt thẩm mỹ, ta có thể đánh giá cao sự chuyển hóa cảm giác tinh tế mà sắc trắng mang lại ngôi nhà và cho người đối diện. Màu trắng vừa nhẹ nhàng, quyến rũ nhưng có khi lại sôi nổi, khỏe khoắn, tràn đầy sức sống dưới ánh mặt trời. Màu trắng vừa sang trọng, đẳng cấp nhưng cũng không kém phần gần gũi, thân thiện.
Xét về phong thủy, màu trắng đại diện cho nguồn năng lượng dương, cho sự chuyển động mạnh mẽ. Màu trắng là khởi nguồn cho sự mới mẻ, cho những điều tốt lành. Và quan trọng hơn cả, màu trắng được đánh giá là phù hợp với gia chủ mệnh kim như chủ nhân của mẫu nhà 3 tầng hình chữ l kích thước 10x13m.
Trong thiết kế mẫu nhà 3 tầng hình chữ l kinh phí 2 tỷ đồng, màu trắng kết hợp với gam màu nâu trung tính. Màu nâu mang lại cảm giác ấm áp, cân bằng thị giác người nhìn, cân bằng nguồn năng lượng âm dương. Màu nâu trầm tạo sự ổn định, tính bền vững cho ngôi nhà.
Một điểm độc đáo trong cách phối màu của mẫu nhà 3 tầng mặt tiền 10m hình chữ l là màu sắc không đơn giản đến từ màu sơn mà đến từ nhiều loại chất liệu mới khác nhau. Nếu như màu trắng là lớp sơn ngoại thất thì màu nâu lại đến từ lớp gạch thẻ ốp tường.

Phối cảnh 02 mẫu nhà 3 tầng hình chữ l mái bằng mặt tiền 10m
Mẫu nhà 3 tầng hình chữ l kinh phí 2 tỷ đồng sở hữu thiết kế mái bằng hiện đại. Hiện nay nhà mái bằng đang là xu thế mới mang lại nhiều trải nghiệm mới mẻ cho mẫu nhà hiện đại. Nhà mái bằng đem tới hiệu quả thẩm mỹ cao, đảm bảo công năng che chắn mưa gió, bảo vệ cho ngôi nhà của bạn. Nhà mái bằng vận dụng chất liệu bê tông cốt thép mới, đảm bảo độ bền theo thời gian.
Tuy nhiên điểm hạn chế của nhà mái bằng nói chung và mẫu nhà 3 tầng hình chữ l mặt tiền 10m nói riêng lại đến từ chính hệ bê tông cốt thép được áp dụng. Do lớp bê tông, lớp gạch lót bên trên, lớp hồ dầu quét chống thấm làm cho hệ mái bị bí, khó khăn trong việc tỏa nhiệt. Ngoài ra, mái bằng không bị dột nhưng sẽ bị thấm nước và tạo thành những vệt nước ố màu dưới trần nhà.
Để khắc phục những nhược điểm này, trong khi thi công mẫu thiết kế 120m2 nhà 3 tầng hình chữ l 6 phòng ngủ, chúng tôi tư vấn gia chủ nên đổ âm sàn bê tông, bên trên là lớp xốp dày 12cm, trên lớp xốp là lớp bê tông lưới thép mỏng, tất cả phải được chống thấm và lót gạch sàn trên cùng. Trên cùng, để đảm bảo tính thẩm mỹ cũng như công năng là lớp sơn chống thấm.

Phối cảnh 03 mẫu nhà 3 tầng hình chữ l mặt tiền 10m 6 phòng ngủ
Tọa lạc trên ô đất diện tích rộng 220m2, mẫu nhà 3 tầng hình chữ l 6 phòng ngủ sở hữu hệ cảnh quan sân vườn khang trang và vô cùng thoáng đãng. Toàn bộ khoảng sân trước nhà đều được lát gạch sạch sẽ, thuận tiện cho việc vệ sinh, quét dọn. Sân nhà rộng rãi là nơi lý tưởng để để xe, làm nơi vui chơi an toàn cho trẻ nhỏ hay làm nơi tổ chức các bữa ăn, bữa cỗ đông người vào mỗi dịp gia đình có việc lớn. Xét về phong thủy, khoảng sân thông thoáng trước nhà sẽ là nơi nuôi dưỡng, bảo vệ dòng khí xung trực. Để tăng thêm tính thẩm mỹ cho ngôi nhà 3 tầng hình chữ l mái bằng, gia chủ có thể kết hợp bố trí, sắp đặt bồn hoa, cây cảnh hay hòn non bộ, xích đu tại các góc sân.
Lớp bảo vệ an toàn ngoài cùng của mẫu nhà 3 tầng hình chữ l mặt tiền 10x13m là hệ cổng hàng rào kiên cố. Thiết kế hệ thống cổng hàng rào đồng nhất với kiểu dáng, màu sắc cũng như phong cách của ngôi nhà tạo sự hoàn hảo về mặt tổng thể. ANG sở hữu một bộ sưu tập cổng và hàng rào khá bắt mắt, phù hợp với nhiều mẫu nhà, các bạn có thể tham khảo thêm tại các mẫu cổng và hàng rào đẹp.

Mặt bằng tổng thể mẫu nhà 3 tầng hình chữ l 6 phòng ngủ phong cách hiện đại
Mẫu nhà 3 tầng hình chữ l mặt tiền 10x13m sở hữu hệ thống công năng tiện nghi và vô cùng sang trọng. Cách bố trí phòng ốc logic, thuận tiện cho việc di chuyển và sinh hoạt chung của cả gia đình, đáp ứng đầy đủ nhu cầu mà gia chủ mong muốn. Ngoài ra trong quá trình sắp xếp các khoảng không gian chức năng chi mẫu nhà 3 tầng hình chữ l mái bằng, kiến trúc sư còn phải cân nhắc các yếu tố tiết kiệm diện tích và đảm bảo không gian luôn thông thoáng, dòng khí lưu chuyển thông suốt.
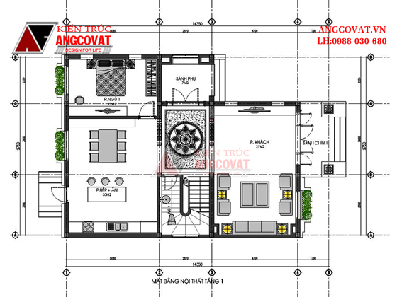
Tầng 1 mẫu nhà 3 tầng hình chữ l phong cách hiện đại bao gồm 1 phòng khách, 1 bếp ăn, 1 phòng ngủ và khu vực sảnh. Từ sảnh chính bước vào là không gian phòng khách. Phòng khách thiết kế sang trọng, hiện đại, là bộ mặt của cả gia đình. Nối tiếp phòng khách là sảnh trung tâm. Sảnh trung tâm có vai trò như trục giao thông chính, phân luồng các lối đi hợp lý, thuận lợi cho quá trình di chuyển, lại giúp không gian thông thoáng hơn.
Trong mẫu thiết kế nhà 3 tầng hình chữ l phong cách hiện đại, để ngăn cách phòng khách và sảnh chúng tôi sử dụng lam gỗ trang trí. Giải pháp này hiện nay được khá nhiều ngôi nhà hiện đại ưa chuộng bởi những ưu việt của nó. Thứ nhất là ở tính thẩm mỹ, lam gỗ giúp không gian trở nên mềm mại, uyển chuyển hơn. Ngoài ra lam gỗ còn giúp tăng diện tích chứa đựng, gia chủ có thể kết hợp để lên đó vài món đồ trang trí nhỏ xinh cho không gian thêm ấm áp.
Trong cùng là không gian phòng bếp ấm cúng của mẫu thiết kế nhà 3 tầng hình chữ l 6 phòng ngủ. Bếp ăn diện tích khá rộng, là nơi sinh hoạt chung, nuôi dưỡng tâm hồn, giữ lửa gia đình cho các thành viên- theo quan niệm truyền thống của người Việt. Đó là lý do vì sao trong các mẫu thiết kế của ANG, chúng tôi cực kỳ trau chuốt cho khoảng không gian này.
Khu vực nấu nướng bố trí gọn gàng sát chân tường, được trang bị nội thất tiện nghi. Bàn ăn bằng gỗ kích thước lớn kê giữa phòng cạnh cửa sổ lớn. Thiết kế lối đi phụ dẫn ra khu vực rửa ráy phía sau vô cùng thuận tiện mỗi khi gia đình phải làm cỗ, đón tiếp một lượng khách lớn.

Mặt bằng công năng tầng 1 mẫu nhà 3 tầng hình chữ l phong cách hiện đại diện tích 120m2
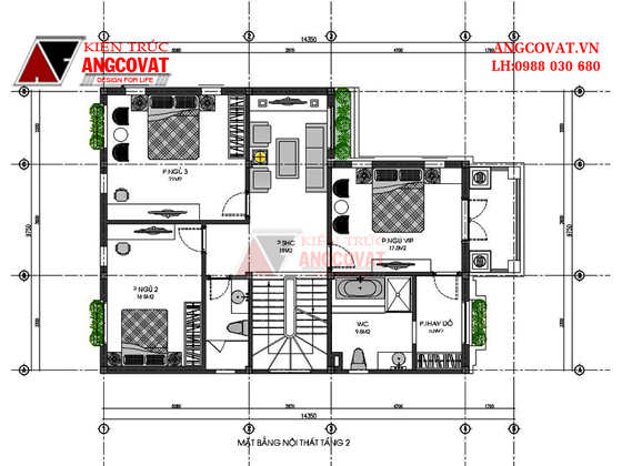
Nếu như tầng 1 là không gian sinh hoạt chung thì tầng 2 của mẫu nhà 3 tầng hình chữ l mái bằng lại là các khoảng không gian riêng tư của mỗi thành viên trong gia đình. Bởi vậy mà tầng 2 có phong cách kiến trúc khá độc đáo, tùy thuộc và sở thích của chủ nhân mỗi căn phòng.
Tuy nhiên điểm chung của hệ thống phòng ngủ trong mẫu nhà 3 tầng hình chữ l kinh phí 2 tỷ đồng là sự tiện nghi, thoải mái mà nó tạo ra. Nội thất từng phòng đầy đủ, bố trí ngăn nắp, thông thoáng với giường ngủ kích thước lớn, hệ bàn ăn và bàn làm việc, kệ tivi màn hình lớn, tủ đựng đồ, bàn tròn uống nước. Thiết kế cửa sổ đón gió và ánh sáng tự nhiên, tạo không khí thoáng đãng cho căn phòng, tránh gây bí khí, tạo cảm giác khó chịu.
Mẫu nhà 3 tầng hình chữ l kích thước 10x13m sở hữu một phòng ngủ vip dành cho vợ chồng gia chủ. Phòng ngủ vip có kích thước khá lớn, có khu vệ sinh thay đồ khép kín. Thiết bị vệ sinh tiện nghi, cao cấp hứa hẹn sẽ mang lại những giây phút nghỉ ngơi thư thái nhất cho gia chủ sau mỗi ngày làm việc căng thẳng.

Mặt bằng nội thất tầng 2 mẫu nhà 3 tầng hình chữ l diện tích 120m2 kinh phí 2 tỷ đồng
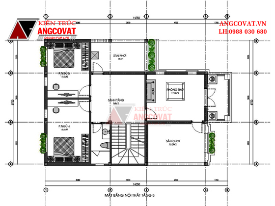
Tầng 3 của mẫu nhà 3 tầng hình chữ l phong cách hiện đại được bố trí thêm 2 phòng ngủ nữa, dành làm nơi nghỉ ngơi mỗi dịp gia đình phải đón một lượng khách lớn. Là con cả trong gia đình, thường xuyên phải tổ chức các bữa gặp mặt gia đình hay các dịp lễ lạc nên gia đình ông Lợi thường xuyên phải đón tiếp các đợt khách đông, là con cháu trong họ.
Tầng 3 mẫu nhà 3 tầng hình chữ l 6 phòng ngủ sở hữu thiết kế phòng thờ đẹp. Phòng thờ được đặt ở tầng cao nhất, vừa yên tĩnh lại gần trời, đón linh khí. Phòng thờ thiết kế trang trọng, tôn nghiêm thể hiện tấm lòng thành kính của thế hệ cháu con với ông bà tổ tiên. Bàn thờ kê dựa lưng chắc chắn vào tường, hướng ra phía cửa chính hợp mệnh với gia chủ.
Khu vực sân chơi và sân phơi của mẫu nhà 3 tầng hình chữ l vô cùng thông thoáng. Thiết kế rào sắt vừa bảo vệ sự an toàn cho ngôi nhà lại tận dụng được ánh nắng và gió, giúp quần áo mau khô. Thiết kế giếng trời ở sảnh tầng giúp tăng độ sáng cho không gian bên dưới, dấu hiệu tốt của quá trình trao đổi năng lượng.

Mặt bằng nội thất tầng 3 mẫu nhà 3 tầng hình chữ l kinh phí 2 tỷ đồng mái bằng
Kết thúc chuyến thăm quan ngôi nhà 3 tầng hình chữ l mái bằng, bạn đã tìm được ý tưởng hay ho nào đó cho ngôi nhà tương lai của gia đình mình hay chưa? Nếu còn phân vân, hãy liên hệ với chúng tôi để được tư vấn và giải đáp cụ thể hơn từ kiến trúc ngoại thất, mặt bằng nội thất, kết cấu cho đến phong thủy hay trang trí không gian. Đến với ANG, bạn sẽ được làm việc với đội ngũ kiến trúc sư tài năng, tâm huyết, nhiệt tình. Bạn sẽ được nhận lại nhiều hơn là một mẫu nhà 3 tầng hình chữ l, mà nó còn là những giá trị mà nó mang lại cho cuộc sống của bạn.
Mọi thông tin cần tư vấn xin vui lòng liên hệ: 0988.030.680