Biệt thự mặt tiền 10m diện tích 120m2 hình chữ l là món quà đặc biệt kiến trúc ANG dành tặng cho lô đất của gia đình ông Lợi ở Đông Anh, Hà Nội với hy vọng sẽ mang tới nhiều trải nghiệm thú vị nhất cho gia chủ ngay trong chính không gian sống của mình. Còn gì tuyệt vời hơn sau mỗi ngày làm việc căng thẳng được trở về sum họp bên gia đình, trong tổ ấm do chính đôi tay tạo nên.
Cũng đóng vai trò là khách hàng, cũng là những người mong muốn sở hữu một tổ ấm tiện nghi, thoải mái bên gia đình, hơn ai hết, chúng tôi hiểu rằng một không gian lý tưởng sẽ tạo nên những giá trị đích thực của cuộc sống. Một không gian tiện nghi sống sẽ nạp lại năng lượng cho các thành viên sau một ngày làm việc dài. Và ước muốn sở hữu một công trình độc đáo mang dấu ấn riêng của cá nhân, gia đình, vừa đảm bảo công năng, thẩm mỹ, kinh tế lại phù hợp phong thủy, tuổi mệnh là ước muốn không chỉ của riêng ai.
Nắm bắt được tâm lý chung của khách hàng, kiến trúc angcovat liên tục đưa ra các mẫu thiết kế mới, kiểu dáng độc đáo, đảm bảo cả 4 tính năng yêu cầu. Mẫu thiết kế biệt thự mặt tiền 10m 3 tầng hình chữ l cũng là một trong số đó. Ngay bây giờ, hãy cùng chúng tôi, dành chút thời gian đến thăm ngôi biệt thự mặt tiền 10m 3 tầng 5 phòng ngủ của gia đình ông Lợi, biết đâu bạn sẽ kiếm tìm được ý tưởng hay ho nào đó cho ngôi nhà tương lai của mình.
Mẫu biệt thự: BT113056
Số tầng: 03
Chủ đầu tư: Ông Lợi
Địa chỉ: Đông Anh-Hà Nội
Mặt tiền: 10m
Chiều sâu: 13m
Kích thước ô đất: 15,5x23m
Kiến trúc sư thiết kế: kts Angcovat
Năm thi công: 2016
Kinh phí đầu tư dự kiến: 1,8 tỷ đồng
Thông số công năng diện tích: 120m2/sàn
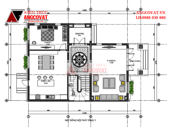
- Tầng 1: 1 phòng khách, 1 phòng bếp ăn, 1 phòng ngủ, 1 sảnh phụ.
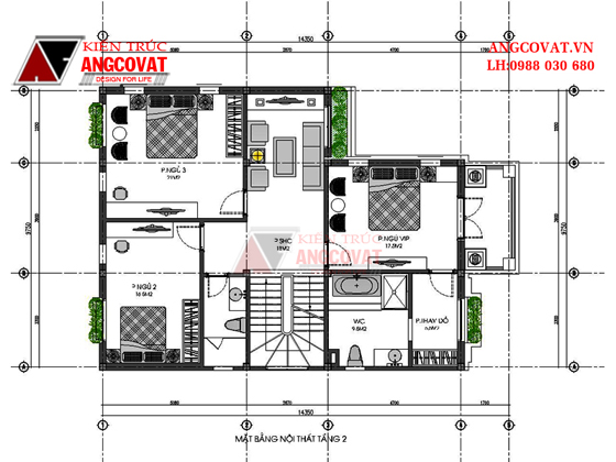
- Tầng 2: 1 phòng sinh hoạt chung, 2 phòng ngủ, 2 phòng vế sinh, 1 phòng thay đồ.
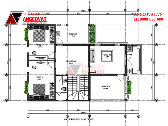
- Tầng 3: 1 sảnh tầng, 1 sân chơi, 2 phòng ngủ, 1 sân phơi, 1 phòng thờ.
Mẫu thiết kế biệt thự mặt tiền 10m 3 tầng mái thái theo đuổi phong cách hiện đại, đề cao sự đơn giản, lấy yếu tố trang nhã làm sợi chỉ đỏ xuyên suốt ý tưởng công trình.
Đơn giản là sự tối giản các chi tiết trang trí mặt đứng, các đường nét, hoa văn cách điệu cột, phào, từ rườm rà, cầu kì đến nhẹ nhàng, tinh tế.
Đơn giản là sự tận dụng chi tiết đường thẳng, mặt phẳng tối đa tạo sự rộng mở và độ thoáng cho không gian.
Đơn giản là sự áp dụng chất liệu mới: kính, gỗ, bê tông,... kết hợp vận dụng kĩ thuật hiện đại, đề cao dây chuyền công năng hợp lý, tăng độ bền và tuổi thọ sử dụng cho công trình.
Trong mẫu biệt thự mặt tiền 10m 3 tầng diện tích 120m2, đơn giản không đồng nghĩa với sự đơn điệu mà trái lại còn tạo cảm giác tinh tế, tươi mới và sang trọng. Không thể phủ nhận, chính sự đơn giản giúp cho ngôi biệt thự mặt tiền 10m trở nên ấn tượng hơn trong mắt người đối diện.
Không quá phô trương cầu kì, cũng chẳng cần rườm rà, rối rắm, mẫu biệt thự mặt tiền 10m 3 tầng kinh phí 1,8 tỷ đồng thuyết phục gia chủ trước hết lại chính ở sự hài hòa, về màu sắc, hình khối, cảnh quan chung quanh.
Biệt thự mặt tiền 10m 3 tầng kinh phí 1,8 tỷ đồng sở hữu hình khối kiến trúc cân đối, bề thế. Các khối vuông vững chãi xếp chồng lên nhau tạo cảm giác khỏe khoắn, chắc chắn. Tăng cường sử dụng các góc vuông, góc cạnh sắc nét, tạo cảm giác không gian mở rộng. Hệ thống cột vuông nâng đỡ vững vàng. Cột vuông trang trí đơn giản, điểm nhấn được tạo ra ở phần đầu và khối chân đế phình to, thân cột để trắng.

Phối cảnh 01 thiết kế biệt thự mặt tiền 10m 3 tầng mái thái diện tích 120m2
Biệt thự mặt tiền 10m 3 tầng hình chữ l lấy gam màu trắng sáng làm gam màu chủ đạo. Xét về mặt phong thủy, màu trắng được đánh giá là phù hợp với gia chủ mệnh kim. Màu trắng đại diện cho nguồn năng lượng dương, cho sự chuyển động mạnh mẽ. Màu trắng còn mang lại sự tươi mới, hứng khởi, cho những khởi đầu tốt lành.
Về mặt thẩm mỹ, trong biệt thự mặt tiền 10m 3 tầng mái thái, màu trắng được đánh giá là hài hòa với cảnh quan chung quanh, thích hợp làm nền tôn lên sự nổi bật cho các tone màu khác. Yêu tố công năng cũng là điều không thể bỏ qua khi sử dụng gam màu này. Màu trắng, với đặc tính phản chiếu ánh sáng cao, giúp ngôi biệt thự mặt tiền 10m 3 tầng diện tích 120m2 tận dụng hiệu quả ánh nắng mặt trời vùng nhiệt đới, tăng ánh sáng cho không gian, tiết kiệm điện năng sử dụng.
Trong mẫu biệt thự mặt tiền 10m màu trắng được kết hợp hài hòa với gam màu nâu của hệ mái thái và hệ thống cửa gỗ kính. Ngoài ra chúng tôi còn sử dụng thêm gam màu ghi trang nhã ốp gạch thẻ cho bề mặt tường tầng 1.

Phối cảnh 02 thiết kế biệt thự mặt tiền 10m 3 tầng diện tích 120m2 phong cách hiện đại
Theo đuổi phong cách hiện đại, mẫu biệt thự mặt tiền 10m 3 tầng diện tích 120m2 sử dụng kết hợp nhiều chất liệu mới, tích hợp nhiều tính năng ưu việt, góp phần tạo ra môi trường vi khí hậu bền vững cho toàn bộ ngôi nhà, mang đến nhiều sự trải nghiệm thú vị cho gia chủ ngay trong chính không gian sống của mình.
Chất liệu mới được chúng tôi áp dụng cho ngôi biệt thự mặt tiền 10m 3 tầng hình chữ l, trước hết là chất liệu kính. Cửa kính khung gỗ được dùng đồng bộ cho toàn hệ thống cửa nhà, từ cửa chính đến cửa sổ tạo sự đồng nhất, mang lại ấn tượng về sự sang trọng. Hiện nay chất liệu mới này đang được khá nhiều gia chủ ưa chuộng và lựa chọn sử dụng cho công trình của mình. Có thể điểm qua vài điểm sáng nổi bật của cửa kính như sau.
Cửa kính giúp ngôi biệt thự mặt tiền 10m 3 tầng phong cách hiện đại tận dụng nguồn ánh sáng tự nhiên bởi đặc tính trong suốt. Cửa nhà cũng là nơi giao nhau giữa môi trường sống tự nhiên và nhân tạo, là nơi đón gió, đón sáng và lưu chuyển của dòng khí vượng. Ngoài ra cửa kính còn có tác dụng chống va đập mạnh, độ bền cao, chống tiếng ồn và các âm hiệu quả. Để tự do điều chỉnh lượng ánh sáng thu được, gia chủ có thể sử dụng kính màu hoặc lắp đặt hệ thống rèm cửa tối màu phía trong.
Một loại vật liệu mới nữa cũng không thể bỏ qua trong thiết kế biệt thự mặt tiền 10m kinh phí 1,8 tỷ đồng là loại mái ngói thái CPac Monier. Ngói thái sóng nhỏ kết hợp với cả bộ phụ kiện mái bao gồm ngói nóc, ngói rìa, ngói 3 chạc,... tạo nên mức độ ghép nối, hoàn thiện cao nhất cho hệ mái. Mái ngói thái cpac monier sản xuất theo công nghệ wet on wet, có độ bền màu cao, giữ công trình luôn tươi mới theo thời gian, ngay cả dưới tác động của thời tiết mưa gió.

Phối cảnh 03 biệt thự mặt tiền 10m 3 tầng phong cách hiện đại hình chữ l
Biệt thự mặt tiền 10m 3 tầng phong cách hiện đại sở hữu thiết kế cảnh quan sân vườn khang trang, rộng rãi. Ngoài 120m2 đất dùng để xây nhà, toàn bộ quỹ đất còn lại được tận dụng thiết kế cảnh quan sân vườn bao quanh. Theo lời khuyên của phong thủy, nếu như có một quỹ đất vừa đủ, bạn nên cố gắng thiết kế một công trình bao gồm cả khu vực sinh hoạt và sân nhà bởi khoảng không gian ấy có ý nghĩa bảo vệ dòng khí xung trực khá tốt. Ngoài ra cũng có thể tận dụng góc sân nhỏ để đặt các chậu hoa, cây cảnh, tạo không gian xanh cho công trình, thích hợp làm nơi nghỉ ngơi trò chuyện, uống trà chiều hay nơi vui chơi cho trẻ nhỏ.
Bảo vệ cho ngôi biệt thự mặt tiền 10m 3 tầng kích thước 120m2 lớp ngoài cùng là hệ thống cổng, hàng rào kiên cố. Hệ thống cổng, hàng rào có kiến trúc, màu sắc đồng nhất với toàn bộ công trình. Phần tường bao phía dưới chắc chắn, hàng rào bên trên vừa kín đáo nhưng cũng không quá bí bức, tạo độ thoáng cho tầm mắt.

Mặt bằng tổng thể biệt thự mặt tiền 10m 3 tầng hình chữ l 5 phòng ngủ
Biệt thự mặt tiền 10m 3 tầng mái thái sở hữu hệ thống công năng tiện nghi, hiện đại, đồng nhất với thiết kế ngoại thất. Cách bố trí mặt bằng khoa học, logic, tiện cho quá trình sinh hoạt, sử dụng chung giữa các thành viên trong gia đình. Hệ thống phòng chức năng phân chia rõ ràng, hợp lý nhưng vẫn đảm bảo tính kết nối, thống nhất.
Thiết kế hình chữ l cho biệt thự mặt tiền 10m 3 tầng mái thái là giải pháp tăng cường diện tích sử dụng, dễ dàng bố trí, sắp xếp mặt bằng công năng tối ưu.
Tầng 1 của mẫu nhà biệt thự mặt tiền 10m 3 tầng 5 phòng ngủ bao gồm 1 phòng khách, 1 bếp ăn và 1 phòng ngủ. Từ sảnh chính bước vào là không gian phòng khách sang trọng và vô cùng rộng rãi. Trước khi bước vào nơi kê bàn ghế, tivi là khu vực sảnh đón. Tiếp theo là sảnh trung tâm. Sảnh trung tâm có vai trò như nút giao thông chính, phân chia các luồng giao thông, thuận tiện cho việc di chuyển, sắp xếp nội thất.
Trong mẫu biệt thự mặt tiền 10m 3 tầng kinh phí 1,8 tỷ đồng, thay vì sử dụng các bức vách thô cứng làm khối ngăn, kiến trúc sư đã tạo ra sự uyển chuyển, mềm mại cho không gian với thiết kế lam gỗ trang trí hiện đại. Đây là giải pháp được khá nhiều gia chủ ưa chuộng hiện nay. Không chỉ có tác dụng phân chia, thẩm mỹ, bạn còn có thể tăng thêm không gian chứa đựng, trang trí cho ngôi nhà nhờ vào các ô trống.
Đối diện với khu vực cầu thang là sảnh trung tâm dẫn ra lối đi phụ ở mặt bên của ngôi nhà mặt tiền 10m 3 tầng phong cách hiện đại. Thiết kế như vậy vừa hợp lý, không gây cản trở lối đi, vướng tầm nhìn mà lại tận dụng được ánh sáng, giúp khu vực cầu thang luôn thông thoáng, sáng sủa, đẩy nhanh tốc độ lưu thông dòng khí từ trên xuống, tác động tốt đến phong thủy ngôi nhà.
Khu vực nấu ăn bố trí gian phía trong cùng của thiết kế biệt thự mặt tiền 10m mái thái 3 tầng. Phòng bếp được trang bị thiết bị hiện đại, tiện nghi giúp công việc bếp núc của người phụ nữ trở nên nhanh chóng, đỡ vất vả hơn. Không gian đứng nấu rộng rãi, thoải mái, thiết kế bệ đứng nấu có độ cao vừa phải, tránh gây mỏi trong quá trình làm bếp. Bộ bàn ăn kê ngay ngắn giữa phòng cùng thiết kế ''quầy bar'' nhỏ giúp không gian trở nên tiện nghi hơn, sung túc hơn.
Thiết kế lối đi phụ dẫn ra mặt sau của ngôi nhà tiện cho việc di chuyển, đặc biệt là khi đi chợ về, xách thức ăn vào nhà mà không gây ảnh hưởng đến các không gian khác. Khi ra đình có việc thì khoảng trống phía sau cũng là nơi rộng rãi lý tưởng để nấu nướng, rửa ráy sạch sẽ.

Mặt bằng nội thất tầng 1 mẫu biệt thự mặt tiền 10m 3 tầng 5 phòng ngủ kinh phí 1,8 tỷ đồng
Tầng 2 của mẫu thiết kế biệt thự mặt tiền 10m 3 tầng phong cách hiện đại bao gồm 1 phòng ngủ vip và 2 phòng ngủ nhỏ. Hệ thống phòng ngủ, tuy kích cỡ khác nhau, lối trang trí cũng có sự khác biệt tùy thuộc vào nhu cầu và sở thích của chủ nhân căn phòng nhưng điểm chung của nó là ở sự thoải mái, ấm áp và cảm giác thân thuộc, gần gũi mà 1 căn phòng ngủ mang lại.
Hệ thống phòng ngủ của thiết kế biệt thự mặt tiền 10m 3 tầng hình chữ l được trang bị đầy đủ giường ngủ, bàn ghế, kệ tivi màn hình lớn, kệ tủ quần áo, hệ bàn học và bàn làm việc. Phòng ngủ vip còn có khu vệ sinh khép kín và phòng thay đồ. Phòng ngủ 3 và 4 sử dụng chung phòng vệ sinh được bố trí hợp lý gần khu vực cầu thang.
Thiết kế cửa sổ kính đón sáng tự nhiên giúp phòng ngủ của biệt thự mặt tiền 10m kích thước 120m2 trở nên thoáng đãng, sáng sủa, tránh gây bí bức, khó chịu, hứa hẹn sẽ tạo nên sự thư thái, mát lành nhất cho không gian nghỉ ngơi, nạp lại năng lượng. Phòng sinh hoạt chung bố trí ở vị trí trung tâm tạo tính kết nối giữa các thành viên trong gia đình.

Mặt bằng nội thất tầng 2 biệt thự mặt tiền 10m 3 tầng kinh phí 1,8 tỷ đồng mái thái
Tầng 3 của thiết kế biệt thự mặt tiền 10m 3 tầng kích thước 120m2 bao gồm 2 phòng ngủ nhỏ làm nơi nghỉ ngơi cho khách mỗi dịp gia đình phải đón tiếp đông người. Phòng ngủ tầng 3 cũng được trang bị đồ dùng tiện nghi, gọn gàng.
Khu vực sảnh tầng của biệt thự mặt tiền 10m 3 tầng kinh phí 1,8 tỷ đồng khá rộng rãi. Thiết kế giếng trời đón sáng tự nhiên giúp khu vực luôn thông thoáng. Sân phơi và sân chơi sử dụng tấm chắn là các thanh lan can vừa đảm bảo độ an toàn vừa tận dụng nguồn gió và nắng dồi dào, giúp quần áo mau khô hơn.
Phòng thờ của mẫu biệt thự mặt tiền 10m hình chữ l khá rộng rãi, thiết kế trang trọng, thể hiện sự thành kính thiêng liêng. Không gian phòng thờ được trang trí cầu kì với ban thờ gỗ trạm trổ tinh xảo, bức hoành, câu đối, thảm trải, đèn thờ,...vừa thể hiện sự sung túc của gia đình lại đảm bảo được tính truyền thống, sự kết nối giữa các thế hệ và cảm giác nhớ về cội nguồn khi bước chân vào căn phòng. Bàn thờ được kê hướng ra phía cửa chính hợp mệnh với gia chủ, lưng dựa vững chắc vào tường.

Mặt bằng nội thất tầng 3 biệt thự mặt tiền 10m mái thái hình chữ l
Chuyến tham quan ngôi biệt thự mặt tiền 10m hình chữ l của gia đình ông Lợi ở Đông Anh- Hà Nội đã giúp gợi lên ý tưởng hay ho nào đó cho ngôi nhà tương lai của bạn hay chưa. Hãy đến với chúng tôi- kiến trúc ANG, bạn sẽ được cùng đội ngũ kiến trúc sư trẻ tâm huyết, tài năng tự tay tạo dựng nên những giá trị đích thực cho cuộc sống. Không chỉ một mẫu biệt thự mặt tiền 10m diện tích 120m2, mà nhiều hơn vậy, những mẫu nhà lý tưởng, đảm bảo cả về công năng sử dụng, tính thẩm mỹ kiến trúc, yếu tố phong thủy và tính kinh tế.
Mọi thông tin cần tư vấn xin vui lòng liên hệ: 0988.030.680