Bản vẽ nhà 5 phòng ngủ 1 phòng thờ dành cho những gia đình đông thành viên. Bản vẽ nhà 5 phòng ngủ 1 phòng thờ do kiến trúc Angcovat thiết kế sở hữu hệ thống công năng vô cùng tiện nghi. Tuy phân chia thành nhiều phòng ngủ nhưng cách sắp xếp và bố trí các không gian trong biệt thự mini 1 tầng thể hiện sự logic, vừa đảm bảo tính riêng tư cho từng thành viên trong gia đình mà vẫn không quên không khí ấm áp, chất keo gắn kết mọi người.
Quy trình thiết kế mẫu bản vẽ nhà 5 phòng ngủ 1 phòng thờ đẹp.
Sau khi tiếp nhận yêu cầu tư vấn của khách hàng về bản vẽ biệt thự 2 tầng đẹp, kiến trúc sư concept sẽ lên lịch hẹn gặp và cùng gia chủ định hình phong cách kiến trúc và hệ công năng sơ bộ cho thiết kế bản vẽ nhà 5 phòng ngủ 1 phòng thờ đẹp. Khi đã nhất trí và hoàn tất thủ tục, cả hai bên sẽ tiến hành kí kết hợp đồng. Hiện nay, để thuận tiện cho quá trình hợp tác, đi lại tiết kiệm kinh phí, kiến trúc ANG có gói thiết kế nhà từ xa và giám sát nhà từ xa. Quá trình giám sát diễn ra trong toàn bộ quá trình thi công bất cứ gia chủ có thắc mắc gì về hồ sơ bản vẽ nhà 5 phòng ngủ 1 phòng thờ đẹp đều có thể liên lạc với kiến trúc sư chính chủ trì. Quá trình giám sát với mong muốn đảm bảo mức độ hoàn thiện cao cho khách hàng, mang tới cho gia chủ những giá trị đích thực của cuộc sống.
Sự nở rộ trong những năm gần đây của dịch vụ tư vấn và thiết kế hình ảnh biệt thự hiện đại 2 tầng không chỉ là tin vui đối với kiến trúc ANG mà còn là cách để chúng tôi thựu hiện tròn sứ mệnh mang biệt thự nhỏ xinh đẹp, sự vững bền đến cho mọi người!
Một số mẫu thiết kế bản vẽ nhà 5 phòng ngủ 1 phòng thờ 2 tầng để quý vị tham khảo
Có thể nói những bản vẽ nhà 5 phòng ngủ 1 phòng thờ dưới đây chính là phương án thiết kế được nhiều gia chủ lựa chọn và thiết kế cho mình. Nhưng không phải ai cũng có điều kiện để làm đó chính là vấn đề kinh phí, diện tích đất để sở hữu thiết kế như này nữa. Mặt khác những ngôi nhà này ngoài điểm chung là được thiết kế bản vẽ nhà 5 phòng ngủ 1 phòng thờ ra thì có có yếu tố mái thái để làm điểm nhấn đẹp mắt. Chúng ta cùng đi khám phá ngay dưới đây nhé

Mẫu bản vẽ nhà 5 phòng ngủ 1 phòng thờ 2 tầng diện tích 200m2
Mặt bằng tầng 1 của mẫu thiết kế nhà 2 tầng bản vẽ nhà 5 phòng ngủ 1 phòng thờ 2 tầng kích thước 18x15m bao gồm 1 phòng khách, 1 phòng bếp ăn, 1 phòng thờ, 2 phòng ngủ hiện đại.
Phòng thờ được thiết kế với không gian trang nghiêm là nơi con cháu thể hiện lòng kính hiếu đối với ông bà tổ tiên. Đặc biệt, khu vực sảnh của tầng 1 được trải thảm thổ cẩm quý góp phần tạo nên sự quyền quý của chủ đầu tư

Mẫu bản vẽ nhà 5 phòng ngủ 1 phòng thờ 2 tầng diện tích 200m2 đẹp
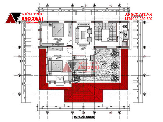
Mặt bằng tầng 2 của mẫu thiết kế bản vẽ nhà 5 phòng ngủ 1 phòng thờ 2 tầng bao gồm 3 phòng ngủ, 3 phòng sinh hoạt chung và 1 phòng vệ sinh chung. Khu vực tầng 2 được xem như không gian riêng tư của các thành viên trong gia đình. Trong mỗi phòng ngủ đều được thiết kế phù hợp với nhu cầu và sở thích của từng chủ nhân. Phòng sinh hoạt chung là nơi để các thành viên trong gia đình có dịp quây quần bên nhau trò chuyện và giải trí.
Mẫu thiết kế bản vẽ nhà 5 phòng ngủ 1 phòng thờ 2 tầng diện tích 300m2

Mẫu bản vẽ nhà 5 phòng ngủ 1 phòng thờ 2 tầng diện tích 300m2
Mặt bằng công năng tầng 1 mẫu bản vẽ nhà 5 phòng ngủ 1 phòng thờ 2 tầng với các phòng chức năng như sau : 1 phòng khách, 2 phòng ngủ, 3 WC. Do nhu cầu công việc và đặc trưng gia đình mà chú Thanh yêu cầu chúng tôi thiết kế phòng khách rộng và đặc biệt sang trọng. Nhất là ở phần tiền sảnh. Phòng khách rộng 100m2 hiện đại và sang trọng.
Không gian giao thông đi lại tiện lợi và thuận tiện cho gia chủ. 2 phòng ngủ với diện tích 30m2 đẹp và tiện nghi phù hợp với nhu cầu sử dụng thực tế của gia đình mẫu nhà 2 tầng 3 mặt tiền.

Mẫu bản vẽ nhà 5 phòng ngủ 1 phòng thờ 2 tầng diện tích 300m2 đẹp
Mặt bằng tầng 2 mẫu thiết kế bản vẽ nhà 5 phòng ngủ 1 phòng thờ 300m2 với thiết kế không gian tầng 2 với bàn bar và karaoke hiện đại , mang lại cuộc sống thoải mái và hiện đại cho gia đình bạn. 2 phòng ngủ với diện tích rộng,ban công đua ra tạo sự khác biệt và mới lạ cho mẫu thiết kế nhà biệt thự 300m2.
Tổng số phòng ngủ của mẫu bản vẽ nhà 5 phòng ngủ 1 phòng thờ đẹp là 5 phòng ngủ giống như mẫu thiết kế biệt thự 200m2 của chú Dinh ở Thanh Hóa trước đó. Tuy nhiên về mặt diện tích sử dụng thì lớn hơn hẳn so với thiết kế nhà đẹp trước đó chúng tôi thực hiện.

Thiết kế bản vẽ nhà 5 phòng ngủ 1 phòng thờ 2 tầng hiện đại
Thiết kế bản vẽ nhà 5 phòng ngủ 1 phòng thờ đẹp 2 tầng kiểu thái 11x13m được thiết kế với 2 phòng ngủ ở cùng một dãy tường bên phải, thiết kế tách biệt bằng 1 nhà vệ sinh để không gian tầng 1 sử dụng chung. Không gian phòng ngủ được thiết kế với đầy đủ trang thiết bị nội thất như giường ngủ đôi kích thước lớn, kết hợp với tủ quần áo, kệ tivi...các trang thiết bị phục vụ cho người thân đều chứa đựng tình cảm yêu thương đong đầy ý nghĩa. ông Vinh rất tinh tế trong việc lựa chọn vật liệu cho mẫu biệt thự 2 tầng chữ l nhà mình, qua cách thể hiện đó đã mang đến cho không gian nội thất mẫu biệt thự 2 tầng kiểu thái 11x13m đầy sự sang trọng và kiêu hãnh.

Thiết kế bản vẽ nhà 5 phòng ngủ 1 phòng thờ 2 tầng hiện đại đẹp
Mẫu thiết kế bản vẽ nhà 5 phòng ngủ 1 phòng thờ 2 tầng kiểu thái 11x13m 5 phòng ngủ được chăm chút tỉ mỉ đến từng không gian như 3 phòng ngủ, 1 phòng thờ, 1 sân phơi được thiết kế rất đẹp mắt được thiết kế với không gian rất rộng rãi. Không gian khoang thang được thiết kế 1 phòng thờ được thiết kế ngay khu vực khoang thang tạo được không gian ít người qua lại và kín đáo, đồng thời tách biệt với không gian sinh hoạt như phòng ngủ để tạo được sự yên tĩnh, nghiêm trang và lịch sự cho khu phòng thờ.

Thiết kế bản vẽ nhà 5 phòng ngủ 1 phòng thờ 2 tầng hình vuông

Thiết kế bản vẽ nhà 5 phòng ngủ 1 phòng thờ 2 tầng hình vuông đẹp

Hình ảnh bản vẽ nhà 5 phòng ngủ 1 phòng thờ 2 tầng kiểu mái thái

Hình ảnh bản vẽ nhà 5 phòng ngủ 1 phòng thờ 2 tầng kiểu mái thái đẹp

Hình ảnh bản vẽ nhà 5 phòng ngủ 1 phòng thờ 2 tầng kiểu Pháp có gara
Xây bản vẽ nhà 5 phòng ngủ 1 phòng thờ đẹp 2 tầng 140m2, kiến trúc sư thiết kế lên phương án thiết kế cho mặt bằng tầng 1 đầy đủ các phòng với các chức năng riêng. Sảnh chính rộng rãi khoáng đạt diện tích khoảng 10m2 tạo điểm nhìn thoáng ở mặt tiền. Từ sảnh chính vào trong cửa chính là phòng khách diện tích 24m2 gồm bộ bàn ghế cao cấp và kệ tivi với 2 cửa sổ, 1 cửa chính diện tích rộng làm cho không gian phòng khách trang nhã, khoáng đạt.
Tầng 1 có 2 phòng ngủ, trong đó phòng ngủ 1 diện tích 15 m2 là phòng khép kín gồm cả nhà vệ sinh sang trọng, tiện nghi rộng 4m2 có cả bồn tắm đứng bằng kính. Phòng ngủ 2 diện tích 14.5m2 với cửa kính dài dạng vòm khum, tạo nên nét ấn tượng của cả ngoại thất và nội thất. giữa phòng ngủ 1 và phòng ngủ 2 là cầu thang lên tầng và nhà vệ sinh chung diện tích 4.5m2 dưới gầm cầu thang có thể tận dụng không gian gầm cầu thang một cách tốt nhất.

Hình ảnh bản vẽ nhà 5 phòng ngủ 1 phòng thờ 2 tầng kiểu Pháp có gara đẹp
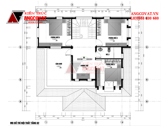
Tầng 2 của bản vẽ nhà 5 phòng ngủ 1 phòng thờ đẹp gồm sảnh tầng, 3 ban công, 3 phòng ngủ trong đó có 1 phòng ngủ khép kín, 1 phòng sinh hoạt chung, 1 phòng thờ, 1 bếp phụ, 1 khu giặt phơi, 1 nhà vệ sinh chung.
Thiết kế nhà đẹp 5 phòng ngủ, ban công rộng khoảng 10m2 ngăn cách bởi phòng ngủ 5 tấm rèm dày cao cấp để điều chỉnh độ sáng cho căn phòng theo ý gia chủ. Cỏ thể đặt những chậu cây cảnh, hoa, bàn ghế ở ban công để tạo không gian thư giãn và tăng tính thẩm mĩ cho ngôi nhà tân cổ điển.
Phòng ngủ 5 diện tích 19.5m2 gồm cả nhà tắm 4.5m2 hiện đại có bồn tắm đứng bằng kính, phù hợp với phòng ngủ vợ chồng. Phòng ngủ 4 diện tích 12m2 cũng giáp với ban công rộng 4.5m2 làm cho không gian phòng ngủ thêm thoáng đãng. Phòng ngủ 3 diện tích 13.5m2 gồm tủ, bàn làm việc, bộ giường ngủ cao cấp. Đối xứng với phòng ngủ 3 qua cầu thang là phòng thờ diện tích 16.5m2 gồm bộ án gian sang trọng phù hợp với không gian thờ cúng linh thiêng.

Tập bản vẽ nhà 5 phòng ngủ 1 phòng thờ 2 tầng mái thái

Tập bản vẽ nhà 5 phòng ngủ 1 phòng thờ 2 tầng mái thái đẹp

Tập bản vẽ nhà 5 phòng ngủ 1 phòng thờ 2 tầng mặt tiền 9m

Tập bản vẽ nhà 5 phòng ngủ 1 phòng thờ 2 tầng mặt tiền 9m đẹp
Bản vẽ nhà 5 phòng ngủ 1 phòng thờ 2 tầng 9x13m được thiết kế 2 phòng ngủ liền nhau với diện tích 12.8m2 với bộ giường ngủ đôi kích thước rộng rãi là nơi để thư giãn nghỉ ngơi sau ngày làm việc mệt mỏi. mẫu nhà 2 tầng 9x13m có đặt kệ ti vi đối xứng với giường ngủ giúp gia chủ dễ dàng theo dõi và cập nhật thông tin, cũng như để giải trí, mang đến sự tiện nghi và đầy đủ cho không gian sống. Sát bên bức tường vuông vắn kia kiến trúc sư đã đặt cố định tủ quần áo vào để làm giảm bớt sự khô cứng của bức tường, đồng thời có 1 cửa sổ mở lớn bên trái phòng để đón ánh sáng và không khí vào trong phòng tránh sự ngột ngạt bí bách

Tập bản vẽ nhà 5 phòng ngủ 1 phòng thờ 2 tầng mặt tiền 10m
Mẫu bản vẽ nhà 5 phòng ngủ 1 phòng thờ 2 tầng 9x13m mang phong cách nhẹ nhàng đơn giản, qua cách bố trí trang thiết bị nội thất 2 phòng ngủ 3 và 4 với diện tích 12,8m2. Với đầy đủ tiện nghi như giường ngủ được đặt hướng ra sảnh, không gian thoáng đãng với những ô thoáng ở đầu giường tránh chói mắt cho gia chủ khi ngủ. Đồng thời những ô cửa sổ giúp lưu thông không khí tạo sự thư thái và mát mẻ cho không gian phòng ốc, tạo được không gian cho bạn ngắm cảnh ra bên ngoài.

Tập bản vẽ nhà 5 phòng ngủ 1 phòng thờ 2 tầng mặt tiền 10m đẹp

Thiết kế mẫu bản vẽ nhà 5 phòng ngủ 1 phòng thờ 2 tầng vuông 150m2
Mẫu thiết kế bản vẽ nhà 5 phòng ngủ vuông 2 tầng mái thái 150m2 mang đến cho gia chủ một không gian yên tĩnh, trong lành và mát mẻ. Phong cách kiến trúc thiết kế mang đến sự tiện nghi đầy đủ, cũng như một sự hãnh diện, kiêu hãnh của người đàn ông trong gia đình, khi vừa hoàn thành một công trình để đời thật đáng tự hào.

Thiết kế mẫu bản vẽ nhà 5 phòng ngủ 1 phòng thờ 2 tầng vuông 150m2 đẹp
Sảnh trung tâm 8.5m2, phòng ngủ 3 18.5m2, ngủ 4 18.5m2, phòng ngủ 5 18.5m2, phòng thờ 10m2, sân chơi 18.5m2, wc 5.6m2. Mẫu thiết kế bản vẽ nhà 5 phòng ngủ 1 phòng đẹp 2 tầng hình vuông 150m2 mang đến không gian yên tĩnh là không gian để tất cả các thành viên nghỉ ngơi tái tạo sức khỏe nên các không gian phòng ngủ đều phải thoáng đãng, có cửa sổ để lưu thông không khí và nội thất cũng cần phải bố trí thuận tiện, tủ quần áo, bàn học, kệ tivi đều được trang bị và phục vụ cho nhu cầu sử dụng một cách thuận tiện nhất.
Phòng thờ, là không gian ta thường bắt gặp ở bất cứ ngôi nhà nào dù không gian đó có rộng lớn hay nhỏ hẹp gia chủ vẫn dành cả tấm lòng của mình vào đó với tâm niệm "có thờ có thiêng" bởi đó là phong tục tập quán của dân tộc Việt Nam. Và cũng là nét đặc trưng riêng nó như một việc thiêng liêng nhằm nhắc nhở thế hệ sau nhớ ơn về tổ tiên của mình. Đó là truyền thống tốt đẹp được truyền từ đời này đến đời sau. Không gian phòng thờ mẫu bản vẽ nhà 5 phòng ngủ 1 phòng thờ 2 tầng mái thái hình vuông thiết kế với diện tích 10m2 gia chủ chăm chút và dọn dẹp thờ cúng hương khói thường xuyên một phần là để cho nhà cửa thêm ấm cúng đồng thời cầu mong cho gia đình yên ấm hạnh phúc
Một vài mẫu bản vẽ nhà 5 phòng ngủ 1 phòng thờ hoàn chỉnh trên đây đã khẳng định được đẳng cấp qua nội thất bên trong mà bề ngoài không thể lột tả hết được. Không chỉ đáp ứng về mặt thẩm mỹ và mỹ thuật mà còn về công năng thuận tiện khi sử dụng, chắc hẳn bạn cũng muốn sở hữu một ngôi nhà không quá cầu kỳ mà vẫn đậm chất "sang". Ngoài những bản vẽ nhà 5 phòng ngủ 1 phòng thờ đjep 2 tầng trên đây bạn cũng có thể tham khảo thêm các bản vẽ nhà 3 phòng ngủ 1 phòng thờ 1 tầng tuyệt vời của chúng tôi tại đây
Liên hệ để được tư vấn tốt nhất Hotline: 0988 030 680








