Hiên nay nhu cầu thiết kế biệt thự theo phong cách tân cổ điển và cổ điển đang tăng lên do nhu cầu của các chủ nhân của các gia đình luôn mong có được một công trình khang trang mang đến sự đẳng cấp và tinh tế. Những mẫu biệt thự tân cổ mang trong mình vẻ đẹp cuốn hút, sang trọng và kiêu sa với các chi tiết hoa văn kiến trúc tỉ mỉ, thanh thoát. Để phù hợp hơn với điều kiện sinh hoạt của nhiều gia đình ngày nay, những mẫu biệt thự 3 tầng tân cổ điển đang phát triển theo chiều hướng mới mẻ, lược bớt đi sự rườm ra không cần thiết, thay vào đó là sự tinh tế hơn trong việc sắp xếp và bố cục các hoa văn, tạo nên ngôi nhà đẹp về cả thẩm mỹ lẫn công năng sử dụng.
Để hoàn thành một bản thiết kế biệt thự 3 tầng tân cổ điển cần phải có thời gian cũng như sự công sức của người kiến trúc sư thiết kế. Bởi đặc thù của công trình biệt thự thường có những yêu cầu phức tạp hơn, khó tính hơn. Bên cạnh đó, đội ngũ thi công biệt thự thường là những người có kinh nghiệm lâu năm mới có thể làm được bởi kiến trúc phúc tạp. Do vậy, bước cơ bản quan trọng nhất khi bạn quyết định xây dựng 1 ngôi biệt thự 3 tầng tân cổ điển là lựa chọn đơn vị thiết kế và thi công chất lượng, uy tín. Chúng tôi là đơn vị tư vấn thiết kế biệt thự chuyên nghiệp luôn cố gắng tạo ra những mẫu nhà đẹp mới để bạn đọc tham khảo.
Mẫu số 1. Biệt thự 3 tầng tân cổ điển 70m2 sang trọng
Mẫu biệt thự: BT212058
Mặt tiền: 7.3m
Chiều sâu: 12.6m

Biệt thự 3 tầng tân cổ trắng tinh khôi
Biệt thự tân cổ điển mái thái khai thác triệt để vẻ đẹp vốn có của những đường nét độc đáo. Mẫu biệt thự 3 tầng được thiết kế theo phong cách tân cổ điển, thanh lịch, kết nối từ trong ra ngoài, thông gió và ánh sáng tự nhiên. Thiết kế các thức cột đôi đối xứng nhau để nâng đỡ mái đón sảnh tạo thế vững chắc cho ngôi biệt thự. Kiến trúc sư sử dụng màu trắng không chỉ tạo vẻ đẹp quyến rũ, nhẹ nhàng mà còn giúp làm nổi bật những đường nét kiến trúc tỉ mỉ khác. Kết hợp mái ngói xanh tạo ra cảm giác mát mẻ và thanh lịch. Không quá đồ sộ, tráng lệ nhưng mẫu biệt thự 3 tầng tân cổ điển 70m2 này vẫn có sức hút đặc biệt với người nhìn.

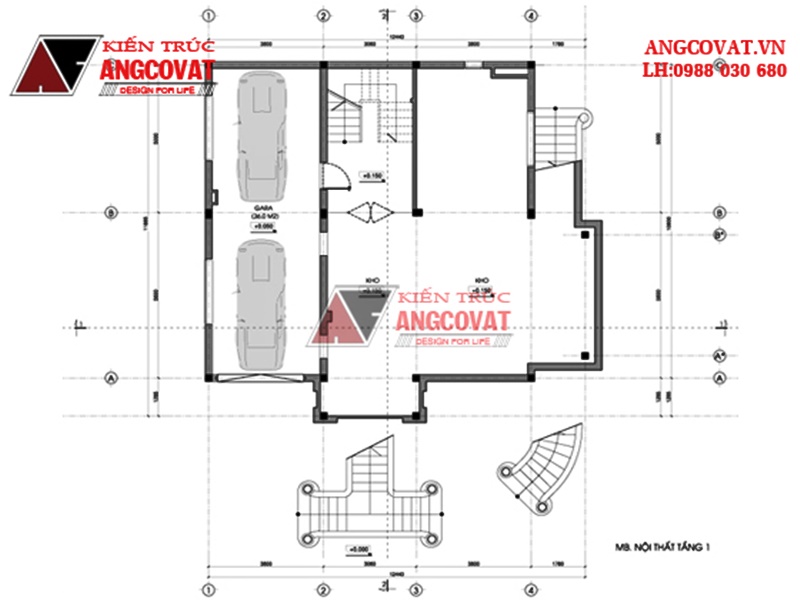
Bố trí mặt bằng công năng của biệt thự 3 tầng tân cổ điển
Mặt bằng công năng của ngôi biệt thự tận dụng tối đa diện tích khu đất để sắp xếp được các khu vực sinh hoạt hợp lý, thuận tiện và thẩm mỹ. Yếu tố thiên nhiên được đưa vào gần gũi với không gian sinh hoạt của con người. Đặc trưng của loại hình biệt thự là luôn thể hiện sự bề thế, đẳng cấp ở phòng khách. Với phòng khách rộng tới 29m2 cộng với phần sảnh rộng mang lại không gian sinh hoạt và đón tiếp khách rộng lớn để gia chủ bố trí nội thất. Việc đặt cầu thang phía cuối nhà phù hợp với kích thước lô đất và tiết kiệm không gian đồng thời thuận tiện cho việc di chuyển lên xuống tầng.
Xme thêm: Những mẫu biệt thự 3 tầng mái ngói
Mẫu số 2. Mẫu biệt thự 3 tầng tân cổ 100m2
Mẫu biệt thự: BT103048
Mặt tiền: 75m
Chiều sâu: 15.5m

Mặt tiền tráng lệ của mẫu biệt thự 3 tầng 100m2
So với thiết kế mang phong cách cổ điển, thì thiết kế biệt thự tân cổ điển chú trọng sự đơn giản, không cầu kỳ, không nhấn mạnh vào các chi tiết họa tiết nhỏ mà thường tập trung để tạo hình khối, tạo cảm giác kiến cố và vững chãi. mẫu biệt thự 3 tầng cổ điển thực sự mang lại cảm giác đẹp, sang trọng cho toàn bộ công trình. Gam màu trắng kế hợp với màu vàng được cho là gam màu kinh điển, phù hợp với vẻ đẹp sang trọng và nét cổ điển vốn có của những công trình nhà ở mang phong cách tân cổ điển như thế này. Phần mái của ngôi nhà được giật cấp, kết hợp cùng với những khoảng đua ban công tầng 2, tầng 3 mang lại những khoảng không gian sử dụng trống, tạo điểm nhấn và khoảng hở cho kiến trúc. Mái phía trước được làm thấp hơn phần mái phía sau tạo nên sự bề thế và hoành tráng cho công trình nhà biệt thự 3 tầng tân cổ điển này.

Mặt bằng tổng thể ngôi biệt thự 3 tầng mặt tiền 7m
Do kích thước đất mặt tiền khá chật chội mà phải xây hết đất mặt tiền, còn lại chiều sâu bớt lại 1 khoảng nhỏ để làm sân trước nhà để xe. Ngôi nhà tương tự như cách bố trí công năng sử dụng của ngôi nhà ống khác. Tuy nhiên, việc sắp xếp, bố cục không gian thì rộng rãi hơn.
Mẫu 03. Mẫu biệt thự 3 tầng tân cổ điển trên đất 300m2
Mẫu biệt thự: BT124047
Mặt tiền: 25m
Chiều sâu: 21m

Phối cảnh ngoại thất hoành tráng của mẫu biệt thự 3 tầng mái mansard
Một bất ngờ về cách thiết kế thu hút được sự chú ý cho người nhìn, ấn tượng về cách bố trí sảnh cầu thang khu vực kết nối giữa không gian trong - ngoài vô cùng sang trọng. 2 ban công hình vòm cung được đua ra phía ngoài, như một hình bán nguyệt vô cùng mềm mại và điệu đà và đó cũng là điểm nhấn chính của các nhà thiết kế để tạo dấu ấn và sự khác biệt so với các ngôi nhà khác.

Toàn cảnh khu đất rộng lớn để thiết kế biệt thự tân cổ 3 tầng
Ở trong mẫu thiết kế nhà biệt thự đẹp 300m2 3 tầng, với cách thiết kế mặt tiền là hệ thống cây xanh đẹp mắt, như một lá chắn bảo vệ, như một màng lọc không khí giúp cho mội trường sống trong lành, mát mẻ. Đài phun nước rì rào trước sân tạo cảm giác như đang ở trong một khu rừng với thác nước mát mẻ, thư thái mang đến không gian thiên nhiên yên ả, hiền hòa.
Mẫu 04. Biệt thự 3 tầng kiểu châu âu 150m2
Mẫu biệt thự: BT117047
Mặt tiền: 15m
Chiều sâu: 13.5m

Mẫu biệt thự 3 tầng kiểu châu âu sang trọng và đẳng cấp
Điểm nhấn của ngôi nhà thông qua khối kiến trúc tiền sảnh với chiều cao tương đương 2 tầng, dáng của tiền sảnh dạng vòm tròn trên đầu với 4 cột trụ hình vuông và 2 trụ tròn đăng đối. Trên các đầu cột trụ đều có các họa tiết phào chỉ hoa văn trang trí uốn lượn mang đậm vẻ đẹp của kiến trúc thời Phục Hưng châu Âu. Hệ thống mái thái được đổ bê tông chịu lực sau đó dán ngói thái. Đặc biệt, hệ thống mái thái có màu đen sẫm được xem là tone màu sang trọng và phù hợp với phong cách kiến trúc.

Mặt bằng tổng thể bản thiết kế biệt thự 3 tầng tân cổ
Mẫu thiết kế biệt thự 3 tầng kiểu châu âu tân cổ điển được tọa lạc trên lô đất rộng 410m2 thuộc quyền sở hữu của gia đình chú Vương tại Phúc Thọ - Hà Nội. Khu đất của gia đình chú Vương nằm gần 2 đường giao thông lớn, lô đất có dạng hình thang không đều. Ngoài 150m2 diện tích xây dựng nhà phong cách châu âu, số diện tích còn lại được tận dụng làm sân với diện tích lớn cùng dải bồn đất và hòn non bộ trang trí trước nhà.
Xem thêm: Những mẫu biệt thự 3 tầng mái thái
Mẫu 5. Biệt thự 3 tầng tân cổ sang trọng với 4 tỷ đồng
Mẫu biệt thự: BT105126
Mặt tiền: 14.5m
Chiều sâu: 13.7m

Vẻ đẹp hút hồn từ mẫu biệt thự tân cổ 3 tầng
Màu trắng làm gam màu chủ đạo có tác dụng làm sáng và mở rộng không gian. Màu trắng tạo được cho người nhìn cảm giác vô cùng an toàn và sạch sẽ. Với cầu thang được chia thành 2 phía rất rộng rãi và đẹp mắt, 2 bên là những lan can con tiện bằng bê tông vô cùng dày đặc và chắc chắn, đem đến cảm giác an toàn cho người đi lại, hoặc bảo vệ được trẻ nhỏ khi đi lại khu vực cầu thang. Mái ngói có khe đối lưu trao đổi nhiệt và bề mặt ngói phản xạ một phần bức xạ nhiệt làm nhiệt độ trong nhà giảm rõ rệt.

Mặt bằng nội thất tầng 1 của mẫu biệt thự 3 tầng tân cổ
Ở tầng 1 gia chủ chỉ yêu cầu kiến trúc sư thiết kế với khu vực chức năng nh Sảnh chính 27m2, Phòng khách 30m2, Phòng ăn 25m2, Phòng bếp 19m2. Do nhu cầu của gia chủ muốn mọi không gian đều phải thoáng đạt, tầm nhìn đẹp mắt và thuận tiện, nên các kiến trúc sư không "nhồi nhét" để tạo gia một không gian vô cùng ấn tượng theo ý kiến của chủ đầu tư. Không gian phòng khách nhà 3 tầng tân cổ điển diện tích 150m2 được thiết kế mở lớn lưu thông với các không gian khác, tránh được sự bí bách cũng như cản trở tầm nhìn và di chuyển. Từ bên ngoài, một cầu thang lớn dẫn lối vào không gian bên trong vô cùng choáng ngợp hiện lên trước mắt là sảnh chính rộng lớn 27m2 với sự sang trọng và đẳng cấp đến từ cây đàn piano vô cùng "đắt giá".
Mẫu 06. Mẫu thiết kế nhà 140m2 3 tầng 5 phòng ngủ
Mẫu biệt thự: BT123116
Mặt tiền: 12m
Chiều sâu: 15.5m

Hình ảnh mẫu thiết kế nhà 3 tầng tân cổ lung linh về đêm
Nét nổi bật trong mẫu nhà 140m2 3 tầng mặt tiền 12m là sử dụng những mảng miếng và hình khối kiến trúc vô cùng dày dặn và chắc chắn. Các hệ cột ở phần tiền sảnh được thiết kế để nâng đỡ phần ban công ở các tầng phía trên. Với ánh sáng đèn trang trí màu vàng, đèn hắt và đèn rọi được thiết kế vô cùng đẹp mắt, khi màn đêm buông xuống những ánh sáng đó mờ mờ ảo ảo, làm phô được những mảng tường màu vàng kem vô cùng nhẹ nhàng và thanh thoát.

Mặt bằng xanh mát từ ngôi biệt thự 3 tầng 140m2
Sắc xanh của cây cối bao quanh ngôi nhà như làm xua tan đi cái nóng bức, hầm hập của bê tông. Nhà 140m2 3 tầng 5 phòng ngủ được kiến trúc sư thiết kế trên khuôn viên đất 560m2 vô cùng thoáng đãng và mát mẻ, ngôi nhà lấp ló sau những tàng cây xanh mát như được bảo vệ bởi những màng lọc không khí mang đến không gian trong lành, mát mẻ.
Mẫu số 7. Nhà 3 tầng phong cách hoàng gia diện tích 150m2
Mẫu biệt thự: BT908116
Mặt tiền: 10m
Chiều sâu: 16m

Ngoại thất độc đáo từ mẫu thiết kế nhà 3 tầng tân cổ
Màu sắc kiến trúc làm nên bởi hệ thống vật liệu ốp tường ngoại thất. Toàn bộ tường ngoại thất ngôi nhà 3 tầng phong cách hoàng gia đều được sử dụng gạch ốp. Gạch tự nhiên với gam màu đỏ, ốp cách điệu thể hiện sự mới mẻ cho toàn bộ ngôi nhà. Thiết kế cửa sổ mái vòm được làm bằng chất liệu cửa nhôm uốn vòng với gam màu trắng. Thêm vào đó, hệ thống cột, các chi tiết kiến trúc như viền mái, cột, cửa sổ được điểm tô màu sắc trắng mang lại cho ngôi nhà sự thống nhất vẹn toàn trong thiết kế kiến trúc nhà đẹp 3 tầng phong cách hoàng gia.

Nội thất tầng 1 của mẫu nhà 3 tầng tân cổ 150m2
Thiết kế nhà 3 tầng phong cách hoàng gia với công năng sử dụng tiện nghi, tầng 1 bao gồm các phòng chức năng: 1 phòng khách, 1 phòng bếp ăn, 1 phòng ngủ và 1WC. Thiết kế phòng khách với tầm nhìn rộng cho phép mẫu nhà 3 tầng phong cách hoàng gia có tầm nhìn rộng, đẹp mắt phù hợp với nhu cầu sử dụng của các thành viên trong gia đình chủ nhà. Phòng bếp và phòng ăn diện tích sử dụng rộng, với tổng diện tích 25m2 không gian thoáng đãng, khá riêng biệt khi có sảnh tầng( khu vực giao thông) ở giữa ngôi nhà tạo nên sự tinh tế, lịch lãm và tiện nghi trong bố cục công năng sử dụng.
Mẫu 08. Biệt thự tân cổ điển 3 tầng có gara
Mẫu biệt thự: BT808116
Mặt tiền: 8m
Chiều sâu: 13m

Sang trọng và đẳng cấp từ ngôi biệt thự trắng 3 tầng tân cổ
Trong mẫu thiết kế biệt thự tân cổ điển 3 tầng diện tích 100m2 là sự kết hợp hòa quyện giữa cổ điển và hiện đại ưu tiên sử dụng những vật liệu thông dụng và đơn giản như ở các mảng tường được thiết kế rất nhiều cửa mở lớn và rộng rãi. Từ phần chân đế biệt thự là những khối hộp vô cùng dày đặc và to bản, làm cho người nhìn cảm giác rất an toàn và thật mát mẻ khi xây tường dày 220mm. Với mặt tiền tầng 1 được ốp hoàn toàn bằng đá nguyên khối màu sáng, qua cách thiết kế đó giúp bảo vệ được các mảng tường khỏi bị ẩm mốc, bong chóc và bị rêu mốc bám vào.
Tham khảo thêm: Các mẫu nhà biệt thự 3 tầng có gara

Mặt bằng nội thất tầng 1 mẫu nhà biệt thự 3 tầng phong cách tân cổ điển diện
Hình khối kiến trúc không đặt nặng về cân đối cấu trúc mà chú trọng vào cân đối thị giác sao cho hài hòa. Phòng khách bố trí đơn giản. Các chi tiết nội thất bằng gỗ được bố trí, xử lý rất hài hòa, tinh tế. Thảm trải sàn chất liệu thổ cầm mang lại nét bình dị, có phần hoài cổ, mộc mạc. Ánh sáng tự nhiên từ cửa sổ lớn càng làm nổi bật các đồ vật, nội thất trong phòng. Nét đẹp hài hòa từ kết cấu, chất liệu, chi tiết trang trí, bố cục sắp xếp, kết hợp ánh sáng tự nhiên từ cửa ô kính mang lại cho căn phòng vẻ sang trọng mà ấm áp.
Mẫu số 09. Nhà 3 tầng đẹp mái thái 2 mặt tiền
Mẫu biệt thự: BT220106
Mặt tiền: 13.5m
Chiều sâu: 12.5m

Biệt thự 3 tầng tân cổ chữ L vô cùng xinh đẹp
Mẫu thiết kế rất chắc chắn từ hình khối kiến trúc, với diện tích 150m2 mẫu thiết kế hiện lên rất đẹp mắt với hình chữ L mang đến sự đẹp mắt và rộng rãi vô cùng. Theo như yêu cầu của chủ đầu tư, mẫu biệt thự 3 tầng mái thái 2 mặt tiền, gia chủ tận dụng được diện tích rộng rãi và thoáng mát nên sẽ thiết kế một khoảng sân rộng để cho con trẻ nô đùa chạy nhảy cho thoải mái.

Bố trí nội thất tầng 1 của biệt thự
hiết kế biệt thự 3 tầng 2 mặt tiền mái thái đẹp được thiết kế với diện tích 150m2 nên không gian các phòng được chia đều cho các tỷ lệ như: tiền sảnh 6m2, Phòng khách 33m2, Bếp + ăn 33m2, WC chung 12m2, Phòng ngủ 1 15m2- Vệ sinh khép kín phòng ngủ 1 3.7m2. Với các không gian được sắp xếp vô cùng hợp lý và đẹp mắt, những không gian đó đều được tính toán và sắp xếp phù hợp với hướng nhà làm sao sinh hoạt một cách thuận tiện nhất. Được thiết kế với diện tích được thiết kế với các không gian mang đến sự thoáng đãng và mát mẻ.
Xem thêm: Những mẫu nhà biệt thự 3 tầng chữ L
Mẫu 10. Biệt thự 3 tầng kiểu Pháp ngói đỏ
Mẫu biệt thự: BT313106
Mặt tiền: 13.5m
Chiều sâu: 13.3m

Mẫu thiết kế biệt thự đẹp 3 tầng kiểu Pháp
Sự đơn giản được thể hiện trong các chi tiết trang trí ngoại thất, kiến trúc nhà biệt thự đẹp. Nhà biệt thự 3 tầng kiểu Pháp được thiết kế với các họa tiết hoa văn cầu kỳ, mang đậm phong cách kiến trúc cổ điển được thể hiện trong các chi tiết phào, chỉ trang trí ngoại thất. Khác với việc lựa chọn phào chỉ nội thất, phào chỉ ngoại thất thường được đúc trên một chất liệu đặc biệt để đảm bảm tính bền vững về mặt thời gian, trước những tác động của môi trường tự nhiên.

Bản vẽ công năng tầng 1 biệt thự tân cổ 3 tầng
Công năng sử dụng tầng 1 của mẫu thiết kế biệt thự 3 tầng kiểu Pháp bao gồm: Sảnh chính, Sảnh phụ, Gara otô, Phòng khách, Phòng bếp + ăn, WC, sảnh + thang. Khi thiết kế nhà biệt thự hay lâu đài thì diện tích và công năng sử dụng tiện nghi là điều mà bất kì ai cũng mong muốn sở hữu. Hầu hết các mẫu thiết kế biệt thự 3 tầng kiểu Pháp đều có khu vực sảnh chính, sảnh phụ rộng để làm chỗ dừng chân nghỉ ngơi vào nhà trước khi vào các không gian sinh hoạt bên trong. Gara ô tô có cửa nối tiếp với cầu thang bên trong tạo nên sự nối tiếp không gian cho các phòng trong ngôi nhà biệt thự 3 tầng kiểu Pháp đẹp.
Mẫu 11. Biệt thự 3 tầng cổ điển mặt tiền 8m
Mẫu biệt thự: BT228096
Mặt tiền: 8m
Chiều sâu: 11.5m

Hình ảnh từ bên ngoài mẫu biệt thự 3 tầng mặt tiền 8m
Biệt thự 3 tầng cổ điển kiểu pháp mái thái gây ấn tượng, trước hết bởi hình khối kiến trúc cân đối, vuông vắn, đồng nhất từ tổng thể cho tới hệ thống cột đỡ. Tuy các khối được thiết kế theo nhiều kích thước, chiều hướng khác nhau nhưng tựu trung lại ý đồ của kiến trúc sư là nhấn mạnh vẻ đẹp bề thế, khỏe khoắn, khẳng định sự trường tồn theo thời gian. Không chỉ vậy, chính các mặt phẳng của hình vuông còn mang lại cho ta cảm giác an toàn, thể hiện sự tin cậy và bền vững.

Nội thất tiện nghi tại tầng 1 biệt thự tân cổ
Phòng khách và sảnh trung tâm gần như thông với nhau hoàn toàn, chỉ phân biệt bởi chi tiết lam gỗ nhỏ. Lam gỗ giúp cho việc chuyển tiếp không gian trở nên uyển chuyển hơn, góp phần vào vẻ đẹp thẩm mỹ và tính thống nhất. Gia chủ có thể lựa chọn loại lam gỗ chia thành các ô vuông nhỏ để tận dụng đặt lên đó các món đồ trang trí. Ở khu vực sảnh trung tâm có cửa ra vào lớn thông ra sảnh phụ. Trong cùng là không gian bếp ăn vô cùng rộng rãi của biệt thự 3 tầng cổ điển diện tích 90m2. Phòng bếp có bố trí một lối đi phụ dẫn ra phía sau là khu vực vệ sinh chung. Việc tách riêng phòng ăn và phòng vệ sinh như vậy vừa tiện cho sinh hoạt lại luôn giữ được sự sạch sẽ cần thiết.
Mẫu 12. Biệt thự 3 tầng tân cổ điển lãng mạn
Mẫu biệt thự: BT920096
Mặt tiền: 10m
Chiều sâu: 16m

Hình ảnh nhà 3 tầng phong cách tân cổ điển ở Hải phòng.
măt tiền ngôi nhà với những đường nét thẳng, nét ngang, đơn giản đến từ hàng rào cổng, và đường kẻ ngang ở các mảng tường hay những lam bê tông được thiết kế dày đặc. Nét khỏe khoắn và tươi trẻ được nhấn mạnh thêm bằng cách thêm các cột trụ tròn màu ghi bằng đá. Kiến trúc sư đã chọn giải pháp hành lang kết nối, tạo ra một không gian sinh hoạt chung nối liền hai khối nhà. Hành lang này cũng chính là nét duyên riêng cho ngôi biệt thự.

Mặt bằng tổng thể ngôi biệt thự Pháp 3 tầng
Hình ảnh mẫu nhà 3 tầng phong cách tân cổ điển nổi bật lên với không gian kiến trúc xanh, hình khối nhà được định vị vô cùng vuông vắn và đều đặn. Thiết kế với tổng quan bao bọc bởi cây xanh và mẫu thiết kế biệt thự 3 tầng tân cổ điển kích thước ô đất 200m2.Mẫu thiết kế đáp ứng mong muốn của con người về sự trẻ hóa, tái tạo, cây xanh tượng trưng cho sự kết nối người với người và với thiên nhiên.
Mẫu số 13. Biệt thự tân cổ 3.5 tầng mặt tiền 9m
Mẫu biệt thự: BT110125
Mặt tiền: 9m
Chiều sâu: 16m

Phối cảnh ngoại thất mẫu biệt thự 3.5 tầng tân cổ
Kế thừa trường phái kiến trúc cổ điển, các dường gờ chỉ trang trí được chúng tôi thể hiện một cách tinh tế, khắt khe tỉ mỉ trên ác đầu trụ vuông của ngôi nhà. Phần tường chữ A mặt tiền giáp mái thái cũng được tô điểm thêm những đường trang trí uốn cong và sơn màu nâu cafe sang trọng. Lan can các tầng được kết nối bởi các con tiện xi măng trắng tinh tế, phần tường tạo mái ban công được chúng tôi thiết kế cách điệu theo dáng vòm cung tố sơn màu cafe nâu mang đến vẻ mềm mại.
Tham khảo thêm nhiều mẫu nhà biệt thự 3 tầng có gác lửng

Công năng tầng 1 biệt thự 3 tầng rưỡi
Tầng 1 của mẫu biệt thự kiểu Pháp 3 tầng cổ điển Pháp bao gồm 1 phòng khách, 2 phòng ngủ, 1 phòng vệ sinh chung và khu sảnh chính. Từ tiền sảnh bước vào là sảnh chính 15m2 được trải thảm hoa văn lớn sang trọng. Phòng khách của ngôi nhà 3 tầng kiểu Pháp ở Hưng Yên có diện tích 6x4.9m bao gồm bộ bàn ghế gỗ kích thước lớn + kệ tivi trang trí + tủ trưng bày. Phòng khách có 2 cửa sổ gỗ 4 cánh mở ra 2 hướng khác nhau vừa có tác dụng lấy sáng vừa cân bằng không gian nội thất.
Mẫu số 14. Biệt thự tân cổ điển pháp 3 tầng 170m2
Mẫu biệt thự: BT21375
Mặt tiền: 12m
Chiều sâu: 14m

Màu sắc đặc sắc từ ngôi biệt thự 3 tầng tân cổ
Mẫu biệt thự kiểu Pháp 3 tầng 12x14m ở Hải Phòng mang đến những cảm nhận về mặt màu sắc khá phong phú. Sử dụng gam màu vàng kết hợp với trắng truyền thống, mẫu thiết kế nhà đẹp vì thế mà cũng trở nên cuốn hút hơn. Mặt khác, những chi tiết kiến trúc như phào chỉ, con tiện, công sơn, mũ tiện,... khá đơn giản, tượng trưng , cũng không quá cầu kì hay khuôn phép mà thể hiên được sự cá tính, nguy nga, tráng lệ cho mẫu thiết kế biệt thự kiểu Pháp này.

Mặt bằng tầng trệt mẫu biệt thự Pháp 3 tầng
Chúng tôi đã thiết kế tầng trệt rộng hướng mặt tiền ngôi biệt thự để có thể dễ dàng sử dụng và cất giữ theo mong muốn của gia chủ. Mặt khác, tầng hầm cũng dành diện tích khá lớn cho kho chứa đồ. Vì đặc thù công việc kinh doanh nên diện tích kho chứa đồ của ngôi biệt thự tân cổ điển Pháp cũng được dành khá lớn. Cầu thang bên trong đi lên trong nhà cũng rất tiện nghi và dễ dàng trong quá trình sử dụng.
Mẫu số 15. Thiết kế nhà 3 tầng 2 mặt tiền 4 phòng ngủ
Mẫu biệt thự: BT32465
Mặt tiền: 6m
Chiều sâu: 12m

Nhà 3 tầng 2 mặt tiền đẹp diện tích 70m2
Màu trắng là gam màu đặc trưng của kiến trúc tân cổ điển. Bạn đã biết, màu trắng trong phong thủy là màu tượng trưng cho vàng hay kim loại. Màu trắng trong thiết kế ngoại thất thể hiện sự đẳng cấp, sang trọng và không bao giờ lỗi thời. Phào chỉ trang trí của mẫu biệt thự cổ điển đẹp được tối giản đi rất nhiều, đường nét dứt khoát, gọn gàng chính là điểm làm nên sự thanh thoát cho tổng thể công trình nói chung. Đặc biệt là ngoại thất tầng 3 của mẫu biệt thự. Chi tiết mái vòm cong và những thanh đua ra ngoài cá tính tạo điểm nhấn mới mẻ cho ngôi nhà.
Nội thất tiện nghi bên trong biệt thự 3 tầng tân cổ
Phòng bếp được thiết kế với 2 màu đen- trắng làm chủ đạo. Trong đó, màu trắng chiếm ưu thế, các đồ nội thất có điểm nhấn màu đen khiến cho căn bếp trở nên ấn tượng và phong cách. Phòng bếp vô cùng tiện lợi, giúp cho không gian sinh hoạt chung của gia đình bạn trở nên ấm áp và gọn gàng hơn rất nhiều.
Xem thêm: Những mẫu biệt thự 3 tầng 2 mặt tiền sang trọng
Vào năm 2018, thiết kế biệt thự với phong cách cổ điển sang trọng được dự đoán sẽ là xu hướng lên ngôi được nhiều gia chủ yêu thích và lựa chọn. Trong những không gian rộng mênh mông với những tòa nhà cao tầng hiện đại, những công trình biệt thự tân cổ điển sẽ là điểm nhấn nhá phá các và sáng tạo gây ấn tượng cho người nhìn. Thiết kế biệt thự phong cách tân cổ điển sử dụng những đồ nội thất trang trí hiện đại và tiện nghi sẽ mang đến những thú vị và ấn tượng cho người nhìn. Qua đó, Angcovat cũng hy vọng bạn sẽ tin tưởng và lựa chọn chúng tôi làm đơn vị đồng hành để thiết kế nên những căn biệt thự đẹp cho cuộc sống thêm tuyệt hảo. Mọi nhu cầu tư vấn thiết kế mời bạn comment phía cuối bài hoặc liên hệ trực tiếp hotline 0988 030 680 để nhận tư vấn từ chuyên gia.








