Mẫu thiết kế biệt thự 3 tầng hiện đại mái thái theo đuổi sự đơn giản, đề cao dây chuyền công năng hợp lý, tính kinh tế và sự ưu việt, hứa hẹn sẽ mang đến cho gia chủ nhiều trải nghiệm thú vị ngay trong chính không gian sống của mình.
Thiết kế biệt thự 3 tầng hiện đại diện tích 100m2 tọa lạc trên ô đất diện tích 220m2 của gia đình ông Cường ở Hà Nội với mức kinh phí dự kiến 1,8 tỷ đồng, do kiến trúc sư Vương Văn Quân thiết kế. Chúng tôi nhận được cuộc gọi của ông Cường yêu cầu tư vấn thiết kế ngôi nhà 3 tầng vào một buổi sớm đầu tháng 3/2016. Qua trao đổi, được biết ông Cường ở Hà Nội nên kiến trúc sư đã mời ông và gia đình bớt chút thời gian đến văn phòng để làm việc trực tiếp.
Buổi trao đổi trực tiếp giữa ANG và ông Cường diễn ra vô cùng suôn sẻ và thành quả của sự hợp tác là mẫu biệt thự 3 tầng hiện đại kinh phí 1,8 tỷ đồng. Ngày bàn giao hồ sơ thiết kế, chúng tôi nhận thấy sự vui mừng và tin tưởng ánh lên từ ánh mắt anh chị. Xây nhà là việc cả đời bởi vậy không thể suồng sã, cẩu thả, đặc biệt là từ khâu thiết kế. Đó cũng là tâm lý chung của khách hàng khi tìm đến ANG nói riêng và các đơn vị thiết kế nói chung.
Mẫu biệt thự: BT11046
Số tầng: 03
Chủ đầu tư: ông Cường
Địa chỉ: Hà Nội
Mặt tiền: 9,5m
Chiều sâu: 13,2m
Kích thước ô đất: 20x12=220m2
Kiến trúc sư thiết kế: Vương Văn Quân
Năm thi công: 2016
Kinh phí đầu tư dự kiến 1,8 tỷ đồng
Thông số công năng diện tích: Diện tích 100m2/sàn
- Tầng 1: 1 sảnh, 1 phòng khách, 1 phòng ngủ, 1 phòng vệ sinh, 1 phòng bếp ăn, 1 Gara ô tô.
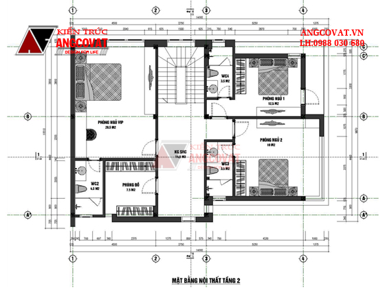
- Tầng 2: 1 phòng sinh hoạt chung, 3 phòng ngủ.
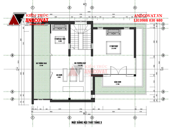
- Tầng 3: 2 phòng thờ, 1 phòng trưng bày, 1 sân chơi, 1 sân trồng rau.
Mẫu biệt thự 3 tầng hiện đại kinh phí 1,8 tỷ đồng theo đuổi phong cách hiện đại, lấy yếu tố đơn giản làm dấu ấn nổi bật. Đơn giản trong cách tổ chức, sắp xếp hình khối, bố cục. Đơn giản trong cách trang trí mặt đứng, loại bỏ các chi tiết trang trí rườm rà như ở các mẫu cổ điển. Đơn giản trong cách phối màu, hướng tới sự sang trọng, trang nhã nhưng cũng không kém phần khỏe khoắn.
Trong mẫu biệt thự 3 tầng hiện đại 4 phòng ngủ, sự đơn giản không đồng nghĩa với sự cẩu thả, hời hợt. Sự đơn giản, tối giản ở đây là chìa khóa để tăng tính thuyết phục cho ngôi nhà từ thẩm mỹ, công năng đến phong thủy, kinh tế. Đơn giản nhưng không hề nhàm chán, ngược lại, mẫu biệt thự 3 tầng hiện đại mặt tiền 9,5m còn tạo cho người đối diện cảm giác gần gũi, thân thuộc hơn bao giờ hết. Ngay bây giờ, hãy cùng chúng tôi, bớt chút thời gian đi tìm kiếm ý tưởng cho ngôi nhà của bạn!
Đặc trưng của phong cách hiện đại trong mẫu biệt thự mái bằng đẹp 3 tầng được thể hiện rõ nhất ở cách lựa chọn hình khối kiến trúc, cách phối màu và cách sử dụng vật liệu mới.
Nhà biệt thự 3 tầng hiện đại mặt tiền 9,5m sở hữu hình khối kiến trúc vuông vức, khỏe khoắn. Việc tăng cường sử dụng các góc vuông và đường thẳng cắt nét rõ ràng trong không gian giúp tăng diện tích sử dụng, tạo hiệu ứng rộng rãi, thông thoáng hơn cho ngôi nhà.
Nhà biệt thự 3 tầng hiện đại mái bằng là sự ghép nối tinh tế, độc đáo của các khối kiến trúc vuông vắn. Không theo một nguyên tắc nhất định, chính sự bất đối xứng đã tạo nên điểm cách tân mới lạ và cảm giác thú vị, khác biệt cho ngôi nhà của gia đình ông Cường.

Phối cảnh 01 mẫu biệt thự 3 tầng hiện đại mái bằng diện tích 100m2
Biệt thự 3 tầng hiện đại mái bằng lựa chọn gam màu trắng sáng sủa, tươi mới làm gam màu chủ đạo. Màu trắng có tác dụng phản chiếu ánh sáng, giúp không gian trở nên bừng sáng. Màu trắng còn tạo cảm giác thân thiện, gần gũi cho ngôi nhà, màu trắng đem lại sức sống, tinh thần và nguồn năng lượng vô giá cho các thành viên trong gia đình, đặc biệt là sau mỗi giờ làm việc căng thẳng.
Ngày nay không chỉ riêng mẫu nhà biệt thự 3 tầng hiện đại diện tích 100m2 ưa chuộng tone màu chủ đạo trắng sáng mà đa phần các thiết kế hiện đại của kiến trúc ANG đều được phối màu như vậy. Xét về phong thủy, màu trắng đại diện cho nguồn năng lượng dương, cho sự chuyển động mạnh mẽ. Màu trắng được cho là hợp với gia chủ mệnh thủy như ông Cường, hứa hẹn sẽ sinh phú quý, tài lộc và bình an.
Nhà biệt thự 3 tầng hiện đại mặt tiền 9,5m kết hơp sử dụng các chất liệu mới từ gỗ, bê tông, kính cho các hạng mục thiết kế. Chất liệu mới được sản xuất trên dây chuyền hiện đại, tích hợp nhiều tính năng ưu việt, giúp tăng sức đề kháng cho công trình trước tác động của thời tiết nắng mưa khắc nghiệt và kéo dài tuổi thọ sử dụng, đảm bảo ngoại thất luôn tươi mới.
Cửa kính là giải pháp tối ưu tăng sáng cho ngôi biệt thự 3 tầng hiện đại mặt tiền 9,5m, giúp tiết kiệm điện năng sử dụng, đảm bảo không gian mở rộng. Với đặc tính trong suốt, cửa kính còn giúp gia chủ kiểm soát tầm nhìn tốt hơn. Cửa kính cường lực còn có tác dụng chống ồn, chống và đập mạnh, bảo vệ sự an toàn cho các thành viên trong gia đình.

Phối cảnh 02 biệt thự 3 tầng hiện đại diện tích 100m2 4 phòng ngủ
Mẫu nhà biệt thự 3 tầng hiện đại diện tích 100m2 tọa lạc trên ô đất diện tích 220m2, toàn bộ phần diện tích còn thừa được dùng để bố trí cảnh quan sân vườn khang trang, rộng rãi bao quanh ngôi nhà, tạo nên sự hoàn thiện. Mong muốn sở hữu một khoảng sân sạch sẽ,thông thoáng bao quanh, nơi mà gia chủ có thể bố trí các chậu hoa cây cảnh, làm đẹp thêm cho không gian là mong muốn không chủ của riêng ông Cường.
Khoảng sân trước nhà biệt thự 3 tầng hiện đại mái bằng còn được tận dụng làm không gian vui chơi an toàn cho trẻ nhỏ, là nơi để xe, hoặc không gian tổ chức các bữa ăn đông người mỗi dịp gia đình có lễ lạc, ma chay, cưới hỏi.
Lớp vòng bao ngoài cùng bảo vệ sự an toàn cho ngôi nhà biệt thự 3 tầng hiện đại 4 phòng ngủ là hệ thống cổng, hàng rào kiên cố, vững chắc. Thiết kế tường bao chắc chắn, mẫu mã cổng đồng bộ cả về kiểu dáng phong cách, màu sắc với ngôi nhà tạo nên tính nhất quán cho cả công trình.
Cân bằng yếu tố phong thủy là điều không thể bỏ qua trong một mẫu thiết kế, mẫu biệt thự 3 tầng hiện đại 4 phòng ngủ cũng không phải trường hợp ngoại lệ. Thuật phong thủy là cách ta cách bài trí, chọn màu sắc và kiểu dáng để hỗ trợ cho cuộc sống của gia chủ và của chính các thành viên trong gia đình.

Phối cảnh 03 biệt thự 3 tầng hiện đại 4 phòng ngủ mặt tiền 9,5m
Mẫu biệt thự 3 tầng hiện đại kích thước 9,5x13,2m sở hữu mặt bằng công năng tiện nghi, gọn gàng, thể hiện sự ngăn nắp và lối sống khoa học. Nội thất bài trí hợp lý, vừa bắt mắt lại tiết kiệm diện tích sử dụng, vừa thể hiện sự ấm áp, no đủ mà vẫn vô cùng thoáng đãng.
Từ sảnh chính bước vào là không gian phòng khách sang trọng của mẫu biệt thự 3 tầng hiện đại mái bằng. Phòng khách diện tích 21,5m2 được trang hoàng bởi bộ bàn ghế gỗ, kệ tivi màn hình lớn, đèn trang trí, đồng hồ,...toát lên sự quý phái, gây ấn tượng về lối sống của gia chủ. Phòng khách được ngăn cách với sảnh tầng bởi lam gỗ trang trí. Đây là giải pháp được khá nhiều ngôi nhà hiện đại ngày nay ưa dùng. Lam gỗ không chỉ có tác dụng phân chia không gian chức năng mà còn giúp trang trí, tăng diện tích chứa đựng, tận dụng làm nơi cất giữ các món đồ nhỏ nhỏ như lọ hoa, tranh ảnh,...
Bếp ăn của mẫu biệt thự 3 tầng hiện đại 4 phòng ngủ bố trí gọn gàng, ngăn nắp. Thiết kế kiểu dáng chữ l cho hệ tủ bếp giúp tiết kiệm diện tích sử dụng, tận dụng không gian góc hiệu quả, tăng diện tích khu vực đứng nấu và di chuyển, lấy đồ dễ dàng. Thiết bị làm bếp hiện đại, tiện nghi giúp công việc nấu nướng, chăm sóc sức khỏe gia đình của người phụ nữ trở nên đỡ vất vả hơn, đặc biệt là tiết kiệm thời gian sau những hôm phải đi làm về muộn.
Bộ bàn ăn bằng gỗ kích thước lớn kê giữa phòng ăn của ngôi biệt thự 3 tầng hiện đại diện tích 100m2. Sử dụng chất liệu gỗ mang lại sự ấm áp kết hợp với trang trí nội thất tiện nghi, sử dụng ánh đèn, màu gạch tạo cảm giác gần gũi, thân quen. Thật không sai khi nói căn bếp là linh hồn của ngôi nhà, là nơi truyền và lưu giữ ngọn lửa hạnh phúc. Còn gì tuyệt vời hơn khi sau một ngày làm việc căng thẳng, được trở về quây quần, sum họp bên gia đình, cùng thưởng thức bữa tối và kể cho nhau nghe chuyện ngày hôm ấy.
Ngoài lối đi chính, thiết kế lối đi phụ ở mặt bên và mặt sau ngôi nhà biệt thự 3 tầng 100m2 hiện đại giúp cho việc lưu chuyển trở nên dễ dàng, thuận tiện hơn, dòng khí điều hòa lưu thông thông suốt từ trước ra sau. Ngoài ra cửa phụ dẫn ra khoảng sân rộng phía sau nhà ở phòng bếp sẽ là nơi lý tưởng rộng rãi để tổ chức nấu các bữa ăn đông người và mỗi dịp lễ lạc.
Phòng ngủ 1 của ngôi biệt thự mái bằng hiện đại dành cho người già để tiện di chuyển, không phải leo lại cầu thang vất vả, nguy hiểm lại tiện chăm sóc ngôi nhà. Phòng vệ sinh chung đặt gần cầu thang, không gây chắn tầm nhìn. Cửa ra vào đối diện cầu thang giúp khu vực này luôn sáng sủa, an toàn cho quá trình di chuyển.

Mặt bằng nội thất tầng 1 mẫu biệt thự 3 tầng hiện đại mặt tiền 9,5m kinh phí 1,8 tỷ đồng
Tầng 2 mẫu biệt thự 3 tầng hiện đại 4 phòng ngủ ba gồm 1 phòng ngủ vip và 2 phòng ngủ nhỏ. Mỗi một phòng ngủ lại có một phòng vệ sinh riêng khép kín, tiện cho việc sinh hoạt, tắm giặt. Thiết bị vệ sinh được lựa chọn là loại cao cấp, độ bền sử dụng cao. Cũng khuyên gia chủ nên lựa chọn loại thiết bị tráng men cao cấp để giữ cho khu vệ sinh luôn sạch sẽ và mới mẻ. Sử dụng gam màu trắng chủ đạo giúp không gian trở nên tươi mát, thư thái hơn, hứa hẹn sẽ mang tới những giây phút nghỉ ngơi, gột rửa căng thẳng cho các thành viên trong gia đình sau một ngày dài làm việc.
Hệ thống phòng ngủ của mẫu biệt thự 3 tầng hiện đại kích thước 9,5x13,2m trang bị nội thất đầy đủ với giường ngủ đôi, kệ tivi màn hình lớn, hệ bàn học và bàn làm việc, tủ đựng đồ. Cách bố trí đồ nội thất hợp lý, thừa nhiều diện tích di chuyển. Thiết kế cửa sổ đón sáng, đón gió tự nhiên giúp cả căn phòng luôn thông thoáng, sáng sủa.

Mặt bằng nội thất tầng 2 mẫu biệt thự 3 tầng hiện đại kinh phí 1,8 tỷ đồng kích thước 9,5x13,2m
''Có thờ có thiêng, có kiêng có lành'', gia chủ của ngôi biệt thự 3 tầng hiện đại kích thước 9,5x13,2m là một người khá coi trọng vấn đề tâm linh lại là người theo đạo phật nên ở không gian tầng 3, chúng tôi nhận được yêu cầu thiết kế 2 phòng thờ, 1 phòng thờ gia tiên ở phía sau và phòng thờ phật ở phía trước. Phòng thờ của ngôi biệt thự 3 tầng hiện đại mái bằng thiết kế trang trọng, uy nghiêm, thể hiện tấm lòng thành kính của thế hệ cháu con với ông bà.
Một điểm đặc biệt nữa trong thiết kế mẫu biệt thự mái bằng hiện đại 3 tầng diện tích 100m2 là khoảng không gian lý tưởng đủ ánh sáng, nhiệt độ để trông rau sạch tự cung cấp các bữa ăn an toàn cho cả nhà. Tận dụng không gian tầng 3 để trồng rau quả thực là biện pháp tối ưu, hiện nay được khá nhiều ngôi nhà hiện đại, đặc biệt là các ngôi nhà phố, diện tích đất hạn chế ưa chuộng.

Mặt bằng nội thất tầng 3 mẫu biệt thự 3 tầng hiện đại kích thước 9,5x13,2m mái bằng

Mặt bằng mái mẫu biệt thự 3 tầng hiện đại mái bằng 4 phòng ngủ
Mẫu biệt thự 3 tầng hiện đại diện tích 100m2 mái bằng sở hữu hệ công năng tiện nghi, thiết kế ngoại thất sang trọng, khỏe khoắn kết hợp yếu tố phong thủy cát tường hứa hẹn sẽ đem tới không gian sống tiện nghi, thoải mái cho gia đình ông Cường. Còn bạn,kết thúc chuyến tham quan ngôi biệt thự 3 tầng hiện đại mái bằng, bạn đã góp nhặt được ý tưởng hay ho nào đó cho ngôi nhà tương lai của mình hay chưa? Đến với kiến trúc ANG bạn sẽ được làm việc với đội ngũ kiến trúc sư chuyên nghiệp, trẻ trung, sáng tạo và chiêm ngưỡng nhiều mẫu thiết kế hơn thế.
Mọi thông tin cần tư vấn xin vui lòng liên hệ: 0988.030.680