Thấu hiểu được những mong muốn, hy vọng của mỗi người về ngôi nhà của mình, kiến trúc sư Angcovat luôn cố gắng để mang đến cho khách hàng của mình những phương án thiết kế chất lượng và hợp lý nhất đối với từng thực tế xây dựng công trình. Từ kích thước khu đất, từ diện tích các phòng, cho đến kiến trúc, cách thức bố trí công năng sử dụng cũng được thực hiện sao cho hợp lý, cân bằng được các yếu tố kỹ thuật, thẩm mỹ, phong thủy... để đem lại được ngôi nhà hoàn hảo nhất cho mỗi chủ đầu tư. Bởi hơn ai hết, Angcovat thấu hiểu giá trị của ngôi nhà đối với cuộc sống của mỗi gia đình là rất lớn. Mẫu thiết kế nhà 2 tầng 11x11m dưới đây cũng là một trong những thiết kế khá hoàn hảo mà chúng tôi đã thực hiện. Đắm chìm với vẻ đẹp chân thành, tinh tế sáng tạo và mới mẻ từ kiến trúc hiện đại, chắc hẳn bạn sẽ có những rung cảm thú vị đối với công trình nhà ở ấn tượng và thu hút này!
- Mã số: BT225019
- Chủ nhà: ông Trịnh Đức Long
- Mặt tiền: 11m
- Chiều sâu: 11m
- Chi phí: khoảng 1,2 tỷ đồng
- Kiến trúc: Biệt thự 2 tầng mái thái hiện đại 90m2/sàn
- Công năng:
+ Tầng 1: Tiền sảnh: 9m2, Phòng khách: 20m2, Phòng bếp ăn: 19m2, Phòng ngủ 1: 19.5m2, WC1: 4m2
+ Tầng 2: Sảnh tầng 9.5m2, Phòng thờ: 13.5m2, Sân chơi 4m2, Phòng ngủ 2: 17m2, Ban công 3m2, Phòng ngủ 3: 15m2, WC2: 4m2

Hình ảnh bản vẽ thiết kế biệt thự 2 tầng 11x11m mái thái đẹp
Với những ưu điểm nổi bật cả về giải pháp thiết kế và chi phí xây dựng, các mẫu Biệt thự 2 tầng Hiện đại mái Thái vẫn luôn là loại hình công trình gây bão khắp 3 miền cả nước.
Đây là loại hình kiến trúc hội tụ nét đẹp tinh tế của nghệ thuật truyền thống lẫn sự phóng khoáng, nhẹ nhàng của phong cách kiến trúc hiện đại, tạo nên một nét đẹp tinh tế và không kém phần sang trọng.
Chính những ưu điểm nổi trội này mà ông Long - chủ đầu tư của ngôi nhà đã đồng ý lựa chọn thiết kế và thi công mẫu Biệt thự Hiện đại 2 tầng mái Thái đẹp tại Thanh Hóa
Điểm nhấn chính trong ngôi nhà 2 tầng 11x11m được kiến trúc sư chúng tôi khắc họa chi tiết đó chính là:

Thiết kế mẫu nhà 2 tầng 11 x11m mái thái hiện đại
Nếu quan sát kỹ phối cảnh ngôi nhà Biệt thự đẹp 2 tầng 11x11m, ta thấy rằng phần chân tường và hệ 3 bậc tam cấp dẫn vào sảnh được thiết kế đường viền ốp bằng chất liệu gạch giả đá vô cùng nổi bật.
Vì phần chân tường của mỗi ngôi nhà là bộ phận tiếp giáp với mặt đất, nhất là khi mưa ẩm dễ bắn lên tường gây bẩm, rêu mốc. Giải pháp để khắc phục các hạn chế này đó chính là sử dụng vật liệu đá ốp. Từ đó mà gia chủ có thể dễ dàng làm sạch mà không ngại tường nhà bị thấm nước.
Không gian ngoại thất của mẫu Biệt thự mái Thái mặt tiền 11m không cần đến những vật liệu trang trí đắt tiền, tốn kém nhưng vẫn mang đến giá trị thẩm mỹ cao và độ bền nhất định với thời gian.
Cụ thể là hệ thống cửa chính được sử dụng chất liệu gỗ nâu trầm có độ bền chắc chắn, không hề bị cong vênh, chất sơn gỗ bóng loáng không bị bay màu nhằm ngăn ngừa tình trạng mối mọt.
Chất liệu kính cường lực được sử dụng ở hầu hết những thiết kế Biệt thự Hiện đại. Với ngôi nhà Hiện đại 2 tầng mặt tiền 11m, ta cũng dễ dàng bắt gặp những mảng kính cường lực trong suốt ở hệ thống cửa sổ, mang đến cho ngôi nhà sự thông thoáng, sáng sủa, những người sống trong ngôi nhà Hiện đại mái Thái sẽ có những góc nhìn đẹp mắt ra khung cảnh thiên nhiên xanh mát của sân vườn bên ngoài.
Những mảng tường ốp bằng gỗ khiến không gian kiến trúc trở nên cao cấp hơn đồng thời chất liệu gỗ có độ bền chắc cao theo thời gian, khiến gia chủ cảm nhận được một cuộc sống chất lượng hơn đồng thời nâng tầm giá trị cho kiến trúc ngôi nhà. Thiết kế biệt thự theo xu hướng phương Tây mới lạ, Angcovat lựa chọn phương án khác cho công trình đó là không thiết kế cổng chính hay tường bao rộng cho cả khuôn viên biệt thự mà để tạo một khu vực mặt tiền hoàn toàn rộng mở để gia đình sử dụng vào nhiều mục đích khác nhau. Tại cửa chính ra vào là các bậc thềm đi lại vừa tiện lợi vừa thể hiện được phong cách cao cấp qua từng chi tiết nhỏ. Màu sắc nhẹ nhàng, thanh lịch cùng đường nét kiến trúc mặt tiền đơn giản, đẹp mắt, tất cả kết hợp lại tạo thành mẫu biệt thự 2 tầng mặt tiền 11m tại Thanh Hóa một cách xuất sắc.
Sở hữu một quỹ đất tương đối rộng chính là điểm mạnh của những công trình biệt thự hiện đại, giúp Angcovat dễ dàng tạo hình cho không gian biệt thự nhiều kiểu dáng mặt tiền bắt mắt và thu hút. Đội ngũ kiến trúc sư của angcovat đã thể hiện sự sáng tạo qua từng mảng không gian kiến trúc của biệt thự 2 tầng 11x11m, chúng tôi lựa chọn cho công trình biệt thự những vật liệu cao cấp nhất giúp không gian nổi bật giữa thị thành phố xá đồng thời không gian kiến trúc cũng trở nên chắc chắn và vững chãi hơn trong thời gian dài sử dụng.

Không gian kiến trúc mặt tiền rất quan trọng, nó giống như bộ mặt của toàn bộ căn biệt thự nên Angcovat đã thiết kế một mặt tiền biệt thự đẹp theo đúng tiêu chuẩn của phong cách hiện đại, trẻ trung nhưng không kém phần sang trọng đúng như yêu cầu của gia chủ.
Với cách bài trí các mảng kiến trúc vô cùng khéo léo bên cạnh hệ thống ban công thiết kế đặc biệt tạo điểm nhấn cho tổng thể kiến trúc biệt thự. Cây xanh được bố trí rải rác ngoài mặt tiền. Cây xanh không thiết kế thành tiểu cảnh sân vườn giống như các mẫu biệt thự vườn hiện đại truyền thống mà sử dụng thành điểm nhấn nhá cho cả công trình tạo sự thoáng mát và đẹp mắt cho biệt thự 11x11m.Trong cuộc sống đô thị ngày nay, khi con người quá bộn bề với cuộc sống thì yếu tố thiên nhiên sẽ giúp bạn cảm thấy thư giãn hơn rất nhiều sau một ngày làm việc dài có thể trở về nhà. Màu xanh tươi mát như thổi vào không gian công trình một sức sống mãnh liệt.

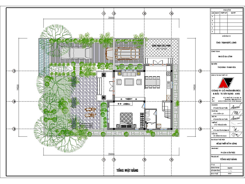
Bản vẽ tổng mặt bằng định vị mẫu nhà 2 tầng 11x11m trên lô đất ở Thanh Hóa
Vị trí ngôi nhà được đặt trong lô đất vườn rộng kích thước 14.5x20m. Ngôi nhà được đặt gọn gàng trong mảnh đất xây dựng khá vuông vắn của gia đình. Khu vực sảnh trước, sân bên cạnh với diện tích sử dụng rộng rãi, không gian kiến trúc vừa vặn, phù hợp với nhu cầu và mong muốn sử dụng.
Xem thêm: Biệt thự 2 tầng 3 phòng ngủ đẹp xuất sắc

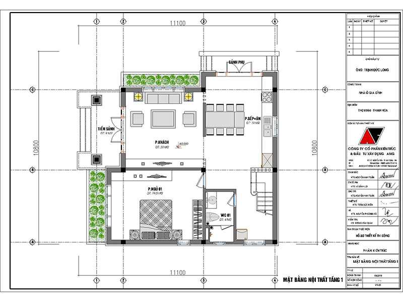
Mặt bằng tầng 1 mẫu thiết kế nhà 11x11m
Bố cục nội thất trong cách bố trí nhà 2 tầng 3 phòng ngủ được bố trí khá hợp lý. Với khu vực tiền sảnh được thiết kế với diện tích 9m2, rộng rãi và thoải mái, kết nối với không gian sử dụng của phòng khách với diện tích 20m2. Các không gian sử dụng trong không gian tầng 1 được nối tiếp với nhau, tăng thêm sự rộng rãi, tính kết nối không gian.

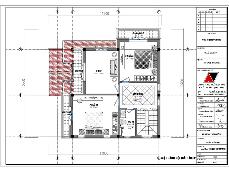
Mặt bằng tầng 2 nhà 11x11m 3 phòng ngủ
Mặt bằng tầng 2 khi bố trí nhà 2 tầng 3 phòng ngủ được bao gồm: Sảnh tầng 9.5m2, Phòng thờ: 13.5m2, Sân chơi 4m2, Phòng ngủ 2: 17m2, Ban công 3m2, Phòng ngủ 3: 15m2, WC2: 4m2
Tầng lầu không gian được thiết kế khá thoáng đãng và yên tĩnh với 2 phòng ngủ còn lại và 1 phòng thờ Các phòng ngủ hướng ra ban công hoặc có cửa sổ thông gió, lấy sáng tốt.
Trên đây là hồ sơ thiết kế nhà 2 tầng 11x11m của gia đình ông Long ở Thanh Hóa do KTS Angcovat chủ trì. Ngôi nhà thiết kế theo trường phái hiện đại với 3 phòng ngủ 1 phòng khách tiện nghi. Chi phí xây dựng khoảng 1,2 tỷ đồng để hoàn thiện ngoại thất.
Mọi yêu cầu tư vấn thiết kế nhà vui lòng liên hệ trực tiếp với chúng tôi qua HOTLINE 0988 030 680
Năng lực Angcovat xem tại: 1001 mẫu thiết kế biệt thự đẹp nhất