Vấn đề nhà ở luôn được rất nhiều người quan tâm và tất cả đều mong muốn có được một ngôi nhà như ý với mảnh đất của mình. Hiện nay những mẫu nhà phố 4 tầng đẹp được thiết kế xây dựng không chỉ đa dạng về kiểu dáng kiến trúc mà nó còn phong phú về màu sắc từ bên ngoài cho đến bên trong của ngôi nhà. Với thiết kế 4 tầng không gian sinh hoạt ở bên trong ngôi nhà được rộng rãi, thoải mái hơn phù hợp với những gia đình đông người hay những mảnh đất có diện tích xây dựng nhỏ. Nếu như ở những mẫu nhà ống 4 tầng hiện đại phần ngoại thất là những hình khối đơn giản với những hình khối chống lên nhau thì nhà phố tân cổ hay cổ điển phần ngoại thất phức tạp hơn với việc sử dụng những chi tiết trang trí cầu kì. Dù là theo phong cách nào thì cũng phải bám sát vào hiện trạng và dựa trên những yếu tố khách quan để tránh trường hợp thiết kế đẹp quá khi thi công không thể làm đúng như bản phối cảnh đã lên trước đó. Dưới đây là bộ sưu tập những mẫu thiết kế nhà ống 4 tầng hiện đại, tân cổ đẹp nhất của kiến trúc Angcovat.
Mẫu số 1: Thiết kế nhà ống 4 tầng đẹp mặt tiền 7m
Mẫu nhà: NP122077
Mặt tiền: 7m
Chiều sâu: 9m

Mặt tiền mẫu nhà ống 4 tầng 7x9m
Mẫu nhà phố 7x9m 4 tầng được design mái ngói thái. Phần kiến trúc mái được thiết kế 2 mái, một số chi tiết mái giật cấp ở mặt tiền mang lại sự ấn tượng cho ngoại thất ngôi nhà phố đẹp. Gam màu theo tone lạnh dịu nhẹ là sự hòa quyện giữa phong cách hiện đại và cổ điển. Sự nhẹ nhàng, tươi mới của gam màu xanh dương trong thiết kế tạo nên cảm giác thư thái, tinh tế và ấm áp. Màu xanh trắng cộng với gam màu ghi của mái ngói mang đến không gian ngoại thất sự dịu nhẹ, tươi tắn. Với thiết kế lan can, bê tông bằng con tiện biệt thự, nhà phố sẽ trở nên sang trọng, lịch lãm nhưng đậm chất cổ điển.
Xem thêm: Nhà biệt thự 3 tầng cổ điển

Thiết kế nhà phố 7x9m 4 tầng 1 mặt tiền đẹp
Mặt bằng tầng 1 mẫu nhà phố 7x9m 4 tầng bao gồm: Phòng khách 16.5m2, Tiền sảnh 7.5m2, Phòng bếp ăn 13m2, WC1 5m2.
Tiền sảnh nhà phố 7x9m rộng tới 7.5m2, đây là không gian đón tiếp thực sự mơ ước đối với nhiều mẫu nhà phố, bởi không phải ở đâu cũng có diện tích rộng như thế này để làm tiền sảnh, không gian tiền sảnh rộng lớn mang lại cho thiết kế nhà phố đẹp 7x9m sang trọng và tinh tế hơn bao giờ hết. toàn bộ tầng 1 được dành cho không gian sử dụng chung của gia đình, các không gian sống trong tầng 1 bảo đảm sự thoáng mát, rộng rãi cần thiết trong quá trình sử dụng.
Mẫu số 2. Mẫu thiết kế nhà ống 4 tầng đẹp 55m2 hiện đại
Mẫu nhà: NP327067
Mặt tiền: 4.4m
Chiều sâu: 13m

Nhà ống 4 tầng hiện đại được thiết kế lấy sáng
Yếu tố ánh sáng và gió rất quan trọng trọng việc xây dựng nhà ở, lại càng đặc biệt quan trọng hơn với những ngôi nhà phố. Thiết kế lấy sáng và thông gió sẽ cho phép ngôi nhà mang lại những cảm nhận khác nhau. Việc lấy sáng cho mẫu nhà này được thể hiện trong việc vận dụng màu sắc và chất liệu cửa sổ, số lượng và vị trí đặt các loại cửa trong bố cục tổng thể mẫu thiết kế. Các mảng tường trắng hiện đại thì đua ra ngoài để đón sáng và tương phản với gam màu sẫm, tối của tường ngoại thất bên trong. Các vật liệu xây dựng hiện đại, đồng thời mang màu sắc tương phản tạo nên sức ấn tượng với ngôi nhà từ hình ảnh ngoai thất.
Chính bởi diện tích nhà ống khá hạn hẹp nên kiến trúc nhà ống thường tập trung vào phong cách kiến trúc hiện đại. Sủ dụng những hình khối và mảng miếng kiến trúc mạnh mẽ, tập trung để tạo nên sự khỏe khoắn và năng động cho ngôi nhà. Mặt tiền của mẫu thiết kế nhà ống mặt tiền 4m hiện đại được các kiến trúc sư xử lý một cách khéo léo bằng các hình khối ngang, thẳng, chính phụ nhưng vẫn đảm bảo được tính thẩm mỹ của công trình. Màu sắc hiện đại như trắng, nâu, màu café cũng là những gam màu chủ đạo trong việc thể hiện được sự chung tính, nhẹ nhàng thoáng mát trong ngôi nhà phố có diện tích nhỏ.

Mặt bằng công năng sử dụng tầng 1 mẫu thiết kế nhà ống mặt tiền 4m
Cầu thang thông tầng được bố trí ở giữa, khoảng thông tầng giữa cầu thang cho phép không gian nhà luôn thoáng đẹp và mang lại ánh sáng, sự thông thoáng. Tầng 1 dành cho các không gian sử dụng chung của gia đình bao gồm phòng khách và phòng bếp+ phòng ăn. Tính tiện nghi trong bố cục công năng sử dụng thể hiện trong những không gian sống. Các phòng chức năng như khách, bếp được đặt hoàn toàn ở vị trí tầng 1, thuận tiện cho việc di chuyển và đi lại giữa các không gian, phòng ốc trong thiết kế.
Tham khảo nhiều hơn Các mẫu biệt thự cấp 4 1 tầng 200m2
Mẫu 3. Mẫu thiết kế nhà ống 4 tầng tân cổ điển
Mẫu nhà: NP224067
Mặt tiền: 4m
Chiều sâu: 12m

Hình ảnh mẫu thiết kế nhà phố 4x12m tân cổ điển đẹp
Khác với kiến trúc hiện đại, khi cố gắng tối giản và lược đi những chi tiết trang trí phào chỉ công phu, rườm rà, thì ở kiến trúc tân cổ, vẫn giữ lại được những đường nét kiến trúc tinh tế, một chút hoài cổ thể hiện ở các chi tiết cột, tường và phần ban công các tầng vẫn mang lại cảm giác của sự sang trọng bề thế mà chủ đầu tư mong muốn có được. Kiến trúc sư đã sử dụng toàn bộ bằng gam màu trắng trong kiến trúc để thể hiện được sự chân thành và thiện cảm đối với mắt. Vẻ đẹp hoàn thiện từ những chi tiết cột, tường , lan can ban công bằng hoa sắt đen nghệ thuật tạo nên sự đối lập màu sắc một cách tinh tế rồi hòa quyện mạnh mẽ với nhau.

Bản vẽ mặt bằng tầng 1 nhà phố 4 tầng 4x12m đẹp
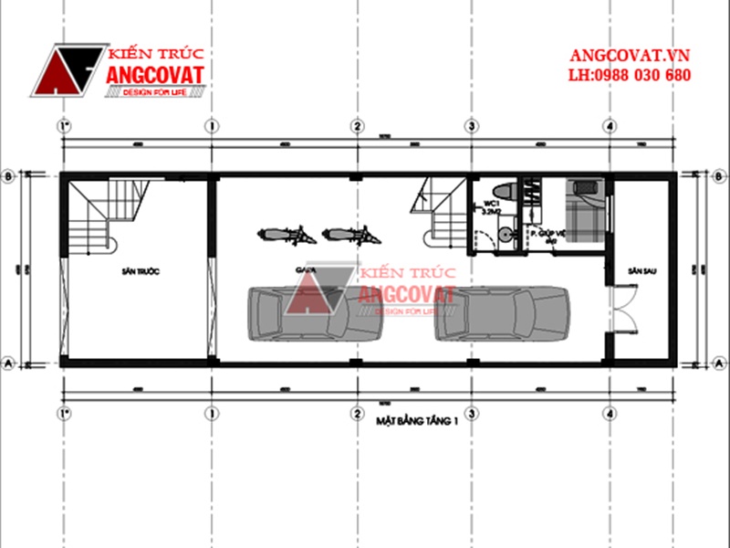
Công năng sử dụng của tầng 1 được dành cho toàn bộ không gian chờ và chỗ để xe rộng. Chỗ để xe rộng với diện tích 21m2 dành được cho các thành viên trong ngôi nhà. Toàn bộ không gian của tầng 1 đều để trống cho khoảng không gian thêm rộng và thoáng. Việc không sử dụng không gian của tầng 1 cho phòng khách hay phòng bếp đó là việc vị trí mẫu thiết kế nhà phố 4 tầng này ở gần đường giao thông lớn, tiếng ồn và bụi nên chủ nhà muốn để tầng 1 cho thoáng, cũng là để đảm bảo sức khỏe gia đình.
Mẫu 4. Tư vấn thiết kế nhà ống 4 tầng hiện đại 3 phòng ngủ
Mẫu nhà: NP120067
Mặt tiền: 4m
Chiều sâu: 13m

Hình ảnh phối cảnh mẫu thiết kế nhà phố 4 tầng mái bằng
Kiến trúc nhà phố đòi hỏi phải thiết kế sao cho không gian nội thất và ngoại thất phải thật tinh tế, màu sắc thống nhất. kiến trúc nhà phố đòi hỏi phải thiết kế sao cho không gian nội thất và ngoại thất phải thật tinh tế, màu sắc thống nhất. Cửa kính được sử dụng trong mẫu thiết kế nhà phố 4 tầng đẹp theo chất lượng cửa kính khung gỗ. Loại cửa được sử dụng trong mẫu thiết kế nhà phố đẹp là cửa kính khung gỗ, loại cửa đơn 1 cánh và cửa gập 2 cánh được sử dụng cho ngôi nhà.

Mặt bằng tầng 1: Bản vẽ thiết kế nhà phố 4 tầng
Mặt bằng tầng 1 của mẫu thiết kế nhà phố 4x13m 4 tầng gồm các công năng sử dụng như sau: Không gian để xe: 7.5m2, Phòng khách: 18.2m2, Sảnh tầng: 4.3m2, Phòng bếp ăn: 13m2. Ngăn cách giữa phòng khách và không gian của cầu thang là tủ đứng kế hợp với lam trang trí giúp cho không gian nội thất của mẫu thiết kế nhà phố 4 tầng đẹp trở nên hiện đại và thân thiện hơn.
Mẫu số 05. Mẫu thiết kế nhà phố mặt tiền 7m 4 tầng ở Bắc Ninh
Mẫu nhà: NP502066
Mặt tiền: 7m
Chiều sâu: 18.5m

Hình ảnh ngoại thất công trình nhà phố mặt tiền 7m 4 tầng
Kiến trúc nhà mặt tiền 7m 4 tầng hiện đại ghi điểm trong mắt người nhìn bởi tone màu ngoại thất đơn giản nhưng vô cùng sang trọng là màu trắng và màu xanh lơ. Đặc trưng của kiến trúc nhà phố chính là sự hạn chế không gian sống, do đó kiến trúc sư đã cố gắng bố trí cửa kính và lan can kính cường lực trên tất cả các tầng của mẫu nhà này. Điểm nhấn ấn tượng nhất của ngôi nhà phố chính là hệ lam gỗ ngang được thiết kế cách điệu tại hông bên trái. Nhìn vào hệ lam gỗ, người nhìn có cảm giác không gian kiến trúc trở nên đặc biệt khác hẳn với những ngôi nhà cùng khu vực.

Mặt bằng tầng 1 mẫu nhà ống 4 tầng đẹp sang trọng
Có thể thấy ngôi nhà có kích thước mặt tiền 7m, chiều sâu 18.5m, diện tích xây dựng mỗi sàn lên tới 130m2. Các phòng chức năng được phân bổ kĩ lưỡng từ tầng 1 đến tầng 4, trong suốt quá trình thiết kế, kiến trúc sư đã tính toán các thông số sao cho không gian sống thoải mái và rộng rãi, phù hợp với nhu cầu sinh hoạt thường ngày của các thành viên trong gia đình. Tại tầng 1 của mẫu thiết kế nhà ống mặt tiền 7m 4 tầng tại Bắc Ninh, kiến trúc sư bố trí 1 phòng khách 25m2, khu bếp ăn rộng 30m2, khu sân sau 6m2, sảnh phụ 13m2. Ngoài ra khu gara để xe rộng 25m2 cũng được bố trí gọn gàng tại phần bên phải của khu đất.
Xem thêm: Các mẫu biệt thự 3 tầng chữ L
Mẫu sô 6. Thiết kế nhà phố cổ điển 4 tầng mặt tiền 6m
Mẫu nhà: NP13125
Mặt tiền: 6m
Chiều sâu: 15m

Thiết kế nhà phố cổ điển 4 tầng 4 phòng ngủ
Hình khối của ngôi nhà cũng là điểm nhấn song hành cùng với màu sắc. Khác với các mẫu thiết kế nhà phố hiện đại trước đó thường lấy gam màu trắng, ghi để làm điểm nhấn và gợi độ mở cho không gian nhà phố. Nhưng trong mẫu thiết kế này bạn có thể thấy chúng tôi đã thay gam màu đó bằng gam màu vàng sang trọng để làm tone màu chủ đạo. Tuy hình khối đơn giản nhưng vẫn gợi được cảm giác bền vững, chắc chắn cho thiết kế. Hơn nữa cùng với hình khối thì hệ thống cột trụ đỡ phần mái hiên tầng 3, tầng 4 cũng như phần đua ra của kiến trúc.

Mặt bằng tầng 1 - Thiết kế nhà phố cổ điển 4 tầng
Mặt bằng tầng 1 được bố trí sân trước làm khoảng chờ trước khi bước vào không gian bên trong nhà. Tiếp theo đó là không gian gara để xe, gara gần như chiếm trọn diện tích của tầng 1. Gara với rộng với sức chứa 2 ô tô, 2 xe máy tạo sự thuận lợi trong đi lại và sinh hoạt của cả gia đình. Bên cạnh đó tầng 1 còn bố trí 1 phòng ngủ xinh xắn cho người giúp việc. Không gian phòng có nội thất thiết yếu cũng như khu vệ sinh khép kín để thuận tiện trong sinh hoạt.
Mẫu 7. Tư vấn thiết kế nhà ống 4 tầng đẹp 90m2
Mẫu nhà: NP14855
Mặt tiền: 6m
Chiều sâu: 15m

Thiết kế nhà ống 4 tầng mặt tiền 6m
Ngôi nhà với gam màu trắng chủ đạo cộng với các chi tiết kiến trúc đơn giản nhưng cũng vô cùng ấn tượng và sang trọng chính là những điểm thu hút mà thiết kế nhà phố mặt tiền 6 mang lại cho người xem.
Mặt tiền tầng 1 và tầng 2 của mẫu thiết kế nhà ống 6x15 được ốp toàn bộ bởi hệ thống đá tự nhiên trắng ốp tường trang trí khiến ngôi nhà luôn tươi mới và có được vẻ đẹp hiện đại cần thiết. Màu trắng tự nhiên của đá kết hợp với màu sắc chủ đạo của ngôi nhà tạo nên được vẻ đẹp hài hòa, thống nhất về mặt kiến trúc trong ngôi nhà. Một điểm ấn tượng mà chắc chắn bạn khó có thể quên được trong mẫu thiết kế nhà phố 4 tầng mặt tiền 6m này chính là thiết kế mái thái dốc hiện đại. Mái tầng 3, tầng 4 cộng với chi tiết mái vòm sang trọng, màu sắc mái khiến ngôi nhà tạo thành 1 tổng thể thống nhất về mặt kiến trúc và thẩm mĩ ngoại thất tuyệt vời.

Mặt bằng tầng 1 nhà ống 4 tầng
Mặt bằng tầng 1 trong thiết kế nhà ống 4 tầng được bố trí không gian cho toàn bộ gara ô tô rộng 60m2, 1 phòng giúp việc và kho chứa đồ. Có cầu thang thông với tầng trên.
Tham khảo thêm: Những kiểu nhà biệt thự 3 tầng 1 tum
Mẫu số 08. Thiết kế nhà 3.5x12m 4 tầng hiện đại
Mẫu nhà: NP51455
Mặt tiền: 3.5m
Chiều sâu: 12m

Thiết kế nhà 3.5x12m 4 tầng ở phố hiện đại.
Mẫu thiết kế nhà 3.5x12m 4 tầng hiện đại ở phố thường tập trung điểm nhấn vào mặt tiền do sự hạn chế của diện tích đất xây dựng, chính vì vậy, mẫu thiết kế nhà phố 4 tầng trên đây của chúng tôi cũng đảm bảo được những đăc trưng trên khi thiết kế, đặc biệt những ấn tượng về màu sắc,kiến trúc của mặt tiền ngôi nhà được tô đậm. Kiến trúc hiện đại còn được thể hiện rất rõ qua việc sử dụng các chi tiết cửa chính, cửa sổ bằng chất liệu kính . Điều này giúp không gian nội thất cũng sẽ được mở rộng và có nhiều ánh sáng hơn so với việc lựa chọn các chất liệu cửa thông thường. Hệ thống lan can các tầng cũng biến hóa đa dạng hơn nhờ cách sử dụng những chất liệu khác nhau. Lan can tầng 2, 3 được làm từ inox, mang đến sự sáng sủa, trẻ trung, gọn gàng.

Mặt bằng nội thất tầng 1 và tầng lửng
Tầng lửng trong mẫu thiết kế nhà phố 3.5m là tầng trung gian giữa tầng 1 và tầng 2. Thiết kế tầng lửng nhằm tăng diện tích sử dụng theo chiều cao, việc thiết kế không gian này có tính kết nối với không gian bán hàng dưới tầng 1, bạn vẫn có thể sử dụng tầng này phục vụ cho mục đích bán hàng hoặc làm kho chứa hàng hóa của mình. Chính vì vậy, tùy thuộc và mục đích cũng như sản phẩm kinh doanh riêng cho từng gia chủ mà kiến trúc sư sẽ giúp bạn có được một không gian bán hàng đẹp và thuận tiện như ý.
Mẫu số 09. Mẫu thiết kế nhà phố diện tích 90m2 4 tầng
Mẫu nhà: NP22125
Mặt tiền: 6m
Chiều sâu: 15m

Thiết kế nhà phố 6x15m 4 tầng hiện đại đẹp tại Thái Nguyên
Ngôi nhà nổi bật với những khối lồi, lõm tạo nên những khoảng không gian đan xen nhau mang đến sự thoáng đãng khi nhìn vào thiết kế nhà phố. Bên cạnh hình khối là những đường nét trang trí mà ở đây chính là các thanh lam được thiết kế cách điệu vừa đảm nhiệm việc che chắn nắng mưa vừa có thể tạo thành giàn để có thể trang trí cây xanh trên đó. Hơn nữa các thanh lam trang trí này còn tạo độ thoáng, độ sáng cho các không gian bên trong nhà để bạn có thể cảm nhận được sự thoải mái, gần gũi với thiên nhiên. Song hành cùng tone màu chính là thiết kế lan can bằng kính để tăng độ sáng, cũng như phá vỡ đi sự ngăn cách giữa không gian bên trong nhà với không gian bên ngoài tự nhiên.

Mặt bằng công năng tầng 1 mẫu nhà ống 4 tầng đẹp
Mẫu nhà phố 4 tầng mặt tiền 6m có mặt bằng tầng 1 được bố trí làm không gian của gara ô tô và phòng của người giúp việc. Diện tích tầng 1 90m2 có sân trước được bố trí khu tiểu cảnh và là khu sân chơi cho con bạn. Phía bên trong là không gian để xe với sức chứa 2 ô tô, 2 xe máy tạo sự thuận lợi trong việc đi lại cũng như cất xe.
Mẫu số 10. Bản vẽ chi tiết thiết kế nhà ống 55m2 4 tầng
Mẫu nhà: NP123067
Mặt tiền: 4,5m
Chiều sâu: 12m

Hình ảnh 3d mẫu thiết kế nhà ống 4 tầng 55m2
Thiết kế phần chân nhà cần thiết kế làm sao để thể hiện được sự khỏe khoắn, chắc chắn và tạo điểm nhấn về mặt kiến trúc ấn tượng cho toàn bộ không gian tầng 1 của ngôi nhà. Đây cũng là không gian đầu tiên tiếp xúc đầu tiên của ngôi nhà nên sử dụng vật liệu đá marble cao cấp ốp chân tường ngoại thất mang đến cho không gian kiến trúc vẻ đẹp hoàn thiện, mĩ miều nhất. Màu sắc sẫm màu của đá không chỉ thể hiện được sự mới mẻ, sang trọng mà còn sạch sẽ, dễ dàng trong việc lựa chọn, xây dựng của bạn.
Xem thêm: Những mẫu thiết kế biệt thự 2 tầng có tầng hầm

Mặt bằng tầng 1 bản vẽ nhà 55m2 ở phố 4 tầng hiện đại đẹp
Các không gian công năng sử dụng ở cả tầng 1, tầng 2,3,4 của thiết kế nhà ống 55m2 được thiết kế với diện tích tương thích với nhu cầu sử dụng của gia đình anh Chính. Có nghĩa là các yếu tố về kích thước, chiều cao, độ dài rộng của công trình cầu thang, bậc thang, lan can cầu thang, kích thước thông thủy cửa đi, cửa sổ, kích thước các đồ nội thất sử dụng trong ngôi nhà phải đạt được tỷ lệ thiết kế hợp lý, tiện dụng và bảo đảm yếu tố an toàn trong khi sử dụng. Tầng 1 của mẫu thiết kế nhà ống 55m2 được thực hiện với các không gian như không gian để xe, và phòng khách rộng, để có thể đáp ứng được hoàn toàn nhu cầu sử dụng của gia đình chủ nhà.
Những gì bạn băn khoăn hãy chia sẻ với chúng tôi, các kỹ thuật viên sẽ phúc đáp chính xác cà tư vấn tận tình cho bạn. Bạn đọc và quý khách hàng có nhu cầu thuê thiết kế nhà phố, nhà chia lô 4 tầng, nhà ống 4 tầng đẹp vui lòng liên hệ trực tiếp tới số Hotline 0988 030 680 để được hỗ trợ tư vấn.
Xem thêm: Các mẫu nhà biệt thự 2 tầng 140m2








