Khu đất của bạn sở hữu lợi thế về diện tích và cảnh quan thiên nhiên? Bạn đang tìm kiếm ý tưởng về một không gian sống vừa phải, tiện nghi mà vô cùng thoải mái cho các thành viên trong gia đình? Xây biệt thự 200m2 1 tầng mái thái phong cách hiện đại liệu có phải là gợi ý hay ho, tận dụng và đáp ứng được đầy đủ những yêu cầu ấy của gia đình bạn hay không? Hãy cùng kiến trúc sư của ANG lý giải ngay bây giờ nhé!
Xem thêm: Chi phí xây nhà cấp 4 ở quê

Hồ sơ thiết kế xây biệt thự 200m2 1 tầng mái thái phong cách hiện đại kết hợp sân vườn khang trang
- Diện tích: 200m2/sàn
- Thông số công năng:
Tiền sảnh: 25m2, Phòng khách 42m2, Phòng thờ 14.8m2, Phòng bếp ăn: 34.5m2, Sân phơi 10m2, Phòng ngủ 1: 14.5m2, Phòng ngủ 2( phòng ngủ con): 14.5m2, Phòng ngủ 3: 15.8m2, WC1: 3.8m2, WC2: 4.3m2.
Xây biệt thự 200m2 1 tầng mái thái hết bao nhiêu tiền? Đây là thắc mắc không của riêng ai khi quyết định xây nhà. Trả lời cho câu hỏi này là cách để gia chủ chuẩn bị tốt hơn điều kiện tài chính trong suốt quá trình từ lúc bắt đầu cho tới tận khi hoàn thiện công trình, sẵn sàng đưa vào sử dụng. Tuy nhiên, thật khó để đưa ra đáp án chính xác nhất cho câu hỏi này vì để biết được mức kinh phí xây dựng còn phụ thuộc vào nhiều yếu tố như giá nhân công xây dựng, giá vật liệu xây dựng, kết cấu, cấu trúc của bản thiết kế, chi phí vật liệu hoàn thiện và các khoản phí phát sinh khác.
Bảng tính dưới đây chỉ mang tính chất khái toán cho phần xây thô, hoàn thiện ngoại thất của ngôi biệt thự 1 tầng 3 phòng ngủ diện tích 200m2.
- Diện tích sàn 1 sàn: 200m2
- Diện tích tổng ( Bao gồm sảnh, mái): 280 m2
* Trường hợp có hệ mái thái vì kèo = 40% sàn xây dựng

Khái toán xây biệt thự 200m2 1 tầng mái thái phong cách hiện đại
Giá trị tạm tính:
* Đơn giá trung bình xây dựng cho công trình này: 5.653.571.43 ( Triệu/m2)
* Trường hợp chỉ làm vì kèo lợp ngói, đóng trần, chi phí là: 1.421. 700.000.000
* Trường hợp đổ bê tông mái bằng và mái dốc, chi phí là: 1.741.300.000.000
Ghi chú:
* Thông số khối lượng tính toán trên chỉ mang tính tham khảo
* Đơn giá vật tư ở mức hoàn thiện cơ bản trung bình
* Đơn giá trên là đơn giá chủ đầu tư trực tiếp thi công
* Chi phí khác: Đào móng, lấp cọc, ép cọc, phát sinh công,....= 10- 15% chi phí tổng
Chú ý:
+) Bạn để lại diện tích nhà dự tính xây dựng và địa chỉ email phía bình luận ( Comment) bên dưới mỗi bài viết.
+) Chúng tôi sẽ tính toán và gửi đến bạn bảng chi phí xây dựng dự kiến cho gia đình mình.
Trên nền kiến trúc nhà 3 gian truyền thống, công trình của gia đình anh Việt sở hữu những nét cách tân mới mẻ, vừa đơn giản, gần gũi mà cũng không kém phần sang trọng. Như đã giới thiệu ở phần trên, lô đất của gia chủ khá bằng phẳng, dạng hình thang, có lợi thế về diện tích và cảnh quan, đó là lý do vì sao, kiến trúc sư và gia chủ đều hướng đến xây nhà biệt thự 200m2 1 tầng có sân vườn theo phong cách đơn giản mang hơi thở làng quê yên bình.
Cuộc sống đô thị phát triển kéo theo không ít những hệ lụy xung quanh nó. Nhiều người trở nên mẫn cảm với bầu không khí ồn ào, náo nhiệt chốn phồn hoa mong muốn được trở về quê hương hoặc kiến tạo nên một nơi chốn nghỉ ngơi thanh bình thứ 2 ở vùng ngoại thành. Đó có lẽ là động lực và là lý do lớn nhất để họ tìm đến các mẫu thiết kế biệt thự nhà vườn.
Thiết kế biệt thự nhà vườn phong cách hiện đại, thiết kế biệt thự phong cách đồng quê hay thiết kế nhà cổ điển là những lựa chọn đa dạng mà kiến trúc ANG đưa ra cho những vị khách của mình. Tất nhiên, mỗi kiểu kiến trúc lại sở hữu một nét đẹp riêng. Bằng những biến hóa tài tình của người làm thiết kế, chúng đều trở nên hoàn hảo và phù hợp nhất với nhu cầu về mặt công năng, thẩm mỹ cũng như kinh tế của chủ đầu tư.
Xu hướng chung của những căn biệt thự vườn là nghiêng về tính chất dân giã để có thể cảm nhận hết những dự vị mộc mạc của thôn quê. Thế nhưng với những người yêu thích cuộc sống tiện nghi, hiện đại thì việc đưa ra một thiết kế nhà vườn đi theo hướng này mà vẫn tạo cảm giác nhẹ nhàng, thoáng đãng là điều không có gì khó khăn. Quyết định xây biệt thự 200m2 1 tầng phong cách hiện đại kết hợp với nét truyền thống dân tộc, ngôi nhà của gia đình anh Việt hứa hẹn sẽ mang lại một bầu không khí thư thái, trong lành, thích hợp làm nơi chốn nghỉ ngơi, nạp lại tinh thần và năng lượng cho mỗi thành viên trong gia đình.
Cân đối, khỏe khoắn chỉ là một trong số những từ có thể dùng để miêu tả vẻ đẹp hình khối của ngôi biet thu 1 tang dep o nong thon 200m2 mái thái này. Xét về mặt hình thể cũng như bố cục công trình, có thể nhận ra sự tương đồng giữa kiểu nhà 3 gian truyền thống và ngôi nhà 1 tầng mang hơi hướng hiện đại ở Ba Vì.
Xây biệt thự 200m2 1 tầng 3 phòng ngủ sở hữu mặt tiền rộng rãi, thoáng đãng được tạo nên từ những khối kiến trúc vuông vức, góc cạnh sắc nét. Trên bề mặt tường, kiến trúc sư giải phóng hết các chi tiết trang trí rườm rà, cầu kỳ mang lại sự đơn giản và thoáng đãng cho không gian. Đường nét duy nhất được giữ lại là các đường chỉ kẻ ngang thanh thoát, tạo cảm giác nhấn nhá thú vị hơn.
Gian chính giữa của ngôi nhà là thiết kế sảnh đón rộng mở và vô cùng tươi sáng. Cột trụ đỡ vuông vắn tôn lên sự bề thế và vững vàng được phô diễn lên phía trước. Thân cột để trơn, chân cột ốp đá sang trọng, tránh bị ngấm nước. Thiết kế hàng bậc ngũ cấp tôn lên chiều cao và sự thanh thoát cho ngôi nhà.

Xây biệt thự 200m2 1 tầng 3 phòng ngủ với hệ thống mái thái cân đối
Phối màu là công đoạn vô cùng quan trọng. Màu sắc không chỉ có tác dụng làm đẹp mà còn ảnh hưởng đến cảm xúc của chính những người sinh sống trong đó. Trong khi màu ấm nóng có ảnh hưởng hưởng tích cực giúp an ủi tâm trọng thì những màu lạnh nhẹ nhàng lại khiến con người bình tĩnh hơn. Màu sáng thường mang đến cảm giác rộng rãi, thoáng mát làm cho căn phòng có cảm giác rộng mở. Ngược lại, các tông màu tối thể hiện sự tinh tế và ấm áp nên sẽ mang lại cảm giác gần gũi.
Quay trở lại với bản phối màu khi xây biệt thự 200m2 1 tầng mặt tiền 16,5m, kiến trúc sư đã lựa chọn tone màu ghi xám làm màu sắc chủ đạo. Màu ghi mang tinh thần của hơi hướng hiện đại, không quá tươi sáng nhưng cũng không quá u tối, thể hiện sự nhẹ nhàng, thanh lịch. Không chỉ vậy, gam màu này còn mang lại cảm giác trầm ổn, yên bình- điều mà bất cứ ngôi biệt thự vườn nào cũng mong muốn đạt được.
Tính hiện đại đề cao sự đơn giản và tinh tế, đó là những gì bạn hoàn toàn có thể tìm thấy ở tone màu ghi xám như cách mà gia chủ đã đồng ý để xây biệt thự 200m2 1 tầng kinh phí 1,5 tỷ đồng chủ đạo bởi gam màu này. Tuy nhiên, nhiều quan điểm cho rằng màu ghi tạo cảm giác u buồn. Để cân bằng thị giác và xúc cảm, người thiết kế đã khéo léo kết hợp tone màu này với một tone màu rực rỡ, tươi mát hơn- sắc xanh của hệ mái thái.
Xanh dương là màu của bầu trời, đại diện cho sự hòa bình, cho ước mơ, hy vọng, thể hiện một trạng thái ổn định, chiều sâu của tâm hồn và nhận thức. Mái nhà hình tam giác, 3 đỉnh kết nối giữa quá khứ, hiện tại và tương lai. Màu mái xanh biểu tượng cho niềm tin về sự gắn kết và phát triển hưng thịnh đó. Không chỉ vậy, khi xây biệt thự 200m2 3 phòng ngủ mái màu xanh ghi, kiến trúc sư còn mong muốn tạo cảm giác yên bình và ôn hòa cho tinh thần của những người sẽ sống trong không gian ấy.
Xem thêm: Nhà cấp 4 3 phòng ngủ 1 phòng khách đẹp

Xây biệt thự 200m2 1 tầng 3 phòng ngủ với thiết kế tiền đường tươi sáng theo khuôn nhà 3 gian truyền thống
Cửa nhà là khu vực quan trọng. Nơi đây không chỉ là cửa ngõ giao hòa giữa cuộc sống sinh hoạt của con người và thiên nhiên xung quanh mà còn góp phần hoàn thiện công năng của ngôi nhà. Khi xây biệt thự 200m2 1 tầng, gia chủ cần hết sức cân nhắc lựa chọn chất liệu sao cho vừa đảm bảo được tính tiện nghi, thích ứng tốt với điều kiện tự nhiên lại cân bằng về mặt thẩm mỹ.
So với khối nhà hay các bức tường phẳng thì cửa nhà được cho là cấu trúc mở linh hoạt. Cửa có thể dễ dàng mở ra để đón gió, đón không khí, ánh sáng và dòng năng lượng tốt lành. Khi đóng lại, cửa và tường tạo thành khối thống nhất, kín khít, tạo không gian riêng tư cho gia đình, có khả năng chống ồn, chống trộm cắp, bảo vệ an toàn cho các thành viên.
Từ hệ công năng như vậy, kiến trúc sư tư vấn gia chủ nên xây biệt thự 200m2 mái thái sử dụng hệ thống cửa gỗ kính. Sự bền chắc, mộc mạc của gỗ kết hợp với tính hiện đại và khả năng đón sáng của chất liệu cửa kính chắc hẳn sẽ là sự phối hợp nhịp nhàng vừa mang lại cảm giác an toàn, bình yên lại vừa thoáng đãng, sáng sủa cho ngôi biệt thự 1,5 tỷ này.
Ngoài sử dụng chất liệu tốt, vị trí, kích thước cũng như loại cửa cũng được kiến trúc sư cân nhắc cho từng khu vực. Ví dụ với những cửa sổ chỉ mang tính chất lấy sáng cho căn phòng thì có kích thước nhỏ, thường là cửa 1 cánh đẩy hoặc liền tường. Ngược lại với của thông gió và tạo view thì cửa sổ lớn hơn, có thể là cửa mở 2 đến 4 cánh vô cùng thoáng đãng, trao đổi khí trong lành cho căn phòng. Cửa ra vào ở sảnh chính thì được làm hoàn toàn từ gỗ đặc để phô diễn sự khắc trạm sang trọng, lại tạo được không gian riêng tư và sự an toàn cho ngôi nhà.

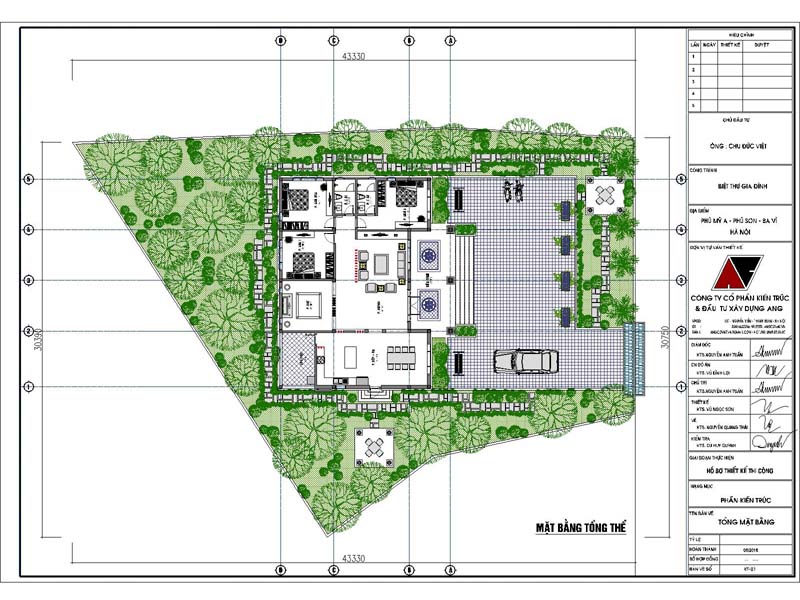
Phối cảnh tổng thể mẫu thiết kế nhà biệt thự vườn cấp 4 diện tích 200m2 mặt tiền 16,5m
Xu hướng hiện nay là các mẫu thiết kế biệt thự có sân vườn bao quanh, không gian sống nhỏ nhắn, theo phong cách làng quê hòa hợp với thiên nhiên làm chốn nghỉ dưỡng yên bình, thơ mộng, gột rửa tâm hồn và rũ bỏ mệt mỏi cho những người con. Gia đình anh Nam lại vô cùng may mắn khi được sở hữu lô đất vườn xanh mát, có lợi thế về cây cảnh và diện tích sử dụng. Bởi vậy khi tư vấn xây biệt thự 200m2 1 tầng chúng tôi đã định hướng anh theo phong cách biệt thự vườn và hỗ trợ anh trong việc định hướng, sắp xếp bố cục của các tiểu cảnh.
Quan sát bản vẽ phối cảnh tổng thể có thể thấy được sự khang trang về mặt quy hoạch. Trên ô đất diện tích 30x43m rộng rãi, ngôi nhà được đặt ẩn sau vườn cây xanh mát, cây cối phát triển tươi tốt, được cắt tỉa gọn gàng. Đứng từ xa cũng chỉ có thể thấy thấp thoáng dáng mái xuôi chiều cân đối màu xanh dương.
Toàn bộ không gian đất trước nhà đều được ốp gạch tạo sân thoáng đãng, sạch sẽ. Sân nhà là nơi vui chơi an toàn cho trẻ nhỏ, làm nơi để xe hoặc cũng có thể tận dụng làm nơi tổ chức các bữa tiệc ngoài trời. Bao bọc toàn bộ không gian sống của gia đình anh Nam là vườn cây xanh mát, nơi gia chủ có thể tự do thưởng thức thú vui chăm sóc cây cảnh tao nhã của mình, nơi những thành viên trong gia đình có thể hòa mình vào thiên nhiên trong lành, sảng khoái, nơi anh Nam có thể dẫn người bạn thân đi tham quan bộ sưu tập những loài cây, hoa rực rỡ, nhiều màu sắc, nhiều kiểu dáng, tỏa hương thơm, rợp bóng mát cho cả ngôi nhà.
Xây biệt thự 200m2 1 tầng kinh phí 1,5 tỷ đồng bao quanh bởi hệ thống cổng, hàng rào kiên cố là sự bảo vệ an toàn mà kiến trúc ANG muốn dành cho gia đình anh Nam. Hàng rào và cổng nhà tuy không phải là yếu tố then chốt tạo nên sự tiện nghi cho không gian nhưng nó là cách để thiết lập sự riêng tư và chủ quyền cho “lãnh địa” của mỗi gia đình. Điều này đánh vào tâm lý sở hữu của nhiều người chủ. Không chỉ giúp chủ nhà bao quát dễ hơn không gian sống của mình, cổng hàng rào cũng được coi là khâu hoàn thiện cuối cùng mang lại vẻ đẹp đủ đầy, khang trang cho cả khối công trình rộng lớn.
Xem thêm: Thiết kế nhà trệt 120m2

Mặt bằng tổng thể xây biệt thự 200m2 mái thái 1 tầng phong cách hiện đại
Gia đình anh Nam và kiến trúc sư thiết kế sau khi cùng nhau làm việc đã chốt phương án bố trí mặt bằng công năng như sau khi xây biệt thự 200m2 1 tầng phong cách hiện đại: Tiền sảnh: 25m2, Phòng khách 42m2, Phòng thờ 14.8m2, Phòng bếp ăn: 34.5m2, Sân phơi 10m2, Phòng ngủ 1: 14.5m2, Phòng ngủ 2 (phòng ngủ con): 14.5m2, Phòng ngủ 3: 15.8m2, WC1: 3.8m2, WC2: 4.3m2.
Từ tiền sảnh bước vào, giống như cách bố trí của các ngôi nhà 3 gian truyền thống, gian chính giữa bao giờ cũng là phòng khách. Phòng khách đầu tư nội thất sang trọng với bộ bàn ghế kích thước lớn, kệ gỗ,… là nơi tiếp khách và phô diễn phong cách cũng như phần nào lối sống của chủ nhân ngôi nhà. Không chỉ vậy, phần lớn đây còn là không gian sinh hoạt buổi tối của các gia đình. Quang cảnh cả gia đình cùng uống nước, dùng món tráng miệng, xem tivi sau mỗi giờ cơm tối chắc không còn xa lạ với nhiều người.
Đi sâu vào bên trong là phòng thờ của mau nha cap 4 dien tich dien tich 200m2 mái thái. Phòng thờ không quá lớn, tránh tạo cảm giác trống trải. Bàn thờ kê dựa lưng chắc chắn vào tường hướng ra phía cửa chính hợp mệnh với gia chủ. Không gian thờ cúng được ngăn cách với các khu vực chức năng khác bởi các bức lam gỗ trang trí tinh xảo, vừa tạo sự thiêng liêng, trang trọng mà vẫn giữ được sự kết nối giữa các thế hệ.
Xây biệt thự 200m2 1 tầng nên anh Nam có thể thoải mái bố trí các không gian chức năng rộng rãi, thoáng đãng. Ví như khu bếp của gia đình anh có thể rộng tới 34,5m2. Kiến trúc sư đã giúp căn bếp tuy rộng mà vẫn gọn gàng, ấm cúng nhờ cách bố trí nội thất, sắp xếp đồ đạc và sử dụng chất liệu cho tủ bếp, màu sàn,…Từ căn bếp cũng có một lối đi phụ dẫn ra ngoài thuận lợi hơn cho việc di chuyển.
Hệ thống 3 phòng ngủ của ngôi nhà 1 tầng diện tích 200m2 mặt tiền 16,5m được bố trí cạnh nhau tạo thành góc riêng tư và yên tĩnh cho sự nghỉ ngơi thoải mái của các thành viên trong gia đình. Việc bố trí tập trung phòng ngủ như vậy cũng giúp tiết kiệm diện tích, tránh được sự cắt qua của các luồng giao thông chính.
Phòng ngủ 3 bên ngoài có thiết kế khu vệ sinh khép kín dành cho vợ chồng anh Nam. 2 phòng ngủ sau có diện tích nhỏ hơn, sử dụng chung phòng vệ sinh là của con cái. Mỗi phòng ngủ đều có cách bày trí đồ đạc cơ bản bàn ghế, giường, tủ gọn gàng tạo nhiều khoảng trống di chuyển. Thiết kế đầy đủ cửa sổ mở đón gió, cửa sổ đón sáng và cửa chính thoát khí giúp cho tất cả không gian trở nên thoải mái, dễ chịu và tươi sát, mát mẻ hơn. Điều này hứa hẹn sẽ mang lại những giây phút nghỉ ngơi thư thái nhất cho mọi người.

Bố trí mặt bằng nội thất khoa học hợp lý khi xây biệt thự 200m2 1 tầng 3 phòng ngủ
Xây biệt thự 200m2 1 tầng mái thái phong cách hiện đại là sự lựa chọn của anh Nam với mong muốn được sở hữu môt không gian sống tiện nghi, phù hợp với nhu cầu sinh hoạt hiện tại và tương lai của gia đình, đáp ứng được sở thích đơn giản, hướng về thiên nhiên, tìm lại những nét đẹp truyền thống của gia chủ.
Mọi thông tin cần tư vấn xin vui lòng liên hệ: 0988.030.680
Tham khảo: Thiết kế nhà ở kiêm văn phòng đẹp