Kiến trúc sư của chúng tôi sẽ giới thiệu với các bạn bộ sưu tập gần 40 bản vẽ nhà 1 trệt 2 lầu với cách bố trí mặt bằng công năng tiện nghi và khoa học nhất, hi vọng sẽ giúp bạn tìm ra ý tưởng cho việc bố trí nội thất, công năng sử dụng cho ngôi nhà của mình.
Khi lên kế hoạch bắt tay vào việc xây dựng tổ ấm cho gia đình, không sớm thì muộn bạn cũng sẽ phải lên ý tưởng cho việc sắp xếp mặt bằng công năng của ngôi nhà sao cho phù hợp nhất. Nếu như gia đình bạn đang có ý tưởng xây nhà phố 3 tầng hoặc biệt thự 3 tầng thì bài viết này sẽ là tài liệu tham khảo hữu ích dành cho bạn trong việc sắp xếp công năng sử dụng cho ngôi nhà.
Bản vẽ nhà 1 trệt 2 lầu là gì?
Bản vẽ nhà 1 trệt 2 lầu là bản vẽ biểu diễn hình dạng và cấu tạo của những ngôi nhà 3 tầng (theo cách gọi ngoài Bắc) và 1 trệt 2 lầu (theo cách gọi của Miền Nam). Dù tên gọi có khác nhau nhưng các bản vẽ nhà 1 trệt 2 lầu này đều bảo gồm, thể hiện đầy đủ mặt đứng, mặt bằng và mặt cắt của ngôi nhà.
Mặt bằng là hình chiếu vuông góc của ngôi nhà lên mặt phẳng hình chiếu sau khi đã bóc mái, tuy nhiên để có thể thể hiện các thông tin như cửa sổ, cửa lớn, cột… thì người ta phải cắt ngôi nhà bằng 1 mặt phẳng tưởng tượng song song với mặt phẳng hình chiếu. Như vậy, mặt bằng của ngôi nhà sẽ thể hiện được vị trí và kích thước chính xác của các cột, cửa sổ, cửa chính, dầm, vị trí các đồ nội thất và kích thước của chúng.
Bài viết này của chúng tôi sẽ đi sâu vào việc phân tích mặt bằng và công năng sử dụng cũng như cách bố trí đồ đạc cho ngôi nhà 1 trệt 2 lầu với mong muốn giúp các bạn hiểu hơn về bản vẽ mặt bằng và cách bố trí nội thất sao cho hợp lí trong các mẫu biệt thự đẹp 3 tầng, hay các mẫu nhà 1 trệt 2 lầu dưới đây:
Vai trò của bản vẽ nhà 1 trệt 2 lầu trong thiết kế và xây dựng
Vai trò của bản vẽ nhà 1 trệt 2 lầu trong thiết kế
Trong quá trình thiết kế nhà ở từ khi hình thành ý tưởng đến khi lập hồ sơ kĩ thuật cần phải trải qua các giai đoạn sau:
+ Giai đoạn hình thành ý tưởng: Giai đoạn này sẽ phác họa hình dáng, kích thước ngôi nhà để gia chủ có thể hình dung được.
+ Giai đoạn thu thập thông tin: Trong giai đoạn này, có thể tham khảo các bản vẽ liên quan đến ngôi nhà khi thiết kế và bắt tay vào việc lập bản vẽ phác thảo cho ngôi nhà.
+ Giai đoạn thẩm định: Cả kiến trúc sư và gia chủ sẽ trao đổi ý kiến thông qua bản vẽ nhà.
+ Giai đoạn lập hồ sơ kỹ thuật: Tiến hành lập các bản vẽ tổng thể và bản vẽ chi tiết của ngôi nhà.
Vai trò của bản vẽ nhà 1 trệt 2 lầu trong xây dựng
Trong quá trình thi công, bản vẽ nhà là điều kiện tiên quyết để có thể dựng được 1 ngôi nhà 1 trệt 2 lầu đẹp. Nhờ có bản vẽ nhà, đội thợ thi công nhà trọn gói sẽ dựa vào đó để xây dựng ngôi nhà theo đúng tỉ lệ và kích thước sẵn có, quá trình thi công ngôi nhà cũng dễ dàng hơn nhiều.
Cách bố trí mặt bằng công năng trong bản vẽ nhà 1 trệt 2 lầu đẹp, khoa học
Mẫu số 1: Khám phá công năng sử dụng trong mẫu bản vẽ nhà 1 trệt 2 lầu 4 phòng ngủ hiện đại
Bản vẽ nhà 1 trệt 2 lầu dưới đây được chúng tôi thiết kế cho gia đình ông Trần Đình Nguyên ở Thái Bình, mặt tiền 9m, chiều sâu 13m trên kích thước ô đất 10x35m. Hãy cùng chúng tôi chiêm ngưỡng mặt bằng công năng sử dụng của mẫu biệt thự 3 tầng này nhé:

Mặt bằng nội thất tầng trệt - bản vẽ nhà 1 trệt 2 lầu 4 phòng ngủ hiện đại
Với diện tích 90m2/sàn, mặt bằng tầng trệt của mẫu bản vẽ nhà 1 trệt 2 lầu này được bố trí 1 phòng khách, 1 phòng ngủ, phòng bếp ăn, 1 WC và cầu thang đi lên tầng. Từ sảnh chính đi vào là không gian phòng khách rộng 30m, đủ để gia đình có thể bày biện 1 bộ bàn ghế lớn, kệ ti vi và các đồ dùng trang trí khác. Phòng khách được thiết kế thông với phòng ngủ và khu vực cầu thang tạo ra sự thông thoáng cho ngôi nhà, ranh giới giữa phòng khách và các phòng khác được tạo bởi 1 bức bình phong hoa văn tăng thêm sự sang trọng cho ngôi nhà. Phòng ngủ 1 của gia đình có hướng nhìn ra mặt tiền rất đẹp mắt, đem đến cảm giác thoải mái cho các thành viên.

Mặt bằng nội thất lầu 1 - bản vẽ nhà 1 trệt 2 lầu 4 phòng ngủ hiện đại
Đến với không gian lầu 1 chúng ta có thể thấy sự bố trí công năng vô cùng tiện lợi: phòng ngủ 2 được bố trí giống như phòng ngủ 1, có hướng nhìn ra mặt tiền vô cùng thông thoáng; phòng ngủ 3 có diện tích nhỏ hơn gia đình bạn có thể sử dụng làm phòng ngủ cho trẻ nhỏ hoặc làm phòng ngủ cho khách; đối diện với phòng ngủ 3 là phòng ngủ 4 vô cùng rộng rãi được thiết kế nhà vệ sinh khép kín, gia chủ có thể làm việc ngay trong phòng ngủ của mình.
Xem thêm: nhà 3 tầng 2 mặt tiền

Mặt bằng nội thất lầu 2 - bản vẽ nhà 1 trệt 2 lầu 4 phòng ngủ hiện đại
Đối với những gia đình khá giả thì việc xây nhà không chỉ đáp ứng nhu cầu ăn uống ngủ nghỉ mà còn là nơi vui chơi giải trí cho các thành viên trong gia đình. Vì vậy, mặt bằng lầu 2 của mẫu bản vẽ nhà 1 trệt 2 lầu này được bố trí 1 phòng karaoke rộng 16m2 nhằm phục vụ nhu cầu giải trí tại gia của gia đình. Phòng karaoke được thiết kế cách âm tốt, gia đình có thể thoải mái ca hát mà không lo ảnh hưởng đến hàng xóm xung quanh. Ngoài phòng karaoke, lầu 2 của ngôi nhà còn thiết kế thêm 1 phòng thờ, 1 sân phơi, 1 sân chơi cho trẻ nhỏ vô cùng tiện lợi.
Mẫu số 2: Giới thiệu bản vẽ nhà 1 trệt 2 lầu mặt tiền 10m đầy đủ chi tiết
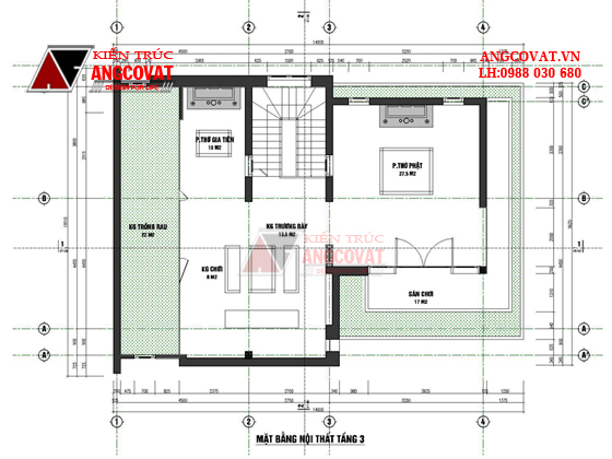
Mẫu thiết kế nhà 1 trệt 2 lầu dưới đây được thực hiện bởi kiến trúc sư Angcovat cho gia đình anh Mai Anh Khoa ở Sóc Sơn Hà Nội, mặt tiền 10m, chiều sâu 15m, tổng diện tích 130m2/sàn.

Mặt bằng tầng trệt – bản vẽ nhà 1 trệt 2 lầu mặt tiền 10m đầy đủ chi tiết
Tầng 1 của ngôi biệt thự 3 tầng được bố trí công năng vô cùng đồ sộ bao gồm 1 phòng khách rộng 34.6m2, phòng ngủ 1 rộng 19.8m2, không gian ăn 13.5m2, không gian bếp 14.6m2, WC 6.9m2. Ngôi biệt thự được thiết kế với 2 sảnh lớn nhằm tăng thêm sự sang trọng và bề thế cho ngôi nhà và thuận tiện trong việc đi lại cho các thành viên. Có thể nói, không gian tầng trệt chính là bộ mặt của toàn ngôi nhà, vì vậy bố trí không gian tầng trệt khoa học và đẹp mắt thì sẽ làm tăng thêm sự sang trọng của ngôi nhà đối với các vị khách đến chơi nhà.

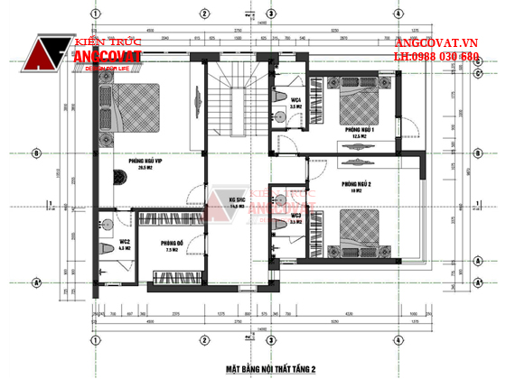
Mặt bằng lầu 1 - bản vẽ nhà 1 trệt 2 lầu mặt tiền 10m đầy đủ chi tiết
Không gian lầu 1 mẫu bản vẽ nhà 1 trệt 2 lầu này được thiết kế bao gồm: Phòng ngủ 2 (30m2) kết hợp với phòng thay đồ (7.8m2) + WC (13.8m2), phòng ngủ 3 (21.3m2), sân chơi (19.8m2). Thông số công năng sử dụng của tầng 2 làm tăng thêm sự bề thế cho ngôi nhà, đặc biệt là cách thiết kế phòng ngủ kết hợp phòng thay đồ và phòng vệ sinh rộng lớn giống như ở các khách sạn cao cấp, đảm bảo sẽ đáp ứng được nhu cầu sử dụng của các gia đình, đặc biệt là các gia đình có trẻ nhỏ.
Xem thêm: mẫu nhà 3 tầng có gác lửng

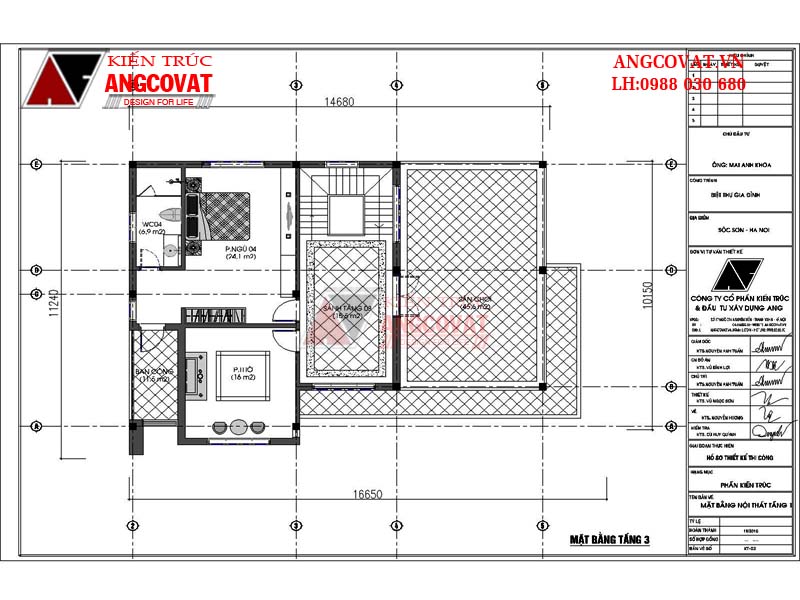
Mặt bằng lầu 2- bản vẽ nhà 1 trệt 2 lầu mặt tiền 10m đầy đủ chi tiết
Lầu 2 của ngôi biệt thự đẹp được thiết kế khá đơn giản, chỉ có 1 phòng thờ, 1 phòng ngủ, sảnh tầng và phòng vệ sinh. Phía sau phòng thờ là ban công rộng 45m2, cách thiết kế ban công rộng vừa tạo ra sự thông thoáng cho ngôi nhà, vừa có thể tận dụng để làm chỗ nghỉ ngơi, uống trà hoặc thiết kế không gian xanh cho ngôi nhà 1 trệt 2 lầu này.
Mẫu số 3: Ấn tượng với bản vẽ nhà 1 trệt 2 lầu 4 phòng ngủ hình chữ L
Nhà chữ L chắc hẳn không còn xa lạ gì đối với chúng ta, đặc biệt là các gia đình ở nông thôn bởi vì sự đơn giản trong kiến trúc nhưng vẫn đảm bảo nhu cầu sử dụng của gia đình. Mẫu biệt thự 3 tầng chữ L dưới đây được kiến trúc sư của chúng tôi thiết kế cho chủ đầu tư là ông Triệu Quang Sang ở Hà Nội với mặt tiền 9m, chiều sâu 11m, diện tích 80m2/sàn.

Mặt bằng tầng trệt - bản vẽ nhà 1 trệt 2 lầu 4 phòng ngủ hình chữ L
Quan sát mặt bằng công năng sử dụng tầng trệt mẫu bản vẽ nhà 1 trệt 2 lầu, chúng ta có thể thấy rằng: Từ sảnh chính đi vào là không gian phòng khách rộng 21m2, được trang bị đầy đủ tiện nghi như bàn ghế, kệ ti vi… Nối tiếp không gian phòng khách là phòng ngủ 1 rộng 13m2 cũng được bố trí đầy đủ tiện nghi, đối diện phòng khách là cầu thang đi lên lầu, sang phải chính là phòng bếp + ăn rộng 15.5m2 tạo sự ấm cúng cho gia đình.

Mặt bằng lầu 1 - bản vẽ nhà 1 trệt 2 lầu 4 phòng ngủ hình chữ L
Mặt bằng lầu 1 của mẫu biệt thự 3 tầng được tận dụng một cách triệt để nhất bao gồm 3 phòng ngủ, 2 phòng vệ sinh, sảnh tầng và ban công. Việc bố trí 3 phòng ngủ ở lầu 1 của ngôi nhà nhằm thuận tiện trong việc chăm sóc lẫn nhau giữa các thành viên trong gia đình, bố mẹ có thể dễ dàng chăm sóc cho các con mỗi khi bị ốm hoặc khi các con còn nhỏ…
Xem thêm: nhà 3 tầng 1 tum

Mặt bằng lầu 2 - bản vẽ nhà 1 trệt 2 lầu 4 phòng ngủ hình chữ L
Lầu 2 được thiết kế 1 phòng sinh hoạt chung cho cả gia đình với diện tích 13m2 vô cùng rộng rãi và thoáng đãng sẽ là nơi cả gia đình bạn cùng sinh hoạt, vui chơi, giúp các thành viên gắn bó với nhau nhiều hơn. Phòng thờ được đặt gọn gàng, rộng 14.5m2 tạo không gian thờ cúng rộng rãi, trang nghiêm cho gia chủ. Cạnh phòng thờ được thiết kế 1 phòng kho nhỏ rộng 3.5m2, gia đình có thể tận dụng để để đồ đạc, vật dụng cho gọn gàng. Lầu 2 của ngôi biệt thự đẹp còn được thiết kế 1 sân phơi vô cùng rộng, thoải mái cho gia đình phơi chăn màn, quần áo…
Mẫu số 4: Giới thiệu bản vẽ nhà 1 trệt 2 lầu tiện nghi, sang trọng
Mẫu biệt thự được thiết kế với kích thước 9x12m trên ô đất có kích thước 450m2 cho chủ đầu tư là ông Nguyễn Văn Điều.

Mặt bằng nội thất tầng trệt - Mẫu bản vẽ nhà 1 trệt 2 lầu tiện nghi, sang trọng
Công năng mặt bằng tầng 1 của mẫu biệt thự 1 trệt 2 lầu khá đơn giản nhưng vẫn đảm bảo được sự tiện lợi tối ưu nhất cho các thành viên trong gia đình. Thiết kế bậc tam cấp đi lên tiền sảnh của ngôi nhà sẽ giúp cho ngôi nhà trông cao và bề thế hơn, làm tôn dáng cho ngôi nhà. Đi qua tiền sảnh là đến với không gian phòng khách sang trọng với diện tích 23m2, bên trong phòng khách là phòng ngủ 1. Từ sảnh phụ đi vào là không gian bếp ăn rộng 21m2, đi qua phòng bếp sẽ có cầu thang đi lên lầu, cạnh cầu thang là nhà vệ sinh.
Xem thêm: nhà mái lệch hiện đại

Mặt bằng nội thất lầu 1 - Mẫu bản vẽ nhà 1 trệt 2 lầu tiện nghi, sang trọng
Mặt bằng lầu 1 được thiết kế với 2 phòng ngủ, sân chơi, 1 WC và cầu thang đi lên lầu 2. Không gian tầng 2 được bố trí khá đơn giản nhưng vẫn đảm bảo nhu cầu nghỉ ngơi và vui chơi giải trí của gia đình.

Mặt bằng nội thất lầu 2 - Mẫu bản vẽ nhà 1 trệt 2 lầu tiện nghi, sang trọng
Không gian tầng 3 được bố trí với 1 phòng ngủ (17m2), 1 WC, bên ngoài phòng ngủ được thiết kế 1 giàn treo hoa nhằm đem đến không gian gần gũi với thiên nhiên, giúp các thành viên có thể thư giãn sau mỗi ngày làm việc mệt mỏi.
Mẫu số 5: Bản vẽ nhà 1 trệt 2 lầu diện tích 9x12m sang trọng ở nông thôn

Mặt bằng nội thất tầng trệt - Bản vẽ nhà 1 trệt 2 lầu diện tích 9x12m sang trọng ở nông thôn
Với kích thước 9x12m, mặt bằng tầng trệt của mẫu biệt thự 1 trệt 2 lầu được bố trí gồm: phòng khách (16m2), phòng ngủ (11m2), phòng bếp ăn (14.5m2), tiền sảnh (10m2), WC1 ( 3m2), thông tầng (0.85m2).

Mặt bằng nội thất lầu 1 - Bản vẽ nhà 1 trệt 2 lầu diện tích 9x12m sang trọng ở nông thôn.
Mặt bằng công năng sử dụng lầu 1 bao gồm: phòng ngủ 2 (11m2), WC2 (3m2), thông tầng (0.85m2), phòng ngủ 3 (14.5m2), phòng ngủ 4 (20m2). Không gian của lầu 1 thiết kế ưu tiên cho việc nghỉ ngơi của các thành viên trong gia đình. 3 phòng ngủ đều có diện tích rộng rãi, thoáng đãng, là nơi nghỉ ngơi lý tưởng cho các thành viên sau mỗi ngày học tập và làm việc mệt mỏi.

Mặt bằng nội thất lầu 2 - Bản vẽ nhà 1 trệt 2 lầu diện tích 9x12m sang trọng ở nông thôn.
Mặt bằng nội thất lầu 2 bao gồm: phòng giải trí (11m2), phòng giặt (3m2), thông tầng (0.85m2), phòng thờ (15.2m2), sân chơi (17m2).
Xem thêm: nhà 3 tầng mái ngói
Mẫu số 6: Giới thiệu bản vẽ nhà 1 trệt 2 lầu kiểu pháp sang trọng
Mẫu biệt thự 3 tầng kiểu Pháp dưới đây được kiến trúc sư Angcovat thiết kế cho gia đình ông Tiến ở Hưng Yên với mặt tiền 9.5m, chiều sâu 13m. Ngôi biệt thự đẹp này nằm tọa lạc trên mảnh đất 500m2 khiến ai đi qua cũng phải ngước nhìn.

Mặt bằng tầng trệt - bản vẽ nhà 1 trệt 2 lầu kiểu Pháp sang trọng
Chúng ta có thể quan sát thấy mặt bằng tầng trệt của ngôi biệt thự bao gồm: 1 phòng ngủ, 1 phòng khách, 1 phòng bếp + ăn và 1 gara ô tô. Cách bố trí mặt bằng công năng cho ngôi biệt thự đẹp trên đây rất phù hợp với các gia đình có ô tô, mong muốn có 1 gara ô tô rộng rãi để đậu xe. Diện tích của gara rộng lớn, gia đình có thể đậu cả ô tô và xe máy vô cùng tiện lợi.

Mặt bằng lầu 1 - bản vẽ nhà 1 trệt 2 lầu kiểu Pháp sang trọng
Không gian lầu 1 được bố trí 3 phòng ngủ, 2 phòng vệ sinh vô cùng thuận tiện cho việc sinh hoạt của các thành viên trong gia đình. Đặc biệt, tầng lầu còn được thiết kế 1 phòng ngủ vip diện tích 31m2 ngang bằng 1 nhà phố làm tôn thêm sự sang trọng cho ngôi nhà.

Mặt bằng lầu 2 - bản vẽ nhà 1 trệt 2 lầu kiểu Pháp sang trọng
Đến với lầu 2, mặt bằng lầu 2 được thiết kế với 1 phòng karaoke, 1 sân chơi, 1 sân phơi và 1 phòng thờ. Phòng thờ được đặt ở vị trí trang nghiêm nhất, không bị tác động bởi các yếu tố xung quanh, ngoài ra phòng thờ còn được thiết kế thêm ban công ở ngoài tạo ra không gian thoáng đãng cho căn phòng. Việc thiết kế phòng karaoke ở tầng 3 không còn xa lạ đối với các gia đình nữa, đây sẽ là không gian để gia đình thư giãn, giải trí sau mỗi ngày làm việc mệt mỏi, các thành viên cũng có thể mời bạn bè về nhà cùng nhau hát hò mà không cần phải tốn tiền ra ngoài.
Mẫu số 7: Giới thiệu bản vẽ nhà 1 trệt 2 lầu 4 phòng ngủ 2 phòng thờ

Mặt bằng nội thất tầng trệt – bản vẽ nhà 1 trệt 2 lầu 4 phòng ngủ 2 phòng thờ
Tầng trệt của mẫu biệt thự này được bố trí bao gồm 1 gara ô tô, 1 phòng khách, 1 phòng bếp + ăn, 1 phòng ngủ và 1 phòng vệ sinh. Từ sảnh chính đi vào là không gian phòng khách rộng lớn, sang trọng nổi bật với bộ ghế sofa kích thước lớn và kệ ti vi được sắp xếp rất khoa học.

Mặt bằng nội thất tầng lầu – bản vẽ nhà 1 trệt 2 lầu 4 phòng ngủ 2 phòng thờ
Mặt bằng tầng lầu của ngôi biệt thự 3 tầng này được bố trí tập trung 3 phòng ngủ cho các thành viên trong gia đình, trong đó có 1 phòng ngủ vip được thiết kế ngay sát bên trái cầu thang với diện tích 26m2 đem đến cho gia chủ một nơi nghỉ ngơi vô cùng thoải mái. Ở tầng lầu này còn thiết kế 1 phòng sinh hoạt chung cho cả gia đình với diện tích 14.5m2 vô cùng thuận lợi cho các thành viên trong vấn đề di chuyển.

Mặt bằng nội thất lầu 2 - bản vẽ nhà 1 trệt 2 lầu 4 phòng ngủ 2 phòng thờ
Ở lầu 2, ngôi biệt thự được thiết kế với 2 phòng thờ, trong đó 1 phòng là thờ phật, 1 phòng thờ gia tiên. Không gian phòng thờ cúng sang trọng được tách riêng thành 2 phòng làm tăng thêm sự thành kính của gia chủ đối với tổ tiên, ông bà. Ngoài 2 phòng thờ, không gian lầu 2 còn được thiết kế khu trưng bày diện tích 13.5m2 nhằm trưng bày những món đồ quý giá hoặc những kỷ niệm, thành tích của các thành viên trong gia đình.
Mẫu số 8: Bản vẽ nhà 1 trệt 2 lầu 100m2 trên mảnh đất hình thang

Mặt bằng bố trí nội thất tầng trệt - bản vẽ nhà 1 trệt 2 lầu 100m2 trên mảnh đất hình thang

Mặt bằng bố trí nội thất tầng lầu - bản vẽ nhà 1 trệt 2 lầu 100m2 trên mảnh đất hình thang

Mặt bằng bố trí nội thất lầu 2 - bản vẽ nhà 1 trệt 2 lầu 100m2 trên mảnh đất hình thang
Kết luận: Về các mẫu bản vẽ nhà 1 trệt 2 lầu đẹp, khoa học
Xã hội ngày càng phát triển, cuộc sống của con người ngày càng được cải thiện, nhu cầu xây dựng nhà cửa ngày càng lớn. Nếu như ngày xưa phổ biến những ngôi nhà mái lá, mái rơm, thi thoảng mới bắt gặp những ngôi nhà cấp 4 mái ngói hay nhà ống thì hiện nay đã xuất hiện những kiểu nhà mới, đa dạng về kiểu dáng, màu sắc, kiến trúc ngày càng độc đáo tiêu biểu là những ngôi biệt thự nhà vườn, lâu đài, dinh thự… Cho dù được thiết kế theo phong cách nào thì các ngôi nhà đều phục vụ cho nhu cầu sinh hoạt, nghỉ ngơi của gia đình. Bộ sưu tập các mẫu bản vẽ nhà 1 trệt 2 lầu trên đây là 1 gợi ý cho các bạn trong việc bố trí mặt bằng công năng sử dụng cho ngôi nhà tương lai của mình.
Nếu như bạn đang có ý định thiết kế tổ ấm cho gia đình mình thì hãy liên hệ ngay với chúng tôi để được tư vấn miễn phí nhé.
Hotline: 0988 030 680
Xem thêm: nhà phố 3 tầng 5m mặt tiền








